digor_ua Опубліковано: 18 червня 2018 Автор Поділитись Опубліковано: 18 червня 2018 На кой эта тулза, нарисуйте карандашом по клеткам... та ну это рисуешь, потом стираешь, потом опять рисуешь, потом стираешь, а там уже дырка :D и давай портить новый листок нетехнологично как-то :D Посилання на коментар Поділитися на інших сайтах More sharing options...
murava Опубліковано: 18 червня 2018 Поділитись Опубліковано: 18 червня 2018 Реально начните укладку - и там все само получится. Эти все малюнки контуров - это для нервных и беременных. 4 Посилання на коментар Поділитися на інших сайтах More sharing options...
digor_ua Опубліковано: 18 червня 2018 Автор Поділитись Опубліковано: 18 червня 2018 Реально начните укладку - и там все само получится. Эти все малюнки контуров - это для нервных и беременных. тож об этом думал с другой стороны хочется точно понимать где у меня сколько метров пойдет с третьей стороны есть возможность разбить помещения на равные метров по 12-15 и там расход трубы будет плюс-минус одинаковый короче надо подумать Посилання на коментар Поділитися на інших сайтах More sharing options...
xPavelx Опубліковано: 18 червня 2018 Поділитись Опубліковано: 18 червня 2018 и приклеваем листы это фото по состоянию на вечер вчера, чуть-чуть не успел ЭППС пилял лобзиком шикарно пиляет как по мне ооо, я сегодня тоже начал укладывать эппс на полы. 1 Посилання на коментар Поділитися на інших сайтах More sharing options...
murava Опубліковано: 18 червня 2018 Поділитись Опубліковано: 18 червня 2018 тож об этом думал с другой стороны хочется точно понимать где у меня сколько метров пойдет с третьей стороны есть возможность разбить помещения на равные метров по 12-15 и там расход трубы будет плюс-минус одинаковый короче надо подумать Неча думать - укладка полов - это почти творчество. Точный результат точно не предсказуем. Потому там сколько труб не бери - или останутся, или два раза в магазин бегать. 3 Посилання на коментар Поділитися на інших сайтах More sharing options...
digor_ua Опубліковано: 18 червня 2018 Автор Поділитись Опубліковано: 18 червня 2018 Неча думать - укладка полов - это почти творчество. Точный результат точно не предсказуем. Потому там сколько труб не бери - или останутся, или два раза в магазин бегать. вот это точное описание моей борьбы с канализационными фитингами :D в результате напряженной борьбы еще полпакета фитингов и немного труб (того, чего и не надо и выкинуть жалко) пополнили запасы в котейнере :D Добавлено через 1 минуту ооо, я сегодня тоже начал укладывать эппс на полы. ага, я Вас уже обгоняю немжножко, хоть начали Вы раньше :D я так понимаю раскладывать ТП тоже лично собираетесь? и кстати киньте ссылку где вы тот поролон брали на демпферную ленту, а то я в теме у Вас хотел спросить но как-то забыл Посилання на коментар Поділитися на інших сайтах More sharing options...
murava Опубліковано: 18 червня 2018 Поділитись Опубліковано: 18 червня 2018 Контейнер - это сложно. Так начинается вторая стройка. Нуачо, вон сколько остатков - ща баньку/веранду/гостевой домик пристроим. 1 Посилання на коментар Поділитися на інших сайтах More sharing options...
digor_ua Опубліковано: 18 червня 2018 Автор Поділитись Опубліковано: 18 червня 2018 Контейнер - это сложно. Так начинается вторая стройка. Нуачо, вон сколько остатков - ща баньку/веранду/гостевой домик пристроим. тут полторы палеты газоблока лежит под носом так рука и тянется махнуть еюю и сказать вона в том направлении гараж ваяйте, материал же почти весь есть :D так шо конетейнер то так, ни о чем Посилання на коментар Поділитися на інших сайтах More sharing options...
murava Опубліковано: 18 червня 2018 Поділитись Опубліковано: 18 червня 2018 Выводите средний расход трубы на квадрат, множите на квадраты - и смотрите какая длина бухты ближе. В большую сторону. Посилання на коментар Поділитися на інших сайтах More sharing options...
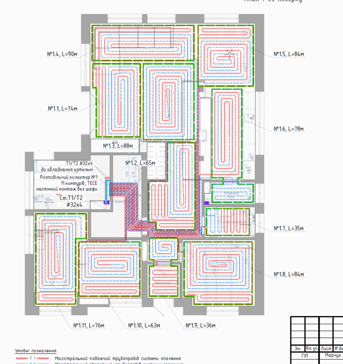
digor_ua Опубліковано: 18 червня 2018 Автор Поділитись Опубліковано: 18 червня 2018 Выводите средний расход трубы на квадрат, множите на квадраты - и смотрите какая длина бухты ближе. В большую сторону. там другая беда: труба уже куплена , две бухты по 240 метров и вот надо бы вот это все израсходывать и шоб этого всего хватило щас вот подумал шо надо разбить весь второй этаж на 6 примерно одинаковыхх кусков на 65 квадратов получится что один контур = 12 метров квадратных (примерно) по идее куска 80 метров на эти 12 квадратов должно хватить (считаю с шагом укладки 15 см, это получается 6 метров трубы на квадрат) в принципе даст бо и без рисунков теплого пола на бумаге выкручусь главное хорошо распланировать Посилання на коментар Поділитися на інших сайтах More sharing options...
standov Опубліковано: 18 червня 2018 Поділитись Опубліковано: 18 червня 2018 по идее куска 80 метров на эти 12 квадратов должно хватить (считаю с шагом укладки 15 см, это получается 6 метров трубы на квадрат) шото как-то не очень, у меня по раскладке 15см на 12м2 2 контура например 72+64 метра, на 33 - 3 контура по 80. Тобишь где-то раза в полтора больше Посилання на коментар Поділитися на інших сайтах More sharing options...
digor_ua Опубліковано: 18 червня 2018 Автор Поділитись Опубліковано: 18 червня 2018 на 12м2 2 контура например 72+64 метра, на 33 - 3 контура по 80 вы точно уверены что вас там не нажухали с расходом трубы? на двенадцать квадратов угробить 130+метров это разве что в два слоя ее ложить можно риснуок этого теплого пола? мне аж интерсно по теме: на первый этаж ушла бухта 500м и еще метров 40 осталось это гдето около 70 квадратов ну тоесть арифмтика 6 метров трубы на квадрат плюс-минус совпадает, с небольшим перерасходом, но там магистрали + в некоторых местах шаг 10 см мне захотелось Посилання на коментар Поділитися на інших сайтах More sharing options...
standov Опубліковано: 18 червня 2018 Поділитись Опубліковано: 18 червня 2018 вы точно уверены что вас там не нажухали с расходом трубы? на двенадцать квадратов угробить 130+метров это разве что в два слоя ее ложить можно риснуок этого теплого пола? мне аж интерсно У меня пока только проект )) Правда тут нет площадей но просто поверьте 1 Посилання на коментар Поділитися на інших сайтах More sharing options...
digor_ua Опубліковано: 18 червня 2018 Автор Поділитись Опубліковано: 18 червня 2018 У меня пока только проект )) так так даже интереснее люблю знаете ли покритиковать проф проекты, за которые деньги плочены) Добавлено через 2 минуты Правда тут нет площадей но просто поверьте не-не-не без площадей ничо не понятно давайте размеры помещений) Добавлено через 1 минуту а вобще интересная идея первых пару нитей возле окна ложить змейкой, а потом что осталось улиткой надо будет скопипастить) 1 Посилання на коментар Поділитися на інших сайтах More sharing options...
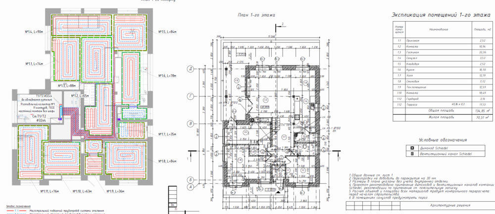
standov Опубліковано: 18 червня 2018 Поділитись Опубліковано: 18 червня 2018 без площадей ничо не понятно давайте размеры помещений) вот 1 этаж Посилання на коментар Поділитися на інших сайтах More sharing options...
standov Опубліковано: 18 червня 2018 Поділитись Опубліковано: 18 червня 2018 а вобще интересная идея У меня много интересных идей ))) Добавлено через 3 минуты Вообще я так подозреваю что вы как минимум не посчитали "хвост" от контура до коллектора ну и плюс вопрос конечно в пропорциях помещений Посилання на коментар Поділитися на інших сайтах More sharing options...
digor_ua Опубліковано: 18 червня 2018 Автор Поділитись Опубліковано: 18 червня 2018 вот 1 этаж верхнее правое помещение с длиной контура 84м 3.5 на 2.3, площадь 8 метров длина магистрали метров 13, то есть 26 (опять же примерно) длина трубы 84м ну то есть остается 58 метров на 8 метров, по 7 метров с копейками на квадрат что в принципе близко к правде длина магистрали доставляет конечно, она и дает ощутимый прирост к дине трубы, ну там еще куча чеса про теплопотери и все такое, но мысли о теплопотерях у годных проектантов заканчиваются на слове "проект тепловой эффективности", тьху да еще ж насос надо помощнее брать, чтоб все те магистрали прокачать ну да ладно, это ж люди деньги за это брали, куда там мне неуку их хаять нет, стойте, не могу пройти мимо от себя все таки хочется отметить что там на схеме 11 контуров и один черт прийдется две гребенки делать, хотя бы из тех соображений что гребенки на 11 контуров в продаже найти не реально и свести вот эти все 11 контуров в одно место это надо альтернтаивно как-то думать, я бы поставил одну гребенку в верхнюю часть дома, другую в нижнюю к ним трубы из котельной разумеется для подачи-обратки в плюсе: - меньше теплопотери на магистрали - меньше расход трубы на этапе строителсьвтв и расходы на монтаж - меньше нагрузка на насос в минусе: - ну коллекторные шкафы надо как-то вписать в интереьер или заставить мебелью Посилання на коментар Поділитися на інших сайтах More sharing options...
standov Опубліковано: 18 червня 2018 Поділитись Опубліковано: 18 червня 2018 я бы поставил одну гребенку в верхнюю часть дома, другую в нижнюю к ним трубы из котельной разумеется для подачи-обратки На втором этаже вторая гребенка еще на 9 контуров. Про длину магистралей - ну а шо делать простите, такая планировка ) тут же не в том дело что уплачено или нет, другого варианта особо и не видится. Про потери в них ну пардон они в доме, все что теряется все идет на нагрев дома, потери функционально нулевые - локальные перегревы да вариант но все так разложено что с учетом "пенки" перегрева быть не должно и магистрали греют свои части дома. Про коллекторов 11 та камон, первая попавшаяся ссылка prom.ua/p528871706-kollektor-gross-vyhodov.html, даже дешевле чуть десятки. Посилання на коментар Поділитися на інших сайтах More sharing options...
murava Опубліковано: 18 червня 2018 Поділитись Опубліковано: 18 червня 2018 Ой не берите этих гросов и проч... Ну старайтесь не брать. 10-12 дырок вобщемто купить легче , чем 5-8 мелких дырок часто выметают, а длинные чаще всего есть на выбор. При отсутствии батарей смесительного узла и допнасоса как правило не надо. 1 Посилання на коментар Поділитися на інших сайтах More sharing options...
digor_ua Опубліковано: 18 червня 2018 Автор Поділитись Опубліковано: 18 червня 2018 На втором этаже вторая гребенка еще на 9 контуров. Про длину магистралей - ну а шо делать простите, такая планировка ) тут же не в том дело что уплачено или нет, другого варианта особо и не видится. Про потери в них ну пардон они в доме, все что теряется все идет на нагрев дома, потери функционально нулевые - локальные перегревы да вариант но все так разложено что с учетом "пенки" перегрева быть не должно и магистрали греют свои части дома. Про коллекторов 11 та камон, первая попавшаяся ссылка prom.ua/p528871706-kollektor-gross-vyhodov.html, даже дешевле чуть десятки. ну не знаю дело ваше, но как по мне магистрали умножающие длину контура чуть ли не в полтора раза как-то не здраво стоять то оно конечно будет, куда оно денется то но блин ну как можно такую халтуру людям продавать они ж могли то из соображений здравого смысла втюхать два коллектора и рассказать вам зачем оно вам надо, точно на той же ноте, на которой продали вам вот это. ну да ладно, все равно обратно уже никого не переубежу, да и деньги немои, чойта я разошелся то :D коллектор на 11 выходов за 4800?? та ну нафиг))) Посилання на коментар Поділитися на інших сайтах More sharing options...
standov Опубліковано: 18 червня 2018 Поділитись Опубліковано: 18 червня 2018 Ой не берите этих гросов и проч... Ну старайтесь не брать. да я в целом к тому что 11 есть у всех наверное, точно у тесе, данфоса ну и вот у всяких поляков. Потому вообще не довод как по мне, пока есть куда поставить геометрически Посилання на коментар Поділитися на інших сайтах More sharing options...
digor_ua Опубліковано: 18 червня 2018 Автор Поділитись Опубліковано: 18 червня 2018 да я в целом к тому что 11 есть у всех наверное, точно у тесе, данфоса ну и вот у всяких поляков. Потому вообще не довод как по мне, пока есть куда поставить геометрически ну может быть я честно не знал что больше 7-8 бывает, я не сантехник же) но тут опчть же стает вопрос в насосе, который сможет все это прокачать как мне кажется то лучше два насососа послабее, чем один мощный Посилання на коментар Поділитися на інших сайтах More sharing options...
standov Опубліковано: 18 червня 2018 Поділитись Опубліковано: 18 червня 2018 дело ваше, но как по мне магистрали умножающие длину контура чуть ли не в полтора раза как-то не здраво стоять то оно конечно будет, куда оно денется то но блин ну как можно такую халтуру людям продавать они ж могли то из соображений здравого смысла втюхать два коллектора и рассказать вам зачем оно вам надо, точно на той же ноте, на которой продали вам вот это. ну да ладно, все равно обратно уже никого не переубежу, да и деньги немои, чойта я разошелся то Да где там полтора оО там на контур 80м среднестатистический набегает 5-10м, что ну никак не полтора и даже не половина от полтора ) Я не очень понимаю почему тут халтура, они мне ничего не продавали, я сказал как я хочу, обозначил ограничения и мне дали вариант тот который меня устроил. Поставить по центру дома коллектор это явно не устраивающий меня вариант Добавлено через 4 минуты в насосе, который сможет все это прокачать Какая разница сколько контуров "прокачивать" если есть площадь пола, от конфигурации контуров площадь обогреваемого пола не поменяется, да можно было-бы наверное поставить задачу минимизировать хвосты, поставить коллектор по центру от него звездой и сэкономить аж 5% трубы, ну как по мне допустимые потери на логичную планировку когда мухи отделены от котлет ) Посилання на коментар Поділитися на інших сайтах More sharing options...
xPavelx Опубліковано: 18 червня 2018 Поділитись Опубліковано: 18 червня 2018 ага, я Вас уже обгоняю немжножко, хоть начали Вы раньше :D я так понимаю раскладывать ТП тоже лично собираетесь? и кстати киньте ссылку где вы тот поролон брали на демпферную ленту, а то я в теме у Вас хотел спросить но как-то забыл Неее, лично раскладывать ТП времени нет, да и знаний тоже поролон можно взять в эпике, там есть 8 и 10мм толщиной. Посилання на коментар Поділитися на інших сайтах More sharing options...
digor_ua Опубліковано: 18 червня 2018 Автор Поділитись Опубліковано: 18 червня 2018 Да где там полтора оО там на контур 80м среднестатистический набегает 5-10м, что ну никак не полтора и даже не половина от полтора ) Я не очень понимаю почему тут халтура, они мне ничего не продавали, я сказал как я хочу, обозначил ограничения и мне дали вариант тот который меня устроил. Поставить по центру дома коллектор это явно не устраивающий меня вариант посчитайте расстояние от гайки на коллекторе до правой верхней комнаты два раза, туда и обратно со всеми огибаниями вот той комнатушки по центру вот это и есть магистраль по поводу халтуры я не хочу продолжать тему. у нас тут слишком разные взгляды, зачем нам этот срач? Добавлено через 1 минуту Какая разница сколько контуров "прокачивать" если есть площадь пола, от конфигурации контуров площадь обогреваемого пола не поменяется, да можно было-бы наверное поставить задачу минимизировать хвосты, поставить коллектор по центру от него звездой и сэкономить аж 5% трубы, ну как по мне допустимые потери на логичную планировку когда мухи отделены от котлет ) там не пять процентов и не только трубы а и энергии которая удет в коридор, пока дойдет до нужной комнаты. ну да ладно, все, брейк, бо щас скатимся в метание говняшек) это наверно моя нелюбовь ко всякого рода "проектантам" поснулась)) Добавлено через 1 минуту Неее, лично раскладывать ТП времени нет, да и знаний тоже поролон можно взять в эпике, там есть 8 и 10мм толщиной. о. пасибо ЗЫ: если будет Денис, то приедьте посмотрите на его художества у меня, чтоб знать куда его потом носом тыкать :D Посилання на коментар Поділитися на інших сайтах More sharing options...
Рекомендовані повідомлення
Створіть акаунт або увійдіть у нього для коментування
Ви маєте бути користувачем, щоб залишити коментар
Створити акаунт
Зареєструйтеся для отримання акаунта. Це просто!
Зареєструвати акаунтУвійти
Вже зареєстровані? Увійдіть тут.
Увійти зараз