mastervovik Опубліковано: 30 червня 2018 Поділитись Опубліковано: 30 червня 2018 1. Длина свесов крыши ~1.5м от мауэрлата. Предлагает усиливать фанерой эти вылеты (по проекту там брус 200х50). Это разумно? Разумно, но не всегда нужно.)) Фанера изначально лучше дерева, но опять вопрос целесообразности. 2. Крышу над 2этажной частью дома (4ската по бетонным плитам, размер 10.5х13м) предлагает опирать на усиленные плиты (речь идет о 2х опорных столбах в вершинах 4хскатки). Это целесообразно? ЦЦелесообразно, если плиты под это расчитаны)) 3. Навесы над террасами и крыши над эркером считает по цене с коэффициентом 1.25 (за сложность и кол-во скатов). Так практикуется? Над эркером , это еще и мало, а над терасой в чем сложность? 1 Посилання на коментар Поділитися на інших сайтах More sharing options...
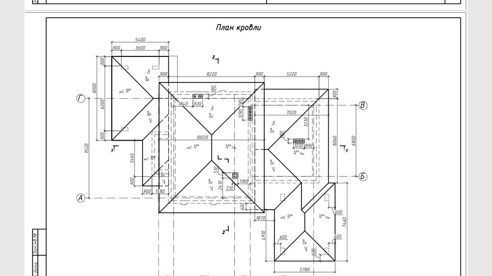
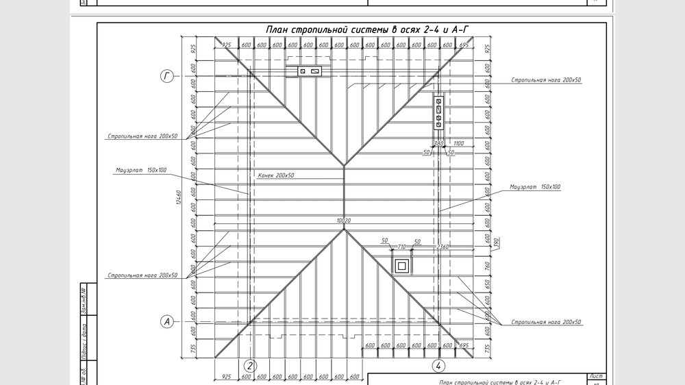
dushes86 Опубліковано: 30 червня 2018 Автор Поділитись Опубліковано: 30 червня 2018 Может и разумно, может и нет. Нужно смотреть ЦИФРЫ. Что значит "усилять? Вообще то расчёты- удел не строителей а инженеров-конструкторов. А почему именно фанерой а не доской? У меня были случаи с 1,5 м вылета. Ничего не усиляли - считали изначально под эти условия Добавлено через 1 минуту Т.е. проекта стропильной системы нет? Добавлено через 1 минуту Чем меньше скат - тем больше трудоёмкости на 1 м.кв. Я тоже миниатюрные участки (мерее 10 м.кв) считаю с повышающим коэф. В принципе, нормальная практика и это логично Проект в каком-то виде есть - шаг, раскладка строил, сечения стропил и мауэрлата. Вот один лист и общий план кровли (уже поменялся в части длины свесов и конструктива навеса, который теперь просто примыкает к стене, а не к кровле через ендовы. Посилання на коментар Поділитися на інших сайтах More sharing options...
#roofinspector Опубліковано: 30 червня 2018 Поділитись Опубліковано: 30 червня 2018 Проект в каком-то виде есть - шаг, раскладка строил, сечения стропил и мауэрлата. Вот один лист и общий план кровли (уже поменялся в части длины свесов и конструктива навеса, который теперь просто примыкает к стене, а не к кровле через ендовы И вы за это ещё деньги платили? )))) 1 Посилання на коментар Поділитися на інших сайтах More sharing options...
dushes86 Опубліковано: 30 червня 2018 Автор Поділитись Опубліковано: 30 червня 2018 Над эркером , это еще и мало, а над терасой в чем сложность? Ну, видимо некое усреднение. Небольшие площади скатов, плюс вся крыша в 4х уровнях (навес авто, эркер с террасой, 1этаж, 2 этаж). Всего 16 скатов. Посилання на коментар Поділитися на інших сайтах More sharing options...
#roofinspector Опубліковано: 30 червня 2018 Поділитись Опубліковано: 30 червня 2018 Судя по плану кровли, разуклонок перед дымарями у вас не запланировано. А их ннада Посилання на коментар Поділитися на інших сайтах More sharing options...
#roofinspector Опубліковано: 30 червня 2018 Поділитись Опубліковано: 30 червня 2018 Думаю, 200х50 на 1,5 м свеса выдержит. Нужно считать, конечно, но уверенность есть. А вот диагональные стропила 200х50 - очень слабо 1 Посилання на коментар Поділитися на інших сайтах More sharing options...
dushes86 Опубліковано: 30 червня 2018 Автор Поділитись Опубліковано: 30 червня 2018 И вы за это ещё деньги платили? )))) Чем богаты Посилання на коментар Поділитися на інших сайтах More sharing options...
#roofinspector Опубліковано: 30 червня 2018 Поділитись Опубліковано: 30 червня 2018 Так же нужно в указанных местах ставить усиленную лобовую, из той же доски 200х50 т.к. нарожники "висят в воздухе" 1 Посилання на коментар Поділитися на інших сайтах More sharing options...
dushes86 Опубліковано: 30 червня 2018 Автор Поділитись Опубліковано: 30 червня 2018 Думаю, 200х50 на 1,5 м свеса выдержит. Нужно считать, конечно, но уверенность есть. А вот диагональные стропила 200х50 - очень слабо Диагональные сдвоенные нарисованы. Посилання на коментар Поділитися на інших сайтах More sharing options...
mastervovik Опубліковано: 30 червня 2018 Поділитись Опубліковано: 30 червня 2018 и общий план кровли Да. с переподвыподвертом... Готовтесь линять на деньги 3 Посилання на коментар Поділитися на інших сайтах More sharing options...
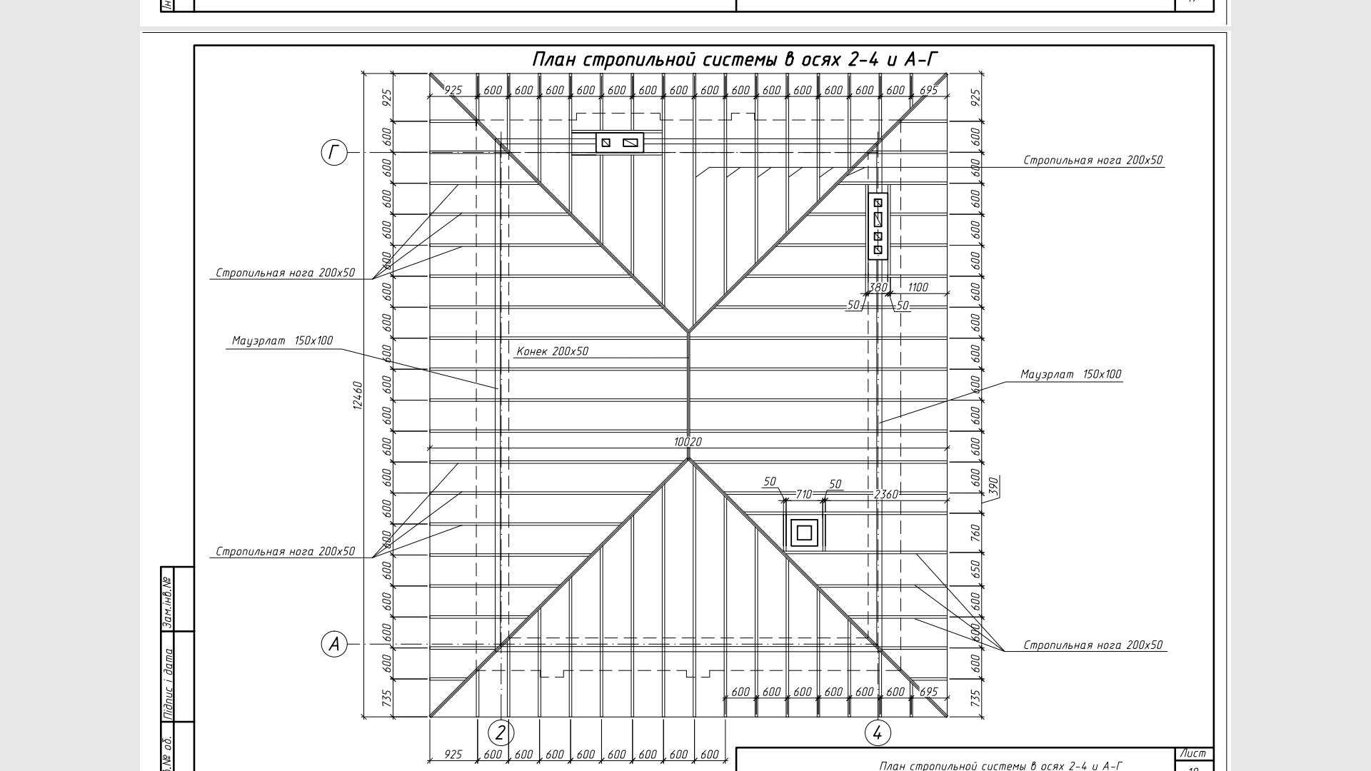
#roofinspector Опубліковано: 30 червня 2018 Поділитись Опубліковано: 30 червня 2018 Отмеченные красным, стропила висят в воздухе. Синие стропила тоже нужно усиливать, потому что на них опирается перемычка перед дымарём 3 Посилання на коментар Поділитися на інших сайтах More sharing options...
dushes86 Опубліковано: 30 червня 2018 Автор Поділитись Опубліковано: 30 червня 2018 Вот еще вопрос по ценообразованию: примыкания к дымоходам вентканалам как-то отдельно оговариваются, или как правило входят в м2? Т.к. у меня их 5 штук планируется. Добавлено через 3 минуты Да. с переподвыподвертом... Готовтесь линять на деньги Вова, а я чем, по-вашему, занимаюсь? Линять готов, но не хочу быть обманутым. Потому комментарии знающих форумчан для меня важны. 1 Посилання на коментар Поділитися на інших сайтах More sharing options...
shneider_vova Опубліковано: 30 червня 2018 Поділитись Опубліковано: 30 червня 2018 У меня вылет (на террасе) 1.8 по горизонтали. 200*50, шаг 600. По проекту была нарисована дополнительная балка с колоннами, строители предложили убрать , я пересчитал - действительно, по расчету проходило без балки, так что сделали просто вылет. Но у меня есть три точки опоры стропила, так что нужно считать в конкретном случае 1 Посилання на коментар Поділитися на інших сайтах More sharing options...
#roofinspector Опубліковано: 30 червня 2018 Поділитись Опубліковано: 30 червня 2018 Синим отметит прогоны и стойки, которые необходимо выполнить из более мощного, чем стропила, леса. При условии, что перекрытие готово взять на себя эту нагрузку. Но даже если нет, то тоже есть варианты. Но это сложнее 1 Посилання на коментар Поділитися на інших сайтах More sharing options...
#roofinspector Опубліковано: 30 червня 2018 Поділитись Опубліковано: 30 червня 2018 Готовтесь линять на деньги Красота требует жертв 1 Посилання на коментар Поділитися на інших сайтах More sharing options...
dushes86 Опубліковано: 30 червня 2018 Автор Поділитись Опубліковано: 30 червня 2018 А как должно/может выглядеть опирание кровли кроме нарисованного мауэрлата? Увидел пост выше Посилання на коментар Поділитися на інших сайтах More sharing options...
#roofinspector Опубліковано: 30 червня 2018 Поділитись Опубліковано: 30 червня 2018 Линять готов, но не хочу быть обманутым. Готовы по честному приехать и помочь не полинять в будущем 1 Посилання на коментар Поділитися на інших сайтах More sharing options...
dushes86 Опубліковано: 30 червня 2018 Автор Поділитись Опубліковано: 30 червня 2018 Готовы по честному приехать и помочь не полинять в будущем В Харьков? Посилання на коментар Поділитися на інших сайтах More sharing options...
mastervovik Опубліковано: 30 червня 2018 Поділитись Опубліковано: 30 червня 2018 Линять готов, но не хочу быть обманутым. Если не уверены, то нужно дать потренироваться на кошечках)) Крыша позволяет разбить на этапы, оплата после принятия придидущего, ну и естественно переход к следующему. Да, для профессионало может быть обидно такой подход, но скажите что и вы не по дешевке их берете ;) Чем больше платите денег, тем большим задротом можете быть в подходе:D 2 Посилання на коментар Поділитися на інших сайтах More sharing options...
#roofinspector Опубліковано: 30 червня 2018 Поділитись Опубліковано: 30 червня 2018 В Харьков? 6 часов пути. Не вижу проблем 1 Посилання на коментар Поділитися на інших сайтах More sharing options...
dushes86 Опубліковано: 30 червня 2018 Автор Поділитись Опубліковано: 30 червня 2018 6 часов пути. Не вижу проблем Ну, как сказать... Вы о консультации или об исполнении? Посилання на коментар Поділитися на інших сайтах More sharing options...
#roofinspector Опубліковано: 30 червня 2018 Поділитись Опубліковано: 30 червня 2018 об исполнении об оном, разумеется. консультация бесплатна и безлимитна, насколько позволяет функционал форума 1 Посилання на коментар Поділитися на інших сайтах More sharing options...
dushes86 Опубліковано: 30 червня 2018 Автор Поділитись Опубліковано: 30 червня 2018 об оном, разумеется. консультация бесплатна и безлимитна, насколько позволяет функционал форума Ну поскольку я ещё на стадии "предтендера", то почему бы и не попробовать. Думаю, эту часть дискусии мы можем перенести в лс. Посилання на коментар Поділитися на інших сайтах More sharing options...
#roofinspector Опубліковано: 30 червня 2018 Поділитись Опубліковано: 30 червня 2018 Ну поскольку я ещё на стадии "предтендера" Предварительная квалификация. Весьма важный этап Посилання на коментар Поділитися на інших сайтах More sharing options...
dushes86 Опубліковано: 3 липня 2018 Автор Поділитись Опубліковано: 3 липня 2018 Авось кому надо: отдаю в дар 2 жб кольца, толстостенные 1.6м. И, возможно еще пару метровых колец (через пару недель буду знать точно) за килограмм апельсинов. Фото прилагается. ЗЫ: это Харьков, рн Кулиничей (602мрн) Посилання на коментар Поділитися на інших сайтах More sharing options...
Рекомендовані повідомлення
Створіть акаунт або увійдіть у нього для коментування
Ви маєте бути користувачем, щоб залишити коментар
Створити акаунт
Зареєструйтеся для отримання акаунта. Це просто!
Зареєструвати акаунтУвійти
Вже зареєстровані? Увійдіть тут.
Увійти зараз