Astrolog_ua Опубліковано: 16 жовтня 2020 Автор Поділитись Опубліковано: 16 жовтня 2020 Почти Z10 получился , уменьшенный 1) под шкафы планируйте глубину 700 мм 2) ванны нет - точно? 3) обеденный стол вплотную к дивану - а как садится на эти стулья? 4) проход 50 см между островом и окном - маловато, имхо. 5) 105 см между противоположными шкафами - тоже маловато. также рассмотрите возможность сделать столешницу глубиной 700 мм. намного удобнее. Так мы от него и отталкиваемся 1) если вы про кухонные - в программе 660 заложена глубина 2) точно 3) нас трое - садиться будем лицом к телевизору. придут гости - диван отодвигается. В теплое время стол будет на террасе. 4) там вроде ходить не планируется, но подумаем, может чуть сдвинем или уменьшим остров 5) тоже думаем до 120 см увеличить. ... еще хотим порисовать планировку с санузлом между прихожей и топочной забрав часть крыльца. отсюда вопрос - какая минимально оптимальная ширина углубления на фасаде длиной 12-13м? Посилання на коментар Поділитися на інших сайтах More sharing options...
shneider_vova Опубліковано: 16 жовтня 2020 Поділитись Опубліковано: 16 жовтня 2020 1) если вы про кухонные - в программе 660 заложена глубина я про шкафы в спальне. для кухонных - отталкивайтесь от глубин направляющих. есть 550, 600, 650. Для 700-ой столешки у меня 650 направляющие. уточните у мебельщиков, при 660 глубине какую направлющую можно использовать. может, окажется, что увеличив глубину на 10 мм, можно перейти на другую направляющую 1 Посилання на коментар Поділитися на інших сайтах More sharing options...
Astrolog_ua Опубліковано: 30 жовтня 2020 Автор Поділитись Опубліковано: 30 жовтня 2020 какой вариант больше нравится? а) с террасой со своей крышей. б) с террасой под одной крышей. Посилання на коментар Поділитися на інших сайтах More sharing options...
Narval Опубліковано: 30 жовтня 2020 Поділитись Опубліковано: 30 жовтня 2020 какой вариант больше нравится? а) с террасой со своей крышей. б) с террасой под одной крышей. делайте под одной крышей Посилання на коментар Поділитися на інших сайтах More sharing options...
vadimv Опубліковано: 30 жовтня 2020 Поділитись Опубліковано: 30 жовтня 2020 какой вариант больше нравится?Я бы прежде всего смотрел на то, как крыша согласуется с верхним краем окон. 1 Посилання на коментар Поділитися на інших сайтах More sharing options...
Татьяна5 Опубліковано: 30 жовтня 2020 Поділитись Опубліковано: 30 жовтня 2020 Я бы прежде всего смотрел на то, как крыша согласуется с верхним краем окон. с верхним краем выхода на террасу если террасу поставить минус 60 от ноля пола в доме, то, теоритически, такое фото, как у ТС можно воспроизвести, а практически - лучше под одну крышу такое загонять 2 Посилання на коментар Поділитися на інших сайтах More sharing options...
Astrolog_ua Опубліковано: 30 жовтня 2020 Автор Поділитись Опубліковано: 30 жовтня 2020 с верхним краем выхода на террасу если террасу поставить минус 60 от ноля пола в доме, то, теоритически, такое фото, как у ТС можно воспроизвести, а практически - лучше под одну крышу такое загонять терраса в ноль с полом дома. на фото разный уровень высот крыш дома. мы решили под одной делать, просто было интересно мнение коллективного форума. Посилання на коментар Поділитися на інших сайтах More sharing options...
Татьяна5 Опубліковано: 31 жовтня 2020 Поділитись Опубліковано: 31 жовтня 2020 терраса в ноль с полом дома. тогда у вас такая картинка не выйдет или потолок террасы (высота) будет 2 метра 1 Посилання на коментар Поділитися на інших сайтах More sharing options...
tansss Опубліковано: 31 жовтня 2020 Поділитись Опубліковано: 31 жовтня 2020 тогда у вас такая картинка не выйдет или потолок террасы (высота) будет 2 метра Уточните плз, какая "такая"... а) или б) не выйдет Посилання на коментар Поділитися на інших сайтах More sharing options...
Татьяна5 Опубліковано: 31 жовтня 2020 Поділитись Опубліковано: 31 жовтня 2020 Уточните плз, какая "такая"... а) или б) не выйдет такая не выйдет знаки припинания сами расставьте Посилання на коментар Поділитися на інших сайтах More sharing options...
Astrolog_ua Опубліковано: 31 жовтня 2020 Автор Поділитись Опубліковано: 31 жовтня 2020 тогда у вас такая картинка не выйдет или потолок террасы (высота) будет 2 метра потолки 3м выходят, а терраса, накрытая одной крышей - нет? ниче не понял. Посилання на коментар Поділитися на інших сайтах More sharing options...
Татьяна5 Опубліковано: 31 жовтня 2020 Поділитись Опубліковано: 31 жовтня 2020 потолки 3м выходят, а терраса, накрытая одной крышей - нет? ниче не понял. Накрытая одной крышей - все ок Накрыть ее двумя крышами с разными уровнями с фото, при одинаковой высоте полов никак бы и не получилось 2 Посилання на коментар Поділитися на інших сайтах More sharing options...
tansss Опубліковано: 31 жовтня 2020 Поділитись Опубліковано: 31 жовтня 2020 Цитата: Сообщение от Татьяна5 тогда у вас такая картинка не выйдет или потолок террасы (высота) будет 2 метра Уточните плз, какая "такая"... а) или б) не выйдет такая не выйдет знаки припинания сами расставьте Накрытая одной крышей - все ок Накрыть ее двумя крышами с разными уровнями с фото, при одинаковой высоте полов никак бы и не получилось От лиш бы щёчки понадувать нет шоб сразу нормально ответить что не выйдет а) или б) Посилання на коментар Поділитися на інших сайтах More sharing options...
Astrolog_ua Опубліковано: 1 листопада 2020 Автор Поділитись Опубліковано: 1 листопада 2020 Помогите определить отпимальную глубину террасы. Ширина 9,1 метра. Целимся в 3,5м до колонн и свесы крыши по дому 0,8м. Нормально? не сильно глубокая выйдет крыша - 4,2 м с учетом свесов? Посилання на коментар Поділитися на інших сайтах More sharing options...
Татьяна5 Опубліковано: 1 листопада 2020 Поділитись Опубліковано: 1 листопада 2020 Помогите определить отпимальную глубину террасы. Ширина 9,1 метра. Целимся в 3,5м до колонн и свесы крыши по дому 0,8м. Нормально? не сильно глубокая выйдет крыша - 4,2 м с учетом свесов? Вообще не глубокая, я б до 4,5 добавила Посилання на коментар Поділитися на інших сайтах More sharing options...
Astrolog_ua Опубліковано: 1 листопада 2020 Автор Поділитись Опубліковано: 1 листопада 2020 Вообще не глубокая, я б до 4,5 добавила террасу глубже или по крыше? Посилання на коментар Поділитися на інших сайтах More sharing options...
Татьяна5 Опубліковано: 2 листопада 2020 Поділитись Опубліковано: 2 листопада 2020 Вообще не глубокая, я б до 4,5 добавила террасу глубже или по крыше? QUOTE=Astrolog_ua;5192641] не сильно глубокая выйдет крыша - 4,2 м с учетом свесов? Террасу глубже или по крыше - это в смысле свес или террасу добавить? Террасу 1 Посилання на коментар Поділитися на інших сайтах More sharing options...
Astrolog_ua Опубліковано: 2 листопада 2020 Автор Поділитись Опубліковано: 2 листопада 2020 Вроде финализировали. крыша выглядит простовато, - в раздумьях, - надо ли ее чем-то оживить (слуховые окна и т.п.) или все это деньги на ветер и возможный геморрой в эксплуатации? Посилання на коментар Поділитися на інших сайтах More sharing options...
Narval Опубліковано: 2 листопада 2020 Поділитись Опубліковано: 2 листопада 2020 Вроде финализировали. крыша выглядит простовато, - в раздумьях, - надо ли ее чем-то оживить (слуховые окна и т.п.) или все это деньги на ветер и возможный геморрой в эксплуатации? Ветканалы будут? Вильпе? Вытяжка? Окна - нафиг не надо. Посилання на коментар Поділитися на інших сайтах More sharing options...
Astrolog_ua Опубліковано: 2 листопада 2020 Автор Поділитись Опубліковано: 2 листопада 2020 Ветканалы будут? Вильпе? Вытяжка? будут по остальному пока не знаю. Посилання на коментар Поділитися на інших сайтах More sharing options...
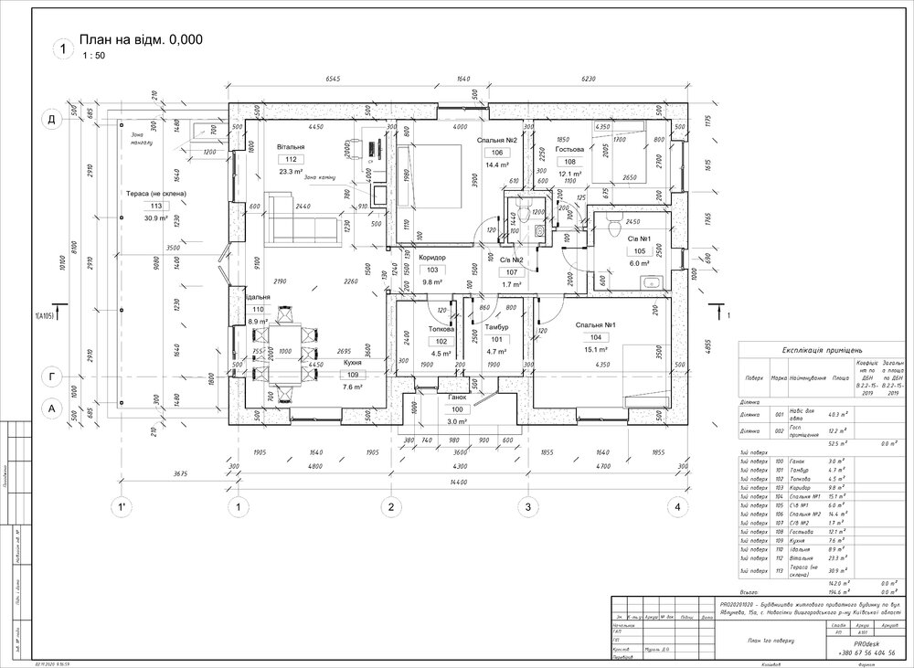
vadimv Опубліковано: 2 листопада 2020 Поділитись Опубліковано: 2 листопада 2020 Вроде финализировали.По гостевой - у нас в одной из спален шириной 2,90 стоит двуспальная кровать с матрасом 1,60х2,00. Проходить мимо нее реально неудобно. У вас жеж вообще нарисована ширина комнаты 2,70. Это разве что раскладной диван туда поставить с раскладным спальным местом. 1 Посилання на коментар Поділитися на інших сайтах More sharing options...
Narval Опубліковано: 2 листопада 2020 Поділитись Опубліковано: 2 листопада 2020 будут по остальному пока не знаю. Ну аот они и приукрасят немного Добавлено через 2 минуты По гостевой - у нас в одной из спален шириной 2,90 стоит двуспальная кровать с матрасом 1,60х2,00. Проходить мимо нее реально неудобно. У вас жеж вообще нарисована ширина комнаты 2,70. Это разве что раскладной диван туда поставить с раскладным спальным местом. В квартире ширина 275 в одной комнате, на стене телик висел, проходить реалтно надо с осторожностью, Кровать выбирали максимально короткую, потому как. Изголовьями уже не получалось. Но если это гистевая, то можно и телик не вешать и кровать 215 поставить. И это 270 у тс без штукатурки, она конечно может быть теоретически учтена, а фактически может быть и 7 см 2 Посилання на коментар Поділитися на інших сайтах More sharing options...
Astrolog_ua Опубліковано: 2 листопада 2020 Автор Поділитись Опубліковано: 2 листопада 2020 По гостевой - у нас в одной из спален шириной 2,90 стоит двуспальная кровать с матрасом 1,60х2,00. Проходить мимо нее реально неудобно. У вас жеж вообще нарисована ширина комнаты 2,70. Это разве что раскладной диван туда поставить с раскладным спальным местом. понимаем, на то она и гостевая впринципе проход в 70 см терпимый, а если с учетом того что занята она будет, наверное, дней 10 в году, то и 12 квадратов много. Посилання на коментар Поділитися на інших сайтах More sharing options...
Narval Опубліковано: 2 листопада 2020 Поділитись Опубліковано: 2 листопада 2020 понимаем, на то она и гостевая впринципе проход в 70 см терпимый, а если с учетом того что занята она будет, наверное, дней 10 в году, то и 12 квадратов много. Держать комнату для 10 дней в году - да вы мажор. 70 там не будет, будет 50. Сделайте кабинет с раскладным диваном. 3 Посилання на коментар Поділитися на інших сайтах More sharing options...
vadimv Опубліковано: 2 листопада 2020 Поділитись Опубліковано: 2 листопада 2020 с учетом того что занята она будет, наверное, дней 10 в годуТогда лично я бы там ставил раскладной диван, чтобы остальные 355 дней не ходить бочком мимо двуспальной кровати. 2 Посилання на коментар Поділитися на інших сайтах More sharing options...
Рекомендовані повідомлення
Створіть акаунт або увійдіть у нього для коментування
Ви маєте бути користувачем, щоб залишити коментар
Створити акаунт
Зареєструйтеся для отримання акаунта. Це просто!
Зареєструвати акаунтУвійти
Вже зареєстровані? Увійдіть тут.
Увійти зараз