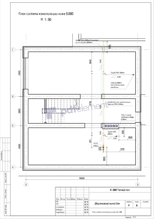
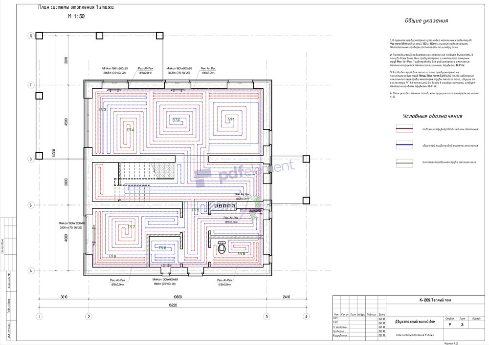
Shlromv Опубліковано: 22 лютого 2019 Поділитись Опубліковано: 22 лютого 2019 Приветствую! Сейчас проектировщики УШП заканчивают с проектом, прислали вот раздел отопления. Т.к. практического опыта у меня нет, хотел попросить помощи в оценке решений представленных в проекте у тех, кто с такими вещами работает. Плюсы/минусы/подводные камни. Любой инпут будет полезен. Потенциальные нюансы которые вижу я, возможно заблуждаюсь: Во-первых раскладка странная. Улитка только в паре мест. Много участков которые покрываются только обратной - соответственно неравномерная температура пола (возле лестницы, в гардеробной). В ванной планируется инсталляция, но ТП все-равно проложен в обход унитаза. Ноги мерзнуть не будут ? В кухонной зоне у меня планируется гарнитур буквой П - соответственно вдоль всех стен - можно ли такую схему адаптировать под это или нужно овсе-таки переделать? Я все-таки боялся конечно что мне по теплорасчету не хватит ТП, по-этому просил заложить радиаторы - чтобы проложить трассу, а потом уже по ощущениям добавлять радиаторы если будет некомфортно. Но вроде хватает только ТП, что скажете? Могут ли быть нюансы в монтаже коллектора в этом месте ? там окно с высотой подоконника 800мм и трубы подачипроходят через несущую стену. Так же вопрос по спецификации материалов. Радиаторы допустим можно выбрать другие подобрав по размерам и теплоотдаче. Но что насчет других материалов? Ведь это все закупать до заливки плиты - насколько предложенное отвечает нашим реалиям? Проектировщики из-за поребрика, но по УШП вроде имею хороший бэкграунд. 501м труб на ТП. Это сколько заказывать надо ? Бухта 500м насколько я понимаю. Немного вводной: отопление электрокотлом планируется. Стены d500 + 100мм базальт+мокрый фасад. Плита на 30см утеплителя, ребра на 10см. Посилання на коментар Поділитися на інших сайтах More sharing options...
murava Опубліковано: 22 лютого 2019 Поділитись Опубліковано: 22 лютого 2019 Во-первых раскладка странная. Улитка только в паре мест. Много участков которые покрываются только обратной - соответственно неравномерная температура пола (возле лестницы, в гардеробной). Улитка не догма, можно раскладывать и не обязательно улитками. При нормальной циркуляции это не сильно важно. Вот покрытия обраткой стоит избегать - если прийдется делать зональное управление, такая раскладка радости не добавит. Хотя, с другой стороны все равно ушп будет работать как единое целое, потому такю раскладку можно допустить В ванной планируется инсталляция, но ТП все-равно проложен в обход унитаза. Ноги мерзнуть не будут ? Вопрос спорный, но можно унитаз закладывать. В кухонной зоне у меня планируется гарнитур буквой П - соответственно вдоль всех стен - можно ли такую схему адаптировать под это или нужно овсе-таки переделать? Пол под гарнитуром можно укладывать, ничего худого не произойдет. Я все-таки боялся конечно что мне по теплорасчету не хватит ТП, по-этому просил заложить радиаторы - чтобы проложить трассу, а потом уже по ощущениям добавлять радиаторы если будет некомфортно. Но вроде хватает только ТП, что скажете? А что мы можем сказать? Хотите чтоб кто-то проверил и пересчитал теплопотери? Что, отак просто взять и переработать работу заново, чтобы дать однозначный ответ? Верим проектантам - если сказали хватит, значит хватит. Если не уверены - заказывайте экспертизу у сторонних людей. Могут ли быть нюансы в монтаже коллектора в этом месте ? там окно с высотой подоконника 800мм и трубы подачипроходят через несущую стену. Ньюансы могут быть всегда, но проблем пройти несущую стену лично я не вижу. Так же вопрос по спецификации материалов. Радиаторы допустим можно выбрать другие подобрав по размерам и теплоотдаче. Но что насчет других материалов? Ведь это все закупать до заливки плиты - насколько предложенное отвечает нашим реалиям? Проектировщики из-за поребрика, но по УШП вроде имею хороший бэкграунд. Эти материалы унас доступны. 501м труб на ТП. Это сколько заказывать надо ? Бухта 500м насколько я понимаю. Да, эти трубы по 500. 1 Посилання на коментар Поділитися на інших сайтах More sharing options...
Shlromv Опубліковано: 22 лютого 2019 Автор Поділитись Опубліковано: 22 лютого 2019 А что мы можем сказать? Хотите чтоб кто-то проверил и пересчитал теплопотери? Что, отак просто взять и переработать работу заново, чтобы дать однозначный ответ? Верим проектантам - если сказали хватит, значит хватит. Если не уверены - заказывайте экспертизу у сторонних людей. Я скорее прошу совета в оценке исходя из значений, указаных в проекте "решение нормально/не нормально". Но вопрос с услугой экспертизы можно можно рассмотреть, если кто-то заинтересован Я бы конечно с большим удовольствием заказал расчет у местных специалистов, которые специализируются на этом вопросе. Но эта услуга шла в пакете с УШП, так что пытаюсь сформировать критерии оценки того что имею. Да, эти трубы по 500. Могу расчитывать на совет как мне лучше поступить в этом вопросе ? Я вижу это так - из бухты 500 метров не крутить последний контур (самый маленький) и где-то наколдовать трубы с остатков на оставшийся контур. Вопрос: куда можно применить оставшиеся метров 20-30 ? Посилання на коментар Поділитися на інших сайтах More sharing options...
Narval Опубліковано: 23 лютого 2019 Поділитись Опубліковано: 23 лютого 2019 Я скорее прошу совета в оценке исходя из значений, указаных в проекте "решение нормально/не нормально". Но вопрос с услугой экспертизы можно можно рассмотреть, если кто-то заинтересован Я бы конечно с большим удовольствием заказал расчет у местных специалистов, которые специализируются на этом вопросе. Но эта услуга шла в пакете с УШП, так что пытаюсь сформировать критерии оценки того что имею. Могу расчитывать на совет как мне лучше поступить в этом вопросе ? Я вижу это так - из бухты 500 метров не крутить последний контур (самый маленький) и где-то наколдовать трубы с остатков на оставшийся контур. Вопрос: куда можно применить оставшиеся метров 20-30 ? выскажусь с точки зрения потребителя У вас отопление обраткой в гардеробе и тамбуре кабинета - и это правильно - там можно/должно быть прохладнее батареи вещь хорошая, тоже закладывал себе. в итоге в эту зиму все греется только теплым полом и его хватает с головой, однако.... Работает почти всегда две батареи 1. около входной двери, избавляет от конденсата и быстро нагревается тамбур. 2. в ванной под окном -используем как сушилку. бухту я бы брал 500м и укоротил на 1м либо обратку в коридоре (самое жаркое место, так как через него проходят все линии) либо в гардеробе - там и так будет держаться необходимая температура. рассчет то на -23 2 Посилання на коментар Поділитися на інших сайтах More sharing options...
Скромный прораб Опубліковано: 23 лютого 2019 Поділитись Опубліковано: 23 лютого 2019 После Муравы вроде как и нечего добавить))), но всё же пару слов, с точки зрения личного опыта. Хватит ли Вам только ТП это сможете определить только Вы и члены вашей семьи и то после переезда. Имею ввиду не просто тупо нагреть помещение, а именно комфорт, особенно если в доме есть такие большие окна как ваши. Предусмотреть дополнительное отопление обязательно, но делать это с помощью смесительного узла и разводки труб при электроотоплении мягко говоря глупо. Достаточно предусмотреть рядом с окном розетку или скрытый подвод кабеля. Уйма электрических систем, напольных или встраемых непосредственно в пол, что бы далеко не ходить, пример от того же varmann varmann.ru/catalog/trenchconvector/ntherm_electro/description/ Все ИМХО, конечно. Посилання на коментар Поділитися на інших сайтах More sharing options...
murava Опубліковано: 23 лютого 2019 Поділитись Опубліковано: 23 лютого 2019 Я скорее прошу совета в оценке исходя из значений, указаных в проекте "решение нормально/не нормально". Но вопрос с услугой экспертизы можно можно рассмотреть, если кто-то заинтересован Я бы конечно с большим удовольствием заказал расчет у местных специалистов, которые специализируются на этом вопросе. Но эта услуга шла в пакете с УШП, так что пытаюсь сформировать критерии оценки того что имею. Это скажем так, вполне допустимо. В отоплении нет единственно правильных варипнтов, там правильные решения могут вполне быть мультивариантными. Могу расчитывать на совет как мне лучше поступить в этом вопросе ? Я вижу это так - из бухты 500 метров не крутить последний контур (самый маленький) и где-то наколдовать трубы с остатков на оставшийся контур. Вопрос: куда можно применить оставшиеся метров 20-30 ? 20-30 метров остатков можете смело выбросить, или оставить на протяжку проводки по ландшафту, или закопать в грунт как подвязки для плетущихся огурцов ... Вариантов тьма. Я лично думаю, что 500м не хватит и прийдется еще докупать, но война план покажет Посилання на коментар Поділитися на інших сайтах More sharing options...
4587derek Опубліковано: 23 лютого 2019 Поділитись Опубліковано: 23 лютого 2019 у меня на 48м2 пошло 300 метров трубы. а у вас всего 500. 1 Посилання на коментар Поділитися на інших сайтах More sharing options...
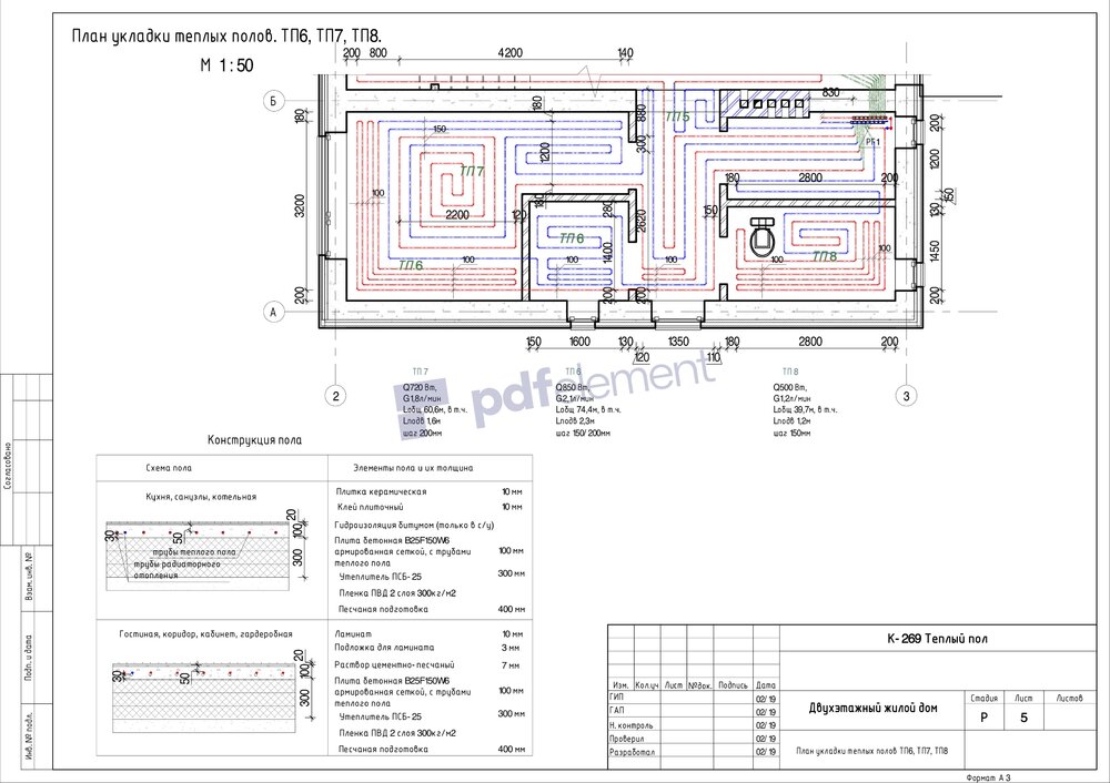
Shlromv Опубліковано: 24 лютого 2019 Автор Поділитись Опубліковано: 24 лютого 2019 у меня на 48м2 пошло 300 метров трубы. а у вас всего 500. скажите, а с каким шагом вы делали укладку ? Каким рисунком? делали ли перед укладкой теплотехнический расчет? Посилання на коментар Поділитися на інших сайтах More sharing options...
4587derek Опубліковано: 24 лютого 2019 Поділитись Опубліковано: 24 лютого 2019 шаг 125, утеплитель 50 псб +50 ЭППС, труба привязана к арматурной сетке, стяжка 100-120 мм. Тепература обратки 27,0-28,5. Посилання на коментар Поділитися на інших сайтах More sharing options...
Interso Опубліковано: 24 лютого 2019 Поділитись Опубліковано: 24 лютого 2019 Приветствую! Сейчас проектировщики УШП заканчивают с проектом, прислали вот раздел отопления. Т.к. практического опыта у меня нет, хотел попросить помощи в оценке решений представленных в проекте у тех, кто с такими вещами работает. Плюсы/минусы/подводные камни. Любой инпут будет полезен. Потенциальные нюансы которые вижу я, возможно заблуждаюсь: Во-первых раскладка странная. Улитка только в паре мест. Много участков которые покрываются только обратной - соответственно неравномерная температура пола (возле лестницы, в гардеробной). В ванной планируется инсталляция, но ТП все-равно проложен в обход унитаза. Ноги мерзнуть не будут ? В кухонной зоне у меня планируется гарнитур буквой П - соответственно вдоль всех стен - можно ли такую схему адаптировать под это или нужно овсе-таки переделать? Я все-таки боялся конечно что мне по теплорасчету не хватит ТП, по-этому просил заложить радиаторы - чтобы проложить трассу, а потом уже по ощущениям добавлять радиаторы если будет некомфортно. Но вроде хватает только ТП, что скажете? Могут ли быть нюансы в монтаже коллектора в этом месте ? там окно с высотой подоконника 800мм и трубы подачипроходят через несущую стену. Так же вопрос по спецификации материалов. Радиаторы допустим можно выбрать другие подобрав по размерам и теплоотдаче. Но что насчет других материалов? Ведь это все закупать до заливки плиты - насколько предложенное отвечает нашим реалиям? Проектировщики из-за поребрика, но по УШП вроде имею хороший бэкграунд. 501м труб на ТП. Это сколько заказывать надо ? Бухта 500м насколько я понимаю. Немного вводной: отопление электрокотлом планируется. Стены d500 + 100мм базальт+мокрый фасад. Плита на 30см утеплителя, ребра на 10см. С первого взгляда на ваш проект всё смотрится красиво и чинно. Смотрел вчера и как бы всё не плохо,но сегодня что то не то. Первое-шаг укладки говно редкое,укладывайте 15см, это универсальный шаг как минимум. Второе-схема укладки мудрёная и хреновая,надо укладывать меньше змееобразной(меандровой) и больше бифилярной(улитка) ,меандровая укладка имеет большое гидравлическое сопротивление и следственно большой температурный перепад. P.S. В вашем случае не надо переживать за 20-30 метров,вам надо трубы на ваш дом больше 1000метров. Заказывайте перерасчёт и рисунок укладки трубы ТП. Посилання на коментар Поділитися на інших сайтах More sharing options...
Скромный прораб Опубліковано: 24 лютого 2019 Поділитись Опубліковано: 24 лютого 2019 P.S. В вашем случае не надо переживать за 20-30 метров,вам надо трубы на ваш дом больше 1000метров. Заказывайте перерасчёт и рисунок укладки трубы ТП. Свят, свят. Не пугайте человека, там полов 100м2, зачем тысяча метров трубы? Посилання на коментар Поділитися на інших сайтах More sharing options...
Interso Опубліковано: 24 лютого 2019 Поділитись Опубліковано: 24 лютого 2019 Свят, свят. Не пугайте человека, там полов 100м2, зачем тысяча метров трубы? Два этажа...... Посилання на коментар Поділитися на інших сайтах More sharing options...
Татьяна5 Опубліковано: 24 лютого 2019 Поділитись Опубліковано: 24 лютого 2019 Свят, свят. Не пугайте человека, там полов 100м2, зачем тысяча метров трубы? У меня в УШП на 120 м2 лежит 850 мп труб. По опыту, всегда так в среднем Посилання на коментар Поділитися на інших сайтах More sharing options...
Narval Опубліковано: 25 лютого 2019 Поділитись Опубліковано: 25 лютого 2019 У меня в УШП на 120 м2 лежит 850 мп труб. По опыту, всегда так в среднем У меня на 200м заложено 1500м трубы. Из рассчетных 18 квт. Реальные потери в два раза меньше (или в 3) Посилання на коментар Поділитися на інших сайтах More sharing options...
Скромный прораб Опубліковано: 25 лютого 2019 Поділитись Опубліковано: 25 лютого 2019 У меня на 200м заложено 1500м трубы. Из рассчетных 18 квт. Реальные потери в два раза меньше (или в 3) Напомнило вчерашнее обсуждение в соседней теме количество насосов и гидрострелок - чем больше тем лучше(((. У меня, при устройстве теплого пола, стояла задача - поверхность пола до 26°. Использовалась 16 труба из расчёта 5 метров на м2 (шаг 200мм, всего 467м на 98м2) чего при утеплителе 70мм (стяжка 80мм) вполне достаточно, при чём с приличном запасом. Температура носителя контролируется по обратке - 27°. И заложи я туда 8 метров, 10 или... 15, я получу тепловой энергии с м2 пола ровно столько, сколько даст стяжка нагретая до 26 и не ваттом больше. Получить больше можно просто подняв температуру теплоносителя поступающего в пол (в моем случае установкой на термореле с датчиком на обратке). Зачем закладывать километры труб? Для меня ответ очевиден Посилання на коментар Поділитися на інших сайтах More sharing options...
Татьяна5 Опубліковано: 25 лютого 2019 Поділитись Опубліковано: 25 лютого 2019 Равномерность температуры имеет значение. Что бы зебры не было, что происходит при "просто поднял температуру носителя" Посилання на коментар Поділитися на інших сайтах More sharing options...
Скромный прораб Опубліковано: 25 лютого 2019 Поділитись Опубліковано: 25 лютого 2019 Равномерность температуры имеет значение. Что бы зебры не было, что происходит при "просто поднял температуру носителя" Вот спасибо, я не знал. Специально указал толщину стяжки, думал Вы заметите. Нет там зебры и быть не может. Тем более НА трубе лежит стальная сварная сетка 50х50х3, помимо своей основной армирующей функции, выполняющая пусть и небольшую, но всё же своеобразную роль рассеивающего "радиатора". 1 Посилання на коментар Поділитися на інших сайтах More sharing options...
Пролин Опубліковано: 27 лютого 2019 Поділитись Опубліковано: 27 лютого 2019 хотел попросить помощи в оценке решений По угловой ванной в проекте шаг 100 и 150, думаю надо делать все по 100, в т.ч. под инсталляцией и при этом скорее всего не хватит одного теплого пола, имеет смысл добавить радиатор или полотенцесушитель. 1 Посилання на коментар Поділитися на інших сайтах More sharing options...
Narval Опубліковано: 28 лютого 2019 Поділитись Опубліковано: 28 лютого 2019 Вот спасибо, я не знал. Специально указал толщину стяжки, думал Вы заметите. Нет там зебры и быть не может. Тем более НА трубе лежит стальная сварная сетка 50х50х3, помимо своей основной армирующей функции, выполняющая пусть и небольшую, но всё же своеобразную роль рассеивающего "радиатора". Оно наверное конечно так, однако вы сами писали, что отапливать одними теплыми полами вам не комфортно. 1 Посилання на коментар Поділитися на інших сайтах More sharing options...
Скромный прораб Опубліковано: 28 лютого 2019 Поділитись Опубліковано: 28 лютого 2019 (змінено) Оно наверное конечно так, однако вы сами писали, что отапливать одними теплыми полами вам не комфортно. Это лично мне и членам моей семьи не комфортно, потому что 25-26° градусов поверхности пола, в моем доме 23° по воздуху, при хорошем морозе на улице, не дадут, а поднимать температуру пола не хотел (есть опыт проживания в доме только с ТП). Если кого то устраивает 18-20, (или выше, а пол 30-35), то вполне возможно обойтись без радиаторов/конвекторов. Но все это очень индивидуально и речь сейчас ведь не об этом, а о том что совершенно бессмысленно было укладывать 8-10 метров трубы на квадратный метр стяжки, эффект был бы ровно такой, как при моих 5 метрах. С нагревом пола в пределах 25-30° на поверхности, прекрасно справляется шаг укладки 200мм в любом доме (при соответствующей мощности котла и если, конечно, утеплитель не вспененная подложка под ламинат ). Зачем укладывать с шагом 150мм или как советуют выше 100мм мне честно не понятно(((. Если контролируется именно температура пола, а не только воздуха внутри помещения и если эта температура находится в каких то определенных (а лучше разумных) рамках, то при её достижении, уже шаг укладки трубы на тепловую мощность пола никак не повлияет, ни на ватт больше нам от него не получить. Змінено 28 лютого 2019 користувачем Скромный прораб Посилання на коментар Поділитися на інших сайтах More sharing options...
мастерок Опубліковано: 28 лютого 2019 Поділитись Опубліковано: 28 лютого 2019 Вот спасибо, я не знал. Специально указал толщину стяжки, думал Вы заметите. Нет там зебры и быть не может. Тем более НА трубе лежит стальная сварная сетка 50х50х3, помимо своей основной армирующей функции, выполняющая пусть и небольшую, но всё же своеобразную роль рассеивающего "радиатора". А фотки тепловизором делали? Посилання на коментар Поділитися на інших сайтах More sharing options...
Скромный прораб Опубліковано: 28 лютого 2019 Поділитись Опубліковано: 28 лютого 2019 А фотки тепловизором делали? Зачем? Трубы целые, течь искать не надо Посилання на коментар Поділитися на інших сайтах More sharing options...
naupv Опубліковано: 28 лютого 2019 Поділитись Опубліковано: 28 лютого 2019 А фотки тепловизором делали? Вася ты чуток не туды:D Тепловизор шо на 5см, шо на 12 покажет как проходят нагретые трубы. Зебры он не покажет. Посилання на коментар Поділитися на інших сайтах More sharing options...
shneider_vova Опубліковано: 28 лютого 2019 Поділитись Опубліковано: 28 лютого 2019 Вася ты чуток не туды:D Тепловизор шо на 5см, шо на 12 покажет как проходят нагретые трубы. Зебры он не покажет. покажет-покажет: В левой части комнаты шаг 150 мм, в правой - 200 мм. И еще видно, как в широком проеме сантехники не намотали трубу поперек прохода - сразу холодное пятно (на 3 градуса меньше, чем остальной пол - ногой сразу чувствуется). 2 Посилання на коментар Поділитися на інших сайтах More sharing options...
Interso Опубліковано: 28 лютого 2019 Поділитись Опубліковано: 28 лютого 2019 покажет-покажет: [ATTACH]651335[/ATTACH] В левой части комнаты шаг 150 мм, в правой - 200 мм. И еще видно, как в широком проеме сантехники не намотали трубу поперек прохода - сразу холодное пятно (на 3 градуса меньше, чем остальной пол - ногой сразу чувствуется). что и требовалось не доказать а донести. Добавлено через 23 минуты Люди! Не выдумывайте,всё уже давно придумано и просчитано.Чем меньше шаг тем экономней на отопление и комфортней по ощущению. Известная фраза:Радиатор должен быть большой и теплый, а не маленький и горячий Посилання на коментар Поділитися на інших сайтах More sharing options...
Рекомендовані повідомлення
Створіть акаунт або увійдіть у нього для коментування
Ви маєте бути користувачем, щоб залишити коментар
Створити акаунт
Зареєструйтеся для отримання акаунта. Це просто!
Зареєструвати акаунтУвійти
Вже зареєстровані? Увійдіть тут.
Увійти зараз