svetik2202 Опубліковано: 9 листопада 2020 Поділитись Опубліковано: 9 листопада 2020 Допоможіть вирішити. Маємо: подружжя по 43 роки.Син виріс,живе та навчається за кордоном( буде приїзжати інколи в гості). Земельна ділянка 9 сотих. Сподобався даний будинок,коли переглядала плани.Я б на 2 поверсі з найменшої кімнати зробила ванну, а з ванни - кладовку.Також дуже подобається дах і відсутність горища,але не знаю недоліки. Дякую!!! Посилання на коментар Поділитися на інших сайтах More sharing options...
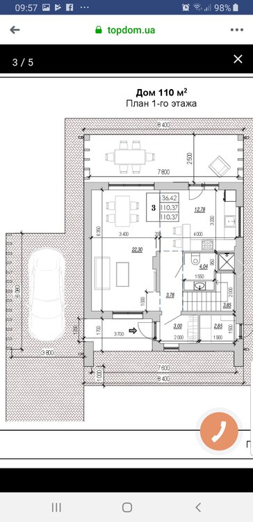
vadimv Опубліковано: 9 листопада 2020 Поділитись Опубліковано: 9 листопада 2020 подружжя по 43 роки.Син виріс,живе та навчається за кордоном( буде приїзжати інколи в гості).Нащо вам такий великий будинок? Сподобався даний будинок Його неможливо побудувати - ванна на другому поверсі намальована на тому самому місці, де на першому поверсі намальовані сходи. дуже подобається дах і відсутність горища,але не знаю недоліки.Відсутність горища - це і є недолік у нашому кліматі. 4 Посилання на коментар Поділитися на інших сайтах More sharing options...
Narval Опубліковано: 9 листопада 2020 Поділитись Опубліковано: 9 листопада 2020 Допоможіть вирішити. Маємо: подружжя по 43 роки.Син виріс,живе та навчається за кордоном( буде приїзжати інколи в гості). Земельна ділянка 9 сотих. Сподобався даний будинок,коли переглядала плани.Я б на 2 поверсі з найменшої кімнати зробила ванну, а з ванни - кладовку.Також дуже подобається дах і відсутність горища,але не знаю недоліки. Дякую!!! Нет плана второго этажа, вместо него план другого дома. Подумайте о том, что бы у вам на первом этаже была спальня, гостинная кухня и санузел. На втором этаже уже спальня гостевая, санузел, кладовка... А еще лучше подумайте про один этаж. По недостаткам данного дома не скажу, а вот про особенности которые вижу я, напишу. Крыша без чердака, требует более дорогие решения по утеплению. Дерево на улице в мокрой зоне, часто нужно приводить в порядок, шкурить красить. Терасса получается незакрытая, летом от солнца не спрячешься, в дождь тоже не посидишь. Все равно что столики на улице. З.ы. Дизайнеры любят подкупать всякими картинками, как например дети с внуками приехали, где ж мы их всех поселим. 3 Посилання на коментар Поділитися на інших сайтах More sharing options...
svetik2202 Опубліковано: 9 листопада 2020 Автор Поділитись Опубліковано: 9 листопада 2020 Дякую Посилання на коментар Поділитися на інших сайтах More sharing options...
svetik2202 Опубліковано: 9 листопада 2020 Автор Поділитись Опубліковано: 9 листопада 2020 Лише побачила,що не прикріпила 2 поверх,а замісь нього інший будинок) Вибачте. Посилання на коментар Поділитися на інших сайтах More sharing options...
vadimv Опубліковано: 9 листопада 2020 Поділитись Опубліковано: 9 листопада 2020 не прикріпила 2 поверх,а замісь нього інший будинок)Так а все-таки, нащо вам на 2+1 людини двоповерховий будинок з чотирма кімнатами? 3 Посилання на коментар Поділитися на інших сайтах More sharing options...
ChuykoArchitecture Опубліковано: 9 листопада 2020 Поділитись Опубліковано: 9 листопада 2020 Допоможіть вирішити. Маємо: подружжя по 43 роки.Син виріс,живе та навчається за кордоном( буде приїзжати інколи в гості). Земельна ділянка 9 сотих. Сподобався даний будинок,коли переглядала плани.Я б на 2 поверсі з найменшої кімнати зробила ванну, а з ванни - кладовку.Також дуже подобається дах і відсутність горища,але не знаю недоліки. Дякую!!! Планування треба розглядати комплексно, включно з планованим конструктивом будинку. по плану з сайту виглядає що перекриття монолітне, а з мого досвіду проектування в Тернополі - 80% будинків перекриваються панелями. А це вплине на планування. З кухні, душової та ванни не показані витяжки, а вони будуть. Диван у вітальні - розміром з лавку, там двоє людей ледве помістяться, а сама ширина вітальні - 3.4 метри, для малої квартири буде малою, а не те що для будинку. Я вам написав у приватні повідомлення, можу допомогти та порадити. 2 Посилання на коментар Поділитися на інших сайтах More sharing options...
anatol33 Опубліковано: 14 листопада 2020 Поділитись Опубліковано: 14 листопада 2020 2 поверх будинку без дітей не будете використовуватися. З дітьми і то часто лінь туди бігати. А враховуючи ваш середній вік, через 15 років, вам прийдеться його перекривати, щоб не тратити лишні гроші для опалення. 2 Посилання на коментар Поділитися на інших сайтах More sharing options...
Gonchik Опубліковано: 15 листопада 2020 Поділитись Опубліковано: 15 листопада 2020 Я при аналогічній сімейній ситації зробив вибір в бік одноповерхового на 2 спальні, метрів 140 загальної+ 50 гараж-котельня. 4 Посилання на коментар Поділитися на інших сайтах More sharing options...
Yull Опубліковано: 15 листопада 2020 Поділитись Опубліковано: 15 листопада 2020 Так там загальна площа 110м2. Хіба це багато? Як на мене взагалі не багато, ще й мансардний) І дорослі діти мають мати в батьківському домі місце. Мені будиночок подобається, симпатичний. Мінуси мансардників це неякісно зроблений дах що грозить тепловтратами і протіканням, тут накосячити при будівництві легше ніж з холодним горищем. 1 Посилання на коментар Поділитися на інших сайтах More sharing options...
Gonchik Опубліковано: 15 листопада 2020 Поділитись Опубліковано: 15 листопада 2020 Так там загальна площа 110м2. Хіба це багато? Як на мене взагалі не багато, ще й мансардний) І дорослі діти мають мати в батьківському домі місце. Мені будиночок подобається, симпатичний. Мінуси мансардників це неякісно зроблений дах що грозить тепловтратами і протіканням, тут накосячити при будівництві легше ніж з холодним горищем. 110 і там нічого немає. Топочна 3 м, комірчини немає, кухня в своїй хаті 12 м?) вітальня 22?) Кімнатки на мансарді 12 м по підлозі?) Ви реально це уявляєте? 2 Посилання на коментар Поділитися на інших сайтах More sharing options...
Yull Опубліковано: 15 листопада 2020 Поділитись Опубліковано: 15 листопада 2020 110 і там нічого немає. Топочна 3 м, комірчини немає, кухня в своїй хаті 12 м?) вітальня 22?) Кімнатки на мансарді 12 м по підлозі?) Ви реально це уявляєте? Дуже добре уявляю) у мене майже така кухня і вітальня, тим більше їх в цьому проекті логічно об'єднати. Для двох постійно проживаючих людей це не мало) Комірку можна і під сходами зробити Мені тут санвузли малуваті якщо про мінуси говорити, але думаю цей проект цілком можна доробити під свої потреби. 1 Посилання на коментар Поділитися на інших сайтах More sharing options...
Gonchik Опубліковано: 16 листопада 2020 Поділитись Опубліковано: 16 листопада 2020 У мене питання: у Вас і у Свєтіка є досвід проживання в своєму будинку, чи будуєте/ будуватимите проживаючи в квартирі? Посилання на коментар Поділитися на інших сайтах More sharing options...
Narval Опубліковано: 16 листопада 2020 Поділитись Опубліковано: 16 листопада 2020 Дуже добре уявляю) у мене майже така кухня і вітальня, тим більше їх в цьому проекті логічно об'єднати. Для двох постійно проживаючих людей це не мало) Комірку можна і під сходами зробити Мені тут санвузли малуваті якщо про мінуси говорити, але думаю цей проект цілком можна доробити під свої потреби. Интересно откуда же вы уявляэте, если прожили 10 лет в квартире, а дом только коробку строите? 1 Посилання на коментар Поділитися на інших сайтах More sharing options...
Yull Опубліковано: 16 листопада 2020 Поділитись Опубліковано: 16 листопада 2020 Досвіду у мене хоч відбавляй у батьківському домі.В квартирі у мене така кухня, в будинку вийшла 12.5. Вітальня в квартирі 20, в будинку 23. Сім'я у нас також невелика.Ну і побудовано вже трохи більше за коробку. Ще питання є? Ні, я нічого не маю проти, якщо комусь потрібні великі площі, але тоді б автор явно не розглядала б дім на 100квадратів.А маєте що порадити автору - радьте! Але не вважайте власну думку єдино вірною. Люди різні і вимоги до комфортного житла бувають різні. 2 Посилання на коментар Поділитися на інших сайтах More sharing options...
Gonchik Опубліковано: 16 листопада 2020 Поділитись Опубліковано: 16 листопада 2020 Досвіду у мене хоч відбавляй у батьківському домі.В квартирі у мене така кухня, в будинку вийшла 12.5. Вітальня в квартирі 20, в будинку 23. Сім'я у нас також невелика.Ну і побудовано вже трохи більше за коробку. Ще питання є��? Ні, я нічого не маю проти, якщо комусь потрібні великі площі, але тоді б автор явно не розглядала б дім на 100квадратів.А маєте що порадити автору - радьте! Але не вважайте власну думку єдино вірною. Люди різні і вимоги до комфортного житла бувають різні. Мене не лише метражі турбують. Людям по 43, поки збудують - по 45. Щось забула в спальні (ну якусь деталь гардеробу, наприклад) і вже біжиш з передпокою на другий поверх. Я грунтуюсь виключно на своєму досвіді. За останній рік перетягнули з мансарди вниз орбітрек, гладілку. В планах пралку опустити вниз. Я про те, що краще на етапі проектування ретельно поміркувати, ніж потім пристосовуватись. 7 Посилання на коментар Поділитися на інших сайтах More sharing options...
Narval Опубліковано: 16 листопада 2020 Поділитись Опубліковано: 16 листопада 2020 Досвіду у мене хоч відбавляй у батьківському домі.В квартирі у мене така кухня, в будинку вийшла 12.5. Вітальня в квартирі 20, в будинку 23. Сім'я у нас також невелика.Ну і побудовано вже трохи більше за коробку. Ще питання є��? Ні, я нічого не маю проти, якщо комусь потрібні великі площі, але тоді б автор явно не розглядала б дім на 100квадратів.А маєте що порадити автору - радьте! Але не вважайте власну думку єдино вірною. Люди різні і вимоги до комфортного житла бувають різні. Ездить в машине на пассажирском и за рулем - разные вещи. Посилання на коментар Поділитися на інших сайтах More sharing options...
teonit Опубліковано: 18 листопада 2020 Поділитись Опубліковано: 18 листопада 2020 Вам уже советовали, я просто поддержу. Поищите среди типовых проектов одноэтажник с двумя спальнями до 120м2. Приедут дети с внуками - как-нибудь разместятся на пару дней в гостевой спальной и гостинной. А вам - комфортная жизнь. Меньше бегать по ступенькам (и падать с них, особенно внукам), все рядышком, проще окна мыть. Принести с кухни чаёк в постель любимому человеку - легко. 3 Посилання на коментар Поділитися на інших сайтах More sharing options...
newbee2020 Опубліковано: 28 листопада 2020 Поділитись Опубліковано: 28 листопада 2020 Вам уже советовали, я просто поддержу. Поищите среди типовых проектов одноэтажник с двумя спальнями до 120м2. Приедут дети с внуками - как-нибудь разместятся на пару дней в гостевой спальной и гостинной. А вам - комфортная жизнь. Меньше бегать по ступенькам (и падать с них, особенно внукам), все рядышком, проще окна мыть. Принести с кухни чаёк в постель любимому человеку - легко. У меня модифицированный z10, 122метра полезной, три спальни, два санузла, гостинная с кухней 45, котельная почти 8. Терраса 26 вроде бы(в 122 не входит) 1 Посилання на коментар Поділитися на інших сайтах More sharing options...
Рекомендовані повідомлення
Створіть акаунт або увійдіть у нього для коментування
Ви маєте бути користувачем, щоб залишити коментар
Створити акаунт
Зареєструйтеся для отримання акаунта. Це просто!
Зареєструвати акаунтУвійти
Вже зареєстровані? Увійдіть тут.
Увійти зараз