AНДРЮША Опубліковано: 10 січня 2012 Поділитись Опубліковано: 10 січня 2012 В Архикаде наклонные стены типа мансардных рисуются инструментом "Крыша", а просто наклонные стены рисуются инструментом "Стена", где в свойствах необходимо указать угол наклона: Спасибо Спасибо, я уже разобрался. Наклон стены можно задать только "крышей", а лишнее срезать. А то что в инструменте "стена", то наклон относительно горизонтальной поверхности - совсем не в тему. Посилання на коментар Поділитися на інших сайтах More sharing options...
DVIJOK Опубліковано: 13 січня 2012 Поділитись Опубліковано: 13 січня 2012 DVIJOK создал специальную группу ArchiCAD для подобных вопросов, и я даже в числе участников группы, но сам только что с трудом нашел ее на форуме Наверное, надо ссылку на группу разместить в прилепленной теме "Правила ветки и ссылки на дизайнерские идеи" Неплохо было бы. Но нет рейтингов групп, да и проще тут задать вопрос чем лезть туда. Поэтому группа скорее как аппендикс. Посилання на коментар Поділитися на інших сайтах More sharing options...
Александр! Опубліковано: 14 січня 2012 Поділитись Опубліковано: 14 січня 2012 скачал вчера с ах уа архикад 15 с кряком, установил вроде все нармально, меня просто интересует что должно писать в разделе информация о лицензии............... Посилання на коментар Поділитися на інших сайтах More sharing options...
DVIJOK Опубліковано: 14 січня 2012 Поділитись Опубліковано: 14 січня 2012 скачал вчера с ах уа архикад 15 с кряком, установил вроде все нармально, меня просто интересует что должно писать в разделе информация о лицензии............... Зачем это вам? Посилання на коментар Поділитися на інших сайтах More sharing options...
Александр! Опубліковано: 14 січня 2012 Поділитись Опубліковано: 14 січня 2012 Зачем это вам? просто хочу узнать может это какая то временная Посилання на коментар Поділитися на інших сайтах More sharing options...
DVIJOK Опубліковано: 14 січня 2012 Поділитись Опубліковано: 14 січня 2012 в архикаде нет временной лицензии... вывод? 1 Посилання на коментар Поділитися на інших сайтах More sharing options...
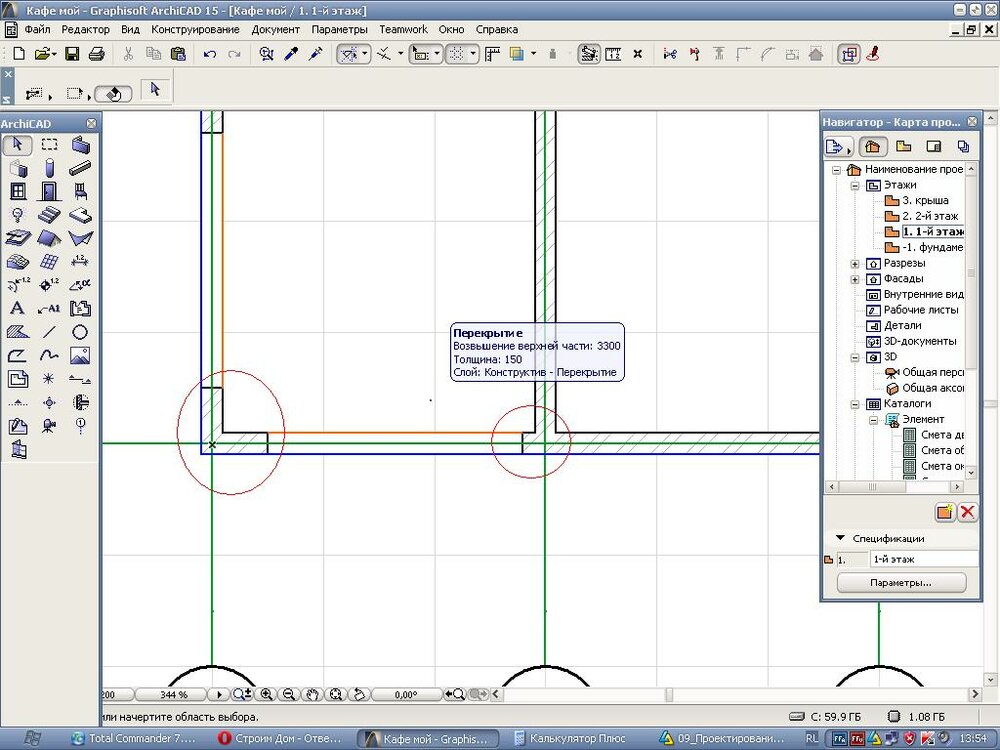
tomtit Опубліковано: 15 січня 2012 Поділитись Опубліковано: 15 січня 2012 Подскажите пожалуйста, почему у меня так отображается... 1. Вложения 1,2: Пенопласт нарисован инструментом "стена", почему-то верхняя граница (линия) не отображается. На остальных трёх стенах такого нет. 2. Вложения 3,4,5: Вентиляционные трубы нарисованы колоннами, их родной этаж - крыша. Как сделать, чтобы на первом этаже они тоже отображались? В свойствах - вроде должны быть видны, а по факту не видно. Архикад осваиваю самостоятельно, по наитию, не по урокам, так что многого могу не знать До сих пор помню, как таким же методом научного тыка осваивала фотошоп и делала ретушь фоток инструментом Кисть, пока случайно не обнаружила, что для этого специальные инструменты есть... Посилання на коментар Поділитися на інших сайтах More sharing options...
niukin Опубліковано: 15 січня 2012 Поділитись Опубліковано: 15 січня 2012 Подскажите пожалуйста, почему у меня так отображается... Если у вас все стены имеют одинаковые параметры (высоту и уровень привязки), то такого быть не должно. Скорее всего, у вас случайно наложились две стены в одном месте. Проверьте еще раз параметры примыкающих стен, посмотрите в 3D, попробуйте отодвинуть проблемную стену в сторону и посмотрите, что на ее месте еще находится. А по поводу многослойных стен тут есть хорошая статья - (ссылка устарела) Что касается колонн, то их отображение зависит от настройки параметров отображения плоскости сечения этажа. Не знаю как в английской версии это называется, но в русской этот параметр находится в "Документы->Плоскость сечения плана этажа" и имеет такой вид: Но проще будет в свойствах колонны выбрать в параметре "Показ проекции" опцию "Весь элемент": В справке Архикада хорошо описывается этот момент. Попробуйте перейти на русскую версию 1 Посилання на коментар Поділитися на інших сайтах More sharing options...
Яло Опубліковано: 26 січня 2012 Поділитись Опубліковано: 26 січня 2012 Люди, help, у меня не получается установить программу Пишет, что у меня не установлен лицензионный ключ (230). Кто может объяснить, как для особо одаренный лузеров, что я не так делаю? Посилання на коментар Поділитися на інших сайтах More sharing options...
DVIJOK Опубліковано: 26 січня 2012 Поділитись Опубліковано: 26 січня 2012 Опишите подробней, что вы выбираете из лицензий при установке? Был ли установлен архикад раньше и как вы его удалили? При установке нужно выбирать коммерческую лицензию, далее ключ CodeMeter. Посилання на коментар Поділитися на інших сайтах More sharing options...
Яло Опубліковано: 26 січня 2012 Поділитись Опубліковано: 26 січня 2012 Опишите подробней, что вы выбираете из лицензий при установке? Выбираю этот вариант Windows 32-бит: (ссылка устарела) Был ли установлен архикад раньше и как вы его удалили?Все удаляю через панель инструментов- удаление программ. При установке нужно выбирать коммерческую лицензию, далее ключ CodeMeter.Раньше выбирала другой ключ (на ex.ua советовали другой) Сейчас переделала- вот что получилось...(в файлах) "не найден драйвер Wibu-Key (501) Что еще надо сделать?1.docDoc3.doc Посилання на коментар Поділитися на інших сайтах More sharing options...
hotpoint Опубліковано: 26 січня 2012 Поділитись Опубліковано: 26 січня 2012 Выбираю этот вариант Windows 32-бит: (ссылка устарела) Все удаляю через панель инструментов- удаление программ. Раньше выбирала другой ключ (на ex.ua советовали другой) Сейчас переделала- вот что получилось...(в файлах) "не найден драйвер Wibu-Key (501) Что еще надо сделать? Запустите установщик AC15-RUS32(64).exe В появляющихся окнах выберите >>Я имею электронной ключ защиты для ArchiCAD<< >>Ключ защиты WIBI-Box<< После окончания установки: (соблюдайте очередность) Установите, по мере надобности ECO15-RUS.exe, MEP15-RUS.exe. Далее установите обновление AC15-3267-HOTFIX1-WIN32(64).exe. Далее запускаем Мегалекарство Archicad 15 Build3267_Co.exe, и поочередно лечим все 4 позиции; обновлени 3267, ECO, BIM, MEP. (BIM нужно лечить тот который по адресу C:\Program Files\Graphisoft\ArchiCAD 15\Расширения ArchiCAD\BIM Explorer). BIM32 не всегда получается вылечить, решение ищется. Внимание! Если у вас уже установлено обновление 3267, и вы хотите вылечить ECO, MEP, или BIM, то лекарство не сработает. Нужно полностью удалить уже установленный ArchiCAD, и установить его заново по инструкции выше. Качал и ставил себе на семёрку отсюда: (ссылка устарела) Посилання на коментар Поділитися на інших сайтах More sharing options...
Яло Опубліковано: 26 січня 2012 Поділитись Опубліковано: 26 січня 2012 Далее запускаем Мегалекарство Archicad 15 Build3267_Co.exe, и поочередно лечим все 4 позиции; обновлени 3267, ECO, BIM, MEP. (BIM нужно лечить тот который по адресу C:\Program Files\Graphisoft\ArchiCAD 15\Расширения ArchiCAD\BIM Explorer). BIM32 не всегда получается вылечить, решение ищется. Внимание! Если у вас уже установлено обновление 3267, и вы хотите вылечить ECO, MEP, или BIM, то лекарство не сработает. Нужно полностью удалить уже установленный ArchiCAD, и установить его заново по инструкции выше. Трендец Все! Мой мозг взорвался.... Будет чем себя занять на выходных Чувствую, не видать мне АрхиКад15:shock: А я то думала, что я с компьютером на "ВЫ", оказывается, я с ним "шопотом" Посилання на коментар Поділитися на інших сайтах More sharing options...
hotpoint Опубліковано: 26 січня 2012 Поділитись Опубліковано: 26 січня 2012 Трендец Все! Мой мозг взорвался.... Будет чем себя занять на выходных Чувствую, не видать мне АрхиКад15:shock: А я то думала, что я с компьютером на "ВЫ", оказывается, я с ним "шопотом" Чего! Докачайте себе лекарство с этого сайта и прочтите всё, что написано на вкладке установка. 10 минут дела... Один файл Archicad 15 Build3267_Co.exe Посилання на коментар Поділитися на інших сайтах More sharing options...
DVIJOK Опубліковано: 26 січня 2012 Поділитись Опубліковано: 26 січня 2012 Все удаляю через панель инструментов- удаление программ. Удаляйте не через стандартные программы, а через те что чистят реестр. Например Your Uninstaller. Раньше выбирала другой ключ (на ex.ua советовали другой) Сейчас переделала- вот что получилось...(в файлах) "не найден драйвер Wibu-Key (501) Что еще надо сделать? Драйвер отдельно А вообще надо было в группу писать. Да, если вы только учитесь работать в архикаде, то ни ECO, ни MEP, ни BIM вам не нужны. Забейте даже на обновление, оно ничего нового вам не принесет. Посилання на коментар Поділитися на інших сайтах More sharing options...
sagitron Опубліковано: 9 лютого 2012 Поділитись Опубліковано: 9 лютого 2012 Установил ахрик15 пока 2 вороса: Почему у меня не паралелепипед, на скрине видно как дальний угол (красный круг) вытянут дальше чем надо, и почему для просмотра фундамента (синий овал)) необходимо повернуть чуток здание, с помощью опции "орбита" или так и должно быть? Посилання на коментар Поділитися на інших сайтах More sharing options...
DVIJOK Опубліковано: 9 лютого 2012 Поділитись Опубліковано: 9 лютого 2012 Установил ахрик15 пока 2 вороса: Почему у меня не паралелепипед, на скрине видно как дальний угол (красный круг) вытянут дальше чем надо, и почему для просмотра фундамента (синий овал)) необходимо повернуть чуток здание, с помощью опции "орбита" или так и должно быть? Потому что вы смотрите через аксонометрию. Переключите режим в Перспективу и не будет такого угла. А как вы хотите что б был виден фундамент? 1 Посилання на коментар Поділитися на інших сайтах More sharing options...
sagitron Опубліковано: 9 лютого 2012 Поділитись Опубліковано: 9 лютого 2012 Потому что вы смотрите через аксонометрию. Переключите режим в Перспективу и не будет такого угла. А как вы хотите что б был виден фундамент? О разобрался с аксонометрией... прадва я только что узнал что Се такое! А по поводу фундамента то я рисую по видео уроку и там клац и фундамент в 3в виден, а я клац и голое поле с сеткой, только потом догнал что можно его увидеть крутанув здание! обидно минут 30 потерял, перерисовывал 2 раза пока не догнал Посилання на коментар Поділитися на інших сайтах More sharing options...
sagitron Опубліковано: 10 лютого 2012 Поділитись Опубліковано: 10 лютого 2012 Вопрос, сетка 6000мм, стена 380мм, ставлю окно (по уроку "постройка Кафе") шириной 4580, потом надо его поставить по середине комнаты сместив от угла на 1000мм, смещаю получается бред нифига серидины не получаю! ... и как выделить в этой версии окно а то запарило, то стену выделит, то перекрытие... Посилання на коментар Поділитися на інших сайтах More sharing options...
sagitron Опубліковано: 10 лютого 2012 Поділитись Опубліковано: 10 лютого 2012 Продолжаю делать, создал на втором этаже арочное окно, поставил его по середине с помощью опции, все один хер стало абы как, че за... "пороблено" (с):D Посилання на коментар Поділитися на інших сайтах More sharing options...
DVIJOK Опубліковано: 10 лютого 2012 Поділитись Опубліковано: 10 лютого 2012 Прежде чем начать что-то делать в архикаде, вы должны были изучить хотя бы основы. Одна из основ архикада, это привязки. Вы знаете что это такое? А точки позиционирования знаете? У вас ведь кнопка позиционирования не активна, а именно она позволяет поставить окно точно посередине. Давайте не будет задавать откровенно детских вопросов, а почитаем справку раздел привязки и точки позиционирования. Открою еще один секрет, нужные расстояния можно отбить линией-призраком(клавиша - J), или просто линией, так никогда не потеряете нужных расстояний. 1 Посилання на коментар Поділитися на інших сайтах More sharing options...
sagitron Опубліковано: 10 лютого 2012 Поділитись Опубліковано: 10 лютого 2012 Я чайник в этих программах говорю сразу. Вы мне объясните как она это делает, оси 6000мм смотреть с 25сек на 4,20минуте она задает смещение на 1000 мм причем окно шириной 4580мм, я рассуждаю как математик для того чтобы окно стало посередине надо (6000-4580)/2= 710 мм, что я и сделал и окно у меня стало точно ПОСЕРЕДИНЕ, поясните где я туплю Посилання на коментар Поділитися на інших сайтах More sharing options...
DVIJOK Опубліковано: 10 лютого 2012 Поділитись Опубліковано: 10 лютого 2012 Насколько я понял, диктор вообще не говорит о том, что окно нужно поместить строго посередине стены или строго между осями. Откуда вы взяли что окно должно стоять посередине? Построение идет от балды. Посилання на коментар Поділитися на інших сайтах More sharing options...
sagitron Опубліковано: 10 лютого 2012 Поділитись Опубліковано: 10 лютого 2012 Да вы правы, не четко видно что они посередине, но если выполнить то, что она говорит то окна ВАЩЕ не посередине и это ВИДНО, не говоря уже про передние окна которые у нее точно стают посередине а у меня как "пороблено" )) с 2,40минуты Посилання на коментар Поділитися на інших сайтах More sharing options...
DVIJOK Опубліковано: 10 лютого 2012 Поділитись Опубліковано: 10 лютого 2012 А зачем вообще выполнять то, что она говорит? Кстати, метод построения в ролике откровенно говоря паршивый. В чем вообще проблема то? 1 Посилання на коментар Поділитися на інших сайтах More sharing options...
Рекомендовані повідомлення
Створіть акаунт або увійдіть у нього для коментування
Ви маєте бути користувачем, щоб залишити коментар
Створити акаунт
Зареєструйтеся для отримання акаунта. Це просто!
Зареєструвати акаунтУвійти
Вже зареєстровані? Увійдіть тут.
Увійти зараз