anabioz Опубліковано: 14 серпня 2024 Поділитись Опубліковано: 14 серпня 2024 9 годин тому, SychiyKit сказав: Запитайте, якщо не важко, фундамент/коробка/дах. Дякую Тут багато складових, з чого будувати, хто будує, де будує, які матеріали, доставка, робоча сила і таке інше. 1м2 готової будівлі з меблями і технікою може коштувати як 500$, якщо робиш більшість робіт сам, так і 5000$ ... і може більше. 1 Посилання на коментар Поділитися на інших сайтах More sharing options...
allanek Опубліковано: 15 серпня 2024 Поділитись Опубліковано: 15 серпня 2024 09.08.2024 в 22:20, anabioz сказав: Не будував би гостьового будиночку б ніколи, марна трата часу і грошей. Побудували, обслуговування обходиться в зимове опалення килимком 0,6 кв.м електричної ТП. І раз на 3-4 роки почистити бойлер від осаду. Все. Будували на випадок, якщо мама , нарешті, переїде до нас. Схоже, що цього ніколи не станеться. Але будиночок виявився . в моєму випадку, великим "+". Може колись розповім про це. Будинок будували для постійного ПМЖ, тож в ньому є все для цього. Нема однозначної відповіді, чи потрібен він, чи ні. Але в такому вигляді, як в ТС, не будувала б його. 1 Посилання на коментар Поділитися на інших сайтах More sharing options...
normal Опубліковано: 15 серпня 2024 Поділитись Опубліковано: 15 серпня 2024 (змінено) 53 хвилини тому, allanek сказав: обходиться в зимове опалення килимком 0,6 кв.м електричної ТП. І раз на 3-4 роки почистити бойлер Один килимок підтримує плюсову температуру чи бойлер теж працює як обігрівач? (щоб він сам не перемерз і бачок унітазу), бо килимка напевно не вистачило би... Змінено 15 серпня 2024 користувачем normal Посилання на коментар Поділитися на інших сайтах More sharing options...
allanek Опубліковано: 15 серпня 2024 Поділитись Опубліковано: 15 серпня 2024 Один килимок підтримує плюсову температуру на весь будинок. Навіщо вмикати бойлер в будинку, де ніхто не проживає більшу частину року? Коли креслили проект, то думали не лише за площу та приміщення, враховували і розташування інженерної частини. Тому всі труби (вода) та бойлер розташовані в ванній кімнаті, яка межує з кухнею. Килимка на 0,6кв.м вистачає і на ванну кімнату, і на кухню, і на будиночок взагалі. ГА теж розташований в гостьовому будиночку, не в ванній кімнаті звісно, але килимка 0,6квадрата вистачає на все - на труби і на те, щоб в будинку було сухо та підтримувалась плюсова температура. Посилання на коментар Поділитися на інших сайтах More sharing options...
SychiyKit Опубліковано: 15 серпня 2024 Автор Поділитись Опубліковано: 15 серпня 2024 11 часов назад, allanek сказал: Побудували, обслуговування обходиться в зимове опалення килимком 0,6 кв.м електричної ТП. І раз на 3-4 роки почистити бойлер від осаду. Все. Будували на випадок, якщо мама , нарешті, переїде до нас. Схоже, що цього ніколи не станеться. Але будиночок виявився . в моєму випадку, великим "+". Може колись розповім про це. Будинок будували для постійного ПМЖ, тож в ньому є все для цього. Нема однозначної відповіді, чи потрібен він, чи ні. Але в такому вигляді, як в ТС, не будувала б його. Порадьте щось, як би будували? Ви вже це проходили і знаєте як ніхто інший. Посилання на коментар Поділитися на інших сайтах More sharing options...
Nikolay Cherednichenko Опубліковано: 15 серпня 2024 Поділитись Опубліковано: 15 серпня 2024 (змінено) 13 минут назад, SychiyKit сказал: Порадьте щось, як би будували? Ви вже це проходили і знаєте як ніхто інший. Гарних вам рішень і вдалої будови. Змінено 15 серпня 2024 користувачем Nikolay Cherednichenko Посилання на коментар Поділитися на інших сайтах More sharing options...
allanek Опубліковано: 16 серпня 2024 Поділитись Опубліковано: 16 серпня 2024 (змінено) 8 годин тому, SychiyKit сказав: Порадьте щось, як би будували? Ви вже це проходили і знаєте як ніхто інший. Що ви хочете почути? Питаю, бо ми не будували гостьовий, як будинок для відпочинку. В нас гостьовий побудований для постійного проживання, з максимальним комфортом для 1-2 осіб. Будинок невеликий, 55кв.м, без тамбура, зона кухні-ідальні- вітальні об'єднана; невелика (10,5кв.м) та дуже затишна спальня; доволі велика ванна кімната (7,5кв м). Передусім було про комфорт. Ніякої традиційної сауни, ми прихильники інфрачервоної, тому в основному будинку, в ванній стоїть кабіна. Окремої тераси у гостьового будинку нема. Достатньо тераси основного будинку, більше 30 квадратів. Будинок з великою площею вікон, бо ділянка лісова з краєвидом. Внутрішне оздоблення стін та стелі - імітація брусу та вагонка, підлога -плитка. Тому будинок гарно почувається при минимальній плюсовій температурі взимку. Про комунікації вже казала - вони не розкидані по будинку, зосереджині в ванній кімнаті, там, де вмикається килимок ТП. ТП навмисно електрична, розбита на килимки, вмикаються кожен окремо. Двері фінськи, теплі, тамбурів не визнаю, двері чудово справляються з його відсутністю. В вас зовсім інша концепція. Ви думаєте за комфортний відпочинок родичив, що приїдуть на кілька днів. Насамперед вам треба, в першу чергу, думати про обслуговування того будинку та в скільки вам обійдеться утримання, особливо з урахуванням нашої дійсності. Щоб я радила зробити обов'язково- поставити невеличку камінопіч. Ми поставили камінопіч в основному і не поставили буржуйку в гостьовому, про що жалкуємо. Ну і , якщо вже вирішили, що вам потрібен окремий будинок для відпочинку, треба думати про те, як він буде гармонійно виглядати в парі з основним будинком. Ваша концепція комфортного відпочинку для родичів для мене трохи дивна. Я, в першу чергу, дбаю за свій власний комфорт і гаманець. Ваш варіант зовсім протилежне моїм поглядам, бо, навіть, гаражу в нас нема, лише стоянка. Тому не уявляю, яка порада вам потрібна? Змінено 16 серпня 2024 користувачем allanek Посилання на коментар Поділитися на інших сайтах More sharing options...
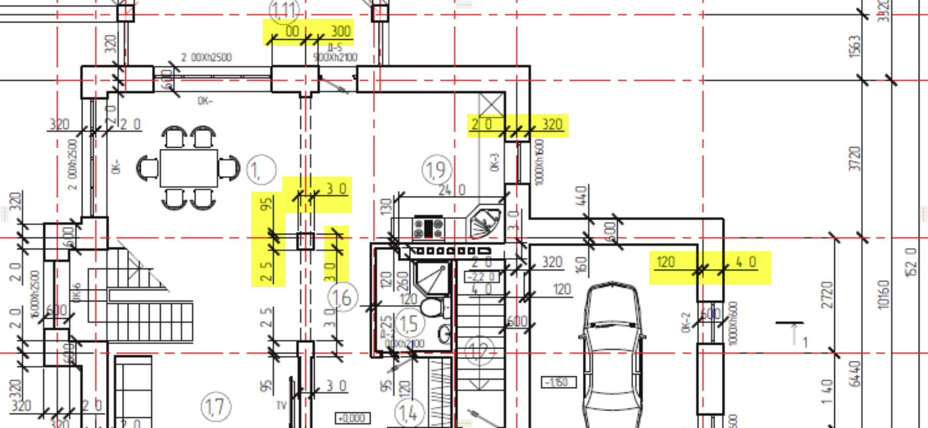
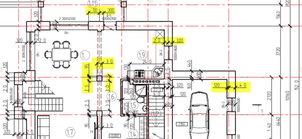
SAN67 Опубліковано: 16 серпня 2024 Поділитись Опубліковано: 16 серпня 2024 В 08.08.2024 в 19:18, SychiyKit сказал: План будинку Вы можете прокомментировать подсвеченные размеры? Посилання на коментар Поділитися на інших сайтах More sharing options...
Vstar Опубліковано: 16 серпня 2024 Поділитись Опубліковано: 16 серпня 2024 1 година тому, SAN67 сказав: Вы можете прокомментировать подсвеченные размеры? Нахуа це вам, невже змінює концепцію питання. Чоловік писав, шрифт злетів (тому й деякі цифри могли наложитись один на один або ж не відображатись). Посилання на коментар Поділитися на інших сайтах More sharing options...
Рекомендовані повідомлення
Створіть акаунт або увійдіть у нього для коментування
Ви маєте бути користувачем, щоб залишити коментар
Створити акаунт
Зареєструйтеся для отримання акаунта. Це просто!
Зареєструвати акаунтУвійти
Вже зареєстровані? Увійдіть тут.
Увійти зараз