Drosselbeere Опубліковано: 22 січня 2025 Поділитись Опубліковано: 22 січня 2025 4 години тому, k.dmutriy сказав: То там він з запасом зроблений. А ви рахували? Чи так, на око? А взагалі тут питання не тільки фундаменту, є ще кровля, стіни, перекриття? Посилання на коментар Поділитися на інших сайтах More sharing options...
k.dmutriy Опубліковано: 22 січня 2025 Автор Поділитись Опубліковано: 22 січня 2025 18 хвилин тому, Drosselbeere сказав: ви рахували Прям рахувати ні. Але дивився типові рішення. В основному роблять мінімально допустимий фундамент і для 90% котеджного будівництва цього більше ніж достатньо. Ширину роблять під блок а не під навантаження бо при розрахунку навантаження виходить фундамент умовно 20 см шириною. Думаю зрозуміло про що я. Бо якось сумбурно написано. 21 хвилину тому, Drosselbeere сказав: ще кровля, стіни, перекриття У мене перший поверх з білої цегли. Навантаження вона сприймає найкраще з усіх стінових матеріалів. Перекриття напевно буде з ЧРП. Дах не знаю ще туди не добрався. Але снігу у нас майже нема щоб його враховувати Посилання на коментар Поділитися на інших сайтах More sharing options...
Drosselbeere Опубліковано: 23 січня 2025 Поділитись Опубліковано: 23 січня 2025 18 годин тому, k.dmutriy сказав: Думаю зрозуміло про що я. Бо якось сумбурно написано. тоді не зрозуміло якоі поради ви чекаєте на форумі якщо самі все знаєте ))))) 18 годин тому, k.dmutriy сказав: Але снігу у нас майже нема щоб його враховувати крім снігу є власна вага, вітер і тд.... но я про інше. якщо сніни і фундамент вас влаштовую то я б демонтував би другий поверх, зробив би добудову і завязав би одни монолітним ЗБ поясом. зараз начнуть казати що так не можно і тд, різниця осадки, тріщіни і тд. але це такий собі копроміс, що б меньше вкладатися в реконструкцію і мати прогнозований результат Посилання на коментар Поділитися на інших сайтах More sharing options...
k.dmutriy Опубліковано: 23 січня 2025 Автор Поділитись Опубліковано: 23 січня 2025 4 години тому, Drosselbeere сказав: я б демонтував би другий поверх, зробив би добудову і завязав би одни монолітним ЗБ поясом я про такий варіант теж думав. але мені він здався меньш прогнозованим ніж побудова 2 поверху. Я саме із за трищин і просадки відкинув цей варіант. 4 години тому, Drosselbeere сказав: самі все знаєте я не знаю просто за цей час почитав і подивився різну інформацію то зібрав для себе якийсь пул інфи. 4 години тому, Drosselbeere сказав: но я про інше так а можете написати що я не враховую з 2 поверхом? В принципі можна і деревяне перекриття зробити але треба порахувати вагу між ЧРП і деревом чи насправді там прям настільки велика різниця Посилання на коментар Поділитися на інших сайтах More sharing options...
Бармалей Опубліковано: 24 січня 2025 Поділитись Опубліковано: 24 січня 2025 В 22.01.2025 в 15:21, k.dmutriy сказал: Але снігу у нас майже нема щоб його враховувати это сейчас нет, а что будет через 5-10 лет? лучше все же заложить запас на эту нагрузку 1 Посилання на коментар Поділитися на інших сайтах More sharing options...
k.dmutriy Опубліковано: 25 січня 2025 Автор Поділитись Опубліковано: 25 січня 2025 22 години тому, Бармалей сказав: это сейчас нет, а что будет через 5-10 лет? лучше все же заложить запас на эту нагрузку А як? Я не розумію що я роблю не так і де моя помилка. Фундамент не меньше 45 см шириною заглублений на 85 см в землю. Грунт у мене сеглинок. Коли розкопував перших 40 см волога є далі сухо це враховуючи що відмостки нема і все льє під фундамент. На фундаменті стоять стіни з повнотілої білої цегли товщина в одину цеглину. Нічого критичного я не бачу для того щоб відмовитись будувати 2 поверх і тим паче не бачу причин для знесення Посилання на коментар Поділитися на інших сайтах More sharing options...
Бармалей Опубліковано: 25 січня 2025 Поділитись Опубліковано: 25 січня 2025 Я пока диванный строитель))) так что можно не обращать внимания...сижу изучаю и пытаюсь для себя хоть немного разобраться чтоб домик построить без косяков... Ошибка - то что Вы отбрасываете фактор снеговой нагрузки. На мой взгляд - зря. Данная нагрузка хоть и незначительна в вашем случае для фундамента, но она все таки должна учитываться во всей плоскости строения от крыши и до фундамента. Сейчас зимы без снежные, а лет через 10 может все поменяться и неучтенных несколько факторов могут сыграть плохую роль. Посилання на коментар Поділитися на інших сайтах More sharing options...
MAESTRO DNEPR Опубліковано: 25 січня 2025 Поділитись Опубліковано: 25 січня 2025 3 часа назад, k.dmutriy сказал: Я не розумію що я роблю не так і де моя помилка. Вам пора выйти из сумрака... Вы уже знаете, что должны сделать... 1. ...найти живого архитектора/конструктора, который сможет приехать на объект и составить план действий... не бесплатно, ессно... 2. ...найти живого грамотного прораба. который сможет воплотить в жизнь этот план... ...дальше новоселье. Посилання на коментар Поділитися на інших сайтах More sharing options...
ozor Опубліковано: 26 січня 2025 Поділитись Опубліковано: 26 січня 2025 Я не зрозумів, навіщо другий поверх? Якщо добудовувати до старого фундаменту, то не П-подібно, а О, чи прямокутоподібно. Ну, як пʼятиповерхівки притул, одна до одної будують, кожна на своєму фундаменті. Посилання на коментар Поділитися на інших сайтах More sharing options...
k.dmutriy Опубліковано: 26 січня 2025 Автор Поділитись Опубліковано: 26 січня 2025 21 годину тому, MAESTRO DNEPR сказав: Вы уже знаете, что должны сделать... Напевно архітектора доведеться взяти бо всі деталі навряд я зможу вивчити На рахунок прораба. Плануємо будувати своїми силами і в цьому році план зробити коробку з вікнами і дверима. 1 Посилання на коментар Поділитися на інших сайтах More sharing options...
k.dmutriy Опубліковано: 26 січня 2025 Автор Поділитись Опубліковано: 26 січня 2025 6 годин тому, ozor сказав: Я не зрозумів, навіщо другий поверх? Якщо добудовувати до старого фундаменту, то не П-подібно, а О, чи прямокутоподібно. Ну, як пʼятиповерхівки притул, одна до одної будують, кожна на своєму фундаменті. Я думав про таке але не знаю як конструктивно приєднується/не приєднується фундамент. А в інтернеті одині кажуть не приєднувати інші приєднувати Посилання на коментар Поділитися на інших сайтах More sharing options...
k.dmutriy Опубліковано: 26 січня 2025 Автор Поділитись Опубліковано: 26 січня 2025 25.01.2025 в 21:46, Бармалей сказав: Я пока диванный строитель))) так что можно не обращать внимания...сижу изучаю и пытаюсь для себя хоть немного разобраться чтоб домик построить без косяков... Ошибка - то что Вы отбрасываете фактор снеговой нагрузки. На мой взгляд - зря. Данная нагрузка хоть и незначительна в вашем случае для фундамента, но она все таки должна учитываться во всей плоскости строения от крыши и до фундамента. Сейчас зимы без снежные, а лет через 10 может все поменяться и неучтенных несколько факторов могут сыграть плохую роль. От і я такий самий. Я не відкидую ці навантаження. Просто я вже знаю як рахувати фундамент і для 1 поверхового будинку ширина описання на суглинок має бути близько 12 см. А меньше 40 ніхто не робить щоб стіну було куди поставити. От і виходить що запас трьохкратний Посилання на коментар Поділитися на інших сайтах More sharing options...
normal Опубліковано: 26 січня 2025 Поділитись Опубліковано: 26 січня 2025 4 хвилини тому, k.dmutriy сказав: От і виходить що запас трьохкратний Запас у вашій кишені! А архітектор, прораб, всі хочуть мати такий запас. Питання тільки у часі, з такими темпами "будувати своїми силами і в цьому році план зробити коробку", квартал минув, а ви з місця не рушились Посилання на коментар Поділитися на інших сайтах More sharing options...
k.dmutriy Опубліковано: 26 січня 2025 Автор Поділитись Опубліковано: 26 січня 2025 1 година тому, normal сказав: Запас у вашій кишені! А архітектор, прораб, всі хочуть мати такий запас. Питання тільки у часі, з такими темпами "будувати своїми силами і в цьому році план зробити коробку", квартал минув, а ви з місця не рушились Я про запас яки вже стоїть на ділянці. Ми не спішимо і у нас є план на цей рік і це коробка з вікнами. Свій будинок можете побудувати за місяць або за день. І якщо не складно то пишіть по суті а не по розрахунку часу 1 Посилання на коментар Поділитися на інших сайтах More sharing options...
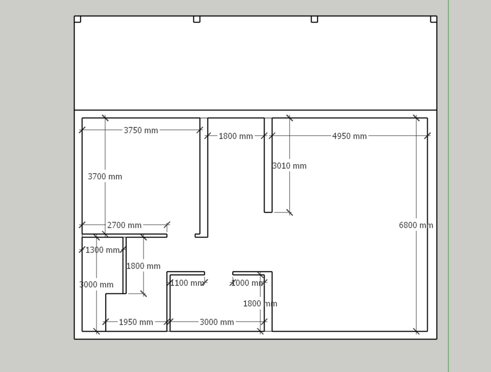
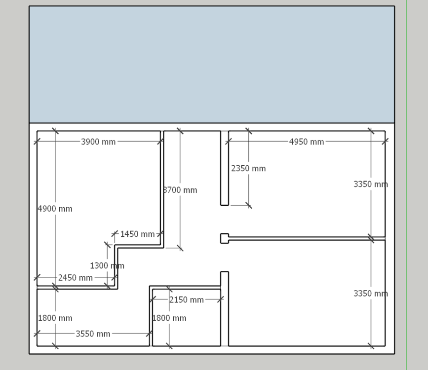
k.dmutriy Опубліковано: 8 вересня 2025 Автор Поділитись Опубліковано: 8 вересня 2025 (змінено) Доброго дня форрум. Довго задавав тут уточнюючі питання в намаганні вибрати оптимальний проект по затратам складності і корисній площі. Хотілось би отримати від орумчан зауваження по нашій ідеї щоб виправити на етапі проекту. Дякую. І так. Ділянка: Купили ми ділянку на пагорбі з невеликим схилом. схил безпосередньо під будинком 40см на 7,2метри Фундамент: внизу схилу я підкопав фундамент щоб перевірити його глибину, він заглублений на 80 см в грунт під підошвою піщана підсипка повщина більше 40см. над грунтом зі сторони схилу ще 80см. Тобто з вищої сторони він вистуває на 30-40 см над грунтом 3 нижчої 80см. Грунти: глина з піском. Стіни: пів будинку побудовано з товщиної стіни 380мм інша половина 250мм з силікатної цегли. По одній довгій стороні зроблено типу мансардного поверху ()його хочу знести Хочемо побудувати будинок в 2 поверхи з плитним перекриттям. План наступний: 1. залити фундамент всередині будинку під несучі стіни ( не знаю чи обєднувати чи ні з старим фундаментом) 2. підняти стіни (також не знаю чи обєднувати з старими стінами) 3. обєднати все в единий армопояс (тут напевно треба товщину 20-30см) 4. підняти 2 поверх з газоблоку 300мм 5. армопояс (тут думаю 20см буде достатньо) 6. Дах План першого поверху (в середині периметру стін 2 несучі стіни яких нема і їх треба зробити) План 2 поверху Зд візуалізація реальні фото будинку Проект в скетчап 3дgarag1 - Copy.skp Змінено 8 вересня 2025 користувачем k.dmutriy Посилання на коментар Поділитися на інших сайтах More sharing options...
andry07 Опубліковано: 8 вересня 2025 Поділитись Опубліковано: 8 вересня 2025 Все знести і побудувати нове під свої потреби 1 Посилання на коментар Поділитися на інших сайтах More sharing options...
Vitaliy67 Опубліковано: 8 вересня 2025 Поділитись Опубліковано: 8 вересня 2025 Снести и построить новое 1 Посилання на коментар Поділитися на інших сайтах More sharing options...
k.dmutriy Опубліковано: 9 вересня 2025 Автор Поділитись Опубліковано: 9 вересня 2025 14 годин тому, andry07 сказав: Все знести і побудувати нове під свої потреби 14 годин тому, Vitaliy67 сказав: Снести и построить новое Я не розумію навіщо зносити те що вже є. Посилання на коментар Поділитися на інших сайтах More sharing options...
DimaF Опубліковано: 9 вересня 2025 Поділитись Опубліковано: 9 вересня 2025 1 час назад, k.dmutriy сказал: Я не розумію навіщо зносити те що вже є. Ту достройку что вы запланировали, по деньгам и усилиям выйдет в цену нового, а то и дороже. Поэтому такие и советы. Либо ремонтируйте что есть, убрав лишнее. Посилання на коментар Поділитися на інших сайтах More sharing options...
Vitaliy67 Опубліковано: 9 вересня 2025 Поділитись Опубліковано: 9 вересня 2025 Довести то до ума будет дороже, чем новое. Тем более, что Вы туда хотите что-то ещё пришить. Тут вообще результат нельзя спрогнозировать. Если шо, есть перед глазами печальный опыт родственника. Посилання на коментар Поділитися на інших сайтах More sharing options...
k.dmutriy Опубліковано: 9 вересня 2025 Автор Поділитись Опубліковано: 9 вересня 2025 13 хвилин тому, DimaF сказав: Ту достройку что вы запланировали, по деньгам и усилиям выйдет в цену нового, а то и дороже. Поэтому такие и советы. Либо ремонтируйте что есть, убрав лишнее. 12 хвилин тому, Vitaliy67 сказав: Довести то до ума будет дороже, чем новое. Тем более, что Вы туда хотите что-то ещё пришить. Тут вообще результат нельзя спрогнозировать. Если шо, есть перед глазами печальный опыт родственника. Тобто вибрати варіант з одним поверхом і добудовою потрібної площі? Ми розглядали такий варіант але чомусь вирішили що другий поверх простіше в реалізації і спланувати кімнати вийшло краще ніж при одноповерховому. Але це скоріше за все відсутність фантазії Посилання на коментар Поділитися на інших сайтах More sharing options...
DimaF Опубліковано: 9 вересня 2025 Поділитись Опубліковано: 9 вересня 2025 1 час назад, k.dmutriy сказал: Тобто вибрати варіант з одним поверхом і добудовою потрібної площі? Выбирать вам) У вас исполнители, бюджет уже есть?) Посилання на коментар Поділитися на інших сайтах More sharing options...
k.dmutriy Опубліковано: 9 вересня 2025 Автор Поділитись Опубліковано: 9 вересня 2025 2 години тому, DimaF сказав: Выбирать вам) У вас исполнители, бюджет уже есть?) Бюджет є, виконавців нема. Посилання на коментар Поділитися на інших сайтах More sharing options...
Dr.Yura Опубліковано: 9 вересня 2025 Поділитись Опубліковано: 9 вересня 2025 Доброго дня, у Вас вже ж є 2 теми про цей будинок для чого стоврювати ще одну? 2 Посилання на коментар Поділитися на інших сайтах More sharing options...
k.dmutriy Опубліковано: 9 вересня 2025 Автор Поділитись Опубліковано: 9 вересня 2025 1 година тому, Dr.Yura сказав: Доброго дня, у Вас вже ж є 2 теми про цей будинок для чого стоврювати ще одну? Вирішив підсумувати все і намалювати проект щоб було зрозуміліше що я маю на увазі Посилання на коментар Поділитися на інших сайтах More sharing options...
Рекомендовані повідомлення
Створіть акаунт або увійдіть у нього для коментування
Ви маєте бути користувачем, щоб залишити коментар
Створити акаунт
Зареєструйтеся для отримання акаунта. Це просто!
Зареєструвати акаунтУвійти
Вже зареєстровані? Увійдіть тут.
Увійти зараз