kulak43 Опубліковано: 2 березня 2011 Поділитись Опубліковано: 2 березня 2011 Ставил ли кто-нибудь CAME Axo? Поделитесь впечатлениями, если таковые есть. Посилання на коментар Поділитися на інших сайтах More sharing options...
Вратарь Опубліковано: 3 березня 2011 Поділитись Опубліковано: 3 березня 2011 Ставил ли кто-нибудь CAME Axo? Поделитесь впечатлениями, если таковые есть. Хорошо работает. Можно брать. 2 Посилання на коментар Поділитися на інших сайтах More sharing options...
Privet Опубліковано: 7 червня 2011 Поділитись Опубліковано: 7 червня 2011 А, если ворота установлены на 76-ую трубу? Что делать, если хочется установить автоматику? Посилання на коментар Поділитися на інших сайтах More sharing options...
Fuzik Опубліковано: 7 червня 2011 Поділитись Опубліковано: 7 червня 2011 А, если ворота установлены на 76-ую трубу? Что делать, если хочется установить автоматику? Позвонить установщику и он что нибудь придумает :D (мне например ) Посилання на коментар Поділитися на інших сайтах More sharing options...
Вратарь Опубліковано: 7 червня 2011 Поділитись Опубліковано: 7 червня 2011 А, если ворота установлены на 76-ую трубу? Что делать, если хочется установить автоматику? Столб из 76-й круглой трубы? Поставить можно, автоматика будет выходить за габариты столба, если столб калитки и ворот не общий это не страшно. Посилання на коментар Поділитися на інших сайтах More sharing options...
Privet Опубліковано: 7 червня 2011 Поділитись Опубліковано: 7 червня 2011 Столб из 76-й круглой трубы? Да, 76-я труба. Надо бы внести какие-то изменения.Про автоматику не подумали. Что скажете? Сделать жб столбы - где ворота и калитка? Столбы сечением 200х200 мм - нормально для установки автоматики? П.С. Кирпичные столбы не хочу.Не нравится. Посилання на коментар Поділитися на інших сайтах More sharing options...
Privet Опубліковано: 7 червня 2011 Поділитись Опубліковано: 7 червня 2011 Фотку проекта забыл вставить. Посилання на коментар Поділитися на інших сайтах More sharing options...
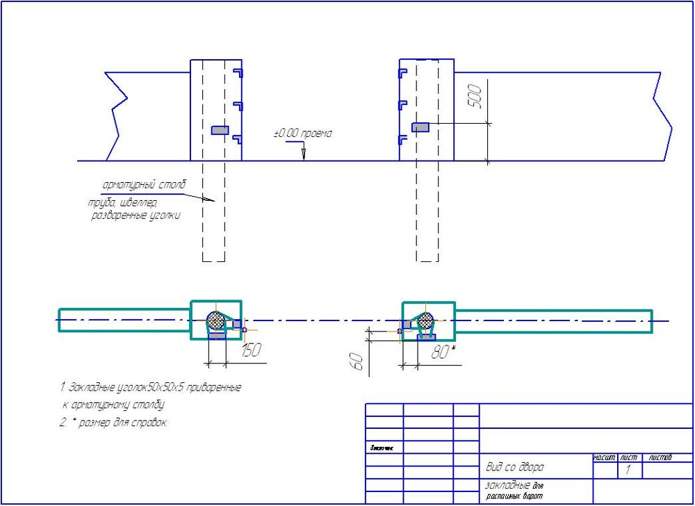
Вратарь Опубліковано: 7 червня 2011 Поділитись Опубліковано: 7 червня 2011 Да, 76-я труба. Надо бы внести какие-то изменения.Про автоматику не подумали. Что скажете? Сделать жб столбы - где ворота и калитка? Столбы сечением 200х200 мм - нормально для установки автоматики? П.С. Кирпичные столбы не хочу.Не нравится. Есть два варианта: 1. САМЕ запускает в серийное производство новые самоблокирующиеся компактные рычажные привода, которые не будут выступать за 76-ю трубу, правда нужно будет выварить площадку для монтажа привода на столбе. Ждем до конца года или заказываем и получаем через 2-3 месяца. 2. Делаем ж/б столбы, проем становится уже на 200 мм. Для установки автоматики достаточно будет 150 мм. 1 Посилання на коментар Поділитися на інших сайтах More sharing options...
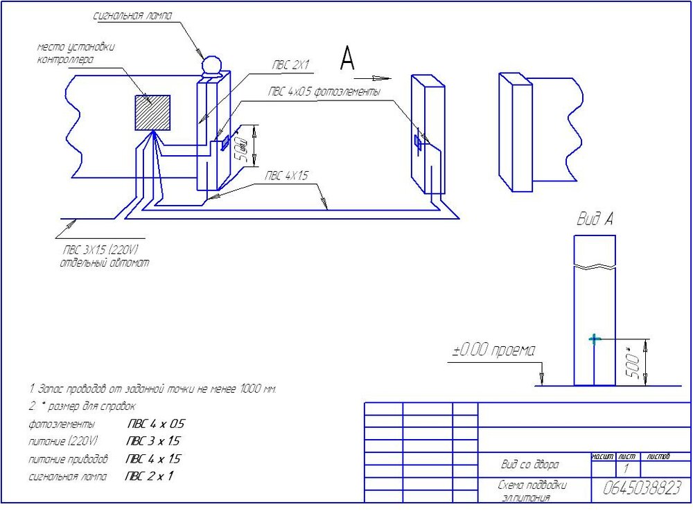
Privet Опубліковано: 7 червня 2011 Поділитись Опубліковано: 7 червня 2011 Надо бы и гофры под привода питания автоматики заложить в жб столбы. На какой высоте от полотна дороги сделать эти выводы этих закладных? Посилання на коментар Поділитися на інших сайтах More sharing options...
muvic Опубліковано: 7 червня 2011 Поділитись Опубліковано: 7 червня 2011 а вот там где у вас горизонтальная перемычка на воротах, там и делайте закладные. до начала закладывания проводов в столбы сначала определитесь с моделью автоматики - есть модели с коробами для платы управления, а есть привода с встроенными платами управления. проводка будет соответственно меняться. к панели управления необходимо подать 220 вольт, а уж от нее выводы на движки, фотоэлементы, сигнальную лампу, кнопку-ключ. лампа и кнопка-ключ абсолютно необязательны для комплектации бытовых приводов, как по мне. есть ли смысл платить за кнопку-ключ 300 грн? как по мне - никакого. с задачей замкнуть/размокнуть контакт также отлично справляется обычная кнопка дверного звонка стоимостью от 6 до 30 грн. сигнальная лампа - основная ее функция - показать остальным, что у вас есть автоматика. но, если выезжая из ворот вы попадаете сразу на проезжую часть дороги - тогда лампа необходима. из производителей рекомендую Каме (Came) - действительно качественная, надежная автоматика. Работает плавно и тихо. 1 Посилання на коментар Поділитися на інших сайтах More sharing options...
Телесистемы Опубліковано: 7 червня 2011 Поділитись Опубліковано: 7 червня 2011 есть ли смысл платить за кнопку-ключ 300 грн? как по мне - никакого. с задачей замкнуть/размокнуть контакт также отлично справляется обычная кнопка дверного звонка стоимостью от 6 до 30 грн. кнопка-ключ - это брелок дистанционного управления? а как же без него из автомобиля открывать? выходить каждый раз чтобы нажать кнопку? Нет, это некомфортно. Лампу я "выкинул" из комплекта, в принципе, думаю, что за 20 евро можно было бы и оставить - когда подьезжаешь в темноте - включаю привод дистанционным брелоком заранее, но в темноте не видно - получил сигнал приемник или нет.. из производителей рекомендую Каме (Came) - действительно качественная, надежная автоматика. Работает плавно и тихо. подтверждаю. у меня как раз Каме 1 Посилання на коментар Поділитися на інших сайтах More sharing options...
muvic Опубліковано: 7 червня 2011 Поділитись Опубліковано: 7 червня 2011 нет, брелок это брелок а кнопка - это такая вот хрень, как на картинке (ссылка на изображение устарела) от автоматики идет провод к такой кнопке. в ней поворотом ключа замыкается контакт. т.е. импульс на открытие/закрытие ворот. тождественно нажатию на кнопку пульта. вот и говорю, что как по мне - нет никакого смысла в такой кнопке в бытовых условиях. в дом можно кнопку завести и от звонка. Посилання на коментар Поділитися на інших сайтах More sharing options...
Вратарь Опубліковано: 7 червня 2011 Поділитись Опубліковано: 7 червня 2011 Надо бы и гофры под привода питания автоматики заложить в жб столбы. На какой высоте от полотна дороги сделать эти выводы этих закладных? Если Вы подготовите столбы к монтажу ворот как указанно на схеме можно использовать схему проводки проводов, которую я выложил - она расчитана на то, что плата контроллера с трансформатором будет вынесена в отдельный бокс (стандартная комплектация). 1 Посилання на коментар Поділитися на інших сайтах More sharing options...
Diver Опубліковано: 8 червня 2011 Поділитись Опубліковано: 8 червня 2011 Если там управление любой "кнопкой" - то можно использовать практически любые радиобрелки с приемником. Нажал кнопку - и устройство сработало. Лучше если в брелках будет динамически меняющийся код управления- при каждом нажатии в эфире излучается новая кодовая посылка. Посилання на коментар Поділитися на інших сайтах More sharing options...
muvic Опубліковано: 9 червня 2011 Поділитись Опубліковано: 9 червня 2011 вот этот последний месседж - это он к чему относится? Посилання на коментар Поділитися на інших сайтах More sharing options...
Privet Опубліковано: 9 червня 2011 Поділитись Опубліковано: 9 червня 2011 плата контроллера с трансформатором будет вынесена в отдельный бокс (стандартная комплектация). Ссылку на бокс распределительного щитка, который вы используете, - можете дать? Посилання на коментар Поділитися на інших сайтах More sharing options...
Вратарь Опубліковано: 9 червня 2011 Поділитись Опубліковано: 9 червня 2011 Ссылку на бокс распределительного щитка, который вы используете, - можете дать? Нет ссылки. Вы хотите узнать габариты или внешний вид посмотреть? Габариты 204х274х133 (ШхВхГ). Посилання на коментар Поділитися на інших сайтах More sharing options...
Вратарь Опубліковано: 9 червня 2011 Поділитись Опубліковано: 9 червня 2011 вот этот последний месседж - это он к чему относится? Опять неловко себя чуствую. Как свободно Вы умными словами оперируете. Месседж. Записал и запомнил.;) Посилання на коментар Поділитися на інших сайтах More sharing options...
Privet Опубліковано: 9 червня 2011 Поділитись Опубліковано: 9 червня 2011 Вы хотите узнать габариты или внешний вид посмотреть? Меня интересует не габариты, а тот факт, что бокс находится на улице и что надо ограничить доступ посторонних лиц к его внутренностям. Вот, - и хотел взглянуть на пример такого бокса, - чтобы знать от чего отталкиваться. Посилання на коментар Поділитися на інших сайтах More sharing options...
Вратарь Опубліковано: 9 червня 2011 Поділитись Опубліковано: 9 червня 2011 Меня интересует не габариты, а тот факт, что бокс находится на улице и что надо ограничить доступ посторонних лиц к его внутренностям. Вот, - и хотел взглянуть на пример такого бокса, - чтобы знать от чего отталкиваться. Никому он не нужен. Можно поставить в гараже и не придумывать ржавых ящиков с амбарными замками. Дайте эл. адрес, я сброшу каталог и укажу страницу, на которой его описание. Посилання на коментар Поділитися на інших сайтах More sharing options...
alena babayeva Опубліковано: 9 червня 2011 Поділитись Опубліковано: 9 червня 2011 Меня интересует не габариты, а тот факт, что бокс находится на улице и что надо ограничить доступ посторонних лиц к его внутренностям. Вот, - и хотел взглянуть на пример такого бокса, - чтобы знать от чего отталкиваться. (%D1%81%D1%81%D1%8B%D0%BB%D0%BA%D0%B0%20%D0%BD%D0%B0%20%D0%B8%D0%B7%D0%BE%D0%B1%D1%80%D0%B0%D0%B6%D0%B5%D0%BD%D0%B8%D0%B5%20%D1%83%D1%81%D1%82%D0%B0%D1%80%D0%B5%D0%BB%D0%B0) Посилання на коментар Поділитися на інших сайтах More sharing options...
Privet Опубліковано: 9 червня 2011 Поділитись Опубліковано: 9 червня 2011 Вы давали картинку. Я уже писал, что делаю забор. Бокс хочу залить в бетон подпорной стенки, сделав всю необходимую разводку гофрами. На ключик закрываться должно обязательно - народу посторонних у меня много, детей так же. Думаю, - вмуровать небольшой металлический встраиваемый электрощит? Посилання на коментар Поділитися на інших сайтах More sharing options...
Гість Fainfero Опубліковано: 31 серпня 2011 Поділитись Опубліковано: 31 серпня 2011 Здравствуйте. Скажите пожалуйста: сколько килограмм тяги производит привод Genius G-BAT 300? Понятно что каждая строка должна быть максимум 300-350 кг, но интересно сколько килограммов она может потянуть за собой. К примеру, каждая створка моих ворот весит примерно 150-200 кг. но тяга для их открытия в безветренную погоду нужна всего 0.7-1 кг! При ветре ~25-30 m/sec max 7-11 кг (Измерено цифровыми подвесными весами). и еще, из какого материала сделана червячная система привода. и какова на "ощупь" G-Bat 300, она качественная по вашему не слишком ли хрупка для наружного применения? спасибо за ранее Посилання на коментар Поділитися на інших сайтах More sharing options...
FOX.kissfm Опубліковано: 22 жовтня 2011 Поділитись Опубліковано: 22 жовтня 2011 Планирую распашные ворота на следующий год. В этому году установлены столбы из швеллеров и залит фундамент. Ширина ленты фундамента 40см. глубина 90см. подскажите пожалуйста автоматику на такую вот схему ворот. и куда и в каком кол-ве нужно заложить электрику. Или может нужно изменить открывание ворот внутрь, что бы не зауживать проем? Может будут какие то рекомендации, пока все это в таком виде, и можно что то подправить. Посилання на коментар Поділитися на інших сайтах More sharing options...
FLASH Опубліковано: 25 жовтня 2011 Поділитись Опубліковано: 25 жовтня 2011 Hofmann за 500 евро работают третий год,таская огромные створки, bernal за 250 евро одни проблемы, только створки собачей будки открывать. Вывод- не экономьте. Посилання на коментар Поділитися на інших сайтах More sharing options...
Рекомендовані повідомлення
Створіть акаунт або увійдіть у нього для коментування
Ви маєте бути користувачем, щоб залишити коментар
Створити акаунт
Зареєструйтеся для отримання акаунта. Це просто!
Зареєструвати акаунтУвійти
Вже зареєстровані? Увійдіть тут.
Увійти зараз