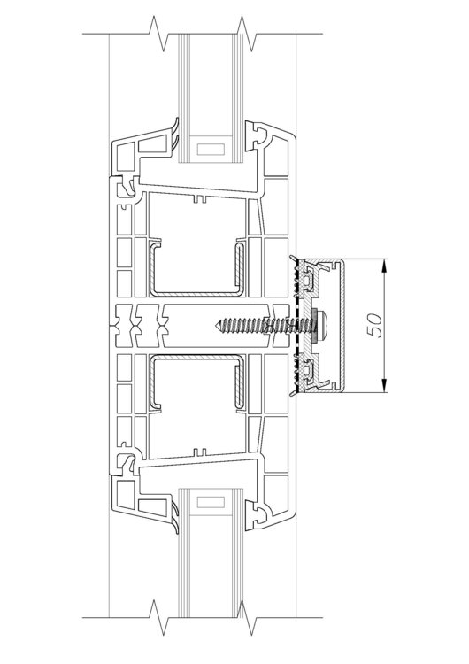
Ruslan R Опубліковано: 31 серпня 2012 Поділитись Опубліковано: 31 серпня 2012 Вот так нужно сделать чтобы устранить течь (см. узел). Использованы бутиловая лента шириной 50мм, прижимная алюминиевая планка и декоративная алюминиевая планка. Но вероятность того что треснет ПВХ профиль остается актуальной проблемой. 2 Посилання на коментар Поділитися на інших сайтах More sharing options...
Ruslan R Опубліковано: 31 серпня 2012 Поділитись Опубліковано: 31 серпня 2012 Перепитав в німців чи можна робити такий вертикальний стик через NP011 - ждемс відповідь. Вы хотели сказать горизонтальный. Посилання на коментар Поділитися на інших сайтах More sharing options...
ko&ko Опубліковано: 31 серпня 2012 Поділитись Опубліковано: 31 серпня 2012 Вот так нужно сделать чтобы устранить течь (см. узел). Использованы бутиловая лента шириной 50мм, прижимная алюминиевая планка и декоративная алюминиевая планка. Но вероятность того что треснет ПВХ профиль остается актуальной проблемой. Ни фига себе, вы Ruslan R запроектировали! +200 и с меня еще один ящик пива. Это уже седьмой ящик моего долга. Пвх не треснет, в случае сверления отверстия меньшего диаметра, перед закручиванием шурупа. Но выход из ситуации таки не перЭвершанный Мое почтение милейший. С вашего позволения, скопирую для себя этот узел? Посилання на коментар Поділитися на інших сайтах More sharing options...
Ruslan R Опубліковано: 31 серпня 2012 Поділитись Опубліковано: 31 серпня 2012 Пвх не треснет, в случае сверления отверстия меньшего диаметра, перед закручиванием шурупа. Я не про ту причину треска говорю. Понятно что от прикручивания прижимной планки не треснет. Может треснуть от того что конструкция скручена из нескольких конструкций (установлены одна на одну) - т.е. нет линейного температурного расширения нижних конструкций, некуда рисширятся нижней конструкции. Посилання на коментар Поділитися на інших сайтах More sharing options...
ko&ko Опубліковано: 31 серпня 2012 Поділитись Опубліковано: 31 серпня 2012 Я не про ту причину треска говорю. Понятно что от прикручивания прижимной планки не треснет. Может треснуть от того что конструкция скручена из нескольких конструкций (установлены одна на одну) - т.е. нет линейного температурного расширения нижних конструкций, некуда рисширятся нижней конструкции. Ну да, здесь уже ничего не поделаешь. Вот мне не понять, неужели на такой конструкции, стоимость статики, так сильно повлияла бы на общую стоимость заказа? Или это ошибка(жадность) манагера? Посилання на коментар Поділитися на інших сайтах More sharing options...
Ruslan R Опубліковано: 31 серпня 2012 Поділитись Опубліковано: 31 серпня 2012 Или это ошибка(жадность) манагера? Скорее некомпетентность. Добавлено через 3 минуты Перепитав в німців ... - ждемс відповідь. Вы б им фото конструкции в сборе отправили - вот бы они удивились :D 1 Посилання на коментар Поділитися на інших сайтах More sharing options...
Ruslan R Опубліковано: 31 серпня 2012 Поділитись Опубліковано: 31 серпня 2012 Смотрите что нашел в каталоге Рехау 1 Посилання на коментар Поділитися на інших сайтах More sharing options...
wow4yk Опубліковано: 1 вересня 2012 Поділитись Опубліковано: 1 вересня 2012 Вы хотели сказать горизонтальный. Так, помилився в пості. Добавлено через 1 минуту Скорее некомпетентность. Такий же висновок зробив для себе. Вы б им фото конструкции в сборе отправили - вот бы они удивились :D Не хочеться позорити Україну... Добавлено через 1 минуту Смотрите что нашел в каталоге Рехау Застереження і симптоми кажись "в десятку". Але в мому випадку(профілю) є одне но. Я незнаю хто саме ламінує профіль, але якщо глянете на фото стику то побачете що зовнішня стінка цього зєднувача NP011 також ламінована! Посилання на коментар Поділитися на інших сайтах More sharing options...
Ruslan R Опубліковано: 1 вересня 2012 Поділитись Опубліковано: 1 вересня 2012 Застереження і симптоми кажись "в десятку". Але в мому випадку(профілю) є одне но. Я незнаю хто саме ламінує профіль, але якщо глянете на фото стику то побачете що зовнішня стінка цього зєднувача NP011 також ламінована! И снова вы суть не поняли. Всчитайтесь внимамательно и вдумчиво. Соединитель NP011 использовать в качестве соединителя в ламинированных профилях - не рекомендуется (это в качестве вертикального соединителя не рекомендуется, а в качестве горизонтального так тем более). А не рекомендуется потому что при нагревании от солнца он деформируется и образуются щели... Посилання на коментар Поділитися на інших сайтах More sharing options...
wow4yk Опубліковано: 1 вересня 2012 Поділитись Опубліковано: 1 вересня 2012 И снова вы суть не поняли. Всчитайтесь внимамательно и вдумчиво. Соединитель NP011 использовать в качестве соединителя в ламинированных профилях - не рекомендуется (это в качестве вертикального соединителя не рекомендуется, а в качестве горизонтального так тем более). А не рекомендуется потому что при нагревании от солнца он деформируется и образуются щели... Та суть я зрозумів, але ви не зрозуміли мого зауваження. В наведеному прикладі для схожого зєднувача рехау сказано "применять только с.. белого цвета" - тобто прямо заборонено використання з ламінованими рофілями. Якщо провести аналогію до мого зєднувача, і зробити аналогічне припущення про заборону, то тоді в мене виникає питання "якщо профіль ламінує виробник профілю, то чому він ламінує і цей зєднувач, адже з ламінованими профілями його використовувати неможна ?" вот в чом вопрос... Посилання на коментар Поділитися на інших сайтах More sharing options...
Ruslan R Опубліковано: 1 вересня 2012 Поділитись Опубліковано: 1 вересня 2012 Якщо провести аналогію до мого зєднувача, і зробити аналогічне припущення про заборону, то тоді в мене виникає питання "якщо профіль ламінує виробник профілю, то чому він ламінує і цей зєднувач, адже з ламінованими профілями його використовувати неможна ?" вот в чом вопрос... А кто сказал что профиль ламинирует производитель профиля? Обычно это делается так: покупается белый ПВХ профиль и ламинируется здесь (а у нас заламинируют все что не дадите :D). Это намного дешевле чем покупать ламинированный профиль за границей. Первая ламинация профиля в Украине появилась более 10 лет назад. Добавлено через 12 минут Не много ли я разговорился - всю кантору попалил...:D Ну такому заказчику - грех правду не сказать. Посилання на коментар Поділитися на інших сайтах More sharing options...
wow4yk Опубліковано: 1 вересня 2012 Поділитись Опубліковано: 1 вересня 2012 А кто сказал что профиль ламинирует производитель профиля? Обычно это делается так: покупается белый ПВХ профиль и ламинируется здесь (а у нас заламинируют все что не дадите ). Это намного дешевле чем покупать ламинированный профиль за границей. Первая ламинация профиля в Украине появилась более 10 лет назад. Ну про те що профіль ламінувати у нас вміють то я вкурсі. Тому у свому запитанні і говорю "якщо". Незнаю де точно вироблений сам профіль (німеччина, польша, білорусія...), але пригадую таку річ - коли конструкція ще була в розібраному стані, то я бачив не тільки ламінацію на білому профілі, але і коричневий пластик місцями, непомню де саме. Чомусь така деталь відклалась в памяті. Посилання на коментар Поділитися на інших сайтах More sharing options...
ko&ko Опубліковано: 2 вересня 2012 Поділитись Опубліковано: 2 вересня 2012 А кто сказал что профиль ламинирует производитель профиля? Обычно это делается так: покупается белый ПВХ профиль и ламинируется здесь (а у нас заламинируют все что не дадите :D). Это намного дешевле чем покупать ламинированный профиль за границей. Первая ламинация профиля в Украине появилась более 10 лет назад. А в чем собственно разница в технологии, между ламинацией на Украине и в Европе? Или Вы думаете, что там экструдия ламинированная? Также берется чушка и ламинируется, обычный профиль и ламинируется. Это аналогично покраске алюминиевого профиля, можно на Украине покрасить а можно заказать из за бугра. Разница будет, только в цене вопроса. 1 Посилання на коментар Поділитися на інших сайтах More sharing options...
Ruslan R Опубліковано: 2 вересня 2012 Поділитись Опубліковано: 2 вересня 2012 А в чем собственно разница в технологии, между ламинацией на Украине и в Европе? А я что сказал что у нас хуже делают? Может даже и лучше. Суть вопроса не в том. Суть в том что этот профиль (соединительный) нельзя использовать в ламинированных конструкциях (см. пост №182 данной темы). Посилання на коментар Поділитися на інших сайтах More sharing options...
star_a Опубліковано: 3 вересня 2012 Поділитись Опубліковано: 3 вересня 2012 . Суть в том что этот профиль (соединительный) нельзя использовать в ламинированных конструкциях . А маркером пройтись можно? Или есть ещё какие препятствия? Посилання на коментар Поділитися на інших сайтах More sharing options...
Ruslan R Опубліковано: 3 вересня 2012 Поділитись Опубліковано: 3 вересня 2012 А маркером пройтись можно? Или есть ещё какие препятствия? Главное препятствие - см. пост №182 данной темы Посилання на коментар Поділитися на інших сайтах More sharing options...
Южанка Опубліковано: 6 вересня 2012 Поділитись Опубліковано: 6 вересня 2012 Я весной уже спрашивала, но вопрос так и остался для меня не понятным. Как моют глухие большие окна на 2м этаже? Возможно ли обойтись без лесов или вызова сторонних услуг? Посилання на коментар Поділитися на інших сайтах More sharing options...
Алік Опубліковано: 6 вересня 2012 Поділитись Опубліковано: 6 вересня 2012 Можно, если добавить створки. Т.н. "глухие" окна - это не дань повальной бедности населения. Посилання на коментар Поділитися на інших сайтах More sharing options...
Валерий Валентинович Опубліковано: 6 вересня 2012 Поділитись Опубліковано: 6 вересня 2012 Т.н. "глухие" окна - это не дань повальной бедности населения. +пицот Это не дальновидность и не предусмотрительность манагера вместе с замерщиком. Если не сказать более грубо. Посилання на коментар Поділитися на інших сайтах More sharing options...
star_a Опубліковано: 6 вересня 2012 Поділитись Опубліковано: 6 вересня 2012 +пицот Это не дальновидность и не предусмотрительность манагера вместе с замерщиком. Если не сказать более грубо. +1000 Простой расказ менеджера клиенту как правило снимает вопрос голых глухарей. Цена вопроса исчезает от затрат будущих периодов. 1 Посилання на коментар Поділитися на інших сайтах More sharing options...
Валерий Валентинович Опубліковано: 6 вересня 2012 Поділитись Опубліковано: 6 вересня 2012 +1000 Простой расказ менеджера клиенту как правило снимает вопрос голых глухарей. Цена вопроса исчезает от затрат будущих периодов. Кстати, не подумал. Если муж "рукастый", то может распакетить/помыть/запакетить "глухарь". Но может и разбить, если "глухарь" большой и тяжелый. 1 Посилання на коментар Поділитися на інших сайтах More sharing options...
star_a Опубліковано: 6 вересня 2012 Поділитись Опубліковано: 6 вересня 2012 Кстати, не подумал. Если муж "рукастый", то может распакетить/помыть/запакетить "глухарь". Гипотетически да))) Но вопрос размеров и рисков - поцарапать штапик, треснуть замок на штапике, ( помимо треснуть пакет при демонтаже). Думаю даже мужу монтажнику "лениво" было бы проделывать данную процедуру. Посилання на коментар Поділитися на інших сайтах More sharing options...
Южанка Опубліковано: 6 вересня 2012 Поділитись Опубліковано: 6 вересня 2012 У нас несколько окон большие и косые, то есть сделать их открывающимися не просто. Например, ленточное косое окно. Одну створку (меньшую) - да, но целиком открывающееся окно не получится, там есть ряд ограничений, плюс такие огромные створки (1,20 х 3м) не реальны в использовании. Посилання на коментар Поділитися на інших сайтах More sharing options...
Валерий Валентинович Опубліковано: 6 вересня 2012 Поділитись Опубліковано: 6 вересня 2012 такие огромные створки (1,20 х 3м) Такие большие, да ещё и треугольные глухари самому, без специалиста, не перепакетить. Ваш "глухарь" будет весить 72кг - если он однокамерный и 108кг, если двухкамерный. При условии, что там все стёкла 4мм. Посилання на коментар Поділитися на інших сайтах More sharing options...
Алік Опубліковано: 6 вересня 2012 Поділитись Опубліковано: 6 вересня 2012 У нас несколько окон большие и косые, то есть сделать их открывающимися не просто. Конечно. Вообще-то архитектор должен был бы проконсультироваться с оконщиками по поводу воплощения полёта его мысли. Посилання на коментар Поділитися на інших сайтах More sharing options...
Рекомендовані повідомлення
Створіть акаунт або увійдіть у нього для коментування
Ви маєте бути користувачем, щоб залишити коментар
Створити акаунт
Зареєструйтеся для отримання акаунта. Це просто!
Зареєструвати акаунтУвійти
Вже зареєстровані? Увійдіть тут.
Увійти зараз