andronkl Опубліковано: 16 січня 2014 Поділитись Опубліковано: 16 січня 2014 вот как-то так ну если вынуть трубу остаётся шахта 150 на 250 .Какой выход? Вставлять овальную или прямоугольную большего размера ,есть ли они такие? А может оставить как есть? Посилання на коментар Поділитися на інших сайтах More sharing options...
Oleg9293 Опубліковано: 16 січня 2014 Поділитись Опубліковано: 16 січня 2014 вот как-то так [ATTACH]333901[/ATTACH] ну если вынуть трубу остаётся шахта 150 на 250 .Какой выход? Вставлять овальную или прямоугольную большего размера ,есть ли они такие? А может оставить как есть? Лучше вставить овальную или прямоугольную,что б не зависить от погодных условий на улце.Это дровянной котёл?Дело в том,что если даже установить дымосос,то его стоимость даже без автоматики перекроет стоимость 7-ми метровой трубы.И самое главное,что он устанавливается на котлы где t° выходящих дымогазов не прывышает отметку 350°С.Иначе деформируются лопасти. Посилання на коментар Поділитися на інших сайтах More sharing options...
Crazy Опубліковано: 16 січня 2014 Поділитись Опубліковано: 16 січня 2014 остаётся шахта 150 на 250 .Какой выход? У меня кирпичный дымоход 130х250 загильзован 160 трубой. Общая высота метров 10(?) - котел 24 кВт - без проблем. Вы в свою можете и 180 вставить. Ну и трубу сделать повыше - выйти из кирпичного дымохода утепленной трубой на пару метров. Посилання на коментар Поділитися на інших сайтах More sharing options...
andronkl Опубліковано: 16 січня 2014 Поділитись Опубліковано: 16 січня 2014 У меня кирпичный дымоход 130х250 загильзован 160 трубой. Общая высота метров 10(?) - котел 24 кВт - без проблем. Вы в свою можете и 180 вставить. Ну и трубу сделать повыше - выйти из кирпичного дымохода утепленной трубой на пару метров. Вставить то я могу ,но как ,если ширина дымохода 150. Не пойму какая у вас труба, круглая овальная или прямоугольная. Посилання на коментар Поділитися на інших сайтах More sharing options...
Crazy Опубліковано: 16 січня 2014 Поділитись Опубліковано: 16 січня 2014 какая у вас труба Обычная круглая 160 труба слегка сжатая прекрасно входит :D в прямоугольный дымоход 130х250 - не надо ничего специально заказывать. Посилання на коментар Поділитися на інших сайтах More sharing options...
SON Опубліковано: 16 січня 2014 Поділитись Опубліковано: 16 січня 2014 А может оставить как есть? Если это внутренняя стенка и стадия строительства как на фото - то вполне можно оставить. При проходе перекрытия и кровли делать ППУ или распушку кирпичем. Растворные швы делать аккуратно, внутри канал прошвабровать. Посилання на коментар Поділитися на інших сайтах More sharing options...
s_fly Опубліковано: 12 травня 2014 Поділитись Опубліковано: 12 травня 2014 Доброго времени суток! Нужна консультация по правильной гильзовке дымохода для ТТ котла. Гильзую главным образом из-за неправильно выполненного дымохода (использовался пустотелый кирпич). Натолкнул на правильный путь ув. SON. Итак. Сечение дымохода теоретическое - 250*250. Практическое немного меньше за счет внутренней мазня-штукатурке ))) До чердака дымоход идет внутри дома. На чердаке одна стена является внутренней, остальные в планах утеплить 5 см. базальтовой ватой. И далее не утепленного дымохода еще около 140 см. Котел планирую не более 25 кВт. Общая высота дымохода - около 11м. Вопросы. 1. Что даст (и нужно ли) применять сендвич-трубу? 2. Как понимаю, в моем случае достаточно дымохода внутреннего диаметра 16 см? 3. Уточните, пожалуйста, какую марку стали нужно использовать для дымохода и может порекомендуйте производителя чтоб марка была честная. 4. Дымоход должен заканчиваться снизу дренажем? Спасибо! Посилання на коментар Поділитися на інших сайтах More sharing options...
SON Опубліковано: 12 травня 2014 Поділитись Опубліковано: 12 травня 2014 Гильзую главным образом из-за неправильно выполненного дымохода (использовался пустотелый кирпич). . 1. Что даст (и нужно ли) применять сендвич-трубу? Достаточно одноконтурной трубы. В "холодной" зоне (над кровлей) можно поставить сэндвич. 2. Как понимаю, в моем случае достаточно дымохода внутреннего диаметра 16 см? Вполне, причем под любой вид топлива. 3. Уточните, пожалуйста, какую марку стали нужно использовать для дымохода и может порекомендуйте производителя чтоб марка была честная. Это к продавцам, у кого совести больше. :D 4. Дымоход должен заканчиваться снизу дренажем? Зависит от теплогенератора. Если с режимом тления - то да. 1 Посилання на коментар Поділитися на інших сайтах More sharing options...
Сергей 31 Опубліковано: 12 травня 2014 Поділитись Опубліковано: 12 травня 2014 Вопросы. 1. Что даст (и нужно ли) применять сендвич-трубу? 2. Как понимаю, в моем случае достаточно дымохода внутреннего диаметра 16 см? 3. Уточните, пожалуйста, какую марку стали нужно использовать для дымохода и может порекомендуйте производителя чтоб марка была честная. 4. Дымоход должен заканчиваться снизу дренажем? 1. Необязательно. 2. Да, может и 150 мм хватит. 3. Кислотоустойчивую минимум 0.7 мм. 4. Да. 1 Посилання на коментар Поділитися на інших сайтах More sharing options...
s_fly Опубліковано: 13 травня 2014 Поділитись Опубліковано: 13 травня 2014 (змінено) Спасибо. Ситуация почти ясная Еще несколько моментов: 1. Достаточно ли будет для крепления к стене использовать хомуты стеновые каждые 3-4м? (пока есть возможность вскрыть в некоторых местах одну стенку дымохода). Снизу будет нормальная опора. Добавлено через 16 минут 2. На некоторых ТТ котлах 25 кВт выход дымохода больше 160мм. Это проблема? Змінено 13 травня 2014 користувачем s_fly Посилання на коментар Поділитися на інших сайтах More sharing options...
Сергей 31 Опубліковано: 13 травня 2014 Поділитись Опубліковано: 13 травня 2014 Еще несколько моментов: 1. Труба при нагреве играет, это нужно учитывать при ее креплении. Существует изделие под названием "окончание дымохода". 2. Выбирайте котел с диаметром дымохода который Вам подходит. 1 Посилання на коментар Поділитися на інших сайтах More sharing options...
s_fly Опубліковано: 16 травня 2014 Поділитись Опубліковано: 16 травня 2014 2. Выбирайте котел с диаметром дымохода который Вам подходит. Совет хороший, но, блин, мне кажется что-бы совсем правильно - нужно наоборот :D Но с этим проблема (какой котел будет пока совсем не знаю) Просто на это можно посмотреть с другой стороны: есть котлы и на 40 кВт с дымоходом 160 мм, тогда не понятно, зачем некоторые производители делают 25 кВт с 180 мм? И еще момент. Общеобразовательный. Почему нельзя уменьшать диаметр дымохода относительно выхода котла? Я не имею ввиду ссылки на ГОСТы и правила, а так, физически? Ведь шибера ставить можно. Посилання на коментар Поділитися на інших сайтах More sharing options...
SON Опубліковано: 16 травня 2014 Поділитись Опубліковано: 16 травня 2014 Почему нельзя уменьшать диаметр дымохода относительно выхода котла? Я не имею ввиду ссылки на ГОСТы и правила, а так, физически? Ведь шибера ставить можно. Дым будет валить в хату. :D Шиберами убирают избыточную тягу, если таковая имеется. 1 Посилання на коментар Поділитися на інших сайтах More sharing options...
Сергей 31 Опубліковано: 16 травня 2014 Поділитись Опубліковано: 16 травня 2014 Почему нельзя уменьшать диаметр дымохода относительно выхода котла? Дымоход Т.Т. это тяга, а тяга это нормальная работа котла и его мощность. Уменьшать диаметр дымоходы запрещено, но при этом нельзя уменьшать и высоту. При уменьшении высоты дымохода увеличивается его диаметр. 1 Посилання на коментар Поділитися на інших сайтах More sharing options...
s_fly Опубліковано: 16 травня 2014 Поділитись Опубліковано: 16 травня 2014 Дым будет валить в хату. :D Шиберами убирают избыточную тягу, если таковая имеется. А если есть избыточная тяга (высота дымохода большая) почему нельзя уменьшить сечение дымохода вместо шибера? Дымоход Т.Т. это тяга, а тяга это нормальная работа котла и его мощность. Уменьшать диаметр дымоходы запрещено, но при этом нельзя уменьшать и высоту. При уменьшении высоты дымохода увеличивается его диаметр. Ну а почему при увеличении высоты дымохода нельзя уменьшить диаметр. Вы скажите - правила такие. Но правила пишут не от просто так Короче физика какая-то темная получается :D Посилання на коментар Поділитися на інших сайтах More sharing options...
Сергей 31 Опубліковано: 16 травня 2014 Поділитись Опубліковано: 16 травня 2014 Ну а почему при увеличении высоты дымохода нельзя уменьшить диаметр. Вы скажите - правила такие. Но правила пишут не от просто так. Короче физика какая-то темная получается :D Нормальная физика, можно и так, как вы пишите. Но Вы получите высоту дымохода около 20 м/п. На Выши 40 кВт. не уменьшая диаметра и так нужно около 12 м/п. 2 Посилання на коментар Поділитися на інших сайтах More sharing options...
s_fly Опубліковано: 16 травня 2014 Поділитись Опубліковано: 16 травня 2014 Не-не, у меня 25 кВт Или даже может меньше Посилання на коментар Поділитися на інших сайтах More sharing options...
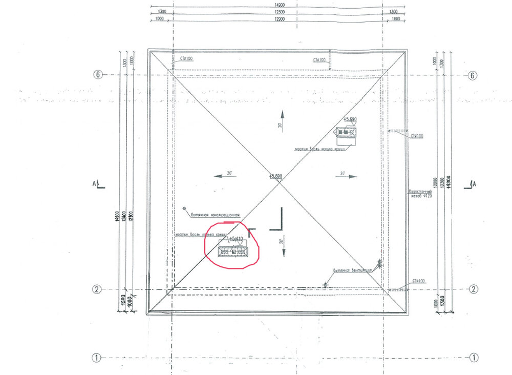
Николаевич Опубліковано: 22 липня 2014 Поділитись Опубліковано: 22 липня 2014 Добрый день. Хорошая тема. Мне нужна консультация по дымоходу. У нас есть очень серьезная проблема с дымоходом для пелетного котла. Конкретнее - несколько раз внутри загоралась сажа. Слава Богу без серьезных последствий. Есть большие сомнения в правильности выбора дымохода и огромное желание исправить ситуацию. Исходные данные. Дом одноэтажный, высота в коньке 5,69 м. Котельная на первом этаже, отметка "0". Котел пеллетный, Костржева Мини-Био, 10 кВт. Труба выложена из кипича, высота 5,49. Выше перекрытия на всю высоту утеплена ЭППС 3 см, и обложена клинкером выше крыши. От самой верхней точки крыши труба отстоит больше чем на 3 метра. Сам дымоход - нержавейка д.150. Наверху утепление минватой, крыза, крышка самой трубы и конус. Я набросал от руки схемку, думаю, понятно. Да, в котельной есть канал приточной вентиляции 140х140 мм. Первый раз возгорание случилось в конце позапрошлого сезона. Я докупал пелеты. В них было немного мелкодисперсной пыли. Как я понял эта пыль, не прогорая, распространилась по дымоходу и воспламенилась. В прошлом сезоне воспламенений было несколько, на всех участках дымохода (хорошо видно по изменению цвета трубы), даже непосредственно у самого котла. У меня есть большие претензии к пеллетам, которые на прошлый сезон купил в Малине, внешне красивые, только темноватые - большая зольность, сумашедший нагар внутри топки, огромное количество шлака, смолянистый налет на окончании дымохода. Но я не верю, что только некачественная пеллета может вызвать такие катастрофические последствия. За прошлый сезон дымоход чистил три раза. Сам, с крыши. По дымоходу производитель котла четких указаний не дает. В технических характеристиках указано только, что тяга должна быть 0,15 - 0,25 мбар. Глядя на диаграммы Шиделя для моего котла, я вообше не понимаю, как можно соотнести мощность 10 кВт и требуемую тягу При любом сечении дымохода. Помогите разобраться, пожалуйста. В общем, работу по усовершенсвованию дымохода предстоят.Есть возможность надставить коаксиал 150/200 на 1 м (больше страшно, упадет от ветра). Эффективная высота дымохода увеличится до ~ 6,3 м . В принципе, за гораздо бОльшие деньги можно увеличить сечение дымохода до 200 мм, переделать его полностью. Но будет ли это эффективным и правильным? Насколько я понял, слишком большое сечение не всегда хорошо. Перед выбором консультировался со специалистом с этого форума, он сказал , что при моих исходных данных дымоход 200 мм избыточен. К сожалению, в фирме, которая ставила и обслуживает котел в вопросах, касаемых дымохода, не очень разбираются. Говорят, что мой дом - первый одноэтажник у них на пути, и у меня у первого такие проблемы. Их вывод - дымоход просто низкий. Ситуация сложная, соответственно букв много, извините.С благодарностью приму грамотные советы и рекомендации. Я прикрепил несколько картинок для понимания. Помогите, пожалуйста. Посилання на коментар Поділитися на інших сайтах More sharing options...
SON Опубліковано: 22 липня 2014 Поділитись Опубліковано: 22 липня 2014 Ситуация сложная, Дымоход по всем правилам. Даже до@баться не к чему. :D Причина сажи - пеллеты или задушенный режим топки котла, т.е. нехватка воздуха. сумашедший нагар внутри топки, 3 Посилання на коментар Поділитися на інших сайтах More sharing options...
Crazy Опубліковано: 22 липня 2014 Поділитись Опубліковано: 22 липня 2014 Добрый день. Хорошая тема. Мне нужна консультация по дымоходу. .... У вас точно не проблема дымохода. Скорее недожиг пеллет - т.е. не правильно настроена подача пеллет/воздуха. Увеличивайте скорость вентилятора, откуда приток воздуха организован? ... За прошлый сезон дымоход чистил три раза. Сам, с крыши. ... Не надо с крыши :D Можно изнутри с котельной с помощью 20 мм ПП труб 2 Посилання на коментар Поділитися на інших сайтах More sharing options...
Николаевич Опубліковано: 22 липня 2014 Поділитись Опубліковано: 22 липня 2014 (змінено) Дымоход по всем правилам. Даже до@баться не к чему. :D Причина сажи - пеллеты или задушенный режим топки котла, т.е. нехватка воздуха. сумашедший нагар внутри топки, Я почему грешу именно на пеллеты. Самые первые, которые купили имели очень много трухи (именно трухи-опилок, не пыли), от которй забивался шнек. Поскольку поставщик отказался их забирать, я всю зиму их пересеивал перед загрузкой. Но топка была относительно чистой. Даже лист белого материала изнутри дверцы, похож на асбест, оставался чистым. Те, которые купил весной были белые, целые, но с мелкой пылью. И через некоторое время первое возгорание. Пеллеты, которые купил на прошлый сезон темные, целые и небольшим количеством пыли. Но топка внутри - ужас. Нагар чудовищный. Режим работы котла был отстроен один раз в момент инсталяции и не менялся. Подача воздуха тоже. Тем более, что горелка работает в переменном режиме, модулирует. Соответсвенно и подача воздуха меняется от максимальной в момент розжига до минимальной, когда котел вышел на режим. Минимальное значение "8". Я думаю %. Потому что во время розжига показывает 100. Вентилятор работает наполнуюю. Этой весной, немного занимался контроллером уменьшал подачу пеллет. Воздух при этом не трогал. Добавлено через 7 минут У вас точно не проблема дымохода. Скорее недожиг пеллет - т.е. не правильно настроена подача пеллет/воздуха. Увеличивайте скорость вентилятора, откуда приток воздуха организован? Приток воздуха с улицы. Вертикальный Z-образный канал внутри стены 140х140. Забор снаружи на высоте ~ 2,5 м (белую решетку видно на фото, слева от окна). Вход в котельную ~30 см на уровнем пола. Снаружи металлическая решетка жалюзийного тика. Изнутри пластиковая с москитной сеткой. Не надо с крыши :D Можно изнутри с котельной с помощью 20 мм ПП труб Нельзя, к сожалению. Ривизия слишком низко над уровнем кирпичного постамента (шахта дымохода не до пола). Купил универсальную щетку и гибкие ручки с резьбой, и то только сверху можно. Этот узел нужно будет переделать. А диаграмму Шиделя не разъясните мне? Что касается достижения тяги в дымоходе 0,15-0,25 бар. И как вы думате, добавить метр дымохода или нет? Поможет это хоть чем-нибудь? Спасибо. Змінено 22 липня 2014 користувачем Николаевич Посилання на коментар Поділитися на інших сайтах More sharing options...
SON Опубліковано: 22 липня 2014 Поділитись Опубліковано: 22 липня 2014 ....грешу именно на пеллеты. Я не шарю в пеллетах, но видимо производитель бадяжит в них много связующего, или клепает их из откровенного мусора. Аналогия с бетоном, чем мельче и пылеватей песок, тем больше нужно цемента. Возьмите на пробу пару мешков проверенных, посмотрите ситуацию, но дымоход явно не при делах. Если котел практически постоянно в режиме тления, то сажа тож гарантирована. Добавлено через 16 минут А диаграмму Шиделя не разъясните мне? Что касается достижения тяги в дымоходе 0,15-0,25 бар. Дымоход с такой тягой еще никто не делал. :D Просто невозможно. Там миллибары или Паскали. 1 мбар=100Па Для бытовых котлов производители рекомендуют порядка 12-18 Па. Ваш дымоход как раз вписывается. И как вы думате, добавить метр дымохода или нет? Поможет это хоть чем-нибудь? Дурная работа и зря выброшенные деньги, результат будет таким же. Лучше найти вменяемого товарища по пеллетникам, попробовать изменить режим работы. 1 Посилання на коментар Поділитися на інших сайтах More sharing options...
Николаевич Опубліковано: 23 липня 2014 Поділитись Опубліковано: 23 липня 2014 Я не шарю в пеллетах, но видимо производитель бадяжит в них много связующего, или клепает их из откровенного мусора. Аналогия с бетоном, чем мельче и пылеватей песок, тем больше нужно цемента. Возьмите на пробу пару мешков проверенных, посмотрите ситуацию, но дымоход явно не при делах. Если котел практически постоянно в режиме тления, то сажа тож гарантирована. Добавлено через 16 минут Дымоход с такой тягой еще никто не делал. :D Просто невозможно. Там миллибары или Паскали. 1 мбар=100Па Для бытовых котлов производители рекомендуют порядка 12-18 Па. Ваш дымоход как раз вписывается. Дурная работа и зря выброшенные деньги, результат будет таким же. Лучше найти вменяемого товарища по пеллетникам, попробовать изменить режим работы. Да, конечно же милибары. Это я ошибся. Посилання на коментар Поділитися на інших сайтах More sharing options...
Crazy Опубліковано: 23 липня 2014 Поділитись Опубліковано: 23 липня 2014 ..... Режим работы котла был отстроен один раз в момент инсталляции и не менялся. Подача воздуха тоже. Тем более, что горелка работает в переменном режиме, модулирует. Соответственно и подача воздуха меняется от максимальной в момент розжига до минимальной, когда котел вышел на режим. Минимальное значение "8". Я думаю %. Потому что во время розжига показывает 100. Вентилятор работает на полную. Этой весной, немного занимался контроллером уменьшал подачу пеллет. Воздух при этом не трогал.... Не увидел, сколько у вас отапливаемой площади. Возможно для ваших объемов котел/горелка слишком большие - поэтому котел работает в придушенном режиме. Надо менять настройки, а не дымоход. Где покупали котел? Посилання на коментар Поділитися на інших сайтах More sharing options...
Николаевич Опубліковано: 23 липня 2014 Поділитись Опубліковано: 23 липня 2014 Не увидел, сколько у вас отапливаемой площади. Возможно для ваших объемов котел/горелка слишком большие - поэтому котел работает в придушенном режиме. Надо менять настройки, а не дымоход. Где покупали котел? Отапливаемой площади 126 м2. По результатам теплотехнических расчетов котел рекомендован 10 кВт. Куплен на 10 кВт здесь, в Украине. Работает на 100% только в очень сильные холода. А так модулирует мощность от 30 до 100%, исходя из набора заданых констант, как-то желаемая температура в помещении, степень утепленности дома, количество и тип контуров отопления и т.п., и одной переменной - показания датчика температуры на улице. Кроме отопления греет воду. Один контур заведен в бойлер 146м л. Посилання на коментар Поділитися на інших сайтах More sharing options...
Рекомендовані повідомлення
Створіть акаунт або увійдіть у нього для коментування
Ви маєте бути користувачем, щоб залишити коментар
Створити акаунт
Зареєструйтеся для отримання акаунта. Це просто!
Зареєструвати акаунтУвійти
Вже зареєстровані? Увійдіть тут.
Увійти зараз