D@redevil Опубліковано: 12 жовтня 2010 Автор Поділитись Опубліковано: 12 жовтня 2010 А можно подробнее на счет лестницы, и куда в очередь становиться? И какой вариант лучше: бетонная лестница, металлический каркас или чисто деревянная? Спасибо! Ну, по-поводу того, какая лестница лучше-вопрос спорный...а-ля "какие женщины красивее" или "какое пиво вкуснее":D дерево я не хотела однозначно, тк любая, даже самая супер-пупер навороченная лестница со временем начинает поскрипывать+дереву нужен периодически уход (я по этой причине паркет тоже ненавижу:D), а это лишняя головная боль..ну и деревянные добротные лестницы также имеют стоимость обогащенного урана(шучу) Металлический каркас-слабо себе представляла как, а главное чем и кто мне будет это все дело облагораживать... Бетон-у меня дом небольшой, помещение для лестницы соответственно тоже, те мне не хотелось там ставить "мамонта", который скушает всю площадь и еще больше усилит ощущение ограниченного пространства+не хочу нагружать несущие конструкции дома такой махиной Выбрала для себя компромис-лестница на косоурах системы "металло-бетонная пасочка" (-это я так ее обозвала)с перилами из нержавейки (это отдельно буду заказывать), снизу штукатурка декоративная а-ля мрамор, ступени скорее всего будут покрыты декотайлом(еще думаю). Об этих лестницах я прочитала у нас на форуме в БС в теме "лестницы-альтернатива Петру"(не могу найти ссылку). Месяц ждала пока у ребят будет время приехать произвести замеры,тк у них масса заказов, а вот теперь ожидаю своей очереди на начало работ и закупаю нужные материалы по списку, который получила...конечно, я думала, что получу лестницу гооораздо быстрее, но, надеюсь, что жду не зря и не пожалею о своем выборе 1 Посилання на коментар Поділитися на інших сайтах More sharing options...
D@redevil Опубліковано: 12 жовтня 2010 Автор Поділитись Опубліковано: 12 жовтня 2010 Во, нашла stroimdom.com.ua/forum/showthread.php?t=18666 Посилання на коментар Поділитися на інших сайтах More sharing options...
Nat Опубліковано: 12 жовтня 2010 Поділитись Опубліковано: 12 жовтня 2010 Об этих лестницах я прочитала у нас на форуме в БС в теме "лестницы-альтернатива Петру"(не могу найти ссылку). Эта ... www.stroimdom.com.ua/forum/showthread.php?p=263574? Посилання на коментар Поділитися на інших сайтах More sharing options...
valya_bes Опубліковано: 12 жовтня 2010 Поділитись Опубліковано: 12 жовтня 2010 Во, нашла stroimdom.com.ua/forum/showthread.php?t=18666 А можно контакты ребят, чтобы меня тоже в очередь поставили. Спасибо! Посилання на коментар Поділитися на інших сайтах More sharing options...
valya_bes Опубліковано: 12 жовтня 2010 Поділитись Опубліковано: 12 жовтня 2010 А можно контакты ребят, чтобы меня тоже в очередь поставили. Спасибо! Так залюбовалась фотографиями, что телефончик не увидела. Так что отставить, есть номер. Позвоню. Может на весну попаду в очередь. Спасибо! Посилання на коментар Поділитися на інших сайтах More sharing options...
D@redevil Опубліковано: 12 жовтня 2010 Автор Поділитись Опубліковано: 12 жовтня 2010 Так залюбовалась фотографиями, что телефончик не увидела. Так что отставить, есть номер. Позвоню. Может на весну попаду в очередь. Спасибо! в вс меня записали ориентировочно на 15е декабря так что делайте выводы об очереди. Кстати, по словам ребят 80% заказчиков не из форума, как я думала изначально...а еще они жаловались, что народ с форума массово их дергает "приезжайте, померяйте , посчитайте" а потом "мы будем думать". Возможно, потому, что все, как и я, ориентировались на цену "3000грн за метр подъема"(с), которая была озвучена в БС в 2009 году и не были готовы на сумму в 2 раза большую+материалы:D не любит почему-то народ на форуме особо писать кому че и сколько стоило, поэтому тема в БС списке есть, а цен актуальных нет- я там чуть дописала,чтобы снять ажиотаж "ураааа, хорошие лестницы нашару"..поэтому имейте ввиду;) ПС моя лестница (на косоурах,которая считается простой, потолки 3,15) по работе затянула на 15600грн+материалы. пока знаю цену металла только и его доставки (если округлить 2000грн), еще в списке всякие метизы, шпильки, электроды, фанера, лампочки, цемент и гранотсев (по 2м последним необходимое кол-во станет ясно уже после сварки каркаса), те дай Бог ,чтобы с доставкой все это впихнуть еще в 2-3 тыс грн ну и к лестнице этой еще нужны будут перила, ступени, штукатурка декоративная...так что в целом будет не бесплатное удовольствие 2 Посилання на коментар Поділитися на інших сайтах More sharing options...
Alexander Pryakha Опубліковано: 12 жовтня 2010 Поділитись Опубліковано: 12 жовтня 2010 ПС моя лестница (на косоурах,которая считается простой, потолки 3,15) по работе затянула на 15600грн+материалы. пока знаю цену металла только и его доставки (если округлить 2000грн), еще в списке всякие метизы, шпильки, электроды, фанера, лампочки, цемент и гранотсев (по 2м последним необходимое кол-во станет ясно уже после сварки каркаса), те дай Бог ,чтобы с доставкой все это впихнуть еще в 2-3 тыс грн ну и к лестнице этой еще нужны будут перила, ступени, штукатурка декоративная...так что в целом будет не бесплатное удовольствие Наталья, Работа по устройству лестничного марша высотой в этаж стоит 15600грн? Смонитровать 5 швеллеров (которые вы привезете),выполнить сварочные узлы, привязать снизу фанеру, установить арм. сетку, прикрутить шуруповертом 20 досочек для опалубки - и залить это все бетоном - это столько стоит???. Очень дорого просят и пытаются вас "нагреть". Еще и метизы они вас купить заставляют - ну вообще, охренели мастера. Мне мои строители -приднестровцы - когда лили перекрытие, лестницу подъем 3000мм (8м2) -бетонную по мет.косоурам за 500$ сделали (2 марша и площадка). Соседу (я проект дома илестницы делал) - тоже гдето за столько же денег лестницу собрали -делали хлопцы с нашего села ( вы ж Андрюшу знаете). Облицовка лестницы - еще 500$ (но у меня там, где-то месяц корячились) Итого работа 1K$ + материалы. Фото моей лестницы тут. Вобщем подумайте - если что, подъезжайте в гости, глянуть те лестницы (обе), у соседа - в бетоне, у меня облицованную. А по облицовке - подумайте може декоративным бетоном или керамогранитом облицеваться. Лестница как выглядит? Проект делали? 3 Посилання на коментар Поділитися на інших сайтах More sharing options...
murava Опубліковано: 12 жовтня 2010 Поділитись Опубліковано: 12 жовтня 2010 ....осуществимо ли такое?... Вполне осуществимо. 1 Посилання на коментар Поділитися на інших сайтах More sharing options...
Crash m.d. Опубліковано: 12 жовтня 2010 Поділитись Опубліковано: 12 жовтня 2010 ПС моя лестница (на косоурах,которая считается простой, потолки 3,15) по работе затянула на 15600грн+материалы..так что в целом будет не бесплатное удовольствие Выходит я еще легко отскочил- мне сделали лестницу из бетона с забежными ступенями на высоту 3.25 за 8000 грн. Посилання на коментар Поділитися на інших сайтах More sharing options...
D@redevil Опубліковано: 12 жовтня 2010 Автор Поділитись Опубліковано: 12 жовтня 2010 Наталья, Работа по устройству лестничного марша высотой в этаж стоит 15600грн? Смонитровать 5 швеллеров (которые вы привезете),выполнить сварочные узлы, привязать снизу фанеру, установить арм. сетку, прикрутить шуруповертом 20 досочек для опалубки - и залить это все бетоном - это столько стоит???. ...Фото моей лестницы тут. Вобщем подумайте - если что, подъезжайте в гости, глянуть те лестницы (обе), у соседа - в бетоне, у меня облицованную. А по облицовке - подумайте може декоративным бетоном или керамогранитом облицеваться. Лестница как выглядит? Проект делали? Саша, я проект лестницы не делала...понимаю,что глупо,но доверилась полностью рекомендациям форумчан,которые получили эти мастера+фотографиям их работ на форуме. Швелера в конструкции нет,что мне лично странно,тк я думала,что он и есть опорой для лестницы на косоурах-буду завтра звонить уточнять,тк мне этот факт не ясен. Я просто описала свои "хочу": не крутая (детская наверху...хоть деток и нет пока,но я уже боюсь за то,как они будут по лестнице бегать...да и я Гастело тот еще:D),не винтовая,не тяжеловестная (чтобы выглядело, не как бетон),с открытым маршем..поом посмотрела их альбом и ткнула пальцем "такую" с привязкой к моему помещению. Я спросила прорисуют ли мне лестницу-сказали,что с комп. технологиями они не знакомы и рисовать не умеют...наверное,я легкомысленно поступаю и играю в рулетку,делая таким образом лестницу Ваша лестница хороша,но у меня такая не станет никак ни конструктивно ни эстетически-мне надо откртое что-то и невесомое А санузел по Вашей ссылке-просто ОГОНЬ,особенно умывальник- я тоже такой хочу:D По облицовке у меня есть масса времени подумать,тк ее буду делать уже после всех внутренних работ,а движется пока все медленно Посилання на коментар Поділитися на інших сайтах More sharing options...
D@redevil Опубліковано: 12 жовтня 2010 Автор Поділитись Опубліковано: 12 жовтня 2010 Выходит я еще легко отскочил- мне сделали лестницу из бетона с забежными ступенями на высоту 3.25 за 8000 грн. Ну тут конструкция не совсем бетон, а нечто среднее между метал-каркасом и бетоном,потому я и обозвала "пасочка наливная"...но да, я расчитывала на 10 тыс грн и с материалами:D Потому и отметилась в БС с ориентирами цен,чтобы люди особо не питали иллюзий "шара пришла" Посилання на коментар Поділитися на інших сайтах More sharing options...
Nat Опубліковано: 12 жовтня 2010 Поділитись Опубліковано: 12 жовтня 2010 Теперь понятно, почему двухэтажный дом - это дорогое удовольствие ... Одна лестница ... чего стоит! Посилання на коментар Поділитися на інших сайтах More sharing options...
sashanik Опубліковано: 12 жовтня 2010 Поділитись Опубліковано: 12 жовтня 2010 Я пыталась вашу бригаду привлечь, но опоздала, опередили! А теперь еще и забор, конечно, вперед пойдет Вроде как после моей коробки у Вани по плану был Ваш забор,но уже прошло почти 2мес. Посилання на коментар Поділитися на інших сайтах More sharing options...
D@redevil Опубліковано: 13 жовтня 2010 Автор Поділитись Опубліковано: 13 жовтня 2010 (змінено) Вроде как после моей коробки у Вани по плану был Ваш забор,но уже прошло почти 2мес. Потому, что Ваня взял еще одного заказчика с форума на коробку, тк это прибыльнее моего забора Почему я и злюсь ив ысказалась ему в эти выходные Совет всем: до тех пор, пока у вас не закончены ВСЕ этапы стройки-НИКОМУ не рекомендуйте своих бригад, тк рискуете остаться без рабочих:D ПС ладно еще, когда я ожидала очереди из-за задержки стройки лучшего друга-это было СОВСЕМ не напряжно, но мой альтруизм не так огромен и любовь к незнакомому ближнему не перевешивает личных интересов потому и разозлилась на Ваню Змінено 13 жовтня 2010 користувачем D@redevil 1 Посилання на коментар Поділитися на інших сайтах More sharing options...
Chiara Опубліковано: 13 жовтня 2010 Поділитись Опубліковано: 13 жовтня 2010 Саша, я проект лестницы не делала...понимаю,что глупо,но доверилась полностью рекомендациям форумчан,которые получили эти мастера+фотографиям их работ на форуме. При всем уважении к А.Пряхе;), мы говорим об абсолютно разных лестницах. Я не видела, в какую лестницу их ткнула D@redevil, но они делали и мне лестницу, уже не по 3 тыс грн метр подъема, у меня 3,6 получилось около 2,5К долларов.Но я не жалею ни об одном потраченном центе. Внутри каркас, как у эйфелевой башни. Если лестница выходит в комнату - гостинную, а не постирочную;), не прячется в коридорах - она обязана быть красивой и легкой, и "артистичной" ИМХО 1 Посилання на коментар Поділитися на інших сайтах More sharing options...
D@redevil Опубліковано: 13 жовтня 2010 Автор Поділитись Опубліковано: 13 жовтня 2010 При всем уважении к А.Пряхе;), мы говорим об абсолютно разных лестницах. Я не видела, в какую лестницу их ткнула D@redevil, но они делали и мне лестницу, уже не по 3 тыс грн метр подъема, у меня 3,6 получилось около 2,5К долларов.Но я не жалею ни об одном потраченном центе. Внутри каркас, как у эйфелевой башни. Если лестница выходит в комнату - гостинную, а не постирочную;), не прячется в коридорах - она обязана быть красивой и легкой, и "артистичной" ИМХО ну да, это другая конструкция, не бетонная, а пасочка, как я сказала выше не знаю, как по-науке называется... именно посмотрев Ваши лестницы, я и определилась, у кого заказывать;) да и Сергей мне внушил доверие чисто по-человечески: приятный, думающий парень. (для меня личностный фактор один из главенствующих в жизни, считаю это женской интуицией и слава Богу она меня редко подводит, ттт). Сегодня с ним созванивалась, уточняла нужен ли швелер,он ответил, что нет, тк они со швеллером вобще не работают...теперь буду мучаться любопытством аж до декабря на тему "как же сделают сам косоур", те опорную конструкцию. Ваша лестница была мне озвучена, как "это дорогая и сложная, у вас не станет":D тем не менее, выбранная мной, по словам Сергея "одна из самых простых", но цена на работу 15600грн. Видимо, увеличились расценки;) Хотя, меня устраивает, если результат будет аналогичен фото8-) есть вещи, на которых не стоит экономить и лестница-одна из них. Целью моего поста здесь и в БС было просто отсечь ненужное дерганье мастеров на "померять", если человек не готов к таким суммам затрат. На кол-ве заказов ребят это никак не отразится, тк очередь, что к Сергею. что к Анатолию на месяца вперед и она НЕ из форума Скажите, а Вы чем планируете делать облицовку? перила? ПС надеюсь, что к НГ выставлю на показ свою артистичную и красивую лестницу Посилання на коментар Поділитися на інших сайтах More sharing options...
Chiara Опубліковано: 13 жовтня 2010 Поділитись Опубліковано: 13 жовтня 2010 Сегодня с ним созванивалась, уточняла нужен ли швелер,он ответил, что нет, тк они со швеллером вобще не работают...теперь буду мучаться любопытством аж до декабря на тему "как же сделают сам косоур", те опорную конструкцию. Там как раз такая конструкция ажурная, в ссылке БС кто-то ее выложил, я не выкладывала, т.к ребята попросили этого не делать. с моей т.зр. НЕ профессионала, она как раз и выполняет задачу самонесущей конструкции. По ней уже можно будет бегать.;) Скажите, а Вы чем планируете делать облицовку? перила?перила будут кованными, или литыми. Ступени (когда-нибудь;)) - мраморными, сама лестница (бетон) гладко оштукатуренной (что-то Корни говорил про "пластмассовую" штукатурку8-)) и белой. Вы не разочаруетесь в своей лестнице! Все мои друзья и просто гости - обожают черновой вариант моей лестницы и терпеливо ждут чистового;) 1 Посилання на коментар Поділитися на інших сайтах More sharing options...
D@redevil Опубліковано: 13 жовтня 2010 Автор Поділитись Опубліковано: 13 жовтня 2010 Вы не разочаруетесь в своей лестнице! Все мои друзья и просто гости - обожают черновой вариант моей лестницы и терпеливо ждут чистового;) Очень на это надеюсь, что и качество и внешний вид и практичность будет на уровне. А я вот перила буду делать из нержавейки (тяготею к минимализму или хай-теку), хотя изначально тоже думала о ковке, но она совсем в мой интерьер "не алё", а вот со ступенями-полный ступор пока. Я о декоративном бетоне думала, но ведь его льют в определенную форму, а у меня каждая ступень будет отличаться от предыдущей и все разной конфигурации, те взять готовые ступени-не выйдет. Про чудо-штукатурку Александра (Korni) наслышана из его темы, мне очень понравилось и взяла себе на заметку-тоже такое хочу Посилання на коментар Поділитися на інших сайтах More sharing options...
D@redevil Опубліковано: 13 жовтня 2010 Автор Поділитись Опубліковано: 13 жовтня 2010 хи-хи, вот я оленьпо ссылке выше в БС есть фото лестницы, которая была взята за основу моей будущей...только у меня будет не винт и более пологая (надеюсь) stroimdom.com.ua/forum/attachment.php?attachmentid=21084&d=1245311436 1 Посилання на коментар Поділитися на інших сайтах More sharing options...
Alexander Pryakha Опубліковано: 13 жовтня 2010 Поділитись Опубліковано: 13 жовтня 2010 (змінено) по ссылке выше в БС есть фото лестницы, которая была взята за основу моей будущей.. .только у меня будет не винт и более пологая (надеюсь) (ссылка устарела) Идея интересная. Делается центральный гнутый косоур. Тут важно обеспечить надежное крепление основания лестницы на фундамент и крепление ее к перекрытию. Косоур можно армировать и заливать бетоном, (или даже не заливать, а накидывать раствор постепенно а можно выполнить другой вариант - стальной (из проката -труба прямоугольная или 2швеллера). Со ступенями -технология возведения понятна. Разрабатывается узел крепления ступени к косоуру. Изготавливается рамка из уголка 40х4 или 50х5, туда вставляем кладочную сетку и бетонируем. Так как ступени имеют разные размеры в плане, то и рамки выполняются соответсвенно геометрии. Получается ступени высотой с уголок (40-50мм), потом оштукатуриваем по мет сетке. Вобщем идея не нова, но лестниц таких встречается не много. То что ув. Chiara себе такую заказала - и не жалеет о потраченных деньгах - это конечно все очень здОрово, но по стоимости работ - я бы поспорил, но не буду. То что у ребят очередь на такие лестницы - значит это востребовано. Наталья, а где можно планировку вашего дома посмотреть и отверстие под лестницу в перекрытии (линейные размеры)? Може что то придумаю по размещению. п.с. - по тому согласованию, шо я у вас спрашивал -вопрос сегодня решил,полностью,.. легко и быстро, и даже дешевле в два раза, чем предполагалось.:drinks: Внутри каркас, как у эйфелевой башни. Так там стальной каркас. А не из прутиков арматурных. Если бы там еще фундамент был как у башни - так тогда може надо было еще мастерам и доплатить. Слышал байку от нескольких разных людей - что когда Эйфель еще на не был Эйфелем, он занимался халтурами. Проектировал всякие железяки. Одна из таких его работ, есть и в Украине. Находится творение на острове Джарылгач, возле Скадовска, Херсонсокой обл. (наз. (ссылка устарела) незнаю, може правда, а может - брешуть..сорри за оффтоп. Змінено 13 жовтня 2010 користувачем Alexander Pryakha 2 Посилання на коментар Поділитися на інших сайтах More sharing options...
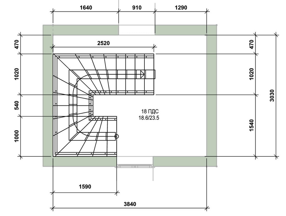
D@redevil Опубліковано: 14 жовтня 2010 Автор Поділитись Опубліковано: 14 жовтня 2010 Александр, спасибо за детальное пояснение технологии, а то меня постоянно мучал вопрос: "ну как же без швеллера-то? На что опора будет?" Кстати, уголков в списке нет Только арматура 12-10-6, но оочень много. Я специально звонила и уточняла весь список, чтобы не получилось, что что-то забыли записать. Я, конечно, гуманитарий, а не инженер, но мне не понятно, как 3 тонны гран-отсева+еще не знаю сколько цемента (скажут позже) могут надежно держаться на арматурном каркасе ?..ну опора в виде швеллера-понятно. Использование уголков-тоже делает в моих глазах конструкцию более массивной и надежной, но их нет...а "пасочка" из арматуры и в ней бетон (те роль косоура на себя берет армированный столб бетона) меня заинтересовала..я не сомневаюсь в ступенях и тд, а вот мучает меня вопрос опоры, те этого самого столба из арматуры, цемента и гран-отсева. Это все вопросы- не по причине недоверия к мастерам, а просто женское любопытство и любознательность:D (уточняю тк в личке получила ряд сообщений, по которым поняла, что люди решили, что я каким-то образом гоню бульку или сомневаюсь в мастерах...видать, совсем я разучилась излагать свои мысли на бумаге) Я очень рада, что у Вас все получилось, притом дешевле и так быстро Хочу и Вам сказать ОГРОМНОЕ спасибо за контакты Григория! Уже договорились с ним на следующую неделю на осмотр и замеры, а также составление всей сметы сантехнических работ...теперь на выходных буду все-таки пытаться выбрать окончательный вариант своего су на втором этаже, а то я, как та обезьянка,- не могу определиться, на каком этаже у меня будет стиральная машина (на улице белье сушить, конечно, хорошо, но портит пейзаж+свистнут в мое отсутствие...на балконе тоже как-то не очень). Планы дома у меня есть на второй странице, но они в плохом разрешении и там ничего толком не видать Но я попыталась зарисовать сама помещение, в котором будет лестница (пардон за такое художество, но я в чертежах совсем не мастер):2,52м это длина проема для лестницы, а 1,02 его ширина. Высота потолков 3,14м (будет еще самовыравнивающаяся стяжка и плитка), толщина перекрытия 0,2м. Буду очень благодарна за помощь и идеи Посилання на коментар Поділитися на інших сайтах More sharing options...
Alexander Pryakha Опубліковано: 14 жовтня 2010 Поділитись Опубліковано: 14 жовтня 2010 (змінено) Попытался нарисовать. Прийдется наверное выкусывать фрагмент перекрытия. Маловат проем. Правильно ли я изобразил ситуацию? А вот тут можно скачать объемную 3д модель, которую можно покрутить с разных сторон. Змінено 14 жовтня 2010 користувачем Alexander Pryakha 1 Посилання на коментар Поділитися на інших сайтах More sharing options...
D@redevil Опубліковано: 15 жовтня 2010 Автор Поділитись Опубліковано: 15 жовтня 2010 Александр, СПАСИБИЩЕ! так здорово-супер! Я теперь хотя бы представляю, как будет выглядеть лестница. Минут 20 крутила ее с разных сторон Класс!! Спасибо! А вот откусить часть перекрытия второго этажа не выйдет, тк верх лестницы выходит на площадку не более метр на метр и с нее 2 двери: прямо с лестницы в детскую, слева от лестницы в спальню, а по правую руку окно, которое смотрит на лоджию, те у меня лестница, как в туннеле и окно лоджии выполняет функцию второго света... площадку эту никак расширить нельзя А почему Вы говорите, что, возможно, нужно расширить проем? Ступени получаются сильно крутыми или почему? ...фух...никак не наиграюсь крутить лестницу СПАСИБО Посилання на коментар Поділитися на інших сайтах More sharing options...
Chiara Опубліковано: 15 жовтня 2010 Поділитись Опубліковано: 15 жовтня 2010 хи-хи, вот я оленьпо ссылке выше в БС есть фото лестницы, которая была взята за основу моей будущей...только у меня будет не винт и более пологая (надеюсь) stroimdom.com.ua/forum/attachment.php?attachmentid=21084&d=1245311436 Если минимализм и нержавейка - мне понравился вариант Архитектора - Олега Гречука - просто прутья от ступеньки и до потолка : и минималистично, и декоративно - у него в ветке визуализации интерьера. Я, например, полюбила идею: вместо прутьев нержавейки можно нанизать стекляшки из люстр на тетиву ( на антикварке продаются на киллограммы8-)) - конструкция примерно будет выглядеть как бамбуковая занавеска в кухню в совеЦкие времена, но сильно гламурно и дорого;) 1 Посилання на коментар Поділитися на інших сайтах More sharing options...
D@redevil Опубліковано: 15 жовтня 2010 Автор Поділитись Опубліковано: 15 жовтня 2010 Chiara а мне сказали, что понравившиеся мне перила напоминают не "дождь", а "перила кровати моей бабушки":lol: А лестницу, о которой вы говорите я поищу...мне надо сделать так, чтобы перила были не только эстетичны, но еще и функционально удобны для хождения маленьких детишек (все-таки пункты "дерево","дом" выполнены почти, остался самый главный "дети")+пожилых людей...те перила должны быть такими, что на всем протяжении лестницы можно держаться за них, причем, что 80см от пола, что взрослому человеку 1 Посилання на коментар Поділитися на інших сайтах More sharing options...
Рекомендовані повідомлення
Створіть акаунт або увійдіть у нього для коментування
Ви маєте бути користувачем, щоб залишити коментар
Створити акаунт
Зареєструйтеся для отримання акаунта. Це просто!
Зареєструвати акаунтУвійти
Вже зареєстровані? Увійдіть тут.
Увійти зараз