Катерина Ш Опубліковано: 26 березня 2012 Поділитись Опубліковано: 26 березня 2012 Блок "кухня- санузел" + гостинная. Спальные места в антресолях. Неплохое кстати жилье получается, лучше квартиры. Но это для молодой семьи. Да, только нужно понимать, что эти 50 кв.м. будут стоить 75-85% от стоимости дома в 100 кв.м.... Это я к тому, что площадь не совсем корректный показатель бюджетности! Посилання на коментар Поділитися на інших сайтах More sharing options...
архітектор Опубліковано: 26 березня 2012 Автор Поділитись Опубліковано: 26 березня 2012 Да, только нужно понимать, что эти 50 кв.м. будут стоить 75-85% от стоимости дома в 100 кв.м.... Это я к тому, что площадь не совсем корректный показатель бюджетности! Почему Вы считаете, что 75-85%. Я думаю гораздо больше. Стоимость подключения газа, электричества, бурения скважины для качественной питьевой воды, оборудование санузла, кухни, септика-канализации, оборудование места для парковки машины, ограждение забором, ворота. Посилання на коментар Поділитися на інших сайтах More sharing options...
-ЭкоДом- Опубліковано: 26 березня 2012 Поділитись Опубліковано: 26 березня 2012 постараюсь на выставку привезти концепт дома 50 м кв для 3-4 человек-где как раз будут ярко выражены новые принципы .вернее-актуальные 1.максимальный комфорт при минимальной площади 2.принцип разумной достаточности площади.его основа-к площади дома смело добавляется площадь участка-как территории для жизни 3.растущий дом-изначально спроектированный для этого 4.простота конструкции-а значит возможность активно участвовать в строительстве заказчику.идеально-набор сделай сам- 5.максимальное теплосбережение и инсоляция-а значит мин расходов на СО 6.мин перегородок и мах встроенных систем хранения 7.обязательно-супердизайн-чтоб не выглядел сараем и тд и тп ... Посилання на коментар Поділитися на інших сайтах More sharing options...
Катерина Ш Опубліковано: 26 березня 2012 Поділитись Опубліковано: 26 березня 2012 Почему Вы считаете, что 75-85%. Я думаю гораздо больше. 75-85% - это из собственных просчетов. Когда сравнивали для себя строительство дома в 90 и 140 кв.м...... Точно никто не скажет, потому как это зависит от многих условий, в т.ч. и тех что Вы перечислили - нужно или нет подключать газ, остальные коммуникации и размеры участка под строительство.... Если говорить только о чистом строительстве, т.е. самом доме, то думаю, что может быть и меньше тех процентов, что я написала. А если говорить целиком обо всем, то может быть и больше)))) Посилання на коментар Поділитися на інших сайтах More sharing options...
MWer Опубліковано: 26 березня 2012 Поділитись Опубліковано: 26 березня 2012 Да, только нужно понимать, что эти 50 кв.м. будут стоить 75-85% от стоимости дома в 100 кв.м.... Это я к тому, что площадь не совсем корректный показатель бюджетности! Я согласен с этим, но речь была о другом. О доме 30-50 м2 в один этаж и заложенную возможность к расширению. Я видел успешные проекты такого метража и вкратце описал почему они не вписываются в задумку автора, которому я возражал. Стандартную планировку в такой метраж не впишешь так, чтобы она показалась удобной на требовательный взгляд. А по другому и начинать не стоит. Посилання на коментар Поділитися на інших сайтах More sharing options...
sov1178 Опубліковано: 26 березня 2012 Поділитись Опубліковано: 26 березня 2012 В доме на 30-50 кв.м. все должно быть рационально... ОК. Семья из 4х человек. Набор помещений: Кухня 10м2 Спальня (для родителей) 10м2 Детская 1 10м2 Детская 2 10м2 Как бы уже 40м2, а еще нужно: Зал Туалет Ванная и немного для корридора (как ни крути, а придется) и прихожей. Предлагайте оптимальное использование... :D тогда и можно будет прожить... Прожить да, но жить увы... Если бы у меня, например, была задача прожить, то лучше купить убитую квартиру на окраине. Это куда уж более ликвидный товар, чем дом в 30..50м2 Посилання на коментар Поділитися на інших сайтах More sharing options...
архітектор Опубліковано: 26 березня 2012 Автор Поділитись Опубліковано: 26 березня 2012 ОК. Семья из 4х человек. Набор помещений: Кухня 10м2 Спальня (для родителей) 10м2 Детская 1 10м2 Детская 2 10м2 Как бы уже 40м2, а еще нужно: Зал Туалет Ванная и немного для корридора (как ни крути, а придется) и прихожей. Предлагайте оптимальное использование... Вы думаете категориями и мерками квартиры и пытаетесь получить подобный ответ от меня. Я, по мнению некоторых высказавшихся в этой ветке, отвечаю не конкретно не потому, что я не конкретный, а потому что я не понимаю этих вопросов, я думаю другими категориями. Я не знаю, что такое мыслить комнатами. Моя жена хотела не кухню 10 м2, а кухню, готовя на которой она сможет быть не изолирована от семьи, тоесть кухня - это общее пространство с гостинной, разделенное визуальным и функциональным барьером до уровня 1,2 м от пола. Для меня слово "зал" также неведомо. Да, я вырос в обычной квартире, но даже там мы не называли общую комнату залом. Больше всего мне в ней не нравились вытянутые пропорции и вид из окна. Поэтому в своем доме мы не проектировали общую комнату площадью 25-30 м2, а проектировали пространство, из которого будет открываться вид на сад, и все времена года, все разнообразие погоды, природы, солнечного освещения, осадков, растения, садовая архитектура, цветущие плодоносящие деревья - чтобы они были частью этой комнаты всегда. Для это нам понадобились большие панорамные окна. В это же пространство мы интергировали лестницу, потому что ее форма и дизайн, ее наличие на видном месте не только экономит площадь и строительный объем, а является элементом дизайна внутренней среды помещения, наполненной функцией - это и лестница, и выдвижные ящики для хранения под ней, и подставка для телевизора одновременно. Другими словами - наше пространство наполено символами и метафорами, которые должны психологически помогать на уровне подсознания: наблюдение за природой - это мудрость, общее пространство - это демократичность и единение, лестница - символ карьерного роста. 3 Посилання на коментар Поділитися на інших сайтах More sharing options...
sov1178 Опубліковано: 26 березня 2012 Поділитись Опубліковано: 26 березня 2012 Вы думаете категориями и мерками квартиры и пытаетесь получить подобный ответ от меня. Вопрос был адресован не Вам. Когда спрашивают меня про дом в 50м2 я не могу мыслить мерками дома. У меня в доме который я строю себе тоже нет такого, как кухня и зал (впрочем студию в 10м2, которые я приписал кухне, вместить всеравно нереально ;)). Просто перечислив абсолютно необходимые помещения для семьи из 4х человек уже получил 40м2 и остановился, ибо и так все понятно... Концепция идеальной семьи в гостинной вокруг зомбоящи телика конечно умиляет, но это утопия. Как ни крути, а для комфортного проживания каждый член семьи должен иметь "приватную территорию", а отсюда и минимальная площадь на семью из 4х человек - 80м2 и более (а скорее порядка 100м2). По теме доклада, мне она совсем не понятна. Не понятна по одной причине - понятие "доступно" оно разное для разных слоев населения. ИМХО, более интересной и полезной темой могла бы стать, например, тема "Экономим при строительстве дома на всех этапах" - здесь можно обсудить разные экономические аспекты строительства дома - в чем преимущества строительства по проекту (и где здесь экономия), как можно начать экономить уже на этапе проектирования (не подумайте, не путем отказа от этого этапа ), как можно оптимизировать использование помещений, какие архитектурные элементы удорожают строительство, ну и дальше, так сказать ближе к строительству не на бумаге - здесь можно перейти к обзору технологий их экономического сравнения (можно на примере реальных объектов - так даже интересней) и дальше, дальше - такой вариант интересен и почти неисчерпаем (не знаю, правда насколько это уже Ваш профиль), а главное интересное найдут для себя все - и со стройкой в 1000000уе, и в 10000уе. Из того, что Вы написали я пока понял только одно - с Вашей точки зрения доступное жилье недоступно :D, ибо если дешево, то некачественно, если самострой, то не комфортно, ненадежно и т.д. - хотелось бы конечно послушать сам доклад, но, к сожалению, далековато я... 3 Посилання на коментар Поділитися на інших сайтах More sharing options...
ajeksa Опубліковано: 26 березня 2012 Поділитись Опубліковано: 26 березня 2012 ОК. Семья из 4х человек. Набор помещений: Кухня 10м2 Спальня (для родителей) 10м2 Детская 1 10м2 Детская 2 10м2 Как бы уже 40м2, а еще нужно: Зал Туалет Ванная и немного для корридора (как ни крути, а придется) и прихожей. Предлагайте оптимальное использование... :D Прожить да, но жить увы... Если бы у меня, например, была задача прожить, то лучше купить убитую квартиру на окраине. Это куда уж более ликвидный товар, чем дом в 30..50м2 Хочу объясниться, я не витаю в облаках, и знаю реалии... Так как у меня планируется проживание 2-3 семей семья всего на 9-10 человек, то и дом у меня нестандартный... ~400 кв. м. на два хозяина... Участие в этой теме - это попытка найти решение на сложную задачу... + попытка заинтересовать гения в поиске решения ответа на задачу... (представьте если в стране появятся тыс. домов по проекту .... и по этим домам начнут узнавать Украину...) Согласен с Архитектором, что мыслить необходимо более общими понятиями... Кухня, место где готовим еду, там-же ее будем есть или в другом помещении? - влияет на размер... Можем мы совместить в одном помещении общую комнату, взрослую спальню, столовую? (Откидные, раскладные диваны и т.п.) - да менее удобно чем отдельно, но мы же об доступном доме? Детская, каждому отдельно или общая комната с зонированием? Терраса, внутренний домик, планируем? - летом используем, зимой нет... Подпольное помещение можем использовать под закатку? Чердак - да или нет? п.с. Говоря об доступном доме, держу в голове одну знакомую, к которой двое детей... и ее мечты об доступном доме, это возможность иметь крышу над головой, и при этом заплатить минимум денег - не от того что она жадная, а от того что их просто нет. 1 Посилання на коментар Поділитися на інших сайтах More sharing options...
MWer Опубліковано: 26 березня 2012 Поділитись Опубліковано: 26 березня 2012 Мне кажется люди хотят по пунктам, (типа: первое...второе...третье...) попробую систематизировать вышесказанное. - компактный объем дома; - рациональная планировка без излишеств по назначению помещений; - взаимоувязка всего, что составляет дом в частности, со всем в общем. (включая материалы, технологии, оборудование, эксплуатационные характеристики, располагающий экстерьер и интерьеры и еще тысяча пунктов) Но при этом не стоит забывать, что все это должно быть незаметным. А на виду должна быть красота и респектабельность. 4 Посилання на коментар Поділитися на інших сайтах More sharing options...
sov1178 Опубліковано: 26 березня 2012 Поділитись Опубліковано: 26 березня 2012 п.с. Говоря об доступном доме, держу в голове одну знакомую, к которой двое детей... и ее мечты об доступном доме, это возможность иметь крышу над головой, и при этом заплатить минимум денег - не от того что она жадная, а от того что их просто нет. Ну теперь мне более-менее понятен Ваш подход Но это жилье для выживания, а не для проживания... Т.е. временное жилье (которое правда из-за наших реалий может превратиться в постоянное), которое всегда будет хотеться поменять на что-то лучшее. В моем же понимании "экономный" дом это комфортное жилье без излишеств. В котором можно нормально жить особо не сожалея, что чего-то не хватает. Кухня, место где готовим еду, там-же ее будем есть или в другом помещении? - влияет на размер... Можем мы совместить в одном помещении общую комнату, взрослую спальню, столовую? (Откидные, раскладные диваны и т.п.) - да менее удобно чем отдельно, но мы же об доступном доме? Честно говоря, ненавижу это решение, для семьи. Для одного человека более чем приемлемое решение, а для семьи...у меня была похожая ситуация. Допустим дети повзрослели, но еще не имеют своего жилья. Родители пришли устали и легли спать рано, а у детей друзья ходят мимо них ...или девушка пришла к парню, а у него на кухне-зале-спальне дрыхнет папаня в труселях :D - не комфортно. Детская, каждому отдельно или общая комната с зонированием? Лучше отдельно - реальный пример. У меня сестра пианист. Я ничего против музыки не имею, более того слушаю с удовольствием, но когда это на расстоянии 3м, а ты пытаешься заниматься математикой или чем-нить подобным это ппц... Т.е. опять же пока дети маленькие - да (сам делил одну комнату с сестрой довольно долго), большие - нет. Т.е. такой подход приведет к дому, который захочется сменить, но ресурсы и деньги уже потрачены, а возвратить их будет малореально...все ж таки лучше разумный минимализм... Посилання на коментар Поділитися на інших сайтах More sharing options...
whisker Опубліковано: 26 березня 2012 Поділитись Опубліковано: 26 березня 2012 5 страниц темы - полезной информации мизер. Уважаемые, ну вы же не политики... А то, ей Богу, как дети малые. Давайте не будем про то сколько стоит провести газ или электричество. И пока лучше не трогать бюджет,так как пока нет предмета обсуждения. Если речь идет о доступном доме, то хочется, чтобы это было доступным языком и доступными понятиями. Для простого обывателя, клюнувшего на тему с таким названием, слова и фразы вроде "демократичность, единение, работа с пространством..." - это китайская грамота. А вот воткнуть под лестницу выдвижные ящики - это уже готовый рецепт, даже подход. Народ все равно будет склоняться к квадратным метрам, так как это понятие осязаемое. У нас все любят рисовать счастливую семью из четырех человек (папа,мама, 2-е разнополых детей). Вы, как человек со спец. знаниями, наверняка можете с помощью карандаша и бумаги набросать за 15 минут "пространство для обитания" этой семьи в пределах условного квадрата площади Хм2 (один этаж). И еще за 3 минуты прокомментировать принципы. Это будет доступно для понимания ваших идей и подходов. Это и будет примитивный "проект квадратного домика с двухскатной крышей" Вот и готовые аргументы в пользу доступности: - двухскатка - простая конструкция - квадрат - минимальная площадь стен при той же жилой площади - малые теплопотери и расход утеплителя. - один этаж -легкость обслуживания. Папа покрасит фасад с той же садовой лестницы, с которой он ежегодно обрезает деревья и собирает груши... и т.д. 5 Посилання на коментар Поділитися на інших сайтах More sharing options...
vadimv Опубліковано: 26 березня 2012 Поділитись Опубліковано: 26 березня 2012 - двухскатка - простая конструкция - квадрат - минимальная площадь стен при той же жилой площади - малые теплопотери и расход утеплителя. - один этаж -легкость обслуживания. Папа покрасит фасад с той же садовой лестницы, с которой он ежегодно обрезает деревья и собирает груши... и т.д.Именно. :drinks:ОК. Семья из 4х человек. Набор помещений: Кухня 10м2 Спальня (для родителей) 10м2 Детская 1 10м2 Детская 2 10м2 Как бы уже 40м2, а еще нужно: Зал Туалет Ванная и немного для корридора (как ни крути, а придется) и прихожей. Предлагайте оптимальное использование... :D Да легко. 8-) Посилання на коментар Поділитися на інших сайтах More sharing options...
whisker Опубліковано: 26 березня 2012 Поділитись Опубліковано: 26 березня 2012 Ну вот, получился классический пятистенок. Печь куда-нить воткнуть можете? И котельную-топочную надо бы. Для красоты я бы добавил 2 веранды со стороны кухни и может с противоположной шириной метра 3 . И задрал угол кровли, чтобы домик сараем не казался. Может ли кто-то подвигать стены так, чтобы помоднее планировочка была? 1 Посилання на коментар Поділитися на інших сайтах More sharing options...
sov1178 Опубліковано: 26 березня 2012 Поділитись Опубліковано: 26 березня 2012 (змінено) Да легко. 8-) Только площадь у Вас вышла 72м2, а не 50м2, и спальни "а-ля вагон" на 7.5м2 (по нормам маловато) ;). А я ведь писал, что от 80м2 уже реально вместить... Змінено 26 березня 2012 користувачем sov1178 1 Посилання на коментар Поділитися на інших сайтах More sharing options...
vadimv Опубліковано: 26 березня 2012 Поділитись Опубліковано: 26 березня 2012 Печь куда-нить воткнуть можете? И котельную-топочную надо бы.Печь - это зло (грязь, сажа, угарный газ). Газовый котел в углу кухни. ТТ-котел можно воткнуть в отдельной топочной при входе.Для красоты я бы добавил 2 веранды со стороны кухни и может с противоположной шириной метра 3 .Со стороны кухни можно было бы добавить веранду, но у нас забор на расстоянии 1-1,5 м. Со стороны спален веранда будет сильно мешать освещению, У нас будет отдельная беседка.И задрал угол кровли, чтобы домик сараем не казался.Ну это уже к площади не относится.Только площадь у Вас вышла 72м272 - это снаружи. Внутри 8х8=64.и спальни "а-ля вагон" на 7.5м2 (по нормам маловато) :wink:.У меня по 12 м и 14. Вы предлагали по 10. Можете сократить до 10 и получите искомую площадь 50 кв.м. Посилання на коментар Поділитися на інших сайтах More sharing options...
архітектор Опубліковано: 26 березня 2012 Автор Поділитись Опубліковано: 26 березня 2012 Давайте не будем про то сколько стоит провести газ или электричество. И пока лучше не трогать бюджет,так как пока нет предмета обсуждения. Если речь идет о доступном доме, то хочется, чтобы это было доступным языком и доступными понятиями. Для простого обывателя, клюнувшего на тему с таким названием, слова и фразы вроде "демократичность, единение, работа с пространством..." - это китайская грамота. Архитектор для простого обывателя - это тоже китайская грамота. И скорее можно разбить себе бошку, пытаясь доказать что архитектор - не олень. Нельзя скатываться до примитивизма в общении. Все ждут готовый рецепт дешевого дома? А его нет. Потому что нет дешевого дома . Реальная стоимость кубического метра нормального бетона, тонны песка, щебня, арматуры - это все реальные вещи из которых складывается строительство. Пачка шурупов стоит 40-60 грн. Доставка по Киеву 300 грн минимум за Газель (1,5т), за Киев - дороже. Квартира стоит от 1000 у.е. м2, так в нее еще при совке подвели ТЕЦ, газ, сделали свет, проложили дорогу и вывозят мусор. Также у нее есть почтовы адрес, свидетельство на право собственности и т.д. и т.п. Мало того, в ней кто-то прожил от 60 -ти и менее лет. Тоесть прошла амортизация. Дом не может быть альтернативой квартире по стоимости. Но дом можно строить частично своими силами, можно растягивать во времени, можно продумать его лучше, чем квартиру. Добавлено через 23 минуты Именно. :drinks: Да легко. 8-) Именно в этом сообщении представлен не дешевый дом потому что: а) под него еще не сделали геологию. Но есть 90% вероятности что когда ее сделают, окажется что надо делать достачно серьезный фундамент общей протяженностью примерно 65-70 м/пог (если он ленточный), а немного ранее я писал, что себестоимость такого фундамента от 750 грн/м пог, тоесть выходит не менее чем 52 000 грн, а скорее всего будет куда больше. Потому что мешок цемента в Эпицентре стоит 32 грн, 30 тонн песка - 1700 грн, 10 тонн щебня - 1200 грн, куб черновой доски 1200 грн. И даже если удасться найти щебень на 99 гривен дешевле - общая ситуация не поменяется. Потому что это тонны, метры и километры арматуры (если выложить в один рядок). Так вот, если дом одноэтажный - то протяженность фундамента у него почти вдвое больше двухэтажного. Плюс не надо забывать простую вещь, что прежде чем выкопать траншею под фундамент и снять чернозем под домом, надо провести на участок электричество, обеспечить временное жилье для строителей, место хранения инструмента, инвентаря и стройматериалов, сохранность материальных ресурсов, обеспечить участок по меньшей мере технической водой, обеспечить разбивку осей котлована, геометрические параметры, место складирования вынутой из траншеи земли, обратную засыпку, трамбовку, прокладку коммуникаций. б) количество внутренних несущих стен больше, если площадь застройки дома больше. Дом 9х8 метров можно запроектировать с одной внутренней несущей стеной - для фундамента это сократит протяженность, а значит трудоемкость и себестоимость. Но если дом будет 12х13 и более, то нужно больше несущих стен для удержания крыши и перекрытия - таким образом себестоимость растет. Это мы еще не брали во внимание планировку - а ведь неправильное ее построение приведет к новым несущим стенам и удорожит строительство. Вентканалы и дымоходы лучше проектировать во внутренней стене, потому что под них тоже нужен фундамент. в) у одноэтажного дома строительный объем больше двухэтжаного с мансардой. А это уже значительное удорожание. Возьмем общую площадь дома 120 м2. Одноэтажный будет иметь размеры 11Х12 (толщина стен учитывается) и объем 360 м3 (первый этаж) + 180 м3 (чердак). Итого 540 м3. Чердак - это потому, что крыша двускатная с двумя фронтонами, чердачным перекрытием, утеплением в 120 м2, стропильной системой крыши. И это все не воздух а строительные материалы которые нужно купить, привезти и смотировать. Для сравнения два этажа по 60 м2 - это объем чуть более 420 м2, что составляет 70% объема одноэтажного дома. Объема, который нужно из чего-то построить. Также двухэтажный дом с мансардой более компктный - значит площадь его крыши и его пола на грунте меньше, меньше контакта с холодом, значит меньше расходов на утепление. 4 Посилання на коментар Поділитися на інших сайтах More sharing options...
ajeksa Опубліковано: 26 березня 2012 Поділитись Опубліковано: 26 березня 2012 Вывод: Доступный дом - это фикция, вымысел воспаленного мозга... 2 Посилання на коментар Поділитися на інших сайтах More sharing options...
MayaDeren Опубліковано: 26 березня 2012 Поділитись Опубліковано: 26 березня 2012 Вывод: Доступный дом - это фикция, вымысел воспаленного мозга... это мечта человека, у которого наблюдается дефицит бюджета. Посилання на коментар Поділитися на інших сайтах More sharing options...
архітектор Опубліковано: 26 березня 2012 Автор Поділитись Опубліковано: 26 березня 2012 Вывод: Доступный дом - это фикция, вымысел воспаленного мозга... Смотря что считать доступным, кому и по каким критериям. Если не хватает денег на условно "доступную" квартиру, то на половину ее стоимости купить участок, подвести все необходимые коммуникации, получить документы, построить дом с уровнем комфорта (санузлы, кухня, отопление, питьевая вода, канализация) равным квартире, не реально не потому что кто-то зажрался, а потому что это ценовая реальность на тысячи позиций и наименований работ, услуг и стройматериалов из которых состоит недвижимость. Более того, и в полную цену условно "доступной" квартиры не уложиться. По-этому если Вы чувствуете, что Вам хватает на условно "доступную" квартиру и еще что-то остается, если у Вас есть амбиции, перспективы в работе и стабильном заработке, для Вас может стать реальностью условно "доступный" дом. Посилання на коментар Поділитися на інших сайтах More sharing options...
Olga Kostyuk Опубліковано: 26 березня 2012 Поділитись Опубліковано: 26 березня 2012 Смотря что считать доступным, кому и по каким критериям. . Перед тем, как принять решение о постройке дома, мы консультировались с несколькими специалистами в этой области, мнению которых можно доверять, относительно общего бюджета строительства (стоимость участка в расчет не принималась). Так вот, ответ был однозначным - 1000-1200 у.е. за квадратный метр с базовой отделкой без изысков. Такова реальность - все остальное иллюзии. Посилання на коментар Поділитися на інших сайтах More sharing options...
whisker Опубліковано: 26 березня 2012 Поділитись Опубліковано: 26 березня 2012 Cлушайте,может тему переименовать, убрав слово "доступный"? Какой смысл перечислять цены, ведь и так понятно,что это значительные капиталовложения. Вот человек предложил планировку одноэтажника. Тут же появляется аргумент, что у него отношение цена/м2 хуже чем у двухэтажника. Принимается. Тогда возвращаемся к вопросу - как грамотно разметить жилое пространство пускай теперь двухэтажного дома для семьи из 4-х человек. Понятно, что будем стремиться к минимальной площади -это ведь деньги,не так ли? Вы меня простите за прямолинейность и, возможно, назойливость, но меньше всего хочется слушать от архитектора как профессионала упоминание о необходимости обеспечить строителей жильем и электрифицировать участок. Это нужно на любой стройке. А то получается мы вас дергаем "А слабО?" ПОкажите, пожалуйста на одном-двух простых примерах ваши идеи и тогда все станет понятно. Либо можно взять один из проектов аля "Дом в фикусах" или "Дом в попугаях" и профессионально покритиковать проект. Это также даст пищу для размышлений и обсуждения. Спасибо за внимание. 1 Посилання на коментар Поділитися на інших сайтах More sharing options...
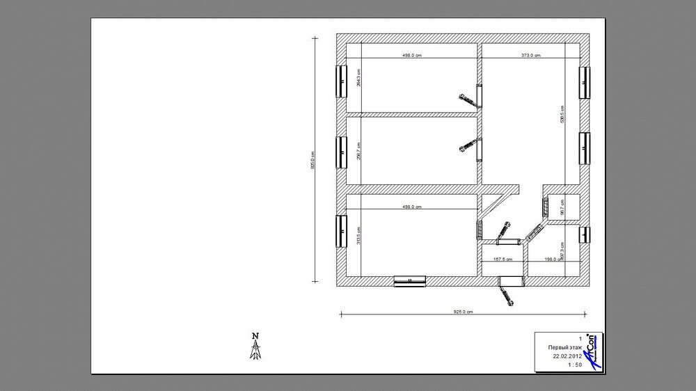
sov1178 Опубліковано: 26 березня 2012 Поділитись Опубліковано: 26 березня 2012 72 - это снаружи. Внутри 8х8=64. Че-та не сходится. Считаем: Спальня 4.98х2.64 = 13.15м2 Спальня 4.98х2.56 = 12.75м2 Спальня 4.98Х3.13 = 15.6м2 Комната большая 3.73х5.38 = 20м2 с/у, прихожая и то, что рядом 10.4м2 Всего 71.85м2, да снаружи 9.25х9.25=85.5м2 8-) С площадью спален согласен, протупил (когда считал длину посчитал 3м) , но даже если мы их уменьшим до 10м2, 10м2, 12.5м2 общая площадь будет 63м2, но никак не 50м2... Посилання на коментар Поділитися на інших сайтах More sharing options...
архітектор Опубліковано: 26 березня 2012 Автор Поділитись Опубліковано: 26 березня 2012 Либо можно взять один из проектов Я уже выкладывал планировку первого этажа одного своего проекта прямо в этой ветке: и еще оодин дом - дом в котором я живу и общаюсь с Вами через интернет: Более детально о его строительстве - здесь: www.stroimdom.com.ua/forum/showthread.php?t=16680 Добавлено через 25 минут И вот еще один домик есть - запроектирован и построен: И вот такой: Добавлено через 5 минут один из проектов аля "Дом в фикусах" или "Дом в попугаях" Да, насчет дома в капронах, тоесть "в пионах" - очень поробно рассказал о нем здесь: www.stroimdom.com.ua/forum/showthread.php?t=28195 Посилання на коментар Поділитися на інших сайтах More sharing options...
Kubik Опубліковано: 27 березня 2012 Поділитись Опубліковано: 27 березня 2012 Многие качественные бытовые приборы имеют внутри пломбы и предостережения - что разбирать и срывать пломбы имеет право только квалифицированный представитель сервисной службы. А неумелое и некорретное вмешательство приведет к отказу от гарантии. Back in the USSR:good:,только там я это видел. Внимательно посмотрел ролик Икеа на первой странице,со многими постулатами не согласен."Здесь будут играть дети.Поэтому важно,чтобы здесь было легко убираться".Или шесть взрослых разнополых людей в одной комнате на двухъярусных кроватях...жесть ... Посилання на коментар Поділитися на інших сайтах More sharing options...
Рекомендовані повідомлення
Створіть акаунт або увійдіть у нього для коментування
Ви маєте бути користувачем, щоб залишити коментар
Створити акаунт
Зареєструйтеся для отримання акаунта. Це просто!
Зареєструвати акаунтУвійти
Вже зареєстровані? Увійдіть тут.
Увійти зараз