whisker Опубліковано: 27 березня 2012 Поділитись Опубліковано: 27 березня 2012 После очередного прочтения отчета о стройке архитектора для себя почерпнул по крайней мере еще 2 момента: - опорные элементы кровли следует располагать так,чтобы они максимально прятались в стены. - несущие стены дома нужно строить из максимально однородного материала. знакомый сантехник монтировал панельный радиатор на стену термодома.Крепление попало в пенопласт. Проклял все... У меня к архитектору 3 вопроса: 1. Стены выполнены из материала с низкой теплопроводностью (газобетона). Внутренние перегородки из кирпича ( высокая теплопроводность. Хватает ли объема внутренних стен, которые будут работать как теплоаккумулятор, для обеспечения нормального микроклимата? 2. Дом построен, вы в нем живете. Можете ли вы отметить моменты, о которых вы, мягко скажем, сожалеете. Другими словами, есть ли то, что стоило бы делать по другому или вообще не делать? 3. Если сравнивать одноэтажный и двухэтажный дом с точки зрения жилой площади, можете ли вы, полагаясь на свои знания и опыт, указать численное граничное значение общей площади, при которой одного этажа уже мало, а двух - еще много? Я понимаю, что при наличии средств и большой площади застройки можно построить и 300м2 на одном уровне. Но интересен момент, когда двухэтажник начинает превращаться в колодец или башню. Посилання на коментар Поділитися на інших сайтах More sharing options...
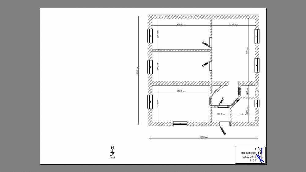
vadimv Опубліковано: 27 березня 2012 Поділитись Опубліковано: 27 березня 2012 Че-та не сходится. Считаем: Спальня 4.98х2.64 = 13.15м2 Спальня 4.98х2.56 = 12.75м2 Спальня 4.98Х3.13 = 15.6м2 Комната большая 3.73х5.38 = 20м2 с/у, прихожая и то, что рядом 10.4м2 Всего 71.85м2 Еще раз: площадь внутри 8х8=64. Из них: Спальня 4.5х2.5 = 11.25м2 Спальня 4.5х2.5 = 11.25м2 Спальня 4.5Х3 = 13.50м2 Комната большая 3.5х5 = 17.5м2 с/у, прихожая и то, что рядом 3.5х3 = 10.5м2 Всего 64 м2 Все сходиццо. Урезаем обе стены: Площадь внутри 6.66х7.5=49.95м2. Из них: Спальня 3.66х2.5 = 9.15м2 Спальня 3.66х2.5 = 9.15м2 Спальня 3.66Х2.5 = 9.15м2 Комната большая 3х5 = 15м2 с/у, прихожая и то, что рядом 3х2.5 = 7.5м2 Всего 49.95 м2 Все сходиццо. 8-) Посилання на коментар Поділитися на інших сайтах More sharing options...
архітектор Опубліковано: 27 березня 2012 Автор Поділитись Опубліковано: 27 березня 2012 Back in the USSR,только там я это видел. Внимательно посмотрел ролик Икеа на первой странице,со многими постулатами не согласен Вы пожалуйста определитесь - СССР или Швеция. По поводу пломбы на приборе и сервисной гарантии - побробуйте самостоятельно вскрыть газовый котел и что-то там подшаманить, а потом вызвать сервис. Элементарный принтер официальный сервис не примет в обслуживание, если применялись подельные картриджи и вмешивались в его схему. Этот принцип как раз не из СССР, это принцип цивилизованных компаний на Западе, которые отвечают за свою продукцию. Добавлено через 10 минут с/у, прихожая и то, что рядом 3х2.5 = 7.5м2 Всего 49.95 м2 Все сходиццо Я уже писал, что дом - это не арифметика. Оно может сто раз сходится, как дебет с кредитом, но к проектированию и эргономике не иметь никакого отношения. Дом должен быть продуманным и грамотно организованным - что толку от санузла 7,5 м2, если в него неудобно заходить, неудобно размещать и подключать сантехприборы, неудобно делать вентиляцию, нужно дублировать массу несущих стен, делать под них фундамент, думать чем сделать перекрытие, на что опереть крышу. Тоесть при таком подходе есть 100% гарантия, что дом получиться дороже, чем если бы его лучше продумать, дом получится менее удобным для пользователя, и, как следствие, будет иметь меньшую ликвидность на рынке недвижимости. Тот же принцип (сумма площадей, арифметика) и те же ошибки касаются планировки кухни, спальни, санузлов. Размещения несущих стен. Упрощенное представление о проектировании, сложившееся у массового потребителя, приводит его же к ошибочным решениям, за которые он же и платит. Посилання на коментар Поділитися на інших сайтах More sharing options...
vadimv Опубліковано: 27 березня 2012 Поділитись Опубліковано: 27 березня 2012 а) под него еще не сделали геологию. Но есть 90% вероятности что когда ее сделают, окажется что надо делать достачно серьезный фундамент Так вот, если дом одноэтажный - то протяженность фундамента у него почти вдвое больше двухэтажного.Да, но у двухэтажного в два раза серьезнее фундамент, стены и перекрытия, способные нести два этажа вместо одного.б) количество внутренних несущих стен больше, если площадь застройки дома больше. Дом 9х8 метров можно запроектировать с одной внутренней несущей стеной - для фундамента это сократит протяженность, а значит трудоемкость и себестоимость. Но если дом будет 12х13 и более...то строить его в один этаж - нерационально. Я лично даже и не собирался так делать.в) у одноэтажного дома строительный объем больше двухэтжаного с мансардой. А это уже значительное удорожание. Возьмем общую площадь дома 120 м2. Одноэтажный будет иметь размеры 11Х12 (толщина стен учитывается) и объем 360 м3 (первый этаж) + 180 м3 (чердак). Итого 540 м3. Чердак - это потому, что крыша двускатная с двумя фронтонами, чердачным перекрытием, утеплением в 120 м2, стропильной системой крыши. И это все не воздух а строительные материалы которые нужно купить, привезти и смотировать. Для сравнения два этажа по 60 м2 - это объем чуть более 420 м2, что составляет 70% объема одноэтажного дома. Объема, который нужно из чего-то построить. Также двухэтажный дом с мансардой более компктный - значит площадь его крыши и его пола на грунте меньше, меньше контакта с холодом, значит меньше расходов на утепление.Вот эти вот 30% объема, на которые 1-этажный дом якобы больше двухэтажного, экономятся проще простого - делаем крышу более плоской, и получаем объем 360 м3 (первый этаж) + 60 м3 (чердак). Итого - те же самые 420 м3. Но при этом не нужно лазить по лестнице, не нужно выделять под нее отдельную комнату (точнее, две - на первом и на втором этаже), не нужно мерзнуть зимой и париться летом под крышей и не нужно перерасходовать деньги на отопление (теплый воздух улетает на чердак, а на первом этаже дубарь). Посилання на коментар Поділитися на інших сайтах More sharing options...
архітектор Опубліковано: 27 березня 2012 Автор Поділитись Опубліковано: 27 березня 2012 Но при этом не нужно лазить по лестнице, не нужно выделять под нее отдельную комнату (точнее, две - на первом и на втором этаже), не нужно мерзнуть зимой и париться летом под крышей и не нужно перерасходовать деньги на отопление (теплый воздух улетает на чердак, а па первом этаже дубарь). Напоминает разговор двух иностранцев. Куда улетает тепло? Где дубарь? Я уже второй раз твержу о том, как правильно разместить лестницу, чтобы не потерять площадь и строительный объем, а Вы опять повторяетесь. Я готов увидеть все дома, которые Вы спроектировали и построили, готов изучить принятые в них решения и дать оценку. Посилання на коментар Поділитися на інших сайтах More sharing options...
vadimv Опубліковано: 27 березня 2012 Поділитись Опубліковано: 27 березня 2012 что толку от санузла 7,5 м2, если в него неудобно заходить, неудобно размещать и подключать сантехприборы, неудобно делать вентиляциюВы знаете, мы сейчас живем в трехкомнатной хрущобе, где площадь санузла составляет 3,5 кв.м. В принципе, все помещается (кроме джакузи). Так что 7,5 кв.м. (это больше чем в 2 раза больше) под наши скромные нужды, думаю, хватит. :roll: если бы его лучше продумать, дом получится менее удобным для пользователя, и, как следствие, будет иметь меньшую ликвидность на рынке недвижимости.Насчет рынка недвижимости: не скажу за всю Одессу, но у нас (в Сумах) ситуация сейчас такова, что наибольшей популярностью пользуются компактные квартиры (1-2к) и компактные дома (50-80 кв.м) Дома площадью 100-200-300 кв.м. продать о-очень сложно. Наш знакомый с 2008 г. до сих пор продает. Посилання на коментар Поділитися на інших сайтах More sharing options...
архітектор Опубліковано: 27 березня 2012 Автор Поділитись Опубліковано: 27 березня 2012 1. Стены выполнены из материала с низкой теплопроводностью (газобетона). Внутренние перегородки из кирпича ( высокая теплопроводность. Хватает ли объема внутренних стен, которые будут работать как теплоаккумулятор, для обеспечения нормального микроклимата? Я уже когда-то писал, что то, о чем Вы спрашиваете есть мифом. Какой из кирпича в доме теплоаккумулятор? Кто навешал этой лапши? Кирпич может служить теплоаккумулятором в печи, где он разогревается до 80 а то и 150 градусов. Но в доме, где температура +20 - какой из кирпича аккумулятор? Кто это придумал? Да вынести этот кирпич на улицу или открыть все окна - он быстро остынет, потому что разница между его температурой и температурой наружного воздуха незначительная. Лучший теплоаккумулятор из наиболее доступных - это вода в батареях. Именно на водяном отоплении построена вся система ТЕЦ в нашей стране и не только. Нагреть воду и транспортировать ее в нужное место намного проще, чем переносить кирпичи. 2. Дом построен, вы в нем живете. Можете ли вы отметить моменты, о которых вы, мягко скажем, сожалеете. Другими словами, есть ли то, что стоило бы делать по другому или вообще не делать? Нет вещей, о которых я сожалею, потому что решения принимались обдуманно, взвешенно и исходя из хорошей подготовки. В большинстве случаев это были компромиссные решения, которые отвечали ряду четких критериев - стоимости, эксплуатационным характеристикам, особенностям доставки, монтажа, обработки, отделки. 3. Если сравнивать одноэтажный и двухэтажный дом с точки зрения жилой площади, можете ли вы, полагаясь на свои знания и опыт, указать численное граничное значение общей площади, при которой одного этажа уже мало, а двух - еще много? Думаю, это в пределах 60-90 м2 2 Посилання на коментар Поділитися на інших сайтах More sharing options...
vadimv Опубліковано: 27 березня 2012 Поділитись Опубліковано: 27 березня 2012 Куда улетает тепло?Вверх. На второй этаж.Где дубарь?На первом этаже.Я уже второй раз твержу о том, как правильно разместить лестницу, чтобы не потерять площадь и строительный объемПростите, но как можно разместить лестницу, не потеряв при этом полезную площадь и объем? Разве что вынести ее на улицу. 8-) 1 Посилання на коментар Поділитися на інших сайтах More sharing options...
архітектор Опубліковано: 27 березня 2012 Автор Поділитись Опубліковано: 27 березня 2012 (змінено) Насчет рынка недвижимости: не скажу за всю Одессу, но у нас (в Сумах) ситуация сейчас такова, что наибольшей популярностью пользуются компактные квартиры (1-2к) и компактные дома (50-80 кв.м) Дома площадью 100-200-300 кв.м. продать о-очень сложно. Наш знакомый с 2008 г. до сих пор продает. Это ситуация, когда на рынке недвижимости есть количество, но нет качества. Люди выбирают в этой ситуации наименьшее из двух зол. Понятно, что квартиры в устаревшем жилом фонде, с изношенными коммуникациями, с большими теплопотерями и высокими расходами на отопление и т.д. И дома, о которых Вы говорите, в дольшинстве своем уступают даже тем же квартирам, потому что строились они как попало, про энергоэффективность тогда никто не задумывался, тонкие стены, нет утеплителя на полу и крыше, непроработана система отопления, не использованы современные решения. Ситуация напоминает ситуацию с автомобилями на Кубе. После введения эмбарго и отсутствия собственного автопрома, подавляющее большинство автомобилей - американские, 50-х годов, до прихода Ф.Кастро, или советские. Чуть ранее я упоминал о недавнем визите экс-мэра Боготы в Киев. Перепубликую несколько фото. Он действительно лично ездил по жилым районам Киева и очень ярко описал те проблемы, в которых живет 2,5 миллиона людей, но при этом боится себе признаться в этом и боиться искать пути улучшения. Но это - город, большая машина. А ведь свой дом - это намного меньший масштаб, и изменить ситуацию к лучшему намного проще, чем перекроить город. (ссылка на изображение устарела) (ссылка на изображение устарела) (ссылка на изображение устарела) (ссылка на изображение устарела) (ссылка на изображение устарела) Змінено 27 березня 2012 користувачем архитектор Посилання на коментар Поділитися на інших сайтах More sharing options...
Kubik Опубліковано: 27 березня 2012 Поділитись Опубліковано: 27 березня 2012 Вы пожалуйста определитесь - СССР или Швеция. По поводу пломбы на приборе и сервисной гарантии - побробуйте самостоятельно вскрыть газовый котел и что-то там подшаманить, а потом вызвать сервис. Элементарный принтер официальный сервис не примет в обслуживание, если применялись подельные картриджи и вмешивались в его схему. Газовые котлы пломбируют уже наши специалисты,зуб даю.Счётчики пломбировать-мировая практика.Принтеры....,ну это же элементарно-хочется зарабатывать вечно. Посилання на коментар Поділитися на інших сайтах More sharing options...
sov1178 Опубліковано: 27 березня 2012 Поділитись Опубліковано: 27 березня 2012 Еще раз: площадь внутри 8х8=64. Из них: Спальня 4.5х2.5 = 11.25м2 Спальня 4.5х2.5 = 11.25м2 Спальня 4.5Х3 = 13.50м2 Комната большая 3.5х5 = 17.5м2 с/у, прихожая и то, что рядом 3.5х3 = 10.5м2 Всего 64 м2 Все сходиццо. Вы определитесь с размерами. Картинка Ваша? Теперь проверьте свои цифры... По поводу варианта в 50м2 - Вы бы хотели жить в таком? Если поиграться с цифрами можно и 30м2 родить вариант, но жить в нем увы (хотя выживать можно)... Посилання на коментар Поділитися на інших сайтах More sharing options...
архітектор Опубліковано: 27 березня 2012 Автор Поділитись Опубліковано: 27 березня 2012 Газовые котлы пломбируют уже наши специалисты,зуб даю.Счётчики пломбировать-мировая практика.Принтеры....,ну это же элементарно-хочется зарабатывать вечно. Когда не знаете наверняка, лучше не пишите. Котел пломбируется фирмой-производителем. Потому что это газовое оборудование, которое требует повышенных мер безопасности. Аналогично на новых автомобилях. Почему-то хочеться посчитать деньги службы сервиса, а элементарные допуски к работе со сложным взрывоопасным оборудованием игнорируются. Добавлено через 3 минуты Вверх. На второй этаж Писать о том, что в доме тепло поднимается с первого этажа - это надо либо не иметь чего делать, либо вообще иметь ввиду не дом, а что-то другое. Даже плохоутепленные и непродуманные дома постройки 90-х годов имеют межэтажные перекрытия, которые также выполняють роль разделителя по вертикали. По такой логике надо не строить 14-ти и 22-х этажные дома, потому что все тепло с них удетело ввысь, под крышу. Абсурд, правда? Очень прошу не засорять ветку чепухой, иначе я попрошу, чтобы такие сообщения удалялись. Посилання на коментар Поділитися на інших сайтах More sharing options...
ДОКС Опубліковано: 27 березня 2012 Поділитись Опубліковано: 27 березня 2012 Очень прошу не засорять ветку чепухой, иначе я попрошу, чтобы такие сообщения удалялись. Приметы доступного дома - дОКЛАД... "Чего" и "для" было ветку создавать? 2 Посилання на коментар Поділитися на інших сайтах More sharing options...
Kubik Опубліковано: 27 березня 2012 Поділитись Опубліковано: 27 березня 2012 Когда не знаете наверняка, лучше не пишите. Котел пломбируется фирмой-производителем. Потому что это газовое оборудование, которое требует повышенных мер безопасности. Аналогично на новых автомобилях. Что в котле может опломбировать производитель,у Вас фото есть?У меня много было разных новых автомобилей-пломб нигде не видел. Посилання на коментар Поділитися на інших сайтах More sharing options...
архітектор Опубліковано: 27 березня 2012 Автор Поділитись Опубліковано: 27 березня 2012 Что в котле может опломбировать производитель,у Вас фото есть? Не хочу спускаться в котельную. Но Вы можете попробовать разобрать свой котел самостоятельно, а потом позвонить в сервис и попросить выполнить гарантийное обслуживание. Тоже самое можно произвести с любым узлом нового автомобиля, купленного в салоне у официального импортера. Я до сих пор не понимаю - неужели нечем заняться? Газ - это монополия государства. В Облгаз и Горгаз все частные абоненты платят за потребенное топливо. Для того, чтобы открыть счет и сделать пуск газа в дом, с выдачей абонентской книжки, нужно выполнить на него проект, утвердить, выполнить монаж и проверку силами компетентных людей, опломбировать счетчик и предоставить в Облгаз договор с сервисной службой на обслуживание котла, его периодическую чистку, соблюсти требования к котельной, окну, вентиляции. Ни один нормальный сервисант не даст договор не имея гарантии невскрытия котла. Пломбы - это залитые пластиком головки на шурупах, которыми прикручена схема котла. Думаю, у производителя есть и другие способы маркировать те узлы, доступ неквалифицированных людей к которым должен быть ограничен. Элементарный радиаторный кран на батарее с преднастройками находиться под термоголовкой, которая также имеет заводской блокирующийся шток. Ребенок или неопытный человек не открутит сам эту вещь. Посилання на коментар Поділитися на інших сайтах More sharing options...
ДОКС Опубліковано: 27 березня 2012 Поділитись Опубліковано: 27 березня 2012 Не хочу спускаться в котельную. хоть тут порядок... и нечего вам там делать... Представьте себе: приходите в котельную, и начинаете всем рты закрывать... не ходите туда.. всяко бывает... Посилання на коментар Поділитися на інших сайтах More sharing options...
Kubik Опубліковано: 27 березня 2012 Поділитись Опубліковано: 27 березня 2012 Не хочу спускаться в котельную. Но Вы можете попробовать разобрать свой котел самостоятельно, а потом позвонить в сервис и попросить выполнить гарантийное обслуживание. Тоже самое можно произвести с любым узлом нового автомобиля, купленного в салоне у официального импортера. Я до сих пор не понимаю - неужели нечем заняться? Газ - это монополия государства. В Облгаз и Горгаз все частные абоненты платят за потребенное топливо. Для того, чтобы открыть счет и сделать пуск газа в дом, с выдачей абонентской книжки, нужно выполнить на него проект, утвердить, выполнить монаж и проверку силами компетентных людей, опломбировать счетчик и предоставить в Облгаз договор с сервисной службой на обслуживание котла, его периодическую чистку, соблюсти требования к котельной, окну, вентиляции. Ни один нормальный сервисант не даст договор не имея гарантии невскрытия котла. Пломбы - это залитые пластиком головки на шурупах, которыми прикручена схема котла. Думаю, у производителя есть и другие способы маркировать те узлы, доступ неквалифицированных людей к которым должен быть ограничен. Элементарный радиаторный кран на батарее с преднастройками находиться под термоголовкой, которая также имеет заводской блокирующийся шток. Ребенок или неопытный человек не открутит сам эту вещь. Чтобы не разливаться мыслью по древу,можно фото этой пломбы?Это будет быстрее,чем писать такие длинные сообщения. Посилання на коментар Поділитися на інших сайтах More sharing options...
архітектор Опубліковано: 27 березня 2012 Автор Поділитись Опубліковано: 27 березня 2012 Чтобы не разливаться мыслью по древу,можно фото этой пломбы?Это будет быстрее,чем писать такие длинные сообщения. Я прекрасно понимаю, что последнее время ветка наполняется флудом и провокациями и понимаю, что делается это умышленно. Я не побежал в котельную ради того, чтобы потешить того, кому нечего делать. Я просто нашел старое фото своего котла, когда к нему приезжал сервисант на обслуживание и снимал переднюю крышку. Запаянные винтики были внизу, по центру - в блоке управления котла. Снять переднюю крышку котла самостоятельно нельзя, это прописано в договоре с сервисной службой. Посилання на коментар Поділитися на інших сайтах More sharing options...
ДОКС Опубліковано: 27 березня 2012 Поділитись Опубліковано: 27 березня 2012 Я прекрасно понимаю, что последнее время ветка наполняется флудом и провокациями Собственно, "каков поп - таков и приход"... Я так понял, что если нет доклада, то нет и примет доступного дома... В этом смысл? Ошибаюсь? Спасибо. 1 Посилання на коментар Поділитися на інших сайтах More sharing options...
Kubik Опубліковано: 27 березня 2012 Поділитись Опубліковано: 27 березня 2012 Я прекрасно понимаю, что последнее время ветка наполняется флудом и провокациями и понимаю, что делается это умышленно. Я не побежал в котельную ради того, чтобы потешить того, кому нечего делать. Я просто нашел старое фото своего котла, когда к нему приезжал сервисант на обслуживание и снимал переднюю крышку. Запаянные винтики были внизу, по центру - в блоке управления котла. Так вы меня и провоцируете,на фото пломб не видно,я не ставлю под сомнение их отсутствие,просто хочу донести,что 100% это работа наших сервисменов,а не производителя. Посилання на коментар Поділитися на інших сайтах More sharing options...
Korni Опубліковано: 27 березня 2012 Поділитись Опубліковано: 27 березня 2012 Очень полезная ветка. 2 Посилання на коментар Поділитися на інших сайтах More sharing options...
Olenevod Опубліковано: 28 березня 2012 Поділитись Опубліковано: 28 березня 2012 Тоже самое можно произвести с любым узлом нового автомобиля, купленного в салоне у официального импортера. Занимаясь обслуживаием автомобилей, могу с уверенностью сказать, что все кому автомобиль и своя безопасность дороги именно так и делают: платят за номинальное сервисное обслуживание, а потом едут действительно обслуживать машину в нормальный гараж. К сервисменам обращаются только в случае выхода из строя очень дорогостоящих агрегатов(коробка, двигатель, электро-гидро-усилитель), остальное - себе дороже. Никаких пломб нет, гарантия предоставляется в полном объеме, хотя и с приложенной нервотрепкой, которая, увы, от пломб не зависит. Посилання на коментар Поділитися на інших сайтах More sharing options...
Olenevod Опубліковано: 28 березня 2012 Поділитись Опубліковано: 28 березня 2012 Интересная у нас страна.... приметами доступного дома оказались СИП панели, паратерм и техника БОШ. Все остальное - недоступно и небюджетно. Вот уж воистину страна советов Посилання на коментар Поділитися на інших сайтах More sharing options...
ДОКС Опубліковано: 28 березня 2012 Поділитись Опубліковано: 28 березня 2012 Интересная у нас страна.... приметами доступного дома оказались СИП панели, паратерм и техника БОШ. Все остальное - недоступно и небюджетно. Вот уж воистину страна советов Если есть возможность - озвучьте конкретней... я так понял - Вы присутствовали на докладе? Посилання на коментар Поділитися на інших сайтах More sharing options...
Olenevod Опубліковано: 28 березня 2012 Поділитись Опубліковано: 28 березня 2012 Ув. Архитектора услышать не довелось, как говорил когда то Эммануил Виторган "о***ал" . Зато дальше... оказывается самые доступные в Украине технологии это поротерм и СИП, остальное организаторами не рассматривалось, по всей видимости в виду дороговизны. Девушка попыталась спросить о достоинствах и недостатках газоблока, ей объяснили что у нее частный случай и предложили пообщаться с архитектором тет- а-тет. Ну и под конец жирную точку поставили представители германского концерна. Оказывается доступный дом в Украине ну никак не может обойтись без комплексного решения по отоплению от БОШ, с тепловым насосом. я конечно понимаю, что ТС тут вообщем то и ни при чем, организаторы, спонсоры,.... но ребят... это же фарс какой то. 4 Посилання на коментар Поділитися на інших сайтах More sharing options...
Рекомендовані повідомлення
Створіть акаунт або увійдіть у нього для коментування
Ви маєте бути користувачем, щоб залишити коментар
Створити акаунт
Зареєструйтеся для отримання акаунта. Це просто!
Зареєструвати акаунтУвійти
Вже зареєстровані? Увійдіть тут.
Увійти зараз