Перейти до публікації
Пошук в
  • Додатково...
Шукати результати, які містять...
Шукати результати в...

Сантехмонтаж в картинках

B.S.V.

Рекомендовані повідомлення

Он абсолютно не по нашей линии.

 

Будем гадать или Вы назовёте имя?

Подозрение ведь падает на одного из вашей линии.

Посилання на коментар
Поділитися на інших сайтах

Будем гадать или Вы назовёте имя?

Подозрение ведь падает на одного из вашей линии.

 

:) это не я. Я так красиво не умею.

Посилання на коментар
Поділитися на інших сайтах

Хватит язвить.:)

В свое время, коллега по зеленой наклейке, купил дом, где было сделано так.

Он давно уже собирался переделать, но все не было времени.

Тут мы "случайно" оказались в рядом строящемся доме.

В итоге все получилось.

Посилання на коментар
Поділитися на інших сайтах

Монтаж водораспределительного узла и установка сантехники в одном из форумских домов.

Прощу обратить внимание на подключение умывальника. В спецификации и разметке были немного другие параметры, поэтому пришлось "выкручиваться".

Чтобы "девушка на картинке не мерзла" в этом месте проходят стояки отопления на 3 этаж.

1200484392_.jpg.84126f1513558712852a9083f9191332.jpg

P6120007.JPG.8c32f15dfd7afbffbd5e3052cacb12ea.JPG

P6120008.thumb.JPG.e23a1d57a3ada2d46f4f48e3f468e4c6.JPG

P6120010.JPG.e40c633d7d35078944e565bf7b6e5921.JPG

P6120013.JPG.f114057497005944f9a34940496cdaa2.JPG

P6120015.thumb.JPG.3d16ae43ed3280ec5d107c80dcc1e4dc.JPG

P6120017.thumb.JPG.67034f24510d6a4e9a90c86620b6cadd.JPG

P6200003.JPG.656a14db3feea64526785b1a01bf603b.JPG

P6200004.JPG.6d6e32c5d3455617d7d40c60fd4df71f.JPG

P6200005.thumb.JPG.29e9a5486d166a2e467e55356f772e31.JPG

P6200007.thumb.JPG.00fedc6c82402c764270f59180d5b47a.JPG

Посилання на коментар
Поділитися на інших сайтах

:) это не я. Я так красиво не умею.

 

Ну, слава Богу. Прямо от сердца отлегло. :)

Посилання на коментар
Поділитися на інших сайтах

Установка сантехники по этому же объекту, но не после себя.

Монтаж осуществляли сантехники от генподрядчика, который строил вторую половину дома.

Некоторые ошибки с битием плитки устранили, некоторые, такие как вывода под бойлера, пришлось обыгрывать.

Вначале был перенос радиатора, который тек, и "наползал" на ванную.

P6080002.JPG.4d42bdef67fe1a6a7f9b08df11d13fe5.JPG

P6080003.thumb.JPG.ddee618a5117371efd1b0e6fd06c13dd.JPG

P6080005.JPG.c07ffb0878d97405427cfddb17a56e34.JPG

P6080007.JPG.8e82b0a14216208abc7e2a1716b3047b.JPG

P6080008.JPG.bb5104dada32c0cdd7059e4d6536b039.JPG

Посилання на коментар
Поділитися на інших сайтах

Ну а затем созидательные работы.

К сожалению уровень канализации был низким, поэтому пришлось ставить длинный выпуск сифона, немного смещать по оси и подрезать тумбочку.

P8070013.JPG.3bfe0d6eb4e60ef41e5186bf52248218.JPG

P8070015.JPG.ac259ee4867378d8b92d8078d13631a5.JPG

P8070016.JPG.5da059a3f8b614753eef72906663b546.JPG

P8070018.thumb.JPG.59f2e929acbc0045f23a6a70d51e34cb.JPG

P8070023.thumb.JPG.2f86de81a7fa76030c1eed27cc48ce45.JPG

P8070038.JPG.d5bf54a9b1ad7448e3b9a9df558bfeca.JPG

P8070039.thumb.JPG.9d9775533cb2d9a28c17e44e1ed4b228.JPG

P8070040.thumb.JPG.d3697e9fb7990cf7a882994855989745.JPG

P8070041.JPG.6ed28daadd5046163fc7b7b983fa4e70.JPG

P8070044.JPG.02a97d8cb948b550b3296b76754f7f84.JPG

P8070045.JPG.b370d053fd93bc6008637d3b8c2bb956.JPG

P8070047.JPG.74b7ff4bc4dba00587445314f63aa8b5.JPG

P8070051.JPG.9eb6aaa310bd416fff3952087d8f3052.JPG

P8070053.JPG.9e848d625fc5e73909edb623d0e9ad2e.JPG

P8070057.thumb.JPG.6b99f5dbed97bbd11cff2640d46c5f27.JPG

Посилання на коментар
Поділитися на інших сайтах

Бойлер при штатном положении не давал возможности ни сесть, ни нормально подойти к унитазу, поэтому (к счастью этот бойлер предполагает и горизонтальную установку) он был смонтирован горизонтально.

При использовании бухты хромированной меди, все стало выглядеть более-менее пристойно.

P8070058.thumb.JPG.e0a78d36cf1d28ed1781a792a8460c27.JPG

P8070066.thumb.JPG.376bfbddf1b3dc1e674ad61b597f7a15.JPG

P8070067.JPG.f3c5d0018bd682d95787406e90077ac5.JPG

P8070072.thumb.JPG.a8c9aedd7a91478ea24f741f8a222788.JPG

P8070073.thumb.JPG.931f497eeb0245c98995c79aabcd4af6.JPG

P8070075.JPG.9130d8c8e43f13c9e3c1b374db6b6f85.JPG

P8070076.thumb.JPG.3f7c1346e339e865513b33df9199ab6d.JPG

P8300019.thumb.JPG.86a4446e01cf6354676b01dfe8c8f98e.JPG

P8300016.thumb.JPG.5d06a61d6a9552c8244e56a6d1bf6cae.JPG

  • Лайк 2
Посилання на коментар
Поділитися на інших сайтах

Что сразу раритет?

 

Народ уже потянулся к классике, руки стонут по привычным формам, знакомым с детства...

P9301380.JPG.34c39417e2161126fcc0d6a41f2f0ea4.JPG

P9301370.JPG.c4f49013dfa40739aa2df48722d2e480.JPG

  • Лайк 7
Посилання на коментар
Поділитися на інших сайтах

Новострой.

Квартира с дизайн проектом, по итогам должно получиться красиво.

Запорная арматура Бугатти, промывные фильты, редуктора давления-Фар, водопровод-медь, подводка полотенцесушителя, отопление- ТЕСЕ, канализация-Остендорф.

В связи с перемещением стен, радиаторы были заменены и перенесены к новым местам.

Итак: варим,рисуем, режем, долбим, монтируем.

P9170001.JPG.ebf8fd32f0a5e9addc4d9c5628a620ee.JPG

P9170004.JPG.10dccdfa6a312a4bad0ff3202506a657.JPG

P9170005.JPG.99b0a45b7fad11c674ab84126a8bc2e4.JPG

P9170006.JPG.69101ed1558e4acd75bd17fc0f9c1ace.JPG

P9170010.JPG.21a8c5032e5935443ae08b4c375580d3.JPG

P9170011.JPG.e029e6e0dfabf987d9cd1da4f7f5c6a1.JPG

P9180014.JPG.3dc287f4f13c16c3ac88c3a3f224a54e.JPG

P9180016.JPG.204e60d0fd47d7d8c6d0f2c5417fdca8.JPG

P9180020.JPG.85301c08cada9cb9c966e361aa23264c.JPG

P9180024.JPG.ff137de84b6caa76707cf7004a6b9751.JPG

P9190028.thumb.JPG.fae6e0d5bbe1da026eeb68c842421160.JPG

Посилання на коментар
Поділитися на інших сайтах

В соседней теме.

 

Вот Сергей выложил фото своих работ

 

www.stroimdom.com.ua/forum/at...6&d=1345061072

 

www.stroimdom.com.ua/forum/at...5&d=1345061373

 

Кто может растолковать что это за материал на отделке стен?

 

www.stroimdom.com.ua/forum/at...1&d=1344685526

 

Почему на таком вроде не большом полотенчике диагональное подключение, какие критерии для выбора типа подключений?

 

Себе купил на рукомойник смеситель, к нему идут гибкие шланги для подключений. Могу я заменить на такие и где их можно найти или мне не повезло и придётся ставить с комплекта.

 

www.stroimdom.com.ua/forum/at...7&d=1344708782

 

Заранее спасибо за ответы.

Вопросы по существу, поэтому, чтобы не прыгать по темам можно и здесь.

1. Плитка (показываю аналогичную, но квартира, хоть и закончена и там уже живут, но ждем умывальника, тогда возможно будут все фото)

2. Это тоже квартира и полотенцесушитель находиться на противоположной стене от стояка.

Чтобы он работал, тубы проходят по потолку и полу и подключены диагонально.

3. На третий вопрос Вам ответили.

P7090106.thumb.JPG.b877cc9ccf4d550580e3bd5245fd5994.JPG

PC290048.thumb.JPG.671ef52eb0c7a5a6ff23ccf423878d05.JPG

PC290049.thumb.JPG.6b0ca9871ff7e9dd4c132b701927aaa7.JPG

PC290051.thumb.JPG.e1206f70da7af1a802aed299dcc39b2b.JPG

PC290053.thumb.JPG.7b9b937daa6c407c83026ea665173aff.JPG

  • Лайк 1
Посилання на коментар
Поділитися на інших сайтах

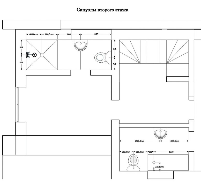
Пример нормального начала строительства.

1.Присылаются чертежи.

2.Выезжаем на место чистого поля.

3. На канавах фундамента размечаем, где , на каком уровне делаются закладные.

4.Рисуется ориентировочный чертеж прохождения труб.

san1.thumb.jpg.0afdd304b69cd03446401c57fb4f3a8a.jpg

san2.thumb.jpg.d984fc9ef7b794457969a9862f4c5483.jpg

2004583408_1-floor_plan.thumb.jpg.34a71e4b912bec0ba52c8190198becb0.jpg

Посилання на коментар
Поділитися на інших сайтах

5. Звонок общестроителей:" мы залили фундамент, опалубку будем снимать тогда-то."

6. Смотрится прогноз погоды.

7. По солнышком (вчера нам повезло :)) монтируется канализация и закладывается закладная 110 под ввод воды.

DSC02230.JPG.c12b616c20f41720598942ae38c45507.JPG

DSC02232.JPG.5fe245e7bddf439ad82513226147733a.JPG

DSC02233.JPG.7d886443de6618e82b3fa316dc2dcdc2.JPG

DSC02234.JPG.524d49aaa53edebe0346e6266a585e69.JPG

DSC02235.thumb.JPG.ee1e7759f1659477258ffb61105ced14.JPG

DSC02236.JPG.35fde25793eb879bd6bbb3616759630b.JPG

DSC02239.JPG.d8c5c00cdc241ab090d745c8dbd09f21.JPG

DSC02241.JPG.bb9ef0550149c42289c6f9ea09455c66.JPG

DSC02243.thumb.JPG.0b6650e32573874bcf38a5e6cbdcab86.JPG

DSC02244.JPG.e22f8df2fddd173a553296f21315998d.JPG

DSC02245.JPG.b71c3e59b0d5ea2913c50829955df772.JPG

DSC02248.thumb.JPG.aa8db45ae710adee483a51a9dfa41a23.JPG

DSC02257.JPG.c1ef2f65b6258510917a97da081eaca0.JPG

DSC02262.JPG.08f7c04d97c7f75a1dfb6e731432553d.JPG

DSC02263.JPG.a2cd176c9c76db7e5fdae2b8b4ecb65b.JPG

  • Лайк 12
Посилання на коментар
Поділитися на інших сайтах

1. Плитка (показываю аналогичную, но квартира, хоть и закончена и там уже живут, но ждем умывальника, тогда возможно будут все фото)

Плитка а даже швов не видно. На первом снимке она даже на потолке?

Посилання на коментар
Поділитися на інших сайтах

www.stroimdom.com.ua/forum/attachment.php?attachmentid=218791&d=1349370819

 

Сори если вклиниваюсь. А зачем некоторые вертикальные трубы утапливались в фундамент?

Посилання на коментар
Поділитися на інших сайтах

www.stroimdom.com.ua/forum/attachment.php?attachmentid=218791&d=1349370819

 

Сори если вклиниваюсь. А зачем некоторые вертикальные трубы утапливались в фундамент?

Выходы под инсталяцию унитаза, умывальники, мойку и стиральную машину.

 

Добавлено через 3 минуты

Плитка а даже швов не видно. На первом снимке она даже на потолке?

То оптический обман. Потолки кажется натяжные.

Посилання на коментар
Поділитися на інших сайтах

Гляжу, рацуха со 160ми гильзами нашла применение :)

 

А то!

Не пропадать же твоим наработкам!

Готов возместить. Вам пивом али коньяком?;)

Посилання на коментар
Поділитися на інших сайтах

Гляжу, рацуха со 160ми гильзами нашла применение :)

Всегда стараюсь использовать и всем советую:beer:.

Но в основном "гильза" это работа отбойником.:D

P9100051.JPG.0aea0bc9c244398dd42cf1e5fd28c15a.JPG

P9100052.JPG.361fa6671e3e27184bbad5c2ac782bd5.JPG

Посилання на коментар
Поділитися на інших сайтах

А то!

Не пропадать же твоим наработкам!

Готов возместить. Вам пивом али коньяком?;)

Лучше икрой:)

Посилання на коментар
Поділитися на інших сайтах

B.S.V., на гидрострелке будет одна икра и хенеси))))

(%D1%81%D1%81%D1%8B%D0%BB%D0%BA%D0%B0%20%D0%BD%D0%B0%20%D0%B8%D0%B7%D0%BE%D0%B1%D1%80%D0%B0%D0%B6%D0%B5%D0%BD%D0%B8%D0%B5%20%D1%83%D1%81%D1%82%D0%B0%D1%80%D0%B5%D0%BB%D0%B0)images?q=tbn:ANd9GcQlajUp6HDIbYif65WZmQ4DiuuUvnPGQ1hpNXsTz-8e8f0jh4Wt

Посилання на коментар
Поділитися на інших сайтах

Створіть акаунт або увійдіть у нього для коментування

Ви маєте бути користувачем, щоб залишити коментар

Створити акаунт

Зареєструйтеся для отримання акаунта. Це просто!

Зареєструвати акаунт

Увійти

Вже зареєстровані? Увійдіть тут.

Увійти зараз
×
×
  • Створити...