kompak1 Опубліковано: 24 березня 2009 Поділитись Опубліковано: 24 березня 2009 А вот этот - не нравится. Первого этажа планировка не нравится. Совсем А чем именно не нравится? Вообще-то, мне тоже первый этаж не очень нравиться, но ведь там можно изменить то, что я писала выше. Или всё равно никуда не годится? Посилання на коментар Поділитися на інших сайтах More sharing options...
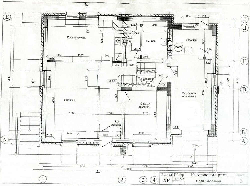
архітектор Опубліковано: 24 березня 2009 Автор Поділитись Опубліковано: 24 березня 2009 Дайте и мне пожалуйста совет. Уже весна, нужно строить, а мы никак с проектом не определимся. Имеем: семья 2 взрослых+2 детей (10 и 3 года).От строительства очень далеки. Хотим дом: цоколь-сауна, котельня, хоз.помещ.; 1-й эт.-кабинет, кухня/столовая, зал с камином, мал.с/у; мансардный эт.-3 спальни,1-2 с/у, гардеробная. Крыша-двухскатная. Общая площадь без учёта цоколя до 140 кв.м. Не могу придумать где с/у на 1-м этаже разместить. Что вы на это скажете? Оставил в цитате то, к чему есть вопросы. Не нравиться по планировке - то, что санузлы и кухня разнесены, получается неэфективная канализация, сложная. Хотя, если цоколь будет, можно стояки под потолком собрать и вывести. Для того, чтобы переносить котельную в цоколь - обязательно надо учитывать - как будет выходить дымоход и вентиляция котельной. Посилання на коментар Поділитися на інших сайтах More sharing options...
архітектор Опубліковано: 24 березня 2009 Автор Поділитись Опубліковано: 24 березня 2009 Также - по фасаду в принципе - он нормальный, нет лишних сложностей для строителей, а значит крышу надо будет реже ремонтировать. Планировки надо поменять. Дом делиться на три несущие продольные стены, на которые и опирается крыша, перекрытия. Это удобно для стандартных конструкций, также можно предложить много разных стройматериалов как варианты решение этой несложной конструкции. проблема есть только в планировке Посилання на коментар Поділитися на інших сайтах More sharing options...
kompak1 Опубліковано: 24 березня 2009 Поділитись Опубліковано: 24 березня 2009 Оставил в цитате то, к чему есть вопросы. Не нравиться по планировке - то, что санузлы и кухня разнесены, получается неэфективная канализация, сложная. Хотя, если цоколь будет, можно стояки под потолком собрать и вывести. Для того, чтобы переносить котельную в цоколь - обязательно надо учитывать - как будет выходить дымоход и вентиляция котельной. Дымоход и вентиляция останутся, только опустятся ниже а котельная опустится в цоколь. По-поводу с/у, то мне тоже не очень нравится, что далеко от кухни. Проект, действительно стоит поискать другой? Посилання на коментар Поділитися на інших сайтах More sharing options...
архітектор Опубліковано: 24 березня 2009 Автор Поділитись Опубліковано: 24 березня 2009 Дымоход и вентиляция останутся, только опустятся ниже а котельная опустится в цоколь. По-поводу с/у, то мне тоже не очень нравится, что далеко от кухни. Проект, действительно стоит поискать другой? Ну, не думаю, что все так просто... иначе зачем этих архитекторов 6 лет учат? Можете подыскать другой проект, если Вам такой вариант по-душе. А можете обратиться ко мне за эскизом, проектом, рабочим проектом. Я уж точно постараюсь выкрутить Вам нормальную, удобную и рациональную планировку. Посилання на коментар Поділитися на інших сайтах More sharing options...
kompak1 Опубліковано: 24 березня 2009 Поділитись Опубліковано: 24 березня 2009 Планировки надо поменять. Дом делиться на три несущие продольные стены, на которые и опирается крыша, перекрытия. Это удобно для стандартных конструкций, также можно предложить много разных стройматериалов как варианты решение этой несложной конструкции. проблема есть только в планировке Если Вам не сложно, может Вы предложите, как ещё можно переиграть планировку, чтобы соответствовала и нашим требованиям, и была бы "правильной". Посилання на коментар Поділитися на інших сайтах More sharing options...
архітектор Опубліковано: 24 березня 2009 Автор Поділитись Опубліковано: 24 березня 2009 Если Вам не сложно, может Вы предложите, как ещё можно переиграть планировку, чтобы соответствовала и нашим требованиям, и была бы "правильной". Честно говоря, чтобы работа была профессиональной, одними советами в форуме не обойтись. Обращайтесь за эскизом, посмотрю, попроектирую. Посилання на коментар Поділитися на інших сайтах More sharing options...
XamGelo Опубліковано: 24 березня 2009 Поділитись Опубліковано: 24 березня 2009 То что архитектор сказал не нравится. А еще не нравится маршрут к лестнице, особенно с учетом того что и в цоколь лестница там же будет Если убрать котельную в цоколь ( требования для этого надеюсь знаете - высота помещения не менее 2.5, окно, минимальный объем помещения) , то простора для фантазии куда больше. Я бы от существующей планировки оставил только экстерьер, несущие стены и расположение гостиной. Дальше надо думать над расположением помещений, лестницы ( возможно и 2й этаж придется перепланировать) чтобы было практично удобно и красиво В таком совсем небольшом доме делать прихожую-холл 11 кв метров - лишнее как по мне Посилання на коментар Поділитися на інших сайтах More sharing options...
архітектор Опубліковано: 24 березня 2009 Автор Поділитись Опубліковано: 24 березня 2009 То что архитектор сказал не нравится. Что не нравиться? Я же написал, что надо делать эскиз с расстановкой мебели, думать над компактной и рациональной планировкой уже в реальных толщинах стен. А то по тексту можно не так друг друга понять. Скажите, ну зачем это проектирование на бумаге придумали, не для того ведь, чтобы время убивать? Посилання на коментар Поділитися на інших сайтах More sharing options...
XamGelo Опубліковано: 24 березня 2009 Поділитись Опубліковано: 24 березня 2009 Имел ввиду что согласен с замечаниями ;) :D Посилання на коментар Поділитися на інших сайтах More sharing options...
Gitan Опубліковано: 24 березня 2009 Поділитись Опубліковано: 24 березня 2009 покритикуйте и мой проект www.mukhin.ru/catalogpr/p/j-208-1p.html Цоколь только сделан пока. Посилання на коментар Поділитися на інших сайтах More sharing options...
архітектор Опубліковано: 25 березня 2009 Автор Поділитись Опубліковано: 25 березня 2009 покритикуйте и мой проект www.mukhin.ru/catalogpr/p/j-208-1p.html Цоколь только сделан пока. Ну что я Вам могу советовать, если цоколь уже залит? (кстати, у этого проекта есть цоколь?) Надо выбирать дом из условий участка, допустимых противопожарных расстояний, санитарных норм, по ориентации на виды, стороны света. Не знаю, куда выходит Ваша терраса. По проекту (который по ссылке) – на втором этаже есть ошибка – не показана лестница, по которой туда поднимаются люди, вместо этого написано холл – 6 м2 – это не холл, а обычный темный (без естественного света коридор) непонятно зачем эти куски стены в спальне 16,5 м2 - что они держат? Также мало окон в оранжерее-игровой. Учтите в ней надо утеплять пол – она над холодным гаражом. Из плюсов проекта – рациональное размещение санузлов, сауны, кухни и котельной. Фасад – тоже нормальный. 1 Посилання на коментар Поділитися на інших сайтах More sharing options...
Gitan Опубліковано: 25 березня 2009 Поділитись Опубліковано: 25 березня 2009 Ну что я Вам могу советовать, если цоколь уже залит? (кстати, у этого проекта есть цоколь?) Надо выбирать дом из условий участка, допустимых противопожарных расстояний, санитарных норм, по ориентации на виды, стороны света. Не знаю, куда выходит Ваша терраса. По проекту (который по ссылке) – на втором этаже есть ошибка – не показана лестница, по которой туда поднимаются люди, вместо этого написано холл – 6 м2 – это не холл, а обычный темный (без естественного света коридор) непонятно зачем эти куски стены в спальне 16,5 м2 - что они держат? Также мало окон в оранжерее-игровой. Учтите в ней надо утеплять пол – она над холодным гаражом. Из плюсов проекта – рациональное размещение санузлов, сауны, кухни и котельной. Фасад – тоже нормальный. Вот планы из проекта. Смущает неудобство открытия дверей в ванную-туалет. И спален буду делать не три на 2 эт, а две + кладовка. Посилання на коментар Поділитися на інших сайтах More sharing options...
XamGelo Опубліковано: 25 березня 2009 Поділитись Опубліковано: 25 березня 2009 Как по мне - простенок между туалетом и ванной - вообще пережиток совкового менталитета. Убрать и все А спален там 4 вроде бы ;) Посилання на коментар Поділитися на інших сайтах More sharing options...
Freebird Опубліковано: 25 березня 2009 Поділитись Опубліковано: 25 березня 2009 Добрый день всем. Автор этой ветки делал мне проект по эскизу. Я остался очень доволен соблюдением сроков, компетентной упрямостью, когда наши хотелки встречали решительное "Нет" (де-факто, по зрелому размышлению все предложения Архитектора были приняты). Сейчас продолжаем сотрудничество по генплану участка и по завершению этих работ плавно начинаю стройку. Вообщем рекомендую Посилання на коментар Поділитися на інших сайтах More sharing options...
архітектор Опубліковано: 25 березня 2009 Автор Поділитись Опубліковано: 25 березня 2009 Добрый день всем. Автор этой ветки делал мне проект по эскизу. Я остался очень доволен соблюдением сроков, компетентной упрямостью, когда наши хотелки встречали решительное "Нет" (де-факто, по зрелому размышлению все предложения Архитектора были приняты). Сейчас продолжаем сотрудничество по генплану участка и по завершению этих работ плавно начинаю стройку. Вообщем рекомендую Спасибо за рекомендацию, для форумчан добавлю, что с Freebird вопросов по оплате, ее своевременности - не было. Более того, от себя добавлю комплимент - хоть Freebird и не художник, но дом выбрал хороший с точки зрения удобности планировки и эстетики фасада (сочетается в одном проекте). Еще - я помню, дествительно мансардный этаж пришлось немного перепроектировать, в выбранном Freebird эскизе - были проблемы со скосами крыши и высотой стены в самом низком месте примыкания кровли. Кстати, сейчас в работе еще один проект - где есть проблемы с мансардой. Кровля вроде красивая, но если поделать разрезы по ней в разных местах (у изголовъя кровати, в санузлах...) то там головой можно косой потолок задеть. Посилання на коментар Поділитися на інших сайтах More sharing options...
Крымчанка Опубліковано: 28 березня 2009 Поділитись Опубліковано: 28 березня 2009 Добрый вечер! Прошу высказать Ваше мнение о проекте,который мне понравился.Заранее блг. (ссылка устарела) Посилання на коментар Поділитися на інших сайтах More sharing options...
архітектор Опубліковано: 29 березня 2009 Автор Поділитись Опубліковано: 29 березня 2009 Добрый вечер! Прошу высказать Ваше мнение о проекте,который мне понравился.Заранее блг. (ссылка устарела) По одной только картинке сложно сказать - как выглядит дом в планах, разрезах, фасадах. Поскольку Вы из Крыма и строить собираетесь в сейсмозоне - надо подумать - подойдет ли этот дом для Вашего региона и конкретных условий участка. Трудно принимать какое-либо решение, не видя основных исходных даных: рельефа участка, расположения соседних домов, подъездной дороги. Если отбросить всё окружение с картинки и представить этот дом в Вашем контексте - такой же вид получиться? Надо попробовать при помощи колышек наметить пятно застройки дома - посмотреть, достаточно ли места остается для скважины, септика, других сооружений. Чисто визуально мне не нравится "приставленная" сбоку веранда, неестественно высокие окна на втором этаже в круглом "барабане", наверно там лестница. Сама форма крыши "навороченная", есть конусы, много изломов, ендов - а это дополнительные расходы на строительство и места, которые больше подвержены изнашиваемости. Мне кажется, архитектура должна выходить от участка, окружения, смотреться гармонично именно на Вашем участке. Также надо знать - какие материалы вы собираетесь использовать, особенно на стены и крышу. И естественно, планировку дома. Посилання на коментар Поділитися на інших сайтах More sharing options...
архітектор Опубліковано: 31 березня 2009 Автор Поділитись Опубліковано: 31 березня 2009 на этой картинке узел примыкания наружных стен дома из керамического блока к фундаменту, устройство пола по грунту, "скрытой" отмостки. Многие, в том числе прорабы, строители не уделяют этому внимания, строят по наитию. А узлов этих существует очень много, от того, насколько профессионально они сделаны, зависит качество утепления дома, в узлах стыков обычно возникают мостики холода, проникает влага, что сказывается на долговечности конструкции. Посилання на коментар Поділитися на інших сайтах More sharing options...
AndyAntonov Опубліковано: 31 березня 2009 Поділитись Опубліковано: 31 березня 2009 Чайницкий вопрос. А какой жёсткий утеплитель можно укладывать между фундаментом и стеной? Посилання на коментар Поділитися на інших сайтах More sharing options...
архітектор Опубліковано: 31 березня 2009 Автор Поділитись Опубліковано: 31 березня 2009 Чайницкий вопрос. А какой жёсткий утеплитель можно укладывать между фундаментом и стеной? Экструдированный пенополистирол. Он не боиться влаги, которая есть в грунте. Посилання на коментар Поділитися на інших сайтах More sharing options...
AndyAntonov Опубліковано: 31 березня 2009 Поділитись Опубліковано: 31 березня 2009 (змінено) А масса конструкции дома сверху не сплющивает?? ЗЫ Исправляюсь, невнимательно изучал схему. Он же, под облицовкой, а не разделяет фундамент и стену, как гидроизоляция Змінено 31 березня 2009 користувачем AndyAntonov Упс. Посилання на коментар Поділитися на інших сайтах More sharing options...
архітектор Опубліковано: 31 березня 2009 Автор Поділитись Опубліковано: 31 березня 2009 А масса конструкции дома сверху не сплющивает?? ЗЫ Исправляюсь, невнимательно изучал схему. Он же, под облицовкой, а не разделяет фундамент и стену, как гидроизоляция Вот, вот, смотрите схему, для чего я ее и выложил. А эта схема по кровле Посилання на коментар Поділитися на інших сайтах More sharing options...
Breakneck Опубліковано: 31 березня 2009 Поділитись Опубліковано: 31 березня 2009 Олег, добрый день! Подскажите, пожалуйста, используете ли вы в работе какое-то программное обеспечение? Проще говоря, в чем-то проектируете или рисуете на бумаге? Есть такая ситуация: есть архитектурный проект, в который мы с женой планируем внести ряд изменений. Само собой, хотелось бы их вносить в какой-то программе (начал проектировать в Архикаде), чтобы иметь возможность довольно быстро и просто вносить коррективы и "покрутить" в разных ракурсах. Если Вы используете какой-то софт для своей работы, то возможно сразу рисовать там, дабы впоследствии и Вам уменьшить объем, и за счет этого мне - стоимость Хотелось бы получить впоследствии к данному проекту все инженерные части. Есть одно существенное ограничение, которое несколько усложняет дело - по данному проекту уже заложен сборный ленточный фундамент на участке. Еще не делалась гидроизоляция и пр. Все эти работы не стали делать до нормального проектирования. Проект достался "в подарок" от знакомых, надо было срочно начать работы на участке. Можно у Вас попросить совета, что учитывать сразу в "рисовании" , чтобы впоследствии не пришлось это продумывать? Стороны света учтены, геология есть. Можно попросить Вас примерно прикинуть и сообщить в личку, какова будет стоимость Ваших работ по такому проекту (площадь около 300 кв. м.)? Посилання на коментар Поділитися на інших сайтах More sharing options...
архітектор Опубліковано: 31 березня 2009 Автор Поділитись Опубліковано: 31 березня 2009 Breakneck здравствуйте 1. Я работаю в основном в Архикаде. 2. Сразу скажу - что моя работа - это не посто вычерчивание планов, а определенные принципы, правила и расчеты, которые я материализую в виде чертежа. Для этого и учат архитектора 6 лет (красный диплом Национальной академии искусств и архитектуры, ул. Смирнова-Ласточкина, 20, мастерская профессора Антонюка) + опыт работы 6 лет (Киевский Зональный НИИ Экспериментального Проектирования, Творческая мастерская "В. Шевченко" от Союза архитекторов Украины). Такое длительное обучение нужно для того, чтобы видеть ситуацию в комплексе, чувствовать слабые места, которые сразу невидно. 3. Если речь идет о инженерных сетях - то должна быть рабочая стадия проекта, которая выполняется согласно ДБН "Правила разработки и оформления рабочих чертежей" 4. То, что Вы осваиваете архикад - хорошо, но только для эскиза. Не хочу рассказывать от и до чем эскиз отличается от проекта, рабочего проекта, как проектируються вентканалы, что такое оси - о многом Вы уже слышали, читали. В личку я Вам напишу свой телефон, чтобы при желании прояснить вопросы, тут важно, чтобы Вы понимали разницу между чертежником и проектировщиком. Посилання на коментар Поділитися на інших сайтах More sharing options...
Рекомендовані повідомлення
Створіть акаунт або увійдіть у нього для коментування
Ви маєте бути користувачем, щоб залишити коментар
Створити акаунт
Зареєструйтеся для отримання акаунта. Це просто!
Зареєструвати акаунтУвійти
Вже зареєстровані? Увійдіть тут.
Увійти зараз