Алік Опубліковано: 28 вересня 2015 Поділитись Опубліковано: 28 вересня 2015 И для них тоже.01_Рабочие чертежи.pdf Посилання на коментар Поділитися на інших сайтах More sharing options...
Игорь&Ира Опубліковано: 28 вересня 2015 Поділитись Опубліковано: 28 вересня 2015 И для них тоже. Т.е., надо переходить на 70 мм? Посилання на коментар Поділитися на інших сайтах More sharing options...
Алік Опубліковано: 28 вересня 2015 Поділитись Опубліковано: 28 вересня 2015 Да. Использовать Екосол70, например. Посилання на коментар Поділитися на інших сайтах More sharing options...
Ruslan R Опубліковано: 28 вересня 2015 Поділитись Опубліковано: 28 вересня 2015 63,5х41 не пройдёт??? Не пройдет. По моим расчетам Jx нужен 16,9см4, а у этого армирования Jx=14,5см4. Не дотягивает. P.S. И еще вопрос. Из какого материала сделан тот вкладыш (соединение импост-импост)? Боюсь, что при ветровых нагрузках стык импостов может разойтись. Крепеж статических соединителей через пятки в разы надежнее будет. Посилання на коментар Поділитися на інших сайтах More sharing options...
Игорь&Ира Опубліковано: 28 вересня 2015 Поділитись Опубліковано: 28 вересня 2015 63,5х41 не пройдёт??? Ув. Александр! А где в заказе указано, что у меня: Полоса 100х6мм это уже перебор. Посилання на коментар Поділитися на інших сайтах More sharing options...
Алік Опубліковано: 28 вересня 2015 Поділитись Опубліковано: 28 вересня 2015 Не пройдет. По моим расчетам Jx нужен 16,9см4, а у этого армирования Jx=14,5см4. Не дотягивает... Упс... да, недотягивает со штульпом, считал с тремя импостами, каюсь... Посилання на коментар Поділитися на інших сайтах More sharing options...
Игорь&Ира Опубліковано: 28 вересня 2015 Поділитись Опубліковано: 28 вересня 2015 Собираюсь снова связаться с менеджером. Что мне просить ещё, кроме: Только скажите пусть пересчитают на стальную полосу 70х6мм. Настаивать, если будут кивать на технолога? Спросить, почему Euro-Design 60 заменили на Ecosol 60 или это даже лучше? Посилання на коментар Поділитися на інших сайтах More sharing options...
Алік Опубліковано: 28 вересня 2015 Поділитись Опубліковано: 28 вересня 2015 Ув. Александр! А где в заказе указано, что у меня:В заказе 70х6, это что-то Руслан перепутал. Добавлено через 2 минуты Спросить, почему Euro-Design 60 заменили на Ecosol 60 или это даже лучше?Ну, по световому проёму чуть лучше, по остальному - то же самое. Скоро вообще не будет серии Евро, будут сплошные Экосолы. 2 Посилання на коментар Поділитися на інших сайтах More sharing options...
Игорь&Ира Опубліковано: 28 вересня 2015 Поділитись Опубліковано: 28 вересня 2015 В заказе 70х6, это что-то Руслан перепутал. Просил ещё: 1) козырёк с выступом 15 см; 2) сендвич-панели немецкие или двухстороннюю Rannila (белые). В заказе не отображено. Добавлено через 1 минуту P.S. И еще вопрос. Из какого материала сделан тот вкладыш (соединение импост-импост)? Боюсь, что при ветровых нагрузках стык импостов может разойтись. Крепеж статических соединителей через пятки в разы надежнее будет. Ув. Руслан! Это реплика к схеме Александра или к моему заказу? Посилання на коментар Поділитися на інших сайтах More sharing options...
Алік Опубліковано: 28 вересня 2015 Поділитись Опубліковано: 28 вересня 2015 Сендвичи у Корсы только оригинальный Стадур, козырёк - указан общий размер. Недостаточно информативное коммерческое предложение распечатывается в корсовской программе, надеюсь, со временем улучшат. Добавлено через 2 минуты P.S. И еще вопрос. Из какого материала сделан тот вкладыш (соединение импост-импост)? Боюсь, что при ветровых нагрузках стык импостов может разойтись. Крепеж статических соединителей через пятки в разы надежнее будет.Оригинальные Рехау, металлопластик. Не было на моей памяти нареканий на этот узел. 1 Посилання на коментар Поділитися на інших сайтах More sharing options...
Игорь&Ира Опубліковано: 28 вересня 2015 Поділитись Опубліковано: 28 вересня 2015 Недостаточно информативное коммерческое предложение распечатывается в корсовской программе, надеюсь, со временем улучшат. Ув. коллеги по форуму! Так я уже могу договариваться с замерщиком? Посилання на коментар Поділитися на інших сайтах More sharing options...
Алік Опубліковано: 28 вересня 2015 Поділитись Опубліковано: 28 вересня 2015 В общем, да. Посилання на коментар Поділитися на інших сайтах More sharing options...
Ruslan R Опубліковано: 28 вересня 2015 Поділитись Опубліковано: 28 вересня 2015 В заказе 70х6, это что-то Руслан перепутал. А точно, не до конца дочитал. Принял "профіль підсилювача" за полосу 100х6мм Зря наехал... Добавлено через 1 минуту Ув. Руслан! Это реплика к схеме Александра или к моему заказу? К схеме Александра. Посилання на коментар Поділитися на інших сайтах More sharing options...
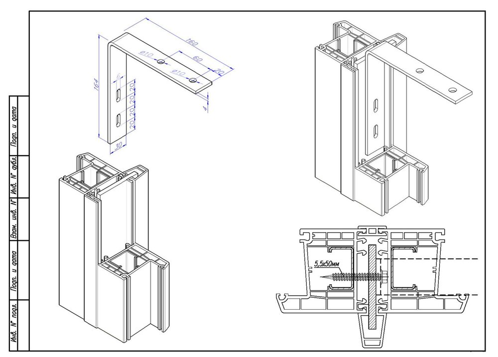
Ruslan R Опубліковано: 28 вересня 2015 Поділитись Опубліковано: 28 вересня 2015 Оригинальные Рехау, металлопластик. Не было на моей памяти нареканий на этот узел. Может быть... но при условии оригинального армирования соответствующей толщины в раме. Увидеть бы расчет этого узла от Рехау. Вариант с пятками - в разы надежнее и без расчетов понятно. P.S. Вот, для примера, какие пятки мы в алюминиевых витражах используем (см. вложение) и теперь посмотрите на тот вкладыш под 118 импост. А размеры витражей обычно около 3м высотой, как и в этом заказе. Посилання на коментар Поділитися на інших сайтах More sharing options...
Игорь&Ира Опубліковано: 28 вересня 2015 Поділитись Опубліковано: 28 вересня 2015 С некоторым опозданием пришло очень интересное и заманчивое предложение. Пояснения: Армирующий металл в Поз.1 и Поз.3 - 2мм. В Поз.2- 1,5мм. Конструктив, как описывали в теме. В центральной части - три блока. Соединяются через усиленный соединитель с металлом. Как на первой картинке в этом посте www.stroimdom.com.ua/forum/sh...5&postcount=72Заказ для Игорь_Ира.pdf Посилання на коментар Поділитися на інших сайтах More sharing options...
Ruslan R Опубліковано: 28 вересня 2015 Поділитись Опубліковано: 28 вересня 2015 Соединяются через усиленный соединитель с металлом. Как на первой картинке в этом посте И здесь правильное решение. Вот как выглядит от системодателя (см. вложение). P.S. Но этот вариант будет на порядок дороже чем у Корсы. Тут 5-ти камерный профиль и статический соединитель помощнее немного. Посилання на коментар Поділитися на інших сайтах More sharing options...
Ruslan R Опубліковано: 28 вересня 2015 Поділитись Опубліковано: 28 вересня 2015 Собираюсь снова связаться с менеджером. Что мне просить ещё... Спросите про верхнюю и нижнюю пятки. Они должны выглядеть приблизительно так (см. вложение). Посилання на коментар Поділитися на інших сайтах More sharing options...
Алік Опубліковано: 28 вересня 2015 Поділитись Опубліковано: 28 вересня 2015 У Корсы есть такие. Посилання на коментар Поділитися на інших сайтах More sharing options...
Ruslan R Опубліковано: 28 вересня 2015 Поділитись Опубліковано: 28 вересня 2015 У Корсы есть такие. А какой размер той части, что в соединитель заходит? Наверно не влезет, усы торца рамы мешать разве не будут? Посилання на коментар Поділитися на інших сайтах More sharing options...
Игорь&Ира Опубліковано: 28 вересня 2015 Поділитись Опубліковано: 28 вересня 2015 И здесь правильное решение. Тут 5-ти камерный профиль и статический соединитель помощнее немного. Дать задний ход? Добавлено через 59 секунд И здесь правильное решение. Вот как выглядит от системодателя (см. вложение). P.S. Но этот вариант будет на порядок дороже чем у Корсы. Дороже в предложении или вариант от системодателя? Добавлено через 1 минуту Спросите про верхнюю и нижнюю пятки. Они должны выглядеть приблизительно так (см. вложение). А удобно это сделать? И как? Выслать менеджеру схемы? Добавлено через 30 секунд У Корсы есть такие. И мне будут? Посилання на коментар Поділитися на інших сайтах More sharing options...
Ruslan R Опубліковано: 28 вересня 2015 Поділитись Опубліковано: 28 вересня 2015 Дать задний ход? Дороже в предложении или вариант от системодателя? В Рехау Евро 60 (3-х камерный профиль) должно быть дешевле, чем в КВЕ (5-ти камерный профиль). Посилання на коментар Поділитися на інших сайтах More sharing options...
Игорь&Ира Опубліковано: 28 вересня 2015 Поділитись Опубліковано: 28 вересня 2015 Но этот вариант будет на порядок дороже чем у Корсы. Тут 5-ти камерный профиль и статический соединитель помощнее немного. В Рехау Евро 60 (3-х камерный профиль) должно быть дешевле, чем в КВЕ (5-ти камерный профиль). Вы даже не представляете, насколько там заманчивое предложение. Но: 1) зачем 5 камер на неотапливаемом балконе? 2) гарантия 5 лет против 12. Посилання на коментар Поділитися на інших сайтах More sharing options...
Алік Опубліковано: 28 вересня 2015 Поділитись Опубліковано: 28 вересня 2015 А какой размер той части, что в соединитель заходит? Наверно не влезет, усы торца рамы мешать разве не будут? Не держал их в руках, честно говоря, мои монтажники приспособились из уголка их делать на месте. ... И мне будут? В предложении их нет, закажете - будут. Посилання на коментар Поділитися на інших сайтах More sharing options...
Игорь&Ира Опубліковано: 28 вересня 2015 Поділитись Опубліковано: 28 вересня 2015 В предложении их нет, закажете - будут. Если б не Руслан, мне бы как крепили? Я во всё должен вникать? Посилання на коментар Поділитися на інших сайтах More sharing options...
Ruslan R Опубліковано: 28 вересня 2015 Поділитись Опубліковано: 28 вересня 2015 Вы даже не представляете, насколько там заманчивое предложение. И чего тогда думаете? 1) зачем 5 камер на неотапливаемом балконе? Но, если бы Вам предложили одинаковые автомобили с разной комплектацией, у одного стандартный салон, у второго кожанный. И кожанный еще и дешевле. Какой бы Вы выбрали вариант? 2) гарантия 5 лет против 12. А у кого это 12 лет гарантии? Люди столько не живут Добавлено через 1 минуту В предложении их нет, закажете - будут. Если б не Руслан, мне бы как крепили? Я во всё должен вникать? Упс... Вот это жесткий промах... Добавлено через 2 минуты Я во всё должен вникать? Ну теперь Вы знаете как должно быть, думаю на монтаже это обязательно проконтролируете. P.S. Французы (высокие витражи) это уже нестандарт считается и мало кто знает как правильно их крепить. Хотя кто читает данный форум или подобный уже должны знать, я уже раз 100 об этом всем говорил. Посилання на коментар Поділитися на інших сайтах More sharing options...
Рекомендовані повідомлення
Створіть акаунт або увійдіть у нього для коментування
Ви маєте бути користувачем, щоб залишити коментар
Створити акаунт
Зареєструйтеся для отримання акаунта. Це просто!
Зареєструвати акаунтУвійти
Вже зареєстровані? Увійдіть тут.
Увійти зараз