Блуждающий ТВЭЛ Опубліковано: 18 вересня 2015 Поділитись Опубліковано: 18 вересня 2015 Всем привет. Cейчас в его данном состоянии дом похож как раз на кубик без крыши (надеемся, что пока). Отсюда и название темы. Историю поиска места для стройки опускаю, это два года поездок от Осещины до Жукина, с шашлыками и грибами по придеснянским лесам, разведкой дорог и просмотрами, просмотрами, просмотрами.... Нашли, вызвали геологов, те забурились в трех местах и выдали свой вердикт, под который архитектор рассчитал проект по нашим эскизам. Точнее, по эскизам любимой жены, которая с проектом дневала и ночевала, наверное, все эти два года. Итак, проект на руках, погнали. Фундамент и коробку делала сумнозвисна бригада летучих голландцев Игоря Остапчука. На тот момент мы еще не знали, как они напортачили в Рожнах, и наняли их, под влиянием достаточно приятных манер и подвешенности языка. www.stroimdom.com.ua/forum/showthread.php?t=162745 - там же и история стройки с сентября 14 года до августа 15, потому здесь не повторяю. Для задела фоторяд заливки фундамента и смета по фундаменту прошлого года. Даты помогут желающим пересчитать по текущему на тот момент курсу. Не знаю, как поставить сюда таблицу, потому в каждой строчке последняя цифра - это "итого". Что до цен и контактов всех подрядчиков, крановщиком и т.д. в окрестностях "Хотяновка и дальше", их набралась визитница, разных по ценам и уровню хм....запросов, если интересно пишите, обнародую. Дата Наименование Количество Сумма Коммент 10.09.2014 Инвентарь и материалы суммарно (проволока лопаты гвозди фиксаторы и тд) 3812 13.09.2014 Лес опалубка 4к. обрез 2к необрез 5900 15.09.2014 Котлован экскаватор 300 час 200 подача 3700 16.09.2014 Щебень 32 тонны 4480 19.09.2014 Бетонная поготовка 11 кубов 4130 19.09.2014 Расчет этапный строители 5000 22.09.2014 Арматура 9600 28.09.2014 Вибратор глубинный аренда Сутки 100 28.09.2014 Бетон-подушка 16 кубов 10800 28.09.2014 Расчет этапный строители 5000 07.10.2014 Бетон-лента (авария!) 16250 07.10.2014 Расчет этапный строители 5000 Докупка леса нормального 2800 15.10.2014 Армировочная сетка черновой пол 2270 22.10.2014 Бетон-ремонт разрыва ленты + столбы веранды 4200 24.10.2014 Засыпка грунта в фундамент 1800 400 подача, 350 в час, 0502931164 (Павло), Вышгород 26.10.2014 Закупка на монтаж канализации, водопровода, ввод электрики 1578 28.10.2014 Пенопласт деформ.шов терраса и крыльцо 78 28.10.2014 Аренда виброплита двое суток 400 30.10.2014 Аренда вибратор глубинный Сутки 100 30.10.2014 Бетон-терраса, полы, крыльцо 22 куба 16050 30.10.2014 Бетон-терраса дополнительный 2.5 куба 2450 30.10.2014 Выдачи на продукты суммарно 2200 30.10.2014 Расчет полуфинал 2900 Остаток 4900 02.11.2014 Финальный расчет 5000 Итого: 115598 8 Посилання на коментар Поділитися на інших сайтах More sharing options...
StNick Опубліковано: 18 вересня 2015 Поділитись Опубліковано: 18 вересня 2015 этьо что в процессе заливки опалубку оторвало? www.stroimdom.com.ua/forum/attachment.php?attachmentid=461088&d=1442578128 Посилання на коментар Поділитися на інших сайтах More sharing options...
loader Опубліковано: 18 вересня 2015 Поділитись Опубліковано: 18 вересня 2015 этьо что в процессе заливки опалубку оторвало? нет, это руки у строителей из жопы Посилання на коментар Поділитися на інших сайтах More sharing options...
Блуждающий ТВЭЛ Опубліковано: 18 вересня 2015 Автор Поділитись Опубліковано: 18 вересня 2015 этьо что в процессе заливки опалубку оторвало? www.stroimdom.com.ua/forum/attachment.php?attachmentid=461088&d=1442578128 В принципе все уже прокомментировали. Выше ссылка на историю кто этот монумент сотворил и когда. Посилання на коментар Поділитися на інших сайтах More sharing options...
Блуждающий ТВЭЛ Опубліковано: 20 вересня 2015 Автор Поділитись Опубліковано: 20 вересня 2015 + связанны с нашим строительством темы Тепло, вода www.stroimdom.com.ua/forum/showthread.php?t=182231 Антиотзыв о бригаде Игоря Остапчука, построившей и недостроившей дом www.stroimdom.com.ua/forum/showthread.php?t=182231 + справедливости ради добавлю, да, в целом дом "почти" построен и "почти" без косяков. Во всяком случае единственный катастрофический косяк, разрыв опалубки, был исправлен Игорем и бригадой. Остальное исправляется отделкой. "Почти" - собственно показывает и отношение бригады к работе. Так как оговоренных денег им хватало как раз на жизнь, устроились они доволе неплохо, прожив за наш счет лето вдали от семей, в 15-минутной доступности от водоемов с рыбалкой и пляжем. Кстати. Если кто пропустил в предыдущих массивах текста, авторский надзор у нас был. Все скрытые работы в т.ч. полный протокол ремонта разрыва ленты я протоколировал с составлением эскизов и согласовывал с архитектором. Естественно, это тоже стоило денег. В целом с помощью бригады Игоря удалось сэкономить какую-то часть денег на стройке, при этом сорвав все нафиг сроки и убив нервную систему себе и жене. Кроме того, так как не факт что успеем сделать инженерку в этом году, "уйдут" сезонные скидки на интересующее оборудование котельной. Точнее, уже ушли. Другими словами, экономия есть, но спорная... Выводы знаете. Или с битой над головой каждодневно, или.... Посилання на коментар Поділитися на інших сайтах More sharing options...
Блуждающий ТВЭЛ Опубліковано: 20 вересня 2015 Автор Поділитись Опубліковано: 20 вересня 2015 Так, едем дальше. Здесь краткая история какой упомянутая бригада учинила аллес на заливке фундамента и как его исправляла. Присядьте. При заливе основной ленты опалубка репнула так, что... дальше см. картинки и просьба без матов. На фотоистории выше есть финал ремонта. Починили... Еще раз напомню предысторию, она в теме о бригаде. Дерево на опалубку приехало посредственное и бригада во всем обвинила поставщика дерева мол, оно репнуло потому что плохое. На вопрос, почему же, если видели что дерево фиговое, не приняли доп.меры, например, усилить крепеж, сделать насыпь вдоль опалубки (тем более насыпь таки все равно пришлось делать), ответа не было. Посилання на коментар Поділитися на інших сайтах More sharing options...
Блуждающий ТВЭЛ Опубліковано: 20 вересня 2015 Автор Поділитись Опубліковано: 20 вересня 2015 Строились из поризованной керамики "440", купили отечественную "Керамею". Цена была очень хорошей, но... во-первых в одной из фур перевозчик поленился как положено закрепить палетты, и две феерично рухнули прямо в двери фуры. Как только те двери выдержали... Высчитали бой, отпустили. И два - шикарная форма как блока в целом, так и наиболее ярких представителей. Расход "термошва" на кладке сих чудес был просто феноменальный со знаком минус. Снова вспоминаем дешевую рыбку... + к слову на фото если разглядите номер манипуляторщика, старайтесь без крайней потребности именно этого не нанимать. Грузит хорошо, со знанием дела, но когда засела наша фура, сам предложил водиле ее вытащить, сам начал дергать как попало, не дождавшись пока водила поставит на нейтраль, сам порвал собственную стропу и сбил с водителя фуры ее стоимость. По итогу пришлось вызывать известного в Новоселках Артема на его всепроходном танке, и уже он разгрузил и попротаскивал по нашим пескам остальные фуры. Артем вменяемый парень, но у всей их семьи (автобаза на въезде в Новоселки, два брата Артем и Руслан + отец Виктор) есть одно свойство - они на каждый следующий заказ поднимают цену. Но можно торговаться и дело свое знают прекрасно, как и рыночные цены, потому в целом терпимо. Мы пробовали сэкономить и вызывать в других местах трактора, манипуляторы и краны. Получилось сэкономить только на кране и то, пока известный в Хотяновке крановщик Юра (его кран обычно стоит около заправки с номером тел. на стреле желтого цвета) держит низкую цену. На остальных работах получается что у этой семьи, что у вышгородских или из соседних сел - та же цена. Приезжали и "петушки, и джисибишки"... Далi буде... Посилання на коментар Поділитися на інших сайтах More sharing options...
Блуждающий ТВЭЛ Опубліковано: 20 вересня 2015 Автор Поділитись Опубліковано: 20 вересня 2015 + лирическое отступление насчет газона, до которого нам еще нехилая дистанция. Прежде чем покупать газонные травы, обратите внимание на местную траву "пшеничку", которая прет уже с весны так, что ничего и сеять не надо. Это адаптировавшаяся к местным условиям травка, на местной ничем не удобренной почве при надлежащем поливе дает такой густой и плотный зеленый ковер, что... Посилання на коментар Поділитися на інших сайтах More sharing options...
xnpp Опубліковано: 20 вересня 2015 Поділитись Опубліковано: 20 вересня 2015 а це цеглинки такі вірні , чи це просто фото таке ? Посилання на коментар Поділитися на інших сайтах More sharing options...
Блуждающий ТВЭЛ Опубліковано: 20 вересня 2015 Автор Поділитись Опубліковано: 20 вересня 2015 а це цеглинки такі вірні , чи це просто фото таке ? Ну так.... :D Посилання на коментар Поділитися на інших сайтах More sharing options...
xnpp Опубліковано: 20 вересня 2015 Поділитись Опубліковано: 20 вересня 2015 Ну так.... ЗРОЗУМІЛО ) значить добре плющило =) п.с. з чим повязаний такий нік ? Посилання на коментар Поділитися на інших сайтах More sharing options...
Блуждающий ТВЭЛ Опубліковано: 21 вересня 2015 Автор Поділитись Опубліковано: 21 вересня 2015 ЗРОЗУМІЛО ) значить добре плющило =) п.с. з чим повязаний такий нік ? Добре плющило 1 Посилання на коментар Поділитися на інших сайтах More sharing options...
Блуждающий ТВЭЛ Опубліковано: 26 вересня 2015 Автор Поділитись Опубліковано: 26 вересня 2015 (змінено) Так, продолжаем. Здесь фотоистория стройки "кубика", с 1 мая по 23 августа. Если точнее, то первое фото на котором уложено уже 5 рядов это 1 мая, т.е. объем работ сделанный примерно за 2 недели с начала стройки в середине апреля. К слову, на первом фото натюрморт "бригада отдыхает". Соседи говорят, так (за отдыхом) они проводили немало времени. А теперь порассуждаю о сроках. Если 5 из 11 рядов этажа бригада сделала за 2 недели (о самой скорости поговорим дальше), то на выгонку несущих стен по должно было уйти не больше 2 месяцев. Добавляем 2 недели на монтаж опалубки, заливку и выстаивание армопоясов, неделю на кладку по первому армопоясу, 2 недели на перестенки обоих этажей, неделю на монолитные участки, неделю на дымоходы, накидываем 2 недели на неожиданности. Монтаж перекрытий первого этажа это день. Итого получаем 4 месяца и 3 недели. При оговоренном том темпе "кубик" может быть, был бы готов к сентябрю. Но не был даже в таких сроках. Залитый 23 августа армопояс был финалом отношений, после чего бригада поехала по домам а я укрывал и поливал его уже сам. Застрявшая фура в поле - это попытка водителя героически прорваться на груженом кирпичом длинномере через непаханую песчано-травяную целину, распушившуюся после сухого лета. Экстремал е-мое.... Хорошо, крановщик сумел достать и сначала забросить кирпич на участок, а уже потом перекинул на второй этаж. По кладке. Работники объясняли небыстрый темп кладки кривизной блока, трудностями распила, палящим солнцем, плохим клевом на озере, нехваткой грибов в лесу и т.д. Да, блок кривоват и грибов в этом году почти нет, но! После выхода из запоя и увольнения половины бригады, они же сами позже показали на практике норматив один ряд в день (когда перестали бухать и лениться), то есть на кладку несущих стен должно было уйти около месяца, что вдвое быстрее того, что мы видели поначалу. На форуме есть профессионалы, можете прокомментировать сроки? 4 с половиной месяца от первого кирпича до верхнего армопояса в размере 9х10 метров с внутренней несущей стеной - это реально нормально? Дальше. Первый армопояс лили с помощью бадейки, на фото компаньон Игоря Остапчука, Саша. В отсутствие Игоря это нормальный человек, вменяемый, работящий и старательный работник, честно говоря, его как работника в другую бригаду я даже готов рекомендовать, если бы не.... то, что он он находится под влиянием Остапчука и всячески его поддерживает и защищает. Хз почему т.к. тот тянет Сашу в свою ментальность тотального вселенского шиздеца, депресняка и непрухи. Например, пока Игорь пропадал где-то 2 или три недели (забыл рассказать, он сбежал со стройки и мы надеялись, что уже не вернется).... так вот, пока Остапчука не было на стройке, бригада в составе Саши и двух помощников работала быстро и старательно, хотя мне не понравилось, как они уложили плиты, могли бы и поровнее. Это была одна из причин, по которой мы продолжили с ними работать: бригада бросила бухать, заменила половину людей, заработала быстро, исчез Игорь (последний фактор был решающим). Но как только на стройку вернулся Остапчук, снова настала трызда, одного работящего подсобника они выгнали и даже пришили ему воровство личных вещей (я хз как оно там было, пусть сами разбираются), второй подсобник тоже куда-то пропал, потом они наняли на заливку кого-то с вялотекущих соседских строек, короче бардак еще тот. И (тут присядьте) на момент приезда бетона с бетононасосом на второй армопояс, опалубка еще не была готова. Это при том, что бригада просила бетон на субботу и клялась что все будет готово, и я настоятельно убедил бригаду перенести заливку на сутки и заказал на воскресенье. Каким-то чудом они таки успели ее доделать, пока оператор насоса хмыкал и пожимал плечами, и мы залились вполне нормально, без выхода за график аренды. Справедливости ради. Да, были объективные факторы, например, не один раз на участке отключался свет и нельзя было работать электроинструментом. Но нормальные работники в таком случае берутся за то, что можно делать без электрики. А Игорь подавал прекрасный пример - шел и ложился спать или садился курить и т.д. короче отлынивал постоянно. А какой бригадир, такая и бригада. В сухом остатке. "Кубик" недостроен, мелкие косяки, все сроки сорваны. Экономия "на глаз" около 15-20 000 грн., катастрофических косяков, которые бы ее съели, нету. Но цена - сорваны сроки, раздолбаны нервы. Почему не выгнали сразу? Потому что а) складно говорят, б) после смены половины бригады и когда исчез Остапчук, бригада (без него) показала нормальную скорость работы и решили таки их оставить. В том числе "пожалели", "людям кормить детей", "платим не так уж много как платили бы более шустрой бригаде" и т.д. Хотя сейчас ясно, что правильным выходом было бы прощание после укладки перекрытий а то и после первого армопояса. Сейчас заступила другая бригада, прокомментируем когда закончат. p.s. В перерыве пока стройка стояла, кто-то из ушлых соседей по селу ушиздехал примерно 10-15 мешков цемента. Причем соседи по кооперативу не видели никого (народ нормальный, дружим, как раз сами уже приходили гонять любопытных), на участке горит свет. Видимо, приехали с тачкой ночью. Капец, цемент М400, 30 грн за мешок. Причем рядом лежал М500 - его не взяли, + куча арматуры на несколько тысяч грн. Что ж, пусть удавятся, цемент был подмокший на дожде. Бюджет по этому этапу выложу попозже. Далi буде... Змінено 26 вересня 2015 користувачем Блуждающий ТВЭЛ 4 Посилання на коментар Поділитися на інших сайтах More sharing options...
Communica Опубліковано: 26 вересня 2015 Поділитись Опубліковано: 26 вересня 2015 + лирическое отступление насчет газона, до которого нам еще нехилая дистанция. Прежде чем покупать газонные травы, обратите внимание на местную траву "пшеничку", которая прет уже с весны так, что ничего и сеять не надо. Это адаптировавшаяся к местным условиям травка, на местной ничем не удобренной почве при надлежащем поливе дает такой густой и плотный зеленый ковер, что... Дистанция была бы хилая и финиш ближе, если б сами знаете что вовремя сделали, а то доброта человеческая Интересный слог, подпишусь! А где эту травку-пшеничку брать? Мне очень нужно, а то участок большой, газонку везде дорого, только клаптиками посеяла((( Посилання на коментар Поділитися на інших сайтах More sharing options...
Блуждающий ТВЭЛ Опубліковано: 26 вересня 2015 Автор Поділитись Опубліковано: 26 вересня 2015 Дистанция была бы хилая и финиш ближе, если б сами знаете что вовремя сделали, а то доброта человеческая Интересный слог, подпишусь! А где эту травку-пшеничку брать? Мне очень нужно, а то участок большой, газонку везде дорого, только клаптиками посеяла((( Скажу так, не вникни мы так глубоко в стройку, конечно, могли б друзья наши общие нам натворить делов на такие же суммы как у вас, если не больше. Хотя опять же сегодня походил еще раз посмотрел-потыкал, славаслава нет катастрофических залетов. Вот а) взяться бы за ум да искоренить бы лень товарищу Игорю, цены б не было той бригаде б) в плане денег экономия себя оправдала. Но чудес не бывает, и даже не сомневаюсь, что где-то эта чудо-бригада возьмет очередной объект, и снова набокопорет. Насчет травы будете смеяться, но прямо в эти дни брожу по соседним участкам незастроенным собираю семена. Там реально сейчас после дождя ковер зеленый плотный сочный самонасеявшийся. Попробую. как говорится, природным собирательством. Если взойдет, значит буду эту собирать и сеять. Газонку фирмовую смотрел у соседей, прихотливая, плешивеет чуть упусти с поливом, денег стоит... Посилання на коментар Поділитися на інших сайтах More sharing options...
Блуждающий ТВЭЛ Опубліковано: 27 вересня 2015 Автор Поділитись Опубліковано: 27 вересня 2015 Итак, бюджет. Цены в гривне, при желании пересчитать в твердые валюты смотрите на даты расходов. Дата Наименование Количество Материалы Работа Строители Оплата блока 44 82000 Оплата блока 2NF 14000 12.04.2015 Аванс строителям / покупка расходки 2500 14.04.2015 Вызов крана (бестолковый) 200 15.04.2015 Доставка блока фура №1 5600 15.04.2015 Манипулятор Камаз 1900 15.04.2015 Спасение фуры (Артем Новоселки автобаза) 350 15.04.2015 Стропа хаму манипуляторщику 200 16.04.2015 Доставка блока фура №2 5300 16.04.2015 Манипулятор Артем 1700 16.04.2015 Доставка блока фура №3 5600 16.04.2015 Манипулятор Артем 1700 16.04.2015 Недельный расчет строители 3000 18.04.2015 Рубероид, сетка кладочная, сека в стены, тонна цемента 5700 18.04.2015 Доставка блока фура №4 5600 18.04.2015 Манипулятор Артем 1700 18.04.2015 Песок овражный 30т 30 тонн 3600 Кладочная теплая смесь 40 мешков 4600 25.04.2015 Недельный расчет строители 3000 30.04.2015 Кладочная теплая смесь 80 мешков 8000 01.05.2015 Недельный расчет строители 3000 08.05.2015 Недельный расчет строители 1500 Цемент М500, Кладочный теплый шов 20 М500 120 теплый 12700 15.05.2015 Недельный расчет строители 3000 15.05.2015 Электрика (Миша) 800 23.05.2015 Расчет строители 3000 23.05.2015 Шпильки и гайки 100 шт М10 1900 23.05.2015 Арматура 12500 24.05.2015 Шланг под шпильки 120м 630 01.06.2015 Расчет строители 500 01.06.2015 Аренда лесов на месяц 1600 07.06.2015 Оставил на круги по дереву 500 14.06.2015 Расчет строители 1000 15.06.2015 Бетон В30 армопояс 1 этажа Р4 В30 F200 W6 7 кубов 1190 за куб 8400 15.06.2015 Кран для заливки (Виктор Новоселки) 1600 15.06.2015 Аренда и доставка бадейки 800 15.06.2015 5 мешков цемента М400 и 4 кг гвоздей 252 15.06.2015 Цемент М400 Тонна 40 мешков 980 310 15.06.2015 Аренда вибратора Сутки 120 15.06.2015 Оплата плит перекрытия 25900 1600 20.06.2015 Расчет строители 2000 20.06.2015 Укладка плит 11 плит по 200 2200 20.06.2015 Электрика (Миша) 500 27.06.2015 Блок и лебедка ручная 800 27.06.2015 Расчет строители 1000 30.06.2015 Продление аренды лесов 800 30.06.2015 Финал первого этажа ? 0 04.07.2015 Расчет строители 2500 04.07.2015 Кирпич перестенки II этажа 15120 04.07.2015 Кран для разгрузки кирпича и подъема наверх блоков и кирпича 2095 11.07.2015 Расчет строители 1000 11.07.2015 Электрика (Миша) 170 13.07.2015 Цемент 6 мешков 213 18.07.2015 Кран для подъема второй порции блока и кирпича 1200 18.07.2015 Расчет строители 3000 21.07.2015 Цемент М500 на заливку перемычек 2 этажа 5 мешков 1655 21.07.2015 Цемент М400 на кладку перестенков второго этажа Тонна (40 мешков) 310 24.07.2015 Клей для блока термошов 10 мешков 728 25.07.2015 Расчет строители 2000 01.08.2015 Расчет строители 2000 04.08.2015 Арматура дополнительная 4302 04.08.2015 Доставка арматуры 400 04.08.2015 Полипласт ПСМ-50 30 мешков 2857 29 08.08.2015 Продление аренды лесов 800 08.08.2015 Расчет строители 1000 15.08.2015 Расчет строители 2000 23.08.2015 Муфта 200 мм для лючка между санузлами 2 и 1 этажей 160 23.08.2015 Цепи и замки 360 23.08.2015 Армопояс 2 этажа 6,5 кубов 970 за куб 6305 23.08.2015 Бетононасос 2 часа с подачей 3100 23.08.2015 Расчет строители 3000 23.08.2015 Электричество 200 Электричество Сентябрь 160 Итого: Материалы: 224152 Работы: 38154 Работа строителей: 40500 Всего 302 806 Грн за "кубик" в его нынешнем виде 1 Посилання на коментар Поділитися на інших сайтах More sharing options...
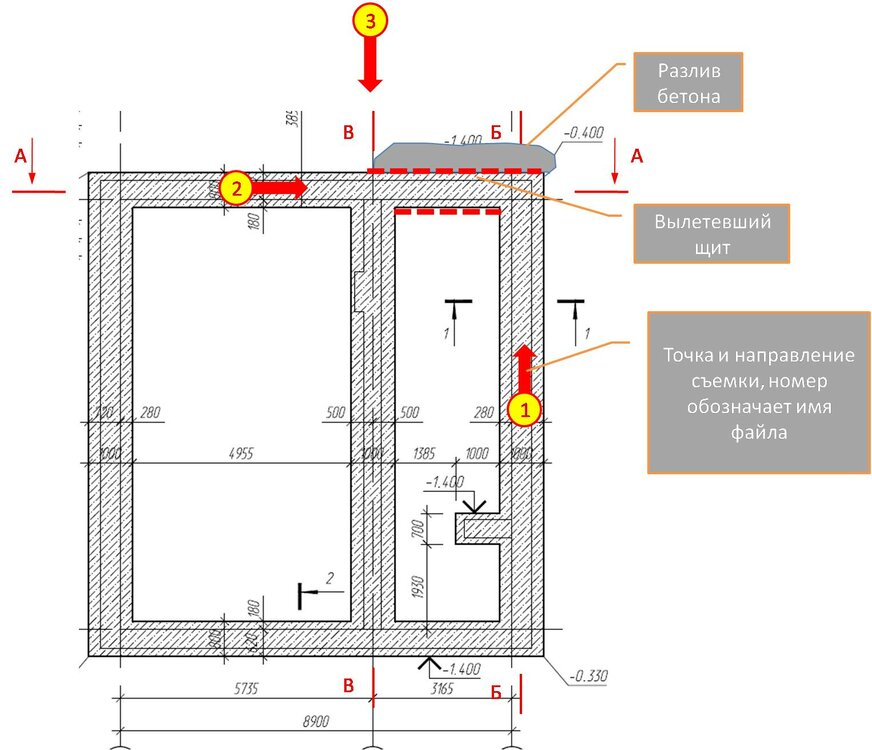
Блуждающий ТВЭЛ Опубліковано: 4 жовтня 2015 Автор Поділитись Опубліковано: 4 жовтня 2015 Рубрика "Фирменные фишки косяки от бригады Игоря Остапчука". На фотках 1-2 следите за красным пунктиром. Это маркеры вертикали и горизонтали. Третья фотка "нашефсе". Заслуживает отдельной истории. За полтора часа до своего увольнения бригада наотрез отказалась уплотнять армопояс вибратором. Рассказывали всякое, и что бетон Р4 чуть ли не уплотнится сам, и что таким вибратором по таким глубинам не работают, и что уплотнят арматурой и так далее. По итогу вот таких мест на армопоясе 2 этажа несколько. Причем когда лили пояс на 1 этаже никто в отказ не шел, прошлись вибратором, уплотнился нормально. Ну и напоследок заливка монолитного участка в насыпанный в опалубку песок просто порадовала. Посилання на коментар Поділитися на інших сайтах More sharing options...
Блуждающий ТВЭЛ Опубліковано: 5 жовтня 2015 Автор Поділитись Опубліковано: 5 жовтня 2015 (змінено) Итак, друзья, на этом тему сотрудничества с (неприведибоже) бригадой Игоря Остапчука закрываю. Пытался как мог быть лояльным к людям, проявлять понимание и прочие глупости. Трудится другая бригада, работа идет, фотки и цены будут по мере... Еще раз пересмотрите фото и текст выше и запомните, вот этого товарища нельзя НЕЛЬЗЯ нанимать нигде и никогда!! Он будет заливать вам в глаза так, что заслушаетесь, отдадите гроши а он будет на них бухать или просто лениться, и запорет к чертям всю работу. p.s. Саше удачи в поиске нормального бригадира. (ссылка на изображение устарела) Змінено 5 жовтня 2015 користувачем Блуждающий ТВЭЛ Посилання на коментар Поділитися на інших сайтах More sharing options...
Блуждающий ТВЭЛ Опубліковано: 26 жовтня 2015 Автор Поділитись Опубліковано: 26 жовтня 2015 Прошу прощения за возвращение к теме упомянутой бригады, но пройдясь еще раз по дому, пройти мимо не смог. Итак, вот как бригада Игоря Остапчука кладет стены. Желтая линия - это основание стены и линия подхода стены к плите перекрытия. Красная - реально выстроенная стена, с изгибом почти с середины. На второй фотке - итог. Треть стены пришлось на днях разбирать и перекладывать. 1 Посилання на коментар Поділитися на інших сайтах More sharing options...
Блуждающий ТВЭЛ Опубліковано: 26 жовтня 2015 Автор Поділитись Опубліковано: 26 жовтня 2015 А вот так наши друзья заливают армопояса. От себя скажу - как мог относился по-людски, не кидал, не обманывал. Эти же деятели, напомню, бухали, срывали сроки, в итоге поступили с нами просто по-скотски, иначе эту фотосессию не могу прокомментировать. Вот теперь тема закрыта. Строимся дальше... Ссылка на топик о бригаде Остапчука в разделе отзывов. ВАЖНО! ЭТИ ДЕЯТЕЛИ СОЗДАЛИ КРАСИВЫЙ САЙТ yutnii-dom.omastere.com/ 7 Посилання на коментар Поділитися на інших сайтах More sharing options...
Блуждающий ТВЭЛ Опубліковано: 10 листопада 2015 Автор Поділитись Опубліковано: 10 листопада 2015 Вокруг "Кубика" кипит работа... скоро выложу очередную смету и фотосессию. Пока так, кабели (спасибо Юре neotech) и вид со строящейся крыши. Косяки недотеп из бригады Игоря Остапчука где могли, устранили :-x Посилання на коментар Поділитися на інших сайтах More sharing options...
goga777 Опубліковано: 10 листопада 2015 Поділитись Опубліковано: 10 листопада 2015 Люблю кубики 8) а по какому проекту вы строите? Посилання на коментар Поділитися на інших сайтах More sharing options...
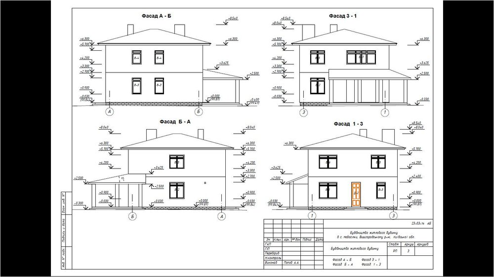
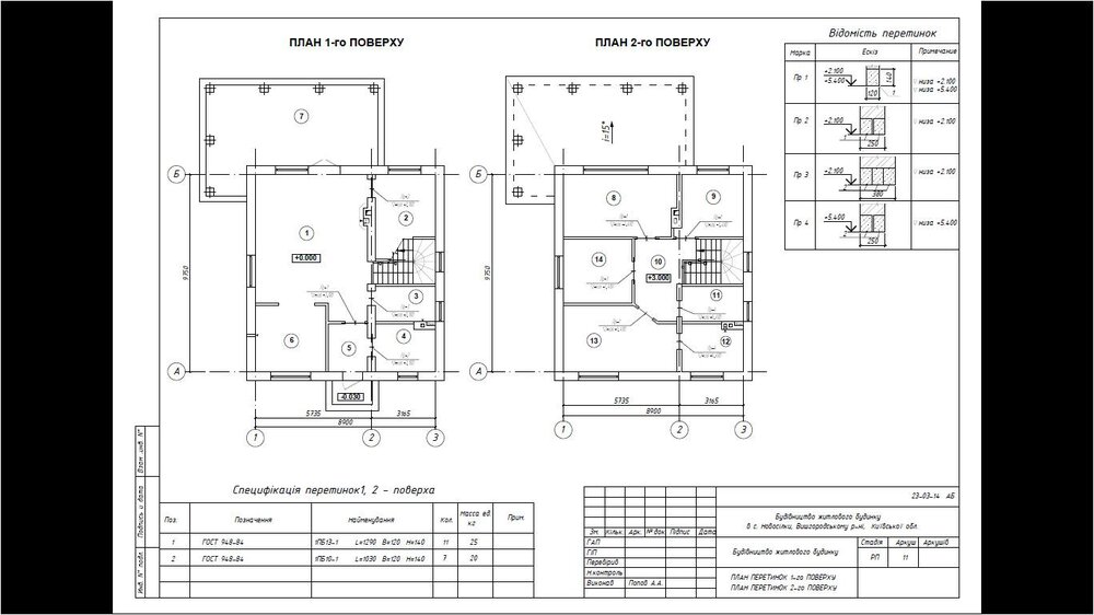
Блуждающий ТВЭЛ Опубліковано: 11 листопада 2015 Автор Поділитись Опубліковано: 11 листопада 2015 Люблю кубики 8) а по какому проекту вы строите? Весь проект не дам за него вынесен мозг и деньги плачены, но для понимания, вот. Посилання на коментар Поділитися на інших сайтах More sharing options...
goga777 Опубліковано: 11 листопада 2015 Поділитись Опубліковано: 11 листопада 2015 Весь проект не дам естественно, но интересны планировки. Посилання на коментар Поділитися на інших сайтах More sharing options...
Блуждающий ТВЭЛ Опубліковано: 16 листопада 2015 Автор Поділитись Опубліковано: 16 листопада 2015 естественно, но интересны планировки. Картинки открылись из предыдущего сообщения? Посилання на коментар Поділитися на інших сайтах More sharing options...
Рекомендовані повідомлення
Створіть акаунт або увійдіть у нього для коментування
Ви маєте бути користувачем, щоб залишити коментар
Створити акаунт
Зареєструйтеся для отримання акаунта. Це просто!
Зареєструвати акаунтУвійти
Вже зареєстровані? Увійдіть тут.
Увійти зараз