Esmeraldochka Опубліковано: 24 серпня 2016 Поділитись Опубліковано: 24 серпня 2016 А я для себя случайно открыла планировку австралийских домов - одноэтажники для узких участков (то, что актуально для меня). www.metricon.com.au/new-home-designs/melbourne/avoca?category=facades&photo=avoca900x563.jpg&floorplan=17mk2 это лишь пример, хотя мне нравится. На мой взгляд, если участок узкий, то без коридоров не обойтись. Фины не нравятся категорически - жилые комнаты уходят сразу из гостиной. Простите, это как в совковых квартирах проходные гостиные были. Сама в такой комнате выросла, считайте травмой детства Посилання на коментар Поділитися на інших сайтах More sharing options...
vadimv Опубліковано: 24 серпня 2016 Поділитись Опубліковано: 24 серпня 2016 НФины не нравятся категорически - жилые комнаты уходят сразу из гостиной. Простите, это как в совковых квартирах проходные гостиные были. Сама в такой комнате выросла, считайте травмой детства Если проходную гостиную использовать по назначению (а не как спальню или детскую), то ничего плохого в ее "проходимости" нет. Наоборот, это очень удобно. На мой взгляд, если участок узкий, то без коридоров не обойтись.Скинуть пару планировок для очень узких участков без коридоров? 1-этажный дом с двумя спальнями, шириной 7 м Мансардный дом (офтопик, однако) с тремя спальнями, шириной 6 м Посилання на коментар Поділитися на інших сайтах More sharing options...
Esmeraldochka Опубліковано: 24 серпня 2016 Поділитись Опубліковано: 24 серпня 2016 Скинуть пару планировок для очень узких участков без коридоров? Ок, признаю, была категорична. Обойтись можно и без коридоров. НО! Разместить на узком участке одноэтажный дом на 3 спальни (родительская, две детские), два санузла, прачечную, кладовку, топочную, гардеробную, кухню-столовую-гостиную опенспейс + как вариант гараж на 2 машины, не делая коридоров ооооочень сложно. Просто мне это сейчас "болит", поэтому и заинтересовалась данной темой. Посилання на коментар Поділитися на інших сайтах More sharing options...
vadimv Опубліковано: 24 серпня 2016 Поділитись Опубліковано: 24 серпня 2016 Разместить на узком участке одноэтажный дом на 3 спальни (родительская, две детские), два санузла, прачечную, кладовку, топочную, гардеробную, кухню-столовую-гостиную опенспейс + как вариант гараж на 2 машины, не делая коридоров ооооочень сложно.Согласен, именно по этой причине 2-й вариант мансардный. Насчет гаража - ну не нужен он в доме. У меня навес, и машина себя под ним чувствует отлично (что летом, что зимой). Просто мне это сейчас "болит", поэтому и заинтересовалась данной темой.Ищите по теме "дома для узких участков". 1 Посилання на коментар Поділитися на інших сайтах More sharing options...
Studio Z500 Опубліковано: 25 серпня 2016 Поділитись Опубліковано: 25 серпня 2016 Проект одноэтажника Z367 Посилання на коментар Поділитися на інших сайтах More sharing options...
goga777 Опубліковано: 25 серпня 2016 Автор Поділитись Опубліковано: 25 серпня 2016 Z367 к сожалению к данной теме не относится 1 Посилання на коментар Поділитися на інших сайтах More sharing options...
tansss Опубліковано: 25 серпня 2016 Поділитись Опубліковано: 25 серпня 2016 Проект одноэтажника Z367 к сожалению к данной теме не относится Строил именно этот проект/дом.... Ну уж точно, без коридоров - не назвать! 1 Посилання на коментар Поділитися на інших сайтах More sharing options...
goga777 Опубліковано: 26 серпня 2016 Автор Поділитись Опубліковано: 26 серпня 2016 Парочка интересных 3 Посилання на коментар Поділитися на інших сайтах More sharing options...
-enjoy- Опубліковано: 26 серпня 2016 Поділитись Опубліковано: 26 серпня 2016 к сожалению к данной теме не относится а скромненький П-образничек в 544 повідомленні? Посилання на коментар Поділитися на інших сайтах More sharing options...
vadimv Опубліковано: 26 серпня 2016 Поділитись Опубліковано: 26 серпня 2016 Парочка интересныхЕще немножно - и второй имел бы идеальную форму купола. Посилання на коментар Поділитися на інших сайтах More sharing options...
шед Опубліковано: 28 серпня 2016 Поділитись Опубліковано: 28 серпня 2016 День добрый. А какие минусы у такой планировки? 1 Посилання на коментар Поділитися на інших сайтах More sharing options...
Andrei constructor Опубліковано: 28 серпня 2016 Поділитись Опубліковано: 28 серпня 2016 А какие минусы у такой планировки? - нет холодного тамбура - помещения с водонесущими коммуникациями разбросаны по всему дому Посилання на коментар Поділитися на інших сайтах More sharing options...
Наталья Дударева Опубліковано: 31 серпня 2016 Поділитись Опубліковано: 31 серпня 2016 Сейчас строим. Слева постирочная, далее котельная с выходом на улицу. Качество картинки не оч 1 Посилання на коментар Поділитися на інших сайтах More sharing options...
qawsed12qawse Опубліковано: 31 серпня 2016 Поділитись Опубліковано: 31 серпня 2016 Сейчас строим. Слева постирочная, далее котельная с выходом на улицу. Качество картинки не оч Правильная планировка. Единственно я бы входную дверь в комнату с прихожей перенес бы в корридорчик с ванной. Также дверь в котельную с постирочной не помешала бы, а то как зимой посмотреть на котел? Бегать через через улицу Посилання на коментар Поділитися на інших сайтах More sharing options...
Наталья Дударева Опубліковано: 31 серпня 2016 Поділитись Опубліковано: 31 серпня 2016 Правильная планировка. Единственно я бы входную дверь в комнату с прихожей перенес бы в корридорчик с ванной. Также дверь в котельную с постирочной не помешала бы, а то как зимой посмотреть на котел? Бегать через через улицу Мы дверь как раз и убрали из спального коридора в общий. Она запланирована как гостевая. Чтоб гости пользовались общим санузлом, беспрепятственно ходили в кухню и нам не мешали)) А при входе будет встроенный шкаф так что двери особно не будут в глаза бросаться. С котельней да. Но туда бегать муж будет ;), так что пусть сам решает нужна ему дверь из дома или нет))) Посилання на коментар Поділитися на інших сайтах More sharing options...
goga777 Опубліковано: 8 вересня 2016 Автор Поділитись Опубліковано: 8 вересня 2016 уютненько так выход на террасу в правильном месте 3 Посилання на коментар Поділитися на інших сайтах More sharing options...
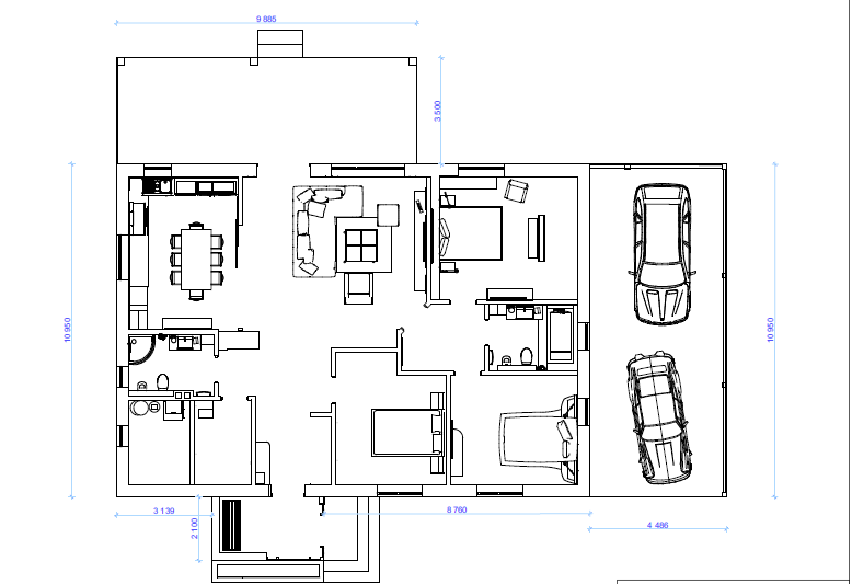
goga777 Опубліковано: 19 вересня 2016 Автор Поділитись Опубліковано: 19 вересня 2016 компактный Фин 1 Посилання на коментар Поділитися на інших сайтах More sharing options...
goga777 Опубліковано: 21 вересня 2016 Автор Поділитись Опубліковано: 21 вересня 2016 Американец и немец 2 Посилання на коментар Поділитися на інших сайтах More sharing options...
goga777 Опубліковано: 21 вересня 2016 Автор Поділитись Опубліковано: 21 вересня 2016 Это замечательно (правда с коридором, но никому не говорите) 5 Посилання на коментар Поділитися на інших сайтах More sharing options...
"Diamond servis" Опубліковано: 27 вересня 2016 Поділитись Опубліковано: 27 вересня 2016 Это замечательно (правда с коридором, но никому не говорите) Перепланировать заранее без коридора и всё! -бывает потом просят вырезать/снести безболезненно для строения и без усиления((( Фантазия должна иметь здравый смысл! Посилання на коментар Поділитися на інших сайтах More sharing options...
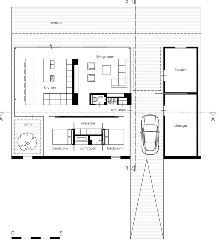
goga777 Опубліковано: 27 вересня 2016 Автор Поділитись Опубліковано: 27 вересня 2016 А что об этом скажете господа? 3 Посилання на коментар Поділитися на інших сайтах More sharing options...
dobrobud1 Опубліковано: 28 вересня 2016 Поділитись Опубліковано: 28 вересня 2016 не повлияют ли не прямые углы на бюджет дома?. Начиная от фундамента заканчивая нестандартным диваном? + в острых углах площяать менее функциональна. Но - красиво и необычно. я бы жил в таком доме. 1 Посилання на коментар Поділитися на інших сайтах More sharing options...
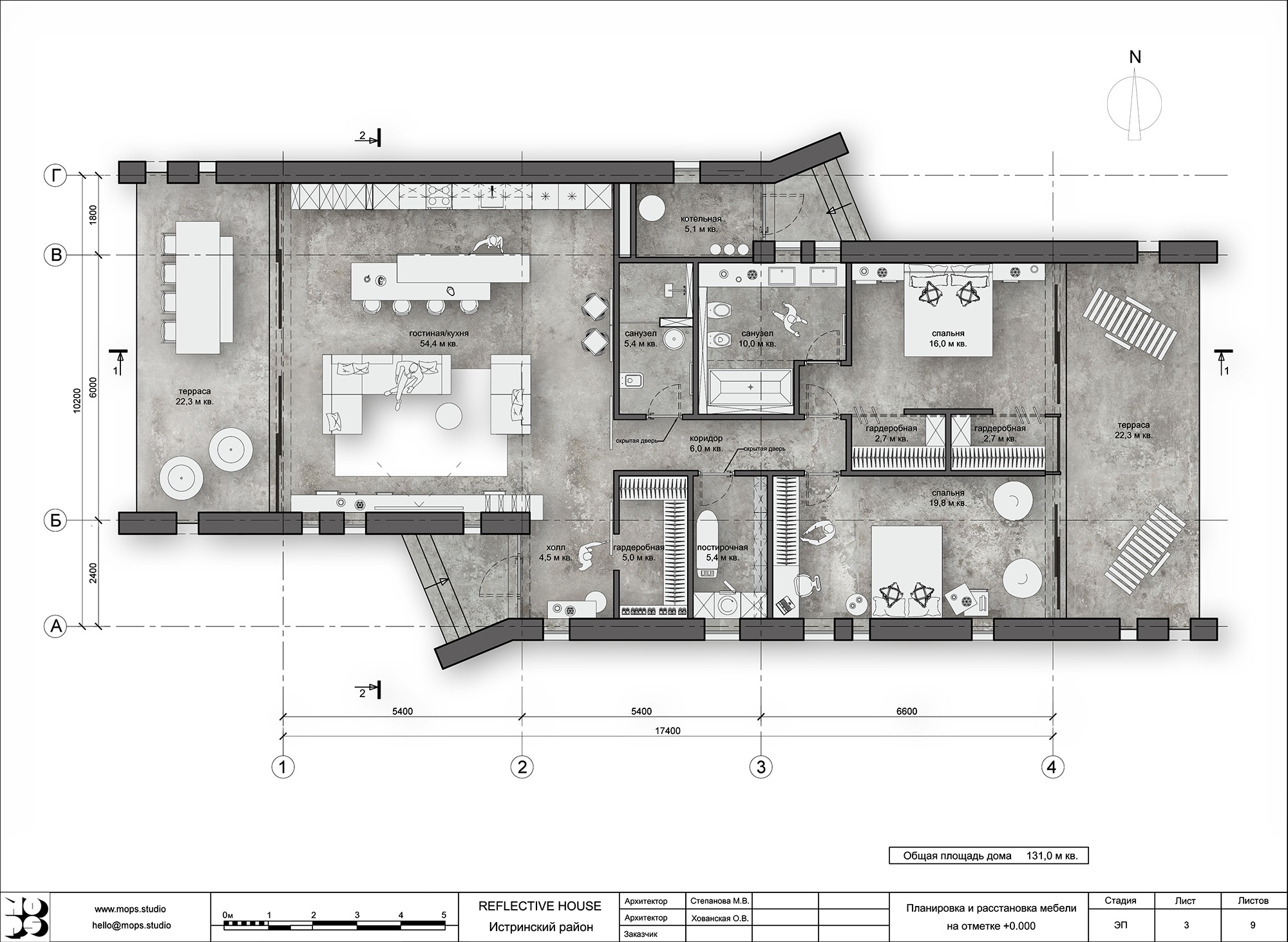
qawsed12qawse Опубліковано: 30 вересня 2016 Поділитись Опубліковано: 30 вересня 2016 Вот еще пример оригинального домика. 3 Посилання на коментар Поділитися на інших сайтах More sharing options...
qawsed12qawse Опубліковано: 30 вересня 2016 Поділитись Опубліковано: 30 вересня 2016 Его планировка. 3 Посилання на коментар Поділитися на інших сайтах More sharing options...
Maksym Ubiy-Vovk Опубліковано: 30 вересня 2016 Поділитись Опубліковано: 30 вересня 2016 Всем привет! Классная тема, тем более могу поделиться переделанной не много планировкой домика на 100 м2 Z273, для тех у кого участок шириной 15м... 4 Посилання на коментар Поділитися на інших сайтах More sharing options...
Рекомендовані повідомлення
Створіть акаунт або увійдіть у нього для коментування
Ви маєте бути користувачем, щоб залишити коментар
Створити акаунт
Зареєструйтеся для отримання акаунта. Це просто!
Зареєструвати акаунтУвійти
Вже зареєстровані? Увійдіть тут.
Увійти зараз