goga777 Опубліковано: 28 грудня 2017 Автор Поділитись Опубліковано: 28 грудня 2017 фасадики такого где глянуть думаю, что то подобное 3 Посилання на коментар Поділитися на інших сайтах More sharing options...
rotrot Опубліковано: 16 січня 2018 Поділитись Опубліковано: 16 січня 2018 Все привет. Прочитав тему от и до, решил поделиться своим проэктом одноэтажеого домика. Пока он еще в стадии разработки и подходит только под один пригялнувшейся участок. Буду рад услышать критику и замечания. В проекте крыша планируется двухскатная, с холодным чердаком. Окна в гостинной и спальнях еще обсуждаются. Посилання на коментар Поділитися на інших сайтах More sharing options...
AndyAntonov Опубліковано: 16 січня 2018 Поділитись Опубліковано: 16 січня 2018 1. Это оффтопик (здесь собираются проекты без коридоров, см. стартпост). ;) 2. Создайте тему рядом в этом разделе. 2 Посилання на коментар Поділитися на інших сайтах More sharing options...
-enjoy- Опубліковано: 18 січня 2018 Поділитись Опубліковано: 18 січня 2018 п.с. для більш детального перегляду hqroom.ru/brevenchataia-vylla-na-poberezhe-v-fynliandyy.html 1 Посилання на коментар Поділитися на інших сайтах More sharing options...
sergeydnepr Опубліковано: 18 січня 2018 Поділитись Опубліковано: 18 січня 2018 Красавцы.только страшно представить сколько на сегодня стоит такой алюминиевый фасад, и где бы еще такой вид из окна взять? Посилання на коментар Поділитися на інших сайтах More sharing options...
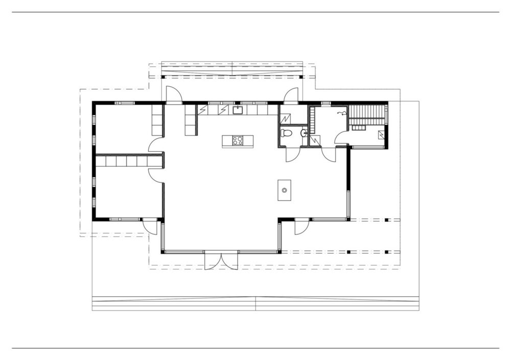
300222 Опубліковано: 26 січня 2018 Поділитись Опубліковано: 26 січня 2018 Вот результаты моего желания втиснуть 3 комнаты в размеры 9,5Х10. Посилання на коментар Поділитися на інших сайтах More sharing options...
vadimv Опубліковано: 26 січня 2018 Поділитись Опубліковано: 26 січня 2018 Вот результаты моего желания втиснуть 3 комнаты в размеры 9,5Х10.Один в один моя хата, только ванная в другом углу. Посилання на коментар Поділитися на інших сайтах More sharing options...
300222 Опубліковано: 26 січня 2018 Поділитись Опубліковано: 26 січня 2018 Один в один моя хата, только ванная в другом углу. Я Вашу тему изучил всю. По этому в первую очередь интересно именно Ваше мнение. Посилання на коментар Поділитися на інших сайтах More sharing options...
Татьяна5 Опубліковано: 26 січня 2018 Поділитись Опубліковано: 26 січня 2018 Я Вашу тему изучил всю. По этому в первую очередь интересно именно Ваше мнение. Z7 существенно лучше будет 4 Посилання на коментар Поділитися на інших сайтах More sharing options...
vadimv Опубліковано: 26 січня 2018 Поділитись Опубліковано: 26 січня 2018 интересно именно Ваше мнение.Тут как-бы не совсем по теме. Посилання на коментар Поділитися на інших сайтах More sharing options...
300222 Опубліковано: 27 січня 2018 Поділитись Опубліковано: 27 січня 2018 Z7 существенно лучше будет Меня все таки смущает коридор Посилання на коментар Поділитися на інших сайтах More sharing options...
vadimv Опубліковано: 27 січня 2018 Поділитись Опубліковано: 27 січня 2018 Меня все таки смущает коридорМожно свести его к минимуму: 2 Посилання на коментар Поділитися на інших сайтах More sharing options...
mib Опубліковано: 28 січня 2018 Поділитись Опубліковано: 28 січня 2018 Меня все таки смущает коридор Если вы живете в одном режиме, и дети уже выросли то варианты vadimv вам сэкономят площадь, но если кто то ночью смотрит телевизор, а кто то рано утром любит выпить кофе лучше будет z7 Посилання на коментар Поділитися на інших сайтах More sharing options...
vadimv Опубліковано: 28 січня 2018 Поділитись Опубліковано: 28 січня 2018 варианты vadimv вам сэкономят площадьУ меня там тоже есть вариация на тему z7 если кто то ночью смотрит телевизор, а кто то рано утром любит выпить кофеСкажу по личному опыту проживания в доме, где две спальни примыкают к кухне - шум на кухне особо не мешает. Его практически не слышно (котел, холодильник, мойка, микроволновка, чайник, блендер и т.п.). Более-менее слышно только вытяжку. Даже через тонкую перегородку 10 см газоблока. А если там делать несущую стену из кирпича - то и подавно. Зато в таких планировках нет темного коридора по центру. В общем, пусть каждый сам решает, что ему важнее. 2 Посилання на коментар Поділитися на інших сайтах More sharing options...
Скромный прораб Опубліковано: 28 січня 2018 Поділитись Опубліковано: 28 січня 2018 Вот результаты моего желания втиснуть 3 комнаты в размеры 9,5Х10. Вот только один единственный, первый и последний раз влезу в тему, чесслово. Прошу строго не наказывать, в конце концов мы на форуме, где каждый вправе высказать свое мнение, хотя бы один раз. На форуме есть тема про "стойло-участки", в смысле местоположение, размеры, соседи... Так вот, это классический пример стойло-дома, где жр..., ср.... и спят в одном месте. Извините, если кого обидел. Посилання на коментар Поділитися на інших сайтах More sharing options...
300222 Опубліковано: 29 січня 2018 Поділитись Опубліковано: 29 січня 2018 (змінено) Вот только один единственный, первый и последний раз влезу в тему, чесслово. Прошу строго не наказывать, в конце концов мы на форуме, где каждый вправе высказать свое мнение, хотя бы один раз. На форуме есть тема про "стойло-участки", в смысле местоположение, размеры, соседи... Так вот, это классический пример стойло-дома, где жр..., ср.... и спят в одном месте. Извините, если кого обидел. Возможно я Вас удивлю, но не у всех основная жизнь протекает в доме. Я считаю, что сегодня разумнее основные средства вкладывать, например, в будущее детей (дать им качественную медицину, образование, возможность увидеть мир и тд). А то что ванная находится возле кухни и двери комнат выходят сразу в гостиную – это не большая проблема. Да и через лет 20 эта компактность может превратится в плюс. Хотя я могу ошибаться, это моя первая попытка планировки моего личного дома с учетом моих личных потребностей. Змінено 29 січня 2018 користувачем 300222 5 Посилання на коментар Поділитися на інших сайтах More sharing options...
goga777 Опубліковано: 29 січня 2018 Автор Поділитись Опубліковано: 29 січня 2018 1 Посилання на коментар Поділитися на інших сайтах More sharing options...
goga777 Опубліковано: 2 лютого 2018 Автор Поділитись Опубліковано: 2 лютого 2018 модерн+одноэтажник 7 Посилання на коментар Поділитися на інших сайтах More sharing options...
goga777 Опубліковано: 8 лютого 2018 Автор Поділитись Опубліковано: 8 лютого 2018 вариация уже опубликованного проекта 6 Посилання на коментар Поділитися на інших сайтах More sharing options...
Сергей НСТ Опубліковано: 8 лютого 2018 Поділитись Опубліковано: 8 лютого 2018 вариация уже опубликованного проекта Вау! То, шо дохтор прописал! Хочу! токма с тамбурами на входах Посилання на коментар Поділитися на інших сайтах More sharing options...
goga777 Опубліковано: 9 лютого 2018 Автор Поділитись Опубліковано: 9 лютого 2018 Вау! То, шо дохтор прописал! это хороший проект с простой крышей и отличной "развесовкой" конструктива, главное чтобы подошел по сторонам света вашему участку 1 Посилання на коментар Поділитися на інших сайтах More sharing options...
tansss Опубліковано: 9 лютого 2018 Поділитись Опубліковано: 9 лютого 2018 это хороший проект с простой крышей и отличной "развесовкой" конструктива, главное чтобы подошел по сторонам света вашему участку Кстати! На такой планировке отлично бунгало реализуется! 1 Посилання на коментар Поділитися на інших сайтах More sharing options...
archon_6902 Опубліковано: 13 лютого 2018 Поділитись Опубліковано: 13 лютого 2018 вот пара достойных представителей вида безкоридорных www.archon.com.ua/proekt-doma/m41c95a12891aa,dom-v-pustyrnikie,cat,1073,odnoetazhnyje-doma www.archon.com.ua/proekt-doma/m646217c1057db,lietnii-domik-v-krokusakh-2,cat,1073,odnoetazhnyje-doma 3 Посилання на коментар Поділитися на інших сайтах More sharing options...
metall.kiev2017 Опубліковано: 17 лютого 2018 Поділитись Опубліковано: 17 лютого 2018 Вот наш Монстр без коридора))) 3 Посилання на коментар Поділитися на інших сайтах More sharing options...
vadimv Опубліковано: 17 лютого 2018 Поділитись Опубліковано: 17 лютого 2018 без коридора)))16,79 - почти, можно сказать Посилання на коментар Поділитися на інших сайтах More sharing options...
Рекомендовані повідомлення
Створіть акаунт або увійдіть у нього для коментування
Ви маєте бути користувачем, щоб залишити коментар
Створити акаунт
Зареєструйтеся для отримання акаунта. Це просто!
Зареєструвати акаунтУвійти
Вже зареєстровані? Увійдіть тут.
Увійти зараз