Сарочка Опубліковано: 26 березня 2018 Автор Поділитись Опубліковано: 26 березня 2018 что значит увеличили свесы? Изначально угол крыши должен был быть другим. Очень острым.Свесы крыши должны были быть всего 30 см. По рекомендации Крышника сделали 70 см, подняли аттиковые стены и изменили угол крыши . чтоб после отделки фасада свесы остались 60 см. На деле оказалось очень удобно. За зиму снег меньше скапливался возле стен. Косой дождь мочит стены только на уровне 150 см от земли. 5 Посилання на коментар Поділитися на інших сайтах More sharing options...
trik Опубліковано: 26 березня 2018 Поділитись Опубліковано: 26 березня 2018 Немного фото укладки утеплителя на примере одного пролёта между стропилами. Толщина 200 и сверху будет ещё 50. А чего поперечную дощечку- упор для ваты как нарисовано в проекте не набили? Что будет со шнурками лет через 10? Я бы что то надежнее туда поставил. Хоть опаковочную ленту туда добейте, а то будете ловить потом утеплитель в коробе карниза. 2 Посилання на коментар Поділитися на інших сайтах More sharing options...
Сарочка Опубліковано: 27 березня 2018 Автор Поділитись Опубліковано: 27 березня 2018 А чего поперечную дощечку- упор для ваты как нарисовано в проекте не набили? Что будет со шнурками лет через 10? Я бы что то надежнее туда поставил. Хоть опаковочную ленту туда добейте, а то будете ловить потом утеплитель в коробе карниза. Я эти упоры начала набивать ещё зимой. Крышник позвонил, прочитав о моих художествах , и сказал убрать нафиг сей девайс, для правильной вентиляции ваты в дальнейшем она будет только мешать. Я отодрала всю половину, что успела набить. Простоять с ниткой должно только до осени. Осенью будет утепляться фасад и вата с фасада дойдёт до основания крыши и перекроет этот узел . Думаю выстоит. Я ее туда еле впихивала и она стоит мертво сейчас и без ниток. Нитки скорее для моего удобства были, чтоб я не выпихнула вату за пределы нужной границы Посилання на коментар Поділитися на інших сайтах More sharing options...
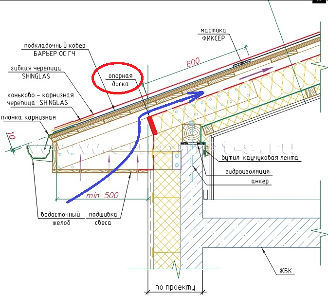
StNick Опубліковано: 27 березня 2018 Поділитись Опубліковано: 27 березня 2018 я правильно понял что вы изначально вы набили доску как на картинке , под названием "опрона доска", таким образом что поверх нее идет пленка поверх которой вент зазор? Посилання на коментар Поділитися на інших сайтах More sharing options...
Сарочка Опубліковано: 27 березня 2018 Автор Поділитись Опубліковано: 27 березня 2018 я правильно понял что вы изначально вы набили доску как на картинке , под названием "опрона доска", таким образом что поверх нее идет пленка поверх которой вент зазор? ] Да, верно . В расстояние между стропилами через бруски я прибила доску с размером равным расстоянию между стропил и высотой до мембраны. Если смотреть в разрезе крыши, то над упором была мембрана, над мембраной вентилируемое пространство. Если присмотреться картинке, то пунктирная линия указывающая на наличие мембраны , и она там спускается в карнизную коробку , если не ошибаюсь. В моем случае мембрана прикреплена к крыше и на фасад не спускается. И сама опорная доска , в моем случае,могла прибиваться ближе, чем нарисовано - ближе на 20 см . Если на моем расстоянии вместо ниток поставить доску , возникал разрыв в контуре утеплителя. Такое решение было лишь из- за того , что работа велась изнутри. Поэтому вата фасада перекроет этот « косячок».Если бы были леса снаружи, то можно было бы реализовать так как на картинке и опорная доска тогда была бы совершенно необходима Посилання на коментар Поділитися на інших сайтах More sharing options...
StNick Опубліковано: 27 березня 2018 Поділитись Опубліковано: 27 березня 2018 Но затем я все переделала. интерсно пчему необхдима эта переделка. Посилання на коментар Поділитися на інших сайтах More sharing options...
Сарочка Опубліковано: 27 березня 2018 Автор Поділитись Опубліковано: 27 березня 2018 У меня назрел вопрос. Имеет ли право на жизнь гипсокартон на скаты и потолок по деревянным брускам в два слоя. Вес все таки листов приличный, бруски приколочены к стропилам с шагом 50 см на гвозди 75 мм. Затем на них пойдут поперечные шаг точек крепления около 60 см и получится что два слоя гипсокартона должны держаться на точечных гвоздевых креплениях? Сомнения в надежности решения. Или делать независимый каркас на подвесных элементах крепящихся к стропилам? Но тогда качественно сделать пароизоляцию будет сложно. Много дыр будет в пленке. Что тогда в таком случае делается? Добавлено через 2 минуты интерсно пчему необхдима эта переделка. А я же написала, чтобы избежать между двумя слоями встречающегося утеплителя( стенового и крышного) разделителя в виде доски. И только потому , что утепление минватой. Если фасад затянуть пенопластом или просто штукатуркой, то упорная доска была бы нужна Посилання на коментар Поділитися на інших сайтах More sharing options...
StNick Опубліковано: 27 березня 2018 Поділитись Опубліковано: 27 березня 2018 А я же написала, чтобы избежать между двумя слоями встречающегося утеплителя( стенового и крышного) разделителя в виде доски. это плохо? по сути вы могли бы и свесы утеплить изнутри и зашить сразу с обустрйоством кровли. Это крышники могли бы сделать. снизу вдоль стены ватой бы к этой разделительной доске подошли. Мне такой вариант один крышник предлагал. Пока думаю. Он кстати предлагал это сам - потому что говорит очень муторно туда вату запихивать, удобнеЕ это делать в процессе обустройства кровли , сверху, еще до укрытия пленкой. Посилання на коментар Поділитися на інших сайтах More sharing options...
Vikctor Опубліковано: 27 березня 2018 Поділитись Опубліковано: 27 березня 2018 У меня назрел вопрос. Имеет ли право на жизнь гипсокартон на скаты и потолок по деревянным брускам в два слоя. Вес все таки листов приличный, бруски приколочены к стропилам с шагом 50 см на гвозди 75 мм. Затем на них пойдут поперечные шаг точек крепления около 60 см и получится что два слоя гипсокартона должны держаться на точечных гвоздевых креплениях? Сомнения в надежности решения. Или делать независимый каркас на подвесных элементах крепящихся к стропилам? Но тогда качественно сделать пароизоляцию будет сложно. Много дыр будет в пленке. Что тогда в таком случае делается?... В техкартах производителей гипсокартона есть оба решения. У нас не принято крутить гипс прямо к деревянному каркасу. Во-первых пиломатериалы у нас неровные и идеальной плоскости не получится. Во вторых с подобным решением крайне сложно избежать трещин между листами в процессе эксплуатации. Даже по независимому металлокаркасу на скатах принято перестраховываться и для шпаклевания швов использовать дорогие смеси, типа Semin CE 86. А без каркаса и это может не помочь. 5 Посилання на коментар Поділитися на інших сайтах More sharing options...
Сарочка Опубліковано: 27 березня 2018 Автор Поділитись Опубліковано: 27 березня 2018 это плохо? по сути вы могли бы и свесы утеплить изнутри и зашить сразу с обустрйоством кровли. Это крышники могли бы сделать. снизу вдоль стены ватой бы к этой разделительной доске подошли. Мне такой вариант один крышник предлагал. Пока думаю. Он кстати предлагал это сам - потому что говорит очень муторно туда вату запихивать, удобнеЕ это делать в процессе обустройства кровли , сверху, еще до укрытия пленкой. Соглашайтесь, если предлагают такое решение. Это капец как муторно. Мне с моими габаритами с трудом тудется туда пролезть и взвеситься наружу между стропил даже на такое расстояние и ещё помахать там молотком. Чтоб утеплить стену и примыкание кровли нужны были леса. Крышу делали без лесов. Поэтому нет водосточки и нет подшивки крыши. Тоесть этот узел остался открытым. А ещё было бы правильнее сверху закидывать утеплитель а не изнутри. Это просто пипец как ацки. И я хоть и пытаюсь очень тщательно укладывать вату, но уже сейчас понимаю что в зоне бантин( затяжек) изнутри качественно на 100% это сделать не возможно. Хотя меня же предупреждали об этом. Но финансы диктуют романсы. так что танцуем с тем, что есть. 1 Посилання на коментар Поділитися на інших сайтах More sharing options...
StNick Опубліковано: 27 березня 2018 Поділитись Опубліковано: 27 березня 2018 Чтоб утеплить стену и примыкание кровли нужны были леса. Крышу делали без лесов. Поэтому нет водосточки и нет подшивки крыши. Тоесть этот узел остался открытым. Спасибо за развернутые ответы! У вас там еще высота приемлемая, лесов меньше надо... можно и купить. у меня до края свеса 7 метров! Некоторые люди делают подшиву раньше чем зашивка стропил сверху. Не знаю правда насколько это облегчает, но работать "сверху-вниз" часто легче Сейчас вообще работы усложнились, чем то что было в СССР. выходит что работы "кровля-фасад-утепление" проще делать в комплексе. Посилання на коментар Поділитися на інших сайтах More sharing options...
Сарочка Опубліковано: 27 березня 2018 Автор Поділитись Опубліковано: 27 березня 2018 В техкартах производителей гипсокартона есть оба решения. У нас не принято крутить гипс прямо к деревянному каркасу. Во-первых пиломатериалы у нас неровные и идеальной плоскости не получится. Во вторых с подобным решением крайне сложно избежать трещин между листами в процессе эксплуатации. Даже по независимому металлокаркасу на скатах принято перестраховываться и для шпаклевания швов использовать дорогие смеси, типа Semin CE 86. А без каркаса и это может не помочь. Я читала технологические карты Кнауф, видела что можно. Поэтому я говорю исключительно о двух слоях гипсокартона с разбежкой швов. Понятно что стехлохолст в нагрузку тоже ляжет. Но меня сильно смущает момент крепления . Не маловато точек крепления к жесткому элементу( в данном случае стропилине) сначала брус на гвозди к стропилине, потом ещё раз брус снова на гвозди, и точка прочности смещается с каждым новым слоем. Или я загоняюсь излишне? Добавлено через 7 минут Спасибо за развернутые ответы! У вас там еще высота приемлемая, лесов меньше надо... можно и купить. у меня до края свеса 7 метров! Некоторые люди делают подшиву раньше чем зашивка стропил сверху. Не знаю правда насколько это облегчает, но работать "сверху-вниз" часто легче Сейчас вообще работы усложнились, чем то что было в СССР. выходит что работы "кровля-фасад-утепление" проще делать в комплексе. Ох, можно просто нанять рукастых парней и ничего не покупать. Шутка. У меня чтоб леса с одной стороны поставить нужно разбить забор и после убирания лесов срочно заняться строительством нового. Пока мне это не в график. У меня увы, дедлайн установлен. Мне нужно вселиться к 1 сентября .И заселение будет 100%, в то, состояние в котором будет на дату заселения. Поэтому не до забора и прочих отклонений. Я и так опаздываю с этой неожиданной зимой Посилання на коментар Поділитися на інших сайтах More sharing options...
Vikctor Опубліковано: 27 березня 2018 Поділитись Опубліковано: 27 березня 2018 .... Не маловато точек крепления к жесткому элементу( в данном случае стропилине) сначала брус на гвозди к стропилине, потом ещё раз брус снова на гвозди, и точка прочности смещается с каждым новым слоем. Или я загоняюсь излишне?... А кто мешает дополнить гвозди универсальными саморезами например? И не понял при чём здесь два слоя с разбежкой швов к неровности основания из брусков и к малой трещиностойкости подобной конструкции?... 4 Посилання на коментар Поділитися на інших сайтах More sharing options...
Крышник Опубліковано: 28 березня 2018 Поділитись Опубліковано: 28 березня 2018 (змінено) Немного фото укладки утеплителя на примере одного пролёта между стропилами. Толщина 200 и сверху будет ещё 50. А шо это, на второй фото, за впихуние невпихуемого?? Если высота места 200, то и вата 200, не больше, меньше можно, т.к. влажность может увеличить толщину ваты и перекрыть вентзазор выше СДМ. Не забывай, шо нужная вата(и пр.) есть на известном тебе складе по спецусловиям, как умнице и красавице Я читала технологические карты Кнауф, видела что можно. Поэтому я говорю исключительно о двух слоях гипсокартона с разбежкой швов. У меня увы, дедлайн установлен. Мне нужно вселиться к 1 сентября .И заселение будет 100%, в то, состояние в котором будет на дату заселения На мой взгляд, в твоей ситуации, проще, легче, надежней, возможно, быстрей по времени, и, думаю, дешевле будет смонтировать потолок мансарды таким пирожком: -вата -ПароБарьер VAP(я считаю его наилучшим для деревянных поверхностей, т.к. вентилируется) -направляющие калибровкой 30х50-80(в том же Мэрлине) -вагонка, высчитывая длину монтажа, сэкономить на мин. обрезков -водорастворимые лазури, в идеале Адлер или Ремерс На вагонке можно сэкономить покупая ниже сортность(все равно закрасится), сращенную и/или короче(дешевле) длину. В Мэрлине, тебе по пути на фазенду, постоянно неплохая вагонка есть. Самое важное здесь сделать направляющую плоскость под монтаж вагонки бруском-калибровкой. Лазер в помощь, одолжу если надо. Стиль под твой Прованс вполне. Есть смысл купить минимальную торцовку (люблю Метабо))), можем с тобой в пополам купить, доверяю твоей аккуратности, мне раньше осени не понадобиться, а для работы у меня станок есть. Как мелкий бонус, можно на вашей машине мелкими частями возить, или понемного 1,5-2 метровых пешком в маршрутке(допокупка, шо б без остатков) :D п.с. А вообще я просто не люблю ГК, с ним чухаться, выделывать....да и твоя детвора может быстренько повредить ГК на мансарде, а вагонка она детеустойчивая :D Я с деревом люблю возиться. Себе намедитировал дом без ГК Змінено 28 березня 2018 користувачем Крышник 5 Посилання на коментар Поділитися на інших сайтах More sharing options...
нарем Опубліковано: 28 березня 2018 Поділитись Опубліковано: 28 березня 2018 Полностью поддерживаю. Я тоже планирую зашивать мансарду вагонкой или фальшбрусом. Из гипсокартона - только потолок в ванной и две межкомнатные стенки. 1 Посилання на коментар Поділитися на інших сайтах More sharing options...
Willi Опубліковано: 28 березня 2018 Поділитись Опубліковано: 28 березня 2018 І я за вагонку, буде і швидше, і дешевше, і легше зробити. 2 Посилання на коментар Поділитися на інших сайтах More sharing options...
Сарочка Опубліковано: 10 квітня 2018 Автор Поділитись Опубліковано: 10 квітня 2018 (змінено) Приключилась у меня такая халепа. В общем пора бы и перестенки поставить, температура уже вполне себе позволяет. Понятно что нужно плясать от «нулевой точки» для разметки. Нуль был отбит была в дверном проеме , там где не должно было быть двери. Но концепция поменялась и дверь сместилась в аккурат на нарисованную черту. Перед замерами и перед установкой я показывала точку пола. Мне покивали мастера головой и ... сделали как смогли. . Я тоже «матрешка» та ещё и не обратила внимания на этот момент сразу после установки двери. Итог ноль «уплыл» на 2 см . Теперь не знаю чем пожертвовать. В общем до двери у меня осталось расстояние 13 см. Убираем 1 см на свободу открывания двери, ,половичек на входе. Убираем 2 см на чистовую отделку плиткой на клею .Итого получаем что весь! пирог тёплого пола должен уместиться в 10см. Должно было быть так - Эппс 70 мм - стяжка с трубами 50 мм. Теперь нужно выкинуть 20 мм утеплителя. Все остальное выкинуть невозможно. Есть ещё вариант снять часть подсыпанного песка. Но тогда останется 3 см песка. Можно ли тогда из такой тонкий слой протромбовать ? Ещё одним вариантом думаю поднять песок ,смешать с цементом и вылить его по гидроизоляции, тогда 3 см , теоретически, будут более прочным основанием для полистирола. Вариант ступеньки у порога неудобен крайне. Может есть ещё какие варианты как впихнуть невпихуемое? Насколько я понимаю 50 мм эппс это мало? Змінено 10 квітня 2018 користувачем Сарочка Посилання на коментар Поділитися на інших сайтах More sharing options...
nataliko Опубліковано: 10 квітня 2018 Поділитись Опубліковано: 10 квітня 2018 Приключилась у меня такая халепа. В общем пора бы и перестановки поставить, температура уже вполне себе позволяет. Понятно что нужно плясать от «нулевой точки» для разметки. Нуль был отбит была в дверном проеме , там где не должно было быть двери. Но концепция поменялась и дверь сместилась в аккурат на нарисованную черту. Перед замерами и перед установкой я показывала точку пола. Мне покивали мастера головой и ... сделали как смогли. . Я тоже «матрешка» та ещё и не обратила внимания на этот момент сразу после установки двери. Итог ноль «уплыл» на 2 см . Теперь не знаю чем пожертвовать. В общем до двери у меня осталось расстояние 13 см. Убираем 1 см на свободу открывания двери, ,половичек на входе. Убираем 2 см на чистовую отделку плиткой на клею .Итого получаем что весь! пирог тёплого пола должен уместиться в 10см. Должно было быть так - Эппс 70 мм - стяжка с трубами 50 мм. Теперь нужно выкинуть 20 мм утеплителя. Все остальное выкинуть невозможно. Есть ещё вариант снять часть подсыпанного песка. Но тогда останется 3 см песка. Можно ли тогда из такой тонкий слой протромбовать ? Ещё одним вариантом думаю поднять песок ,смешать с цементом и вылить его по гидроизоляции, тогда 3 см , теоретически, будут более прочным основанием для полистирола. Вариант ступеньки у порога неудобен крайне. Может есть ещё какие варианты как впихнуть невпихуемое? Насколько я понимаю 50 мм эппс это мало? Может проще дверь переставить? 1 Посилання на коментар Поділитися на інших сайтах More sharing options...
Сарочка Опубліковано: 10 квітня 2018 Автор Поділитись Опубліковано: 10 квітня 2018 Может проще дверь переставить? Тогда дверь нужно полностью переделывать. Дверь вверху стоит с 1 см зазором, тоесть поднимать выше ее уже некуда Посилання на коментар Поділитися на інших сайтах More sharing options...
jenkins Опубліковано: 10 квітня 2018 Поділитись Опубліковано: 10 квітня 2018 сверху бетонная перемычка? 1см зазора есть, и еще один см нужно, так? В этом случая я бы сболгарил тот 1см бетона перемычке в зоне коробки дверной. Делов на пару часов. 6 Посилання на коментар Поділитися на інших сайтах More sharing options...
нарем Опубліковано: 11 квітня 2018 Поділитись Опубліковано: 11 квітня 2018 Cарочка, меня развеселило, что мы одновременно вчера "плясали от нулевой точки"! У меня будет ЭППС 50 мм, по проекту 80 мм, но мастер мне говорит, что Рехау берет в расчет именно 50 мм. В общем вопрос у меня остается еще открытым. Выравнивать бетонную плиту буду песком. Вот вопрос- чем трамбовать? Есть ли подручные средства? Посилання на коментар Поділитися на інших сайтах More sharing options...
Сарочка Опубліковано: 12 квітня 2018 Автор Поділитись Опубліковано: 12 квітня 2018 (змінено) Cарочка, меня развеселило, что мы одновременно вчера "плясали от нулевой точки"! У меня будет ЭППС 50 мм, по проекту 80 мм, но мастер мне говорит, что Рехау берет в расчет именно 50 мм. В общем вопрос у меня остается еще открытым. Выравнивать бетонную плиту буду песком. Вот вопрос- чем трамбовать? Есть ли подручные средства? Есть конечно. Фиговина под названием «Буратино». Увидела ее у барышни которая в Латвии сама дом строит. Девайс представляет собой бревно диаметром и весом что сможете относительно «легко» поднимать. Насквозь просверлить ,вставить ручки для удобства ,ближе кверху , там где будет удобно держать по росту.Пользовать сей девайс нелегко ,если не раскачаны бицепсы. После зимы и сезона нестройки будет особо жестоко. Но вас же трое, будете меняться. Девайс типа « Широкая швабра» тоже применяется, но не работает толком. На щебне вообще не работает. Нужно вкалачивать с усилием, это тратит больше физических ресурсов чем тяжелое бревно. Я уже попробовала все для примерки. Мужчины предпочитают взять виброплиту в аренду. 50 мм эппс для пола по плите норм если частично отапливаемое и уровень вод более 5 метров, если ничего не путаю . По грунту не проходит такое. Не есть прецеденты когда вообще не ложили эппс. Есть оказывается и такое. Расчёт теплопотерь тоже утверждает что это мало. После 6 см уже хоть какие то нормальные потери начинаются, но идеально 8-10 , все что не в диапазоне уже компромисс. Для нашего местоположения я имею ввиду. Хотя недавно наткнулась на старые ветки форума , так там в 8-10 году и три рекомендовали, по плите 5 см вообще норма была. При дешевом газе. Чудовая книжка по пирожкам тёплого пола и теплому полу ( стены, потолки)вообще от Rehau vismer.com.ua/downloads/catalogues/Rehau/Rehau3.pdf Змінено 12 квітня 2018 користувачем Сарочка 2 Посилання на коментар Поділитися на інших сайтах More sharing options...
B.S.V. Опубліковано: 12 квітня 2018 Поділитись Опубліковано: 12 квітня 2018 Не есть прецеденты когда вообще не ложили эппс. Есть оказывается и такое. Бывает и просто на клеенку по земле, промежутки закладываются кирпичем, но говорят, работать не хочет. И почему бы это ? 7 Посилання на коментар Поділитися на інших сайтах More sharing options...
Сарочка Опубліковано: 14 квітня 2018 Автор Поділитись Опубліковано: 14 квітня 2018 Бывает и просто на клеенку по земле, промежутки закладываются кирпичем, но говорят, работать не хочет. И почему бы это ? На втором фото ещё и стяжка по трубам из керамзита? Получается теплоизолятор вниз не надо, а сверху труб положили? Посилання на коментар Поділитися на інших сайтах More sharing options...
B.S.V. Опубліковано: 14 квітня 2018 Поділитись Опубліковано: 14 квітня 2018 Именно так. Радиатор на улицу. На улице тепло, значит и в доме будет хорошо. Посилання на коментар Поділитися на інших сайтах More sharing options...
Рекомендовані повідомлення
Створіть акаунт або увійдіть у нього для коментування
Ви маєте бути користувачем, щоб залишити коментар
Створити акаунт
Зареєструйтеся для отримання акаунта. Це просто!
Зареєструвати акаунтУвійти
Вже зареєстровані? Увійдіть тут.
Увійти зараз