shneider_vova Опубліковано: 10 квітня 2018 Автор Поділитись Опубліковано: 10 квітня 2018 Народ, посоветуйте с дверью на террасу - делать ее наружного открывания или внутреннего. На дизайн-проекте (типовом) - открывание внутрь, на чертеже в проекте - открывание наружу. Насчет штульповой двери еще не определился до конца - с точки зрения теплопотерь не рекомендуют, с точки зрения удобства было бы здорово. Мои соображения: 1) при открывании внутрь дверь мешает дивану, ее не открыть до конца 2) с другой стороны терраса не очень большая, еще дверью уменьшать там пространство тоже плохо. Но если открыть среднюю часть, то можно сделать какой-то держатель снизу и открыть на 180 градусов, параллельно плоскости окна, и тогда использовать террасу полноценно. В общем, нужен совет исходя из опыта эксплуатации. Посилання на коментар Поділитися на інших сайтах More sharing options...
digor_ua Опубліковано: 10 квітня 2018 Поділитись Опубліковано: 10 квітня 2018 наружу двери открывающиеся внутрь дома вымораживают просто там вечно то обувь какая под дверью лежит, то место в коридоре-тамбуре уменьшает, то мебель опять же (ну как сдиваном) а вот веранду надо делать метра так 3 на 5 хотя бы, тогда открытая дверь напрягать там не будет 1 Посилання на коментар Поділитися на інших сайтах More sharing options...
Скромный прораб Опубліковано: 10 квітня 2018 Поділитись Опубліковано: 10 квітня 2018 Народ, посоветуйте с дверью на террасу - делать ее наружного открывания или внутреннего. На дизайн-проекте (типовом) - открывание внутрь, на чертеже в проекте - открывание наружу. Насчет штульповой двери еще не определился до конца - с точки зрения теплопотерь не рекомендуют, с точки зрения удобства было бы здорово. Мои соображения: 1) при открывании внутрь дверь мешает дивану, ее не открыть до конца 2) с другой стороны терраса не очень большая, еще дверью уменьшать там пространство тоже плохо. Но если открыть среднюю часть, то можно сделать какой-то держатель снизу и открыть на 180 градусов, параллельно плоскости окна, и тогда использовать террасу полноценно. В общем, нужен совет исходя из опыта эксплуатации. Судя по всему опыта проживания в своем доме еще нет))). А если бы был, то знали, что ото что в проекте, состоящее из двух половинок, наврядли когда нибудь будет открыто "нараспашку". Все жучки, паучки, комарики на воздушных шариках, сверчки и кузнечики с вывихнутыми плечиками будут у Вас сидеть на голове и где только возможно в доме. Если и будете проветривать, то только окнами с маскитными сетками, а потому делать открывающейся только одну половину, наружу, к стене. ИМХО!!! 2 Посилання на коментар Поділитися на інших сайтах More sharing options...
Gitan Опубліковано: 10 квітня 2018 Поділитись Опубліковано: 10 квітня 2018 делать ее наружного открывания или внутреннего. На дизайн-проекте (типовом) - открывание внутрь, на чертеже в проекте - открывание наружу. Насчет штульповой двери Наружу. В этом случае возможно поставить сетку на дверь, как в американских фильмах)) Штульп разбалтывается и зимой будет сифонить. 1 Посилання на коментар Поділитися на інших сайтах More sharing options...
yriy1 Опубліковано: 10 квітня 2018 Поділитись Опубліковано: 10 квітня 2018 Наружу. В этом случае возможно поставить сетку на дверь, как в американских фильмах)) Штульп разбалтывается и зимой будет сифонить. У меня дверь во внутрь (не болтает ветром не бьет по откосу) А наружу открывается москитная сетка на петлях 1 Посилання на коментар Поділитися на інших сайтах More sharing options...
alecs555 Опубліковано: 10 квітня 2018 Поділитись Опубліковано: 10 квітня 2018 Мои соображения: 1) при открывании внутрь дверь мешает дивану, ее не открыть до конца 2) с другой стороны терраса не очень большая, еще дверью уменьшать там пространство тоже плохо. Но если открыть среднюю часть, то можно сделать какой-то держатель снизу и открыть на 180 градусов, параллельно плоскости окна, и тогда использовать террасу полноценно. Параллельно-сдвижная система решает эти две проблемы, однако возникает третья - с ее стоимостью. 4 Посилання на коментар Поділитися на інших сайтах More sharing options...
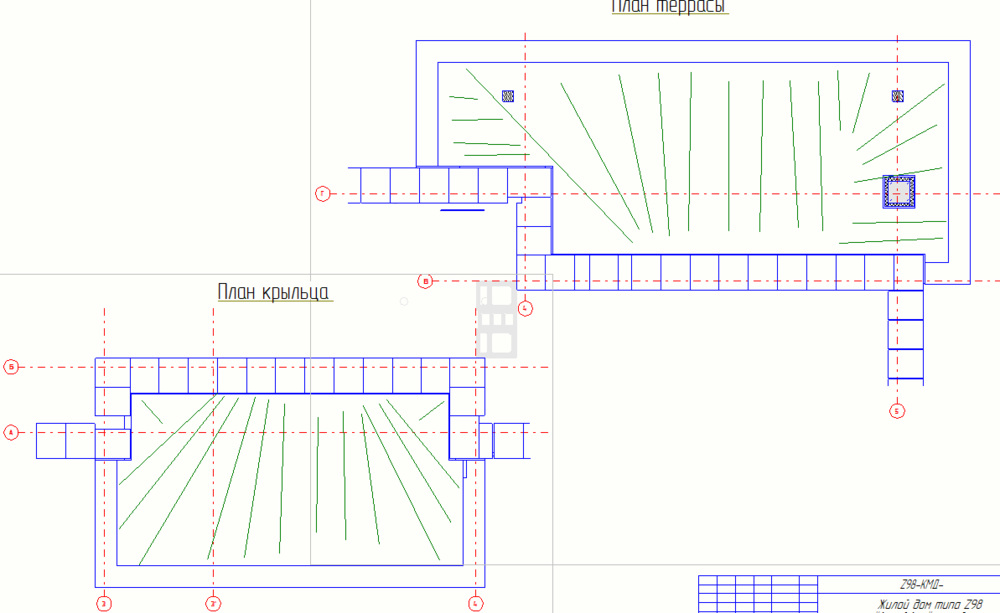
shneider_vova Опубліковано: 10 квітня 2018 Автор Поділитись Опубліковано: 10 квітня 2018 Еще срочный вопрос, время на его решение есть максимум до утра четверга. Итак, готовя чертежи для бригады под крыльцо, я столкнулся с тем, что не понимаю, как правильно сделать разуклонку. В проекте бетонная плита плоская - на 110 мм ниже отметки пола, и потом разуклонка выполняется стяжкой толщиной 30-60 мм. С ребятами мы договорились, что уклоны они могут выполнить и в бетоне - вот теперь и вопрос, а как его делать. Если бы ступени были только с одной стороны террасы/крыльца, то проблем бы не было, но ступени со всех сторон - и получается, что высота второй ступени будет везде разная - от 150 до 200 мм. Как по мне - это полный абзац. То есть надо бы дать везде одинаковую отметку на точке окончания ступеней (-0.110 ) и затем дать подъем уже к стене дома. Пока только такие мысли (не знаю, как правильно рисовать разуклонку, показал линии движения воды от дома к ступеням): Но в таком варианте я очень сомневаюсь, что это можно сделать на текущем этапе работ (в черновом бетоне). В общем, если быстро не найду решения, то буду заливать плоскую плиту, а потом уже думать за приклееную стяжку с разуклонкой - на твердом основании легче будет выставить нужные уклоны, но это будет стоить денег 1 Посилання на коментар Поділитися на інших сайтах More sharing options...
jenkins Опубліковано: 10 квітня 2018 Поділитись Опубліковано: 10 квітня 2018 Периметр крыльца делаете строго по одному уровню. Возле дверей - бугор по ширине дверей, и от краев коробки до углов крыльца - маяки. Таким образом получится аж два маяка, три ската, и все ступеньки по горизонту. Перепада высот в 1см хватит вполне. 2 Посилання на коментар Поділитися на інших сайтах More sharing options...
alecs555 Опубліковано: 11 квітня 2018 Поділитись Опубліковано: 11 квітня 2018 Но в таком варианте я очень сомневаюсь, что это можно сделать на текущем этапе работ (в черновом бетоне). В общем, если быстро не найду решения, то буду заливать плоскую плиту, а потом уже думать за приклееную стяжку с разуклонкой - на твердом основании легче будет выставить нужные уклоны, но это будет стоить денег У нас так и получилось, причем плита окзалась с впадиной и собиралась приличная лужа в центре терассы, строители болгаркой вырезали канавку для стока. Попросите пусть хоть в одну сторону уклон небольшой сделают а то лужа все таки достает... 3 Посилання на коментар Поділитися на інших сайтах More sharing options...
mastervovik Опубліковано: 11 квітня 2018 Поділитись Опубліковано: 11 квітня 2018 У нас так и получилось, причем плита окзалась с впадиной и собиралась приличная лужа в центре терассы, строители болгаркой вырезали канавку для стока. Попросите пусть хоть в одну сторону уклон небольшой сделают а то лужа все таки достает... Поддержу, сделаешь ровный - будет лужа 100%! Уклон пару градусов от дома, и ни к чему велик изобретать 1 Посилання на коментар Поділитися на інших сайтах More sharing options...
shneider_vova Опубліковано: 11 квітня 2018 Автор Поділитись Опубліковано: 11 квітня 2018 Поддержу, сделаешь ровный - будет лужа 100%! Уклон пару градусов от дома, и ни к чему велик изобретать так и договорились со строителями - вдоль дома отметка -0.050, возле первой ступеньки везде отметка -0.070, обещают натянуть нитки и по ним залить ( а может, и по направляющим - ближе к заливке будут смотреть). При разбивке на участке вылез неожиданный момент - отметка земли не соответствует отметке проекта (ну если точнее, то предыдущие строители не заморачивались поиском правильного 0 и не стали копать фундамент на нужную отметку) - итого лишние 200 мм по высоте. Прищлось в эстренном порядке вноисть изменение в чертеж - добавлять 1 ступень, кое-где обрезая террасу (а она и так небольшая). Увеличить во все стороны не получается - налазим на трассу воды и электричества, плюс с той стороны уже недалеко до подпорной стенки, делящей участок на 2 половины. В итоге чистовая ширина(глубина) террасы 2350 мм. Знаю, что мало, но будем тесниться. Глубина крыльца такая же Добавлено через 1 минуту Параллельно-сдвижная система решает эти две проблемы, однако возникает третья - с ее стоимостью. А есть данные по стоимости? Посилання на коментар Поділитися на інших сайтах More sharing options...
digor_ua Опубліковано: 11 квітня 2018 Поділитись Опубліковано: 11 квітня 2018 так и договорились со строителями - вдоль дома отметка -0.050, возле первой ступеньки везде отметка -0.070, обещают натянуть нитки и по ним залить ( а может, и по направляющим - ближе к заливке будут смотреть). При разбивке на участке вылез неожиданный момент - отметка земли не соответствует отметке проекта (ну если точнее, то предыдущие строители не заморачивались поиском правильного 0 и не стали копать фундамент на нужную отметку) - итого лишние 200 мм по высоте. Прищлось в эстренном порядке вноисть изменение в чертеж - добавлять 1 ступень, кое-где обрезая террасу (а она и так небольшая). Увеличить во все стороны не получается - налазим на трассу воды и электричества, плюс с той стороны уже недалеко до подпорной стенки, делящей участок на 2 половины. В итоге чистовая ширина(глубина) террасы 2350 мм. Знаю, что мало, но будем тесниться. Глубина крыльца такая же маловата терасса может в полу терассы предусмотреть ревизии для обслуживания воды и иэлектричества? Посилання на коментар Поділитися на інших сайтах More sharing options...
shneider_vova Опубліковано: 11 квітня 2018 Автор Поділитись Опубліковано: 11 квітня 2018 маловата терасса может в полу терассы предусмотреть ревизии для обслуживания воды и иэлектричества? там нечего обслуживать -свет протянут в пнд трубе, вода - цельной трубой. Просто не очень хочется опирать сверху террасу прямо на коммуникации. Ну и я ее уменьшил на 300 мм. Думаю, 2650 и 2350 уж не очень большая разница Посилання на коментар Поділитися на інших сайтах More sharing options...
alecs555 Опубліковано: 11 квітня 2018 Поділитись Опубліковано: 11 квітня 2018 А есть данные по стоимости? Есть.. проверенные на личном опыте 1 Посилання на коментар Поділитися на інших сайтах More sharing options...
shneider_vova Опубліковано: 11 квітня 2018 Автор Поділитись Опубліковано: 11 квітня 2018 Есть.. проверенные на личном опыте Нормально +- по цене, буду узнавать. Как в эксплуатации - дует-тянет? Генео на такую высоту без вклейки не проходило? Посилання на коментар Поділитися на інших сайтах More sharing options...
digor_ua Опубліковано: 11 квітня 2018 Поділитись Опубліковано: 11 квітня 2018 там нечего обслуживать -свет протянут в пнд трубе, вода - цельной трубой. Просто не очень хочется опирать сверху террасу прямо на коммуникации. Ну и я ее уменьшил на 300 мм. Думаю, 2650 и 2350 уж не очень большая разница тю, так чего там парится то там нагрузки от терассы минимум будет это я так планировал между забороми будующим гаражом метров 5 оставить, чтобы когда септик чистить, то машина могда бы заехать пока менея не просветили что машины чистящие септик приезжают уже со совим шлангом и подъезжать вплотную к септику им необязательно 1 Посилання на коментар Поділитися на інших сайтах More sharing options...
shneider_vova Опубліковано: 11 квітня 2018 Автор Поділитись Опубліковано: 11 квітня 2018 тю, так чего там парится то там нагрузки от терассы минимум будет нагрузки-нагрузками, а как то неспокойно плюс и такой момент есть - там была достаточно глубокая траншея где-то 1.2 метра глубиной, потом туда положили воду, потом чуток засыпали, потом свет, потом еще засыпали. Особо не трамбовали, по весне просело в районе 20 см. Может же и дальше садится. Посилання на коментар Поділитися на інших сайтах More sharing options...
alecs555 Опубліковано: 11 квітня 2018 Поділитись Опубліковано: 11 квітня 2018 и не стали копать фундамент на нужную отметку) - итого лишние 200 мм по высоте. Может это и не так плохо - можно потом досыпать, а чернозема завести, учли? Эх...у нас обратная ситуация - посадили дом на 10 см ниже, для сада снимали слой земли вручную, но для остальной площади поняли что не реально - день работы погрузчика пришлось оплатить чтоб высоты на участке стали нормальными, еле вписались чтоб уклон от дома на дорогу остался Добавлено через 1 минуту Как в эксплуатации пока все классно и нравится, но эксплуатация еще "ремонтная", т.е. еще не переехали Добавлено через 3 минуты Генео на такую высоту без вклейки не проходило? сказали что низя... Посилання на коментар Поділитися на інших сайтах More sharing options...
JohnnyD Опубліковано: 11 квітня 2018 Поділитись Опубліковано: 11 квітня 2018 (змінено) Если будете рассматривать наклонно-сдвижную систему рекомендую поехать в салон и попробовать. Нам не понравилась. Сделали обычную балконную. Раздвижная да, но там и цена. Хотя и с балконной вышло в 2 раза дешевле, чем наклонно-сдвижная с одним и тем же профилем, ламинацией и стеклопакетом. Змінено 11 квітня 2018 користувачем JohnnyD Исправлено на наклонно-сдвижная 2 Посилання на коментар Поділитися на інших сайтах More sharing options...
alecs555 Опубліковано: 11 квітня 2018 Поділитись Опубліковано: 11 квітня 2018 Если будете рассматривать поворотно-откидную систему рекомендую поехать в салон и попробовать. Нам не понравилась. Поддержу - тоже смотрели в салонах пару видов откидных,(наклонно сдвижных может это оно же?) категорически не понравилось, а параллельно сдвижная пришлась ко двору Посилання на коментар Поділитися на інших сайтах More sharing options...
shneider_vova Опубліковано: 11 квітня 2018 Автор Поділитись Опубліковано: 11 квітня 2018 Поддержу - тоже смотрели в салонах пару видов откидных,(наклонно сдвижных может это оно же?) категорически не понравилось, а параллельно сдвижная пришлась ко двору А где смотрели, если в Днепре? у Вегапласта есть офис с образцами? Еще есть вопрос по контуру заземления для молниезащиты - Пост № 82. Вдруг кто-то сталкивался Посилання на коментар Поділитися на інших сайтах More sharing options...
alecs555 Опубліковано: 11 квітня 2018 Поділитись Опубліковано: 11 квітня 2018 А где смотрели, если в Днепре? у Вегапласта есть офис с образцами? Смотрели в Днепре, в салонах Вега пласта и Свитепа, есть(были тогда) образцы наклонно сдвижных(те что не понравились). Точных адресов салонов не помню - оба в центре, один чуть ниже Карла Маркса другой чуть выше. Сотрели адреса и телефоны на сайтах. vegaplast.dp.ua/contact-us/ svitep.com.ua/ 1 Посилання на коментар Поділитися на інших сайтах More sharing options...
shneider_vova Опубліковано: 11 квітня 2018 Автор Поділитись Опубліковано: 11 квітня 2018 Решил сегодня добить уже всех со своими вопросами. Оплатил блоки для вентиляции и дымохода, пока решался - часть блоков разобрали, теперь неделю ждать производства. Первый сюрприз - блоки на 20% тяжелее заявленных - выяснилось с разговором с технологом с производства. Вроде как они не до конца сухие уезжают, поэтому отгрузочный вес больше, чем в каталоге. Посмотрим. Надо будет перепроверить плиту пола на нагрузку от дымохода, а то он получается под 4 тонны. Вопросы по дымоходу: 1) на что кладутся блоки - обычный ЦПР? Нужны ли какие то специфические пластификаторы, чтобы шов был максимально воздухонепроницаемый, или достаточно обычного? 2) чем заполняется отверстие под арматуру - там 30 мм, простой раствор по идее туда не влезет 3) как стыкуется арматура по высоте (длине)? Надо же делать нахлест, а там и так места мало Посилання на коментар Поділитися на інших сайтах More sharing options...
shneider_vova Опубліковано: 12 квітня 2018 Автор Поділитись Опубліковано: 12 квітня 2018 А еще -нет ли у кого то остатков вентиляционной коньковой ленты типа такой prom.ua/p502549043-ventilyatsionnaya-lenta-konka;all.html ? Мне нужно миллиметров 300-400, попробовать, сможет ли она лечь на мой профнастил - хватит ли ширины складок. Посилання на коментар Поділитися на інших сайтах More sharing options...
Dmode Опубліковано: 12 квітня 2018 Поділитись Опубліковано: 12 квітня 2018 Вопросы по дымоходу: 1)чтобы шов был максимально воздухонепроницаемый, или достаточно обычного? Воздухопроницаемостью швов думаю не стоит париться, так как сами эти блоки воздухопроницаемы. Для устранения воздухопроницаемости их желательно оштукатурить. Вот термо-видео с обьекта при проверке воздухопроницаемости, в котором были подобные неоштукатуренные вентблоки. Если рядом с ними стоишь, то от них дует по всей поверхности. Блоки видно на отрезках с 1:06 по 1:15 (первый этаж) и 3:07 по 3:14 (второй этаж) 1 Посилання на коментар Поділитися на інших сайтах More sharing options...
Рекомендовані повідомлення
Створіть акаунт або увійдіть у нього для коментування
Ви маєте бути користувачем, щоб залишити коментар
Створити акаунт
Зареєструйтеся для отримання акаунта. Це просто!
Зареєструвати акаунтУвійти
Вже зареєстровані? Увійдіть тут.
Увійти зараз