masterbud Опубліковано: 11 грудня 2018 Поділитись Опубліковано: 11 грудня 2018 Начинаю строить домик под дачу, вернее начинал домик 6х7, а по ходу изготовления проекта он вырос до дома 9х10 с мансардой. Хотелось бы услышать мнение людей, которые уже построились и осознали допущенные ошибки. И мнение строителей по поводу структуры дома. В кратце опишу структуру дома. Фундамент сборно-монолитный (ж/б подушка, блоки 40 см, армопояс). Стены газоблок UDK 400 размерами 200х300х600 толщиной 300 мм с армопоясами везде, где надо. Кровля цементно-песчаная или керамическая черепица (сейчас смотрю акции по цене, можно выхватить недорого даже Braas). Окна еще не определился, двери межкомнатные возможно "Папа Карло" (есть 10-летний опыт использования). Утепление пенополистирол 150-200 мм. Отопление пока каминная чугунная топка с конвекцией по всем комнатам + топлый пол электро (возможно, еще думаю). Вопросов много, например стоит ли вкладываться в погреб под домом? Если это дача, то он не нужен, а если там постоянно жить, то вроде как и надо. Опыта проживания в частном доме нет, максимум в детстве летом у бабушки в деревне. Буду рад всем мнениям, желательно без флуда. 2 Посилання на коментар Поділитися на інших сайтах More sharing options...
masterbud Опубліковано: 11 грудня 2018 Автор Поділитись Опубліковано: 11 грудня 2018 Вот примерный вид дома. Посилання на коментар Поділитися на інших сайтах More sharing options...
Хохол Опубліковано: 11 грудня 2018 Поділитись Опубліковано: 11 грудня 2018 Стены газоблок UDK 400 размерами 200х300х600 толщиной 300 мм с армопоясами везде, где надо. .......Утепление пенополистирол 150-200 мм. Как по мне- проще однослойная стена из ГБ или если утеплять- термоблок. Добавлено через 1 минуту Отопление пока каминная чугунная топка с конвекцией по всем комнатам + топлый пол электро Пол водяной и каминная топка с водяной рубашкой будут гораздо дешевле в эксплуатации Добавлено через 36 секунд стоит ли вкладываться в погреб под домом это + 40% к стоимости... нужно-ли? 1 Посилання на коментар Поділитися на інших сайтах More sharing options...
Katya Опубліковано: 11 грудня 2018 Поділитись Опубліковано: 11 грудня 2018 Не уверена. что имею право давать советы, но вот несколько вопросов возникло: Где строитесь? Какой уровень грунтовых вод?-это к вопросу о погребе. Сколько человек планирует проживать в доме? Это к вопросу о размерах. Судя по варианту отопления - это именно дача. Но часто ли у вас отключают свет? это к вопросу об электро полах. Планируется ли терраса/беседка/летняя кухня/барбекю зона? Что с септиком? 1 Посилання на коментар Поділитися на інших сайтах More sharing options...
Gitan Опубліковано: 11 грудня 2018 Поділитись Опубліковано: 11 грудня 2018 Если не будете жить зимой зачем утеплять? Напряжение не падает до 160В зимой? Подвал дорогое мероприятие. Если нужен, делайте. Посилання на коментар Поділитися на інших сайтах More sharing options...
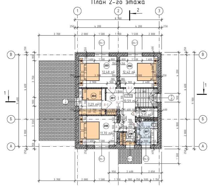
vadimv Опубліковано: 11 грудня 2018 Поділитись Опубліковано: 11 грудня 2018 Вот примерный вид дома.А планировку не покажете? И, это, дом под дачу и под постоянное проживание - это два разных дома. Посилання на коментар Поділитися на інших сайтах More sharing options...
masterbud Опубліковано: 11 грудня 2018 Автор Поділитись Опубліковано: 11 грудня 2018 Планировку выложу чуть позже. Давайте объясню почему дачный домик вырос до таких размеров. У меня семья - 5 человек. 3 сына, взрослые (24, 25 и 29 лет), пока неженатые. Мама еще слава богу. Когда было принято решение строить дачу, то все спросили, а комнатка у меня своя будет? Поэтому было принято решение, что в доме должна быть более-менее просторная гостиная и 5 спален (5 Карл !!!). Нашел типовой прект и всунул маленькую комнатку для мамы, но пришлось усложнять крышу. Планировку выложу чуть позже. Концепцию отопления продумывал очень долго. Вариантов была масса. Электричество буду заводить 380В. В эту субботу у соседа показывало по фазам 160, 212 и 235 В. Камин с водяной рубашкой не хочу, большая стоимость камина, монтажа и пр. Если не хватит обогрева камином, поставлю в комнаты керамические обогреватели с терморегуляторами. А если переду туда жить на постоянной основе (детям надо место уступать), то подумаю о тепловом насосе или твердотопливном котле с разводкой труб и установкой радиаторов. Но это будет потом, когда-то, а сейчас и для тепла и для души - камин. 1 Посилання на коментар Поділитися на інших сайтах More sharing options...
loader Опубліковано: 11 грудня 2018 Поділитись Опубліковано: 11 грудня 2018 3 сына, взрослые (24, 25 и 29 лет), пока неженатые. 1 комната для гостей. жить они с вами не будут. (или у вас исключение? такое тоже бывает но крайне редко) 2 Посилання на коментар Поділитися на інших сайтах More sharing options...
masterbud Опубліковано: 11 грудня 2018 Автор Поділитись Опубліковано: 11 грудня 2018 2 Посилання на коментар Поділитися на інших сайтах More sharing options...
masterbud Опубліковано: 11 грудня 2018 Автор Поділитись Опубліковано: 11 грудня 2018 1 комната для гостей. жить они с вами не будут. (или у вас исключение? такое тоже бывает но крайне редко) Жить не будут, но приезжать на выходные со своими козявками вполне могут. Плюс, думаю, летом козявок привозить будут на "пару дней". Стараюсь предусмотреть максимум вариантов. Сейчас живет в 3х комнатной квартире и нам тесно. Посилання на коментар Поділитися на інших сайтах More sharing options...
anatol33 Опубліковано: 11 грудня 2018 Поділитись Опубліковано: 11 грудня 2018 ТС, ви тут упустили один найголовніший момент, який всі хто починає будуватися, повинні враховувати - бюджет вашого будинку. Будинок у вас немалий, і якщо ви не олігарх, то навіть такий будинок обійдеться в дуже круглу суму. З цього треба починати, а потім вже враховувати свої побажання. 2 Посилання на коментар Поділитися на інших сайтах More sharing options...
masterbud Опубліковано: 11 грудня 2018 Автор Поділитись Опубліковано: 11 грудня 2018 ТС, ви тут упустили один найголовніший момент, який всі хто починає будуватися, повинні враховувати - бюджет вашого будинку. Будинок у вас немалий, і якщо ви не олігарх, то навіть такий будинок обійдеться в дуже круглу суму. З цього треба починати, а потім вже враховувати свої побажання. За моїми підрахунками, коробка з дахом, стінами, вікнами та зовнішніми дверима, внутрішньою штукатуркою обійдеться мені десь у 700 тис.грн. Внутрішнє оздоблення буду робити по коштах, які залишаться. Зараз тут буде дуже багато усмішок, але ж ви не розумієте моїх переваг, тому не сперечайтесь. Життя покаже. Наприкінці будівництва викладу всі свої витрати. От там і будемо сперечатись у вартості будівництва будинку. Я віддаю перевагу тому, що будувати треба якісно, але з розумом, і якщо треба трохи більше попрацювати, то я буду пахати з ранку до вечора. 3 Посилання на коментар Поділитися на інших сайтах More sharing options...
masterbud Опубліковано: 11 грудня 2018 Автор Поділитись Опубліковано: 11 грудня 2018 2 Посилання на коментар Поділитися на інших сайтах More sharing options...
vadimv Опубліковано: 11 грудня 2018 Поділитись Опубліковано: 11 грудня 2018 если переду туда жить на постоянной основе (детям надо место уступать), то подумаю о тепловом насосе или твердотопливном котле с разводкой труб и установкой радиаторовВ топочной нет окна. 1 Посилання на коментар Поділитися на інших сайтах More sharing options...
anatol33 Опубліковано: 11 грудня 2018 Поділитись Опубліковано: 11 грудня 2018 За моїми підрахунками, коробка з дахом, стінами, вікнами та зовнішніми дверима, внутрішньою штукатуркою обійдеться мені десь у 700 тис.грн. Внутрішнє оздоблення буду робити по коштах, які залишаться. Зараз тут буде дуже багато усмішок, але ж ви не розумієте моїх переваг, тому не сперечайтесь. Життя покаже. Наприкінці будівництва викладу всі свої витрати. От там і будемо сперечатись у вартості будівництва будинку. Я віддаю перевагу тому, що будувати треба якісно, але з розумом, і якщо треба трохи більше попрацювати, то я буду пахати з ранку до вечора. Якщо ви не будете все будувати власними силами - не влізете у бюджет. Закінчую ремонт в приблизно такому за площею будинку, тому можу точно вам це сказати - помножте ваш бюджет зразу на 2. Я будівництво своє почав в 2016, і тепер кажуть ціни зросли десь на 20-25%, а мені коробка обійшлась у 45 тисяч у.о ( фундамент,стіни, дах, двері, штукатурка та електрика). 4 Посилання на коментар Поділитися на інших сайтах More sharing options...
Gitan Опубліковано: 11 грудня 2018 Поділитись Опубліковано: 11 грудня 2018 А если переду туда жить на постоянной основе (детям надо место уступать), то подумаю о тепловом насосе или твердотопливном котле с разводкой труб и установкой радиаторов. Но это будет потом, когда-то, а сейчас и для тепла и для души - камин. Тогда дом надо утеплять основательно. Систему отопления сразу проектируйте низкотемпературную. Теплый водяной пол 1 эт, второй - батареи. Электрокотел. Потом поставите тепловой насос по необходимости. Твердотоп не ставьте. Имхо. Камин на резерв с разводкой труб теплого воздуха на 1 и 2 этажи. Большая и дружная семья это хорошо! Посилання на коментар Поділитися на інших сайтах More sharing options...
JohnnyD Опубліковано: 11 грудня 2018 Поділитись Опубліковано: 11 грудня 2018 180 м2 + внутренняя штукатурка в 700К. Вы оптимист. Даже своими силами не влезите. Как рассчитывали? 5 Посилання на коментар Поділитися на інших сайтах More sharing options...
masterbud Опубліковано: 11 грудня 2018 Автор Поділитись Опубліковано: 11 грудня 2018 В топочной нет окна. А еще нет двери. Спасибо за наблюдательность. Когда будет стоять вопрос в установке котла, окно и дверь на улицу будут врезаны в стену. В газоблоке это не есть проблема Добавлено через 2 минуты Якщо ви не будете все будувати власними силами - не влізете у бюджет. Закінчую ремонт в приблизно такому за площею будинку, тому можу точно вам це сказати - помножте ваш бюджет зразу на 2. Я будівництво своє почав в 2016, і тепер кажуть ціни зросли десь на 20-25%, а мені коробка обійшлась у 45 тисяч у.о ( фундамент,стіни, дах, двері, штукатурка та електрика). Я планую будинок за 35-40 у.о збудувати. Я ж кажу, у мене є деякі можливості здешевлення будівництва без значного зниження якості. Ми можемо подискутувати на цю тему. Але трохи пізніше. За пару днів у мене будуть ціни на роботу по будівництву цього дому. Посилання на коментар Поділитися на інших сайтах More sharing options...
yurriy Опубліковано: 11 грудня 2018 Поділитись Опубліковано: 11 грудня 2018 Когда будет стоять вопрос в установке котла, окно и дверь на улицу будут врезаны в стену. В газоблоке это не есть проблема Если перемычки вмонтировать в стену заранее - то да, проблем не должно быть. Без перемычек газоблок может треснуть под нагрузкой второго этажа. 1 Посилання на коментар Поділитися на інших сайтах More sharing options...
-electron- Опубліковано: 11 грудня 2018 Поділитись Опубліковано: 11 грудня 2018 700к це 25к дол? В мене стільки пішло на коробку з вікнами але без інженерки й штукатурки. Я б цінник на будинок підняв до 60. І це за умови що робити самому. Або якщо є дешева робоча сила й вихід на дуже дешеві матеріали. 6 Посилання на коментар Поділитися на інших сайтах More sharing options...
masterbud Опубліковано: 11 грудня 2018 Автор Поділитись Опубліковано: 11 грудня 2018 Тогда дом надо утеплять основательно. Систему отопления сразу проектируйте низкотемпературную. Теплый водяной пол 1 эт, второй - батареи. Электрокотел. Потом поставите тепловой насос по необходимости. Твердотоп не ставьте. Имхо. Камин на резерв с разводкой труб теплого воздуха на 1 и 2 этажи. Большая и дружная семья это хорошо! Камин с конвекторным отоплением буду ставить сразу. Это убьет сразу очень много зайцев, нет теплоносителя, нет необходимости в монтаже труб, радиаторов и арматуры отопления, Быстрое время прогрева дома. А если оставлять электрообогреватели на +5-10 град в наше отсутствие, то вообще будет красота. А вот по поводу электрокотла не согласен. Есть горький опыт использования электрокотла в отоплении офисов. Электрокотел при нар.темп. -10С и внутренней +10С брал за сутки 100-120 КВт электричества, что в пересчете на деньги по 2,4 грн/КВт равно 264 грн, твердотопливний Дефро на пеллете при нар. -10С и внутренней +22С съедает около 42 кг пеллеты по 2 грн/кг (из подсолнуха), 42х2 = 84 грн сутки. Разница в три раза. Да и прожил киевский котел 2 года и проржавел. А теплые полы стоят примерно 1000 грн/кв.м, это таки дороговато. Добавлено через 1 минуту Если перемычки вмонтировать в стену заранее - то да, проблем не должно быть. Без перемычек газоблок может треснуть под нагрузкой второго этажа. Врезается сначала уголок с двух сторон, вырезается дверь или окно, вставляется, убирается уголок. Уже так делали, ничего не треснуло. Плюс над дверью в 60 см будет идти армопояс. Посилання на коментар Поділитися на інших сайтах More sharing options...
yurriy Опубліковано: 11 грудня 2018 Поділитись Опубліковано: 11 грудня 2018 Врезается сначала уголок с двух сторон, вырезается дверь или окно, вставляется, убирается уголок. Уже так делали, ничего не треснуло. Плюс над дверью в 60 см будет идти армопояс. То есть газоблок над дверью лежит на деревянном/пластиковом (и то, и то гибкое) коробе? Очень смело, я бы так не делал. Какие проблемы заранее подготовить перемычки? 1 Посилання на коментар Поділитися на інших сайтах More sharing options...
anatol33 Опубліковано: 11 грудня 2018 Поділитись Опубліковано: 11 грудня 2018 Камин с конвекторным отоплением буду ставить сразу. Это убьет сразу очень много зайцев, нет теплоносителя, нет необходимости в монтаже труб, радиаторов и арматуры отопления, Быстрое время прогрева дома. А если оставлять электрообогреватели на +5-10 град в наше отсутствие, то вообще будет красота. А вот по поводу электрокотла не согласен. Есть горький опыт использования электрокотла в отоплении офисов. Электрокотел при нар.темп. -10С и внутренней +10С брал за сутки 100-120 КВт электричества, что в пересчете на деньги по 2,4 грн/КВт равно 264 грн, твердотопливний Дефро на пеллете при нар. -10С и внутренней +22С съедает около 42 кг пеллеты по 2 грн/кг (из подсолнуха), 42х2 = 84 грн сутки. Разница в три раза. Да и прожил киевский котел 2 года и проржавел. А теплые полы стоят примерно 1000 грн/кв.м, это таки дороговато. Ну, для приватних будинків все трохи інакше. Тариф на електроопалення та двохзонний лічильник дають змогу опалювати будинок по 0.45 грн. за квт, це дешевше за будь-які інші джерела енергії - гаЗ, дрова, палети. Пересвідчився вже цього року, як це вигідно. 3 Посилання на коментар Поділитися на інших сайтах More sharing options...
masterbud Опубліковано: 11 грудня 2018 Автор Поділитись Опубліковано: 11 грудня 2018 700к це 25к дол? В мене стільки пішло на коробку з вікнами але без інженерки й штукатурки. Я б цінник на будинок підняв до 60. І це за умови що робити самому. Або якщо є дешева робоча сила й вихід на дуже дешеві матеріали. Перше, що буду робити, це фундамент. Давайте так, ви мені дайте вартість вашого фундаменту, від розробки котловану, до нульової відмітки. А я вам навесні дам свої витрати. От там і будемо дивитись. Я не сперечаюсь, що я щось не передбачив, але деякі розрахунки я робив. Зараз зарано про них говорити, але з архітектором все узгодив. Добавлено через 58 секунд Ну, для приватних будинків все трохи інакше. Тариф на електроопалення та двохзонний лічильник дають змогу опалювати будинок по 0.45 грн. за квт, це дешевше за будь-які інші джерела енергії - гаЗ, дрова, палети. Пересвідчився вже цього року, як це вигідно. У нас садове товариство і електроенергія коштує 2,4 за кіловат Добавлено через 4 минуты То есть газоблок над дверью лежит на деревянном/пластиковом (и то, и то гибкое) коробе? Очень смело, я бы так не делал. Какие проблемы заранее подготовить перемычки? Это не проблема. Проблема в том, что я не знаю - буду я ставить ТТК или тепловой насос. Под тепловой насос дверь не нужна. Перемычка есть мост холода + лишние затраты. Мы врезали окно 1,5х1,5 в стену высотой 5,5 метров из газобетона без армопоясов и прочего, никаких трещин нет. А во вторых не такая там и большая нагрузка. Окно маленькое, а дверь металлическая с коробом. Не забывайте, что это садовое товарищество. Лишнее окно или дверь - это лишний повод в них залезть. Тут и так большие расходы на роллеты на первом этаже. Добавлено через 17 минут Могу расписать примерные расчеты. Поправляйте. 1 - фундамент - бетон+ФБС+кран+цемент+песок+щебень+работа=60000 2 - перекрытие цоколя - плиты+кран+цемент+работа=18500 3 - стены - газоблок+клей+работа+2 армопояса=130000 4 - кровля - черепица+утеплитель+дерево+монтаж=130000 5 - окна - около 45000 6 - дверь входная - 5000 7 - механическая штукатурка - 100000 8 - камин - 60000 Итого получается 550 тыс.грн (примерно). Добавим сюда мелочевки на 150 тыс. грн, и получим 700к. Отделку можно делать позже, по одной комнате в год. У меня стоит задача закрыть коробку за 2019 год и поставить отопление. Тогда всю зиму можно заниматься отделкой. И еще, если бы я сначала собрал 60к зеленых, а потом начинал бы стройку, я бы никогда не построился. Я не умею собирать деньги. Они все время куда-то нужны. Стройку начинаю с суммой в 12 тыс. долларов. Сам не верю, но посмотрим на результаты осенью. Я же еще работаю, не забывайте. 5 Посилання на коментар Поділитися на інших сайтах More sharing options...
Технология Строительства Опубліковано: 11 грудня 2018 Поділитись Опубліковано: 11 грудня 2018 Могу расписать примерные расчеты. Поправляйте. 1 - фундамент - бетон+ФБС+кран+цемент+песок+щебень+работа=60000 2 - перекрытие цоколя - плиты+кран+цемент+работа=18500 3 - стены - газоблок+клей+работа+2 армопояса=130000 4 - кровля - черепица+утеплитель+дерево+монтаж=130000 5 - окна - около 45000 6 - дверь входная - 5000 7 - механическая штукатурка - 100000 8 - камин - 60000 Дом 9х10х2 = 180 м2 за 700 тыс. грн = 139 долл/м2 - это не реально. - Если это Вы себе такие суммы считаете, Вы этот дом никогда не построите. 5 Посилання на коментар Поділитися на інших сайтах More sharing options...
Рекомендовані повідомлення
Створіть акаунт або увійдіть у нього для коментування
Ви маєте бути користувачем, щоб залишити коментар
Створити акаунт
Зареєструйтеся для отримання акаунта. Це просто!
Зареєструвати акаунтУвійти
Вже зареєстровані? Увійдіть тут.
Увійти зараз