igor_ko Опубліковано: 28 січня 2020 Поділитись Опубліковано: 28 січня 2020 Гадаю, що буде добре якщо на додачу до цієї теми (щоб перейти треба клацнути по тектсу)мої наміри "потролять" більш компетентніші у будівництві фахівці. Мені і дружині 36, синам по 10 і 17 років. Придбали закинуту дачну ділянку біля Києва. Розчистив, порівняв, місце дуже гарне, по логістиці зручне, деколи добираюся скоріше ніж на Куренівку. Оплатив індивідуальне підключення 3-фази напряму від обленерго, газ вздовж ділянки. Хочемо цього року збудуватити і облаштувати необхідний для проживання "мінімум", щоби пошвидше перїхати на "ПМЖ" із зйомної квартири. Цікаво чи можна робити такий фундамент, чи може можна якось щось оптимізвати. Ососбливо вдячний буду за поради по системі опалення. Поки непізно перед виготовленням буд паспорту, цікво почути чи варто зробити міжповерхові перекриття не деревяні, а плитами і зробити трохи ширший варіант(чи набагато дорожче получиться)?. А тут можете скачати "ісходнік" для найпопулярніших програм: drive.google.com/drive/folders/1Dbpd1JUH7zZdU1oZv-ZbC3LoFclmyFop 1 Посилання на коментар Поділитися на інших сайтах More sharing options...
shneider_vova Опубліковано: 28 січня 2020 Поділитись Опубліковано: 28 січня 2020 Фундамент делается под конкретные грунты и нагрузки , а не по примерам из интернета. Думаю, для такого вытянутого фундамента перемычка посередине , думаю,не повредит 1 Посилання на коментар Поділитися на інших сайтах More sharing options...
Технолог Опубліковано: 28 січня 2020 Поділитись Опубліковано: 28 січня 2020 Смешной домик. Посилання на коментар Поділитися на інших сайтах More sharing options...
igor_ko Опубліковано: 28 січня 2020 Автор Поділитись Опубліковано: 28 січня 2020 Смешной домик. Ага :D "Barn-house - модный архитектурный тренд, который с каждым годом набирает все большую популярность у застройщиков. Barn-house переводится как «амбар, сарай, загон для скота». Здания получили свое название из-за сходства их архитектуры с деревенскими амбарами, которые строили четко в прямоугольной форме. Особенностью такого здания является характерная двухскатная крыша" просмотрел Ваш аккаунт, уверен Вы бы могли что то и "по сути вопроса" написать :roll: Посилання на коментар Поділитися на інших сайтах More sharing options...
ontoshko Опубліковано: 28 січня 2020 Поділитись Опубліковано: 28 січня 2020 По суті питання: чому саме така архітектурна форма? розбивка місця внутрішніми приміщеннями не виглядає супер зручною чи ергономічною: витягнуті спальні на другому поверсі, забіжні сходи, майже немає місця у вітальні. Таке будувати - лише на продаж, в економ-варіанті з метою щоб люди повелися на зовнішній вигляд. У вас є необхідність в 5-ти спальнях? Ваші сини через 5-10 років переїдуть в свої помешкання і ви залишитесь прибирати, опалювати і доглядати цю площу. Тим паче така вітальня для 5ти спален - це явно недостатньо. Ще питання орієнтації по сонцю, вікна і т.п. речі без яких комфортне проживання в будинку - не можливе. Порада: Викиньте зайві кімнати і спробуйте розмістити ваші приміщенння на одному поверсі. Я би розвернув будинок і розмістив би його в дальній частині ділянки, з вікнами, хоча би вітальні - на південь або на схід. Особисто планую будувати одноповерховий з односкатним дахом для (розміщення СЕС), розрахованими звісами на південь - 3 спальні і вітальня. Неприоритетні приміщення - на північ. Зонування - приватна і гостьова зони. Посилання на коментар Поділитися на інших сайтах More sharing options...
архітектор Опубліковано: 28 січня 2020 Поділитись Опубліковано: 28 січня 2020 (змінено) Смешной домик. Мне он выглядит максимально наивным. Имел опыт, когда заказчик пришел с подобной идеей 5 лет назад. На сегодня вот такой результат. Основные недочеты в даной теме - фундамент. Старый дачный участок с садом - это значит, что в грунте остатки перегноя, корней деревьев. И это как минимум. А как максимум - под садоводство в основном выделяли те земли,которые непригодны для жилой застройки - затапливаемые, болотистые, насыпные, торфяные, вблизи ж/д, высоковольтных линий, под низколетящими самолетами, рядом с кладбищами, промзоной. По этому просто трубочки "аля сваи" - это решение для временного дачного сооружения, возможно каркасного и неотапливаемого. Моя соседка по дачному кооперативу повелась та такие "микросваи" - быстро и дешево. Через три года от того, что дом в низине и не организован водоотвод - сваи начали проседать местами, деревянный пол прогнил и провалился. В итоге экономия обернулась большими дополнительными затратами - вырыли подкопы со всех сторон и залили тупо на землю под дом 45 тонн бетона. Это в то время, когда в доме уже жили люди. Большего маразма сложно поискать. Наличие несущей стены внутри - тоже не самый плохой вариант. Так как в вашем наивном исполнении при переходе от каркаса из дерева (который туда по логике больше подходит) к стенам из газобетона и железобетонным перекрытиям - очень не помешает внутренняя несущая стена в районе лестничного марша. Естественно - такой эскиз фундамента ни к чему, кроме каркаса не применим. Если в ход идут ж/б плиты, что повышает стоимость, вес, цену и огнестойкость дома, то фундамент должен быть в разы массивнее и надежнее (плюс особенности грунта). Вынесенные вперед черные стены - в вашем случае тоже во многом неоправданны. Близко к забору, на север - уменьшат обзор, инсоляцию - больше вреда, чем пользы и эстетики Змінено 28 січня 2020 користувачем архитектор 3 Посилання на коментар Поділитися на інших сайтах More sharing options...
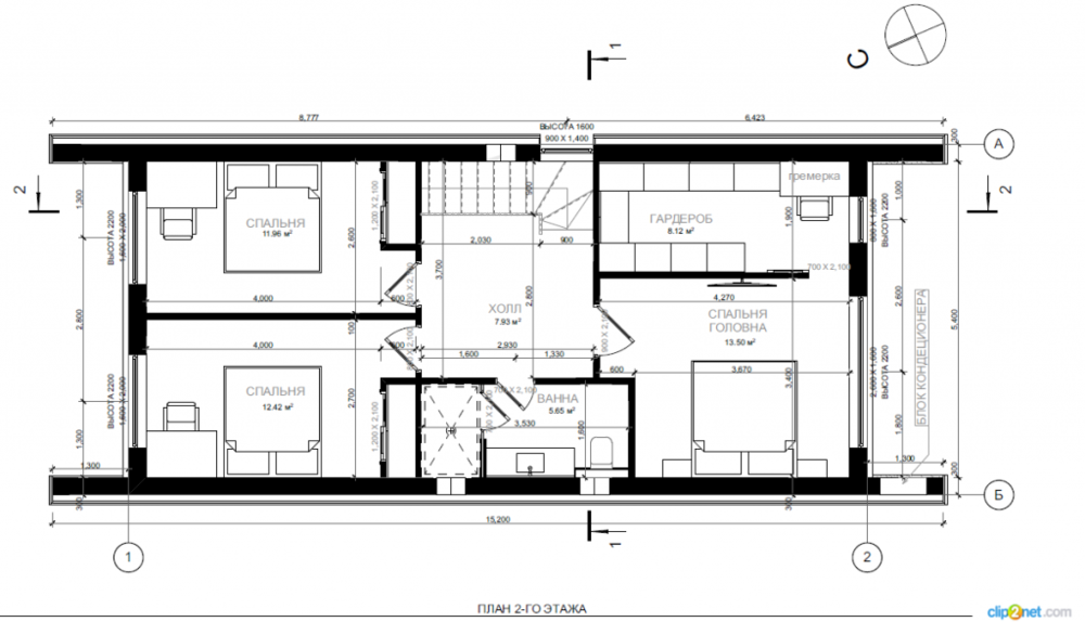
Музей Опубліковано: 28 січня 2020 Поділитись Опубліковано: 28 січня 2020 Кімнати 2,6м завширшки це не кімнати. Окремий санвузол для мастербедрум теж відсутній. Тамбур в умовах Києва - зайва річ. Котельна мікроскопічна. При такій маленькій площі будинку, два поверхи недоцільні. Камін не побачила. Критої тераси теж не бачу. Далі писати? :D 1 Посилання на коментар Поділитися на інших сайтах More sharing options...
архітектор Опубліковано: 28 січня 2020 Поділитись Опубліковано: 28 січня 2020 Кімнати 2,6м завширшки це не кімнати. Окремий санвузол для мастербедрум теж відсутній. Тамбур в умовах Києва - зайва річ. Котельна мікроскопічна. При такій маленькій площі будинку, два поверхи недоцільні. Камін не побачила. Критої тераси теж не бачу. Далі писати? :D Якщо орієнтуватися на Європу, то смаки більшості пострадянських громадян мають інші корені. Не завжди велике - це перспективне. Хоча, у порівнянні з мрією простого українця про Лендкрузер або Ренджровер, то кімнати мають вимірюватися кратно довжині авто. Тамбур - не зайвий, якщо двері відкрити навстіж у мороз - без тамбуру при певній формі будинку і його розмірах - буде некомфортно. Крита тераса - це також штамп. Це такий собі суспільний тягар, який мусть мати кожен, хто вважає себе таким як усі. На мою думку на критій терасі добре пити горілку з кумом і закусувати чимось таким жирним, смаженим і не корсним. Бо то ж канон. А куди ми проти канонів і скрєп? 3 Посилання на коментар Поділитися на інших сайтах More sharing options...
Музей Опубліковано: 28 січня 2020 Поділитись Опубліковано: 28 січня 2020 На мою думку на критій терасі добре пити горілку з кумом і закусувати чимось таким жирним, смаженим і не корсним. Бо то ж канон. А куди ми проти канонів і скрєп? Ваш стиль життя - лише Ваші особисті проблеми. якщо двері відкрити навстіж у мороз Навіщо? Хіба що Ви та Ваш кум напилися і втратили орієнтацію в часі і просторі. 1 Посилання на коментар Поділитися на інших сайтах More sharing options...
архітектор Опубліковано: 28 січня 2020 Поділитись Опубліковано: 28 січня 2020 Ваш стиль життя - лише Ваші особисті проблеми. Навіщо? Хіба що Ви та Ваш кум напилися і втратили орієнтацію в часі і просторі. Ви почали з категоричного тону в стилі "Далі писати?" і зелений смайлик з оскалом. Для мне це звучало як повчання вчителя, чи гуру. Якщо б ваші поради стосувалися проектних рішень, які відповідають за міцність, надійність, вартість, інші архітекутрно-художні цінності, я б не коментував. Але ви вносите категоричним тоном обивательські стереотипи. Це якщо порівнювати доказову медицину з екстрасенсами або народними умільцями, які переконані, що нічого кращого за викочування яйцем ще не придумали. Я проти банальностей в будівництві, проти засилля стереотипів, які нав"язує неосвідчена більшість. Але, можливо, люди читають цю гілку саме для пізнання глибин отого всього, що можна викристалізувати після свідомого життя в Країні Рад 6 Посилання на коментар Поділитися на інших сайтах More sharing options...
tort Опубліковано: 29 січня 2020 Поділитись Опубліковано: 29 січня 2020 (змінено) На кухні вікна не вистачає. Та і у ванній кімнаті теж невеличке не завадило б. Тісні кімнати. Будинку явно не вистачає ще півметра-метр завширшки, або тут зайве будь-яке розподілення у плануванні "малого" на ще більш дрібне. Ну як це так: у вас кімната шириною 2,4м, а висотою - 2.9м. Колодязь. Комунікації у зовнішній стіні це зло. Тим паче у 300 ГБ. З усілякої точки зору. Але одне єдине питання: як вертикальні канали проходять монолітні пояси? Судячи з розрізу вони у вас невеличкі і будуть перериватися ними. Конструктивна схема даху суперечлива. Все що нижче горизонтальної затяжки те створює горизонтальні навантаження на стіну. Можливо не значні на такому малому прольоті, але разом з фундаментною поперечкою варто прорахувать і такий момент. Взагалі то окремі теми для відповідних розділів форуму, як і оці фундаменти. Вузла по ньому не бачу і поки що у такому вигляді вони виглядають недоцільними, а без подушки під ростверком ще й неграмотними. Чому б не обрати МЗФ і не ліпити ці сваї? Але сходи! Вони геометрично там не стануть у такому вигляді. Вірніше сходи то стануть, а ось спуститися (піднятися) по ним, не зачепивши лобом балочку, зможе людина дуже низького зросту не вище 145 см (!) це якщо балки перекриття не підшивати нічим, а так - ще менше. І потім ці забіжні сходинки саме у тому місці. До того з'являється якась "порнографія" над вхідними дверима та у бойлерній, хоча у порівнянні з проходом висотою у 145см то дрібне прискіпування. Змінено 29 січня 2020 користувачем tort 4 Посилання на коментар Поділитися на інших сайтах More sharing options...
igor_ko Опубліковано: 29 січня 2020 Автор Поділитись Опубліковано: 29 січня 2020 у вас кімната шириною 2,4м, а висотою - 2.9м. Колодязь. так дійсно, це потреба така, тимчасове рішення. як вертикальні канали проходять монолітні пояси? Судячи з розрізу вони у вас невеличкі і будуть перериватися ними. поки не вирішилося питання з опаленням, питання вентиляції не були в пріоритеті. Чому б не обрати МЗФ і не ліпити ці сваї? слушні зауваження, дякую Але сходи!.... у порівнянні з проходом висотою у 145см то дрібне прискіпування. за це питання, на яке після №ого перепланування просто тупо забули звернути увагу, особливе щире спасибі, більше того думаю Вам треба написати мені в приват номер своєї банківської картки і я дуже би хотів якось хочаби символічно віддячити. коли відкрив і глянув, аж жахнувся )) @архитектор дякую за фотки і гарні поради, @Музей будь-ласка не сваріться кожен із Вас по своєму у чомусь правий. Таке будувати - лише на продаж, в економ-варіанті з метою щоб люди повелися на зовнішній вигляд. ну покищо таке не плануємо, навпаки думали жити і колись можливо на пенсії здавати кімнати в оренду через вебсервіси типу Airbnb, Booking, TripAdvisor чи Expedia 2 Посилання на коментар Поділитися на інших сайтах More sharing options...
ChuykoArchitecture Опубліковано: 30 січня 2020 Поділитись Опубліковано: 30 січня 2020 Планування треба добре обдумати вам із сім'єю, адже ви жити там будете. Чи вистачить місця, хто що хоче бачити в кімнатах? Наразі будинок виглядає вузьким трохи. Щодо вибору між панелями та дерев'яним перекриттям - по ціні десь однаково вийде, але з панелями ви отримаєте кращу вогнестійкість, кращу шумоізоляцію. Але треба врахувати, якщо це дачний масив і місця мало, можливість заїзду техніки для доставки та монтажу тих панелей. Але є і варіанти залізобетоннго перекриття типу Теріви. Кілька років тому робив проект у подібній стилістиці під Києвом. Каркасник щоправда. https://www.facebook.com/pg/ChuykoArchitecture/photos/?tab=album&album_id=1182822525189544 - ось. 1 Посилання на коментар Поділитися на інших сайтах More sharing options...
igor_ko Опубліковано: 30 січня 2020 Автор Поділитись Опубліковано: 30 січня 2020 Кілька років тому робив проект у подібній стилістиці під Києвом. Каркасник щоправда. О! Дякую за відгук, цей стиль набирає обертів, ось тут теж цікавий варіант https://www.facebook.com/thermowoodconstructions/posts/3284309994930677 Посилання на коментар Поділитися на інших сайтах More sharing options...
Anna_arch Опубліковано: 30 січня 2020 Поділитись Опубліковано: 30 січня 2020 Архитектура - однозначно да. Модно, стильно, современно. Если учесть что вы сами предлагаете, снимаю шляпу . Сама фанатею от таких домов. По Вашему плану: - исходя из ориентации лучше зеркально отразить, гостиную на юг - однозначно сделать дом шире, минимум 6,3 или 6,6 - спальни станут комнатами, и пропорции дома улучшаться. - много транзитной площади на холлы, при совсем крошечных спальнях (у вас столько гуляет из-за лестницы - её нужно располагать перпендикулярно фасаду и 2хмаршевую - аккуратно смотреть по высотам). Нужно перепланировка - отдать в комнаты - совсем нет общего гардероба на 1м этаже - где куртки зимой повесить? Так же как и встроенных шкафов в спальнях на первом этаже - все двери в су вовнутрь - это небезопасно (вдруг кому-то станет плохо придётся выламывать дверь). На втором этаже двери бьются - су и душ. - из 2х спален тоже можно сделать выход на террасу или удлинить их - только ради красоты стены делать не стоит - при перекрытии плитами никто вам не мешает сделать балкон на 2м этаже из хозяйской спальни - честно, аж просится - по перекрытию - однозначно с плитами будет лучше звукоизоляция. Здесь звучала Терива, как вариант - вопрос с вентканалами не решён - в наружных стенах - это не вариант вообще. По системе отопления - чем топить будете? Котельная маловата, нет ни дымового канала, ни вентканалов. 3 Посилання на коментар Поділитися на інших сайтах More sharing options...
ChuykoArchitecture Опубліковано: 31 січня 2020 Поділитись Опубліковано: 31 січня 2020 О! Дякую за відгук, цей стиль набирає обертів, ось тут теж цікавий варіант https://www.facebook.com/thermowoodconstructions/posts/3284309994930677 Люди вже наситились проектами з журналів, з типовим короїдом та баранеком, пілястрами і колонами. Хочеться простішого та лаконічнішого, разом з тим зручіншого та практичнішого. Єдине що треба врахувати - зовнішня простота може ховати за собою технологічну складність. Наприклад, у будинку з фото є приховані водостоки. Це складний вузол, який вимагає проробки та якісної реалізації. Майте це на увазі. Також, проста форма вимагає якісних матеріалів та високої якості будівельних робіт. Посилання на коментар Поділитися на інших сайтах More sharing options...
vadimv Опубліковано: 31 січня 2020 Поділитись Опубліковано: 31 січня 2020 Хочеться простішого та лаконічнішого, разом з тим зручіншого та практичнішого. Я б не сказав, що будинок з вікнами тільки на два боки (як на плануванні ТС)- це дуже зручно та практично. 1 Посилання на коментар Поділитися на інших сайтах More sharing options...
архітектор Опубліковано: 31 січня 2020 Поділитись Опубліковано: 31 січня 2020 Оплатив індивідуальне підключення 3-фази напряму від обленерго, газ вздовж ділянки. По системе отопления - чем топить будете? Котельная маловата, нет ни дымового канала, ни вентканалов. Подвох садовых кооперативов в том, что они создавались для советского дачника - рабочего или служащего. В его распоряжении по советским стандартам был минимум электроприборов. Садовый трансформатор устанавливали из расчета 5 кВт одна фаза на один участок. И даже был период, когда платили без счетчиков, просто по установленному планом объему потребления. Редко в каком кооперативе произошла реальная перспективная, сложная и дорогостоящая комплексная реконструкция с заменой трансформатора. Обычно для такого рывка нет ни управленческого ресурса, ни денег, ни желания большинства "садоводов". Даже на Вашем фото видно - вокруг есть заброшенные летние домики. Благодаря бесхозяйственности их хозяев, они не продаются, не застраиваются и не обслуживаются. И только за счет освободившегося резерва за счет "бесхозных" участков, резерв электрической мощности еще есть. Как только большинство продаст свои заброшенные дачные участки под застройку - начнутся проблемы с трансформатором. Что касается взяточников в Киевэнерго - то так называемое "прямое подключение" от садового трансформатора - это возможность платить не в кассу СТ, а в Киевэнерго. При этом балансодержатель столбов, по котором идет линия к дому - садовое товарищество, а значит и линии, и обслуживание трансформатора на плечах за частую сильно убитого и некомпетентного садового товарищества. Общее собрание не в состоянии собрать кворум, нет (как правило) тех, кто бы планомерно решал проблему на будущее. Из всего вывод - что линии перегружены, и в перспективе будут перегружены еще больше. Отапливать дом электричеством - это рискованно. В любой момент можно остаться без ничего - скважина и насос, отопление, освещение - все завязано на электро. Кроме того, однофазное потребление создает перекос по фазам и в результате выгорает общий рубильник, проходили не один год, знаем. Как правило разница между дачкой, на которую хозяева приезжают менее 1 полного месяца в году и домом для круглогодичного проживания с электроотоплением - 100 раз. Типа как 150 кВт/ч год 15 000-17000 кВт/ч год. Тоесть думать нужно не только о том, что годовой счет за электрику будет более 30 000 грн, но и о том, что замена трансформатора или реконструкция линии - это со старта от 100 000 грн (даже если будет поделена на несколько участков) Плюс неурегулированный сток фекалий и бурение скважин питьевой воды - маленькие участки, рядом и выгребная яма без дна и инфильтрацией в грунтовые воды, и скважина с питьевой водой. И никто никак не может повлиять на то, что кто как будет делать и какие санитарные нормы нарушать. Нельзя также предположить что в каком-либо другом месте все проще и есть халява. Халявы нет. По-этому риски надо диверсифицировать. Дизайн и "перепланировка" - ох как коробит от этого слова, - это не главное. Под ногами должен быть фундамент, страховка от недостроя и проблемной недвиги. Варианты для отопления - это качественное утепление, возможно тепловой насос (воздушный) или более бюджетный, но и с другой стороны, более нуждающийся в обслуживании - твердотопливный котел, или газ, если он есть. Что касается классических вентканалов в кирпичной кладке - ну зачем такой вчерашний день, если есть система пластиковых коробов, которую можно проложить по стенам, в том числе наружным (с внутренней стороны). Главное при проектировании вытяжек не забыть про приток воздуха, иначе вытяжка не будет работать. Герметичные пластиковые окна не дают работать системе естественной вентиляции. 1 Посилання на коментар Поділитися на інших сайтах More sharing options...
igor_ko Опубліковано: 31 січня 2020 Автор Поділитись Опубліковано: 31 січня 2020 Дуже не хочеться розширювати будинок він і без того занадто великий. Аби уявити, як на дачній ділянці виглядатиме таке рішення пропоную переглянути відео з ютубу (нажаль посеред огляду є якась реклама, можете просто її "перемотати"), зверніть увагу наскільки гармонійно він вписується у правильне співвідношення частин по відношеню до одного цілого. Відео: https://www.youtube.com/embed/eo8JBr9ryAI Доречі свого часу вичисляв по принципу "золотого січення" пропорції пятна забудови. Посилання на коментар Поділитися на інших сайтах More sharing options...
vadimv Опубліковано: 31 січня 2020 Поділитись Опубліковано: 31 січня 2020 Даже на Вашем фото видно - вокруг есть заброшенные летние домики. Благодаря бесхозяйственности их хозяев, они не продаются, не застраиваются и не обслуживаются.Продать этот чемодан без ручки - большая проблема. Лично с этим сталкивался. Если земля приватизирована, а на сам домик нет документов - такой участок не продать без справки от председателя об отсутствии строений, а никакой вменяемый председатель такой справки не даст. А документы стоят столько, что его дешевле снести. Но пока хозяева живы - они на это разрешение не дадут. Поэтому и стоят заброшенные. Дуже не хочеться розширювати будинок він і без того занадто великий.Ваша справа. Але при ширині ділянки 20 м його можна без проблем розширити навіть до 10 м. Якщо протипожежні норми не заважають. А до 7-8 - так і подавно. І це вже буде зовсім інший будинок, аніж шириною 6 м. Хоча і з 6 метрів можна зробити нормальне планування, з кімнатами 3х4 та 4х5. Посилання на коментар Поділитися на інших сайтах More sharing options...
ChuykoArchitecture Опубліковано: 31 січня 2020 Поділитись Опубліковано: 31 січня 2020 Дуже не хочеться розширювати будинок він і без того занадто великий. Аби уявити, як на дачній ділянці виглядатиме таке рішення пропоную переглянути відео з ютубу (нажаль посеред огляду є якась реклама, можете просто її "перемотати"), зверніть увагу наскільки гармонійно він вписується у правильне співвідношення частин по відношеню до одного цілого. Відео: https://www.youtube.com/embed/eo8JBr9ryAI Доречі свого часу вичисляв по принципу "золотого січення" пропорції пятна забудови. Так у відео дачний будинок, до нього зовсім інші вимоги, ніж до житлового. Щодо золотого січення, та інших феншуїв - забудьте про це все. Чесно. Це гарні історії, до того ж, у вашому випадку, ви побачите це "золоте січення" тільки з висоти пташиного польоту, а жити вам доведеться на рівні землі. Звертати увагу треба не на те чи пропорційно будинок сидітиме на ділянці на генплані, і чи гарним візерунком доріжки ляжуть, а на те чи зручно буде підійти, під'їхати, чи не затінятиме дерево, чи не буде з вікна вид прямо у паркан чи на сусіда сарай. Я не вірю у езотерику, зате вірю у ергономіку. Щодо пропорцій та візуального сприйняття - завжди треба дивитись з ракурсу людського зросту, 1.6-1.8 метри від рівня землі. Це впливає і на матеріали - те що можна побачити зблизька і особливо до чого можна доторкнутись рукою, має бути якісним, естетично привабливим. Око розпізнає фейк. Також певні пропорції у меншому масштабі будть здаватись неприродніми, тоді як ті ж пропорції у більшому масштабі - виглядатимуть нормально. Або навпаки. 3 Посилання на коментар Поділитися на інших сайтах More sharing options...
tort Опубліковано: 31 січня 2020 Поділитись Опубліковано: 31 січня 2020 Єдине що треба врахувати - зовнішня простота може ховати за собою технологічну складність. Наприклад, у будинку з фото є приховані водостоки.У тому прикладі він потрібний, а тут на мій погляд не треба заморочуватися з такими рішеннями. Невеличкий скат покрівлі, досить крутий її нахил та вертикальна обшива стіни до цоколю - ці умови не потребують ніяких прихованих водостоків. До того у інтернеті можна натрапити на досить неграмотні рішення, наприклад у пдф-файлі ТС я побачив вузлик "архіматики" дуже поширений у мережі. На скільки я знаю його публікували як варіант для обговорення, він скоріше за все не є остаточним. Але у будь-якому випадку і я б не радив його брати на виконання. По-поперше він завеликий ... 1 Посилання на коментар Поділитися на інших сайтах More sharing options...
Gonchik Опубліковано: 9 лютого 2020 Поділитись Опубліковано: 9 лютого 2020 Теж дуже люблю хати стодоли. Але те, що хоче будувати ТС це якийсь зовсім мінімалістичний підхід. Чому б не взяти у тих самих поляків проекти, які вони будують буквально десятками? Який небудь Dostepny або Ametyst? Там і вилизані рішення від проектанта і досвід інших забудовників. Посилання на коментар Поділитися на інших сайтах More sharing options...
ChuykoArchitecture Опубліковано: 9 лютого 2020 Поділитись Опубліковано: 9 лютого 2020 У тому прикладі він потрібний, а тут на мій погляд не треба заморочуватися з такими рішеннями. Невеличкий скат покрівлі, досить крутий її нахил та вертикальна обшива стіни до цоколю - ці умови не потребують ніяких прихованих водостоків. До того у інтернеті можна натрапити на досить неграмотні рішення, наприклад у пдф-файлі ТС я побачив вузлик "архіматики" дуже поширений у мережі. На скільки я знаю його публікували як варіант для обговорення, він скоріше за все не є остаточним. Але у будь-якому випадку і я б не радив його брати на виконання. По-поперше він завеликий ... Звичайно, якщо стіни будуть накриті дахівкою, то можливо і не треба водостоку. Але всеодно стик даху та стіни треба продумати, щоб вода не затікала по стіні під металопрофіль. Якщо фальц - то ще можна той стик просто зігнути. Але якщо профнастил - треба думати як організувати водовідвід? Посилання на коментар Поділитися на інших сайтах More sharing options...
tort Опубліковано: 10 лютого 2020 Поділитись Опубліковано: 10 лютого 2020 Але якщо профнастил - треба думати як організувати водовідвід?Залежно від пиріжку покрівлі. Найпростіша схема: звичайний металевий кутовий крапельник завести під даховий профнастил одною стороною, а другою - покрити стіновий. Принцип такий. Для кращої вентиляції можна монтувати не впритул до стінового профнастилу, а зробивши щілину десь 2 см або впритул якщо висоти хвилі достатньо. Можна застосувати два крапельника. Один, верхній завести під даховий профнастил зверху обрешітки. Інший - одним кінцем під обрешітку з мембраною і поверх стінового вертикального профнастилу. Верхній крапельник звісно що покриває нижній. Між ними щілина пару см. Коротше варіанти є. Посилання на коментар Поділитися на інших сайтах More sharing options...
Рекомендовані повідомлення
Створіть акаунт або увійдіть у нього для коментування
Ви маєте бути користувачем, щоб залишити коментар
Створити акаунт
Зареєструйтеся для отримання акаунта. Це просто!
Зареєструвати акаунтУвійти
Вже зареєстровані? Увійдіть тут.
Увійти зараз