Stroim2020 Опубліковано: 15 лютого 2020 Поділитись Опубліковано: 15 лютого 2020 Добрый день уважаемые форумчане. Сейчас нахожусь на распутье. Ищу дом или участок под дом в центральном районе; но исторически так сложилось что все интересующие участки застроены либо домиками 60-х (стандартный проект типа такого) Либо в продаже построенные на их месте чудные особняки метров по 400-600 А в идеале на выходе хочется получить домик площадью 130-160 метров. По этому особняки отметаются. Собственно вопрос - вдруг кто проводил реконструкцию аналогичного маленького домика или имеет опыт проектирования такого плана, поделитесь подводными камнями и позитивными моментами. Возможно ли по итогу получить что-то похожее на этот дом? Или целесообразнее сносить старый дом и строить с нуля? Заранее спасибо за идеи, комментарии и опыт. Посилання на коментар Поділитися на інших сайтах More sharing options...
Технолог Опубліковано: 15 лютого 2020 Поділитись Опубліковано: 15 лютого 2020 рационально снести,а по документам провести реконструкцию-) 4 Посилання на коментар Поділитися на інших сайтах More sharing options...
normal Опубліковано: 15 лютого 2020 Поділитись Опубліковано: 15 лютого 2020 Из 7x9 не получится, там полезной площади внутри 50м2, с мансардой выйдет максимум 100м2, лучше снести. Я такой реконструировал 12x12 и сносить дорого и строить не дешевле нового, сразу надо готовиться к тому, что из старого останутся только наружные стены, внутренние придется убрать и пристройку переложить по новой, все остальное меняется полностью, из документации останется только обновить тех.паспорт и газ.проект 1 Посилання на коментар Поділитися на інших сайтах More sharing options...
vadimv Опубліковано: 15 лютого 2020 Поділитись Опубліковано: 15 лютого 2020 (змінено) вдруг кто проводил реконструкцию аналогичного маленького домикаСосед мой проводил. По итогу сказал, что быстрее, дешевле и проще было бы снести нафиг и построить с нуля. рационально снести,а по документам провести реконструкцию-)Я именно так и сделал - по плану получилось, как будто к существующему дому пристроили еще 30 кв.м. Змінено 15 лютого 2020 користувачем vadimv 1 Посилання на коментар Поділитися на інших сайтах More sharing options...
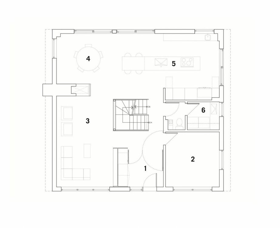
Stroim2020 Опубліковано: 15 лютого 2020 Автор Поділитись Опубліковано: 15 лютого 2020 Из 7x9 не получится, там полезной площади внутри 50м2, с мансардой выйдет максимум 100м2, лучше снести. Я такой реконструировал 12x12 и сносить дорого и строить не дешевле нового, сразу надо готовиться к тому, что из старого останутся только наружные стены, внутренние придется убрать и пристройку переложить по новой, все остальное меняется полностью, из документации останется только обновить тех.паспорт и газ.проект В планах как раз получить пятно застройки 10х9. То есть оставить три стены наружные и все. Тот домик, что иллюстрирует желаемое- как раз примерно 10х10 по габаритам. Посилання на коментар Поділитися на інших сайтах More sharing options...
архітектор Опубліковано: 15 лютого 2020 Поділитись Опубліковано: 15 лютого 2020 Когда-то обсуждали тему реконструкции старых советских домов на семинаре. Продавцы материалов и оборудования, конечно заинтересованы в продажах независимо от того, насколько это рационально. Из всех домов, под которыми мы откапывали "фундамент", изучали несущие стены, отопление, утепление, канализацию - нигде небыло смысла вкладываться в сохранение или реконструкцию. Только снос, и чем более ветхое здание, тем лучше. Тогда было совсем другое время, и стратегически продолжать и реанимировать то "наследие" в современных реалиях - не имеет никакого здравого экономического смысла. 5 Посилання на коментар Поділитися на інших сайтах More sharing options...
Stroim2020 Опубліковано: 15 лютого 2020 Автор Поділитись Опубліковано: 15 лютого 2020 Когда-то обсуждали тему реконструкции старых советских домов на семинаре. Продавцы материалов и оборудования, конечно заинтересованы в продажах независимо от того, насколько это рационально. Из всех домов, под которыми мы откапывали "фундамент", изучали несущие стены, отопление, утепление, канализацию - нигде небыло смысла вкладываться в сохранение или реконструкцию. Только снос, и чем более ветхое здание, тем лучше. Тогда было совсем другое время, и стратегически продолжать и реанимировать то "наследие" в современных реалиях - не имеет никакого здравого экономического смысла. Тот случай, когда одно видео лучше тысячи постов! Посилання на коментар Поділитися на інших сайтах More sharing options...
normal Опубліковано: 15 лютого 2020 Поділитись Опубліковано: 15 лютого 2020 Тот домик, что иллюстрирует желаемое- как раз примерно 10х10 по габаритам Так вперед точные размеры, фото отмостки и пирог стены, потом подумаем... Посилання на коментар Поділитися на інших сайтах More sharing options...
Юдин Денис Опубліковано: 18 лютого 2020 Поділитись Опубліковано: 18 лютого 2020 Конечно реконструкция дома обойдется дешевле чем строительство нового, но для этого необходимо сделать обследования фундамента и стен здания, и если окажется что здание можно реконструировать, тогда обратится к архитектору за проектом. В противном случае конечно лучше снести и построить дом за ново. В прицепе привожу несколько примеров реализованных проектов реконструкции Посилання на коментар Поділитися на інших сайтах More sharing options...
OlegArh Опубліковано: 22 лютого 2020 Поділитись Опубліковано: 22 лютого 2020 /// прицепе привожу несколько примеров реализованных проектов реконструкции///А фото реализации есть? Иначе - по Станиславскому. 1 Посилання на коментар Поділитися на інших сайтах More sharing options...
Юдин Денис Опубліковано: 24 лютого 2020 Поділитись Опубліковано: 24 лютого 2020 А фото реализации есть? Иначе - по Станиславскому. надо поездить пофотографировать Посилання на коментар Поділитися на інших сайтах More sharing options...
gaanna_fd Опубліковано: 1 березня 2020 Поділитись Опубліковано: 1 березня 2020 Как вы решали проблему с фундаментом? как укрепляли? Посилання на коментар Поділитися на інших сайтах More sharing options...
apxitektop.s Опубліковано: 2 березня 2020 Поділитись Опубліковано: 2 березня 2020 обрый день уважаемые форумчане. Сейчас нахожусь на распутье. Ищу дом или участок под дом в центральном районе; но исторически так сложилось что все интересующие участки застроены либо домиками 60-х (стандартный проект типа такого) Снести, и сделать "псевдореконструкцию", единственное верное решение, если по участку есть какие то ограничения, а так, то новое строительство в самый раз, но судя по фото, тот домик, вплотную к забору, поэтому участок геморойный если так Посилання на коментар Поділитися на інших сайтах More sharing options...
Ameli Опубліковано: 29 березня 2020 Поділитись Опубліковано: 29 березня 2020 Однозначно лучше снести и построить заново. Вы сделаете все, как нужно именно вам. Обычно переделывают, когда нет другой возможности. Например, не хватит денег на все, только на крышу. Поэтому у дома переделают только крышу. Или если в доме приходится жить. Вы же не будете сносить дом, в котором живете? Только частями. Чтобы в одной части жить, а другую перестраивать Посилання на коментар Поділитися на інших сайтах More sharing options...
Марч80 Опубліковано: 5 квітня 2020 Поділитись Опубліковано: 5 квітня 2020 Аналогичная ситуация...дом 60м2 да ещё с подвалом. Все буду сносить. Хочется если строить, то уже то, к чему лежит душа. Для меня мой дом - это важная часть в моей жизни, так как люблю компании, собрать побольше друзей. А собирать их там, где тебе самому не очень комфортно не хочется. Да и семья у нас уже большая, так что учитывая пожелания всех решили строить новый. Посилання на коментар Поділитися на інших сайтах More sharing options...
US7IGN Опубліковано: 5 квітня 2020 Поділитись Опубліковано: 5 квітня 2020 нигде не сказано о бюджете. если неограничен и вопрос в месте, конечно сносить и строить новый. а если вопрос стоит - максимально дешево и быстро заехать и где-то жить, то можно за 2-3 месяца капитальный ремонт недорого сделать (из реконструкции фактически только вместо чердака мансарду сделать), жить и зарабатывать дальше на новый. Добавлено через 1 минуту Для меня мой дом - это важная часть в моей жизни, так как люблю компании, собрать побольше друзей собирать в доме друзей? ключевое отличие дома от квартиры любой площади это возможность физически собирать компании в отдельном гостевом домике/летней кухне. когда я живу в квартире, гости бывают крайне редко... 1 Посилання на коментар Поділитися на інших сайтах More sharing options...
Andrei constructor Опубліковано: 10 квітня 2020 Поділитись Опубліковано: 10 квітня 2020 Конечно реконструкция дома обойдется дешевле чем строительство нового Часто бывает наоборот 2 Посилання на коментар Поділитися на інших сайтах More sharing options...
Stroim2020 Опубліковано: 13 квітня 2020 Автор Поділитись Опубліковано: 13 квітня 2020 Часто бывает наоборот Только владельцы лачуг к сожалению не понимают этого. Продают до посинения кучу глины и палок по цене жилого дома а не участка. 4 Посилання на коментар Поділитися на інших сайтах More sharing options...
Рекомендовані повідомлення
Створіть акаунт або увійдіть у нього для коментування
Ви маєте бути користувачем, щоб залишити коментар
Створити акаунт
Зареєструйтеся для отримання акаунта. Це просто!
Зареєструвати акаунтУвійти
Вже зареєстровані? Увійдіть тут.
Увійти зараз