Borisg Опубліковано: 22 липня 2020 Поділитись Опубліковано: 22 липня 2020 По идее - с расстановкой мебели все но это было мучительно больно Может ящики на пенале подгоните под общую линию, а то как то "глаз режет":( 1 Посилання на коментар Поділитися на інших сайтах More sharing options...
Spiraea Опубліковано: 22 липня 2020 Поділитись Опубліковано: 22 липня 2020 Общими усилиями моими и мебельщиков пришли к такому варианту, А открытые полки не нарисовали.... Мне интересно было посмотреть ваш вариант. У меня была кухня без навесных шкафчиков и с такой же вытяжкой, я полки делала как продолжение вытяжки и нижние были стеклянные - чтоб светились..))) А сейчас у меня мойка расположена , как и ваша. Тоже были заморочки с краном и открыванием. Если бы сейчас делала, поставила бы окно с одной узкой створкой - удобнее открывать и проветривать. Кстати, сейчас заметила - у вас окно ещё и поднято над столешницей - дотянетесь ли , чтобы открыть окно? Посилання на коментар Поділитися на інших сайтах More sharing options...
akor Опубліковано: 22 липня 2020 Поділитись Опубліковано: 22 липня 2020 Честно, мне уже пофиг на ручки, как только доберусь до Вияра выберу что понравится и все) Профиль-ручки, гола, врезные...я уже проще к этому всему отношусь) О! Вы уже почти готовы заказывать! :lol: Посилання на коментар Поділитися на інших сайтах More sharing options...
san6ka Опубліковано: 22 липня 2020 Автор Поділитись Опубліковано: 22 липня 2020 Может ящики на пенале подгоните под общую линию, а то как то "глаз режет":( Да наклепала я на быструю руку - больше угол хотела показать, остальное-то сильно не поменялось, когда мебельщики нормально прорисуют - покажу ;) А открытые полки не нарисовали.... Мне интересно было посмотреть ваш вариант. У меня была кухня без навесных шкафчиков и с такой же вытяжкой, я полки делала как продолжение вытяжки и нижние были стеклянные - чтоб светились..))) А сейчас у меня мойка расположена , как и ваша. Тоже были заморочки с краном и открыванием. Если бы сейчас делала, поставила бы окно с одной узкой створкой - удобнее открывать и проветривать. Кстати, сейчас заметила - у вас окно ещё и поднято над столешницей - дотянетесь ли , чтобы открыть окно? Открытые полки про которые я писала будут по другой стене, полки себе и полки, ничего военного - чертеж внизу. Возле вытяжки будут полки с цветами, когда-то позже... По поводу окна, у меня роста должно хватить чтобы его открыть, но это не оч важно - после кухни сразу дверь на террасу, если все будет плохо - буду открывать ее) 1 Посилання на коментар Поділитися на інших сайтах More sharing options...
vadimv Опубліковано: 22 липня 2020 Поділитись Опубліковано: 22 липня 2020 поставила бы окно с одной узкой створкой - удобнее открывать и проветривать.Главное, чтобы открывающаяся створка не натыкалась на кран. 1 Посилання на коментар Поділитися на інших сайтах More sharing options...
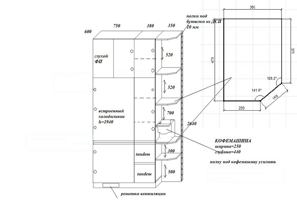
Antrate Опубліковано: 22 липня 2020 Поділитись Опубліковано: 22 липня 2020 Под духовкой ящики не на одной линии, так и задумано? И єти угловіе полки самая бестолковая вещь, ИМХО. Посилання на коментар Поділитися на інших сайтах More sharing options...
san6ka Опубліковано: 22 липня 2020 Автор Поділитись Опубліковано: 22 липня 2020 О! Вы уже почти готовы заказывать! :lol: Дааааааааа Главное, чтобы открывающаяся створка не натыкалась на кран. Уже записала в ограничения, которые нужно учесть) Под духовкой ящики не на одной линии, так и задумано? Нет, я просто поленилась прорисовать. И єти угловіе полки самая бестолковая вещь, ИМХО. Ну кому как - мне они важны, там внизу место для кота - его царское законное, чтобы мы ему не мешали, потом кофемашина - не хочу занимать полезное пространство на столешке (встроенная стоит как крыло от космолета), потом хлебница и хлам сверху. Посилання на коментар Поділитися на інших сайтах More sharing options...
alexsedov Опубліковано: 22 липня 2020 Поділитись Опубліковано: 22 липня 2020 Общими усилиями моими и мебельщиков пришли к такому варианту, дверца в угол выходит 32-33 см, не супер удобно, но для замены фильтров должно хватить. Карго будет на базе узких тандембоксов, типа такого. По идее - с расстановкой мебели все но это было мучительно больно Интересно увидеть конструкцию этой секции. или там просто не прорисовалась вертикальная линия, которую я красным нарисовал? Посилання на коментар Поділитися на інших сайтах More sharing options...
san6ka Опубліковано: 22 липня 2020 Автор Поділитись Опубліковано: 22 липня 2020 Интересно увидеть конструкцию этой секции. или там просто не прорисовалась вертикальная линия, которую я красным нарисовал? Ага, программа в 3d режиме линии чет сьедает, вот, красиво - все прорисовано и ящики вровень - не выпирают ) 1 Посилання на коментар Поділитися на інших сайтах More sharing options...
akor Опубліковано: 23 липня 2020 Поділитись Опубліковано: 23 липня 2020 Ага, программа в 3d режиме линии чет сьедает, вот, красиво - все прорисовано и ящики вровень - не выпирают ) "Замена карго" - будет достаточно ширины 180-200 мм. Это даст вам возможность на 40мм сместить мойку влево (и как вариант расширить ее тумбу). Если кран расположить в левой части мойки - то возможно он не будет мешать открыванию окна. И тогда вы сможете использовать высокий кран. Высокий кран - это удобно. У вас с правой стороны пенал. С ящиками. И дверь в кладовку. Пенал должен стоять от стены 2-3 см. Иначе при открывании ящики будут упираться в наличник. Посилання на коментар Поділитися на інших сайтах More sharing options...
san6ka Опубліковано: 23 липня 2020 Автор Поділитись Опубліковано: 23 липня 2020 "Замена карго" - будет достаточно ширины 180-200 мм. Это даст вам возможность на 40мм сместить мойку влево (и как вариант расширить ее тумбу). Я сделала это с целью которую Вам писала - чтобы как можно больше минимизировать недоубства человека у плиты при открывании посудомойки. Я сначала с Вами согласилась что это некритично, но потом подумала - у нас этот сценарий в общем-то бывает не так уж редко. У меня часто готовит супруг и я могу чет немного убрать еще в процессе, иначе после "полного цикла" готовки на кухне обычно ад и погибель) Расширить мойку можно и за счет ящиков справа, они немелкие вышли, а зачем ее расширять? Если кран расположить в левой части мойки - то возможно он не будет мешать открыванию окна. И тогда вы сможете использовать высокий кран. Высокий кран - это удобно. Согласна, удобно, я еще поеду по стройку и поэкспериментирую на месте так сказать) У вас с правой стороны пенал. С ящиками. И дверь в кладовку. Пенал должен стоять от стены 2-3 см. Иначе при открывании ящики будут упираться в наличник. Спасибо, учту ;) Посилання на коментар Поділитися на інших сайтах More sharing options...
328855 Опубліковано: 23 липня 2020 Поділитись Опубліковано: 23 липня 2020 если у Вас будет встроенный холодильник и ручка внизу дверцы и посрединке, то почитайте с какой я столкнулась проблемой https://www.stroimdom.com.ua/forum/showthread.php?t=61044&page=130 Пока не доводилось ни у кого видеть и пробовать на открывание такой холодильник, но у меня реально плохо открывался. Посилання на коментар Поділитися на інших сайтах More sharing options...
akor Опубліковано: 23 липня 2020 Поділитись Опубліковано: 23 липня 2020 Я сделала это с целью которую Вам писала - чтобы как можно больше минимизировать недоубства человека у плиты при открывании посудомойки. Я сначала с Вами согласилась что это некритично, но потом подумала - у нас этот сценарий в общем-то бывает не так уж редко. У меня часто готовит супруг и я могу чет немного убрать еще в процессе, иначе после "полного цикла" готовки на кухне обычно ад и погибель) Расширить мойку можно и за счет ящиков справа, они немелкие вышли, а зачем ее расширять? 24 см - не спасут т.е. не сделают нахождение возле плиты более удобным. Попробуйте смоделировать это в живую А расширить тумбу мойки - для того, что б кран сместить можно было левее. Т.е. не просто шире, а шире именно влево. Посилання на коментар Поділитися на інших сайтах More sharing options...
san6ka Опубліковано: 23 липня 2020 Автор Поділитись Опубліковано: 23 липня 2020 если у Вас будет встроенный холодильник и ручка внизу дверцы и посрединке, то почитайте с какой я столкнулась проблемой https://www.stroimdom.com.ua/forum/showthread.php?t=61044&page=130 Пока не доводилось ни у кого видеть и пробовать на открывание такой холодильник, но у меня реально плохо открывался. Спасибо за совет, финальное расположение ручек еще не утверждено, это я от балды пока нарисовала. На холодильнике я сразу подумала что надо сделать вертикальную ближе к краю, ибо будет неудобно, имхо. 24 см - не спасут т.е. не сделают нахождение возле плиты более удобным. Попробуйте смоделировать это в живую А расширить тумбу мойки - для того, что б кран сместить можно было левее. Т.е. не просто шире, а шире именно влево. Ахахаха, я все моделирую - текущий гарнитур, ПММ, табуреты (в качестве ограничителей) и рулетка мои компаньйоны последние пару недель), 24 неудобно - но я могу стоять при открытой ПММ, меньше уже нет + еще один повод держать себя в форме Меня сейчас, если честно, больше волнует ящик под мойкой - я хотела что-то в таком стиле viyar.ua/catalog/musornitsa_ursa_2x15l_s_dovodchikom_muller/, но 4К за мусорницу, имхо, жирно. И там же еще будет мойка подстольного монтажа и диспоузер, поэтому хочу поставить там блюмовский тадембокс+ с релингом, пытаюсь понять высоту. Кто скажет вот на картинке 3 ящика, это разные ящики какие-то или ящик один, но высоту можно при монтаже отрегулировать? Посилання на коментар Поділитися на інших сайтах More sharing options...
Музей Опубліковано: 23 липня 2020 Поділитись Опубліковано: 23 липня 2020 Кухня без двойной мойки с мокрым столиком удобной не бывает. Посилання на коментар Поділитися на інших сайтах More sharing options...
san6ka Опубліковано: 23 липня 2020 Автор Поділитись Опубліковано: 23 липня 2020 Кухня без двойной мойки с мокрым столиком удобной не бывает. А че?) Расскажите, как Вы используете двойную мойку? И зачем мокрый стол? Просто я посуду не мою от слова совсем, даже чашку или ложку, все моет ПММ. Муж вот правда иногда такое делает (сумасшедший человек ), но спецом для него я хочу поставить какую мелкую стильную сушилку на стол (буквально на пару чашек и столовых приборов) или какой-то коврик для сушки посуды, который легко убирается и освобождает рабочую поверхность. Посилання на коментар Поділитися на інших сайтах More sharing options...
outdoor24 Опубліковано: 23 липня 2020 Поділитись Опубліковано: 23 липня 2020 Якщо ТС не проти і мова вже зайшла про зручність мийок, то як такий варіант у користуванні? Посилання на коментар Поділитися на інших сайтах More sharing options...
san6ka Опубліковано: 23 липня 2020 Автор Поділитись Опубліковано: 23 липня 2020 Якщо ТС не проти і мова вже зайшла про зручність мийок, то як такий варіант у користуванні? Я только за, может я упускаю какую-то супер возможность сделать жизнь лучше сама того не зная - надо разобраться!) Посилання на коментар Поділитися на інших сайтах More sharing options...
328855 Опубліковано: 23 липня 2020 Поділитись Опубліковано: 23 липня 2020 ну если еще с двойной мойкой можно согласиться, то за мокрый стол в небольшой кухне готова поспорить. Коврик для сушки посуды убрал и есть ровная рабочая поверхность. Купила в Эпике два таких коврика - хорошо стираются и быстро сохнут на полотенцесушителе. ПММ конечно расслабляет и даже чашку лень сполоснуть 1 Посилання на коментар Поділитися на інших сайтах More sharing options...
san6ka Опубліковано: 23 липня 2020 Автор Поділитись Опубліковано: 23 липня 2020 ну если еще с двойной мойкой можно согласиться, то за мокрый стол в небольшой кухне готова поспорить. Коврик для сушки посуды убрал и есть ровная рабочая поверхность. Купила в Эпике два таких коврика - хорошо стираются и быстро сохнут на полотенцесушителе. ПММ конечно расслабляет и даже чашку лень сполоснуть Как там правильно - здравствуйте, я Александра и я патологическая лентяйка)) Но я не вижу в этом ничего дурного, вещи тоже иногда руками стирать чтобы не расслабляться?) Я считаю мокрый стол или крыло у мойки бесполезной штукой, только полезное место на рабочей поверхности занимают. Но может я чего-то не понимаю и для каких-то определенных задач это удобно, поэтому и спрашиваю. 1 Посилання на коментар Поділитися на інших сайтах More sharing options...
akor Опубліковано: 23 липня 2020 Поділитись Опубліковано: 23 липня 2020 Ахахаха, я все моделирую - текущий гарнитур, ПММ, табуреты (в качестве ограничителей) и рулетка мои компаньйоны последние пару недель), 24 неудобно - но я могу стоять при открытой ПММ, меньше уже нет + еще один повод держать себя в форме Меня сейчас, если честно, больше волнует ящик под мойкой - я хотела что-то в таком стиле viyar.ua/catalog/musornitsa_ursa_2x15l_s_dovodchikom_muller/, но 4К за мусорницу, имхо, жирно. И там же еще будет мойка подстольного монтажа и диспоузер, поэтому хочу поставить там блюмовский тадембокс+ с релингом, пытаюсь понять высоту. Ой-ой! У вас мойка займет 18-20 см высоты. Под мойкой диспоузер - еще 32 см. И на само ведро по высоте останется 20см. Что б все впихнуть - нужно тумбу расширять. Кто скажет вот на картинке 3 ящика, это разные ящики какие-то или ящик один, но высоту можно при монтаже отрегулировать? Ящик, а точнее комплект фурнитуры - скорее всего один и тот же. Максимум - бывают комплектации на диапазон высот (типа 100-150, 150-250, 250-400, или как-то так) Посилання на коментар Поділитися на інших сайтах More sharing options...
Antrate Опубліковано: 23 липня 2020 Поділитись Опубліковано: 23 липня 2020 Сушка для посуді есть, или я пропустил? Или без не'? По ящикам: у меня хетик, и ящики есть стандартніе по вісоте 2-х размеров 94мм и 126мм вроде, но можно нарастить с помощью вставок. Посилання на коментар Поділитися на інших сайтах More sharing options...
Музей Опубліковано: 23 липня 2020 Поділитись Опубліковано: 23 липня 2020 А че?) Расскажите, как Вы используете двойную мойку? И зачем мокрый стол? Просто я посуду не мою от слова совсем, даже чашку или ложку, все моет ПММ. Муж вот правда иногда такое делает (сумасшедший человек ), но спецом для него я хочу поставить какую мелкую стильную сушилку на стол (буквально на пару чашек и столовых приборов) или какой-то коврик для сушки посуды, который легко убирается и освобождает рабочую поверхность. Овощи, фрукты, прочие продукты тоже моете в ПМ? Можно минимизировать любые удобства. Даже с такой крохотной кухней, как у Вас можно как-то жить. Удачи. Посилання на коментар Поділитися на інших сайтах More sharing options...
vitaya Опубліковано: 23 липня 2020 Поділитись Опубліковано: 23 липня 2020 А че?) Расскажите, как Вы используете двойную мойку? И зачем мокрый стол? Просто я посуду не мою от слова совсем, даже чашку или ложку, все моет ПММ. Муж вот правда иногда такое делает (сумасшедший человек ), но спецом для него я хочу поставить какую мелкую стильную сушилку на стол (буквально на пару чашек и столовых приборов) или какой-то коврик для сушки посуды, который легко убирается и освобождает рабочую поверхность. Вместо коврика или мокрого стола лучше предусмотреть сушку для посуды в шкафу. Даже при наличии ПМ Посилання на коментар Поділитися на інших сайтах More sharing options...
voglya Опубліковано: 23 липня 2020 Поділитись Опубліковано: 23 липня 2020 Кухня без двойной мойки с мокрым столиком удобной не бывает. А мне не понравилась двойная мойка. И угловая не нравится, в смысле - когда мойка в углу. Посилання на коментар Поділитися на інших сайтах More sharing options...
Рекомендовані повідомлення
Створіть акаунт або увійдіть у нього для коментування
Ви маєте бути користувачем, щоб залишити коментар
Створити акаунт
Зареєструйтеся для отримання акаунта. Це просто!
Зареєструвати акаунтУвійти
Вже зареєстровані? Увійдіть тут.
Увійти зараз