klyshavchuk Опубліковано: 16 червня 2012 Поділитись Опубліковано: 16 червня 2012 Смотрите устав товарищества. Перечитал устав, нигде в нем нет упоминания об отступах и интервалах. Но из вашего ответа я понял что эти нормы регулируются ДБН 360-92. И не могли бы вы ответить на второй вопрос нужно ли узаканивать двухэтажный дом на участке и что под этим подразумевают? Ведь даже если я зарегистрирую его в БТИ, прописки мне все равно не видать, т.к. товарищество не в черте города (но прилегает, можно сказать находится на границе). В уставе есть пункт: "Садово-городнє товариство має право на своїй теріторії будувати житлові будинки і споруди". И если узаканивать, подскажите нужно ли согласие всех соседей по участку или можно обойтись без их согласия? (с одним из соседей есть конфликтная ситуация из-за расстояния от межи до хозпостройки. Спасибо за ответы! Посилання на коментар Поділитися на інших сайтах More sharing options...
finlex888 Опубліковано: 4 липня 2012 Поділитись Опубліковано: 4 липня 2012 Друзья, а подскажите пожалуйста, если навес для авто с одной стороны примыкает в дому, то с другой стороны на каком расстоянии от забора с соседом должны находиться подпорные стойки (колонны)? И еще, свес навеса на каком расстоянии должен заканчиваться от соседа (слив осадков естественно делаю "к себе")? Фото для визуализации вопроса (не мое) Большое спасибо заранее всем откликнувшимся. Посилання на коментар Поділитися на інших сайтах More sharing options...
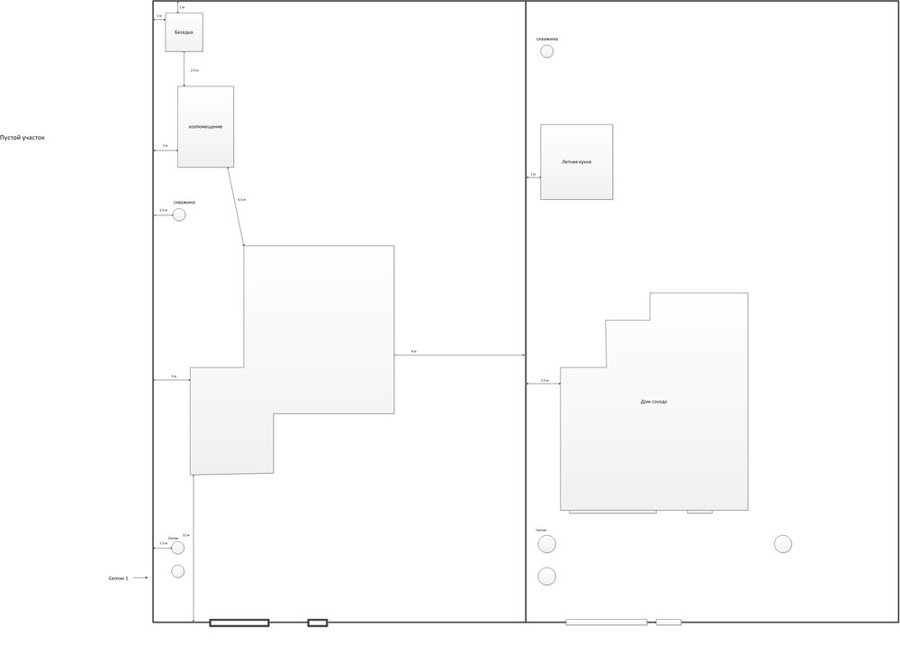
kleo_k Опубліковано: 5 липня 2012 Поділитись Опубліковано: 5 липня 2012 форумчане, вопрос в тему, помогите советом по правильному расположению дома и хозпристройки (так чтобы согласовали для стройпаспорта -так сказать "малою кровью"). уже переместили летнюю кухню по совету Мирона, может кто-то еще что подскажет. Юрий, особенно интересно Ваше мнение как эксперта в этих вопросах, дайте пож., свое заключение. Местонахождение участка -Вита-Почтовая, Киево-Святошинский район. Посилання на коментар Поділитися на інших сайтах More sharing options...
apxitektop Опубліковано: 5 липня 2012 Поділитись Опубліковано: 5 липня 2012 форумчане, вопрос в тему, помогите советом по правильному расположению дома и хозпристройки (так чтобы согласовали для стройпаспорта -так сказать "малою кровью"). уже переместили летнюю кухню по совету Мирона, может кто-то еще что подскажет. Юрий, особенно интересно Ваше мнение как эксперта в этих вопросах, дайте пож., свое заключение. Местонахождение участка -Вита-Почтовая, Киево-Святошинский район. Могу сказать, что есть два варианта - по ДБН сделать+ учесть "стандартные" требования архитектуры; второй - узнать в архитектуре. Если вариант 1, то дом отодвинут на 4 м, остальные постройки - на 2-4 м. Если вариант 2 + учесть мой опыт согласования по Вите-Почтовой, то дом либо оставят в 3 м либо таки передвинут на 3,5-4 м, а хозпостройки мне удавалось разместить в 1,5 м от границы. Могу Ваш вариант показать на следующей неделе инспектору, которая отвечает за Виту-Почтовую. Это лучше в ЛС обсудить. 1 Посилання на коментар Поділитися на інших сайтах More sharing options...
Gennady FF Опубліковано: 6 липня 2012 Поділитись Опубліковано: 6 липня 2012 Уважаемые форумчане, посоветуйте. Моя коробка дома (240 кв.м) и дом соседа встречаются углами (не стенами). Грубо говоря, стоят на одной диагонали. Степень огнестойкости строений -2-3. Ближайшие участки стен без оконных и дверных проёмов. Расстояние между углами - 5,3 м. Вы когда-нибудь сталкивались с подобной ситуацией? И стройпаспорт, и разрешение на выполнение работ сделаны в 2010 году. Я посадил дом на 2,5 м ближе к соседу, думая что степень огнестойкости - 2. Думаю кого именно звать на консультацию: техника БТИ или инспектора ГАСК. Выяснилось, что мой сосед не оформил акт и сидит с дарственной на свой участок. Он документы на строительство вообще не делал. Имеет ли смысл срезать угол до 6,4м? Или возможны менее болезненные варианты? Есть ли возможность решить проблему раз и навсегда? С кем именно консультироваться? БТИ? Архитектура? Боюсь что рано или поздно инспекция с рулетками начнёт ходить – сосед начнёт узаконивать (техобстеження) в самый для меня неподходящий момент. Спасибо. Посилання на коментар Поділитися на інших сайтах More sharing options...
kleo_k Опубліковано: 6 липня 2012 Поділитись Опубліковано: 6 липня 2012 apxitektop, Юра, респект за понимание и помощь! 1 Посилання на коментар Поділитися на інших сайтах More sharing options...
nebor Опубліковано: 2 серпня 2012 Поділитись Опубліковано: 2 серпня 2012 Допоможіть будь-ласка по такому питанню - біля приватного будинку збудували великий 10 поверховий будинок, тепер прямо біля паркану починають будувати гаражі - стік води буде на наш бік - що робити в такому випадку? чи є якісь будівельні норми щодо відстані від будівництва до сусіднього паркана? Посилання на коментар Поділитися на інших сайтах More sharing options...
Miron VV Опубліковано: 2 серпня 2012 Поділитись Опубліковано: 2 серпня 2012 Допоможіть будь-ласка по такому питанню - біля приватного будинку збудували великий 10 поверховий будинок, тепер прямо біля паркану починають будувати гаражі - стік води буде на наш бік - що робити в такому випадку? чи є якісь будівельні норми щодо відстані від будівництва до сусіднього паркана? проектом должно быть предусмотрен отвод атмосферных вод, узнавайте в архитектуре, ведь смотреть нужно по ситуации что за стройка, как планировали и т.п. Посилання на коментар Поділитися на інших сайтах More sharing options...
nebor Опубліковано: 2 серпня 2012 Поділитись Опубліковано: 2 серпня 2012 проектом должно быть предусмотрен отвод атмосферных вод, узнавайте в архитектуре, ведь смотреть нужно по ситуации что за стройка, как планировали и т.п. в архітектурі по плану немає ніяких гаражів, думаю що будівництво самовільне - збудують, заплатять невеликий штраф і все - а гаражі в центрі міста коштують дорого Посилання на коментар Поділитися на інших сайтах More sharing options...
Miron VV Опубліковано: 2 серпня 2012 Поділитись Опубліковано: 2 серпня 2012 в архітектурі по плану немає ніяких гаражів, думаю що будівництво самовільне - збудують, заплатять невеликий штраф і все - а гаражі в центрі міста коштують дорого ну.....не так все просто (если это великие ребята из....), в вашем распоряжении бумага и чернила.....бейте в колокола Жалоба: 1. Исполком 2. Земельную инспекцию 3. ГАСК 4. Прокуратуру 5. Экологию 6. СЭС 7. Президенту и КМУ 8. Звонок на "горячую линию" КМУ Промедление......построят и может и узаконят.....вот тогда все сложнее. 1 Посилання на коментар Поділитися на інших сайтах More sharing options...
nebor Опубліковано: 2 серпня 2012 Поділитись Опубліковано: 2 серпня 2012 а в ДАБК звертатися?? а на рахунок відводу атмосферних вод - вся вода з дахів буде стікати на нашу територію - відстань від стіни гаража до паркану менше 1 метра Посилання на коментар Поділитися на інших сайтах More sharing options...
Miron VV Опубліковано: 2 серпня 2012 Поділитись Опубліковано: 2 серпня 2012 а в ДАБК звертатися?? а на рахунок відводу атмосферних вод - вся вода з дахів буде стікати на нашу територію - відстань від стіни гаража до паркану менше 1 метра везде обращаться (на ГАСК надежда что резко наведут порядок не стоит, он продажный прежде всего и будет выполнять указания прокуратуры или из Киева), проекта нет, землеотвода нет - все нарушения земельного и градостроительного законодательства - не тяните..... Посилання на коментар Поділитися на інших сайтах More sharing options...
alekseyy Опубліковано: 3 серпня 2012 Поділитись Опубліковано: 3 серпня 2012 Доброго времени суток! Хочу тоже обратиться к форумчанам за помощью. Купил старый дом с участком, дом хочу снести и построить новый. Но есть одно неудобство: на территории участка на углу стоит капитальный гараж соседа (в тех. паспорте это место заштриховано, как не относящееся к участку). Собственно вопрос - сколько метров необходимо отступить от левого нижнего угла гаража для нового дома? Заранее спасибо за ответ! Посилання на коментар Поділитися на інших сайтах More sharing options...
Miron VV Опубліковано: 3 серпня 2012 Поділитись Опубліковано: 3 серпня 2012 Доброго времени суток! Хочу тоже обратиться к форумчанам за помощью. Купил старый дом с участком, дом хочу снести и построить новый. Но есть одно неудобство: на территории участка на углу стоит капитальный гараж соседа (в тех. паспорте это место заштриховано, как не относящееся к участку). Собственно вопрос - сколько метров необходимо отступить от левого нижнего угла гаража для нового дома? Заранее спасибо за ответ! в районе 8 метров (взависимости от степени огнестойкости может больше а может и меньше) Посилання на коментар Поділитися на інших сайтах More sharing options...
belosnezka Опубліковано: 3 серпня 2012 Поділитись Опубліковано: 3 серпня 2012 И мне разъясните: я купила пустой участок. Дом соседа уже стоял в 1.5 м от межи с моим участком (но он не узаконен до сих пор). Я отступила 3 м от межи и построила дом. Соответственно, 6 м у нас нет. Кто виноват? Кто будет платить штраф или брать бумажку у соседа, что он не против? 1 Посилання на коментар Поділитися на інших сайтах More sharing options...
Miron VV Опубліковано: 3 серпня 2012 Поділитись Опубліковано: 3 серпня 2012 И мне разъясните: я купила пустой участок. Дом соседа уже стоял в 1.5 м от межи с моим участком (но он не узаконен до сих пор). Я отступила 3 м от межи и построила дом. Соответственно, 6 м у нас нет. Кто виноват? Кто будет платить штраф или брать бумажку у соседа, что он не против? 1. Смотрим документы кторые позволяли Вам строить по Закону и нормам. 2. Если оба строили как хотели и без разрешительных документов - оба платят штрафы и друг друга просят согласовать меньше 8. м. (6 думаю не проходит у Вас) типа.....претензий не имею к тому что 4.5 метра противопожарный разрыв (не забываем о наличии огнетушителей дома и страховке). Хотя гарантийные письма никому по идее не нужны кроме Вас - Посилання на коментар Поділитися на інших сайтах More sharing options...
alekseyy Опубліковано: 3 серпня 2012 Поділитись Опубліковано: 3 серпня 2012 в районе 8 метров (взависимости от степени огнестойкости может больше а может и меньше) Да....8 метров как то не очень устраивает.... Посилання на коментар Поділитися на інших сайтах More sharing options...
Miron VV Опубліковано: 3 серпня 2012 Поділитись Опубліковано: 3 серпня 2012 Да....8 метров как то не очень устраивает.... вот тут уже возможности нашей прекрасной страны и ее возможности - "решить" вопрос 4.5 метров..... Посилання на коментар Поділитися на інших сайтах More sharing options...
alekseyy Опубліковано: 3 серпня 2012 Поділитись Опубліковано: 3 серпня 2012 вот тут уже возможности нашей прекрасной страны и ее возможности - "решить" вопрос 4.5 метров..... Эх, знать бы только к кому, как и сколько :D, в принципе устроило бы и 6 метров. Посилання на коментар Поділитися на інших сайтах More sharing options...
Miron VV Опубліковано: 3 серпня 2012 Поділитись Опубліковано: 3 серпня 2012 Эх, знать бы только к кому, как и сколько :D, в принципе устроило бы и 6 метров. вполне ....только тогда или стены без окон или противопожарная стена.....или 2-я степень огнестойоксти у обоих зданий Посилання на коментар Поділитися на інших сайтах More sharing options...
belosnezka Опубліковано: 4 серпня 2012 Поділитись Опубліковано: 4 серпня 2012 оба платят штрафы и друг друга просят согласовать меньше 8. м. Отступить 8 м нереально, так как ширина участков 15-16 м. А почему я должна платить? Я же от межи отступила законных 3 м. Посилання на коментар Поділитися на інших сайтах More sharing options...
Miron VV Опубліковано: 4 серпня 2012 Поділитись Опубліковано: 4 серпня 2012 Отступить 8 м нереально, так как ширина участков 15-16 м. А почему я должна платить? Я же от межи отступила законных 3 м. нет законный 3 м от межи - есть 3.0 м от красной линии (уличного забора Вашего) - тут противопожарный разрыв до зданий соседнего участка должен быть взависимости от степени огнестойкости от 6.0 м.до 15 м. Посилання на коментар Поділитися на інших сайтах More sharing options...
Музей Опубліковано: 4 серпня 2012 Поділитись Опубліковано: 4 серпня 2012 Miron VV, подскажите и мне, пожалуйста. В моём СП отступ от межи с совершенно пустым соседским участком сделали 5м. А от дороги отступ тоже 5 м. За дорогой поле. При размерах моего участка 38-40м, это не станет проблемой. Но, зачем мне 5м отступ за северной стороной дома? Я пыталась спорить с архитектурным отделом, но "тётенька" пёрла, как танк. Правильно ли сделан отступ в 5 м от межи и если нет, то как аргументировать мои вопросы в архитектуре? Посилання на коментар Поділитися на інших сайтах More sharing options...
Miron VV Опубліковано: 4 серпня 2012 Поділитись Опубліковано: 4 серпня 2012 Miron VV, подскажите и мне, пожалуйста. В моём СП отступ от межи с совершенно пустым соседским участком сделали 5м. А от дороги отступ тоже 5 м. За дорогой поле. При размерах моего участка 38-40м, это не станет проблемой. Но, зачем мне 5м отступ за северной стороной дома? Я пыталась спорить с архитектурным отделом, но "тётенька" пёрла, как танк. Правильно ли сделан отступ в 5 м от межи и если нет, то как аргументировать мои вопросы в архитектуре? 1. На плане застройки должен быть указаны Ваши строения и их привязка с соседним домовладениям (строениям на них). Если там пусто - то без проблем "тетенька" по Вашему эскизу (предложению) рисует от межи соседа мин. 1.0 м. (участок все таки очччень широкий) от красной линиии как там по генплану села (в основном или 3.0 м. или 5.0 м.). А так получается она уже думает о соседнем доме......но на такой ширине можн всегда 8 м. разрывы организовать...."тетенька" странная....вот Вы ей и растолкуйте что можно 1.0м. по ДБН 360-92** и ширина участов позволяет соблюсти пожарные разывы. да....а соседний участок может совсем узенький ???? и поэтому 5 м. Вас от него отодвинули ? Тогда она права "тетенька".... Посилання на коментар Поділитися на інших сайтах More sharing options...
Музей Опубліковано: 4 серпня 2012 Поділитись Опубліковано: 4 серпня 2012 Тогда она права "тетенька".... Соседний участок, судя по топосъемке равен моему. Вот я и говорю ей, что 4м от межи и 4м от дороги (12м дорога, а дальше поле). Она говорит пожарный разрыв 10м. Посилання на коментар Поділитися на інших сайтах More sharing options...
Рекомендовані повідомлення
Створіть акаунт або увійдіть у нього для коментування
Ви маєте бути користувачем, щоб залишити коментар
Створити акаунт
Зареєструйтеся для отримання акаунта. Це просто!
Зареєструвати акаунтУвійти
Вже зареєстровані? Увійдіть тут.
Увійти зараз