Cлава Опубліковано: 31 грудня 2021 Поділитись Опубліковано: 31 грудня 2021 Всех с почти наступившим Есть вот такой вопрос на обсуждение хотелось бы вынести Получил я проект и кошторыс. И хотелось бы понять где меня любят или все +- ок Интересно по фундаменту. Насколько оправдано и правильно. Бетон например запрограммирован В25. Но склоняют к В20. Сваи предлагают не гидроизолировать. Ну и посчитали коробка дома с крышей (без утепления фасадов) 3 ляма гр. под ключ. Это приемлемо ? Немного информации в атачах. И если не в ту ветку то прошу прощения заранее. Буду рад конструктивному диалогу и всем самого лучшего и удачных строек в новом году Геологічний звіт .pdf Посилання на коментар Поділитися на інших сайтах More sharing options...
Narval Опубліковано: 31 грудня 2021 Поділитись Опубліковано: 31 грудня 2021 (змінено) Смету не смотрел, но осуждаю грубо по прикидкам на вашу площадь: фундамент 27 т.д. (С плитой) стены 15-20 т.д. Крыша - 20-30 (зависит от конструктива) и это грубо, если хотите точно- дайте запрос разным подрядчикам. без подвала гидра не нужна. Змінено 31 грудня 2021 користувачем Narval 1 Посилання на коментар Поділитися на інших сайтах More sharing options...
GraD_Kh Опубліковано: 31 грудня 2021 Поділитись Опубліковано: 31 грудня 2021 А что у вас там за грунты, что такой фундамент предложили? Посилання на коментар Поділитися на інших сайтах More sharing options...
Cлава Опубліковано: 31 грудня 2021 Автор Поділитись Опубліковано: 31 грудня 2021 (змінено) 19 минут назад, GraD_Kh сказал: А что у вас там за грунты, что такой фундамент предложили? Песок. УГВ 2.6м. Геологию приатачил. Змінено 31 грудня 2021 користувачем Cлава Посилання на коментар Поділитися на інших сайтах More sharing options...
GraD_Kh Опубліковано: 31 грудня 2021 Поділитись Опубліковано: 31 грудня 2021 16 минут назад, Cлава сказал: Песок. УГВ 2.6м. Геологию приатачил. Судя по геологии у Вас вполне нормально опираться на второй слой (ИГЕ-2). Зачем в это случае городить сваи и ростверк - я не понял. Я бы на Вашем месте оптимизацию начал бы с проекта фундамента, можно здесь на форуме обратиться к конструкторам 2 Посилання на коментар Поділитися на інших сайтах More sharing options...
Vikctor Опубліковано: 1 січня 2022 Поділитись Опубліковано: 1 січня 2022 Походу налюбили именно на фундаменте. Наверное там самый жирный кошторис в коробке... Посилання на коментар Поділитися на інших сайтах More sharing options...
Drosselbeere Опубліковано: 1 січня 2022 Поділитись Опубліковано: 1 січня 2022 (змінено) 4 минуты назад, Vikctor сказал: Наверное там самый жирный кошторис в коробке... так судя по отрывкам из проекта, по ходу монолитный ж/б каркас запроектирован .... для одноэтажного дома Змінено 1 січня 2022 користувачем Drosselbeere 1 Посилання на коментар Поділитися на інших сайтах More sharing options...
Vikctor Опубліковано: 1 січня 2022 Поділитись Опубліковано: 1 січня 2022 4 минуты назад, Drosselbeere сказал: так судя по отрывкам из проекта, по ходу монолитный ж/б каркас запроектирован .... для одноэтажного дома В смысле монолитно-каркасная конструкция с заполнением в полтора кирпича? Что-то я такого не припомню на форуме ни в Крыму, ни в Одессе, ни в Закарпатье. Вроде иных сейсмических зон у нас нет... Посилання на коментар Поділитися на інших сайтах More sharing options...
Drosselbeere Опубліковано: 1 січня 2022 Поділитись Опубліковано: 1 січня 2022 8 минут назад, Vikctor сказал: В смысле монолитно-каркасная конструкция с заполнением в полтора кирпича? наверное я погорячился, меня колонны на террасе и крыльце ввели в заблуждение. Посилання на коментар Поділитися на інших сайтах More sharing options...
Cлава Опубліковано: 1 січня 2022 Автор Поділитись Опубліковано: 1 січня 2022 Всех с новым годом ! Самый жирный кусок, крыша. Стены были предложены в кирпичь. Но мне както дом в кирпичь на гараж похож. Посилання на коментар Поділитися на інших сайтах More sharing options...
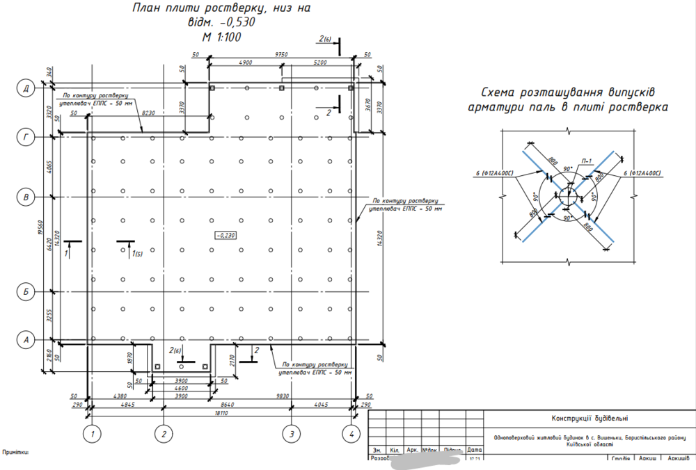
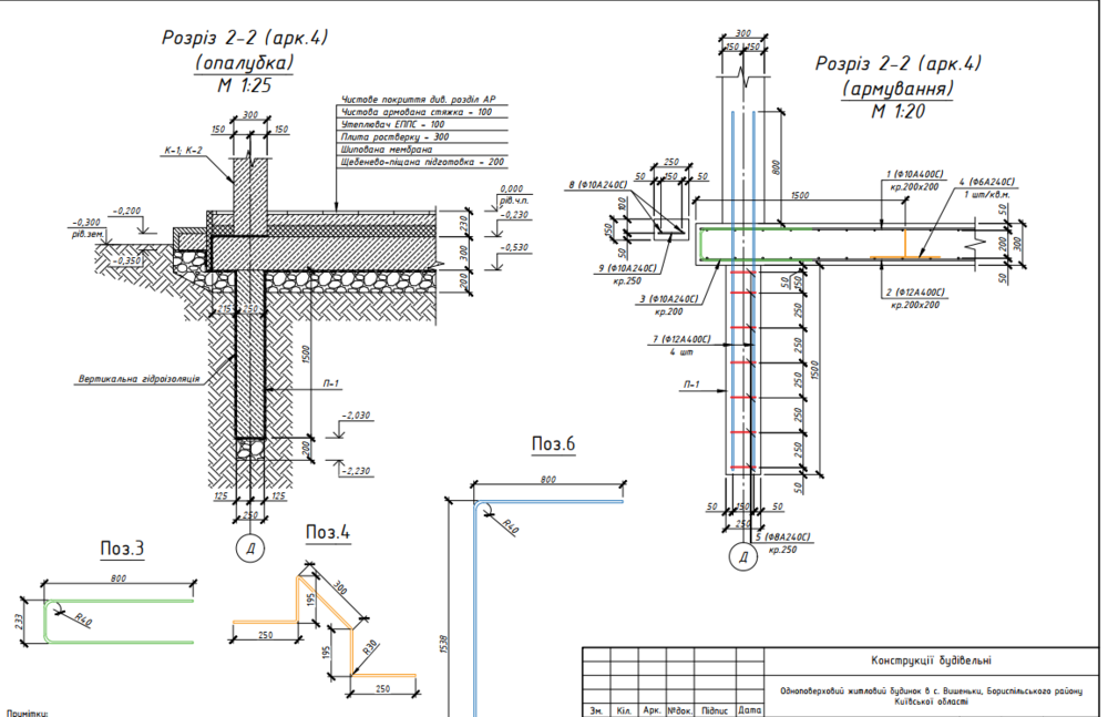
andry07 Опубліковано: 1 січня 2022 Поділитись Опубліковано: 1 січня 2022 С наступившим. Фундамент запроектирован мягко говоря неправильно. В сваях абсолютно нет смысла, просто закопанные деньги. Такого диаметра и с таким шагом они ничего не будут нести. Поинтересуйтесь у авторов проекта несущей способностью сваи. А потом спросите зачем эти сваи вообще нужны при хорошем песке с глубины 0,2м до 2,3м и при этом длине сваи 1,5м. Ну и гидроизоляция свай..... Первый вопрос зачем, если грунты неагрессивные. Второй вопрос как? Никогда такого не видел и даже самому интересно. При ваших грунтах либо ленточный фундамент, либо плита без всяких свай. Ну и если такой бред в фундаментах изображен, рекомендую этот проект отдать другим проектировщикам для поиска ненужных и глупых решений. 3 Посилання на коментар Поділитися на інших сайтах More sharing options...
andry07 Опубліковано: 1 січня 2022 Поділитись Опубліковано: 1 січня 2022 2 часа назад, Cлава сказал: Всех с новым годом ! Самый жирный кусок, крыша. Стены были предложены в кирпичь. Но мне както дом в кирпичь на гараж похож. стены толщиной 250мм (в один кирпич) нормальное решение. 1 1 Посилання на коментар Поділитися на інших сайтах More sharing options...
MAESTRO DNEPR Опубліковано: 1 січня 2022 Поділитись Опубліковано: 1 січня 2022 2 часа назад, Cлава сказал: Стены были предложены в кирпич. Но мне как-то дом в кирпич на гараж похож. Вам просто пытались подсунуть копию какого-то польского проекта. Видимо, Вы им как-то сразу понравились и они Вас с первого взгляда "полюбили") пс. ...стены толщиной в кирпич - это действительно в лучшем случае гараж... но никак не дом. Посилання на коментар Поділитися на інших сайтах More sharing options...
andry07 Опубліковано: 1 січня 2022 Поділитись Опубліковано: 1 січня 2022 3 минуты назад, MAESTRO DNEPR сказал: пс. ...стены толщиной в кирпич - это действительно в лучшем случае гараж... но никак не дом. Интересно почему? Чем плоха стена в кирпич при утеплении 150мм ваты? Посилання на коментар Поділитися на інших сайтах More sharing options...
Cлава Опубліковано: 1 січня 2022 Автор Поділитись Опубліковано: 1 січня 2022 14 минут назад, andry07 сказал: С наступившим. Фундамент запроектирован мягко говоря неправильно. В сваях абсолютно нет смысла, просто закопанные деньги. Такого диаметра и с таким шагом они ничего не будут нести. Поинтересуйтесь у авторов проекта несущей способностью сваи. А потом спросите зачем эти сваи вообще нужны при хорошем песке с глубины 0,2м до 2,3м и при этом длине сваи 1,5м. Ну и гидроизоляция свай..... Первый вопрос зачем, если грунты неагрессивные. Второй вопрос как? Никогда такого не видел и даже самому интересно. При ваших грунтах либо ленточный фундамент, либо плита без всяких свай. Ну и если такой бред в фундаментах изображен, рекомендую этот проект отдать другим проектировщикам для поиска ненужных и глупых решений. По гидроизоляции там скорее капилярная влага меня напрягает. В принципе на простораз нета типа рубероид в скважину потом арматуру и тд. По остальному да, вот проверяю Посилання на коментар Поділитися на інших сайтах More sharing options...
Cлава Опубліковано: 1 січня 2022 Автор Поділитись Опубліковано: 1 січня 2022 1 минуту назад, andry07 сказал: Интересно почему? Чем плоха стена в кирпич при утеплении 150мм ваты? стена в кирпичь не по феншую. Тут все калькуляторы тепловые говорят что нормально так что тут у меня нет вопросов. Но стена должна быть стена. 1 Посилання на коментар Поділитися на інших сайтах More sharing options...
andry07 Опубліковано: 1 січня 2022 Поділитись Опубліковано: 1 січня 2022 Только что, Cлава сказал: По гидроизоляции там скорее капилярная влага меня напрягает. В принципе на простораз нета типа рубероид в скважину потом арматуру и тд. По остальному да, вот проверяю Бред. Для бетона влага это хорошо. Этот бетон Вы от вышележащих конструкций в любом случае гидроизолировать будете. Ну и пихая рубероид в скважину вы нарушаете принцип работы свай. Да и не запихнете вы его в скважину в песке, стенки осыпятся и будет еще хуже. 2 Посилання на коментар Поділитися на інших сайтах More sharing options...
andry07 Опубліковано: 1 січня 2022 Поділитись Опубліковано: 1 січня 2022 (змінено) 4 минуты назад, Cлава сказал: стена в кирпичь не по феншую. Тут все калькуляторы тепловые говорят что нормально так что тут у меня нет вопросов. Но стена должна быть стена. Так себе аргумент. Не, ну если деньги лишние есть, то никто не запретит. И у Вас внутренние стены в кирпич запроектированы. Это по феншую? Змінено 1 січня 2022 користувачем andry07 1 Посилання на коментар Поділитися на інших сайтах More sharing options...
MAESTRO DNEPR Опубліковано: 1 січня 2022 Поділитись Опубліковано: 1 січня 2022 2 минуты назад, andry07 сказал: Так себе аргумент. Не, ну если деньги лишние есть, то никто не запретит. М - минимализация!)) Посилання на коментар Поділитися на інших сайтах More sharing options...
andry07 Опубліковано: 1 січня 2022 Поділитись Опубліковано: 1 січня 2022 Только что, MAESTRO DNEPR сказал: М - минимализация!)) это мой конек )))) 1 Посилання на коментар Поділитися на інших сайтах More sharing options...
Cлава Опубліковано: 1 січня 2022 Автор Поділитись Опубліковано: 1 січня 2022 (змінено) 4 минуты назад, andry07 сказал: Так себе аргумент. Не, ну если деньги лишние есть, то никто не запретит. И у Вас внутренние стены в кирпич запроектированы. Это по феншую? Да, согласен. Что касаемо наружных стен то тут скорее подход хозяин барин. По поводу внутрених не берусь утверждать. Возможно и перебор. Змінено 1 січня 2022 користувачем Cлава Посилання на коментар Поділитися на інших сайтах More sharing options...
Cлава Опубліковано: 1 січня 2022 Автор Поділитись Опубліковано: 1 січня 2022 (змінено) А может ктото подсказать тему на форуме плиз. Холивары на тему 2НФ версус кирпич полнотелый ? Чета не могу найти. Змінено 1 січня 2022 користувачем Cлава Посилання на коментар Поділитися на інших сайтах More sharing options...
standov Опубліковано: 1 січня 2022 Поділитись Опубліковано: 1 січня 2022 2 часа назад, Cлава сказал: А может ктото подсказать тему на форуме плиз. Холивары на тему 2НФ версус кирпич полнотелый ? Чета не могу найти. Можно прямо тут срачик устроить 1 3 Посилання на коментар Поділитися на інших сайтах More sharing options...
Drosselbeere Опубліковано: 2 січня 2022 Поділитись Опубліковано: 2 січня 2022 5 часов назад, Cлава сказал: Да, согласен. Что касаемо наружных стен то тут скорее подход хозяин барин. По поводу внутрених не берусь утверждать. Возможно и перебор. в общих данных у вас указаны внутрение несущие - 250 мм, а перегородки - 120 мм, это вполне нормально, нет там никакого перебора. 3 Посилання на коментар Поділитися на інших сайтах More sharing options...
mastervovik Опубліковано: 2 січня 2022 Поділитись Опубліковано: 2 січня 2022 9 часов назад, Cлава сказал: Да, согласен. Что касаемо наружных стен то тут скорее подход хозяин барин. По поводу внутрених не берусь утверждать. Возможно и перебор. Это был сарказм если вы не поняли) Почему внутренняя несущая 250 по фен-шую а наружная нет? Чем они отличаются что вы так решили?) Лучше эти 12 сантимов с экономить на ширине фундамента. 2 Посилання на коментар Поділитися на інших сайтах More sharing options...
Рекомендовані повідомлення
Створіть акаунт або увійдіть у нього для коментування
Ви маєте бути користувачем, щоб залишити коментар
Створити акаунт
Зареєструйтеся для отримання акаунта. Це просто!
Зареєструвати акаунтУвійти
Вже зареєстровані? Увійдіть тут.
Увійти зараз