ЯД Опубліковано: 8 січня 2023 Автор Поділитись Опубліковано: 8 січня 2023 1 година тому, volkoff сказав: Он у пана "ЯД" дивлюсь по коробцi,так у него уже перевалило по цiнi за комплект кер-блокiв,а ще йому тре купити дещо i переробити по роботi,а вже б закiнчив коробку. Так сколько ж стоит комплект, если коробка только сейчас перевалила за "комплект"? У меня лично "комплект" ГБ обошёлся в около 400к. И ещё осталось пару кубов, которые брал про-запас Посилання на коментар Поділитися на інших сайтах More sharing options...
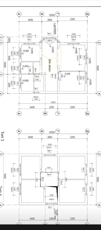
ЯД Опубліковано: 8 січня 2023 Автор Поділитись Опубліковано: 8 січня 2023 (змінено) Фундамент 9*11м + эркер 1*2м Этаж 3.2 или 3.4м не помню), на втором 1.6, дальше мансардная крыша. 2 вн несущие Сколько бы вместилось чудо керамики? ПС Это ваш шанс показать, что вы не просто так ляпнули по поводу цены и ваши блоки бы действительно были бы дешевле Змінено 8 січня 2023 користувачем ЯД Посилання на коментар Поділитися на інших сайтах More sharing options...
ЯД Опубліковано: 8 січня 2023 Автор Поділитись Опубліковано: 8 січня 2023 (змінено) Даже по размерам я промахнулся) 9*12 + эркер 1*2.8 Высота конька 8.8м Вот план Змінено 8 січня 2023 користувачем ЯД 4 Посилання на коментар Поділитися на інших сайтах More sharing options...
Gitan Опубліковано: 9 січня 2023 Поділитись Опубліковано: 9 січня 2023 Да не скажет он. Уже не раз просили. Понимает что не конкурентно. Там доборные элементы дорогие. 3 Посилання на коментар Поділитися на інших сайтах More sharing options...
volkoff Опубліковано: 9 січня 2023 Поділитись Опубліковано: 9 січня 2023 22 часа назад, ЯД сказал: Так сколько ж стоит комплект, если коробка только сейчас перевалила за "комплект"? У меня лично "комплект" ГБ обошёлся в около 400к. И ещё осталось пару кубов, которые брал про-запас Я не хочу никак вас обидеть но факт есть факт! (считали не один раз) Вы все равно не скажите мне, во сколько обошлась коробка от "фундамента до крыши", "поэтапно", потому что читая ваши посты,то вы пишите "ну где-то так, а там наверное больше или не помню".(был реальный пример,когда заказчик занижал затраты) что бы сказать что у него получилась экономия. Здесь пишут, да не может быть, или он лукавит,или эти комплектующие "дороже"стоят. Да ничего подобного, все доборные-комплектующие они в одну цену с шлифованным блоком и все клея(2 вида) и утеплители и анкера входят в стоимость блока. 1. Скажу вам такую деталь в сравнении коробки с ГБ - где один только "армопояс"(25х30см) и с арматурой 5-ти рядов в стене,опалубкой,вязкой-сваркой -этот узел уже сравнивается со стоимостью комплекта керамоблока.(а разница 1/м3 "ГБ" и кер.бл. в 1,6 раза.- эта "разница 0,4"кер-бл.дороже) и посчитайте еще, сколько еще нужно вам - клей,арматура,бетон,опалубка, и куча мелочевки, и плюсуйте еще бетономешалку, а вент-канал,дымоход, а потом окон-откосы и др. работы.(а если еще приплюсовать штукатурку с подготовкой и вент-рекуператоры) У Хелуз -этого ничего не нужно,все есть в комплекте с доставкой на объект. 2. Так же есть разница в перемычках -они двух видов с теплым мостом,(быстрая установка,без опалубки) перекрытие с утепленным периметром (тоже без опалубки) и есть разница в цене и теплопроводности. Здесь нужны только "правильные руки" и бадью-корито, пару литров воды и дрель для замеса клея, и прораба с зашитыми карманами и без машины(потому что свиснет что-то) да-да, почему прорабы не любят работать с этим комплектом, угадайте с первого раза. Колега по Хелусу, говорит что у него человек -25 было знакомых прорабов, на сегодня с ним работают три человека, а остальные сказали что им не выгодно работать что лучше с кирпич один/двойной и ГБ. Посилання на коментар Поділитися на інших сайтах More sharing options...
BugS Опубліковано: 9 січня 2023 Поділитись Опубліковано: 9 січня 2023 6 минут назад, volkoff сказал: Я не хочу никак вас обидеть но факт есть факт! (считали не один раз) Вы все равно не скажите мне, во сколько обошлась коробка от "фундамента до крыши", "поэтапно", потому что читая ваши посты,то вы пишите "ну где-то так, а там наверное больше или не помню".(был реальный пример,когда заказчик занижал затраты) что бы сказать что у него получилась экономия. Здесь пишут, да не может быть, или он лукавит,или эти комплектующие "дороже"стоят. Да ничего подобного, все доборные-комплектующие они в одну цену с шлифованным блоком и все клея(2 вида) и утеплители и анкера входят в стоимость блока. 1. Скажу вам такую деталь в сравнении коробки с ГБ - где один только "армопояс"(25х30см) и с арматурой 5-ти рядов в стене,опалубкой,вязкой-сваркой -этот узел уже сравнивается со стоимостью комплекта керамоблока.(а разница 1/м3 "ГБ" и кер.бл. в 1,6 раза.- эта "разница 0,4"кер-бл.дороже) и посчитайте еще, сколько еще нужно вам - клей,арматура,бетон,опалубка, и куча мелочевки, и плюсуйте еще бетономешалку, а вент-канал,дымоход, а потом окон-откосы и др. работы.(а если еще приплюсовать штукатурку с подготовкой и вент-рекуператоры) У Хелуз -этого ничего не нужно,все есть в комплекте с доставкой на объект. 2. Так же есть разница в перемычках -они двух видов с теплым мостом,(быстрая установка,без опалубки) перекрытие с утепленным периметром (тоже без опалубки) и есть разница в цене и теплопроводности. Здесь нужны только "правильные руки" и бадью-корито, пару литров воды и дрель для замеса клея, и прораба с зашитыми карманами и без машины(потому что свиснет что-то) да-да, почему прорабы не любят работать с этим комплектом, угадайте с первого раза. Колега по Хелусу, говорит что у него человек -25 было знакомых прорабов, на сегодня с ним работают три человека, а остальные сказали что им не выгодно работать что лучше с кирпич один/двойной и ГБ. Ясно, нужно верить на слово. Смету не увидим. Точно религия. 3 Посилання на коментар Поділитися на інших сайтах More sharing options...
omozhyn Опубліковано: 9 січня 2023 Поділитись Опубліковано: 9 січня 2023 19 минут назад, volkoff сказал: Да ничего подобного, все доборные-комплектующие они в одну цену с шлифованным блоком и все клея(2 вида) и утеплители и анкера входят в стоимость блока. В чому проблема? Вам скинули план будинку - зробіть розрахунок і закриєму цю тему. Тим більше - у вас на сайті вказано, що Цитата БЕЗКОШТОВНИЙ РОЗРАХУНОК МАТЕРІАЛІВ Розрахуємо вартість будинку і підготуємо специфікацію на підставі Вашого проекту. Послуга безкоштовна. Але скільки натикаюсь на Ваші пости на форумі - простирадла води, а жодного розрахунку я не бачив. Розказувати, що "у нас честна ціна, а ви там собі погано рахуєте/вас обмануть погані прораби" - така собі історія. Поки що від Вас тільки болтологія 2 Посилання на коментар Поділитися на інших сайтах More sharing options...
omozhyn Опубліковано: 9 січня 2023 Поділитись Опубліковано: 9 січня 2023 Только что, omozhyn сказал: закриєму цю тему Вибачаюсь, не конкретно цю тему, а тему ціни за коробки з вищезгаданого чудо-юдо матеріала☺️ Посилання на коментар Поділитися на інших сайтах More sharing options...
BugS Опубліковано: 9 січня 2023 Поділитись Опубліковано: 9 січня 2023 50 минут назад, volkoff сказал: Я не хочу никак вас обидеть но факт есть факт! (считали не один раз) Вы все равно не скажите мне, во сколько обошлась коробка от "фундамента до крыши", "поэтапно", потому что читая ваши посты,то вы пишите "ну где-то так, а там наверное больше или не помню".(был реальный пример,когда заказчик занижал затраты) что бы сказать что у него получилась экономия. Здесь пишут, да не может быть, или он лукавит,или эти комплектующие "дороже"стоят. Да ничего подобного, все доборные-комплектующие они в одну цену с шлифованным блоком и все клея(2 вида) и утеплители и анкера входят в стоимость блока. 1. Скажу вам такую деталь в сравнении коробки с ГБ - где один только "армопояс"(25х30см) и с арматурой 5-ти рядов в стене,опалубкой,вязкой-сваркой -этот узел уже сравнивается со стоимостью комплекта керамоблока.(а разница 1/м3 "ГБ" и кер.бл. в 1,6 раза.- эта "разница 0,4"кер-бл.дороже) и посчитайте еще, сколько еще нужно вам - клей,арматура,бетон,опалубка, и куча мелочевки, и плюсуйте еще бетономешалку, а вент-канал,дымоход, а потом окон-откосы и др. работы.(а если еще приплюсовать штукатурку с подготовкой и вент-рекуператоры) У Хелуз -этого ничего не нужно,все есть в комплекте с доставкой на объект. 2. Так же есть разница в перемычках -они двух видов с теплым мостом,(быстрая установка,без опалубки) перекрытие с утепленным периметром (тоже без опалубки) и есть разница в цене и теплопроводности. Здесь нужны только "правильные руки" и бадью-корито, пару литров воды и дрель для замеса клея, и прораба с зашитыми карманами и без машины(потому что свиснет что-то) да-да, почему прорабы не любят работать с этим комплектом, угадайте с первого раза. Колега по Хелусу, говорит что у него человек -25 было знакомых прорабов, на сегодня с ним работают три человека, а остальные сказали что им не выгодно работать что лучше с кирпич один/двойной и ГБ. Можете привести стоимость метра кв стены из КБ и ГБ с одинаковой теплопроводностью? Ну хоть примерно, на сколько КБ дороже ГБ? Посилання на коментар Поділитися на інших сайтах More sharing options...
andry07 Опубліковано: 10 січня 2023 Поділитись Опубліковано: 10 січня 2023 19 часов назад, BugS сказал: Можете привести стоимость метра кв стены из КБ и ГБ с одинаковой теплопроводностью? Ну хоть примерно, на сколько КБ дороже ГБ? Не, тут продаван чудоблоков прав, нужно рассматривать всю коробку в целом. Газоблок это плюс монолитный пояс и армирование за дополнительную плату. Хотя многие швы не армируют и вместо монолитного пояса три ряда кирпича, может и в Хелуз так делают, поэтому дешевле и получается. В общем решить что дешевле помогут лишь две сметы на одну коробку, но этого мы от нашего друга-продавана не дождемся никогда, поэтому остается только верить ему на слово ̶и̶ ̶д̶а̶л̶ь̶ш̶е̶ ̶с̶т̶р̶о̶и̶т̶ь̶ ̶и̶з̶ ̶г̶а̶з̶о̶б̶л̶о̶к̶а̶ 1 Посилання на коментар Поділитися на інших сайтах More sharing options...
ЯД Опубліковано: 10 січня 2023 Автор Поділитись Опубліковано: 10 січня 2023 Я загружал все траты, в которых включена и доставка. Потому что цена блока с клеем - это вообще понт от того что тратится Если для сравнения взять набор ГБ - у меня ушло почти 400к грн (это с клеем и материалами армопояса). Вот и можно отбросить всякие работы, бензины, генераторы и пр и как говорят, сравнивать яблоки с яблоками. Потому и интересно все таки сколько ж он стоит этот теплый нано керамо блок в наборе. 23 години тому, volkoff сказав: Вы все равно не скажите мне, во сколько обошлась коробка от "фундамента до крыши", "поэтапно", потому что читая ваши посты,то вы пишите "ну где-то так, а там наверное больше или не помню".(был реальный пример,когда заказчик занижал затраты) что бы сказать что у него получилась экономия. Все что потратил в постах. Плохо читали. Я это делал для себя, а не чтобы доказать, как что дёшево. Мне никому не надо ничего доказывать. А вы просто не можете дать цену своего блока, но при этом постоянно говорите что он дешевле. Как вы знаете что дешевле, если посчитать не можете? Значит попахивает п.... Мне то пофиг, я откинул ваше предложение в самом начале. И именно по причине откровенной лжи. ПС Когда-то в детстве мне отец сказал одну фразу, которая запомнилась "Брехнею весь світ пройдеш, а назад не вернешся". 3 Посилання на коментар Поділитися на інших сайтах More sharing options...
ЯД Опубліковано: 10 січня 2023 Автор Поділитись Опубліковано: 10 січня 2023 Кстати да, я ж так по кровле не закинул что вышло по деньгам. Вышло дороже, чем я ожидал на конек таки раскошелился вилпе, как и на вент выход с колпаком и фановую. После снегопадов, которые были, заезжал смотреть, не летит ли снег через конек (начитался тем в разделе крыш) - вроде все в порядке, снега было не замечено. 4 Посилання на коментар Поділитися на інших сайтах More sharing options...
vbb Опубліковано: 11 січня 2023 Поділитись Опубліковано: 11 січня 2023 10 годин тому, andry07 сказав: Не, тут продаван чудоблоков прав, нужно рассматривать всю коробку в целом. Газоблок это плюс монолитный пояс и армирование за дополнительную плату. Хотя многие швы не армируют и вместо монолитного пояса три ряда кирпича, может и в Хелуз так делают, поэтому дешевле и получается. В общем решить что дешевле помогут лишь две сметы на одну коробку, но этого мы от нашего друга-продавана не дождемся никогда, поэтому остается только верить ему на слово ̶и̶ ̶д̶а̶л̶ь̶ш̶е̶ ̶с̶т̶р̶о̶и̶т̶ь̶ ̶и̶з̶ ̶г̶а̶з̶о̶б̶л̶о̶к̶а̶ Ну от мої розрахунки на 2012 рік. Газоблок без урахування армо та бетонних робіт. Але я його відкинув з міркувань сейсміки. то по кругу на стінах різниця не така вже й велика якщо рахувати усі витрати. побудувався поротермом 38 з утепленням 100 вати та сканрок. Добірни елементи не купував. Тобто, якщо бюджет досить стислий, то газоблок аби СІП якщо є де +10-15к дол "знайти" то таки керамоблок добре вкладення. Повірте, на повній сумі це може 10%. Я перестав вести підрахунки коли перейшов за 100-110к - відмічав тільки щось значне.... 1 Посилання на коментар Поділитися на інших сайтах More sharing options...
eam Опубліковано: 11 січня 2023 Поділитись Опубліковано: 11 січня 2023 9 часов назад, vbb сказал: якщо є де +10-15к дол "знайти" то таки керамоблок добре вкладення. Добрэ вкладання кому и для чего? В карман продавцу это несмоненно хороший вклад а застройщику зачем пепеплачивать 10-15тыс уе если он получает стены с одинаковыми параметрами теплопроводности? Какие плюсы он получает за эти деньги? 2 Посилання на коментар Поділитися на інших сайтах More sharing options...
vbb Опубліковано: 11 січня 2023 Поділитись Опубліковано: 11 січня 2023 (змінено) 2 години тому, eam сказав: Добрэ вкладання кому и для чего? В карман продавцу это несмоненно хороший вклад а застройщику зачем пепеплачивать 10-15тыс уе если он получает стены с одинаковыми параметрами теплопроводности? Какие плюсы он получает за эти деньги? 1. міцність 2. теплоємність 3. спрошення штукатурних робіт, особливо ззовні 4. як витікає з міцності - спрощення кріплень до стін повторюю, для мене критично були вимоги по сейсмостійкості. а на рахунок хто заробляє - то також повірте, на газоблоку виробник та продавець заробляють більше ніж на керамоблоках Нікого не переконую, у кожного свої таргани. додам, розрахунки на будинок за 200+ м кв, два поверхи. На менших обсягах різниця буде не така велика. Змінено 11 січня 2023 користувачем vbb Посилання на коментар Поділитися на інших сайтах More sharing options...
semengv Опубліковано: 12 січня 2023 Поділитись Опубліковано: 12 січня 2023 Обещанное фото утепления входного блока на террасу. Было хуже. сейчас утепление снизу 7 см - более-менее. По ширине 10 см. С внутренней части будет примыкать утеплитель пола. Как-то так. 1 Посилання на коментар Поділитися на інших сайтах More sharing options...
semengv Опубліковано: 12 січня 2023 Поділитись Опубліковано: 12 січня 2023 В 11.01.2023 в 05:31, vbb сказал: Ну от мої розрахунки на 2012 рік. Газоблок без урахування армо та бетонних робіт. Але я його відкинув з міркувань сейсміки. то по кругу на стінах різниця не така вже й велика якщо рахувати усі витрати. побудувався поротермом 38 з утепленням 100 вати та сканрок. Я тоже начинала в 12 году. Просчитывала все варианты, т.к. керамоблок был на 1 месте. Но с утеплением даже не рассматривала - я просто не понимаю, зачем применяя такой материал, как керамоблок его еще и утеплять? Срок эксплуатации блока и ваты - несопоставим. Я за однослойную стену. Все остальное надо считать и подробно. Мне допустим газоблок доставка была бесплатная и клей в подарок. Посилання на коментар Поділитися на інших сайтах More sharing options...
Alvalk Опубліковано: 12 січня 2023 Поділитись Опубліковано: 12 січня 2023 25 минут назад, semengv сказал: я просто не понимаю, зачем применяя такой материал, как керамоблок его еще и утеплять? Коли газ і електроенергія будуть, як у всіх цивілізованих країнах, по ринковій ціні, тоді зрозумієте. 4 Посилання на коментар Поділитися на інших сайтах More sharing options...
vbb Опубліковано: 12 січня 2023 Поділитись Опубліковано: 12 січня 2023 3 години тому, Alvalk сказав: 4 години тому, semengv сказав: я просто не понимаю, зачем применяя такой материал, как керамоблок его еще и утеплять? Я за однослойную стену Коли газ і електроенергія будуть, як у всіх цивілізованих країнах, по ринковій ціні, тоді зрозумієте. тому щоб однослойна була достатньо тепла то керамоблок треба 50 як мінімум а це вже дорожче ніж 38 з утeплювачем та трохи гірше за теплопроводністю Посилання на коментар Поділитися на інших сайтах More sharing options...
apereverzev Опубліковано: 12 січня 2023 Поділитись Опубліковано: 12 січня 2023 20 минут назад, vbb сказал: була достатньо тепла і навіть то буде недостатньо тепло. В ідеалі то 20 см несучої стени, утепленої 20см ППС. 2 Посилання на коментар Поділитися на інших сайтах More sharing options...
Dendnepr Опубліковано: 12 січня 2023 Поділитись Опубліковано: 12 січня 2023 39 минут назад, apereverzev сказал: і навіть то буде недостатньо тепло. В ідеалі то 20 см несучої стени, утепленої 20см ППС. т.е. по деньгам, как 500 мм газобетон 1 Посилання на коментар Поділитися на інших сайтах More sharing options...
Dendnepr Опубліковано: 12 січня 2023 Поділитись Опубліковано: 12 січня 2023 Все коробки из массовых материалы стоять приблизительно одинаково. это рынок. если бы дома из газобетона стоили сильно дешевле, чем кирпич+пенопласт или вата - львиная доля строила бы из газика. и наоборот - если бы кирпич + пенопласт стоил существенно дешевле газобетона - львина доля строила бы из кирпича и пенопласта. производители разных материалов отслеживают рынок и подгоняют цены (свои затраты) под реалии. Разве шо Хелуз идет дорогой убеждения на форуме, а не расчетом цены 3 1 Посилання на коментар Поділитися на інших сайтах More sharing options...
apereverzev Опубліковано: 12 січня 2023 Поділитись Опубліковано: 12 січня 2023 2 минуты назад, Dendnepr сказал: т.е. по деньгам, как 500 мм газобетон по деньгам , наверное да, но немного теплее,и стена тоньше(что тоже немного удешевляет квадратные метры) Посилання на коментар Поділитися на інших сайтах More sharing options...
Gitan Опубліковано: 12 січня 2023 Поділитись Опубліковано: 12 січня 2023 1 час назад, apereverzev сказал: по деньгам , наверное да, но немного теплее,и стена тоньше(что тоже немного удешевляет квадратные метры) Зато стена однослойная. Более дуракоустойчивая. 1 Посилання на коментар Поділитися на інших сайтах More sharing options...
newbee2020 Опубліковано: 12 січня 2023 Поділитись Опубліковано: 12 січня 2023 10 минут назад, Gitan сказал: Зато стена однослойная. Более дуракоустойчивая. як дурак і власник такої стіни - не погоджусь 1 Посилання на коментар Поділитися на інших сайтах More sharing options...
Рекомендовані повідомлення
Створіть акаунт або увійдіть у нього для коментування
Ви маєте бути користувачем, щоб залишити коментар
Створити акаунт
Зареєструйтеся для отримання акаунта. Це просто!
Зареєструвати акаунтУвійти
Вже зареєстровані? Увійдіть тут.
Увійти зараз