Dmode Опубліковано: 3 березня 2024 Поділитись Опубліковано: 3 березня 2024 25 хвилин тому, TaurosRMK сказав: В основному тримається різниця 0.3-0.5%, але періодично буває 0.8-1%. Ну це вже краще ніж було. Ще би їх помістити в сухе середовище і потім в вологе і прослідкувати різницю в динаміці. 50 хвилин тому, TaurosRMK сказав: Для прикладу дві точки 03:00 і 11:00 по логу MiHome показують 50%, а калібрування видає ось таке - 43% і 47% Як варіант отримати на графіку обидва значення щоб було більше даних для аналізу в один момент часу. Оригінал відправляє як є, а віртуальний сенсор відправляє скориговні значення. Не тестував. sensor: - platform: ... humidity: name: "Оригінальна вологість" id: original_humidity update_interval: 60s on_value: then: - lambda: |- id(corrected_humidity).publish_state(id(original_humidity).state); - platform: template name: "Скоригована вологість" id: corrected_humidity filters: - calibrate_linear: - 0.0 -> 5 - 100.0 -> 90 update_interval: never 1 Посилання на коментар Поділитися на інших сайтах More sharing options...
TaurosRMK Опубліковано: 3 березня 2024 Автор Поділитись Опубліковано: 3 березня 2024 15 хвилин тому, Dmode сказав: Ну це вже краще ніж було. Ще би їх помістити в сухе середовище і потім в вологе і прослідкувати різницю в динаміці. Думаю вистачить з мене тестувань ))) Я все рівно ці два сенсори не буду використовувати для однієї задачі, SHT30 вмонтую в корпус ПВУ, а HTU21 навіть не згадаю для чого він мені був потрібен, валявся в коробці з іншими деталями, але заодно і його відкалібрував. Поки хай буде так. 19 хвилин тому, Dmode сказав: Як варіант отримати на графіку обидва значення щоб було більше даних для аналізу в один момент часу. Оригінал відправляє як є, а віртуальний сенсор відправляє скориговні значення. Не тестував. Точно, таке можна попробувати. Посилання на коментар Поділитися на інших сайтах More sharing options...
TaurosRMK Опубліковано: 5 березня 2024 Автор Поділитись Опубліковано: 5 березня 2024 (змінено) 03.03.2024 в 16:32, Dmode сказав: Як варіант отримати на графіку обидва значення щоб було більше даних для аналізу в один момент часу. Оригінал відправляє як є, а віртуальний сенсор відправляє скориговні значення. Не тестував. Тепер не зрозуміло кому вірити )) MiHome показує одні значення, а дані в ESPHome інші, це без коригування. Але підозрюю що MiHome по свому алгоритму вибирає значення, так що вірити тій статистиці не варто. Для прикладу відрізок часу від 8:00 до зараз, графік в MiHome і ESPHome (зверху без коригування, знизу скориговані дані), зовсім по точках не співпадає з графіком MiHome. Наприклад в 10:00 по MiHome 51%, а в ESPHome вже 45%. Прихований текст * - platform: xiaomi_lywsd03mmc humidity: name: "Bedroom1 Hum" id: xiaomi_hum_bedroom1 on_raw_value: then: - lambda: id(xiaomi_hum_bedroom1_raw).publish_state(x); - platform: template name: "Bedroom1 Hum (raw)" id: xiaomi_hum_bedroom1_raw Змінено 5 березня 2024 користувачем TaurosRMK Посилання на коментар Поділитися на інших сайтах More sharing options...
TaurosRMK Опубліковано: 6 березня 2024 Автор Поділитись Опубліковано: 6 березня 2024 Невеликий апгрейд, добавив по сторонах гумовий ущільнювач, на алі він називається для авто. Заходить трохи тугіше ніж без них, але гарно пристає до корпусу. Прикрутив датчики, знизу РТ1000, зверху той SHT30 на витяжці з будинку, ще будуть два РТ1000, але вони зараз змонтовані в поточній системі. І ось таке під'єднання зливного шлангу. Шланг 16 мм внутрішній діаметр, стінки 3 мм, натягується на конектор туго, просто стягнути його дуже важко, потрібно прокручувати. Але зверху ще додатково хомутом обіжму. Прихований текст Вибираю зараз між звичайним фільтром салону і таким же, але вугільним. Підкажіть чи буде такий вугільний фільтр трохи поглинати запахи, він наче якраз для цього зроблений? І чисто теоретично мабуть в такому фільтрі буде більший опір ніж у звичайному чи ні? Думаю чи звичайні, чи вугільні, в пріоритеті звичайно якнайменший опір. Хочу таких 4 штуки об'єднати в таку форму, тобто 2 кишені буде. Загальна площа фільтрації вийде близько 2.3 м2 для 4 штук Solgy 104049 (240x204x35), для вугільних трохи менше, в них менше складок. Прихований текст 4 Посилання на коментар Поділитися на інших сайтах More sharing options...
TaurosRMK Опубліковано: 9 березня 2024 Автор Поділитись Опубліковано: 9 березня 2024 Гнучкий повітровід ATCO Superflex і канальний нагрівач, можна їх з'єднати між собою чи краще не треба? На ділянці до теплообмінника переднагрів і все інше буде на спіровенті, від старої системи є трохи спіровенту, але більша частина ATCO Superflex. А от постнагріву поки немає, але якщо він буде потрібен, то можна ATCO Superflex використати, чи все ж таки хоча б по 50-70 см з кожної сторони нагрівача потрібно щось металеве? Посилання на коментар Поділитися на інших сайтах More sharing options...
Dmode Опубліковано: 9 березня 2024 Поділитись Опубліковано: 9 березня 2024 2 години тому, TaurosRMK сказав: чи все ж таки хоча б по 50-70 см з кожної сторони нагрівача потрібно щось металеве? Потрібно. 1 Посилання на коментар Поділитися на інших сайтах More sharing options...
TaurosRMK Опубліковано: 10 березня 2024 Автор Поділитись Опубліковано: 10 березня 2024 10 годин тому, Dmode сказав: Потрібно. Це так, але наче в ATCO немає легкозаймистих / горючих матеріалів, утеплювач мінвата і з двох сторін фольгований рукав. Але не перевіряв чи горить той рукав чи ні. Хоча подивлюся, може вистачить спіровенту на обв'язку. А на рахунок ізоляції нагрівача, якщо він буде на холодному горищі, то фактично буде грітися навколишнє повітря. Зараз нагрівач ізолований високотемпературною плитою, це хоча б трохи зменшує тепловтрати на самому нагрівачі. У новій розводці планував ізолювати всі повітроводи в шахтах з ППС з внутрішнім заповненням мінватою, але в зонах де нагрівач мабудь точно не варто ППС ставити, може там фісадну мінвату викорстати, хоча б по 1м до і після нагрівача. Взагалі не утеплювати щось не варіант, буду обігрівати горище. Посилання на коментар Поділитися на інших сайтах More sharing options...
Dmode Опубліковано: 10 березня 2024 Поділитись Опубліковано: 10 березня 2024 Тільки що, TaurosRMK сказав: Взагалі не утеплювати щось не варіант, буду обігрівати горище. Свій утеплював ватою. 1 Посилання на коментар Поділитися на інших сайтах More sharing options...
TaurosRMK Опубліковано: 11 березня 2024 Автор Поділитись Опубліковано: 11 березня 2024 Отримав фільтри салону Solgy 104049 (240x204x35), 4 штуки, 42 складки в одному фільтрі, це приблизно 0.585 м2, а на 4 штуки ~2.35 м2. Думаю вистачить. Але є нюанс, на фільтрі не вказано напрямок руху повітря, тільки логотип, модель і дата виробництва. Це значить що немає різниці якою стороною ставити фільтр? Наче у інших виробників є стрілочки напрямку руху повітря, а тут виявилося що немає...🧐 Посилання на коментар Поділитися на інших сайтах More sharing options...
МакДо Опубліковано: 12 березня 2024 Поділитись Опубліковано: 12 березня 2024 11.03.2024 в 19:01, TaurosRMK сказав: Отримав фільтри салону Solgy 104049 (240x204x35), 4 штуки, 42 складки в одному фільтрі, це приблизно 0.585 м2, а на 4 штуки ~2.35 м2. Думаю вистачить. Але є нюанс, на фільтрі не вказано напрямок руху повітря, тільки логотип, модель і дата виробництва. Це значить що немає різниці якою стороною ставити фільтр? Наче у інших виробників є стрілочки напрямку руху повітря, а тут виявилося що немає...🧐 Завжди розглядав салонні фільтри авто і не розумів, яка різниця, якою стороною їх ставити. А у твоєму випадку, можливо, виробник не вказав, бо немає різниці). Посилання на коментар Поділитися на інших сайтах More sharing options...
TaurosRMK Опубліковано: 12 березня 2024 Автор Поділитись Опубліковано: 12 березня 2024 49 хвилин тому, МакДо сказав: Завжди розглядав салонні фільтри авто і не розумів, яка різниця, якою стороною їх ставити. А у твоєму випадку, можливо, виробник не вказав, бо немає різниці). А інші типу по приколу стрілки малюють? )) Подивився на аналоги, стрілки вказують зверху вниз якщо орієнтуватися по буквах. Може по замовчуванню так є і декотрі не малюють стрілки. Тому буду так вставляти. А різниця може і є, але це напевно для іншого форуму. Хоча у таких звичайних може без різниці (але не точно), але є ще якісь супер фільтри, типу антибактеріальні, там напевно є різниця якою стороною. Прихований текст Посилання на коментар Поділитися на інших сайтах More sharing options...
МакДо Опубліковано: 12 березня 2024 Поділитись Опубліковано: 12 березня 2024 54 хвилини тому, TaurosRMK сказав: А інші типу по приколу стрілки малюють? )) Подивився на аналоги, стрілки вказують зверху вниз якщо орієнтуватися по буквах. Може по замовчуванню так є і декотрі не малюють стрілки. Тому буду так вставляти. А різниця може і є, але це напевно для іншого форуму. Хоча у таких звичайних може без різниці (але не точно), але є ще якісь супер фільтри, типу антибактеріальні, там напевно є різниця якою стороною. Приховати вміст Можливо фокус в цих крайніх «кишенях»? Зі зворотної сторони верхівка складки? Посилання на коментар Поділитися на інших сайтах More sharing options...
TaurosRMK Опубліковано: 12 березня 2024 Автор Поділитись Опубліковано: 12 березня 2024 7 хвилин тому, МакДо сказав: Можливо фокус в цих крайніх «кишенях»? Зі зворотної сторони верхівка складки? В декотрих виробників тільки дві грані тверді, інші дві мягкі, просто продовження складок. У тому що в мене (Solgy) всі 4 грані тверді, тому там немає крайніх "висячих" складок. Але дві бокові грані завернуті з однієї сторони приблизно на 8-10мм, напевно якраз закривають ці крайні кишені, щоб не висіли, плюс додають жорсткості і форми. Прихований текст 1 Посилання на коментар Поділитися на інших сайтах More sharing options...
Stan Yu Опубліковано: 14 березня 2024 Поділитись Опубліковано: 14 березня 2024 В 06.03.2024 в 18:32, TaurosRMK сказал: Підкажіть чи буде такий вугільний фільтр трохи поглинати запахи, він наче якраз для цього зроблений? Буде, але майже непомітно. В машині з використанням такого фільтру все одно чути запахи ззовні. А ось, наприклад, в Тіона основний вугільний фільтр має товщину 5-6см (на відміну від 1-2 мм у Вашому прикладі) і дійсно поглинає запахи ззовні (наприклад, коли траву палять або хтось курить поряд). 1 Посилання на коментар Поділитися на інших сайтах More sharing options...
TaurosRMK Опубліковано: 15 березня 2024 Автор Поділитись Опубліковано: 15 березня 2024 Вже декілька днів працюю над новою системою. Встановив корпус на своє місце і частково демонтував старі повітроводи. На притоці трохи в пилюці, так ніби в хаті не прибиралося пару місяців В цілому не критично. А от коли дійшов до витяжки, то картина зовсім інша, повітроводи трошки в страшному стані. На фото гілка з кухні від анемостату до трійника, гілка яка йде від ванної трохи в кращому стані, але також брудна, а от повітровід з технічної кімнати абсолютно чистий. До витяжного вентилятора поки не дійшов, він після рекуператора, перед яким є фільтр G4, так що може вентилятор трохи чистіший. Почистити гнучкі повітроводи нереально, бруд прилипнув до фольги, мабуть під заміну підуть. Але цікаво чи нові повітроводи через рік не будуть в такому ж стані? Зараз на анемостатах немає фільтрів, можливо полотно G4 трохи спасе ситуацію? Витяжний вентилятор буде перед теплообмінником, напевно перед ним також потрібен фільтр бокс хоча б з G4, на додачу до тих що в анемостатах будуть. Наче полотно G4 не сильно впливає на опір. Прихований текст Посилання на коментар Поділитися на інших сайтах More sharing options...
Stan Yu Опубліковано: 15 березня 2024 Поділитись Опубліковано: 15 березня 2024 Жировий фільтр - необхідна річ для повітропроводів з кухні. Він потрібен саме для захисту вентилятора й рекуператора від жиропильових наростів. olvent.ua/filtr-girovoj-fg-150/ Пильовий фільтр також необхідний перед рекуператором і вентилятором - інакше пилюка з інших кімнат або з щілин в повітропроводах буде осаджуватися на нихю Стан витяжного повітропровода неважливий, оскільки повітря виводиться на вулицю, головне щоб ця пилюка не забруднювала рухомі частини вентилятора і рекуператор. 1 Посилання на коментар Поділитися на інших сайтах More sharing options...
TaurosRMK Опубліковано: 15 березня 2024 Автор Поділитись Опубліковано: 15 березня 2024 46 хвилин тому, Stan Yu сказав: Жировий фільтр - необхідна річ для повітропроводів з кухні. Він потрібен саме для захисту вентилятора й рекуператора від жиропильових наростів. Тепер ще з цим фільтром розбиратися скільки дає опору і який розмір вибрати ))) Пилові фільтри перед вентилятором/рекуператором по любому будуть, а жировий фільтр має бути в магістральному каналі, тому всі повітроводи до фільтра з часом все рівно будуть в такому стані як зараз, хіба що пиловий фільтр в анемостаті трохи зменшить накопичення в повітроводі. Якби не демонтовував повітроводи, то навіть не знав би які вони там в середині брудні ))) А міняти десь 80% витяжних повітроводів щось не дуже хочеться. Той що з кухні скоріш за все заміню, тому що будуть зміни в "точці", а з ванної ще не такий брудний, якщо порівнювати з тим що з кухні. Посилання на коментар Поділитися на інших сайтах More sharing options...
yur43 Опубліковано: 15 березня 2024 Поділитись Опубліковано: 15 березня 2024 В мене в якості витяжних повітроводів виступають гіпсокартоні короба зашивки стелі. Їх міняти тільки з ремонтом. А подача йде через Atco. Посилання на коментар Поділитися на інших сайтах More sharing options...
TaurosRMK Опубліковано: 16 березня 2024 Автор Поділитись Опубліковано: 16 березня 2024 Приточний вентилятор "перед" чи "після" нагрівача? Якщо "перед", то через нього постійно буде проходити повітря вуличної температури, а якщо "після", то в зимовий період буде підтримуватися не нижче -3°С. Наче -3°С трохи краще ніж наприклад -20...-22°С в самі холодні дні, і хоча така температура дуже рідко і всього декілька днів, але це дуже близько до мінімальної яка вказана в інструкції. Може нічого критичного за пару днів не станеться, але... Прихований текст Демонтував сьогодні майже все що потрібно, витяжний вентилятор в задовільному стані, враховуючи що він стояв "після" теплообмінника, тобто з зоні конденсату. Ніякого бруду, тільки трохи пилу, протерти потрібно. Хоча як побачив стан повітроводів, думав буде гірше. Мабудь весь жировий бруд осів на гнучких повітроводах, стан показував вище, і трохи полотно G4 перед теплообмінником спасало. 1 Посилання на коментар Поділитися на інших сайтах More sharing options...
TaurosRMK Опубліковано: 22 березня 2024 Автор Поділитись Опубліковано: 22 березня 2024 Фільтр-бокс. Коробка розмірами 540х380х280 під чотири фільтри салону, розміщені компактно у вигляді букви W. Фільтри легко можна зняти і замінити. Додатково спереду (перша ступінь) буду ставити полотно G4, вставка у вигляді такої ж букви W, щоб затримувати всяких комах, можливо листя і тд, тобто грубі частки, щоб фільтри салону не забивалися цим всім. Ще потрібно пресостат прикрутити. Із нюансів, верхня/нижня сторони фільтрів (в такому положенні як вони вставлені) йдуть трохи дугою, навіть при закритій і притиснутій кришці є невелика щілина. Вони не мають жорсткості, з заводу такі, два мають менший зазор, інші два трохи більший, в цілому десь 1.5-2 мм, що не так і багато, але могло бути рівніше. Попробую використати поролоновий ущільнювач, той що віконний, він мягкий і має вільно стискатися, тому що фільтри самі мягкі і ними не вийде притиснути якийсь гумовий ущільнювач, а от поролоновий підійде. Прихований текст 5 Посилання на коментар Поділитися на інших сайтах More sharing options...
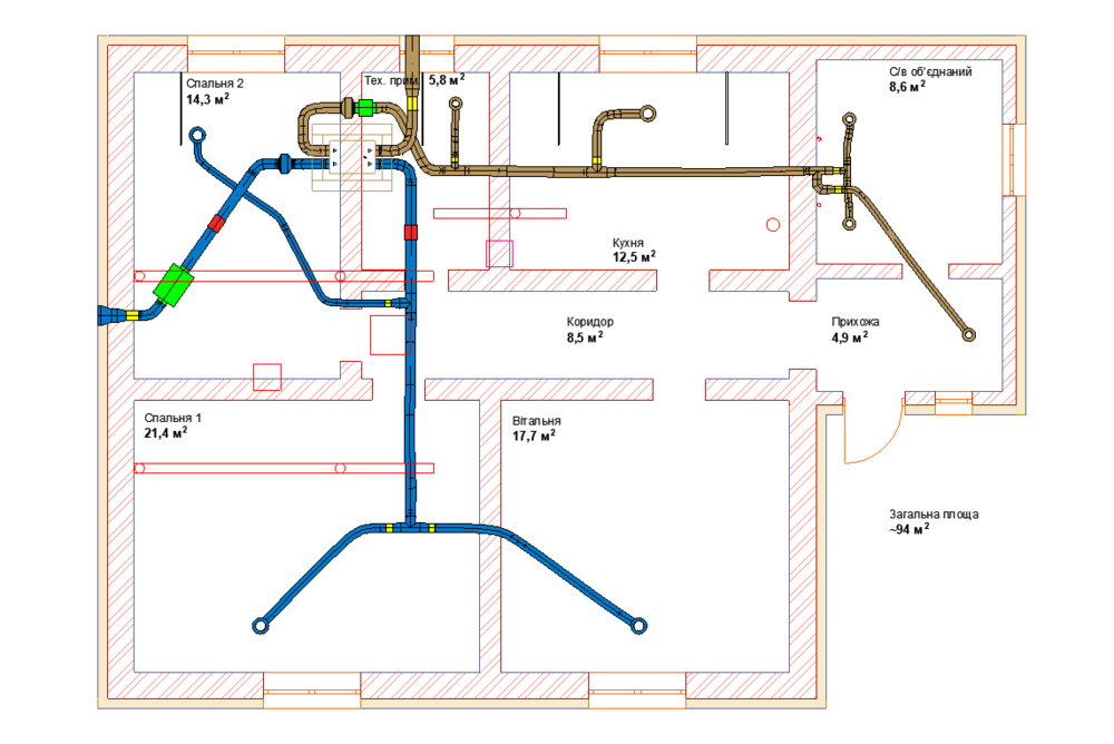
TaurosRMK Опубліковано: 25 березня 2024 Автор Поділитись Опубліковано: 25 березня 2024 Чи реально при такій схемі повітроводів зменшити опір на 20-25Па? Цікавить саме частина повітроводів "після" теплообмінника (приток), тому що все що є "до" фактично вже без змін буде, тай змінювати там немає що. До першого трійника на самій довшій вітці вже виходить 33 Па, хоча там буквально 3 м повітроводу, але є переходи, дросель клапан, анемостат і тд. Наприклад якщо розприділити розхід повітря трохи по іншому, то вже на 10 Па буде менше, але це не вихід. Хочеться щоб хоча б рівний опір був на притоці і витяжці, або навіть на притоці менший на пару Па, але щось не бачу варіантів як зменшити приток, хіба що витяжку спеціально "душити", щоб вирівняти. Прихований текст Посилання на коментар Поділитися на інших сайтах More sharing options...
volomoto Опубліковано: 25 березня 2024 Поділитись Опубліковано: 25 березня 2024 (змінено) 56 хвилин тому, TaurosRMK сказав: Хочеться щоб хоча б рівний опір був на притоці і витяжці, або навіть на притоці менший на пару Па Ви трохи фігньою маєтесь, бо реальний опір змонтованої системи ніколи не буде таким, як розрахнуковий, тому й придумали дроселювання та вентилятори із плавним регулюванням швидкості. Змінено 25 березня 2024 користувачем volomoto 1 Посилання на коментар Поділитися на інших сайтах More sharing options...
TaurosRMK Опубліковано: 25 березня 2024 Автор Поділитись Опубліковано: 25 березня 2024 (змінено) 22 хвилини тому, volomoto сказав: Ви трохи фігньою маєтесь, бо реальний опір змонтованої системи ніколи не буде таким, як розрахнуковий, тому й придамали дроселювання та вентилятори із плавним регулюванням швидкості. Та я це розумію, але маємо що маємо, АС вентилятори і ступінчасте регулювання трансформаторним регулятором. Були б вентилятори ЕС або якісь модні регулятори, від яких би не гуділи вентилятори на малих обертах, тоді питань не виникало б. Тому хочеться плюс-мінус однаковий опір мати хоча б по розрахунках, а там що буде, то буде. Хіба що якось в трансформаторних регуляторах можна отримати оберти між двома ступенями, тобто додатково зменшити напругу на пару вольт, але без поняття як. Або вернутися назад до тиристорних регуляторів, або ж твердотільних реле, і регулювати плавно, але буде побічний ефект гудіння мотору. До речі, якщо на кожній кімнаті є дросель-клапан і якщо вийде так що витяжка дає на 20-30 кубів більший розхід при відкритих дроселях, то дроселями можна трохи "задушити" витяжку і отримати більший опір? Фактично збільшить опір і зменшиться об'єм на тих самих обертах вентилятора? Ще думав що можна заслінкою трохи опір збільшити, на приводі Belimo CM230 є обмежувач відкривання кута заслінки, тобто можа не на всі 90 градусів, а трохи менше. Це як самий простий варіант. Або нічо з того не вийде і прийдеться вибирати, або гудіння вентиляторів і плавне регулювання, або ступінчасте регюлювання без гудіння. --- Вже маю ТТР 4-20 мА, яке планується для нагрівача, можна попробувати як буде з вентилятором працювати, чи не буде гудіти. Але зараз всі дроти від контролера обрізані і перевірити через контролер з виходом 4-20 мА не має можливості. Вручну якось можна задати 4-20 мА щоб реле працювало? Змінено 25 березня 2024 користувачем TaurosRMK Посилання на коментар Поділитися на інших сайтах More sharing options...
yur43 Опубліковано: 25 березня 2024 Поділитись Опубліковано: 25 березня 2024 43 хвилини тому, TaurosRMK сказав: Вручну якось можна задати 4-20 мА щоб реле працювало? Опір входу 4-20 близько 500-600 Ом, можна подавати напругу 0-10в. Посилання на коментар Поділитися на інших сайтах More sharing options...
TaurosRMK Опубліковано: 25 березня 2024 Автор Поділитись Опубліковано: 25 березня 2024 5 хвилин тому, yur43 сказав: Опір входу 4-20 близько 500-600 Ом, можна подавати напругу 0-10в. Тобто просто на вхід реле подати 0-10В? Гарантію даєте? ))) Маю понижуючий модуль напруги (такі як для ардуіни), можна з 12/24В понизити до 10В і пробувати? Страшно 🤣 Посилання на коментар Поділитися на інших сайтах More sharing options...
Рекомендовані повідомлення
Створіть акаунт або увійдіть у нього для коментування
Ви маєте бути користувачем, щоб залишити коментар
Створити акаунт
Зареєструйтеся для отримання акаунта. Це просто!
Зареєструвати акаунтУвійти
Вже зареєстровані? Увійдіть тут.
Увійти зараз