Дима Охотников Опубліковано: 18 лютого 2025 Поділитись Опубліковано: 18 лютого 2025 Хочу отримати коментарі стосовно планування двох поверхового будинку в стилі хай-тек з терасою на даху гаража Посилання на коментар Поділитися на інших сайтах More sharing options...
normal Опубліковано: 18 лютого 2025 Поділитись Опубліковано: 18 лютого 2025 Краще одноповерховий для людей ніж двоповерховий для коней )) Ванни на першому немає, спальня тільки одна, як мінімум дітям доведеться щоденно бігати по вузьких сходах 70см, проект для багатих і обділених площею 2 Посилання на коментар Поділитися на інших сайтах More sharing options...
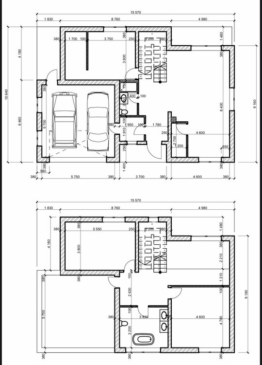
vadimv Опубліковано: 18 лютого 2025 Поділитись Опубліковано: 18 лютого 2025 (змінено) 14 годин тому, Дима Охотников сказав: Хочу отримати коментарі стосовно планування двох поверхового будинку в стилі хай-тек з терасою на даху гаража 1. Гараж вузький (5750) 2. Немає тамбуру 3. Не розставлені меблі 4. Двері санвузла прямо у вітальні 5. Тераси з вітальні немає 6. Приміщення 3750х3800 - яке його призначення? 7. Вікно над сходами аж десь під стелею 8. Приміщення біля сходів на другому поверсі не має стіни і дверей - це що взагалі таке? 9. Санвузол 3200х3830 якийсь занадто великий, що видно по порожніх кутах 10. Якщо на даху гаража випаде сніг - двері туди не відкриються. Ну і зовнішній вигляд так собі, на хай-тек не тягне ) Змінено 19 лютого 2025 користувачем vadimv Посилання на коментар Поділитися на інших сайтах More sharing options...
Дима Охотников Опубліковано: 19 лютого 2025 Автор Поділитись Опубліковано: 19 лютого 2025 9 часов назад, vadimv сказал: 1. Гараж вузький (5750) 2. Немає тамбуру 3. Не розставлені меблі 4. Двері санвузла прямо у вітальні 5. Тераси з вітальні немає 6. Приміщення 3750х3800 - яке його призначення? 7. Вікно над сходами аж десь під стелею 8. Приміщення біля сходів на другому поверсі не має стіни і дверей - це що вгазалі таке? 9. Санвузол 3200х3830 якийсь занадто великий, що видно по порожніх кутах 10. Якщо на даху гаража випаде сніг - двері туди не відкриються. Ну і зовнішній вигляд так собі, на хай-тек не тягне ) Дякую за коментарі, спробую відповісти. Наразі це ескіз в стані розробки і є можливість внести зміни, тому і вирішив порадитись. 1. Гараж є можливість збільшити, але він не планується для постійного користування під два автомобілі, перед гаражем планується навіс на дві автівки. 2. Планування передбачає можливість виконати тамбур за потреби встановивши алюмінієву конструкцію. 3. Меблі розставимо пізніше. 4. Двері в санвузли з холу. 5. Тераса планується з виходом з вітальні з права від сходів. 6. Приміщення планується під кабінет з можливістю переоснащення під спальню, воно може бути 5550, наразі розділене легкою перегородкою під гардероб. 7. З фасаду виглядає непогано, але можна опустити. 8. Приміщення біля сходів на другому поверху не планується, розглядається як друге світло у вітальні. 9. Не бачу в цьому нічого поганого, можливо буде додати душ- кабіну, меблі, біде, або розглянути невелику електричну сауну. 10. Тут дякую, розглянемо зміну відкриття дверей і питання буде вирішене 3 д модель наразі без оздоблення, для того щоб бачити розташування вікон і загальний вигляд , має бути десь так як на зображенні. Посилання на коментар Поділитися на інших сайтах More sharing options...
allanek Опубліковано: 19 лютого 2025 Поділитись Опубліковано: 19 лютого 2025 (змінено) Питання. 1. Якого розміру ділянка? Площа та периметр? 2. Ділянка розташована серед старих будинків чи це нова забудова, з будинками, схожими на той, що ви плануєте будувати? 3. Ділянку оточують сусіди і з яких боків? Питання не зі звичайної цікавості. Скільки бачила таких будинків, вони розташовані серед старих хатин та затиснуті серед них. Навіть, якщо це в полі та поряд хаотична забудівля (що в нас є нормою), де більшість будинків або з двоскаткою, або з вальмою, виглядають такі будинки ( як на плані) , м'яко кажучи, дивно. Змінено 19 лютого 2025 користувачем allanek Посилання на коментар Поділитися на інших сайтах More sharing options...
vadimv Опубліковано: 19 лютого 2025 Поділитись Опубліковано: 19 лютого 2025 (змінено) 40 хвилин тому, Дима Охотников сказав: 3. Меблі розставимо пізніше. 4. Двері в санвузли з холу. 6. Приміщення планується під кабінет 7. З фасаду виглядає непогано, але можна опустити. 8. Приміщення біля сходів на другому поверху не планується, розглядається як друге світло у вітальні. 3. Краще малювати зараз, поки є можливість щось змінити. Бо зазвичай вилазять якісь нестиковки. 4. Я б так не робив. Це не дуже гарно, коли туалет від вітальні відділяють всього лиш одні двері, і ті на виду. 6. Технічне приміщення (котельня) не передбачається? 7. Я б краще опустив до такого рівня, щоб було нормальне освітлення майданчика сходів між поверхами. 8. А тут би зробив візуально суцільне вікно. Змінено 19 лютого 2025 користувачем vadimv Посилання на коментар Поділитися на інших сайтах More sharing options...
normal Опубліковано: 19 лютого 2025 Поділитись Опубліковано: 19 лютого 2025 59 хвилин тому, Дима Охотников сказав: Гараж є можливість збільшити, але він не планується для постійного користування під два автомобілі, перед гаражем планується навіс на дві автівки Тим паче замість того гаражу і сходів краще зробити дві спальні і одноповерховий будинок, інакше виходе якесь СТО з автопарковкою... Посилання на коментар Поділитися на інших сайтах More sharing options...
vadimv Опубліковано: 19 лютого 2025 Поділитись Опубліковано: 19 лютого 2025 8 хвилин тому, normal сказав: замість того гаражу і сходів краще зробити дві спальні і одноповерховий будинок Так сам вибір "хай-теку" вже показує, що практичність не на першому місці ) А якщо почати задавати питання, навіщо взагалі тераса на другому поверсі (з неї що, Середземне море видно?) і навіщо плаский дах у кліматі України... То краще не задавати таких питань )) 1 Посилання на коментар Поділитися на інших сайтах More sharing options...
Дима Охотников Опубліковано: 19 лютого 2025 Автор Поділитись Опубліковано: 19 лютого 2025 45 минут назад, allanek сказал: Питання. 1. Якого розміру ділянка? Площа та периметр? 2. Ділянка розташована серед старих будинків чи це нова забудова, з будинками, схожими на той, що ви плануєте будувати? 3. Ділянку оточують сусіди і з яких боків? Питання не зі звичайної цікавості. Скільки бачила таких будинків, вони розташовані серед старих хатин та затиснуті серед них. Навіть, якщо це в полі та поряд хаотична забудівля (що в нас є нормою), де більшість будинків або з двоскаткою, або з вальмою, виглядають такі будинки ( як на плані) , м'яко кажучи, дивно. Ділянка 10 соток 25 по фасаду на 40, по вулиці нові будинки з однієї сторони ділянка ще без забудови, з фасадної сторони дорога і далі річка, з задньої сторони вільний простір десь 30 метрів до задньої сторони сусідської ділянки. Посилання на коментар Поділитися на інших сайтах More sharing options...
DimaF Опубліковано: 19 лютого 2025 Поділитись Опубліковано: 19 лютого 2025 Терраса на втором этаже - утопия, если конечно дом не вписан в склон холма/горы.... Посилання на коментар Поділитися на інших сайтах More sharing options...
Дима Охотников Опубліковано: 19 лютого 2025 Автор Поділитись Опубліковано: 19 лютого 2025 2 часа назад, vadimv сказал: Так сам вибір "хай-теку" вже показує, що практичність не на першому місці ) А якщо почати задавати питання, навіщо взагалі тераса на другому поверсі (з неї що, Середземне море видно?) і навіщо плаский дах у кліматі України... То краще не задавати таких питань )) Виходить, якщо зробити скатну покрівлю збільшиться практичність? І чому не зробити обслуговувану покрівлю на даху гаражу? Як її використовувати це вже інше питання. Можна не користуватись, чи в подальшому накрити. Посилання на коментар Поділитися на інших сайтах More sharing options...
Drosselbeere Опубліковано: 19 лютого 2025 Поділитись Опубліковано: 19 лютого 2025 2 хвилини тому, Дима Охотников сказав: Виходить, якщо зробити скатну покрівлю збільшиться практичність? тільки отримаєте горищє, умовний захист фасада від опадів, а також зробив і забув умовно про кап ремонт.... але ніколи не отримаєте зовнішній вигляд притаманний плоским дахам. 1 Посилання на коментар Поділитися на інших сайтах More sharing options...
ozor Опубліковано: 19 лютого 2025 Поділитись Опубліковано: 19 лютого 2025 Враховуючи нікнейм тс, то все добре, і не викликає заперечень. Будуйте. Посилання на коментар Поділитися на інших сайтах More sharing options...
allanek Опубліковано: 19 лютого 2025 Поділитись Опубліковано: 19 лютого 2025 2 години тому, Дима Охотников сказав: по вулиці нові будинки Такі будинки потребують гарного сусідства та гарного краєвиду. В нас від ділянки до початку будівництва було 3 роки. І це дуже добре. Бо починали з двоповерхового "хай теку" площею в 350кв. метрів, закінчили одноповерховим з двоскатним дахом і площею 135кв.м. Чи будувала б я зараз щось хайтечне? Ні. Хоча ділянка дозволяла це зробити без якихось компромісів. Просто не моє. Але, коли бачу "кубик", добре вписаний в місцевість та оточення, око чіпляється за такий будинок- це завжди красиво. Але...хайтечні будинки дуже підступні і потребують архітектора, що дуже добре знається на пропорціях. 4 години тому, Дима Охотников сказав: Меблі розставимо пізніше. Хибна думка. Коли почнете це робити , зрозумієте не раціональність того, що напланували. Взагалі, ви відповіли собі на питання "чому 2 поверхи?", "чому хай тек?", "чому таке планування? І не робіть тамбуру, нізащо. Він не потрібен взагалі, якщо двері будуть Каско (Фінестра), наприклад. Судячи з проекту, то бюджет в вас достатній, бо такі проекти потребують не дешевих рішень. 1 година тому, Дима Охотников сказав: Виходить, якщо зробити скатну покрівлю збільшиться практичність? Тоді ви будете мати зовсім інший будинок. Вам вище вже сказали про це. 4 години тому, Дима Охотников сказав: 9. Не бачу в цьому нічого поганого, можливо буде додати душ- кабіну, меблі, біде, або розглянути невелику електричну сауну. І правильно робите, що не економите на площі ванної кімнати. ІЧ-сауна в ванній кімнаті - це гарне рішення. І велика площа ванної кімнати, і ІЧ-сауна це з власного досвіду. Але чи розумієте ви хоча б приблизний кошторис такого будинку? 4 години тому, vadimv сказав: 8. Приміщення біля сходів на другому поверху не планується, розглядається як друге світло у вітальні. Десь на форумі є тема про друге світло. Корисно почитати думки тих, хто вже побудувався і має друге світло. Крім естетики, є ще і практична сторона. Як будете мити те вікно? Посилання на коментар Поділитися на інших сайтах More sharing options...
vadimv Опубліковано: 19 лютого 2025 Поділитись Опубліковано: 19 лютого 2025 1 годину тому, Дима Охотников сказав: Виходить, якщо зробити скатну покрівлю збільшиться практичність? Так 1 годину тому, Дима Охотников сказав: І чому не зробити обслуговувану покрівлю на даху гаражу? Якби цей будинок був десь в районі 30-35 паралелі - то нема питань, тут таке є. Але тут немає снігу. 1 годину тому, Дима Охотников сказав: чи в подальшому накрити. Такі рішення краще продумувати зарані, щоб не міняти плаский дах на скатний, незасклений балкон на засклений, гараж на навіс, відсутність тамбуру на тамбур і т.д. і т.п. Посилання на коментар Поділитися на інших сайтах More sharing options...
BAV_Lug Опубліковано: 19 лютого 2025 Поділитись Опубліковано: 19 лютого 2025 27 минут назад, vadimv сказал: Якби цей будинок був десь в районі 30-35 паралелі - то нема питань, тут таке є. Але тут немає снігу. Чим заважає наявність снігу в Україні? Другий рік спостерігаю (камера стоїть, даже лазити не треба) свою пласку кровлю. Ніяких проблем поки не виявив. Посилання на коментар Поділитися на інших сайтах More sharing options...
vadimv Опубліковано: 19 лютого 2025 Поділитись Опубліковано: 19 лютого 2025 Тільки що, BAV_Lug сказав: Чим заважає наявність снігу в Україні? Циклами +/- Посилання на коментар Поділитися на інших сайтах More sharing options...
BAV_Lug Опубліковано: 19 лютого 2025 Поділитись Опубліковано: 19 лютого 2025 1 минуту назад, vadimv сказал: Циклами +/- 99,9 відсотків багатоквартирних будинків в Україні мають плаский дах. І більш того, далі так і продовжують будувати. Це про щось каже? Посилання на коментар Поділитися на інших сайтах More sharing options...
vadimv Опубліковано: 19 лютого 2025 Поділитись Опубліковано: 19 лютого 2025 (змінено) 4 хвилини тому, BAV_Lug сказав: 99,9 відсотків багатоквартирних будинків в Україні мають плаский дах. І більш того, далі так і продовжують будувати. Особисто я на власні очі бачив 3 приклади, коли переробляли плаский дах на скатний - на адмінбудівлі, поліклініці і хрущобі. 4 хвилини тому, BAV_Lug сказав: Це про щось каже? Що мабуть заманалися усувати протікання. Змінено 19 лютого 2025 користувачем vadimv Посилання на коментар Поділитися на інших сайтах More sharing options...
BAV_Lug Опубліковано: 19 лютого 2025 Поділитись Опубліковано: 19 лютого 2025 3 минуты назад, vadimv сказал: Особисто я на власні очі бачив 3 приклади, коли переробляли плаский дах на скатний - на адмінбудівлі, поліклініці і хрущобі. Що мабуть заманалися усувати протікання. Зрозуміло. Виборка "3 будинка" це звісно аргумент проти плаского даху ))) Посилання на коментар Поділитися на інших сайтах More sharing options...
Дима Охотников Опубліковано: 19 лютого 2025 Автор Поділитись Опубліковано: 19 лютого 2025 3 часа назад, vadimv сказал: Так Якби цей будинок був десь в районі 30-35 паралелі - то нема питань, тут таке є. Але тут немає снігу. Такі рішення краще продумувати зарані, щоб не міняти плаский дах на скатний, незасклений балкон на засклений, гараж на навіс, відсутність тамбуру на тамбур і т.д. і т.п. Зараз і продумую тому і раджуся, а накрити маю на увазі легкий навіс з карбонату чи взагалі маркіз. Посилання на коментар Поділитися на інших сайтах More sharing options...
Дима Охотников Опубліковано: 19 лютого 2025 Автор Поділитись Опубліковано: 19 лютого 2025 2 часа назад, vadimv сказал: Особисто я на власні очі бачив 3 приклади, коли переробляли плаский дах на скатний - на адмінбудівлі, поліклініці і хрущобі. Що мабуть заманалися усувати протікання. Як на мене покрівля з ПВЗ мембрани якісно виконана та з гарантією 50 років знімає ці ризики Посилання на коментар Поділитися на інших сайтах More sharing options...
Фрай Опубліковано: 19 лютого 2025 Поділитись Опубліковано: 19 лютого 2025 32 хвилини тому, Дима Охотников сказав: Як на мене покрівля з ПВЗ мембрани якісно виконана та з гарантією 50 років знімає ці ризики Посміхнувся ) Посилання на коментар Поділитися на інших сайтах More sharing options...
irina1969 Опубліковано: 19 лютого 2025 Поділитись Опубліковано: 19 лютого 2025 8 годин тому, Дима Охотников сказав: Ділянка 10 соток 25 по фасаду на 40, по вулиці нові будинки з однієї сторони ділянка ще без забудови, з фасадної сторони дорога і далі річка, з задньої сторони вільний простір десь 30 метрів до задньої сторони сусідської ділянки. А що ще планується на ділянці, окрім будинку ? Що б я зробила то віднесла б будинок подалі від дороги, так це веде до зростанні вартості під"їзду до будинку, але...Ви плануєте експлуатувати террасу над гаражем і там 2 спальні...тобто то для майже інтимних виходів, а тут вихід прямо на дорогу (( я чому пишу, бо у мене також велика тераса над гаражем, як раз вийти зранку і вона у мене дивиться на дорогу (( але будинок стоїть в глибині і не було можливості перевернути бо у мене схил і ( якщо б чесно) по великому рахунку я б взагалі перемалювала, щоб та терраса була подалі від людського ока і з гарним краєвидом якщо є гараж на 2 машини, то напоркуа якісь навіси ( халабуди) ? ось мій генплан і посадка будинку на ділянці 1 Посилання на коментар Поділитися на інших сайтах More sharing options...
MAESTRO DNEPR Опубліковано: 19 лютого 2025 Поділитись Опубліковано: 19 лютого 2025 (змінено) Очень похоже на один наш объект... десять лет тому назад я собрал его из трёх проектов (Муратор+Зет500+Архон... номера проектов уже не помню)... там и внутренняя панировка была намного интересней. Участок огибала река и там было на что смотреть с террасы. Змінено 19 лютого 2025 користувачем MAESTRO DNEPR Посилання на коментар Поділитися на інших сайтах More sharing options...
Рекомендовані повідомлення
Створіть акаунт або увійдіть у нього для коментування
Ви маєте бути користувачем, щоб залишити коментар
Створити акаунт
Зареєструйтеся для отримання акаунта. Це просто!
Зареєструвати акаунтУвійти
Вже зареєстровані? Увійдіть тут.
Увійти зараз