Алексе й Опубліковано: 24 жовтня 2017 Поділитись Опубліковано: 24 жовтня 2017 (змінено) Лучше на улицу. Планировку дайте. В принципе все ответы есть в теме, если почитать сначала. Добрый день! Почитал. На улицу будет ближе и всего 1 поворот. Но есть некоторые проблемы: надо покупать необходимый инструмент, наверное, коронку и длинный бур (стена из пенобетона и облицовочного кирпича). Потом, за стеной - балкон, отверстие будет близко к плите верхнего балкона - 150-250 мм., может, пачкаться будет. Сейчас балкон неостеклен, а если затем остеклять, трубу придется удлинять, возможно , делать теплоизоляцию, и делать специальную оконную раму с отверстием под трубу. Думаю, в существующую вентиляцию будет проще смонтировать. Но будет ли тяга? Наверное, придется, смонтировать и убедиться. Змінено 24 жовтня 2017 користувачем Алексе й Посилання на коментар Поділитися на інших сайтах More sharing options...
SON Опубліковано: 24 жовтня 2017 Поділитись Опубліковано: 24 жовтня 2017 .................. Посилання на коментар Поділитися на інших сайтах More sharing options...
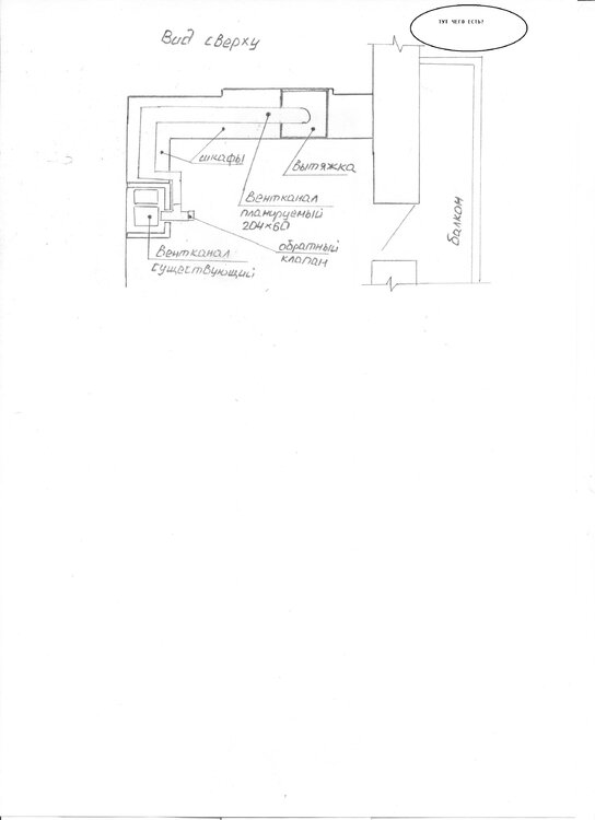
Алексе й Опубліковано: 25 жовтня 2017 Поділитись Опубліковано: 25 жовтня 2017 [ATTACH]588267[/ATTACH] .................. Там, за перегородкой, балкон соседей. Одна общая балконная плита разделена на 2 части кирпичной перегородкой. Посилання на коментар Поділитися на інших сайтах More sharing options...
SON Опубліковано: 25 жовтня 2017 Поділитись Опубліковано: 25 жовтня 2017 На улицу будет ближе и всего 1 поворот. Но есть некоторые проблемы: надо покупать необходимый инструмент, наверное, коронку и длинный бур (стена из пенобетона и облицовочного кирпича). Можно пригласить хлопцев с установкой алиазного бурения, это будет дешевле, чем покупать коронку под 125-150 диаметр. Просверлиться можно с балкона не нарушая "красоты" внутри. Если балкон будет отапливаемый, то обратные клапаны ставить не в стене между кухней и балконом, а ближе к выходу. Потом, за стеной - балкон, отверстие будет близко к плите верхнего балкона - 150-250 мм., может, пачкаться будет. Если оставите просто открытый срез трубы без всяких нахлобучек, ничо пачкаться не будет. Сейчас балкон неостеклен, а если затем остеклять, трубу придется удлинять, возможно , делать теплоизоляцию, и делать специальную оконную раму с отверстием под трубу. Остекление можно сделать с фрамугой вверху, в одну часть фрамуги вставить ЭППС. При этом получатся створки меньшие по высоте и удобнее в пользовании. По жизни все равно жена заставит на балконе натянуть веревочки для белья. Эти веревочки, при высокой створке постоянно мешают ее открывать. См. малюнок. Думаю, в существующую вентиляцию будет проще смонтировать. Но будет ли тяга? Наверное, придется, смонтировать и убедиться. Мож и проще, но все эти повороты сведут на нет производительность вытяжки, плюс можно создать проблемы соседям, ну и конечный вид этого хоз-ва, с учетом входа в вентканал "не с той стороны", будет "радовать" глаз всю дорогу. :D Надумаетесь внутри, то тройник разверните против часовой стрелки по малюнку на 90 гр. 1 Посилання на коментар Поділитися на інших сайтах More sharing options...
Алексе й Опубліковано: 25 жовтня 2017 Поділитись Опубліковано: 25 жовтня 2017 SON, спасибо за исчерпывающие ответы! Надумаетесь внутри, то тройник разверните против часовой стрелки по малюнку на 90 гр. То есть, вариант 1 на эскизе? Эскиз прилагаю. Так чем-то лучше? Посилання на коментар Поділитися на інших сайтах More sharing options...
SON Опубліковано: 25 жовтня 2017 Поділитись Опубліковано: 25 жовтня 2017 То есть, вариант 1 на эскизе? Эскиз прилагаю. Так чем-то лучше? Да. Так меньше торчит и легче захлопывается. 1 Посилання на коментар Поділитися на інших сайтах More sharing options...
Игорь&Ира Опубліковано: 25 жовтня 2017 Автор Поділитись Опубліковано: 25 жовтня 2017 Остекление можно сделать с фрамугой вверху, в одну часть фрамуги вставить ЭППС. Фу, как грубо. Оконщики ставят сайдинг - утеплитель с двусторонним пластиком. Посилання на коментар Поділитися на інших сайтах More sharing options...
SON Опубліковано: 25 жовтня 2017 Поділитись Опубліковано: 25 жовтня 2017 Фу, как грубо. Оконщики ставят сайдинг - утеплитель с двусторонним пластиком. Я просто не знаю как эта хрень правильно называется, фактически - ламинированный ЭППС. Посилання на коментар Поділитися на інших сайтах More sharing options...
Игорь&Ира Опубліковано: 25 жовтня 2017 Автор Поділитись Опубліковано: 25 жовтня 2017 ламинированный ЭППС. Красиво звучит. 1 Посилання на коментар Поділитися на інших сайтах More sharing options...
atco Опубліковано: 9 листопада 2017 Поділитись Опубліковано: 9 листопада 2017 Всем привет. Помогите в таком вопросе. Установлена вытяжка елеус троя 1000 (90см) Труба 120 выведена на улицу через одно колено 90гр. В трубе стоит клапан(куплен в новой линии) . Клапан установлен правильно. В самой вытяжке с завода было 2 створки пластмасовых которые монтажники кухни сняли по их словам за ненадобностью. Итог вытяжка работает НО чем выше скорость тем сильнее какой то странный звук вроде флажок на ветру сильном раздувается...хз изза чего...??? На горячей линии производителя посоветовали установить одну из заводских лопастей(конкретно ту которая ближе к стене) Установщики кухни в принципе люди надежные и проверенные не доверять им как бы не вижу смысла, говорят что это ничего не даст... Не знаю кого слушать вроде производитель лучше должен знать...но сказали просто попробовать не факт что поможет. Установщики тоже как бы ездить не будет туда сюда... Замкнутый круг получился как всегда. Звонил в авторизированый сервис сказали выезд 150 грн с киева в борисполь, но если установлено неверно отдельно за установку возьмут. Вытяжка на гарантии еще. Может кто сталкивался когда. Буду рад советам Посилання на коментар Поділитися на інших сайтах More sharing options...
Kir1984 Опубліковано: 28 червня 2018 Поділитись Опубліковано: 28 червня 2018 Добрый день. Дабы не плодить темы. Осуществлена перепланировка квартиры, есть ряд вопросов по вентеляции. Вводные: 20/24, высота потолков 2,7, максимум хотелось бы потерять 15см. Что можно придумать с вентиляцие комнаты без окон (спальня), и куда кидать вытяжку. Там где на плане сейчас детская - по проекту кухня. по бокам везде соседи, окна на лоджиях (лоджии объединены с комнатами). Может кто что посоветует, уже весь мозг сломал. Посилання на коментар Поділитися на інших сайтах More sharing options...
profeMaster Опубліковано: 28 червня 2018 Поділитись Опубліковано: 28 червня 2018 начать можно с хорошей щели под дверью, чтобы при выключенных вентиляторах не задохнуться сантиметра 4 высотой. Посилання на коментар Поділитися на інших сайтах More sharing options...
Kir1984 Опубліковано: 28 червня 2018 Поділитись Опубліковано: 28 червня 2018 начать можно с хорошей щели под дверью, чтобы при выключенных вентиляторах не задохнуться сантиметра 4 высотой. как вариант, думал вообще может сбоку в коридоре сделать вент входы под декоративные решетки(типа 4000*100) Добавлено через 4 минуты Пришел на ум такой вариант. Глушу выход в детской. Выход в с/у делю пополам. в нижней части выбиваю перегородку между каналами, вставляю туда трубу и получается что за счет этого вентиляция с/у уходит в канал детской (вставляю туда простой бытовой вентилятор и проблема с с/у решена). В верхней части вставляю например пластиковый короб 200*60, веду его в сторону кухни, делая отвод меньшим сечением (100*60) в сторону туалета, вставля после отвода например обратный клапан (если в нем смысл) или просто ставлю в туалета бытовой вентилятор с клапаном (теоретически не будет запахов при работе вытяжки, но если и будет то в туалете это не критично). Трассу 200*60 довожу до кухни и вставляю в вытяжку. Вентиляцию спальни организовать 2-мя вентиляторами (1 на забор из детской 2), 2 просто вытягивает в кухню гостинную воздух из комнаты. Посилання на коментар Поділитися на інших сайтах More sharing options...
Kir1984 Опубліковано: 28 червня 2018 Поділитись Опубліковано: 28 червня 2018 По поводу вентиляторов, как вариант для экономии места под потолком Elicent E-box micro 100/125. Но мне не совсем понятно, есть ли в нем смысл если воздух просто вытыгивать из спальни в кухню гостинную (не слишком ли он мощный). Может стоить его ставить, если выводить воздух например в канал вент шахты (найти чей то чужой как вариант, ведь запаха из спальни нет, только для создания оттока - тут будет скорее задача не пустить чужой воздух с запахами в квартиру). Но главный вопрос по поводу шума от вентиляторов.Поэтому последний вариант в сочетании с решетками в стене комнаты кажется самым безболезненым. Всего 1 вентелятор, в зоне опять же кухни гостинной по идее не должен помешать спать. Посилання на коментар Поділитися на інших сайтах More sharing options...
profeMaster Опубліковано: 29 червня 2018 Поділитись Опубліковано: 29 червня 2018 лезть в чужой вентканал - не одобряю. Если каждый будет решать свои проблемы за чужой счет, то останутся одни мудаки на земле. чтобы не было шума нужно глушитель ставить. Самый надежный вариант. Остальное сильно не вчитывался - не видно, с какого вы города. Посилання на коментар Поділитися на інших сайтах More sharing options...
shun Опубліковано: 30 липня 2018 Поділитись Опубліковано: 30 липня 2018 Хочу організувати суміщення вентиляції на кухні, в інтернеті є 2 варіанти основних в яких підведення до зворотнього клапана йде справа або зліва. В мене має бути варіант, в якому від витяжки підводиться в нижню частину вент. канала, а зворотній клапан знаходиться вище. Також є ідея не ставити трійник зовсім і все це добро встановити всередину вент. канала, на малюнку видно, як це все буде. Підключення буде круглим пластиковим повітроводом діаметром 150мм, на витяжці вихід 150 мм. Відстань від витяжки до отвору 1м з 2-ма поворотами на 90 градусів, один з яких вже йде в стіну. Повітропровід буде заховано в шкафчик, зверху шкафчика буде видно тільки решітку зі зворотнім клапаном (може краще без решітки). Витяжка Elica ELITE 26 PB IX/A/60, макс. продуктивність "по українськи" 1300 куб.м./год., з паспорта по євронормах від 240 до 581 куб.м./год. Розміри вентканала 140х190мм. Виникають питання: 1. Чи буде закриватися тоді клапан під дією тиску повітря з витяжки або зворотньої тяги і як розмістити його вісь? 2. Чи потрібно використовувати трійник? 2. Чи вистачить діаметра 125мм не тільки для витяжки, а й для вентиляції, тобто варто ставити зворотній клапан меншого діаметра, скажемо 125мм? Зліва Справа Знизу Посилання на коментар Поділитися на інших сайтах More sharing options...
Telurka Опубліковано: 21 вересня 2018 Поділитись Опубліковано: 21 вересня 2018 А лучше двух в толще стены, шобы зимой из зонта не валил холодный воздух.:D:beer: Два клапана не обмерзают даже в самый ох....й мороз.:D Уважаемый, SON, скажите, а какая должны быть толщина стены, чтобы 2 ОК влезли? У нас 270мм, этого мало? И нужны пластиковые ОК или металл? Посилання на коментар Поділитися на інших сайтах More sharing options...
SON Опубліковано: 21 вересня 2018 Поділитись Опубліковано: 21 вересня 2018 У нас 270мм, этого мало? Вполне. Они станут даж в 150 мм. стену. И нужны пластиковые ОК или металл? Лучше пластик, хотя чес говоря металлические в практической реализации никогда не рассматривались. 1 Посилання на коментар Поділитися на інших сайтах More sharing options...
Telurka Опубліковано: 19 жовтня 2018 Поділитись Опубліковано: 19 жовтня 2018 Вполне. Они станут даж в 150 мм. стену. Лучше пластик, хотя чес говоря металлические в практической реализации никогда не рассматривались. Клапаны купили, спасибо. Планируем в стене сделать отверстие под 160трубу, утеплить кусок 160вент трубы (остаток от приточной вентиляции) и использовать ее как гильзу, для того чтобы вставить ОК и была ремонтнопригодная разборная конструкция. Чем лучше заделать расстояние между ОК и гильзой? Посилання на коментар Поділитися на інших сайтах More sharing options...
SON Опубліковано: 19 жовтня 2018 Поділитись Опубліковано: 19 жовтня 2018 Чем лучше заделать расстояние между ОК и гильзой? Можно мотнуть ПЭ-пленки или минваты, в зависимости от размера щели. 1 Посилання на коментар Поділитися на інших сайтах More sharing options...
Telurka Опубліковано: 5 грудня 2018 Поділитись Опубліковано: 5 грудня 2018 Как правильно подключить вытяжку? Вытяжка кухонная наклонная elica stripe , диаметр выхода 150мм В стене сделано круглое отверстие, в него установленная утеплённая пенофолом гильза 160мм. В эту гильзу будут установлены два ОК 150мм. Проход в стене находится выше расположения верха самой вытяжки на 1,7м, и немного (на см 10) смещён левее от центра размещения вытяжки (мешала стойка, дом каркасный) Вопросы: 1. Какую наружную решётку ставить? Пластик или металл? Любую на усмотрение по бюджету или есть нюансы? 2. Какую трубу использовать для подключения вытяжки? Круглый пластик или гофра? 3. Как соединить между собой вытяжку, трубу, ОК и решётку, чтобы максимально герметично ? Посилання на коментар Поділитися на інших сайтах More sharing options...
SON Опубліковано: 5 грудня 2018 Поділитись Опубліковано: 5 грудня 2018 1. Какую наружную решётку ставить? Моя ИМХА - никакую. Нэма решетки - нэма проблем. 2. Какую трубу использовать для подключения вытяжки? Круглый пластик или гофра? Определяйтесь по месту. Получается жесткими трубами - ставьте трубы/колена, если "вывернуться" трубами шибко геморно - можно и ал. гофру. 3. Как соединить между собой вытяжку, трубу, ОК и решётку, чтобы максимально герметично ? В разе больших зазоров можно посадить стыки на силикон. 1 Посилання на коментар Поділитися на інших сайтах More sharing options...
Игорь&Ира Опубліковано: 2 серпня 2019 Автор Поділитись Опубліковано: 2 серпня 2019 Есть что-то новое? Посилання на коментар Поділитися на інших сайтах More sharing options...
sprofi.llc Опубліковано: 5 серпня 2019 Поділитись Опубліковано: 5 серпня 2019 Убедительная просьба помочь в подборе системы вентиляции для кухни в многоквартирном доме (5 этаж 9-этажного кирпичного дома 70-х годов постройки). Необходимо смонтировать вентиляционный канал от кухонной вытяжки (500-1000 куб.м/час) до вентиляционного стояка. Фирма "Вентс" производит следующие системы круглых и плоских ПВХ каналов: 1) круглый канал К100: диаметр 100 мм – сечение 78,75 см; 2) круглый канал К125: диаметр 125 мм – сечение 124,62 см; 3) круглый канал К150: диаметр 150 мм – сечение 176,62 см; 4) плоский канал К110: размеры 55х110 мм – сечение 60,50 см; 5) плоский канал К120: размеры 60х120 мм – сечение 72,00 см; 6) плоский канал К204: размеры 60х204 мм – сечение 122,40 см. Так как вытяжка смещена по отношению к вентиляционному отверствию, то ПВХ каналы будут иметь 3-4 колена, что также окажет влияние на эффективность системы вентиляции. С дизайнерской точки зрения предпочтительней плоские каналы, но их сечение значительно меньше, чем круглых каналов. Есть ещё каналы Вентс 220х90. vents-shop.com.ua/ventilyacionnye-koroba/plastikovye-vozduhovody/ Для кухонной вытяжки это то что доктор прописал 1 Посилання на коментар Поділитися на інших сайтах More sharing options...
Игорь&Ира Опубліковано: 5 серпня 2019 Автор Поділитись Опубліковано: 5 серпня 2019 Есть ещё каналы Вентс 220х90. ... Для кухонной вытяжки это то что доктор прописал В те далекие времена их еще не было в каталоге для вытяжки. :D Посилання на коментар Поділитися на інших сайтах More sharing options...
Рекомендовані повідомлення
Створіть акаунт або увійдіть у нього для коментування
Ви маєте бути користувачем, щоб залишити коментар
Створити акаунт
Зареєструйтеся для отримання акаунта. Це просто!
Зареєструвати акаунтУвійти
Вже зареєстровані? Увійдіть тут.
Увійти зараз