valeriy123 Опубліковано: 13 січня 2014 Поділитись Опубліковано: 13 січня 2014 вводите в Гугле или Яндексе(советую в яндексе) VRT50 и VRC370 и сразу выскакивают ПДФ-файлы Спасибо. Поищу. А какие контроллеры Вайланта нужно смотреть для: одноконтурного КК, бойлера 2 теплообменника (солнце и датчик Т), пластинчатый теплообменник водоподготовки ГВС, управление по опережению (погодонезависимый контроллер) собственно отопление (типа теплый пол - декомпозиционное ). Посилання на коментар Поділитися на інших сайтах More sharing options...
Саша79 Опубліковано: 13 січня 2014 Поділитись Опубліковано: 13 січня 2014 это будет дешевле в обустройстве и экономичней в работе чем атмосферник и горелка не так загаживаться будет к одноконтурному виссману витопенд 100 это тоже относится? Посилання на коментар Поділитися на інших сайтах More sharing options...
valeriy123 Опубліковано: 13 січня 2014 Поділитись Опубліковано: 13 січня 2014 Вобщем вот на моем Dropbox качайте Спасибо, залито. Посилання на коментар Поділитися на інших сайтах More sharing options...
Сергей_84 Опубліковано: 13 січня 2014 Поділитись Опубліковано: 13 січня 2014 к одноконтурному виссману витопенд 100 это тоже относится? Для любого дымоходного котла желательно гильзовать дымовой канал, причем в зоне холода обязательно сендвичем. Если посчитать стоимость этого действа, то выгоднее переплатить за турбо котел и вывести коаксиальной трубой через стенку или немного доплатить и загильзовать дымовой канал 80-й трубой, а забор воздуха осуществить из того же дымового канала но между 80-й гильзой и кирпичной стенкой канала без второго гильзования 1 Посилання на коментар Поділитися на інших сайтах More sharing options...
Ratel Опубліковано: 13 січня 2014 Поділитись Опубліковано: 13 січня 2014 24-ка на полной мощности требует 27 кубов в час. На минимальной около 9-ти кубов. Сколько ребенок-понятия не имею)) 7,5 литров в секунду... Ахренеть детки дышут!!! Посилання на коментар Поділитися на інших сайтах More sharing options...
Сергей_84 Опубліковано: 13 січня 2014 Поділитись Опубліковано: 13 січня 2014 Спасибо. Поищу. А какие контроллеры Вайланта нужно смотреть для: одноконтурного КК, бойлера 2 теплообменника (солнце и датчик Т), пластинчатый теплообменник водоподготовки ГВС, управление по опережению (погодонезависимый контроллер) собственно отопление (типа теплый пол - декомпозиционное ). начинать от 470 и вплоть до 630 1 Посилання на коментар Поділитися на інших сайтах More sharing options...
valeriy123 Опубліковано: 13 січня 2014 Поділитись Опубліковано: 13 січня 2014 начинать от Немного почитал и понял, что еБус подключается только один контроллер. Т.е. одного достаточно для управления котлом (принятие решений по приоритетам там нет). Огромное спасибо. Посилання на коментар Поділитися на інших сайтах More sharing options...
Саша79 Опубліковано: 14 січня 2014 Поділитись Опубліковано: 14 січня 2014 Для любого дымоходного котла желательно гильзовать дымовой канал, причем в зоне холода обязательно сендвичем. Если посчитать стоимость этого действа, то выгоднее переплатить за турбо котел и вывести коаксиальной трубой через стенку или немного доплатить и загильзовать дымовой канал 80-й трубой, а забор воздуха осуществить из того же дымового канала но между 80-й гильзой и кирпичной стенкой канала без второго гильзования Я понял, что лучше использовать турбированный, не знал что по характеристикам он лучше чем атмосферник, и что можно делать забор воздуха без коаксиала. Делая выводы, все-таки лучше ставить турбированный одноконтурный котел, с выводом коаксиала через стенку? Место куда переставить котел есть, выхлоп правда будет выходить на терассу перед домом, на высоте 2,3 м от пола, но мне кажется что запахов не должно быть слышно. Посилання на коментар Поділитися на інших сайтах More sharing options...
V.Kruk Опубліковано: 14 січня 2014 Поділитись Опубліковано: 14 січня 2014 Я понял, что лучше использовать турбированный, не знал что по характеристикам он лучше чем атмосферник, и что можно делать забор воздуха без коаксиала. Делая выводы, все-таки лучше ставить турбированный одноконтурный котел, с выводом коаксиала через стенку? Место куда переставить котел есть, выхлоп правда будет выходить на терассу перед домом, на высоте 2,3 м от пола, но мне кажется что запахов не должно быть слышно. У меня складывается мнение, что мы на разных языках разговариваем... без обид... Для дома и для квартиры условия разные. В доме часто предусмотрена топочная, в которой можно без проблем организовать вентиляцию, что я и сделал у себя в доме и поставил дымоходный котел. Основным условием для коаксиала по ДБН-у есть 2.2 м над грунтом и не под навесом (выступаюшая часть более 0.4 м). Для квартир очень часто не можно портить фасад (я о выбросе через стену) + соседи могут жаловаться на "выброс в ихние окна". от по этой причине и приходится ставить именно турбо котел и выброс делать именно в дымоход. Сергей_84 имел ввиду, что по гильзе 80-ке выброс, а забор с канала... Роль наружной коаксиальной трубы будет выполнять стенка дымохода. Посилання на коментар Поділитися на інших сайтах More sharing options...
Livesms Опубліковано: 14 січня 2014 Поділитись Опубліковано: 14 січня 2014 У меня складывается мнение, что мы на разных языках разговариваем... без обид... Для дома и для квартиры условия разные. В доме часто предусмотрена топочная, в которой можно без проблем организовать вентиляцию, что я и сделал у себя в доме и поставил дымоходный котел. Основным условием для коаксиала по ДБН-у есть 2.2 м над грунтом и не под навесом (выступаюшая часть более 0.4 м). Для квартир очень часто не можно портить фасад (я о выбросе через стену) + соседи могут жаловаться на "выброс в ихние окна". от по этой причине и приходится ставить именно турбо котел и выброс делать именно в дымоход. Сергей_84 имел ввиду, что по гильзе 80-ке выброс, а забор с канала... Роль наружной коаксиальной трубы будет выполнять стенка дымохода.Если газхозяйство знает норматив и следит за их исполнением, то выбрасывать дымоход на стенку запрещено. И соседи не только вправе жаловаться на выброс, а вправе требовать убрать это все так как нарушены нормы. У меня многоквартирный дом (5 этажей), индивидуальное отопление по проекту. На кухне отдельный вентканал под дымоход (два отверстия друг под другом - одно для дымохода, второе ревизионное для чистки. Выбрасывать дымоход на стенку категорически запрещает местные газовщики. Просто не пустят в эксплуатацию котел и все. Только гильзовать (в моем случае это 5 этажей + проход на крышу + до грибка) - это минимум 16-18 м. Коаксиал такой длины не получится. Разрешают или брать воздух со стены или (если по тихому) то забирать с дымохода. Но монтажники не рекомендуют на дымоходе в 18 метров делать забор воздуха с дымохода - говорят практически гарантированы проблемы с устойчивой работой - будет не хватать воздуха. Посилання на коментар Поділитися на інших сайтах More sharing options...
naupv Опубліковано: 14 січня 2014 Поділитись Опубліковано: 14 січня 2014 не знал что по характеристикам он лучше чем атмосферник, Он лучше на сотые доли от атмосферника по расходу газа. А вот в плане электроники проще, и вероятность поломки меньше. Это и прессостат дымоудаления, и замерзшая зимой труба, и сама турбина. Модуляция турбины не во всех моделях предусмотрена. Поэтому, если есть возможность ставим атмосферник, если нет- турбо. Сейчас многие газконторы запрещают ставить атмосферники в квартирах. Исключение- взятки. Посилання на коментар Поділитися на інших сайтах More sharing options...
Саша79 Опубліковано: 14 січня 2014 Поділитись Опубліковано: 14 січня 2014 У меня складывается мнение, что мы на разных языках разговариваем... без обид... Для дома и для квартиры условия разные. В доме часто предусмотрена топочная, в которой можно без проблем организовать вентиляцию, что я и сделал у себя в доме и поставил дымоходный котел. Основным условием для коаксиала по ДБН-у есть 2.2 м над грунтом и не под навесом (выступаюшая часть более 0.4 м). Для квартир очень часто не можно портить фасад (я о выбросе через стену) + соседи могут жаловаться на "выброс в ихние окна". от по этой причине и приходится ставить именно турбо котел и выброс делать именно в дымоход. Сергей_84 имел ввиду, что по гильзе 80-ке выброс, а забор с канала... Роль наружной коаксиальной трубы будет выполнять стенка дымохода. У меня складывается мнение, что мы на разных языках разговариваем... без обид... немного на разных, но я всех понимаю у меня нет топочной, не предусмотрел, есть цокольный этаж, но там свои ньюансы, потому я делаю выводы и применяю их к своей ситуации. котел будет стоять на кухне, болер косвенного нагрева внизу в цоколе. гильзовать сейчас дымоход достаточно проблематично и дорого. из этого всего я понимаю что в моем случае лучше ставить турбированный котел, вот только про то что нельзя коаксиал выводить под навесом я не знал. Добавлено через 1 минуту Он лучше на сотые доли от атмосферника по расходу газа. А вот в плане электроники проще, и вероятность поломки меньше. Это и прессостат дымоудаления, и замерзшая зимой труба, и сама турбина. Модуляция турбины не во всех моделях предусмотрена. Поэтому, если есть возможность ставим атмосферник, если нет- турбо. Сейчас многие газконторы запрещают ставить атмосферники в квартирах. Исключение- взятки. А вот в плане электроники проще, и вероятность поломки меньше я так понял это Вы про атмосферник? Посилання на коментар Поділитися на інших сайтах More sharing options...
V.Kruk Опубліковано: 14 січня 2014 Поділитись Опубліковано: 14 січня 2014 Сейчас многие газконторы запрещают ставить атмосферники в квартирах. Исключение- взятки. Взятки взятками, а от нынешняя текучесть кадров в газовом хозяйстве (знаю не по наслышке) - не стоит рисковать... Посилання на коментар Поділитися на інших сайтах More sharing options...
V.Kruk Опубліковано: 14 січня 2014 Поділитись Опубліковано: 14 січня 2014 ... вот только про то что нельзя коаксиал выводить под навесом я не знал. ДБН В.2.5-20-2001 "Газопостачання" :drinks: Посилання на коментар Поділитися на інших сайтах More sharing options...
Vikctor Опубліковано: 14 січня 2014 Поділитись Опубліковано: 14 січня 2014 ДБН В.2.5-20-2001 "Газопостачання" Правильно ли я трактую таблицу, что при наличии кровельного свеса метровой ширины и турбокотле 24кВт, минимально допустимая длина коаксиальной трубы должна быть 3м? Это сумма вертикального и горизонтального участка? Другими словами на наружную стену в такой ситуации котёл не повесишь? Посилання на коментар Поділитися на інших сайтах More sharing options...
V.Kruk Опубліковано: 14 січня 2014 Поділитись Опубліковано: 14 січня 2014 Правильно ли я трактую таблицу, что при наличии кровельного свеса метровой ширины и турбокотле 24кВт, минимально допустимая длина коаксиальной трубы должна быть 3м? Это сумма вертикального и горизонтального участка? Другими словами на наружную стену в такой ситуации котёл не повесишь? Нет. От вывода котла до свеса должно быть 3 метра вертикально. 2 Посилання на коментар Поділитися на інших сайтах More sharing options...
Сергей_84 Опубліковано: 14 січня 2014 Поділитись Опубліковано: 14 січня 2014 Делая выводы, все-таки лучше ставить турбированный одноконтурный котел, с выводом коаксиала через стенку? Место куда переставить котел есть, выхлоп правда будет выходить на терассу перед домом, на высоте 2,3 м от пола, но мне кажется что запахов не должно быть слышно. 1. Так дешевле и проще 2. Расстояние регламентируется ДБН Газоснабжение, но я никогда не рекомендую вобще выводить дымовые газы на терассу даже если есть возможность обойти эти нормы ( а возможности всегда находятся). Посилання на коментар Поділитися на інших сайтах More sharing options...
Vikctor Опубліковано: 14 січня 2014 Поділитись Опубліковано: 14 січня 2014 Нет. От вывода котла до свеса должно быть 3 метра вертикально. Опа, т.е. для одноэтажника с широким свесом коаксиал через стену в принципе не светит? Вряд ли ведь возможно сделать вывод на высоте скажем 0,5м над отмосткой... Тогда другой вопрос - нет ли ограничений по высоте коаксиала? И учитывая, что в данном случае речь не идёт о естественной тяге, то газовщики не устанавливают ограничений по высоте вывода над кровлей по отношению к коньку? Вопрос к практикам. Где-то Мурава по моему выкладывал фото чудных сталактитов, образующихся на земле под выводом из стены коаксиала высотой более метра. При вертикальном выводе коаксиала не будет той же картинки, только внутри трубы? Посилання на коментар Поділитися на інших сайтах More sharing options...
naupv Опубліковано: 14 січня 2014 Поділитись Опубліковано: 14 січня 2014 я так понял это Вы про атмосферник? Ну а про что еще. Добавлено через 3 минуты нет ли ограничений по высоте коаксиала? Пост 3981............ Посилання на коментар Поділитися на інших сайтах More sharing options...
Сергей_84 Опубліковано: 14 січня 2014 Поділитись Опубліковано: 14 січня 2014 При вертикальном выводе коаксиала не будет той же картинки, только внутри трубы? что вы имеете под вертикальным выводом коаксиала? Посилання на коментар Поділитися на інших сайтах More sharing options...
V.Kruk Опубліковано: 14 січня 2014 Поділитись Опубліковано: 14 січня 2014 Вряд ли ведь возможно сделать вывод на высоте скажем 0,5м над отмосткой... Вторая таблица с того-же ДБН-а: Советую скачать указанный ДБН и ознакомится с разделом - Дымоудаление. Есть свои нормы по высоте дымохода относительно конька крыши, в зависимости от расстояния от конька. 1 Посилання на коментар Поділитися на інших сайтах More sharing options...
Vikctor Опубліковано: 14 січня 2014 Поділитись Опубліковано: 14 січня 2014 что вы имеете под вертикальным выводом коаксиала? Через кровлю, а не через стену (как оказалось через стену в моём случае нельзя.) Есть свои нормы по высоте дымохода относительно конька крыши, в зависимости от расстояния от конька. И для турбированных котлов? Просто существуют подобные нормы для вентвыходов естественной вентиляции, но они не действуют в случае ППВВ. Думал, что и здесь по аналогии... Посилання на коментар Поділитися на інших сайтах More sharing options...
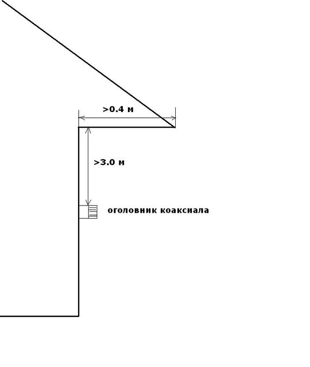
SON Опубліковано: 14 січня 2014 Поділитись Опубліковано: 14 січня 2014 Сейчас многие газконторы запрещают ставить атмосферники в квартирах. Исключение- взятки. А при чем газконтора к дымоходу? Акт на дымоход или пригодность использования его под газ. выдает печная служба ЖЭКа или другая эксплуатирующая организация. От вывода котла до свеса должно быть 3 метра вертикально. Это как? Посилання на коментар Поділитися на інших сайтах More sharing options...
Сергей_84 Опубліковано: 14 січня 2014 Поділитись Опубліковано: 14 січня 2014 Через кровлю, а не через стену (как оказалось через стену в моём случае нельзя.).. Вывод коаксиала через кровлю-достаточно недешевое удовольствие , поэтому не имеет смысла его делать. Лучше раздельный вывод-ввод организовать.. Добавлено через 1 минуту А при чем газконтора к дымоходу? Самое прямое. ДБН Газоснабжение регулирует и правильность обустройства дымоходов Добавлено через 1 минуту Это как? От нижней части свеса длиннее 0,4 м до места выхода трубы из стены должно быть не менее 3 м. 2 Посилання на коментар Поділитися на інших сайтах More sharing options...
V.Kruk Опубліковано: 14 січня 2014 Поділитись Опубліковано: 14 січня 2014 Это как? Так: Посилання на коментар Поділитися на інших сайтах More sharing options...
Рекомендовані повідомлення
Створіть акаунт або увійдіть у нього для коментування
Ви маєте бути користувачем, щоб залишити коментар
Створити акаунт
Зареєструйтеся для отримання акаунта. Це просто!
Зареєструвати акаунтУвійти
Вже зареєстровані? Увійдіть тут.
Увійти зараз