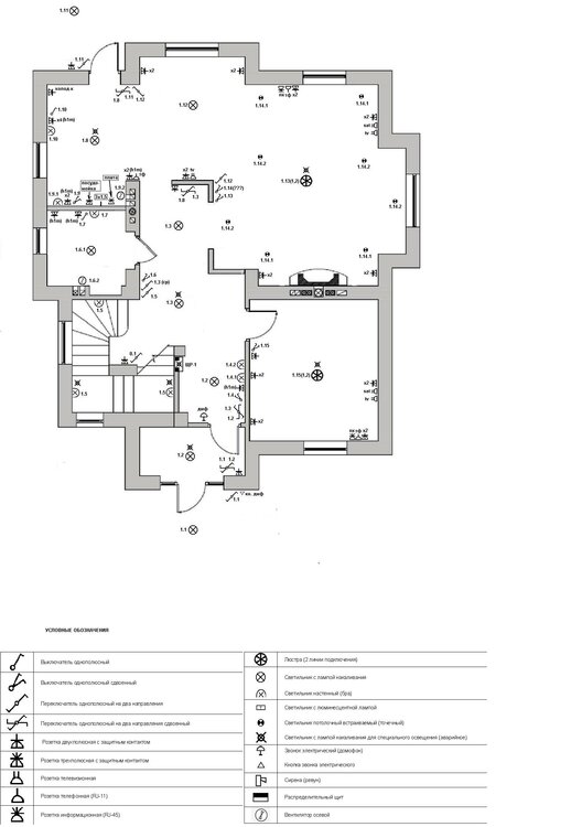
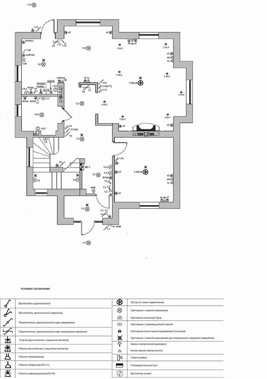
Igor_M Опубліковано: 21 червня 2011 Поділитись Опубліковано: 21 червня 2011 Прошу помощи зала в разработке "проекта" по электроразводке... Доселе проживал только в "плоских" (т.е. одноэтажных) помещениях, да и дом строю первый... Поэтому очень важно узнать мнение уже проживающих (т.е. уже проводивших разводку), планирующих проживать (т.е. строящихся) и помогающих не умереть от поражения эл.током (т.е. специалистов). Вот набросал план расстановки электрооборудования - розетки, выключатели, светильники и прочая... Напечатав все это - ужаснулся - а не слишком ли я того? На картинках ниже - те самые планы... Там где план 1-го этажа - все условные обозначения расписаны. Заранее признателен за помощь!!! Посилання на коментар Поділитися на інших сайтах More sharing options...
engeneer Опубліковано: 21 червня 2011 Поділитись Опубліковано: 21 червня 2011 Прошу помощи зала в разработке "проекта" по электроразводке... По этим схемам судить очень сложно. Как минимум, добавьте название (назначение) помещений, очень желательно - план расстановки мебели. Из того что сразу бросилось в глаза - розетки над рабочей поверхностью в кухне никак не 1 м - это получается прямо над столешницей, очень неудобно. Желательно сантиметров 20 под шкафчиком, чуть ниже рейлинговой системы. Это, примерно, 1,25 м. Аварийный свет намного практичнее делать на светодиодах от общего аккумулятора. Его второе возможное назначение - ночные подсветки. Посилання на коментар Поділитися на інших сайтах More sharing options...
Igor_M Опубліковано: 21 червня 2011 Автор Поділитись Опубліковано: 21 червня 2011 Это принято... хотел сразу, но было бы слишком громоздко. Наверное оптимально будет стэп бай стэп, точнее "флор бай флор"... Начнем с 1-го - сейчас как раз с мебелью вытанцовывается... С высотами по кухне понятно - писал 1м просто чтоб не выделить от обычных 30см. Аварийный пока натыкал где придумал (ставил в самом конце), поэтому логики там не очень много... пока... Посилання на коментар Поділитися на інших сайтах More sharing options...
engeneer Опубліковано: 21 червня 2011 Поділитись Опубліковано: 21 червня 2011 По свету: не увидел на плане закарнизных подсветок, подсветок ступеней, подсветок пола в коридорах. Над рабочей поверхностью загадочные два бра - что за светильники? Нет диммеров, датчиков движения, выключателей с подсветкой - все эти мелочи довольно удобны. Посилання на коментар Поділитися на інших сайтах More sharing options...
Igor_M Опубліковано: 22 червня 2011 Автор Поділитись Опубліковано: 22 червня 2011 По свету: не увидел на плане закарнизных подсветок, подсветок ступеней, подсветок пола в коридорах. Над рабочей поверхностью загадочные два бра - что за светильники? Нет диммеров, датчиков движения, выключателей с подсветкой - все эти мелочи довольно удобны. Закарнизных подсветок и т.п. не будет - все по-простецки... минимализм пополам с оптимализмом... Над рабочей поверхностью - это подсветка рабочей зоны (снизу под навесными шкафчиками). Есть такой значек - люминисцентный светильник, но решил уже не мельтешить... Вот с этими девайсами как раз и не разбирался... но вещи полезные безусловно - будем планомерно "замещать" ими неоптимальные позиции на плане... надеюсь с вашей помощью Посилання на коментар Поділитися на інших сайтах More sharing options...
Igor_M Опубліковано: 22 червня 2011 Автор Поділитись Опубліковано: 22 червня 2011 (змінено) Вот в аттаче примерный план расстановки мебели. План расстановки электроприборов Краткое описание "маршрутов"... На входной калитке - звонок домофона. Позвонили - подошел, посмотрел, открыл электрозамок. Подходим к входной двери. Тут поставил "дубляж" звонка (а вдруг бродил по участку, а дверь закрыли...). Выключатель возле входной двери освещает крыльцо. Открыл входную дверь, захожу, закрываю дверь, включаю свет в тамбуре (и одновременно в предбаннике) и выключаю на улице. Разулся, снял верхнюю одежду (весной и осенью)... Перехожу в дом, закрываю дверь. В предбаннике - шкаф, тумбочка, зеркало... при необходимости используем их (по назначению), включаю свет в холе и коридоре и выключаю в предбаннике. Иду на кухню (допустим с сумками). При входе на кухню включаю там свет (1.8 ) и выключаю в коридоре (1.3 рядом). Если надо на террасу - включил там свет, выключил на кухне и вышел. Если на кухне приготовил чего-то съедобного, то накрыл стол и переходя к "трапезе", включаю свет над столом (1.12) и выключаю на кухне (1.8 ). Допустим поел, убрал посуду, пошел в гостиную. Включаю там свет (1.13 - минимальный или полный) и выключаю в столовой (1.12). Посмотрел ТВ, пошел наверх... при выходе из гостиной выключаю свет (1.13) и... вот тут засада - в темноте придется идти до лестницы (надо что-то придумать!!!)... включаю освещение лестницы на 2-й этаж (1.5 - четыре бра на высоте 2м), поднимаюсь и там включаю освещение хола 2-го этажа и выключаю освещение лестницы... Где-то так. Пока писал, вижу проблему с управлением 1.3 при выходе/входе из гостиной, а также при входе/выходе в спальню на 1-м этаже... Что-то с этим нужно сделать? И еще - где применить диммеры, датчики движения и еще что-нибудь хорошее...??? Змінено 22 червня 2011 користувачем Igor_M Посилання на коментар Поділитися на інших сайтах More sharing options...
Владимир В. Опубліковано: 22 червня 2011 Поділитись Опубліковано: 22 червня 2011 1.13) и... вот тут засада - в темноте придется идти до лестницы Не придётся: проходной выключатель - вкл. в гостинной, выкл. у лестницы или наверху (перекрёстный выкл), как будет удобно... Посилання на коментар Поділитися на інших сайтах More sharing options...
Nikalya Опубліковано: 22 червня 2011 Поділитись Опубліковано: 22 червня 2011 диммеры в спальной, зале, детской... там, где нужно менять освещенность комнаты в зависимости от настроения, обстановки. яркий свет/приглушенный свет/отсутствие света диммеры могут быть в схеме с проходными выключателями, с нажимными кнопками (с которых также можно будет управлять этим диммером) и самостоятельными выключатели на санузел, коридор, лестницу, возможно детскую и кухню сделайте с подсветкой, чтобы в темноте не искать их на стене. это удобно если есть какой-то удаленный потребитель, работу которого не видно при включении выключателем, то можно поставить выключатель с индикацией. он четко покажет подали вы напряжение или нет 2 Посилання на коментар Поділитися на інших сайтах More sharing options...
Igor_M Опубліковано: 22 червня 2011 Автор Поділитись Опубліковано: 22 червня 2011 Не придётся: проходной выключатель - вкл. в гостинной, выкл. у лестницы или наверху (перекрёстный выкл), как будет удобно... Уже есть три выключателя проходных на лампочки 1.3 - один в "предбаннике", второй - при выходе на лестницу, третий - возле входа на кухню... Четвертый это уже слишком... да и схема усложняется. А еще нужен при входе в спальню на 1-м этаже... И еще по своему опыту заметил, что если рядом три и больше выключателей, то ВСЕГДА путаешься - что куда? У меня в квартире три рядом стоят, из которых два - проходные... вот их все время путаю... А что, если вообще поставить на коридор датчик движения? Как считаете - оправдано ли использование датчика движения в этом случае? У кого есть опыт? Посилання на коментар Поділитися на інших сайтах More sharing options...
Nikalya Опубліковано: 22 червня 2011 Поділитись Опубліковано: 22 червня 2011 Уже есть три выключателя проходных на лампочки 1.3 - один в "предбаннике", второй - при выходе на лестницу, третий - возле входа на кухню... Четвертый это уже слишком... да и схема усложняется. А еще нужен при входе в спальню на 1-м этаже... ну схему то не вы будете собирать, а электрик, ему то какая разница.. недавно собрал схему включения освещения с пяти мест и ничего. ну проводов много приходит в распаечную коробку, но это же не ваша забота, правда? причем я просчитывал 2 варианта: на проходных/перекрестных выключателях и на выключателе с импульсным реле+кнопки. все пр-ва Легранд, серия Селиан. первый вариант получился дешевле, его и воплотили в жизнь Посилання на коментар Поділитися на інших сайтах More sharing options...
Igor_M Опубліковано: 22 червня 2011 Автор Поділитись Опубліковано: 22 червня 2011 ну схему то не вы будете собирать, а электрик, ему то какая разница.. Ну проводов там немеряно пойдет... а они денег стоят... и раьота по их укладке ТОЖЕ... плюс распайка, коробка, подрозетники и т.п... Я серьезно про датчик движения спрашиваю... Плиз дайте отзывы - насколько будет с ним комфортно в коридоре? Посилання на коментар Поділитися на інших сайтах More sharing options...
engeneer Опубліковано: 22 червня 2011 Поділитись Опубліковано: 22 червня 2011 Ну проводов там немеряно пойдет... а они денег стоят... и раьота по их укладке ТОЖЕ... плюс распайка, коробка, подрозетники и т.п... Я серьезно про датчик движения спрашиваю... Плиз дайте отзывы - насколько будет с ним комфортно в коридоре? Будет удобно, только датчик желательно брать не китайский, а что-нибудь европейское типа "комфорт" - там можно отрегулировать время включения и порог освещенности, до которого он не буде срабатывать. Если делать разводку без монтажных коробок, схема проходных-перекрестных выключателей упрощается. Схемы приводил в этой теме посты 14-16. Свет при входе лучше запитать от сумеречного реле и вообще не выключать. Энергосберегающей лампы 8 Вт хватит с лихвой, но будет создавать эффект присутствия. У себя сделал так. 1 Посилання на коментар Поділитися на інших сайтах More sharing options...
Igor_M Опубліковано: 23 червня 2011 Автор Поділитись Опубліковано: 23 червня 2011 Будет удобно, только датчик желательно брать не китайский, а что-нибудь европейское типа "комфорт" - там можно отрегулировать время включения и порог освещенности, до которого он не буде срабатывать. Ну да, понятно. Правда, в инете нашел пока такое вот: www.lina.com.ua/index.php?page=catalog&menu=22.01.01.09&id=22.01.01.09.0004 Вроде там тоже есть настройка по порогу освещенности... И еще нужно наверное обращать внимание на угол "обзора"... А датчик должен быть инфракрасный? Просто есть еще какие-то оптико-акустические (???)... Свет при входе лучше запитать от сумеречного реле и вообще не выключать. Энергосберегающей лампы 8 Вт хватит с лихвой, но будет создавать эффект присутствия. У себя сделал так. На входе наверное лучше сделать комбинированный вариант. Отдельно - постоянно включенный светильник с сумеречным реле с минимальной по мощности лампочкой (может даже LED?). И еще один светильник - с регулируемым порогом освещенности и датчиком движения с лампой помощнее...;) И есть вопрос следующий: Можно ли каким-то образом объединить в одном светильнике возможность работы от датчика движения и от обычного выключателя? Т.е. чтобы у меня была возможность включить этот светильник на постоянную работу и чтобы при этом отключился датчик движения (ну и реле освещенности)? Просто например нужно пропылесосить или пол помыть в коридоре, а светильник будет "дергаться" каждые 30 сек... раздражает... Я вот подумал - может для этих целей использовать "переключатель"? Кто-то делал что-то подобное? Посилання на коментар Поділитися на інших сайтах More sharing options...
Igor_M Опубліковано: 23 червня 2011 Автор Поділитись Опубліковано: 23 червня 2011 Учитывая вышеизложенное, произвел некоторую модификацию входной зоны 1-го этажа. Получилось примерно так: Итак. Убрал выключатели при входе. На крыльце организовал два типа освещения: по центру - маломощная лампа с сумеречным реле (обозначена как кружочек с полумесяцем), по бокам - два светильника с датчиками движения и порогом освещенности (кружочек с полумесяцем и треугольником). Две лампочки поскольку у меня лестница с крыльца в три стороны - чтоб немного и боковые зоны направленно освещались... да и тенью от себя замок дверной не закрывать... В тамбуре находится выключатель двойной, который служит для принудительного отключения светильника 1.1.2 и принудительного включения светильников 1.1.1 (в предыдущем посте задавал вопрос - хорошо бы схемку понять - как это сделать?). В тамбуре же тоже светильник с датчиком движения и порогом освещенности... ну и выключатель принудительного включения... Таким образом "проникаем" в дом, не нажимая никаких выключателей. Нормально будет? В предбаннике поубирал нагромождение на правой стенке, поскольку там проход всего 1,2м и даже минимальная тумбочка там не к месту... План с мебелью 1-го этажа здесь www.stroimdom.com.ua/forum/attachment.php?attachmentid=118024&d=1308751074. Придумал с зекралом такое вот. Планирую его повесить над тумбочкой в нише (на левой стене). Там у меня будет встроенный Шит распределительный 1-го этажа (ЩР-1 - красным). Так вот думаю зеркало на петлях повесить, чтобы оно как дверца открывалось и потом уже открывать ШР-1 для обслуживания... Допустимо ли это по нормативам? Все проходные выключатели светильников хола и коридора убрал, поскольку поставил там светильники с датчиком движения и порогом освещенности (ну и один выключатель слева от с/у для "принудительного" включения). НО... будет ли "добивать" датчик от светильника хола (1.3) до входных дверей? Т.е. чтобы при входе в дом он загорался и я мог дойти до выключателя 1.4 (подстветка зеркала), включить его, раздеться/разуться (зимой это в доме буду делать)... Как такие модификации - стало оптимальнее? Что еще можно (нужно) упростить (в плане пользования)? Спсб! Посилання на коментар Поділитися на інших сайтах More sharing options...
engeneer Опубліковано: 23 червня 2011 Поділитись Опубліковано: 23 червня 2011 Ну да, понятно. Правда, в инете нашел пока такое вот: www.lina.com.ua/index.php?page=catalog&menu=22.01.01.09&id=22.01.01.09.0004 Вроде там тоже есть настройка по порогу освещенности... И еще нужно наверное обращать внимание на угол "обзора"... А датчик должен быть инфракрасный? Просто есть еще какие-то оптико-акустические (???)... Этой китайской ерунды много в Эпицентре. Срабатывает крайне ненадежно. Лучше брать датчики в той серии розеток-выключателей, которые будете ставить в доме - ABB, Legrand и пр. Там выбор механизмов и линз достаточно велик - "стандарт", "комфорт", на высоту установки 90 см или 2,20, на разный угол обзора. Становятся в стандартную рамочку, довольно надежны. На входе наверное лучше сделать комбинированный вариант. Отдельно - постоянно включенный светильник с сумеречным реле с минимальной по мощности лампочкой (может даже LED?). И еще один светильник - с регулируемым порогом освещенности и датчиком движения с лампой помощнее...;) И есть вопрос следующий: Можно ли каким-то образом объединить в одном светильнике возможность работы от датчика движения и от обычного выключателя? Т.е. чтобы у меня была возможность включить этот светильник на постоянную работу и чтобы при этом отключился датчик движения (ну и реле освещенности)? Без проблем. Датчик можно при этом и не отключать. Например, лампочка выключается сумеречным реле, а выключатель включает ее же принудительно. Сделать лампу двухрежимной можно, но особого смысла в этом нет. Энергосберегаюшая лампочка 9 Вт при работе 10 часов в сутки за год спалит 33 кВт-часа - на 8 грн. Света от нее вполне достаточно. Можно поставить вместо нее светодиодную на 2-5 Вт, цена вопроса 50-100 грн. Зеркало на щитке допустимо, у Hager и ABB есть щитки с дверцой-зеркалом или рамой под картину. Датчик движения пробивает, обычно, на 15-18 м. В коридоре, пожалуй, проходные включатели практичнее - датчики движения "видят" одну сторону, они хороши в помещениях с одним входом. Посилання на коментар Поділитися на інших сайтах More sharing options...
Igor_M Опубліковано: 23 червня 2011 Автор Поділитись Опубліковано: 23 червня 2011 Этой китайской ерунды много в Эпицентре. Срабатывает крайне ненадежно. Лучше брать датчики в той серии розеток-выключателей, которые будете ставить в доме - ABB, Legrand и пр. .................................. В коридоре, пожалуй, проходные включатели практичнее - датчики движения "видят" одну сторону, они хороши в помещениях с одним входом. Что-то я походил посмотрел скока нормальные датчики стоят и вполне готов согласиться с вами, что в коридоре проходные попрактичнее будут... Это ж умом тронуться можно - (ссылка устарела) Две штуки грн. отдать за девайс, который к тому же отдельно висящий будет... этот-то как раз вокруг смотрит... Ну прямосмотрящие вдвое дешевше, но все равно это жир... Короче, датчики нужно ставить там, где без выключателей обойтись невозможно...:D Посилання на коментар Поділитися на інших сайтах More sharing options...
свет2000 Опубліковано: 24 червня 2011 Поділитись Опубліковано: 24 червня 2011 Что-то я походил посмотрел скока нормальные датчики стоят и вполне готов согласиться с вами, что в коридоре проходные попрактичнее будут... Это ж умом тронуться можно - (ссылка устарела) Две штуки грн. отдать за девайс, который к тому же отдельно висящий будет... этот-то как раз вокруг смотрит... Ну прямосмотрящие вдвое дешевше, но все равно это жир... Короче, датчики нужно ставить там, где без выключателей обойтись невозможно...:D датчики ставят для комфорта чтобы сделать подсветку на уровне пола и допустим ночью комфортно выйти в туалет,на кухню к холодильнику пробраться ,заехать(зайти) в гараж(там и на потолке сойдет) и т.д.,а комфорт стоит денег,китаеза можете взять около 100 гр,Хагеровский от 400 до 1000(приблизительно от модели) а датчик от АББ стоит своих денег( на данный момент уж есть 6 лет эксплуатации),менять часто не придется,так китаезы живут около 2-х лет ,да и Хагеровские около того Посилання на коментар Поділитися на інших сайтах More sharing options...
Слава Щ. Опубліковано: 24 червня 2011 Поділитись Опубліковано: 24 червня 2011 Это ж умом тронуться можно - (ссылка устарела) Две штуки грн. отдать за девайс, который к тому же отдельно висящий будет... этот-то как раз вокруг смотрит... Ну прямосмотрящие вдвое дешевше, но все равно это жир... Короче, датчики нужно ставить там, где без выключателей обойтись невозможно...:D Я бы все таки в проходных местах и местах общего пользования, рекомендовал бы датчики, а не выключатели - намного удобней. Особенно приятно и эффектно работают датчики, плавно зажигающие освещение, но к сожалению такие встречал только для ламп накаливания. Игорь, то что Вы привели - это датчик присутствия, такие датчики реагируют не только на движение в поле его зрения, а и на ИК излучение неподвижного человека. Датчики присутствия значительно (в 2-3 раза) дороже датчиков движения, но не всегда есть резон такие ставить, в коридоре, например. В туалете же нужен именно датчик присутствия. 1 Посилання на коментар Поділитися на інших сайтах More sharing options...
Igor_M Опубліковано: 24 червня 2011 Автор Поділитись Опубліковано: 24 червня 2011 Я вот подумал, что на самом деле при моем коридоре без датчиков плоховато будет. Пока как вариант все-таки установлю светильники со встроенными датчиками (надеюсь найти что-то поприличнее). Итого вырисовывается такое: Добавил светильник в предбаннике (1.16), поскольку если нужно в шкафу при входе поковыряться, то без света плохо. Опять же зашел - включил, разделся - выключил и пошел... и тут срабатывает светильник 1.3 в холе... вроде так. С выходом на террасу тоже поставлю там светильник с датчиком и порогом освещенности (должны же быть наружные). Опять же переключателем 1.11 можно и не пользоваться, а включать только когда требуется принудительное включение (на постоянку). На террасе светильник с сумеречным реле (по типу как на крыльце). На кухне в области рабочей зоны (слева от холодильника) будет два блока - в одном две розетки и выключатель подстветки, во втором - три розетки. Аргументация - рамка на 4 и более позиций нехорошо смотрится (а было вообще на 5 - 4 розетки + выключатель)... К тому же как показывает практика розеток всегода не хватает... а теперь их будет 5 (пять). Опять же когда в одной рамке больше двух блоков выключателей, то путаница все время. Поэтому думаю возле санузла объединить в одном два выключателя - проходной лестницы и принудительный для 1.3. Думаю, можно приспособить ПЕРЕключатель под обычный выключатель? Какие есть еще недочеты, просчеты? Что бы еще такого соптимизоровать? Спсб! Посилання на коментар Поділитися на інших сайтах More sharing options...
engeneer Опубліковано: 24 червня 2011 Поділитись Опубліковано: 24 червня 2011 Думаю, можно приспособить ПЕРЕключатель под обычный выключатель? Что бы еще такого соптимизоровать? Спсб! Конечно, можно. В гостиной можно поставить диммер. Когда включен телевизор или разожжен камин яркий верхний свет ни к чему. В спальне можно добавить проходные выключатели возле кровати и бра над кроватью. Посилання на коментар Поділитися на інших сайтах More sharing options...
Joe Опубліковано: 26 червня 2011 Поділитись Опубліковано: 26 червня 2011 Сначала тоже планировал датчики движения, затем передумал, сделал такой на пороге и всё. Китайский, работает надежно, вид вполне приличный (но аристократии, наверное, цена не понравится). Почему передумал в доме? Потому что нашел такую байду как на фото. К датчику нужны лампы, проводка, в общем куча дополнительной работы и денег. А смысл? Если кому нужен полноценный свет, то одно дело, но мне эти прибамбасы нужны только чтобы ночью не шарить по стене в посиках выключателя и не подвергая стрессу глаза дойти до туалета или до выключателя. А с этой целью справляется эта приблуда - вставил аккумуляторы или батарейки, подцепил на потолок и всё. Чувствительность и яркость подстраиваются, жрет немного, свет яркий. Посилання на коментар Поділитися на інших сайтах More sharing options...
Joe Опубліковано: 26 червня 2011 Поділитись Опубліковано: 26 червня 2011 Вот и фото. Посилання на коментар Поділитися на інших сайтах More sharing options...
sanykrimea Опубліковано: 26 червня 2011 Поділитись Опубліковано: 26 червня 2011 Вот и видео Посилання на коментар Поділитися на інших сайтах More sharing options...
Joe Опубліковано: 26 червня 2011 Поділитись Опубліковано: 26 червня 2011 Обалдеть, даже на фонарик видео сделали. Молодцы китайцы. Посилання на коментар Поділитися на інших сайтах More sharing options...
sanykrimea Опубліковано: 26 червня 2011 Поділитись Опубліковано: 26 червня 2011 Обалдеть, даже на фонарик видео сделали. Молодцы китайцы. Чайнаамериканцы :D GoldenGadgets.com | 1819 Н. Флорадейл пр., Юг-Эль-Монте, Калифорния 91733, США Основатель Gary Yeung Посилання на коментар Поділитися на інших сайтах More sharing options...
Рекомендовані повідомлення
Створіть акаунт або увійдіть у нього для коментування
Ви маєте бути користувачем, щоб залишити коментар
Створити акаунт
Зареєструйтеся для отримання акаунта. Це просто!
Зареєструвати акаунтУвійти
Вже зареєстровані? Увійдіть тут.
Увійти зараз