Korni Опубліковано: 20 березня 2012 Поділитись Опубліковано: 20 березня 2012 ....возят нашару в Германию Шары - не бывает. Сплошные понты... причём, неоправданные.... имхо... 1 Посилання на коментар Поділитися на інших сайтах More sharing options...
Игорь&Ира Опубліковано: 21 березня 2012 Поділитись Опубліковано: 21 березня 2012 Эх-х.... морозов 5 дней, а топим мы 180. Так как всё-таки правильно поступить? Ориентироваться на максимум или на среднее? Посилання на коментар Поділитися на інших сайтах More sharing options...
sov1178 Опубліковано: 21 березня 2012 Поділитись Опубліковано: 21 березня 2012 Так как всё-таки правильно поступить? Ориентироваться на максимум или на среднее? Наверное стоит разделить: 1. Мощность радиаторов - по максимуму (можно и с запасом), ибо единственное на что влияет - на стоимость материалов. 2. Мощность теплового генератора (котла). Здесь разные варианты могут быть - если электрокотел, то лучше по максимуму (если есть мощности), ибо зимой может напруга "просесть", а мощность пропорциональна квадрату напряжения - на расход эл. энергии запас мощности не влияет. Если газ, то немного сложнее - сильно мощный котел будет слишком часто включаться-выключаться = повышенный расход газа. Вроде бы есть газовые котлы, которые позволяют регулировать мощность в достаточно широких пределах - наверное они должны решить этит вопрос (тем более для ГВС обычно нужна мощность поболее, чем для небольшого хорошо утепленного дома). Ну и ТТ котел (мой случай ) - здесь излишняя мощность = зло, но даже самые навороченные пиролизные котлы дают регулирование мощности порядка 50..100% (при меньшей мощности переходят в старт-стопный режим, что не есть хорошо, как с точки зрения расхода дров, так и с точки зрения чистоты котла/дымохода). Для себя вижу выход в наличии дополнительно электрокотла небольшой мощности и/или ТА. Еще нужно принять во внимание конструкцию дома - например, кирпичный дом с наружным утеплением обладает достаточной тепловой инерцией, чтобы сгладить пиковые потребности в тепле... Вообщем мое ИМХО - СО должна обеспечивать нормальную температуру внутри при самых лютых морозах, но при подборе оборудования/проектировании нужно учитывать, что 90% времени система будет работать с нагрузкой 30..50% от максимума - в этом режиме она должна работать достаточно эффективно. Удачи! 5 Посилання на коментар Поділитися на інших сайтах More sharing options...
Korni Опубліковано: 21 березня 2012 Поділитись Опубліковано: 21 березня 2012 .....Вообщем мое ИМХО - СО должна обеспечивать нормальную температуру внутри при самых лютых морозах, но при подборе оборудования/проектировании нужно учитывать, что 90% времени система будет работать с нагрузкой 30..50% от максимума - в этом режиме она должна работать достаточно эффективно. Поддержу это имхо. Добавлено через 57 минут Так как всё-таки правильно поступить? Ориентироваться на максимум или на среднее? Твёрдотопливник? Газовый? Электрический? Дом отапливается только радиаторами? Или ТП? Комбинированно? Живёт в доме 8 человек? 100 м.кв? Или 450?.... и т.д. 1 Посилання на коментар Поділитися на інших сайтах More sharing options...
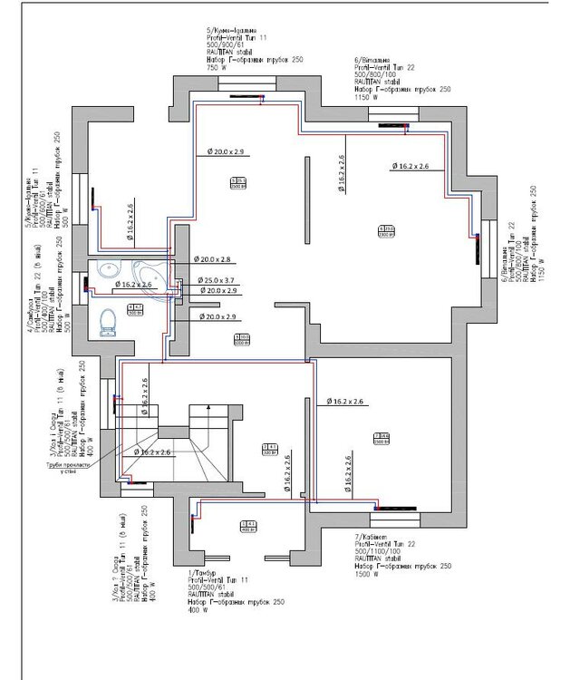
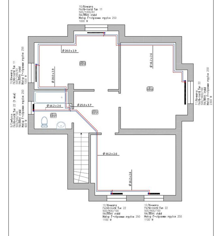
Igor_M Опубліковано: 21 березня 2012 Автор Поділитись Опубліковано: 21 березня 2012 Только чур не тыкать меня в фейс тройниками в стяжке!!! Вопрос по предложению Сергея_31 и он связан с тем, что Korni рекомендовал по разным веткам от одного коллектора. Поскольку грамотно написать не могу, то я нарисую...;) На ум приходит два варианта "комбинации". Покажу на примере 2-го этажа (оба варианта во вложении). Там, где мощные радиаторы (под окнами шириной 1,5м) лучи подводим непосредственно. В спальну 3 заводим один луч и подключаем два радиатора (там два окна в одной комнате). Аналогично поступаем с "маленьким" радиатором в Спальне 1 и радиатором (или полотенцесушителем) в санузле. РИСУНОК (только для Спальни 3): 1. Подводим луч в спалью 1 посередине радиаторов, ставим там тройники и уже отводами подключаем каждый радиатор. 2. Подводим луч к первому радиатору, там ставим тройник. От одного конца тройника запитываем первый радиатор, от второго протягиваем ко второму. Обратка - аналогично. Т.е. получается как бы тупиковый узел шлейфовой двухтрубной разводки... ВОПРОС: "Какой из двух вариантов предпочтительнее (правильнее)?". Буду крайне признателен за комментарии и пояснения!!! ЗЫ Попутно еще один вопрос. Ничего страшного, если коллектор будет стоять в коридоре? Я думаю его прямо к стене прикрепить, а потом там соорудить что-то типа тумбочки с дверцами. Он шуметь не будет? Есть какие-то нюансы при такой установке? И опять спасибо! ЗЫ Это повтор поста 246... куда-то пропали картинки... ... теперь добавил... Посилання на коментар Поділитися на інших сайтах More sharing options...
Korni Опубліковано: 21 березня 2012 Поділитись Опубліковано: 21 березня 2012 ....."Какой из двух вариантов предпочтительнее (правильнее)?"..... Они абсолютно одинаковые. 1 Посилання на коментар Поділитися на інших сайтах More sharing options...
Катерина Ш Опубліковано: 21 березня 2012 Поділитись Опубліковано: 21 березня 2012 ЗЫ Это повтор поста 246... куда-то пропали картинки... ... теперь добавил... Не люблю лучевую разводку(((..... имхо Посилання на коментар Поділитися на інших сайтах More sharing options...
Игорь&Ира Опубліковано: 21 березня 2012 Поділитись Опубліковано: 21 березня 2012 Твёрдотопливник? Газовый? Электрический? Дом отапливается только радиаторами? Или ТП? Комбинированно? Живёт в доме 8 человек? 100 м.кв? Или 450?.... и т.д. 1. Газовый. 2. Радиаторы. 3. 2-5. 4. 120. 5. Со временем нарисую схему. Посилання на коментар Поділитися на інших сайтах More sharing options...
Igor_M Опубліковано: 21 березня 2012 Автор Поділитись Опубліковано: 21 березня 2012 1. Газовый. 2. Радиаторы. 3. 2-5. 4. 120. 5. Рисую схему. 1. Газовый какой? Топка, дымоход, стоячий-висячий-лежачий? Как воду греть будете? 2. Радиаторы я понял уже выбрали... Расставили все по местам? 3. 2-5 это режим зима-лето или как понимать? 4. 120 - это один этаж? 6. Схемка конечно хорошо. Не забудьте указать назначения помещений, а также все характеристики ограждающих конструкций... ... и опять начнем все с самого начала? 2 Посилання на коментар Поділитися на інших сайтах More sharing options...
Korni Опубліковано: 21 березня 2012 Поділитись Опубліковано: 21 березня 2012 ......Со временем нарисую схему. Мои вопросы были риторические с целью подвигнуть Вас к мысли о том, что система отопления - это комплексное решение, которое должно учитывать множество факторов. Как Вы уже наверное знаете, я, например, не рассматриваю выбор котла и не обсуждаю тепломеханику котельной до заключения предварительного договора о монтаже водопроводных коммуникаций. Это процесс ответственный и требующих значительных затрат энергии - не имеет смысла его проводить на ранних этапах договорённостей. Потому на форуме Вы можете получить рекомендации и советы общего характера. 1 Посилання на коментар Поділитися на інших сайтах More sharing options...
Игорь&Ира Опубліковано: 21 березня 2012 Поділитись Опубліковано: 21 березня 2012 Как Вы уже наверное знаете ... Я всё это прекрасно знаю и без исходных данных даже не рассчитываю на консультацию. Просто был задан вопрос: Так как всё-таки правильно поступить? Ориентироваться на максимум или на среднее? в расчёте на односложный ответ. А оказалось, что не всё так просто. Посилання на коментар Поділитися на інших сайтах More sharing options...
Korni Опубліковано: 21 березня 2012 Поділитись Опубліковано: 21 березня 2012 .....в расчёте на односложный ответ Односложный ответ получить не сложно... в стране советов... Например - берите котёл на 10% меньше по мощности для отопления. Посилання на коментар Поділитися на інших сайтах More sharing options...
Igor_M Опубліковано: 21 березня 2012 Автор Поділитись Опубліковано: 21 березня 2012 Односложный ответ получить не сложно... в стране советов... Например - берите котёл на 10% меньше по мощности для отопления. ... и продумайте как вы будете греть ГВС... ...если ТЕМ ЖЕ котлом, то в зависимости от количества точек разбора и вероятности одновременного пользования оными (а если будет 5 человек, то таковую вероятность исключить не получится), вам возможно понадобится более мощный котел... ...и обо всем этом уже писали... и в этой теме тоже... Посилання на коментар Поділитися на інших сайтах More sharing options...
Korni Опубліковано: 21 березня 2012 Поділитись Опубліковано: 21 березня 2012 ... и продумайте как вы будете греть ГВС... Без проблем. Посилання на коментар Поділитися на інших сайтах More sharing options...
Igor_M Опубліковано: 21 березня 2012 Автор Поділитись Опубліковано: 21 березня 2012 Не люблю лучевую разводку(((..... имхо А може сказать - за что вы ее так не любите? Ведь это вроде как самая простая в исполнении. Не нужно сложных гидравлических расчетов (они-то нужны, но проще). Проще сбалансировать. Проще в эксплуатации. Допустим, "прохудилась" где-то труба, отключили на коллекторе этот луч и починяем себе спокойно. А при шлейфе нужно "погасить" или весь этаж или по крайней мере половину... Я вот просчитал для своего случая ОБА варианта. Лучевая оказалась дешевле двухтрубной шлейфовой. Хотите попробуйте сами просчитать... В аттаче - планы со шлейфами. И все-таки, прошу назвать хотя бы пару причин вашей неприязни к лучевой разводке... Ну чисто субъективно... СПАСИБО! Посилання на коментар Поділитися на інших сайтах More sharing options...
Korni Опубліковано: 21 березня 2012 Поділитись Опубліковано: 21 березня 2012 .....Хотите попробуйте сами просчитать... Вот такое предложение вызывает, мягко говоря, культурологическое отторжение. Нахватались хрени всякой по вершкам, а теперь специалистов собираетесь экзаменовать?! Фигушки. p.s. я себя к специалистам не отношу. 2 Посилання на коментар Поділитися на інших сайтах More sharing options...
Сергей 31 Опубліковано: 21 березня 2012 Поділитись Опубліковано: 21 березня 2012 Нахватались хрени всякой по вершкам, а теперь специалистов собираетесь экзаменовать?! Фигушки. Правильно, не дадим Катерину обижать. Шутка ли, первая дама теплотехник в наших рядах. ЦЕНИТЬ НУЖНО. 1 Посилання на коментар Поділитися на інших сайтах More sharing options...
Игорь&Ира Опубліковано: 22 березня 2012 Поділитись Опубліковано: 22 березня 2012 ... специалистов собираетесь экзаменовать?! Да, не те сейчас времена пошли. Мастер, который десять лет назад делал в моей квартире всю сантехнику, рассказывал, что каждый год проходит переэкзаменовку на курсах "Киевгорстроя". Посилання на коментар Поділитися на інших сайтах More sharing options...
Катерина Ш Опубліковано: 22 березня 2012 Поділитись Опубліковано: 22 березня 2012 А може сказать - за что вы ее так не любите? И все-таки, прошу назвать хотя бы пару причин вашей неприязни к лучевой разводке... Ну чисто субъективно... СПАСИБО! Легко! 1. Перерасход труб!!!! И не только Вы как эти трубы собираетесь укладывать к каждой батареи???? Прикиньте насколько это удобно и дешево? 2. Чего вдруг у Вас "прохудятся" нормальные трубы???? В частных домах для меня самая оптимальная это нижняя двухтрубная разводка, обычно с несколькими ветками. Хорошему специалисту не составляет никакого труда рассчитать по теплу и гидравлически такую систему, и сбалансировать ее после монтажа. Такая система будет не менее гидравлически устойчива и удобна при применении современных девайсов)))) Честно, считаю, что лучевая разводка - это выкачка денег из заказчика. Добавлено через 23 минуты Ой, забыла добавить о "попробуте просчитать". Я уже пробывала))))) Чтоб внести ясность, вся моя работа - это просчеты, расчеты, пересчеты, проверка чьих-то расчетов. А потом "доказывание" на практике того, что расчеты соответсвуют факту..... 1 Посилання на коментар Поділитися на інших сайтах More sharing options...
Korni Опубліковано: 22 березня 2012 Поділитись Опубліковано: 22 березня 2012 .....Да, не те сейчас времена пошли.... Вообще-то, это не Вам адресовалось. А с такими "экзаменаторами" я каждый день сталкиваюсь.... И дочка моя - в школе. У неё знание английского гораздо выше, чем у преподавателя. Наверное, догадаться не сложно, чем это заканчивается. Посилання на коментар Поділитися на інших сайтах More sharing options...
murava Опубліковано: 22 березня 2012 Поділитись Опубліковано: 22 березня 2012 Честно, считаю, что лучевая разводка - это выкачка денег из заказчика. ... Это далеко не всегда так. И даже более - это всегда далеко не так. Посилання на коментар Поділитися на інших сайтах More sharing options...
Катерина Ш Опубліковано: 22 березня 2012 Поділитись Опубліковано: 22 березня 2012 Это далеко не всегда так. И даже более - это всегда далеко не так. Не буду спорить, есть случае, когда лучевая разводка показана. Но я в своей практике очень часто сталкивалась с тем, когда ее применяли без "показаний" к тому. Не буду говорить, что лучевая - это однозначно плохо. Как любая технология или схема всему есть свое место для применения))) Но нужно рассматривать каждый отдельный случай. Посилання на коментар Поділитися на інших сайтах More sharing options...
murava Опубліковано: 22 березня 2012 Поділитись Опубліковано: 22 березня 2012 Почму бы я делал лучевую. Точка зрения исключительно монтажника с закосом в заказчика: 1. Я заказчик и не хочу отдавать денег за монтаж. Ибо дорого, да. 2. Я монтажник и у меня есть сомнения в трубе. 3. Я монтажник и у меня есть сомнения в фиттинговке для этой трубы. 4. Я монтажник и хочу спокойно спать через пять лет. 5. Я монтажник и беру денег за трассировку по метрам укладки. 6. Я монтажник и мне лень считать гидравлику цепей. 7. Я монтажник и планирую "на потом" сложное управление/покомнатное регулирование/умный дом. 8. Ворох труб - это прекрасно (с) 1 Посилання на коментар Поділитися на інших сайтах More sharing options...
Korni Опубліковано: 22 березня 2012 Поділитись Опубліковано: 22 березня 2012 7. Я монтажник и планирую "на потом" сложное управление/покомнатное регулирование/умный дом. +1 Единственный правильный ответ. Все остальные - ненужные компромиссы. И, заметьте, этот довод ни разу не звучал в ветке - насколько я помню. "укзаменаторы", ёпрс. Посилання на коментар Поділитися на інших сайтах More sharing options...
Сергей 31 Опубліковано: 22 березня 2012 Поділитись Опубліковано: 22 березня 2012 Но нужно рассматривать каждый отдельный случай. Катя, этот вопрос, на форуме политический. Многие заказчики и подрядчики читают одно и то же и уже договорились о коллекторной системе. Многие являются прорабами, а выполняют работы их люди. Вот не заморачиваясь на человеческий фактор и предлагают систему. Некоторые просто делают сами, у таких коллекторная это просто диагноз. И.т.д. На больной мозоль наступаете. 2 Посилання на коментар Поділитися на інших сайтах More sharing options...
Рекомендовані повідомлення
Створіть акаунт або увійдіть у нього для коментування
Ви маєте бути користувачем, щоб залишити коментар
Створити акаунт
Зареєструйтеся для отримання акаунта. Це просто!
Зареєструвати акаунтУвійти
Вже зареєстровані? Увійдіть тут.
Увійти зараз