Dima_dimohod Опубліковано: 18 березня 2013 Поділитись Опубліковано: 18 березня 2013 появилась идея использовать в качестве экрана за F3TD плоский радиатор, подключённый к системе отопления - чтобы тепло уходило в воду. Пока что такой возможности нет, в качестве временного экрана будет кусок нержавейки. Я смогу демонтировать печь через год, когда созрею для радиатора? Наверное, для этого лучше всего была бы труба-телескоп, но в коминвенте её не вижу Хорошая идея с радиатором, стоит попробовать. Лучше, конечно, трубу-телескоп поставить, если планируете снимать. Я в коминвенте заказывал не раз, ищите подход... Посилання на коментар Поділитися на інших сайтах More sharing options...
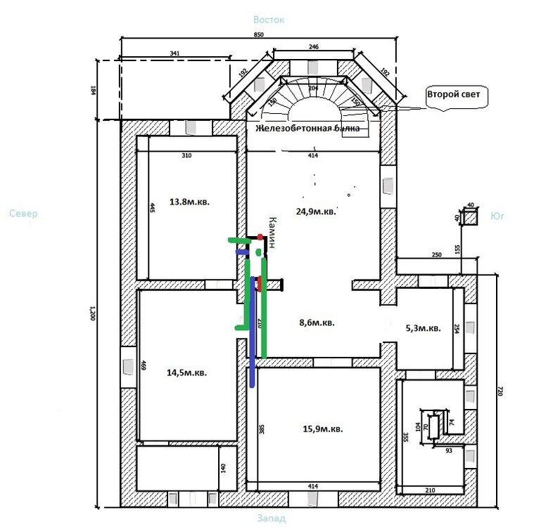
Vlana Опубліковано: 19 березня 2013 Поділитись Опубліковано: 19 березня 2013 Очень нужен совет. В этой ветке по причине того, что выбор топки сделан в пользу 570-й. Была в салоне, еще больше утвердилась в своем выборе. Можно сказать влюбилась в топочку. Но терзают сомнения - не велика ли она по мощности для моего дома. План 1-го этажа в приложении, 2-й практически повторяет первый. Дом мансардного типа, высота потолков 1-го этажа-3м.,2-го-2,70м.Дом кирпич будет утепляться. Для отвода тепла хочу максимально развести воздушные каналы (синим и красным указаны на 1-й этаж, зеленым на 2-й).Или достаточно 6 воздуховодов (поскольку через коридор немного проблематично будет провести трубы). Что предпринять, чтобы было комфортно возле камина в небольшой гостинной (не было жарко). Аккумуляционная масса в этой ситуации отберет тепло от топки, которое направиться по воздуховодам, или еще усугубит ситуацию. Добавлю - внешний подвод воздуха и дымоход Шидель Изокерн уже установлены. Р. S. Прошу давать советы в русле, как избежать возможных негативных последствий установки 570-ки,а не купите другую топку. Если нужны еще какие-то уточнения, буду рада обсудить. Очень надеюсь на добрые советы.Не хотелось бы снова "переживать" муки выбора. Посилання на коментар Поділитися на інших сайтах More sharing options...
Dima_dimohod Опубліковано: 20 березня 2013 Поділитись Опубліковано: 20 березня 2013 Очень нужен совет. В этой ветке по причине того, что выбор топки сделан в пользу 570-й. Была в салоне, еще больше утвердилась в своем выборе. Можно сказать влюбилась в топочку. Но терзают сомнения - не велика ли она по мощности для моего дома. План 1-го этажа в приложении, 2-й практически повторяет первый. Дом мансардного типа, высота потолков 1-го этажа-3м.,2-го-2,70м.Дом кирпич будет утепляться. Для отвода тепла хочу максимально развести воздушные каналы (синим и красным указаны на 1-й этаж, зеленым на 2-й).Или достаточно 6 воздуховодов (поскольку через коридор немного проблематично будет провести трубы). [ATTACH]259343[/ATTACH] Что предпринять, чтобы было комфортно возле камина в небольшой гостинной (не было жарко). Аккумуляционная масса в этой ситуации отберет тепло от топки, которое направиться по воздуховодам, или еще усугубит ситуацию. Добавлю - внешний подвод воздуха и дымоход Шидель Изокерн уже установлены. Р. S. Прошу давать советы в русле, как избежать возможных негативных последствий установки 570-ки,а не купите другую топку. Если нужны еще какие-то уточнения, буду рада обсудить. Очень надеюсь на добрые советы.Не хотелось бы снова "переживать" муки выбора. Выбор у Вас правильный, не переживайте, лучшего продукта пока нет. Перед розжигом камина, чтобы не было жарко, отключаете отопление дома. Аккумуляционная масса растянет использование тепла от топки во времени. Как показывает практика разводки тепла по дому, основная масса тепла идет на 2 этаж и там жарче всегда. Имхо, не рекомендую делать разводку в дальние комнаты комнаты 1 этажа. 1 Посилання на коментар Поділитися на інших сайтах More sharing options...
Alex30 Опубліковано: 20 березня 2013 Поділитись Опубліковано: 20 березня 2013 Имхо, не рекомендую делать разводку в дальние комнаты комнаты 1 этажа. ИЛИ... использовать не гравитационную схему, а принудительную;) В таком случае можно надеятся на успех и в дальних комнатах Посилання на коментар Поділитися на інших сайтах More sharing options...
andr.ey Опубліковано: 20 березня 2013 Поділитись Опубліковано: 20 березня 2013 poljus, позвольте вставить свои 5 копеек (не члену клуба). Присоединюсь ко многим и скажу, что 570 топка оптимальный вариант и своих денег стоит. Очень нужен совет. Я скромно предложу, а Вы поинтересуйтесь дополнительно и перепроверите меня. Так вот: 1) в керамику желательно зайти черной трубой 2мм, а не нержавейкой 1мм 2) между гравитационной и принудительной разводкой разница как межу небом и землей. Принудительная легко считается, много спецов (снипов и метод), легко регулируется и самое главное ниже температура в воздуховодах (настраивается термоклапоном в вентиляторе) и т.д. Гравитационная - лотерея ИМХО, т.е пальцем в небо - дойдет тепло до комнаты или не дойдет, сомнительная зональная регулировка и т.д. По гравитационке прямых расчетов не встречал, но есть аналоги из термодинамики, аэродинамики и самый простой дымовая тяга, а разница между ними в 2 раза (по итогам расчетов). 3) как я уже заметил, когда принудительно снимется тепло с топки (при принудительной системе), то температура в воздуховодах ниже, чем при гравитационной системе, соответственно и в дистрибьюторе, который является частью воздуховодов. В Украине согласно СНиП 2.04.05-91*У ПРИЛОЖЕНИЕ 20 (Обязательное) "ИЗДЕЛИЯ И МАТЕРИАЛЫ ДЛЯ ВОЗДУХОВОДОВ" оцинкованные воздуховоды применяются с характеристикой транспортируемой среды - воздух температурой не более 80 град. Я тут рядом уже писал, что производители рекомендуют (ссылка устарела): - для перемещения воздушных масс с температурой не выше +80°С и относительной влажностью не более 60% предназначаются воздуховоды из оцинкованной стали. - при перемещении воздушного потока, имеющего температуру более 80°С и влажность свыше 60%, рекомендовано использование воздуховодов из листового алюминия и углеродистых сплавов (толщина листа – 1,5 мм). Просто у ютула дистрибьюторы (польские) оцинкованные, а температура в куполе конвекционного кожуха при гравитационной системе примерно 120 гр. 4) металлический дистрибьютор (конвекционный кожух) не единственный вариант, можно топку обложить теплоизоляционными материалами (сделать соответствующий пирог) в виде того же дистрибьютора, если делать разводку тепла. 5) подвод воздуха для горения снаружи и отдельно обеспечить подвод в дистрибьютор вход 750 кв.см и выход 1000 кв.см (при гравитационке) - ну это Вы знаете 6) аккумуляционная масса. Все просто - заряжаем днем и спим ночью. 7) 570 топку покупают из-за хороших отопительных способностей. Но почти все ленятся считать теплопотери собственных же домов и считают по-старинке 1 кВт на 10 кв.м или 100 Вт/кв.м. А у меня всегда возникает вопрс: в каком вы веке живете люди? Есть компьютеры, 20 минут и расчет готов. У многих (кто строит новые дома) должны быть средние теплопотери меньше 30 Вт/кв.м и это средние показатели если следовать нормам утепления. Т.е. посчитайте сами и для себя же теплопотери по каждой комнате. С этого нужно начинать, что бы потом вам оленеводы/менеджеры не делали расчет пальцем в небо на 100 Вт/кв.м, да и пригодится на потом, если нет еще основного отопления или системы кондиционирования . Посилання на коментар Поділитися на інших сайтах More sharing options...
NixoNs Опубліковано: 21 березня 2013 Поділитись Опубліковано: 21 березня 2013 ИЛИ... использовать не гравитационную схему, а принудительную не уверен, сканфорум отговорил меня от принудительной системы... Посилання на коментар Поділитися на інших сайтах More sharing options...
Vlana Опубліковано: 21 березня 2013 Поділитись Опубліковано: 21 березня 2013 Отвечу по пунктам: 1.На Сканфоруме как раз и предлагают их фирменную черную 2-х мм. трубу. 2.Принудительную не хочу и не советуют.Я хочу упростить систему ,а не усложнить.Мне нужен аварийный обогрев дома при довольно частых отключениях эл-ва.У меня уже есть энергозависимый котел,зачем мне зависимый камин.Просто есть естесственное желание максимально использовать имеющиеся выгоды от установки данного очень недешевого агрегата. 3.Боже мой!!! Когда уже думаешь,что ты достаточно вник в тему,чтобы сделать окончательный выбор,понимаешь - я же ничего не знаю из чего сделан официал.дистрибьютор Производители и продаваны нескольких стран толкают какие-то оцинкованые железяки,которые Он и в самом деле подтвердил, что НИ В КОЕМ СЛУЧАЕ для систем РГВ применять оцинковку низзя.......... При таких температурах цинк будет выделяться в виде белого порошка на поверхности листа и его (порошок) восходящими потоками понесет в систему, оттуда - в комнату, из комнаты - в легкие и........ Поистине, меньше знаешь - дольше спишь. 4.Исходя из вышесказанного вопрос по дистрибьютору для меня остался открытым. 5-6.Хоть здесь все понятно. 7.Я прошу совет,а не ликбез. Я вот пытался рассчитать мах длину при гравитационке (мне в отдаленную комнату горизонталь 9 м нужна)... долго считал (наковырял формул штук 5) все марно. Но, примерно, можно, алгоритм тот же, что и при расчете тяги (ссылка устарела)) (расчёт естественной тяги). Т.е. определяем разность давлений, которая зависит от: - высоты (для воздуховодов от камина до чердака, чем выше тем лучше, поэтому и рекомендуют подавать сверху); - разности температур (в дистрибьюторе и комнате потребителе) Например, для моего случая: - (холодный старт) при разности 70 К (70 - 0 гр, важно в формуле пересчет на К) и высоте 5 м созд.давление = 12,94 Па - (хотелка) при разности 50 К (70 - 20) созд.давление = 9,81 Па - (реальность) при разности 30 К (50 - 20) созд.давление = 6,28 Па Смонтировать воздуховоды без изгибов нереально. Округляем каждый изгиб = потеря 2 Па + потеря в трубе... Все вроде неплохо. Да и цифры можно подправить по-выше. Но есть и такие формулы, которые расчетное давление уменьшают в два раза. Уважаемый andr.ey! У меня "воротник завернулся",у меня мороз пошел по спине,мне стало дурно,когда я глубокой вчерашней ночью,на пятом часу непрерывного сидения за монитором, начала,как Вы советуете,сама вникать в расчеты для своего дома,дабы не дать "оленеводам/менеджерам" сбить меня с правильного пути.. Люди добрые! Я ведь всего-навсего спросила,будет ли мне комфортно в таком-то конкретном помещении с такой конкретно понравившейся мне топкой,возле которой я хочу часами проводить время с любимой семьей,использовать максимум ее возможностей и при этом не пожалеть о вложенных финансах. Посилання на коментар Поділитися на інших сайтах More sharing options...
Alex30 Опубліковано: 21 березня 2013 Поділитись Опубліковано: 21 березня 2013 (змінено) не уверен, сканфорум отговорил меня от принудительной системы... Аргументы (Сканфорума)? Добавлено через 2 минуты Люди добрые! Я ведь всего-навсего спросила,будет ли мне комфортно в таком-то конкретном помещении с такой конкретно понравившейся мне топкой,возле которой я хочу часами проводить время с любимой семьей,использовать максимум ее возможностей и при этом не пожалеть о вложенных финансах. с ГЛУБОЧАЙШИМ уважением, НО.... Откуда люди могут знать будет ли вам комфортно? Кто-то любит +25, а кто-то +20 (как я).. Кому-то нравится желтое, а кому-то белое.. Вот как (без расчетов мало мальских) люди смогут вам ответить "будет ли вам комфортно"? Чесс слово... Сейчас прийдет кто-то и скажет: БУДЕТ комфортно... И что? Вы поверите? Змінено 21 березня 2013 користувачем Alex30 Посилання на коментар Поділитися на інших сайтах More sharing options...
NixoNs Опубліковано: 21 березня 2013 Поділитись Опубліковано: 21 березня 2013 Аргументы (Сканфорума)? Аргументы- напрасно выложенные гроши, лучше естественной разводки по их мнению , ничего нет ... Да и по моему теперь тоже... Посилання на коментар Поділитися на інших сайтах More sharing options...
Alex30 Опубліковано: 21 березня 2013 Поділитись Опубліковано: 21 березня 2013 Аргументы- напрасно выложенные гроши, лучше естественной разводки по их мнению , ничего нет ... Да и по моему теперь тоже... У вас гравитационка? Какая максимальная длинна трубы от камина? Посилання на коментар Поділитися на інших сайтах More sharing options...
NixoNs Опубліковано: 21 березня 2013 Поділитись Опубліковано: 21 березня 2013 Какая максимальная длинна трубы от камина? 5 по вертикали и 6 по горизонтали , хотел развести в цоколь принудительно , камин на среднем этаже , отговорили.. 1 Посилання на коментар Поділитися на інших сайтах More sharing options...
Alex30 Опубліковано: 21 березня 2013 Поділитись Опубліковано: 21 березня 2013 5 по вертикали и 6 по горизонтали , хотел развести в цоколь принудительно , камин на среднем этаже , отговорили.. Ого... У меня по горизонтали максимум 3-4 метра... Должно "кочегарить":D:beer: Посилання на коментар Поділитися на інших сайтах More sharing options...
Dima_dimohod Опубліковано: 21 березня 2013 Поділитись Опубліковано: 21 березня 2013 У меня "воротник завернулся",у меня мороз пошел по спине,мне стало дурно,когда я глубокой вчерашней ночью,на пятом часу непрерывного сидения за монитором, начала,как Вы советуете,сама вникать в расчеты для своего дома,дабы не дать "оленеводам/менеджерам" сбить меня с правильного пути.. Люди добрые! Я ведь всего-навсего спросила,будет ли мне комфортно в таком-то конкретном помещении с такой конкретно понравившейся мне топкой,возле которой я хочу часами проводить время с любимой семьей,использовать максимум ее возможностей и при этом не пожалеть о вложенных финансах. Будем Вам комфортно!! Сделаем для Вас дистрибьютор из пищевой (кухонной) нержавейки и будет в семье счастье да любовь... возле камина! ;) 1 Посилання на коментар Поділитися на інших сайтах More sharing options...
andr.ey Опубліковано: 21 березня 2013 Поділитись Опубліковано: 21 березня 2013 Я прошу совет,а не ликбез. Теплопотери считаются просто и точно. Воздушное отопление при гравитационной системе считается на кофейной гуще. Не путайте одно с другим. У меня "воротник завернулся"... Не проверять продавцов/работников - путь к пустой трате денег или переделкам. Не считать свои теплопотери – не считать свои деньги (ИМХО). Например, я менеджер продающий котлы, зачем мне правильно считать Ваши теплопотери (делать лишнюю работу), вдруг у Вас там 30 Вт/кв.м, а не 100 Вт/кв.м и мне нужно будет предлагать более дешевый котел – двойные убытки. Ведь можно сразу втулить дорогой котел из расчета 100 Вт/кв.м , так все считают, и все равно как Вы там будете с этим котлом неадекватным теплопотерям, со всеми вытекающими… Люди добрые! Я ведь всего-навсего спросила,будет ли мне комфортно Комфорт (уют, удобство) каждый определяет для себя. Не будет ли Вам сильно жарко? Так положите меньше дров. Все зависит от температуры на улице, теплопотерь дома, вашей личной комфортной температуры (от 18 до 25 гр) и многих вопросов на которые, по моему, Вы хотели услышать ответы. А я попытался ответить, как пользователь топки со своим видением этих вопросов. К вчерашнему хочу добавить: - конвекционное пространство – это легкие всей системы воздушного отопления на базе камина. В нормальных системах ВО много различных фильтров очистки воздуха начиная от мех.пыли заканчивая бактериями. Следовательно, желательно позаботится о фильтрации, а главное о максимальной чистоте конвекционного пространства, которое заказчик практически не контролирует. - firerock, superizol, silca? ИМХО rockwool хорош для утепления крыш (после герметизации от людей пароизоляцией и гк), но для конвекционного пространства применять не надо. Хотя 2 года назад оцинкованный дистрибьютор утепленный firerock считался нормой. Вата сыпется и пользователь этим вынужден дышать (ведь фильтров нет). Как уже отмечал гуру и ТС Миша в Западной Европе принято использовать silca или superizol. Но может, еще через 2 года мы узнаем какую-нибудь гадость и о них? - дистрибьютор + вата это понятно (в плане крепления), но металлический дистрибьютор + superizol Он и в самом деле подтвердил, что НИ В КОЕМ СЛУЧАЕ для систем РГВ применять оцинковку низзя... Вы цитируйте с контекстом. Это слова В нормируемых системах ВО оцинковка используется повсеместно, но до 80 гр. Зачем ее боятся до такой степени, чтобы полностью заменять на нержавейку? ИМХО не бюджетно. ЗЫ конвекционное пространство – 7 раз отмерь и 1 раз отрежь. Наши топки – вкладыши. История известна. Так не логичней уйти от металлических дистрибьютеров? Т.е. обложить, к примеру газоблоком (или кирпичем), а внутри изолировать superizol. Добавлено через 14 минут Аргументы- напрасно выложенные гроши Если считать по деньгам, в моем случае, получилось одинаково. Т.к. при гравитационке больше труб, колен и переходников. лучше естественной разводки по их мнению , ничего нет ... Да и по моему теперь тоже... Единственный недостаток принудительной 115Вт эл-ва. Как бы зависимость, но на случай отключений есть генератор 2 кВт для освещения и решения вопроса "зависимости". Конструкция вентилятора имеет термоклапан (там двойное назначение) и , в принципе, эту систему можно использовать как упрощенную гравитационную при отключении. Посилання на коментар Поділитися на інших сайтах More sharing options...
Эдуард Днепр Опубліковано: 22 березня 2013 Поділитись Опубліковано: 22 березня 2013 Misha_k, Добрый день, Михаил! Буду приобретать камин Jotul I18 Panorama. По монтажу, благодаря Вам, в общем, все понятно. Осталось одно "но": нужно ли к этой модели устраивать дополнительную приточную вентиляцию (с выводом под топкой), или достаточно будет тех (2х80мм) патрубков, которыми комплектуется эта модель? Спасибо за ответ!!!! Посилання на коментар Поділитися на інших сайтах More sharing options...
Romarsion Опубліковано: 22 березня 2013 Поділитись Опубліковано: 22 березня 2013 (змінено) Люди добрые помогите! Печь Jotul F373 1. Зачем нужны две чугуняки в комплекте? В чудо-jotulовском руководстве из трех книг - 0 информации. Инструкций по монтажу на русском языке нет. Это им огромный минус. 2. Почему оф.сайты позиционируют диаметр дымохода для Jotul F373 в 150мм, а на самом деле он должен быть 170мм ??? При установке ф170мм болгаркой отпиливается внутренний круг на декоративной решетке. При установке трубы ф150мм получается сборка по конденсату с начала топки. Короче такая бредятина... 3. Зачем нужна рукоятка-регулятор с левой стороны? Змінено 22 березня 2013 користувачем Romarsion Посилання на коментар Поділитися на інших сайтах More sharing options...
Stan78 Опубліковано: 22 березня 2013 Поділитись Опубліковано: 22 березня 2013 Люди добрые! Я ведь всего-навсего спросила,будет ли мне комфортно в таком-то конкретном помещении с такой конкретно понравившейся мне топкой,возле которой я хочу часами проводить время с любимой семьей,использовать максимум ее возможностей и при этом не пожалеть о вложенных финансах. Не переживайте, сауны не будет. У меня гостинная около 20 кв.м. Сделана разводка на 2й этаж (гравитационка) Стоит накопитель. Все ваши параметры. Всё нормально. Посилання на коментар Поділитися на інших сайтах More sharing options...
Misha_k Опубліковано: 22 березня 2013 Автор Поділитись Опубліковано: 22 березня 2013 Misha_k, Добрый день, Михаил! Буду приобретать камин Jotul I18 Panorama. По монтажу, благодаря Вам, в общем, все понятно. Осталось одно "но": нужно ли к этой модели устраивать дополнительную приточную вентиляцию (с выводом под топкой), или достаточно будет тех (2х80мм) патрубков, которыми комплектуется эта модель? Спасибо за ответ!!!! Не понял, про "приточную вентиляцию". Вообще то эти два патрубка соединяются в одну трубу сотку и работают как независимый забор воздуха с улицы. Сделайте это обязательно, иначе камин будет брать воздух из помещения.. Добавлено через 3 минуты Люди добрые помогите! Печь Jotul F373 1. Зачем нужны две чугуняки в комплекте? В чудо-jotulовском руководстве из трех книг - 0 информации. Инструкций по монтажу на русском языке нет. Это им огромный минус. 2. Почему оф.сайты позиционируют диаметр дымохода для Jotul F373 в 150мм, а на самом деле он должен быть 170мм ??? При установке ф170мм болгаркой отпиливается внутренний круг на декоративной решетке. При установке трубы ф150мм получается сборка по конденсату с начала топки. Короче такая бредятина... 3. Зачем нужна рукоятка-регулятор с левой стороны? 1 Две эти чугуняки устанавливаются под боковые стекла(см. инструкцию) 2 Труба 150 вставляется вовнутрь. 3 Инструкция на русском у любого дилера 4 Зачем левая ручка (см. инструкцию) 2 Посилання на коментар Поділитися на інших сайтах More sharing options...
Vlana Опубліковано: 22 березня 2013 Поділитись Опубліковано: 22 березня 2013 Не переживайте, сауны не будет. Мне важно услышать реальные отзывы. Это же мне сказали уже в двух каминных салонах. Плюс к этому подсмотрела у Homeowner комната 23 метра, и не скажу, что это самая жаркая комната, все тепло уходит в по воздуховодам на второй этаж, может потому, что у нас есть два прямых вертикальных воздуховода на второй этаж... Выбор каминной топки сделан. Посилання на коментар Поділитися на інших сайтах More sharing options...
spirtik Опубліковано: 23 березня 2013 Поділитись Опубліковано: 23 березня 2013 Не понял, про "приточную вентиляцию". Вообще то эти два патрубка соединяются в одну трубу сотку и работают как независимый забор воздуха с улицы. Сделайте это обязательно, иначе камин будет брать воздух из помещения.. С возвращением Misha_k!!! Очень рад Вас снова слышать Мне на следующей недели будут устанавливать топку И 570, и возможно, будут вопросы. Не пропадайте! Посилання на коментар Поділитися на інших сайтах More sharing options...
Игорь&Ира Опубліковано: 23 березня 2013 Поділитись Опубліковано: 23 березня 2013 Имеется дом в процессе организации инженерных систем. Планировал радиаторную систему отопления и открытый камин. В связи с объективными причинами рассматриваю альтернативный вариант: только топка или печь с разводкой по помещениям (2 этажа, по 3-4 помещения) в качестве единственного или основного (вместе с электрическими радиаторами) источника отопления при сезонном проживании (допустим, до -5С на улице). Вопросы на старте затеи: 1. Бывают ли случаи воровства изделий Jotul? (Цена этих топок намного выше цены газовых котлов). 2. Какие темы на форуме лучше почитать в качестве вводных? 3. Для обсуждения своего случая лучше завести отдельную тему или толкаться в чужих? Посилання на коментар Поділитися на інших сайтах More sharing options...
Gonchik Опубліковано: 23 березня 2013 Поділитись Опубліковано: 23 березня 2013 С возвращением Misha_k!!! Очень рад Вас снова слышать Мне на следующей недели будут устанавливать топку И 570, и возможно, будут вопросы. Не пропадайте! Присоединяюсь, тоже рад слышать. В том, что советы форумчанам будут дельные не сомневаюсь. Пожелание одно - поменьше эмоций - собаки лают, караван идет. Посилання на коментар Поділитися на інших сайтах More sharing options...
Dima_dimohod Опубліковано: 23 березня 2013 Поділитись Опубліковано: 23 березня 2013 Вопросы на старте затеи: 1. Бывают ли случаи воровства изделий Jotul? (Цена этих топок намного выше цены газовых котлов). 2. Какие темы на форуме лучше почитать в качестве вводных? 3. Для обсуждения своего случая лучше завести отдельную тему или толкаться в чужих? 1. Зашитую топку сложно "выдрать" из облицовки, да и вид будет далеко не товарный. Можно пару фишек противовандальных сделать. 2. Всё, что касается Вашего будущего выбора. 3. Лучше заведите свою тему, где будет создаваться история Вашего камина. 1 Посилання на коментар Поділитися на інших сайтах More sharing options...
Игорь&Ира Опубліковано: 23 березня 2013 Поділитись Опубліковано: 23 березня 2013 2. Всё, что касается Вашего будущего выбора. Какой там выбор, если я только на старте? А что в Интернете можете посоветовать с главным упором не на производителя, а на принципы работы системы воздуховодов? Посилання на коментар Поділитися на інших сайтах More sharing options...
Эдуард Днепр Опубліковано: 23 березня 2013 Поділитись Опубліковано: 23 березня 2013 QUOTE=Misha_k;2147701]Не понял, про "приточную вентиляцию". Вообще то эти два патрубка соединяются в одну трубу сотку и работают как независимый забор воздуха с улицы. Сделайте это обязательно, иначе камин будет брать воздух из помещения.. Я имел ввиду, необходимо ли делать под топкой дополнительный патрубок (диам. 100-120мм), или будет достаточно тех двух (2х80), чтобы избежать опрокидывания тяги в доме. Т.е. достаточно ли штатных патрубков для обеспечения необходимого потупления воздуха в топку?обавлено через 3 минуты 1 Две эти чугуняки устанавливаются под боковые стекла(см. инструкцию) 2 Труба 150 вставляется вовнутрь. 3 Инструкция на русском у любого дилера 4 Зачем левая ручка (см. инструкцию)[/QUOT Посилання на коментар Поділитися на інших сайтах More sharing options...
Рекомендовані повідомлення
Створіть акаунт або увійдіть у нього для коментування
Ви маєте бути користувачем, щоб залишити коментар
Створити акаунт
Зареєструйтеся для отримання акаунта. Це просто!
Зареєструвати акаунтУвійти
Вже зареєстровані? Увійдіть тут.
Увійти зараз