Скромный прораб Опубліковано: 1 квітня 2018 Поділитись Опубліковано: 1 квітня 2018 Давайте с азов. А чем цоколь отличается от ленты? И на сколько промерзает грунт? Скорей всего у нас с Вами разные азы, поэтому сразу, опуская ненужные обсуждения, считаю, что увеличение толщины утеплителя непосредственно под чистовой стяжкой, по черновому полу, будет эффективней чем утепление ленты фундамента на эту же толщину. И конечно же без всяких пустот под перекрытием. И хорошо если копка траншеи до ширины 1-1.2 метра необходимость, например для устройства расчетной пятки фундамента 0.9-1метр и есть возможность выполнить утепление ленты, а когда несущая способность грунта позволяет ограничиться шириной пятки и соответственно траншеи 0.5-0.7м, заливают, а потом специально раскапывают на глубину промерзания, что бы утеплить...мрак и невежество((( Посилання на коментар Поділитися на інших сайтах More sharing options...
мастерок Опубліковано: 1 квітня 2018 Поділитись Опубліковано: 1 квітня 2018 Господа профи!Прочтите название темы,здесь стены и фундаменты не обсуждают.Вы лучше объясните мне,любителю,зачем по материковой глине нужна черновая подбетонка или то же перекрытие панелями. 1 Посилання на коментар Поділитися на інших сайтах More sharing options...
Скромный прораб Опубліковано: 1 квітня 2018 Поділитись Опубліковано: 1 квітня 2018 Господа профи!Прочтите название темы,здесь стены и фундаменты не обсуждают.Вы лучше объясните мне,любителю,зачем по материковой глине нужна черновая подбетонка или то же перекрытие панелями. Бетонная подготовка - рудименты и аватизмы.... еще совьетськiх СНиПов, но на них и сейчас можно не плохо подлататься НЕскромному прорабу Посилання на коментар Поділитися на інших сайтах More sharing options...
Технология Строительства Опубліковано: 1 квітня 2018 Поділитись Опубліковано: 1 квітня 2018 или то же перекрытие панелями. Все ровно нужно плиту пускай даже 10 см армировать, и лить бетон и строители как правило дерут за 1 м2. Такая плита будут +- 150 грн/м2 - только работа - вязка арматуры, прием бетона, гидроизоляция пленкой под плитой. Потому в этом случаи может быть дешевле ПК - я не обсуждаю несущую слагаемую, только экономику. Если это будет дешевле - то зачем морочится с плитой которая может при отсутствия трамбовки просесть/потрескаться, толщина плиты из-за грунта может быть разной. И есть еще недостатки. Посилання на коментар Поділитися на інших сайтах More sharing options...
-electron- Опубліковано: 1 квітня 2018 Поділитись Опубліковано: 1 квітня 2018 Господа профи!Прочтите название темы,здесь стены и фундаменты не обсуждают.Вы лучше объясните мне,любителю,зачем по материковой глине нужна черновая подбетонка или то же перекрытие панелями. Це Ви собі робили тому не розумієте. А якщо мова йде про те щоб ВАМ заплатили за роботу, то все стає зовсім по інакшому. Якщо є можливість клієнту зробити більше робіт, то їх і роблять. ;) Посилання на коментар Поділитися на інших сайтах More sharing options...
Serik 1500 Опубліковано: 1 квітня 2018 Поділитись Опубліковано: 1 квітня 2018 Господа профи!Прочтите название темы,здесь стены и фундаменты не обсуждают.Вы лучше объясните мне,любителю,зачем по материковой глине нужна черновая подбетонка или то же перекрытие панелями. Вопрос количества м2, это ж бабки ))) Посилання на коментар Поділитися на інших сайтах More sharing options...
мастерок Опубліковано: 1 квітня 2018 Поділитись Опубліковано: 1 квітня 2018 Це Ви собі робили тому не розумієте. А якщо мова йде про те щоб ВАМ заплатили за роботу, то все стає зовсім по інакшому. Якщо є можливість клієнту зробити більше робіт, то їх і роблять. ;) Не только себе,десятку-другому форумчан тоже так делал,морду пока никто не набил. Посилання на коментар Поділитися на інших сайтах More sharing options...
-electron- Опубліковано: 1 квітня 2018 Поділитись Опубліковано: 1 квітня 2018 Не только себе,десятку-другому форумчан тоже так делал,морду пока никто не набил. Так значить не стояла задача побільше грошей стягнути на різних додаткових роботах. Посилання на коментар Поділитися на інших сайтах More sharing options...
alyak Опубліковано: 2 квітня 2018 Поділитись Опубліковано: 2 квітня 2018 Господа профи!Прочтите название темы,здесь стены и фундаменты не обсуждают.Вы лучше объясните мне,любителю,зачем по материковой глине нужна черновая подбетонка или то же перекрытие панелями. подбетонка - 1. подровнять сделать хорошее основание . 2. мышки , чтоб не сделали норки снизу в утеплитель . Посилання на коментар Поділитися на інших сайтах More sharing options...
мастерок Опубліковано: 2 квітня 2018 Поділитись Опубліковано: 2 квітня 2018 Ну тогда ещё и 3-чтоб грабители подкоп не сделали и сейф через него не вынесли. Мышки не живут на глубинах залегания фундаментов да ещё без харчей,ну и с помощью лазера я сделаю материковое основание ровнее любой подбетонки. Вот когда на объекте внутри обратная засыпки,или кучи мусора с органикой или чернозёмом,тут без вариантов-бетон нужен,но если материковая глина или песок,то вполне можно и сэкономить. 1 Посилання на коментар Поділитися на інших сайтах More sharing options...
alyak Опубліковано: 2 квітня 2018 Поділитись Опубліковано: 2 квітня 2018 Ну тогда ещё и 3-чтоб грабители подкоп не сделали и сейф через него не вынесли. Мышки не живут на глубинах залегания фундаментов да ещё без харчей,ну и с помощью лазера я сделаю материковое основание ровнее любой подбетонки. Вот когда на объекте внутри обратная засыпки,или кучи мусора с органикой или чернозёмом,тут без вариантов-бетон нужен,но если материковая глина или песок,то вполне можно и сэкономить. ой не говорите за мышек ... поверьте это такие твари ... то что вы их не видите это не значит что их нет ... они у меня проникали как нинзя в каменный дом , в сауну ... припрыжками и подкоп для них не проблема ... тепло будут чуять и сделают ... я не хочу с вами дискутировать ... бессмысленно ... вопрос в разных местах по разному стоит ... у нас мышек много . Посилання на коментар Поділитися на інших сайтах More sharing options...
VladRed Опубліковано: 16 квітня 2018 Поділитись Опубліковано: 16 квітня 2018 Коллеги, Давно читал данную тему и запланировал себе пол по грунту в следующей последовательности по схеме Propellera: трамбованный 110 кг плитой грунт (супесь насыпной c проливкой, не родной) геотекстиль 180 щебень 10-40 10-15 см утрамбован плитой. Все это простояло уже пол года. песок выравнивание далее планирую пленку ПЭ плотная в два слоя, 5+5 ЭППС, 8 см стяжка с трубами теплого пола, плитка. Пришли ребята на заливку теплого пола и говорят, что надо на имеющийся щебень 10 см стяжку с арматурой 10мм 200х200 очко. далее также как планировалось. Я понимаю, что кашу маслом не испортишь, но все же будьте добры оцените пожалуйста рациональность данной инвестиции. И вообще вопрос, что дает сетка в один слой? Как на мое видение - работает на растяжение, на изгиб нет. Спасибо. Посилання на коментар Поділитися на інших сайтах More sharing options...
Витэк Опубліковано: 16 квітня 2018 Поділитись Опубліковано: 16 квітня 2018 И вообще вопрос, что дает сетка в один слой? Как на мое видение - работает на растяжение, на изгиб нет. Спасибо. Смотря где она находится. Если внизу,то хоть как-то сдерживает керлинг, если ближе к средине и вверху, то только перестраховка от расползания не качественной смеси. Посилання на коментар Поділитися на інших сайтах More sharing options...
korund Опубліковано: 16 квітня 2018 Поділитись Опубліковано: 16 квітня 2018 Пришли ребята на заливку теплого пола и говорят, что надо на имеющийся щебень 10 см стяжку с арматурой 10мм 200х200 очко. далее также как планировалось. А трубы ТП им на что наматывать??? Вот, заодно и сеточка будет.... По теме: я бы по-любому, в стяжку 7см кинул сетку Ну, хоть 150х150 Ф3мм, но кинул бы.... З,Ы, Несколько раз приходилось долбить перфоратором стяжки разные Так вот, стяжка на из хренового бетона, но с сеткой, бьется намного хуже стяжки из хорошего бетона, но без сетки. А, да, с фиброй - вариант 2. Как без сетки.... Посилання на коментар Поділитися на інших сайтах More sharing options...
-electron- Опубліковано: 16 квітня 2018 Поділитись Опубліковано: 16 квітня 2018 А трубы ТП им на что наматывать??? Вот, заодно и сеточка будет.... По теме: я бы по-любому, в стяжку 7см кинул сетку Ну, хоть 150х150 Ф3мм, но кинул бы.... З,Ы, Несколько раз приходилось долбить перфоратором стяжки разные Так вот, стяжка на из хренового бетона, но с сеткой, бьется намного хуже стяжки из хорошего бетона, но без сетки. А, да, с фиброй - вариант 2. Как без сетки.... Може я не вірно зрозумів але якщо скласти от це щебень 10-40 10-15 см утрамбован плитой. Все это простояло уже пол года. песок выравнивание далее планирую пленку ПЭ плотная в два слоя, 5+5 ЭППС, 8 см стяжка с трубами теплого пола, плитка. з цим Пришли ребята на заливку теплого пола и говорят, что надо на имеющийся щебень 10 см стяжку с арматурой 10мм 200х200 очко. далее также как планировалось. То в мене склалось враження що малось наувазі чорнова стяжка, замість вирівнювання піском. А далі все як було задумано. Чорнова штука хороша. Але от чи потрібна там сітка з арматури то є запитання. На яке відповідь мав би дати конструктор, або хоча б людин яка то все бачила і знає всі можливі нюанси. А не люди з форуму. Посилання на коментар Поділитися на інших сайтах More sharing options...
Скромный прораб Опубліковано: 16 квітня 2018 Поділитись Опубліковано: 16 квітня 2018 Я тоже понял, что речь идет о ЧЕРНОВОЙ стяжке. Мое мнение, если проливали да еще и трамбовали, да еще и с пристрастием..., вполне можно обойтись без чернового пола. Но таки решать лучше на месте - какая высота засыпки, на что засыпалось, состояние... Так сказать, "попробовав на зуб"))) 1 Посилання на коментар Поділитися на інших сайтах More sharing options...
VladRed Опубліковано: 17 квітня 2018 Поділитись Опубліковано: 17 квітня 2018 спасибо за ответы, но ясности всеравно нет. три варианта развития событий: 1 выравнивание песком по щебню и дальше ЭППС и... 2 стяжка черновая по щебню и дальше ЭППС и... 3 стяжка черновая с арматурной сеткой 10мм 200 на 200. Обратная засыпка практически чистой супесью, на высоту ленты фундамента, т.е. на 1200 мм. Трамбовка не послойная только сверху. Грунт внутри дома когда копаешь сначала твердый потом легкий немного влажный. Посилання на коментар Поділитися на інших сайтах More sharing options...
Karalex Опубліковано: 17 квітня 2018 Поділитись Опубліковано: 17 квітня 2018 В мене по трамбованій землі постелена товста плівка 200 плотності, потім десь 8-10см бетонна стяжка чорнова, потім 3см білого 35 ППС, він мякший і вирівнює невеликі нерівності по бетону, потім 3см ЕППС в якому я вкладав труби ГВС і труби до батарей на стінах, потім сітка з кліткою на 12см, яку придюбелив до чорнової стяжки місцями, щоб не бухтіло, до якої й привязував трубу ТП. Перед тим, як засипати чистову стяжку, я маленькими кубиками ЕППС, який все одно залишався, піднімав сітку на пінопластом, щоб сітка була всередині стяжки, а не лежала під нею. Труби в стяжці цілі, провіряв тиском 6 атм повітрям. Але ще котлом не грів. Обійшлися в цьому році грубкою і каміном. Температура підлоги була до 20град. Міряв пірометром. Ясно що біля дверей і в інших закутах було меньше напевне. Не міряв. Посилання на коментар Поділитися на інших сайтах More sharing options...
alyak Опубліковано: 17 квітня 2018 Поділитись Опубліковано: 17 квітня 2018 спасибо за ответы, но ясности всеравно нет. три варианта развития событий: 1 выравнивание песком по щебню и дальше ЭППС и... 2 стяжка черновая по щебню и дальше ЭППС и... 3 стяжка черновая с арматурной сеткой 10мм 200 на 200. Обратная засыпка практически чистой супесью, на высоту ленты фундамента, т.е. на 1200 мм. Трамбовка не послойная только сверху. Грунт внутри дома когда копаешь сначала твердый потом легкий немного влажный. черновая стяжка , она в 2 раза дешевле чистовой , в простонородье - подбетонка , см 3 . потом пленка . потом пенопласт - не обязательно экструдированный . можно взять поплотнее . у меня 35й плотности хорошо пошел . только настоящей , а не ту что парят . потом на нем сетка и трубы . сетку приподымаем на 1-2 см над пенопластом . можно просто в момент заливки . затем 6-8 см стяжки . при этом лучше всего - это бетон , и только верхний 1 см - раствор . делается просто - натягивается бетона грубо , а поверх выливается раствор и стягивается . 1 Посилання на коментар Поділитися на інших сайтах More sharing options...
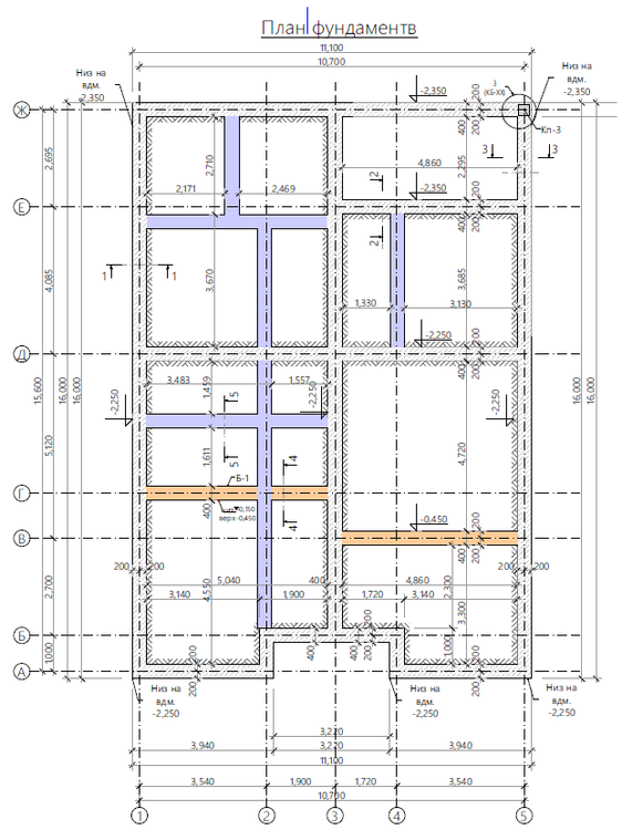
miro2x Опубліковано: 13 травня 2018 Поділитись Опубліковано: 13 травня 2018 Привет, форумчани. На даный момент уже стоит лента фундамента, в верхней части которой арматурный каркас - 5см еще не залит. Произведена обратная засыпка в ленту с послойной трамбовкой. Далее по плану идет слой щебня потом заливка черновой стяжки поверх щебня и поверх ленты. нужен совет по такому пирогу: 1. обратная засыпка глиной с трамбовкой 2. 100мм щебня с трамбовкой 3. гидроизоляция пленкой 160мкм 4. заливка чернового пола 100мм (армирован только под стенами) 5. ЕППС 50мм 6. заливка стяжки чистового пола (без сетки но с добавками фибры) вместе с трубами теплого пола 70-80мм 7. финишное покрытие 20-30мм так как черновая плита толщиной 100мм то не армируется. вопрос в чем: 1. можно ли делать такую связку черновой плиты вместе с лентой фундамента? 2. трамбовку обратной засыпки сумарно в 90см-1метр, делали виброногой, послойно, каждые 30см. Но все равно есть сомнения что грун просядет и тогда учитывая опирание на ленту фундамента как будет работать черновая плита? видержит ли толщина 100мм на длине участка в 5,5м? 3. усиление под несучие стены - полноценная лента. усиление под не несучие (керамоблок) 25см и 12см изображены на рис 1 и 3 (разрез 4 и 5). достаточно ли такого усиления из арматуры 12мм? заранее спасибо. Посилання на коментар Поділитися на інших сайтах More sharing options...
alyak Опубліковано: 13 травня 2018 Поділитись Опубліковано: 13 травня 2018 так как черновая плита толщиной 100мм то не армируется. подбетонка делается 20-30 мм . только чтоб выложить пенопласт . на подбетонку - пленку , нахрена на грунт , типа чтоб мышки добирались ? и уже все остальное сверху . верхнюю плиту лучше сделать из бетона , наносите бетон минус 1 см , а сверху сразу расствор и затираете , получается и прочно и красиво . вам честно насчитали как дороже всего . интересно только если на болоте и то под вопросом . PS. вы коммуникации все завели прежде чем лить стяжки ? 1 Посилання на коментар Поділитися на інших сайтах More sharing options...
wissem Опубліковано: 29 травня 2018 Поділитись Опубліковано: 29 травня 2018 Всем привет! Собираюсь лить черновой пол (или не лить?))) Возникло несколько вопросов. На данный момент разведена канализация заспыпана песком и утрамобовано все. Ранее был засыпан грунт, протрамбован виброногой и потом засыпан песок 10-20см в разных местах по разному. Плодородный слой перед засыпкой грунта снят не был. Один знакомый прораб говорит, что вообще не надо лить черновую стяжку, досыпать песка, трамбовать, кидать эппс и лить чистовую. Я думал, что черновая стяжка маст хев... Вводные данные: 1. Угв довольно глубокий, около 6 метров 2. Планируется теплый пол. 3. На данный момент внутри ленточного фундамента находится утрамбованный грунт и 10-20см песка Я думал делать такой пирог: снизу вверх. 1.грунт 2.песок 3.черновой пол (бетон на песок) 7-8см 4. ЭППС 5см (3+2см в перехлест) 5. чистовая стяжка 5-7см с трубами теплого пола в ней. Вопросы. 1. Делать ли черновой бетонный пол? Это самый главный теперь вопрос) Потому что я не смог ответить на вопрос "зачем?" ничего кроме удобства ходить пока идет стройка и типа распределение нагрузки что-ли.... 2. Где должна быть пленка? На песке перед заливкой чернового пола? На ЭППС перед заливкой чистового? 3. 5см ЭППС хватит ли? (больше не хотелось бы так как расчитывал на общую толщину чистового пола около 10см, а 5см эппс +7см стяжки = уже 12)... Посилання на коментар Поділитися на інших сайтах More sharing options...
Gitan Опубліковано: 29 травня 2018 Поділитись Опубліковано: 29 травня 2018 ... Вопросы. 1. Делать ли черновой бетонный пол? Это самый главный теперь вопрос) Потому что я не смог ответить на вопрос "зачем?" ничего кроме удобства ходить пока идет стройка и типа распределение нагрузки что-ли.... 2. Где должна быть пленка? На песке перед заливкой чернового пола? На ЭППС перед заливкой чистового? 3. 5см ЭППС хватит ли? (больше не хотелось бы так как расчитывал на общую толщину чистового пола около 10см, а 5см эппс +7см стяжки = уже 12)... 1. Делать и армировать минимум сеткой 50*50*3 мм. Ваш теплый пол в 5-7 см не выдержит нагрузки мебели или перегородок. 2. пленка по ЭППС 3. минимум 80 мм, оптимально 100 мм По высотам выкручивайтесь. Увеличивайте проемы и т.д. Сейчас сэкономите, потом будете отапливать землю под домом. 2 Посилання на коментар Поділитися на інших сайтах More sharing options...
wissem Опубліковано: 29 травня 2018 Поділитись Опубліковано: 29 травня 2018 Делать и армировать минимум сеткой 50*50*3 мм. можно аргументировать? спасибо заранее Ваш теплый пол в 5-7 см не выдержит нагрузки мебели или перегородок. Перегородки будут стоять как раз на черновом полу, где под ними будет сделано усиление, утолщение и армировние. К тому же перегородки из газобетона 100мм, они не очень тяжелые по идее. А мебель, это ж какая мебель должна быть чтоб раздавить трубу теплого пола залитую со всех сторон стяжкой) Или я вас неправильно понял? Посилання на коментар Поділитися на інших сайтах More sharing options...
мастерок Опубліковано: 29 травня 2018 Поділитись Опубліковано: 29 травня 2018 Могу аргументировать-обратная засыпка грунтом это самая большая глупость что Вы могли сделать.После этого Ваших 10-20 см песка с трамбовкой что мёртвому припарка и Вам априори необходимо лить черновую плиту,я бы вообще делал её 10 см бетона с армировкой арматурой.Если не хватает высоты на правильный пирог,то выносите назад обратную засыпку. Я всегда за разумную экономию,но это не Ваш случай. 4 Посилання на коментар Поділитися на інших сайтах More sharing options...
Рекомендовані повідомлення
Створіть акаунт або увійдіть у нього для коментування
Ви маєте бути користувачем, щоб залишити коментар
Створити акаунт
Зареєструйтеся для отримання акаунта. Це просто!
Зареєструвати акаунтУвійти
Вже зареєстровані? Увійдіть тут.
Увійти зараз