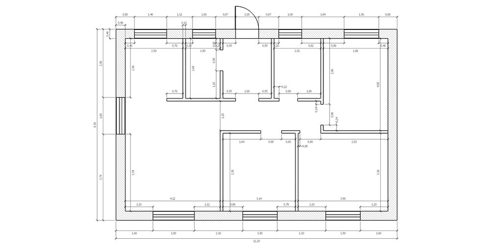
вадим77 Опубліковано: 28 грудня 2016 Поділитись Опубліковано: 28 грудня 2016 Доброго всем дня! Читаю уже почти год форум .Позволил создать себе отдельную тему ибо не хватает решимости ввязаться в стройку. Поэтому прошу совета форумчан стит ли начинать . Похожие темы прочитаны но там иные условия-ограничения бюджета(10 или 20 т.уе) Исходные данные таковы. Есть свой участок в городе. -6 соток.Всем устраивает-ровный, школа рядом . 100м живет Отец-мой вдохновитель по части стройки) на участке выкопал колодец оградил сеткой.Рядом все коммуникации свет,газ,есть. возможность сделать канализацию. Выбрал проект дома 1 этаж ,90 м.кв . без излишеств все по минимуму.газоблок с утеплением и простой крышей. www.proekty-muratordom.com/proekt_zelenyi-sad-variant-iii,2499,0,0.htm?c=53&kdg=1&sd_0=&sd_1=&wsk_1=&pz_1=&pz_0=&pw=0&pc_0=&pc_1=&gd_0=&gd_1=&web_0=&wsk_0=&web_1=&v=1&knd_1=&knd_0=&pn_1=100&pn_0=80&p_0=&p_1=&a=&c=53&g=0&wk_1=&wk_0=&o=&q=&wef_0=&wef_1=&t=1&wo_1=&wo_0= Из бюджета подсобрал немногим более 12 т.уе. и могу позволить откладывать 500-700 дол. в месяц.в дальнейшем(мелкий стабильный бизнес ) На данный момент много лет снимаем жилье посему давно появилось желание создать свое. Квартирами сыт по горло . Планирую строить так 2017г. проэкт-свет на участок-фундамент. 2018 -коробка крыша,окна. 2019 коммуникации отделка Неквалифицированые работы планирую выполнять с отцом.Готов на пару лет стать строителем(небольшой опыт по молодости работы в бригаде есть) Есть бусик для подвоза материалов до 1 т. Многие знакомые говорят- копи бабло не занимайся стройкой дальше будет видно мол война курс и прочая беда,но 10 лет шатаний с семьей по сьемным квартирам уже сидят в печенках да и возраст не детский уже.Понимаю ,что где то возможно это авантюра учитывая ситуацию в стране и др. но хочеться все таки видеть хоть дальнюю но перспективу переезда в свое. Буду признателен за Ваши мнения и советы. 5 Посилання на коментар Поділитися на інших сайтах More sharing options...
schranznbasser Опубліковано: 28 грудня 2016 Поділитись Опубліковано: 28 грудня 2016 у меня ситуация на 98% похожая, только живу в своей квартире и нет толкового участка( тот что есть многим не устраивает). я б не начинал саму стройку до , хотя б, 20к баксов, по500-700 это не долго. коммуникации проводите на участок, их потом, в крайнем случае, продать с участком можно подороже уже. Так же нужно понимать, что за такие деньги можно построить только голую коробку, и то своими руками. Пока вы ее своими руками построите-уже сил не будет(и желания) своими руками строить остальное, а на наемных работников не будет денег. Я рассматриваю для себя покупку домокомплекта из сип панелей с их монтажом. Технология-то дело вкуса, а вот то, что он будет готов за +- 10к баксов, и можно будет самому делать внутрянку. Все имхо Посилання на коментар Поділитися на інших сайтах More sharing options...
sergio Опубліковано: 28 грудня 2016 Поділитись Опубліковано: 28 грудня 2016 Если в ближащие пару лет можете расчитывать на такой доход то можна начинать.Хотя неизвестно сколько может затянуть подключение комуникаций. 5 Посилання на коментар Поділитися на інших сайтах More sharing options...
loader Опубліковано: 28 грудня 2016 Поділитись Опубліковано: 28 грудня 2016 по исходным данным выходит примерно так: - есть 12куе + 6куе на первый год (500х12мес) - нужно для постройки гдето 90*400у.е. (самый минимум) = 36куе - в год можно вложить по 6куе Итого - стройка минимум 4 года (свои ожидания сразу подправляйте). Но тут не учтены комуникации. Значит еще годовой доход. Итого - 5 лет и 40куе. Идем дальше - готовность выполнять неквалифицированые работы этого мало. В таком проекте, имхо можно смело осилить всю коробку например из ГБ, ну м.б. на крышу взять бригаду чтобы за недельку вам сделать. Но даже если отдать кладку каменщикам, что тоже вобщем рационально (поберечь спину), то можно осилить фундамент тем более что сроки не жмут, можно подумать про ряд других работ (как раз более квалифицированых и дорогих). Но в любом случае нужно во все вникать - проектирование, технология выполнения, смета, закупка, выполнение. 6 Посилання на коментар Поділитися на інших сайтах More sharing options...
vbb Опубліковано: 28 грудня 2016 Поділитись Опубліковано: 28 грудня 2016 Чисто теоретически, при стабильном доходе и наличии свободного времени, мне кажется, это возможно. Первый этап много не потянет - грубо,по минимуму- 1т проект, 1т свет-вода, 3т ленточный фундамент. Стены тоже терпимо - пусть, 5т. Крыша тоже пусть будет в 5т. Окна в 3т пусть. Дальше интереснее. Штукатурка-плитка-стяжка- 5-6т. ОВК- пусть 4т. Электрика пусть 2т. Половое покрытие - ну, допустим, 2т. Потолки 2т. Кухня пусть 2 т минимум. Кой-какая мебель 2т. Итого: 38т. Это впритык с финансами. Плюс, минимум, 30% на "непредвиденные расходы". Это все приграмотном проекте, с минимальным привлечением сторонней рабочей силы, ничего не переделывая по ходу работ. ИМХО - все цифры ооочень примерные, минимизированы. Можно начать действительно, завести свет-воду, сделать проект, посчитать по нему смету, прибавить от 30% и дальше уже решать. 1 Посилання на коментар Поділитися на інших сайтах More sharing options...
Olenevod Опубліковано: 28 грудня 2016 Поділитись Опубліковано: 28 грудня 2016 Реальные, трезвые желания. В стране, при нашей жизни лучше, увы, уже не станет, маемо тэ, шо маемо и жить нужно сегодня. Собственно коммуникации нужно подключать уже сейчас в любом случае. С газом я бы пока сильно подумал(собственно уже подумал и пока от него отказался) - отопление электрикой на сегодня по цене +\- равно газовому, что будет дальше - предсказывать трудно, но подключение самого газа + газовое оборудование - это приличная сумма "лишних" денег. С электроотоплением все намного проще - конвекторы, теплый пол и термостаты - стоят копейки, подключаются элементарно. Поэтому из коммуникаций остается свет (15кВт) и вода, канализацию проще сделать вместе с фундаментом. Подключите свет и воду - впору подумать о проекте, хороший проект позволит прилично сэкономить на фундаменте и материалах. Если повезет, то озвученного бюджета хватит еще и на материал для стен. Ну а там втянетесь 6 Посилання на коментар Поділитися на інших сайтах More sharing options...
sergio Опубліковано: 28 грудня 2016 Поділитись Опубліковано: 28 грудня 2016 Чисто теоретически, при стабильном доходе и наличии свободного времени, мне кажется, это возможно. Первый этап много не потянет - грубо,по минимуму- 1т проект, 1т свет-вода, 3т ленточный фундамент. Стены тоже терпимо - пусть, 5т. Крыша тоже пусть будет в 5т. Окна в 3т пусть. Дальше интереснее. Штукатурка-плитка-стяжка- 5-6т. ОВК- пусть 4т. Электрика пусть 2т. Половое покрытие - ну, допустим, 2т. Потолки 2т. Кухня пусть 2 т минимум. Кой-какая мебель 2т. Итого: 38т. Это впритык с финансами. Плюс, минимум, 30% на "непредвиденные расходы". Это все приграмотном проекте, с минимальным привлечением сторонней рабочей силы, ничего не переделывая по ходу работ. ИМХО - все цифры ооочень примерные, минимизированы. Можно начать действительно, завести свет-воду, сделать проект, посчитать по нему смету, прибавить от 30% и дальше уже решать. Не пугайте топикстартера Одесскими ценами.Был недавно у кума. Купил на ак.Вильямса двушку 50 квадратов на последнем этаже в новострое за 70 куе.Вбухал в ремонт 30 куе (ничего особенного)Уменя дом165 метров с отделкой и отоплением обошелся в в 50 куе. 5 Посилання на коментар Поділитися на інших сайтах More sharing options...
vadimv Опубліковано: 28 грудня 2016 Поділитись Опубліковано: 28 грудня 2016 (змінено) Исходные данные таковы. Есть свой участок в городе. -6 соток.Всем устраивает-ровный, школа рядом . 100м живет Отец-мой вдохновитель по части стройки) на участке выкопал колодец оградил сеткой.Рядом все коммуникации свет,газ,есть. возможность сделать канализацию. Выбрал проект дома 1 этаж ,90 м.кв . без излишеств все по минимуму.газоблок с утеплением и простой крышей.Крыша там как раз непростая - фермы для перекрытия большого пролета 9 м. ИМХО, вполне реально сделать 1 или 2 центральные несущие стены, пролеты между ними 4-5 м, простую двухскатную или вальмовую крышу без ферм, и ужаться до 70-88 кв.м. По финансам сразу легче станет. Похожий проект (но с вальмовой крышей) делала Татьяна5 в теме "Черепашки". Плюс там был второй санузел (при трех спальнях их таки лучше делать два). ЗЫ: я начинал с 15 000 у.е. в кармане. Стройка растянулась на 2,5 года. Змінено 28 грудня 2016 користувачем vadimv 4 Посилання на коментар Поділитися на інших сайтах More sharing options...
vbb Опубліковано: 28 грудня 2016 Поділитись Опубліковано: 28 грудня 2016 (змінено) Не пугайте топикстартера Одесскими ценами.Был недавно у кума. Купил на ак.Вильямса двушку 50 квадратов на последнем этаже в новострое за 70 куе.Вбухал в ремонт 30 куе (ничего особенного)Уменя дом165 метров с отделкой и отоплением обошелся в в 50 куе. Так ТС и не указал, в каком месте собирается строиться По поводу проекта- так, чисто житейская рекомендация - или санузел сделать раздельным. или добавить еще один с горшком и умывальником. Змінено 28 грудня 2016 користувачем vbb 3 Посилання на коментар Поділитися на інших сайтах More sharing options...
Артем34 Опубліковано: 28 грудня 2016 Поділитись Опубліковано: 28 грудня 2016 Доброго всем дня! Читаю уже почти год форум .Позволил создать себе отдельную тему ибо не хватает решимости ввязаться в стройку. Поэтому прошу совета форумчан стит ли начинать . Похожие темы прочитаны но там иные условия-ограничения бюджета(10 или 20 т.уе) Исходные данные таковы. Есть свой участок в городе. -6 соток.Всем устраивает-ровный, школа рядом . 100м живет Отец-мой вдохновитель по части стройки) на участке выкопал колодец оградил сеткой.Рядом все коммуникации свет,газ,есть. возможность сделать канализацию. Выбрал проект дома 1 этаж ,90 м.кв . без излишеств все по минимуму.газоблок с утеплением и простой крышей. www.proekty-muratordom.com/proekt_zelenyi-sad-variant-iii,2499,0,0.htm?c=53&kdg=1&sd_0=&sd_1=&wsk_1=&pz_1=&pz_0=&pw=0&pc_0=&pc_1=&gd_0=&gd_1=&web_0=&wsk_0=&web_1=&v=1&knd_1=&knd_0=&pn_1=100&pn_0=80&p_0=&p_1=&a=&c=53&g=0&wk_1=&wk_0=&o=&q=&wef_0=&wef_1=&t=1&wo_1=&wo_0= Из бюджета подсобрал немногим более 12 т.уе. и могу позволить откладывать 500-700 дол. в месяц.в дальнейшем(мелкий стабильный бизнес ) На данный момент много лет снимаем жилье посему давно появилось желание создать свое. Квартирами сыт по горло . Планирую строить так 2017г. проэкт-свет на участок-фундамент. 2018 -коробка крыша,окна. 2019 коммуникации отделка Неквалифицированые работы планирую выполнять с отцом.Готов на пару лет стать строителем(небольшой опыт по молодости работы в бригаде есть) Есть бусик для подвоза материалов до 1 т. Многие знакомые говорят- копи бабло не занимайся стройкой дальше будет видно мол война курс и прочая беда,но 10 лет шатаний с семьей по сьемным квартирам уже сидят в печенках да и возраст не детский уже.Понимаю ,что где то возможно это авантюра учитывая ситуацию в стране и др. но хочеться все таки видеть хоть дальнюю но перспективу переезда в свое. Буду признателен за Ваши мнения и советы. Не слушайте ни кого!!!! А так как Вы запланировали так и действуйте!!!! Самое главное продумайте все до мелких мелочей , что б потом не делать дурную работу!Вам и Вашим строителям! Главное правильный подвод всех коммуникаций и правильный фундамент дома!!! Успехов Вам в Ваших начинаниях!!!!:flag1: 9 Посилання на коментар Поділитися на інших сайтах More sharing options...
soergizmo Опубліковано: 28 грудня 2016 Поділитись Опубліковано: 28 грудня 2016 стоит ли начинатьНачинать стоит с проекта и сметы. А там уже решать стоит или нет оно того. 4 Посилання на коментар Поділитися на інших сайтах More sharing options...
вадим77 Опубліковано: 28 грудня 2016 Автор Поділитись Опубліковано: 28 грудня 2016 благодарю за мения камрады! По расположению участка- славный Житомир град,городская черта. Соглашусь, что как вариант возможно и дальше потихоньку собирать 20-30 куев и оттягивать начало строительства но боюсь что и бакс это бумага и по отношении к материалам будет проигрывать ,сегодня 20 у.е. вроде сумма но что будет через год -два?. Из плюсов у меня есть 1 Вода на участке,(колодец) 2. Свет рядом со столба озвучивали сумму в РЭСЕ 7 тыс за подключение 6. кв хотя понятно что этого мало. в плане 12 кв. 3. кум старый строитель с опытом ,фундамент договорилися сделать с ним и несколькими друзьями своими силами.Оплата только материалов. 4. Толковые строители знаком с ними много лет,строили мне бизнес-обьект ,имеют опыт построек домов и т.д.(хотя к ним не привязан) Подумывал для повышения стартовой суммы продать бусик и выручить еще каких-то 8-10 тыс но люди советуют оставить ибо сгодиться для подвоза материалов. Хотя машины дешевеют и может есть смыслу уже заняться продажей?. Задача минимум поставить дом с минимальными помещениями для проживания (комната туалет спальня?) и дальнейшего устройства остальных помещений и участка. На данный момент приходиться платить за квартиру около 5тыс гр. что тоже сьедает в год тех же пару тыс уе. По поводу изучения проэкта для минимилизации бюджета ,буду советоваться с проэктантом,Ваш совет принят,но не хотелось бы менять конфигурацию и расположение комнат,пересмотрено много всего и пока пришли к этому. Посилання на коментар Поділитися на інших сайтах More sharing options...
Татьяна5 Опубліковано: 28 грудня 2016 Поділитись Опубліковано: 28 грудня 2016 еще каких-то 8-10 тыс но люди советуют оставить ибо сгодиться для подвоза материалов я строю мин 5 домов в год, но не позволяю себе такой роскоши, как свой бусик Логистика должна быть наемной, в итоге это всегда дешевле (с учетом потери стоимости, обслуживания, бензина и тп) ИМХО - 12К мало, но Вы вполне трезво смотрите на вещи, у Вас есть доход - пробуйте Выбранный проект - мил, но заточен под кровельные заводские фермы (если будет двухскатка) или ставить вальму (ставьте вальму, не нужно будет делать фронтоны) Сколько деток в семье? Добавлено через 1 минуту Начинать стоит с проекта и сметы. А там уже решать стоит или нет оно того. С проекта. Смета тут не поможет. Денег точно не хватит. Надо дробить на этапы. 10 Посилання на коментар Поділитися на інших сайтах More sharing options...
vadimv Опубліковано: 28 грудня 2016 Поділитись Опубліковано: 28 грудня 2016 Подумывал для повышения стартовой суммы продать бусик и выручить еще каких-то 8-10 тыс но люди советуют оставить ибо сгодиться для подвоза материалов.Для стройки все равно будет нужна хоть какая-то машина. но не хотелось бы менять конфигурацию и расположение комнатТак ничего менять и не надо: 3 Посилання на коментар Поділитися на інших сайтах More sharing options...
Татьяна5 Опубліковано: 28 грудня 2016 Поділитись Опубліковано: 28 грудня 2016 Так ничего менять и не надо: Этот дом не дешев, ни 20, ни 30К на него не хватит даже с растяжкой. Вот этот - дешевле в постройке, его можно еще пооптимизировать Два санузла - приятно, но не жизненно необходимо при таких бюджетах. Сейчас живем я,муж, дочь, один санузел в доме - никакой проблемы в этом нет. 2 Посилання на коментар Поділитися на інших сайтах More sharing options...
vbb Опубліковано: 28 грудня 2016 Поділитись Опубліковано: 28 грудня 2016 я строю мин 5 домов в год, но не позволяю себе такой роскоши, как свой бусик Логистика должна быть наемной, в итоге это всегда дешевле (с учетом потери стоимости, обслуживания, бензина и тп) ....... Татьяна, при всем уважении, с Вашим размахом. если бы Вы еще и заморачивались подвозкой материалов..... У ТС ситуация другая - многие работы своими силами, так что, ту же плитку, пару мешков цемента, клея, по пути с работы - почему бы и не привезти. Конечно, на этапах фундамента и стен-крыши-окна, бусик не поможет. А вот на отделочные - вполне. Да и если это один транспорт в семье, тоже нехорошо лишаться ) Насчет санузла - ну, как вариант, оставить еще уличный, типа "сортир" )) 2 Посилання на коментар Поділитися на інших сайтах More sharing options...
Татьяна5 Опубліковано: 28 грудня 2016 Поділитись Опубліковано: 28 грудня 2016 если бы Вы еще и заморачивались подвозкой материалов..... вопрос же не заморачивании вопрос в бюджете мероприятия, это просто экономически не целесообразно а мешок цемента прекрасно грузится в легковую машину Житомир - не большой город, вряд ли самая дорогая доставка будет больше 300 грн, вряд ли будет более 30 таких доставок = 9000 грн Добавлено через 1 минуту Да и если это один транспорт в семье, тоже нехорошо лишаться ) легковая за 5 тыс даст +3-5 тыс уе к бюджету мероприятия не решать все равно ТС , если вопрос только в подвозе каких=то материалов - то ради этого точно не стоит оставлять бусик ИМХО, конечно 3 Посилання на коментар Поділитися на інших сайтах More sharing options...
Upiter Опубліковано: 28 грудня 2016 Поділитись Опубліковано: 28 грудня 2016 Предвосхищая, оптимистично-юношеские девизы и максимализм, по типу многих высказываний, которые тут есть - небольшая ремарка о себе. Читал, много всякого разного, очень нравились темы - за 10, 20, и за 30 - ну, уже очень хорошие дома. Четко все понимая, в силу возраста и опыта предыдущих строительств, где-то все равно мелькала мысль, но шож я хуже и ленивее, глупее и аморфнее, тех самых 10,20,30 и т.д... Строится решили давно, поэтому подошел максимально ответственно к подготовке проектов: 1. Дом. 2. ОВК. 3. Элекросети. 4. Внутренняя отделка. 5. Участок. Сметы на каждый этап. Скажу сразу - понимание сколько, будет сразу. Абсурдность фраз, по прикидкам теоретиков, увидите сразу. Я, вообще зануда, поэтому все сам пересчитал (поднял сопромат институтский), сделал объемно-календарный график планирования работ и перепроверил сметы по принципу - стоимость этапа от 1 000 долларов. Все закупки - исключительно сам, исполнителей брал сам. Контроль - 2 раза в день на стройке и в телефонном режиме периодически, в течении дня. Итоги: пока + 5 % на сметах (реально сезонное подорожание, здорово сказалось). косяки - есть! знаю о них, готов с ними жить, так как мелкие. Кратко о доме, для корректности сравнения и потом выложу примерные цифры (учет вплоть до перчаток): Дом 120 кв. м. 1 этаж. Фундамент - лента: 1,2 в глубину, 0,3 в высоту. 100 ЭППС под черновым полом (пока, потом еще добавлю под чистовым). Черновой пол - 180 мм - армированная плита. Стены внешние D300 (375 мм). Внутренние красный кирпич М100 полнотелый. Деревянное перекрытие потолка. Все пленки - Juta и Du Pont. Утепление - 300 мм. Крыша - вальма (дорого! площадь большая) - металлочерепица Arcelor 0,5 мм 275 цинка. Утепление фундамента - 60 мм ЭППС. Отмостка, крыльцо и терасса. Септик - 2 камеры + разводка по дому. Разводка электрики - ЗЦСМ (около 130 точек). Входные двери (простые за 17 500 грн). Окна - Veka - Solar16-4-16-4-16I. Общая площадь остекления около 23 кв.м. Без: проектов, участка, демонтажа и подключения света и газа - на момент - порядка 40 500 долларов. в 500 за метр - реально НЕ ВОЙДУ, в состояние под отделку. ТОЧНО! Мог бы, но цели максимально экономить - нет. P.S. 50 мм ЭППС на мои 120 кв.м. - 12 300 грн - 448 долларов(на момент) как раз то, что вы планируете откладывать в месяц. Просто - как пример. И ЭТО! Всего лишь какой-то там ЭППС. Зарыли и не увидели. И таких открытий там будет - масса! Резюме - мое субъективное мнение - этот бюджет под данный проект, будет сплошным разочарованием и для вас, и для ваших близких. Но может, все же, чудо и есть. У меня не случилось. Много получилось писанины, прошу пардону. 34 Посилання на коментар Поділитися на інших сайтах More sharing options...
Татьяна5 Опубліковано: 28 грудня 2016 Поділитись Опубліковано: 28 грудня 2016 Много получилось писанины, прошу пардону. Большое спасибо за пост! Как раз такие посты - самые ценные, ибо они родились из практики. 8 Посилання на коментар Поділитися на інших сайтах More sharing options...
Ktulxy Опубліковано: 28 грудня 2016 Поділитись Опубліковано: 28 грудня 2016 Однозначно стартовать. Я начинал с точно такой же суммой но с меньшим поступлением в месяц. Не жалею ни разу, на следующий год планируют уже вьезжать. 2 Посилання на коментар Поділитися на інших сайтах More sharing options...
Gitan Опубліковано: 28 грудня 2016 Поділитись Опубліковано: 28 грудня 2016 Продать бус однозначно. Купить авто абы ездило на этапе стройки. Крупные заказы с доставкой , мелочь на своем авто. 2 Посилання на коментар Поділитися на інших сайтах More sharing options...
Популярне повідомлення Татьяна5 Опубліковано: 28 грудня 2016 Популярне повідомлення Поділитись Опубліковано: 28 грудня 2016 Если ТС позволит, я бы потеоретизировала-пописала-попланировала (настроение и время появилось ). Итак, если бы мне надо было минимальным бюджетом построить дом для жизни. Ключевое - выделено, не для понтов, не для капец как круто и удобно, а что бы моей семье было жилье и на это не ушла вся моя жизнь: 1) Площадь дома. Если в семье 1 ребенок - дом на 60-65 м2 будет отличным аналогом 3К квартиры-студио, если в семье двое детей - 65-75 м2, если в семье больше детей - надо больше зарабатывать )); 2) Один этаж. Самостроем будет удобнее строить один этаж. Хоть он и дороже, но свое здоровье важно (упасть при подшивке свесов со второго этажа - больнее). 3) Санузлы - один. Несомненно, 5 санузлов - это капец как удобно, но смотрите правде в глаза - в квартирах небольших мы ж как-то живем с одним санузлом; 4) Проект - в идеале - под двухскатку (без ферм), вальма в металле или шифере дороже. Простой. Тупо простой. В идеале - без котельной, она нафиг в небольшом доме не надо. 5) Потолки 2,6 6) Окна не более 1,4 метра высот, никаких ламинаций и крутых профилей - средний уровень. Входная дверь - Китай 7) Санузел сообщается стенкой с кухней. 8) Электрика - без выпендрежа и без 100 розеток "шоб было" 9) Сантехника - ППР и учиться делать самому 10) Отопление - Электрические конвектора. Никаких теплых полов и прочих крутых радостей. Это клево, оч клево, но денег нет. 5 конвекторов крутой марки станут в 7 000 грн и еще 100 мп кабеля под питание 11) Стенка - ГБ 300 мм. И не утеплять пока денег не будет. Прогрунтовать. Все силы на внутрянку 12) Вентиляция - выходы в стенку 13) Полы - Пенопаст 100 мм и стяжка 14) Кровля - утепление по перекрытию 250 мм любого утеплителя. Порою, мы слишком сильно заморачиваемся. Надо будет - еще 100 докатаете через 10 лет. 15) Кровля двухскатка - покрытие шифер, в крайнем случае - металл 16) Внутренние перестенки - ГБ 15 см. Проектировать так, что бы на них поменьше чего-то висело. 17) Штукатурка - ручками, Ротбанд, сделать высокими требования к кладке ГБ, тогда сильно съэкономите на штукатурке. Этапы работ: 1) Первый год - фундамент, отмостка, черновой пол, стенки, перестенки, армопояс, кровля (свесы и водосточка - попозже), отливы - это самый простой этап работ. Выберете проект - Вам хватит 12К. НИКАКИХ извратов, помните, что денег ОЧЕНЬ мало, не слушайте жену, не пытайтесь впендюлить эркеры, ломанные крыши и тп. 2) Второй год - окна, двери, стяжка, разводка сантехники, разводка электрики, штукатурка, утепление потолков 3) Обои, двери, натяжные потолки, розетки, сантехника - въехали 4) Любые наружные работы - утепление фасада и штукатурка, свесы, водосток 5) Что угодно дальше 52 Посилання на коментар Поділитися на інших сайтах More sharing options...
Olenevod Опубліковано: 28 грудня 2016 Поділитись Опубліковано: 28 грудня 2016 я строю мин 5 домов в год, но не позволяю себе такой роскоши, как свой бусик Именно, когда 5 домов в год - бусик и не нужен, поставки оптимизированы и централизованы, а когда сам, для себя, за 3-4 года - иногда не хватает. Всякие цементы-штукатурки нет смысла брать машинонормами, т.к. за неделю выработаешь 20-30 мешков - их и беру, и оно всегда свеженькое. Хотя легковушка с прицепом выручает, но бус удобней. Если менять, то на что то совсем бюджетное, типа жигуль-таврия, а менять бус на живую иномарку - шило на мыло. А вот насчет крыши - да, я б сильно подумал. Пролеты умножают смету. Как вариант - делать как у меня, по центру дома - колонна из кирпича, на ней лежат два 22х швеллера - они заменяют перестенок и уменьшают пролет до стандартных 4.5метра досок, ну и стропила соотв. в 6 метров укладываются. 3 Посилання на коментар Поділитися на інших сайтах More sharing options...
vbb Опубліковано: 28 грудня 2016 Поділитись Опубліковано: 28 грудня 2016 ...... Я, вообще зануда, поэтому все сам пересчитал ..... Но может, все же, чудо и есть. У меня не случилось. Много получилось писанины, прошу пардону. Ну вот смотрите: 120м кв против 90, 36% разницы = 25920 грубо на Ваш момент. Согласен, это некорректно.Где-то будет меньше, где-то больше, но Мог бы, но цели максимально экономить - нет. Так, что есть место для "оптимизации" (с) И это неплохо стыкуется с моими расчетами (плюс-минус лапоть) Добавлено через 9 минут Если ТС позволит, я бы потеоретизировала-пописала-попланировала (настроение и время появилось ). Итак, если бы мне надо было минимальным бюджетом построить дом для жизни. Ключевое - выделено, не для понтов, не для капец как круто и удобно, а что бы моей семье было жилье и на это не ушла вся моя жизнь: ....... Этапы работ: 1) Первый год - фундамент, отмостка, черновой пол, стенки, перестенки, армопояс, кровля (свесы и водосточка - попозже), отливы - это самый простой этап работ. Выберете проект - Вам хватит 12К. НИКАКИХ извратов, помните, что денег ОЧЕНЬ мало, не слушайте жену, не пытайтесь впендюлить эркеры, ломанные крыши и тп. 2) Второй год - окна, двери, стяжка, разводка сантехники, разводка электрики, штукатурка, утепление потолков 3) Обои, двери, натяжные потолки, розетки, сантехника - въехали 4) Любые наружные работы - утепление фасада и штукатурка, свесы, водосток 5) Что угодно дальше Очень толково и практично! Единственно, я в сомнениях, что на первый этап хватит 12к. Все-таки, я бы его на два разделил - стены и крышу отдельно. Там ведь еще коммуникации надо, проект, бумажки - оно тоже время забирает и деньги... Посилання на коментар Поділитися на інших сайтах More sharing options...
Olenevod Опубліковано: 28 грудня 2016 Поділитись Опубліковано: 28 грудня 2016 я бы потеоретизировала-пописала-попланировала Почти гениально, но от теплых полов я бы так запросто не отказывался. Для тех, кто привык жить в квартире - пол в доме на первом этаже капец какой холодный, как его не утепляй. Поэтому или всю жизнь ходить по дому в обуви или теплые полы. Конвекторы тогда не нужны, сумма вырастет совсем незначительно. Управление - китайскими термостатами (недавно совсем брал по 300грн с Али) - по термостату на помещение. Входная дверь - можно и китайца, но если есть сварочник и натхнення, на ютубе есть шикарный ролик "железная дверь за 1час 10 минут" - будет точно лучше китайца и обойдется втрое дешевле. Если газоблок уложен нормально - штукатурка превращается в шпаклевку. Когда стена гуляет по плоскости в пределах 5мм - никакие маяки не нужны, они только набивают толщину - просто финишный слой на правило и ровняем ручками в два прохода, сначала по вертикали, потом по горизонтали. Экономия принципиальная, то, что тут писали в 2куе, превращается в 2-3 тыщи гривен и неделю отпуска. 5 Посилання на коментар Поділитися на інших сайтах More sharing options...
Рекомендовані повідомлення
Створіть акаунт або увійдіть у нього для коментування
Ви маєте бути користувачем, щоб залишити коментар
Створити акаунт
Зареєструйтеся для отримання акаунта. Це просто!
Зареєструвати акаунтУвійти
Вже зареєстровані? Увійдіть тут.
Увійти зараз