jenkins Опубліковано: 26 грудня 2017 Поділитись Опубліковано: 26 грудня 2017 Добавить краситель и будет ок. А вообще эстетикой там и пахнут не будет от грязи и снега Посилання на коментар Поділитися на інших сайтах More sharing options...
-electron- Опубліковано: 26 грудня 2017 Поділитись Опубліковано: 26 грудня 2017 Добавить краситель и будет ок. А вообще эстетикой там и пахнут не будет от грязи и снега Звідкіля сніг в нормальному гаражі? ТС писав про гараж а не навіс. Якщо таки гараж то зробити стік води. Залити стяжку. А зверху можна поліуеританове покриття. В пропелера можна мікроцемент купити. Або зробити стяжку як в гіпермаркетах. Загалом варіантів купа. Протрамбовану основу ніхто не відміняв. 1 Посилання на коментар Поділитися на інших сайтах More sharing options...
Tamburello Опубліковано: 26 грудня 2017 Поділитись Опубліковано: 26 грудня 2017 Так можно с дверями и окнами поставить дом под охрану на пульт. И уже под охраной делать все внутренние работы. Себе так и делал. унесут счетчик.... проверено Посилання на коментар Поділитися на інших сайтах More sharing options...
-electron- Опубліковано: 27 грудня 2017 Поділитись Опубліковано: 27 грудня 2017 унесут счетчик.... проверено Тоді саме краще взагалі не будуватись..... Все вкрадуть.:D 1 Посилання на коментар Поділитися на інших сайтах More sharing options...
Tamburello Опубліковано: 27 грудня 2017 Поділитись Опубліковано: 27 грудня 2017 Тоді саме краще взагалі не будуватись..... Все вкрадуть.:D шикарный вывод, чё Посилання на коментар Поділитися на інших сайтах More sharing options...
-electron- Опубліковано: 27 грудня 2017 Поділитись Опубліковано: 27 грудня 2017 шикарный вывод, чё Якщо на любий пост відповідь одна можуть вкрасти. То в мене іншого виводу немає. Поставити вікна? Вкрадуть Поставити сигналку вкрадуть. До речі а лічильник вкрадуть виключно якщо сигналка буде? А якщо намає то лічильник нікому не цікавий.:lol: Так можно с дверями и окнами поставить дом под охрану на пульт. И уже под охраной делать все внутренние работы. Себе так и делал.унесут счетчик.... проверено Посилання на коментар Поділитися на інших сайтах More sharing options...
Tamburello Опубліковано: 27 грудня 2017 Поділитись Опубліковано: 27 грудня 2017 До речі а лічильник вкрадуть виключно якщо сигналка буде? А якщо намає то лічильник нікому не цікавий.:lol: шикарный вывод-2 Посилання на коментар Поділитися на інших сайтах More sharing options...
xPavelx Опубліковано: 27 грудня 2017 Автор Поділитись Опубліковано: 27 грудня 2017 Были скидки, я повелся и зачем то купил ванну :D сегодня ее привезли, буду теперь хранить ее год до установки Но есть и плюсы, выводы канализации сделал конкретно под эту модель 4 Посилання на коментар Поділитися на інших сайтах More sharing options...
Narval Опубліковано: 27 грудня 2017 Поділитись Опубліковано: 27 грудня 2017 Были скидки, я повелся и зачем то купил ванну :D сегодня ее привезли, буду теперь хранить ее год до установки Но есть и плюсы, выводы канализации сделал конкретно под эту модель а в магазине нельзя было похранить? Есть гараж. Опять же у вас есть возможность запереть ее на чердак в доме. Это лучше - под нее выводы, и потом не покупать дорого. Посилання на коментар Поділитися на інших сайтах More sharing options...
xPavelx Опубліковано: 27 грудня 2017 Автор Поділитись Опубліковано: 27 грудня 2017 а в магазине нельзя было похранить? Есть гараж. Опять же у вас есть возможность запереть ее на чердак в доме. Это лучше - под нее выводы, и потом не покупать дорого. В магазине нельзя, в гараже побоялся так как он неотапливаемый. Но дизайнер предложила поставить к ней на хранение, за что ей спасибо, у нее и оставил до весны Посилання на коментар Поділитися на інших сайтах More sharing options...
dushes86 Опубліковано: 27 грудня 2017 Поділитись Опубліковано: 27 грудня 2017 Что за производитель / модель? Врезная? Посилання на коментар Поділитися на інших сайтах More sharing options...
xPavelx Опубліковано: 27 грудня 2017 Автор Поділитись Опубліковано: 27 грудня 2017 Что за производитель / модель? Врезная? ванна отдельностоящая Volle (12-22-117) 1 Посилання на коментар Поділитися на інших сайтах More sharing options...
xPavelx Опубліковано: 29 грудня 2017 Автор Поділитись Опубліковано: 29 грудня 2017 Хотим сделать в детской второй уровень над кроватью. Ниже картинка как это выглядит на 3д визуализации. Как можно закрепить эту конструкцию в стене из газобетона ? Посилання на коментар Поділитися на інших сайтах More sharing options...
-electron- Опубліковано: 29 грудня 2017 Поділитись Опубліковано: 29 грудня 2017 Хотим сделать в детской второй уровень над кроватью. Ниже картинка как это выглядит на 3д визуализации. Как можно закрепить эту конструкцию в стене из газобетона ? Я б стійки зробив для надійності. Їх обіграти якось. Але тоді стилістика ліжка має бути іншою. Можна типа під старе дерево (стиль кантрі наприклад). Якщо до цього добавити стійки то буде не дуже цікаво. Хоча поки писав тут думка прилетіла. От ту книжкову полицю праворуч зробити у вигляді букви Г тоді буде підпорка для правої сторони. Або розвернути вздовж стіни до вікна. Над лівою треба думати. Плюс самі східці можна як підпорку використати. Або можна цю кріпити. Там кріпильні елементи будуть працювати не на виривання, а на зріз. Тому треба щоб вони не "прорізали" ГБ під вагою конструкції і дітей які там гратись будуть. Я бачу самий простий спосіб уникнути цього це збільшити кількість кріплень, щоб зменшити тиск від них на матеріал стін. 1 Посилання на коментар Поділитися на інших сайтах More sharing options...
yurriy Опубліковано: 29 грудня 2017 Поділитись Опубліковано: 29 грудня 2017 Как можно закрепить эту конструкцию в стене из газобетона ? Шпильки М10 на химанкер. Глубина вклеивания 150+ мм. 1 Посилання на коментар Поділитися на інших сайтах More sharing options...
Vikctor Опубліковано: 29 грудня 2017 Поділитись Опубліковано: 29 грудня 2017 Шпильки М10 на химанкер. Глубина вклеивания 150+ мм. Я бы своего ребёнка при этом снизу не положил бы... 2 Посилання на коментар Поділитися на інших сайтах More sharing options...
StNick Опубліковано: 29 грудня 2017 Поділитись Опубліковано: 29 грудня 2017 Я бы своего ребёнка при этом снизу не положил бы... тут видно задумано что вся конструкция будет подпираться вот этой вот лесенькой... там вроде зуб на картинке сделан Посилання на коментар Поділитися на інших сайтах More sharing options...
yurriy Опубліковано: 29 грудня 2017 Поділитись Опубліковано: 29 грудня 2017 Я бы своего ребёнка при этом снизу не положил бы... Да ладно, там же лестница посередине как стойка работает. В чем опасность? На срез шпилька на химанкере нормально работает. У меня на террасе опорная балка навеса таким способом закреплена. У меня 130 кг веса, хожу по навесу спокойно. Посилання на коментар Поділитися на інших сайтах More sharing options...
Vikctor Опубліковано: 29 грудня 2017 Поділитись Опубліковано: 29 грудня 2017 тут видно задумано что вся конструкция будет подпираться вот этой вот лесенькой... там вроде зуб на картинке сделан Да ладно, там же лестница посередине как стойка работает. В чем опасность? На срез шпилька на химанкере нормально работает. У меня на террасе опорная балка навеса таким способом закреплена. У меня 130 кг веса, хожу по навесу спокойно. Я не конструктор, но мне сложно представить, что наклонная лестница, стоящая на ламинате через ковролин, выполняет роль опоры... Висящая кровать похоже крепится к стенам с трёх сторон. Отсюда её нелепо большая длина как для детской кровати. На кирпичных стенах я бы такое закрепил и не парился. В случае с ГБ можно ведь по другому обыграть. Например декоративные стойки с обоих торцов кровати. Возможно в виде каких-то шкафчиков, чтобы функционально было. Там ведь всё равно нижняя кровать не очень длинная. На ту длинную кровать сверху сразу видно - залезут все детки, пришедшие в гости. лучшего места поиграться и не придумать. Ну его нафиг все эти шпильки в такой ситуации... 1 Посилання на коментар Поділитися на інших сайтах More sharing options...
Tamburello Опубліковано: 29 грудня 2017 Поділитись Опубліковано: 29 грудня 2017 Я не конструктор, но мне сложно представить, что наклонная лестница, стоящая на ламинате через ковролин, выполняет роль опоры... Висящая кровать похоже крепится к стенам с трёх сторон. Отсюда её нелепо большая длина как для детской кровати. На кирпичных стенах я бы такое закрепил и не парился. В случае с ГБ можно ведь по другому обыграть. Например декоративные стойки с обоих торцов кровати. Возможно в виде каких-то шкафчиков, чтобы функционально было. Там ведь всё равно нижняя кровать не очень длинная. На ту длинную кровать сверху сразу видно - залезут все детки, пришедшие в гости. лучшего места поиграться и не придумать. Ну его нафиг все эти шпильки в такой ситуации... а зачем строить дом из газоблока,если настолько не верите этому материалу? Посилання на коментар Поділитися на інших сайтах More sharing options...
Vikctor Опубліковано: 29 грудня 2017 Поділитись Опубліковано: 29 грудня 2017 а зачем строить дом из газоблока,если настолько не верите этому материалу? Я кровати вешать не планирую. И материал выбирал, чётко понимая его плюсы и минусы. 2 Посилання на коментар Поділитися на інших сайтах More sharing options...
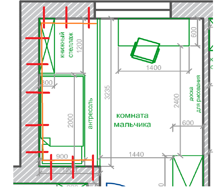
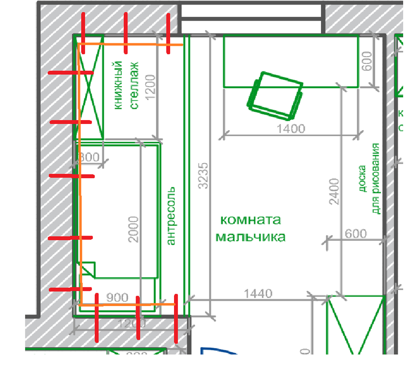
xPavelx Опубліковано: 29 грудня 2017 Автор Поділитись Опубліковано: 29 грудня 2017 Я немного наврал, та стена, что возле изголовья кровати из кирпича, 2 другие из газобетона. Получается что у изголовья кирпич, в противоположной стороне шкаф. Что если сделать так: 1. просверлить в стене отверстия по 30см в глубину диаметром 16мм. Вставить туда стержни арматуры ф16 длинной 40см. Т.е. вылет арматуры будет сантиметров 10. Показано красными линиями на рисунке. 2. повторить операцию 1 с шагом, ну допустим 50см. 3. сварить всю арматуру в единый каркас. Показано оранжевой линией на рисунке. Это объединит конструкцию в единое целое и стержни арматуры не будут болтаться сами по себе. Посилання на коментар Поділитися на інших сайтах More sharing options...
xPavelx Опубліковано: 29 грудня 2017 Автор Поділитись Опубліковано: 29 грудня 2017 Я кровати вешать не планирую. И материал выбирал, чётко понимая его плюсы и минусы. это не висящая кровать. Спать там никто не будет, просто дополнительная игровая зона для детей Посилання на коментар Поділитися на інших сайтах More sharing options...
mastervovik Опубліковано: 29 грудня 2017 Поділитись Опубліковано: 29 грудня 2017 это не висящая кровать. Спать там никто не будет, просто дополнительная игровая зона для детей Это еще хуже чем кровать;) Посилання на коментар Поділитися на інших сайтах More sharing options...
Tamburello Опубліковано: 29 грудня 2017 Поділитись Опубліковано: 29 грудня 2017 Я кровати вешать не планирую. И материал выбирал, чётко понимая его плюсы и минусы. к газобетону лестницы вешают монолитные. дмод вон вообще на химанкера всю оболочку приклеил 1 Посилання на коментар Поділитися на інших сайтах More sharing options...
Рекомендовані повідомлення
Створіть акаунт або увійдіть у нього для коментування
Ви маєте бути користувачем, щоб залишити коментар
Створити акаунт
Зареєструйтеся для отримання акаунта. Це просто!
Зареєструвати акаунтУвійти
Вже зареєстровані? Увійдіть тут.
Увійти зараз