shneider_vova Опубліковано: 11 квітня 2019 Поділитись Опубліковано: 11 квітня 2019 Вернемся к отоплению. По проекту, одного теплого пола для отопления маловато, получается недогрев. Возникла мысль, не использовать ли трубу 20мм вместо 16 для увеличения теплоотдачи? Или это особо ничего не даст? Еще вопрос по производителям материалов. Монтажник предложил вариант Джакомини - они делают трубу Реx-r, ну и коллектора и прочее. Это ок? ничего не даст. это дает плюс к гидродинамике только (грубо, можно контур сделать длинее) 1 Посилання на коментар Поділитися на інших сайтах More sharing options...
murava Опубліковано: 11 квітня 2019 Поділитись Опубліковано: 11 квітня 2019 Вернемся к отоплению. По проекту, одного теплого пола для отопления маловато, получается недогрев. Возникла мысль, не использовать ли трубу 20мм вместо 16 для увеличения теплоотдачи? Или это особо ничего не даст? Еще вопрос по производителям материалов. Монтажник предложил вариант Джакомини - они делают трубу Реx-r, ну и коллектора и прочее. Это ок? Недостача по всем комнатам или только по какойто одной? Это системная штука и сколько в %% эта недостача, для каких комнат? Они-то ее, трубу, делают...но это не точно они производители поделок из латуни - в это они умеют хорошо. А в трубу не очень По цене..а зачем? Оно не будет дешевле данфоса в арматуре, это почти стопроцентно. В Вашей топологии смесительных узлов не нужно, а коллекторы у них не дешевле + они не евроконусные, будет подвязка только на их гайки. ничего не даст. это дает плюс к гидродинамике только (грубо, можно контур сделать длинее) Помилуйте, замена на 20 очень много даст, если смотреть формально : при одинаковом шаге укладки почти +30% к мощности. Другой вопрос, что мотнуть 20ку шагом даже в 150 , да на мелких площадях - это очень яркая, насыщенная и разнообразная половая жизнь... ... Еще вопрос по производителям материалов. Монтажник предложил вариант Джакомини - они делают трубу Реx-r, ну и коллектора и прочее. Это ок? Внимательно изучите этот аспект, хотя его я десятки раз описывал, но я тут с граблями стою уже долго, а застройщики меняются Могут быть лютые обознатушки. Ставим спасибки, не стесняемся 9 Посилання на коментар Поділитися на інших сайтах More sharing options...
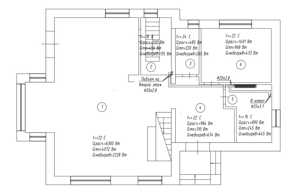
dushes86 Опубліковано: 11 квітня 2019 Автор Поділитись Опубліковано: 11 квітня 2019 Недогрев по проекту по всем помещениям получился. например, на большую кухню-гостинную в 55м2 по проекту получился недогрев 2.2квт. на маленький санузел 3.5м2 - 0.2квт. Посилання на коментар Поділитися на інших сайтах More sharing options...
dushes86 Опубліковано: 11 квітня 2019 Автор Поділитись Опубліковано: 11 квітня 2019 вот картинки проектные: Посилання на коментар Поділитися на інших сайтах More sharing options...
murava Опубліковано: 11 квітня 2019 Поділитись Опубліковано: 11 квітня 2019 Ну, решение дефицита тепла можно пробовать решать следующими способами: 1. Проверить на какую темп считано. Может поднятие носителя на пару грд решает этот вопрос, учитывая, что это не так и часто прийдется делать, поскольку холодных зим у нас немного. 2. Пробовать делать шаг поменьше до удобоваримого, трубу побольше, учитывать еще и п.1. 3. Добавлять радиаторы в режимах 50/30 или 50/40 4. Уходить в обогрев стенами. 1 Посилання на коментар Поділитися на інших сайтах More sharing options...
dushes86 Опубліковано: 11 квітня 2019 Автор Поділитись Опубліковано: 11 квітня 2019 На случай "войны" я подвел розеточки под электроконвекторы во все комнаты. Больше трубы намотать не очень выйдет из-за длины некоторых контуров, есть парочка длиной около 80м. Хотя остальные можно и гуще намотать. Во и пришла мысль оставить те же длины контуров, и при этом увеличить диаметр трубки Посилання на коментар Поділитися на інших сайтах More sharing options...
shneider_vova Опубліковано: 11 квітня 2019 Поділитись Опубліковано: 11 квітня 2019 считайте на +20 в комнате - это +15-20 процентов к теплоотдаче. Посилання на коментар Поділитися на інших сайтах More sharing options...
dushes86 Опубліковано: 11 квітня 2019 Автор Поділитись Опубліковано: 11 квітня 2019 считайте на +20 в комнате - это +15-20 процентов к теплоотдаче. не очень понял. считали на +22 в комнатах. как пересчет повлияет на теплоотдачу? Посилання на коментар Поділитися на інших сайтах More sharing options...
shneider_vova Опубліковано: 11 квітня 2019 Поділитись Опубліковано: 11 квітня 2019 не очень понял. считали на +22 в комнатах. как пересчет повлияет на теплоотдачу? теплый пол работает на разницу температур пола и воздуха. При температуре пола 27 и воздуха 22 - разница 5 градусов. При 27 и 20 - 7 градусов. Чем больше разница, тем больше теплосъем с 1 м2. Посилання на коментар Поділитися на інших сайтах More sharing options...
Narval Опубліковано: 11 квітня 2019 Поділитись Опубліковано: 11 квітня 2019 теплый пол работает на разницу температур пола и воздуха. При температуре пола 27 и воздуха 22 - разница 5 градусов. При 27 и 20 - 7 градусов. Чем больше разница, тем больше теплосъем с 1 м2. Ну тут еще нужна мощность самого котла. Чтоб ее хватило. Посилання на коментар Поділитися на інших сайтах More sharing options...
dushes86 Опубліковано: 11 квітня 2019 Автор Поділитись Опубліковано: 11 квітня 2019 теплый пол работает на разницу температур пола и воздуха. При температуре пола 27 и воздуха 22 - разница 5 градусов. При 27 и 20 - 7 градусов. Чем больше разница, тем больше теплосъем с 1 м2. Ну если мне надо 24 в ванной иметь, то значит так и считать нужно... А так да, в спальнях и гостинной нам и 18 вполне комфортно. Добавлено через 46 секунд Ну тут еще нужна мощность самого котла. Чтоб ее хватило. Котла хватает с запасом, он на 24квт. Посилання на коментар Поділитися на інших сайтах More sharing options...
shneider_vova Опубліковано: 11 квітня 2019 Поділитись Опубліковано: 11 квітня 2019 В ванной, да, надо побольше, но там есть полотенчик. Лучше электрический - водяной намного дороже получается. 2 Посилання на коментар Поділитися на інших сайтах More sharing options...
murava Опубліковано: 11 квітня 2019 Поділитись Опубліковано: 11 квітня 2019 Между прочим, я научился за последнее время привозить практически что угодно из каталога Джакомини - даже всякие краны под пайку из недр этой толстой книженции. Но ждать реально долго: месяц-полтора. Но, может это кому-то и не так чтобы проблема 1 Посилання на коментар Поділитися на інших сайтах More sharing options...
dushes86 Опубліковано: 11 квітня 2019 Автор Поділитись Опубліковано: 11 квітня 2019 Я вот так и не понял, надо мне трубу 20 ставить, чи не нада Посилання на коментар Поділитися на інших сайтах More sharing options...
murava Опубліковано: 11 квітня 2019 Поділитись Опубліковано: 11 квітня 2019 Вроде нинада. Но это не точно. 3 Посилання на коментар Поділитися на інших сайтах More sharing options...
softline Опубліковано: 11 квітня 2019 Поділитись Опубліковано: 11 квітня 2019 Я вот так и не понял, надо мне трубу 20 ставить, чи не нада А вы проект сами не пересчитывали? С окнами как я понял , у вас все достаточно хорошо. На полу 100мм утеплителя будет ? Чердак, перекрытие? Может пойти путём увеличения толщины утеплителя? Насчёт проектов: ко мне пришёл человек стяжку делать, решали вопросы как маяки крепить, так он нигде более 5см утеплителя не встречал ещё И многим делали проект ... Посилання на коментар Поділитися на інших сайтах More sharing options...
dushes86 Опубліковано: 11 квітня 2019 Автор Поділитись Опубліковано: 11 квітня 2019 А вы проект сами не пересчитывали? С окнами как я понял , у вас все достаточно хорошо. На полу 100мм утеплителя будет ? Чердак, перекрытие? Может пойти путём увеличения толщины утеплителя? Насчёт проектов: ко мне пришёл человек стяжку делать, решали вопросы как маяки крепить, так он нигде более 5см утеплителя не встречал ещё И многим делали проект ... с окнами все хорошо, но их много утеплять уже больше некуда. пол 10см эппс, стены 10ваты, потолок 30-40см ваты. считали под такое утепление. ЗЫ: с почином на форуме. Надеюсь, далее не посыпется реклама... 1 Посилання на коментар Поділитися на інших сайтах More sharing options...
dushes86 Опубліковано: 11 квітня 2019 Автор Поділитись Опубліковано: 11 квітня 2019 Сделали фундамент гаража. Лента 40см на 50см глубины, затем блоки фбс/ригеля, оставшиеся с разборки подвала и припасенные для этой цели, вовнутрь корыта ненужные остатки бетонных изделий и обратная засыпка песком. Поверх монолитный пояс и плита пола в одном флаконе. До слелующей недельки постоит, и будем гнать стены. 1 Посилання на коментар Поділитися на інших сайтах More sharing options...
digor_ua Опубліковано: 11 квітня 2019 Поділитись Опубліковано: 11 квітня 2019 Вернемся к отоплению. По проекту, одного теплого пола для отопления маловато, получается недогрев. Возникла мысль, не использовать ли трубу 20мм вместо 16 для увеличения теплоотдачи? Или это особо ничего не даст? Еще вопрос по производителям материалов. Монтажник предложил вариант Джакомини - они делают трубу Реx-r, ну и коллектора и прочее. Это ок? Лучше, проще, дешевле и надёжнее предусмотреть в каждой комнате по Эл конвектору 1 Посилання на коментар Поділитися на інших сайтах More sharing options...
dushes86 Опубліковано: 11 квітня 2019 Автор Поділитись Опубліковано: 11 квітня 2019 Лучше, проще, дешевле и надёжнее предусмотреть в каждой комнате по Эл конвектору Предусмотрел. Таки 16 - наш вариант. 1 Посилання на коментар Поділитися на інших сайтах More sharing options...
digor_ua Опубліковано: 11 квітня 2019 Поділитись Опубліковано: 11 квітня 2019 На случай "войны" я подвел розеточки под электроконвекторы во все комнаты. Больше трубы намотать не очень выйдет из-за длины некоторых контуров, есть парочка длиной около 80м. Хотя остальные можно и гуще намотать. Во и пришла мысль оставить те же длины контуров, и при этом увеличить диаметр трубки А, ну так и хорошо, Вот здесь можно забить на эту тригонометрию и спокойно намотать трубы диаметром 16 мм Посилання на коментар Поділитися на інших сайтах More sharing options...
murava Опубліковано: 11 квітня 2019 Поділитись Опубліковано: 11 квітня 2019 Предусмотрел. Таки 16 - наш вариант. У рехау есть мягкая оранжевая 16ка и вроде по норм цене... Можно глянуть на валромовскую перт 2 типа - тоже норм цена Джакоминевская труба чуть твердовата в работе с мелкими шагами укладки 2 Посилання на коментар Поділитися на інших сайтах More sharing options...
Vikctor Опубліковано: 11 квітня 2019 Поділитись Опубліковано: 11 квітня 2019 Между прочим, я научился за последнее время привозить практически что угодно из каталога Джакомини - даже всякие краны под пайку из недр этой толстой книженции. Но ждать реально долго: месяц-полтора. Но, может это кому-то и не так чтобы проблема Года полтора назад спрашивал. Тогда не шмогла... Посилання на коментар Поділитися на інших сайтах More sharing options...
murava Опубліковано: 11 квітня 2019 Поділитись Опубліковано: 11 квітня 2019 То было тогда.... Посилання на коментар Поділитися на інших сайтах More sharing options...
мастерок Опубліковано: 12 квітня 2019 Поділитись Опубліковано: 12 квітня 2019 Насчёт проектов: ко мне пришёл человек стяжку делать, решали вопросы как маяки крепить, так он нигде более 5см утеплителя не встречал ещё И многим делали проект ... Насчёт Вашего человека-гоните его в шею,две причины Вы озвучили сами. 1 мастер не должен решать с Вами как крепить маяки,он должен в категорическом порядке сказать "будет сделано так то" 2 у него очень малый опыт работ,лично по моей статистике на сегодня 10 см утеплителя это стандарт и именно эта цифра закладывается в проектах.Частенько делают и 15 см,5 см-очень редко. 3 Посилання на коментар Поділитися на інших сайтах More sharing options...
Рекомендовані повідомлення
Створіть акаунт або увійдіть у нього для коментування
Ви маєте бути користувачем, щоб залишити коментар
Створити акаунт
Зареєструйтеся для отримання акаунта. Це просто!
Зареєструвати акаунтУвійти
Вже зареєстровані? Увійдіть тут.
Увійти зараз