Astrolog_ua Опубліковано: 23 квітня 2021 Поділитись Опубліковано: 23 квітня 2021 Наконец-то, спустя 3 года после принятия решения о смене квартиры на дом, "дорос" до создания темы в данном разделе. В 2018м набросал условия: Участок - не дальше ~10-15 км/30 минут езды от границ города (Киев) - развитая, качественная инфраструктура (асфальтные дороги и их чистка, вывоз мусора, бесперебойная электрика, интернет, магазины...) - безопасность - отсутствие вокруг "курей/поросят", огородов с удобрениями. Дом - оптимальный с точки зрения "цена/качество/комфорт/стоимость обслуживания/" одноэтажный дом для семьи из 3-х человек с: - 2 сан узла - 3 спальни, одна из которых будет гостевая, одна детской - большая терасса (3,5-4х8). - кухня-студия - 4-х скатной (просто нравится) крышей Цель: получить квартиру за городом как в кино - вечернее пиво на террасе с видом на ухоженный газон, елки, туи... никакого огорода, теплиц и тому подобного. Получится ли задумка или превратимся в сельских жителей - самому интересно. 12 Посилання на коментар Поділитися на інших сайтах More sharing options...
eco30 Опубліковано: 23 квітня 2021 Поділитись Опубліковано: 23 квітня 2021 ухоженный газон, елки, туи... вам цього ї без Огороду вистачить. ще побілити... покрасити... ))))) Посилання на коментар Поділитися на інших сайтах More sharing options...
Astrolog_ua Опубліковано: 23 квітня 2021 Автор Поділитись Опубліковано: 23 квітня 2021 Вторым постом можно было бы описать в красках поиски дома и участка в Вышгородском районе (живем на Оболони в Киеве - местные знают где это) - десятки просмотренных домов, в т.ч. и с помощью Андрея @tansss. Сотни (не вру!) участков в Вышгороде, Буче, Ирпени, Хотяновке, Осещие, Лебедевке... доезжали до Лютежа и Дымера... тысячи километров за 3 года намотали. Но все не то - или дорого, или коряво, или света нет свободных мощностей, или соседи в 3 этажа, или грунтовки 500 метров, или... В одну из встреч тот же Андрей @tansss послушал наше нытье, вздохнул, подумал (наверное) "где вы такие городские беретесь?" и повез нас в Новоселки. Это был сентябрь 19-го года и это была любовь с первого взгляда - чистое, ухоженное, просторное село состоящее из старой и новой части. 1 Посилання на коментар Поділитися на інших сайтах More sharing options...
Astrolog_ua Опубліковано: 23 квітня 2021 Автор Поділитись Опубліковано: 23 квітня 2021 вам цього ї без Огороду вистачить. ще побілити... покрасити... ))))) Ще не пободувався - дайте помріяти Посилання на коментар Поділитися на інших сайтах More sharing options...
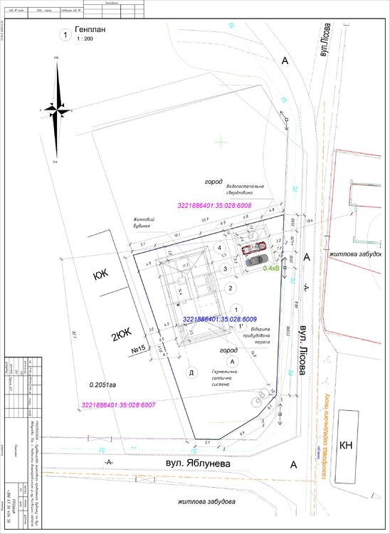
Astrolog_ua Опубліковано: 23 квітня 2021 Автор Поділитись Опубліковано: 23 квітня 2021 И начали мы уже прицельно «бомбить» село в поисках участка – классические хотелки от 2 000 и выше долларов за сотку, не менее классические «воно мені не горить», «землі не меньшає», «не продам, так діти построять», ну и самое честное (только из-за этого чуть не купили) – «хочу стільки, бо треба дочці квартиру, а як не вистачить на квартиру – то пропити можу, тому дешевше не продам». Как я морально ни сопротивлялся, но участок в итоге нашли через агентство недвижимости (800 уе удовольствие) и в сентябре 3-х летнее хобби по поискам участка закончилось. Угловой, 50 метров до центральной улицы, по паспорту 10,7 соток, по факту прихватизирован забором (на плане видно) нижний угол, так что соток 11 точно есть. На фото постарался передать размеры - стою у столба на восточной стороне, правая граница отмечена ниткой (не знаю, видно ли) и заканчивается воле крайнего правого окна. К участку шло 3 бонуса. 1-й - штук 5 деревьев вкусных груш и яблок, которые мы осенью, насмотревшись ютуба, обрезали и, надеюсь, не убили. Об остальных бонусах чуть позже. В принципе, с учетом того что мы с женой понаехи с Днера, эти 3 года дали нам возможность облазить весь западно-северо-восточный сектор Киевской области что оказалось весьма интересным, полезным и, в целом, нескучным делом. 11 Посилання на коментар Поділитися на інших сайтах More sharing options...
Astrolog_ua Опубліковано: 24 квітня 2021 Автор Поділитись Опубліковано: 24 квітня 2021 После покупки занялся подготовкой к строительству: Строй паспорт заказал через «ускорителей», уведомление о начале работ подал сам через «Дия», т.к. те же ускорители заломили мне дурную цену. Паспорт сделали за месяц, уведомление Дия приняла за неделю. Сделал вынос в натуру 1:500, 1:2000 и подал заявку на подключение электрики. Т.к. на дворе был октябрь и до начала строительства времени было полно, то решил попробовать сэкономить денег и сделать все сам: 16.10.20 подал заявление 19.10.20 заявку взяли в работу 12.11.20 проект был готов 13.11.20 поехал в Вышгородский РЭС, забрал счета на оплату и оплатил. 29.12.20 вкопали опору и готовы были подключать, но, т.к. эта опора была на углу участка, а я хотел счетчик на столб напротив котельной и въезда в дом (и копать метров на 20 меньше и удобнее обслуживать), то ушло еще 3 недели на переделку проекта и 22.01.21 на участке появилось электричество. Перед этим почитал ветку на форуме, узнал что в счетчике стоит китайский нонейм и, при установке, поменял его на Hager. Собрал «времянку», куда воткнул оставшийся от счетчика автомат и розетку. 1 Посилання на коментар Поділитися на інших сайтах More sharing options...
andreydobr Опубліковано: 24 квітня 2021 Поділитись Опубліковано: 24 квітня 2021 или соседи в 3 этажа Вітаю з початком, я приблизно в таких же роздумах був, але трохи з іншими критеріями. Напевне цитуємий пункт став допустимий)? Бо 3 етажний дім рядом на дільниці). І якщо я не помиляюсь то 15+ метрів до септику трохи забагато, щоб не було проблем в майбутньому. Посилання на коментар Поділитися на інших сайтах More sharing options...
Сарочка Опубліковано: 24 квітня 2021 Поділитись Опубліковано: 24 квітня 2021 Легкой стройки.! Подпишусь 1 Посилання на коментар Поділитися на інших сайтах More sharing options...
Astrolog_ua Опубліковано: 24 квітня 2021 Автор Поділитись Опубліковано: 24 квітня 2021 Вітаю з початком, я приблизно в таких же роздумах був, але трохи з іншими критеріями. Напевне цитуємий пункт став допустимий)? Бо 3 етажний дім рядом на дільниці). І якщо я не помиляюсь то 15+ метрів до септику трохи забагато, щоб не було проблем в майбутньому. Тут скоріше зіграло те, що будівля буде позаду нашого будинка, а все життя буде у південно-східному напрямку - тому і шукали кутовий щоб сусіди були через дорогу. Але так, вагались довго із-за цього будинку. По септику не прокоментую, але сподіваюсь що архітектор знав що робив. Посилання на коментар Поділитися на інших сайтах More sharing options...
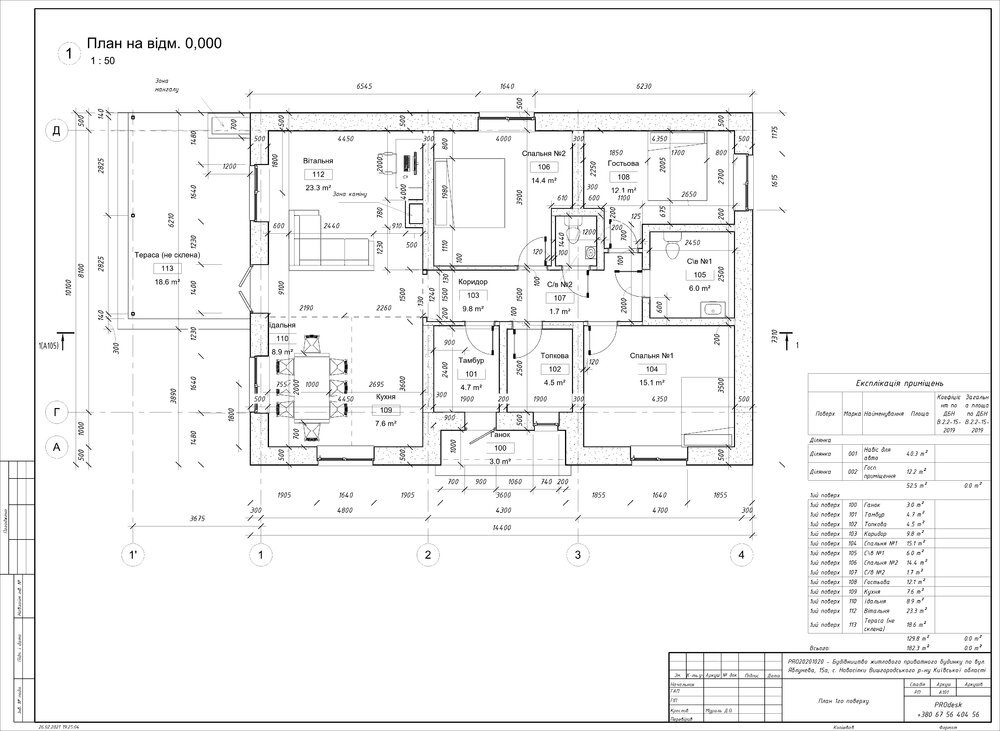
Astrolog_ua Опубліковано: 24 квітня 2021 Автор Поділитись Опубліковано: 24 квітня 2021 Паралельно документам занялись проектом. Сперва сами, потом с архитектором. Архитектора выбрали спонтанно – напротив нас строился интересный одноэтажный дом, подошли пообщались, посмотрели портфолио и пожали руки. За исключением мелочей – довольны. В первую очередь тем, что была возможность раз в неделю встретиться, проговорить, обсудить все ньюансы, покрутить на ноутбуке варианты размеров, пропорцій, посмотреть как это будет выглядеть… Кому интересны этапы: https://www.stroimdom.com.ua/forum/showthread.php?t=225451&page=4 – начиная с 74 сообщения, а итоговый вариант во вложении. Т.к. строиться будем не с этим архитектором, то не стали задалбывать правкой всяких мелочей – привязка к западной стороне участка, а не к северной, 2 столба на террасе, а не 3, внутренние стены одного размера для оптимизации материала и т.д. 1 Посилання на коментар Поділитися на інших сайтах More sharing options...
МаТраС Опубліковано: 24 квітня 2021 Поділитись Опубліковано: 24 квітня 2021 А Танс що ріелтор? я думав він будує будинки Посилання на коментар Поділитися на інших сайтах More sharing options...
Astrolog_ua Опубліковано: 24 квітня 2021 Автор Поділитись Опубліковано: 24 квітня 2021 А Танс що ріелтор? я думав він будує будинки Танса ми долучали, як фахівця, до перевірки будинків на продаж. Посилання на коментар Поділитися на інших сайтах More sharing options...
tansss Опубліковано: 24 квітня 2021 Поділитись Опубліковано: 24 квітня 2021 А Танс що ріелтор? я думав він будує будинки Не просто, а "чёрный" риэлтор Посилання на коментар Поділитися на інших сайтах More sharing options...
Astrolog_ua Опубліковано: 25 квітня 2021 Автор Поділитись Опубліковано: 25 квітня 2021 Изначально мы планировали строиться с Андреем @tansss. Нравился его подход, идеи, отзывы на форуме плюс видели его работы живьем (и общались с владельцами). Все устраивало, но одна мысль не давала покоя. Я собирал информацию, прикидывал что мне нужен толковый общестроитель, толковый электрик, толковый штукатур, толковый плиточник, толковый, толковый, толковый… И каждый толковый стоит денег. И на каждого толкового очередь. Найди, состыкуй, договорись, оплати. Я понял что что моих нервов на такое не хватит и надо найти того, кто построит дом под ключ, будет нести ответственность за каждый этап строительства, стыковать между собой всех мастеров. Нашел, на удивление, быстро. У одного из партнеров по работе тесть - строитель, причем последние лет 5 он строит, фактически, по таким знакомым, как я. Строят под ключ, включая забор и работы по участку. Прораб посчитал смету коробки – по деньгам устроило. Теперь главное чтобы бумага совпала с фактом. Посилання на коментар Поділитися на інших сайтах More sharing options...
Игорь&Ира Опубліковано: 25 квітня 2021 Поділитись Опубліковано: 25 квітня 2021 Нашел, на удивление, быстро. У одного из партнеров по работе тесть - строитель, причем последние лет 5 он строит, фактически, по таким знакомым, как я. Строят под ключ, включая забор и работы по участку. Прораб посчитал смету коробки – по деньгам устроило. Теперь главное чтобы бумага совпала с фактом. Договор. Посилання на коментар Поділитися на інших сайтах More sharing options...
shneider_vova Опубліковано: 25 квітня 2021 Поділитись Опубліковано: 25 квітня 2021 немного покритикую планировку 1) ниши для шкафов - 600,610 - мало. хотя бы 650, а то и 700. по факту там слой штукатурки будет больше, стена гульнет и т.п. 2) гостевой санузел - продумайте размер раковины и расположение двери так, чтобы раковина не мешала двигаться. не мельчите с раковиной, я сделал 220 мм глубиной и будут менять - мало. 3) рисуйте кухню! мне кажется, 3.6 будет маловато, особенно с учетом того, что кладовки нет 4) рабочее место в гостиной - спорное решение. меня жена выгнала оттуда 2 Посилання на коментар Поділитися на інших сайтах More sharing options...
omozhyn Опубліковано: 25 квітня 2021 Поділитись Опубліковано: 25 квітня 2021 немного покритикую планировку Я бы ещё вход в топочную сделал из тамбура Посилання на коментар Поділитися на інших сайтах More sharing options...
Astrolog_ua Опубліковано: 25 квітня 2021 Автор Поділитись Опубліковано: 25 квітня 2021 немного покритикую планировку 1) ниши для шкафов - 600,610 - мало. хотя бы 650, а то и 700. по факту там слой штукатурки будет больше, стена гульнет и т.п. 2) гостевой санузел - продумайте размер раковины и расположение двери так, чтобы раковина не мешала двигаться. не мельчите с раковиной, я сделал 220 мм глубиной и будут менять - мало. 3) рисуйте кухню! мне кажется, 3.6 будет маловато, особенно с учетом того, что кладовки нет 4) рабочее место в гостиной - спорное решение. меня жена выгнала оттуда 1. поскольку мы все внутренние стены делаем по 200мм, то в габариты гостевого санузла вырастут на 100 мм - как раз +/- на 650 и выйдем. 2. у нас в квартире аналогичный 3. рисовали ) будет еще остров ~2 метра. 4. спорное, но решили лучше так, чем запираться в отдельной комнате. В крайнем случае уберем и сделаем гостевую спальню-кабинет. Добавлено через 2 минуты Я бы ещё вход в топочную сделал из тамбура зачем? рисовали и так - но нет, крадется полезное место. Посилання на коментар Поділитися на інших сайтах More sharing options...
Astrolog_ua Опубліковано: 25 квітня 2021 Автор Поділитись Опубліковано: 25 квітня 2021 Весна 2021 погодой не радует – холода, дожди. Прораб не радует– «фундамент не должен лежать в луже, ждем погоду», Сосед, заливший фундамент в декабре, тоже не радует - гонит коробку как на дрожжах. Короче, нервы да и только. Наконец, 14-го апреля стартовали. Сделали разметку дома - на деревянные «буквы Н» нитками выносятся оси и высоты. На фото, правда нити не видно, но они там есть 15-го заехал трактор с ковшом 70 см и взялся за работу. Тут хочется сделать небольшое отступление и поблагодарить @JohnnyD, который дал контакт толкового тракториста, а перед этим купил шпильку для столба чтобы прикрутить времянку, а перед этим дал контакт бурильщика, а перед этим давал контакты объявлений о продаже участков по селу, а перед этим... Ну вы поняли - Женя @JohnnyD - спасибо тебе большущее за помощь В этот день меня ждал бонус номер 2 доставшийся при покупке участка. Мой участок был частью большого участка и на нем был фруктовый сад (из которого осталось 5 деревьев, которые мы пока сохраним на время стройки) и продавец нам рассказывал, что завез на него 50 камазов чернозема полуметровым слоем. Я его слушал вполуха, считая обычным трепом при продаже… Но когда тракторист стал снимать чернозем, поняли, что не врал. Минимум 40 см везде. C пятна расчистки в 170 квадратов сняли кубов 70 грунта. Затем трактор вырыл траншею под ленточный фундамент. Т.к. земля песчаная и влажная, корректировать лопатами после трактора пришлось по-минимуму. Вопрос? Бюджеты мероприятий писать - интересно? 2 Посилання на коментар Поділитися на інших сайтах More sharing options...
labtec Опубліковано: 25 квітня 2021 Поділитись Опубліковано: 25 квітня 2021 Вопрос? Бюджеты мероприятий писать - интересно? Очень даже!) Посилання на коментар Поділитися на інших сайтах More sharing options...
Игорь&Ира Опубліковано: 25 квітня 2021 Поділитись Опубліковано: 25 квітня 2021 Лучше сметы, так как объемы у каждого свои. Посилання на коментар Поділитися на інших сайтах More sharing options...
shneider_vova Опубліковано: 25 квітня 2021 Поділитись Опубліковано: 25 квітня 2021 вопрос - а знакомый прораб проект не делает? будет по наитию строить? и прочность грунта определять на глаз? Посилання на коментар Поділитися на інших сайтах More sharing options...
Astrolog_ua Опубліковано: 25 квітня 2021 Автор Поділитись Опубліковано: 25 квітня 2021 вопрос - а знакомый прораб проект не делает? будет по наитию строить? и прочность грунта определять на глаз? Почему по наитию? Нагрузки считает. Грунт известен. Когда сосед стартовал - приезжали смотрели грунты. Посилання на коментар Поділитися на інших сайтах More sharing options...
shneider_vova Опубліковано: 25 квітня 2021 Поділитись Опубліковано: 25 квітня 2021 Нагрузки считает он сможет сделать проект фундамента и рассчитать армирование? Добавлено через 32 секунды приезжали смотрели грунты. смотреть - не эквивалентно "сделать геологию и получить расчетные характеристики грунта" Посилання на коментар Поділитися на інших сайтах More sharing options...
Юрий Киев Опубліковано: 25 квітня 2021 Поділитись Опубліковано: 25 квітня 2021 смотреть - не эквивалентно "сделать геологию и получить расчетные характеристики грунта" зачем это делать,район,как видно,обжитой ,не болото и не поле. Посилання на коментар Поділитися на інших сайтах More sharing options...
Рекомендовані повідомлення
Створіть акаунт або увійдіть у нього для коментування
Ви маєте бути користувачем, щоб залишити коментар
Створити акаунт
Зареєструйтеся для отримання акаунта. Це просто!
Зареєструвати акаунтУвійти
Вже зареєстровані? Увійдіть тут.
Увійти зараз