metall_version Опубліковано: 7 вересня 2021 Автор Поділитись Опубліковано: 7 вересня 2021 4 минуты назад, Tamburello сказал: на фото второй этаж есличо ага, ну тогда все понятно. если бы был первый то в моем понимании эппс должен всю площадь пола покрывать Посилання на коментар Поділитися на інших сайтах More sharing options...
Tamburello Опубліковано: 7 вересня 2021 Поділитись Опубліковано: 7 вересня 2021 20 минут назад, metall_version сказал: ага, ну тогда все понятно. если бы был первый то в моем понимании эппс должен всю площадь пола покрывать та тоже не аксиома. пароизоляция может быть достигнута и при бетоне/блоках в проемах. отсечная гидроизоляция под стенами ж не просто так с выпусками делается. Посилання на коментар Поділитися на інших сайтах More sharing options...
Narval Опубліковано: 7 вересня 2021 Поділитись Опубліковано: 7 вересня 2021 28 минут назад, Tamburello сказал: на фото второй этаж есличо. А какой смымл эппс на втором этаже, если че? Посилання на коментар Поділитися на інших сайтах More sharing options...
Tamburello Опубліковано: 7 вересня 2021 Поділитись Опубліковано: 7 вересня 2021 (змінено) 9 минут назад, Narval сказал: А какой смымл эппс на втором этаже, если че? такой же как и на первом. в бетон очень плохо втыкаются гарпуны Змінено 7 вересня 2021 користувачем Tamburello 1 Посилання на коментар Поділитися на інших сайтах More sharing options...
Скромный прораб Опубліковано: 7 вересня 2021 Поділитись Опубліковано: 7 вересня 2021 (змінено) 53 минуты назад, Tamburello сказал: на фото второй этаж есличо. Откуда, как и зачем на втором этаже бетонные пороги? Змінено 7 вересня 2021 користувачем Скромный прораб Посилання на коментар Поділитися на інших сайтах More sharing options...
Скромный прораб Опубліковано: 7 вересня 2021 Поділитись Опубліковано: 7 вересня 2021 5 часов назад, normal сказал: Кто сказал под камином делать? А если захочется теплоемкий короб или печь? Лучше вместо труб ТП это место усилить арматурой, короб из ГК и ваты это фигня, а из суперизола дороговат, может придется из кирпича делать Вы, как всегда категоричны Посилання на коментар Поділитися на інших сайтах More sharing options...
Tamburello Опубліковано: 7 вересня 2021 Поділитись Опубліковано: 7 вересня 2021 1 минуту назад, Скромный прораб сказал: Откуда, как и зачем на втором этаже бетонные пороги? ну, порогами ЭТО назвал ты, а так-то - как и весь остальной бетон - из туфельки. Посилання на коментар Поділитися на інших сайтах More sharing options...
Скромный прораб Опубліковано: 7 вересня 2021 Поділитись Опубліковано: 7 вересня 2021 Ты на элитной строишься? Тогда понятно))) Посилання на коментар Поділитися на інших сайтах More sharing options...
Tamburello Опубліковано: 7 вересня 2021 Поділитись Опубліковано: 7 вересня 2021 1 минуту назад, Скромный прораб сказал: Ты на элитной строишься? Тогда понятно))) та где бы не строиться, но только твои таджики стены из газобетона сразу на плиты ставят. раз у тебя вопросы и непонимания про этот узел есть. 1 Посилання на коментар Поділитися на інших сайтах More sharing options...
Скромный прораб Опубліковано: 7 вересня 2021 Поділитись Опубліковано: 7 вересня 2021 Ах, вон он чё Михалыч)))) Посилання на коментар Поділитися на інших сайтах More sharing options...
Dendnepr Опубліковано: 7 вересня 2021 Поділитись Опубліковано: 7 вересня 2021 (змінено) В 02.09.2021 в 08:00, мастерок сказал: Дублт Змінено 7 вересня 2021 користувачем Dendnepr Дубль Посилання на коментар Поділитися на інших сайтах More sharing options...
Dendnepr Опубліковано: 7 вересня 2021 Поділитись Опубліковано: 7 вересня 2021 В 02.09.2021 в 08:00, мастерок сказал: .Работаем мы быстро,бригадир монтирующих кабель электриков приехал с хитрым прибором для проверки кабеля когда квадратов с 50 было залито,но нам повезло,именно с залитыми кабелями было всё гуд,а вот 4 или 5 не залитых контуров показали плохое сопротивление и красивенько так постреляли, Так все сходится. Если кабель "красиво пострелял", значит дали какое-то напряжение и ток. Тот кабель, что на воздухе - перегоелся очень быстро и пострелял, в стяжке - теплосьем лучше и все ок. Кабель без стяжки включать нельзя. В инструкции написано. И в то же инструкции написано, что менять сопротивление нужно. До и после заливки. Но при замере сопротивления кабель не может пострелять. Что-то не то сделал тот бригадир электриков. Может он испытывал изоляцию на пробой? 2 Посилання на коментар Поділитися на інших сайтах More sharing options...
Dendnepr Опубліковано: 7 вересня 2021 Поділитись Опубліковано: 7 вересня 2021 (змінено) В 02.09.2021 в 08:00, мастерок сказал: Дубль Змінено 7 вересня 2021 користувачем Dendnepr Дубль Посилання на коментар Поділитися на інших сайтах More sharing options...
metall_version Опубліковано: 8 вересня 2021 Автор Поділитись Опубліковано: 8 вересня 2021 Сегодня у нас был каминщик с визитом (спасибо Gitan) результат общения: камин будет закрытая топка со стеклом, гильотина или обычный, смотрим на 90см ширину камин будет как резервный источник отопления, один воздуховод будет направлен в детскую, она как раз за стеной где камин под камином не будет эппс и теплого пола, под него зальем свою плиту с армированием, по площади будет совпадать с коробом камина. высота такой плиты будет около 16-17см короб камина предложил следующий, фасадная стенка из: магнезитовая плита, или силикат кальция (он же суперизол), боковые стенки предложил из газобетона 100/150, стенка за камином будет закрыта каким-то огнеупорным материалом (не помню названия), главное чтобы не было металлического каркаса внутри короба вентиляция короба само собой от стенок топки до короба должно быть минимум 5см воздушного зазора (я думаю можно и 10см дать). насчет пола не был против SPC ламината, хотя предложил в радиусе ~50см обложить плиткой, но нам все-же хочется SPC ламинат, одним контуром по всему дому (кроме с\у) дымоход будет изгибаться 2 раза (2 колена) на чердаке, в самой комнате дымоход будет идти вертикально вверх. на этом изгибе (между двух колен) будет ревизия для чистки, чтобы и вверх дотянутся прочистить и вниз говорил про забор воздуха извне (чердак или улица), пока думаем, сейчас не критично и говорил про аккумулятор тепла, который крепится сверху камина и отдает тепло на протяжении 5-10 часов после того как камин потух - врядли такое будем ставить в общем сейчас с женой и дизайнером будет определятся с размерами и расположением каминного короба, чтобы разблокировать теплые полы 2 Посилання на коментар Поділитися на інших сайтах More sharing options...
GraD_Kh Опубліковано: 9 вересня 2021 Поділитись Опубліковано: 9 вересня 2021 10 часов назад, metall_version сказал: но нам все-же хочется SPC ламинат, одним контуром по всему дому (кроме с\у) Кстати по поводу санузлов - это тоже не обязательно. В квартире, где сейчас живу, в свое время решили положить кварцвинил везде, в том числе и в санузлах (единственное, что в санузлах на клей). Это одно из самых удачных решений в ремонте - ходить по нему босиком намного приятнее чем по плитке. Даже без подогрева пола зимой не возникает желания побыстрее заскочить в тапки после душа. 1 Посилання на коментар Поділитися на інших сайтах More sharing options...
Vikctor Опубліковано: 9 вересня 2021 Поділитись Опубліковано: 9 вересня 2021 12 часов назад, metall_version сказал: короб камина предложил следующий, фасадная стенка из: магнезитовая плита, или силикат кальция (он же суперизол), боковые стенки предложил из газобетона 100/150, стенка за камином будет закрыта каким-то огнеупорным материалом (не помню названия), главное чтобы не было металлического каркаса внутри короба говорил про забор воздуха извне (чердак или улица), пока думаем, сейчас не критично А чем мастер мотивирует применение разных материалов для фасадной и боковых стенок? Если задняя стенка из того же ГБ, то зачем именно её закрывать каким-то огнеупорным материалом (он ведь в курсе что ГБ не горюч?), а боковые из аналогичного материала нет? Чем его смущает металлический каркас внутри короба? Ноги для топки из металла его тоже смущают?... Забор воздуха извне очень даже критичная штука. Это напрямую влияет на выбор топки и даже на процесс её эксплуатации... 2 Посилання на коментар Поділитися на інших сайтах More sharing options...
metall_version Опубліковано: 9 вересня 2021 Автор Поділитись Опубліковано: 9 вересня 2021 гб предложил для экономии, насчет задней стенки я так понял чтобы все тепло не уходило в нагрев несущей стены, а если будут греться гб короба то не страшно, но вопрос хороший, уточню насчет металла я полностью согласен с ним, если делать каркас из метала и вешать на него силикат кальция или магнезитовую плиту, то будут трещины, так как метал от нагрева будет сильнее расширятся, чем плиты. тем более что плиты это вполне годный самонесущий материал, я смотрел много роликов на данную тему перед беседой с ним, насчет ног для топки - так топка жестко не крепится к коробу, оставляют зазоры между топкой и коробок забор воздуха, ок обсудим, но по логике забирать воздух с чердака звучит удобнее чем с улицы Посилання на коментар Поділитися на інших сайтах More sharing options...
metall_version Опубліковано: 12 вересня 2021 Автор Поділитись Опубліковано: 12 вересня 2021 закончили ворота, делали кода было немного свободного времени, на выходных цена под ключ вышла 11к грн, 8к из них металл (без учета работ) все работы делали сами. тесть сварил каркас, столбы забетонировали вместе, а я повесил профнастил (конечно же с помощью жены 😃) 4 метра ворота, проезд получился 3,8м, ворота со встроенной калиткой надо было метал под столбы брать толще чем 3мм, правый столб немного прогнулся, при закрытии в самом вверху обе сворки немного соприкасаются (во время установки был зазор в сантиметр) но ничего, ворота свои функции выполняют, тем более ворота и фасадный забор - это временный вариант на момент стройки/ремонта 3 Посилання на коментар Поділитися на інших сайтах More sharing options...
Фрай Опубліковано: 12 вересня 2021 Поділитись Опубліковано: 12 вересня 2021 (змінено) странно, у меня тоже 100х100х3 мм, проем 4 метра и ничего не прогибается. Змінено 12 вересня 2021 користувачем Фрай Посилання на коментар Поділитися на інших сайтах More sharing options...
metall_version Опубліковано: 13 вересня 2021 Автор Поділитись Опубліковано: 13 вересня 2021 (змінено) где заказать дверь на терассу МП в Харькове, с низким аллюминиевым "евро" порогом? нужно хорошее качество и хорошие установщики (наверное профиль минимум 80-й) Змінено 13 вересня 2021 користувачем metall_version Посилання на коментар Поділитися на інших сайтах More sharing options...
Narval Опубліковано: 13 вересня 2021 Поділитись Опубліковано: 13 вересня 2021 20 минут назад, metall_version сказал: где заказать дверь на терассу МП в Харькове, с низким аллюминиевым "евро" порогом? нужно хорошее качество и хорошие установщики (наверное профиль минимум 80-й) Окна пит. 1 Посилання на коментар Поділитися на інших сайтах More sharing options...
Gitan Опубліковано: 13 вересня 2021 Поділитись Опубліковано: 13 вересня 2021 Я заказывал в Экипаж 1 Посилання на коментар Поділитися на інших сайтах More sharing options...
metall_version Опубліковано: 15 вересня 2021 Автор Поділитись Опубліковано: 15 вересня 2021 подскажите а сколько на финишное покрытие уйдет мм? будет spc ламинат (не знаю какую подложку под теплый водяной пол берут, и нужна ли она вообще) почитал статьи и вышло что сам spc ламинат 4-5мм (хорошего качества) пока рассчитываю 4-6,5мм Посилання на коментар Поділитися на інших сайтах More sharing options...
metall_version Опубліковано: 16 вересня 2021 Автор Поділитись Опубліковано: 16 вересня 2021 по spc предлагают ADO доску, там 5мм идет, со встроенной подложкой под теплый пол (4+1) но не уверен что встроенная подложка это хорошая идея. в общем рассчитываю на 4-7мм апдейты - нашел штукатура, зайдет через неделю, машинная штукатурка. сказал за 2-2,5 недели все сделает. жду от него смету также заказал двери на террасу, в замену текущим, с евро-порогом, профиль синего 80, через 4 недели будут, как раз к окончанию работ штукатура (он может и успеет откосы там сделать). заказывал в Теплой Линии (по рекомендации от Паши xPavelx) вышло 30к сразу после штукатурки будем делать ТП и стяжку, проектант на этой неделе скинул черновой вариант проекта (спустя 2 недели, хотя говорили что на все 3 дня уйдет), я указал на кучу правок, которые мы уже обсуждали с сантехником когда он замеры делал (правки в плане где и какая будет ванна, что батарей не будет а только трубы ТП - так как он во все комнаты радиаторы впихнул)... короче классика Посилання на коментар Поділитися на інших сайтах More sharing options...
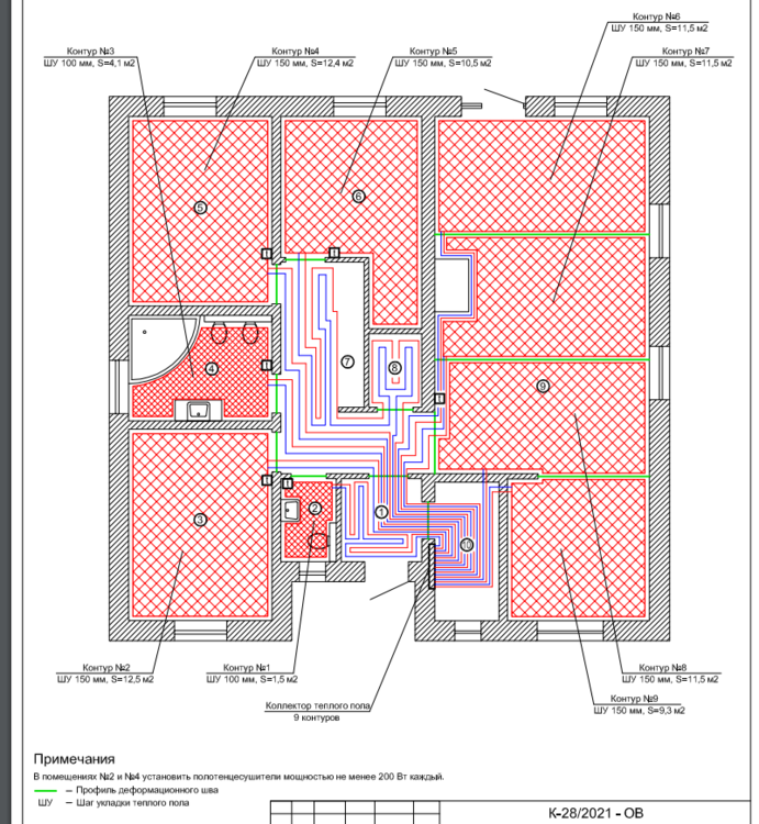
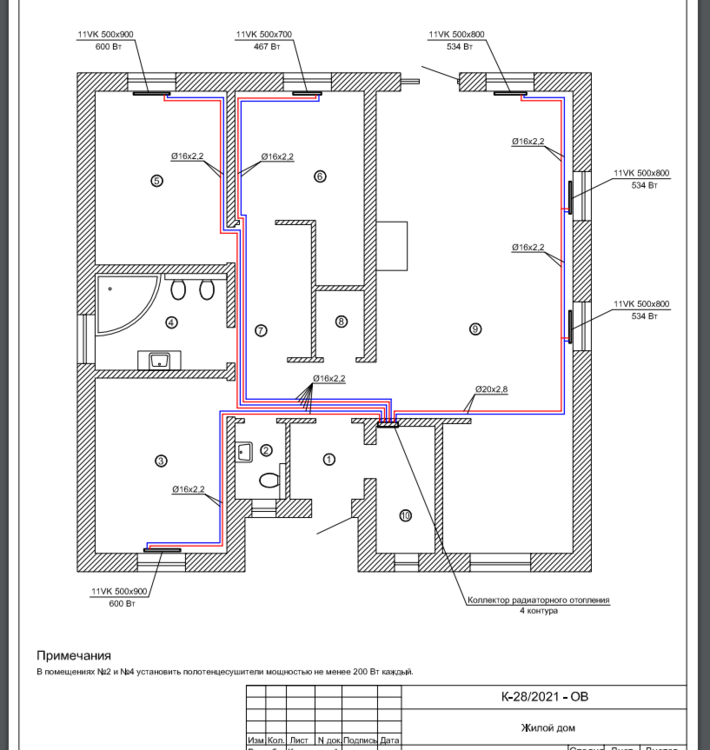
metall_version Опубліковано: 16 вересня 2021 Автор Поділитись Опубліковано: 16 вересня 2021 вот первая версия проекта кому интересно Спойлер 1 Посилання на коментар Поділитися на інших сайтах More sharing options...
Рекомендовані повідомлення
Створіть акаунт або увійдіть у нього для коментування
Ви маєте бути користувачем, щоб залишити коментар
Створити акаунт
Зареєструйтеся для отримання акаунта. Це просто!
Зареєструвати акаунтУвійти
Вже зареєстровані? Увійдіть тут.
Увійти зараз