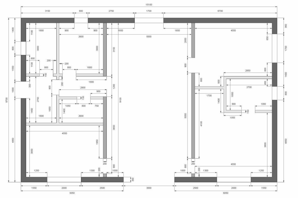
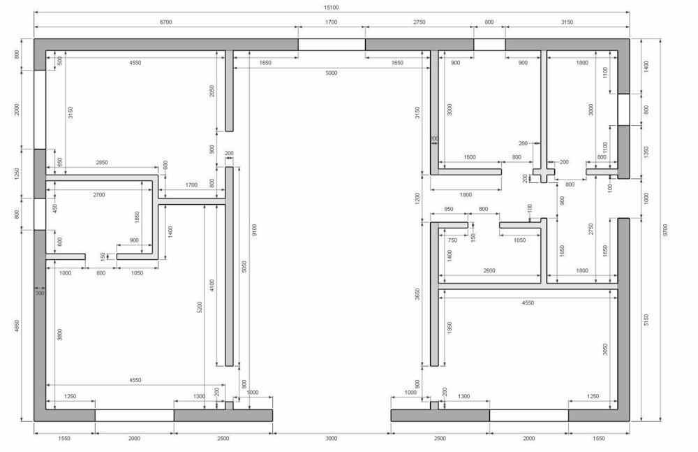
Татьяна5 Опубліковано: 7 вересня 2021 Поділитись Опубліковано: 7 вересня 2021 Приветствую, ув Читатели Открываю новую темку по новым стройкам в КГ Рябинки, Малютянка, Киевская область Стройки для меня почти традиционные, но, надеюсь, кто то найдет для себя то, что будет полезно, а я найду то, что будет полезно мне Итак, что имеем: 1) Участок 8,14 соток, проект дома "Таня Красный" (дом под задатком, будет после готовности сдаваться в аренду) 2) Участок 12,50 соток, проект "Таня Красный Зеркальный" 3) Участок 10 соток, проект "Таня Красный" Все участки удалены друг от друга и дома не будут просматриваться вместе или рядом , все находятся в КГ Рябинки и на работу я хожу открывая калитку своего дома Что стоим - +-130 м2, в одном этаже, потолки 3 метра, + терраса крытая 24 м2 к каждому Посадка домов - 2а в глубине участка, 1 на фасаде участка Технологии: 1) УШП классическая 2) Стены наружные ГБ 300 мм УДК, утепление 100 мм базальтовой ваты, силиконовая штукатурка, внутренние стены - 200 и 150 мм 3) Кровля - ЦПЧ по кровельным фермам По планам в этом году - фундаменты, стены, кровли, фасады, водосточка, штукатурка, утепление кровли 300 мм, если крупно повезет - тротуарная плитка (но вряд ли). А там посмотрим что успеем, а что не успеем Поехали Ниже - планы домов 3 спальни + 1 гостевая (кабинет), 2 су, гостиная, прихожая и котельная (постирочная). Эту планировку люблю, уважаю и она нравится людям 10 Посилання на коментар Поділитися на інших сайтах More sharing options...
Татьяна5 Опубліковано: 7 вересня 2021 Автор Поділитись Опубліковано: 7 вересня 2021 Общий вид дома и пропорции будут примерно такими, детали - своими. Будет некоторая игра с окнами и высотами. На фотом дом в планировке Зеркало 6 Посилання на коментар Поділитися на інших сайтах More sharing options...
S_Vladimir_79 Опубліковано: 7 вересня 2021 Поділитись Опубліковано: 7 вересня 2021 5 минут назад, Татьяна5 сказал: 3) Кровля - ЦПЧ по кровельным фермам Ещё есть такая? Думал, уже отжила своё Посилання на коментар Поділитися на інших сайтах More sharing options...
Татьяна5 Опубліковано: 7 вересня 2021 Автор Поділитись Опубліковано: 7 вересня 2021 15 минут назад, Татьяна5 сказал: 1) УШП классическая 2) Стены наружные ГБ 300 мм УДК, утепление 100 мм базальтовой ваты, силиконовая штукатурка, внутренние стены - 200 и 150 мм 3) Кровля - ЦПЧ по кровельным фермам По базовым параметрам: 1) Почему УШП - люблю, умею, понимаю, делаю мин в 50% домах, сама живу в доме на УШП 2) Материал стен материя тонкая, но, как кажется мне, на самом деле сильно преувеличенной степени важности. Должно быть тепло и комфортно, не доставлять проблем в эксплуатации. Остальное - личные тараканы каждого. Имеем право 3) ЦПЧ. Люблю битумную черепицу. Но в 2021 весь пирог с битумной черепицей стал по цене как пирог с ЦПЧ. Самое время использовать это. Возможно, такой момент больше в стройке не повторится. Да, я строю на продажу и тренды мне важны. Если люди считают, что ЦПЧ - это круче, почему бы не дать возможность кому то это оценить и примерять на себя :-), все равно сделаем хорошо и ту и ту кровли. Фермы отличаются очень незначительно, нагрузки все пересчитаны. 7 Посилання на коментар Поділитися на інших сайтах More sharing options...
Татьяна5 Опубліковано: 7 вересня 2021 Автор Поділитись Опубліковано: 7 вересня 2021 1 минуту назад, S_Vladimir_79 сказал: Ещё есть такая? Думал, уже отжила своё Думаю, вы имеете ввиду ППЧ Посилання на коментар Поділитися на інших сайтах More sharing options...
S_Vladimir_79 Опубліковано: 7 вересня 2021 Поділитись Опубліковано: 7 вересня 2021 9 минут назад, Татьяна5 сказал: Думаю, вы имеете ввиду ППЧ 100%)) перепутал Посилання на коментар Поділитися на інших сайтах More sharing options...
shneider_vova Опубліковано: 7 вересня 2021 Поділитись Опубліковано: 7 вересня 2021 а чего тогда не натуралка? ЦПЧ - видимо, BRASS, там рядовка в районе 10 евро/м2, а в эту цену нижние линейки натуральной черепицы можно легко взять. стоимость доборов там тоже похожа 3 Посилання на коментар Поділитися на інших сайтах More sharing options...
Татьяна5 Опубліковано: 7 вересня 2021 Автор Поділитись Опубліковано: 7 вересня 2021 2 минуты назад, shneider_vova сказал: а чего тогда не натуралка? ЦПЧ - видимо, BRASS, там рядовка в районе 10 евро/м2, а в эту цену нижние линейки натуральной черепицы можно легко взять. стоимость доборов там тоже похожа Есть у меня некоторые соображения на этот счет. Чисто мои таракашки :-). Угодить всем не возможно, буду своим тараканам угождать :-))), простите мне эту наглость 2 Посилання на коментар Поділитися на інших сайтах More sharing options...
shneider_vova Опубліковано: 7 вересня 2021 Поділитись Опубліковано: 7 вересня 2021 2 минуты назад, Татьяна5 сказал: Есть у меня некоторые соображения на этот счет. Чисто мои таракашки :-). Угодить всем не возможно, буду своим тараканам угождать :-))), простите мне эту наглость так тараканы - это ж самое интересное не поделитесь? Посилання на коментар Поділитися на інших сайтах More sharing options...
Татьяна5 Опубліковано: 7 вересня 2021 Автор Поділитись Опубліковано: 7 вересня 2021 2 минуты назад, shneider_vova сказал: так тараканы - это ж самое интересное не поделитесь? Поделюсь. Ближе к теме. Имею привычку менять некоторые решения по ходу. Когда уже куплен материал - тут уже и делиться есть смысл Пока заказаны кровельные фермы, 3 комплекта 2 Посилання на коментар Поділитися на інших сайтах More sharing options...
Volodymyr9767 Опубліковано: 7 вересня 2021 Поділитись Опубліковано: 7 вересня 2021 1 час назад, Татьяна5 сказал: Поделюсь. Ближе к теме. Имею привычку менять некоторые решения по ходу. Когда уже куплен материал - тут уже и делиться есть смысл Пока заказаны кровельные фермы, 3 комплекта А у кого заказываете кровельные фермы? Просто рани или поздно нужно будет и себе заказывать. Думаю у вас уже есть 100% представление кто их хорошо делает. Посилання на коментар Поділитися на інших сайтах More sharing options...
Татьяна5 Опубліковано: 7 вересня 2021 Автор Поділитись Опубліковано: 7 вересня 2021 1 час назад, Volodymyr9767 сказал: А у кого заказываете кровельные фермы? Просто рани или поздно нужно будет и себе заказывать. Думаю у вас уже есть 100% представление кто их хорошо делает. Уже лет 7 работаю с Прагма 2 Посилання на коментар Поділитися на інших сайтах More sharing options...
Volodymyr9767 Опубліковано: 7 вересня 2021 Поділитись Опубліковано: 7 вересня 2021 29 минут назад, Татьяна5 сказал: Уже лет 7 работаю с Прагма Спасибо. Посилання на коментар Поділитися на інших сайтах More sharing options...
Татьяна5 Опубліковано: 11 вересня 2021 Автор Поділитись Опубліковано: 11 вересня 2021 Сегодня заливаем 2 ушп, будет фото и видео 9 Посилання на коментар Поділитися на інших сайтах More sharing options...
newbee2020 Опубліковано: 11 вересня 2021 Поділитись Опубліковано: 11 вересня 2021 сколько у вашей команды примерно уходит времени на сборку такой УШП? без заливки-затирки Посилання на коментар Поділитися на інших сайтах More sharing options...
newbee2020 Опубліковано: 11 вересня 2021 Поділитись Опубліковано: 11 вересня 2021 заметил еще, что подача веток, что идут рядом, теплоизолированы первые метра 3. это для того, чтобы пол в хоз помещении не перегревать? я такое не сделал, будут проблемы? Посилання на коментар Поділитися на інших сайтах More sharing options...
apereverzev Опубліковано: 11 вересня 2021 Поділитись Опубліковано: 11 вересня 2021 2 часа назад, newbee2020 сказал: теплоизолированы первые метра 3 Это чтобы не было паразитного тока тепла от подачи напрямую к обратке. Можно и не теплоизолировать, если подача отдалена от обратки более чем на 15 см. 2 Посилання на коментар Поділитися на інших сайтах More sharing options...
Татьяна5 Опубліковано: 11 вересня 2021 Автор Поділитись Опубліковано: 11 вересня 2021 2 часа назад, newbee2020 сказал: сколько у вашей команды примерно уходит времени на сборку такой УШП? без заливки-затирки Неделя от а до я 1 Посилання на коментар Поділитися на інших сайтах More sharing options...
Татьяна5 Опубліковано: 11 вересня 2021 Автор Поділитись Опубліковано: 11 вересня 2021 6 Посилання на коментар Поділитися на інших сайтах More sharing options...
Vikctor Опубліковано: 11 вересня 2021 Поділитись Опубліковано: 11 вересня 2021 7 часов назад, apereverzev сказал: Это чтобы не было паразитного тока тепла от подачи напрямую к обратке. Можно и не теплоизолировать, если подача отдалена от обратки более чем на 15 см. Не в виде критики, но вы не совсем верно понимаете термин паразитные теплопотери применимо к ТП. На фото у Татьяны (кстати ваши сантехники серьёзно выросли за пару последних лет) в теплоизоляцию одеты все подводки, а не первые три метра. Сделано это для того, чтобы ТП грели именно в рабочих контурах, а не по дороге к ним. Именно для УШП это не столь важно. В отличие от классической плавающей стяжки. 1 Посилання на коментар Поділитися на інших сайтах More sharing options...
allanek Опубліковано: 12 вересня 2021 Поділитись Опубліковано: 12 вересня 2021 В 07.09.2021 в 11:10, Татьяна5 сказал: Поделюсь. Ближе к теме. Имею привычку менять некоторые решения по ходу. Когда уже куплен материал - тут уже и делиться есть смысл Тебе на заметку. Про ЦПЧ. Вдруг ты её полюбишь надолго. У меня на основном доме лежит дымерская, с 2012 года. Если бы строилась сейчас, покупала бы её. Никаких проблем с эксплуатацией, даже цвет не выгорел. За всё время поменяли штук 5 рядовок. Это с учетом того, что Шидель выводили по готовой кровле и муж топчется по ней не меньше 3-х раз в году. Считаю, что эта замена ни о чём. У моих соседей, по моим следам, 5 лет, как положена дымерская ЦПЧ. У меня венецианка, у них римская. Цвет разный и покраска разная. К их черепице, тоже, нет вопросов. 4 Посилання на коментар Поділитися на інших сайтах More sharing options...
Татьяна5 Опубліковано: 13 вересня 2021 Автор Поділитись Опубліковано: 13 вересня 2021 С газобетоном и его поставками нынче все, впрочем прогнозированно, фигово. Потому приняла сразу как готовы были выдать 2 Посилання на коментар Поділитися на інших сайтах More sharing options...
Propeller Опубліковано: 13 вересня 2021 Поділитись Опубліковано: 13 вересня 2021 Случайно (как обычно) встретился с вариантом внутреннего освещения. Квартирка на Адреевском спуске (г. Киев) 4 Посилання на коментар Поділитися на інших сайтах More sharing options...
BugS Опубліковано: 13 вересня 2021 Поділитись Опубліковано: 13 вересня 2021 57 минут назад, Татьяна5 сказал: С газобетоном и его поставками нынче все, впрочем прогнозированно, фигово. Потому приняла сразу как готовы были выдать ГБ УДК можете рекомендовать? Как он по цене с доставкой в киевскую область? Посилання на коментар Поділитися на інших сайтах More sharing options...
Татьяна5 Опубліковано: 13 вересня 2021 Автор Поділитись Опубліковано: 13 вересня 2021 14 минут назад, BugS сказал: ГБ УДК можете рекомендовать? Как он по цене с доставкой в киевскую область? Да, однозначно хороший блок 2300 грн м3 2 Посилання на коментар Поділитися на інших сайтах More sharing options...
Рекомендовані повідомлення
Створіть акаунт або увійдіть у нього для коментування
Ви маєте бути користувачем, щоб залишити коментар
Створити акаунт
Зареєструйтеся для отримання акаунта. Це просто!
Зареєструвати акаунтУвійти
Вже зареєстровані? Увійдіть тут.
Увійти зараз