Nikolay Cherednichenko Опубліковано: 30 листопада 2023 Автор Поділитись Опубліковано: 30 листопада 2023 ось, докрутив розу))) Посилання на коментар Поділитися на інших сайтах More sharing options...
Nikolay Cherednichenko Опубліковано: 30 листопада 2023 Автор Поділитись Опубліковано: 30 листопада 2023 (змінено) 7 минут назад, Alvalk сказал: так що заважає розвернути його по вертикалі, змістити трохи к сусідам зліва, і насолоджуватись садом з тераси на північному сході? поганий краєвид (будівельна "творчість" сусіда). так як я розмістив-ще й маю вид на лиман. а ще на північний схід... там майже постійно темно буде і холодно Змінено 30 листопада 2023 користувачем Nikolay Cherednichenko Посилання на коментар Поділитися на інших сайтах More sharing options...
Alvalk Опубліковано: 30 листопада 2023 Поділитись Опубліковано: 30 листопада 2023 2 минуты назад, Nikolay Cherednichenko сказал: поганий краєвид (будівельна "творчість" сусіда). Навіть страшно уявити, що ж він там такого набудував, що навіть забор не допоможе 2 минуты назад, Nikolay Cherednichenko сказал: так як я розмістив-ще й маю вид на лиман Як це? Зліва сусід, в перспективі ззаду сусід. Забор мабуть теж будете ставити. То звідки там той краєвид візьметься? По темі. Є такий сайт (вибачте, що москальський, але зручний) - planetcalc.ru/320/ Можете там подивитись та порахувати, коли і як влітку спекотне західне сонце буде зазирати до вас на терасу. От зібрались ви, наприклад з друзями увечері на шашлик, а там таке: Доведеться шашлик зранку їсти 1 Посилання на коментар Поділитися на інших сайтах More sharing options...
Nikolay Cherednichenko Опубліковано: 30 листопада 2023 Автор Поділитись Опубліковано: 30 листопада 2023 (змінено) 25 минут назад, Alvalk сказал: Навіть страшно уявити, що ж він там такого набудував, що навіть забор не допоможе Я не прихильник суцільних частоколів. і краще вам того не бачити якщо ви людина не позбавлена гарного смаку)))) 25 минут назад, Alvalk сказал: Як це? Зліва сусід, в перспективі ззаду сусід. Забор мабуть теж будете ставити. То звідки там той краєвид візьметься? Я на висоті, і похилість ландшафту в сторону лиману то дозволяє навіть при помірній забудованості 25 минут назад, Alvalk сказал: По темі. Є такий сайт (вибачте, що москальський, але зручний) - planetcalc.ru/320/ Можете там подивитись та порахувати, коли і як влітку спекотне західне сонце буде зазирати до вас на терасу. От зібрались ви, наприклад з друзями увечері на шашлик, а там таке: Дякую за ресурс. я там просто часто буваю (живу поряд) і маю такі відчуття по руху сонця: Змінено 30 листопада 2023 користувачем Nikolay Cherednichenko Посилання на коментар Поділитися на інших сайтах More sharing options...
Drosselbeere Опубліковано: 30 листопада 2023 Поділитись Опубліковано: 30 листопада 2023 (змінено) 22.08.2023 в 11:53, Nikolay Cherednichenko сказав: Вот еще варианты (два из них мои) : ось у вас булу в цілому комфортне планування, єдине потрібно віддзеркалити і трохи допрацювати деталі, вікна і тд. також бажана нанести як ви плануєте господарський блок чи гараж, можливо об'єднати з терасою Змінено 30 листопада 2023 користувачем Drosselbeere 1 Посилання на коментар Поділитися на інших сайтах More sharing options...
Alvalk Опубліковано: 30 листопада 2023 Поділитись Опубліковано: 30 листопада 2023 28 минут назад, Nikolay Cherednichenko сказал: я там просто часто буваю (живу поряд) і маю такі відчуття по руху сонця: Щось ви там трохи наплутали, не може зранку світити з півдня І взагалі, знов розу недокрутили. Десь так виходить: Тож справа майже північ. До відсутності там вікон більше питань немає. А тераса виходить практично західна. Вся надія на сад, якщо він недалеко і дерева не маленькі, може заблокує увечері сонце, а якщо ні - буде спекотно 1 Посилання на коментар Поділитися на інших сайтах More sharing options...
Nikolay Cherednichenko Опубліковано: 30 листопада 2023 Автор Поділитись Опубліковано: 30 листопада 2023 (змінено) 46 минут назад, Drosselbeere сказал: ось у вас булу в цілому комфортне планування, єдине потрібно віддзеркалити і трохи допрацювати деталі, вікна і тд. також бажана нанести як ви плануєте господарський блок чи гараж, можливо об'єднати з терасою хіба так Змінено 30 листопада 2023 користувачем Nikolay Cherednichenko Посилання на коментар Поділитися на інших сайтах More sharing options...
Nikolay Cherednichenko Опубліковано: 30 листопада 2023 Автор Поділитись Опубліковано: 30 листопада 2023 (змінено) 15 минут назад, Alvalk сказал: Щось ви там трохи наплутали, не може зранку світити з півдня І взагалі, знов розу недокрутили. Десь так виходить: Тож справа майже північ. До відсутності там вікон більше питань немає. А тераса виходить практично західна. Вся надія на сад, якщо він недалеко і дерева не маленькі, може заблокує увечері сонце, а якщо ні - буде спекотно Виходить наплутав (вибачте гуманітарія)))). дерева планую під саму терасу. я люблю коли зелено і багато рослин. (тільки замітив що ви одесит)))) Змінено 30 листопада 2023 користувачем Nikolay Cherednichenko Посилання на коментар Поділитися на інших сайтах More sharing options...
Alvalk Опубліковано: 30 листопада 2023 Поділитись Опубліковано: 30 листопада 2023 14 минут назад, Nikolay Cherednichenko сказал: хіба так Тут є пара дивних моментів. Велике вікно на терасу, али при цьому двері в стороні и потім на терасу ще сходами підійматись Я взагалі не розумію, навіщо там вікно. Краще вже зробити його зліва. А двері треба робити напряму на терасу. Так набагато зручніше. Але тут виходить або двері будуть вузькі (де диван закінчується), або терасу треба зробити трохи довшу, або терасу робити по центру, а не біля кута (тобто змістити її трохи вправо) Спойлер 19 минут назад, Nikolay Cherednichenko сказал: (тільки замітив що ви одесит)))) Так, я навіть відносно недалеко живу. Але це село якось не розглядав, у мене ділянка в іншому Посилання на коментар Поділитися на інших сайтах More sharing options...
Nikolay Cherednichenko Опубліковано: 30 листопада 2023 Автор Поділитись Опубліковано: 30 листопада 2023 1 минуту назад, Alvalk сказал: Тут є пара дивних моментів. Велике вікно на терасу, али при цьому двері в стороні и потім на терасу ще сходами підійматись та то я нарізав так (двері не заморачувався переносити, типу само-собой разумеется)))). планування з інету. Я б одне панорамне по центру зробив 2400х2400 і невеличке ліворуч. Посилання на коментар Поділитися на інших сайтах More sharing options...
Nikolay Cherednichenko Опубліковано: 30 листопада 2023 Автор Поділитись Опубліковано: 30 листопада 2023 (змінено) 1 час назад, Nikolay Cherednichenko сказал: та то я нарізав так (двері не заморачувався переносити, типу само-собой разумеется)))). планування з інету. Я б одне панорамне по центру зробив 2400х2400 і невеличке ліворуч. . Якось так ще... Вентканали можна перемістити в сторону кухні і камін зробити на 45 градусів (повернутий до дивану). Вентблок зміщую щоб не розривати армапояс несучих перестінків. Змінено 30 листопада 2023 користувачем Nikolay Cherednichenko Посилання на коментар Поділитися на інших сайтах More sharing options...
BugS Опубліковано: 30 листопада 2023 Поділитись Опубліковано: 30 листопада 2023 49 хвилин тому, Nikolay Cherednichenko сказав: . Якось так ще... Вентканали можна перемістити в сторону кухні і камін зробити на 45 градусів (повернутий до дивану). Вентблок зміщую щоб не розривати армапояс несучих перестінків. Значно краще. Вікно в кухню забули перенести. Посилання на коментар Поділитися на інших сайтах More sharing options...
Nikolay Cherednichenko Опубліковано: 30 листопада 2023 Автор Поділитись Опубліковано: 30 листопада 2023 (змінено) 26 минут назад, BugS сказал: Значно краще. Вікно в кухню забули перенести. Хіба що по рівню фартука зробити щоб робочу поверхню світити. Змінено 30 листопада 2023 користувачем Nikolay Cherednichenko Посилання на коментар Поділитися на інших сайтах More sharing options...
Alvalk Опубліковано: 30 листопада 2023 Поділитись Опубліковано: 30 листопада 2023 3 минуты назад, Nikolay Cherednichenko сказал: Хіба що по рівню фартка зробити щоб робочу поверхню світити. А якщо повернути терасу вліво, як була, а вікно і двері на верхній стінці поміняти місцями? Раніше так не виходило бо диван був великий, а зараз поменше і він не перекриє двері. Звісно, ви маєте розуміти розміри меблі, які хочете, і двері встановлювати так, щоб вони не заважали вашим побажанням Посилання на коментар Поділитися на інших сайтах More sharing options...
Nikolay Cherednichenko Опубліковано: 30 листопада 2023 Автор Поділитись Опубліковано: 30 листопада 2023 1 минуту назад, Alvalk сказал: А якщо повернути терасу вліво, як була, а вікно і двері на верхній стінці поміняти місцями? Раніше так не виходило бо диван був великий, а зараз поменше і він не перекриє двері. Звісно, ви маєте розуміти розміри меблі, які хочете, і двері встановлювати так, щоб вони не заважали вашим побажанням Я коли робив то спочатку так і було (тераса ліворуч), потім шось мені захтілося симетричності)))) Диван там той же, 2400х1400 мм. Так , всі розміри меблів там реальні які я поланую ставити. Посилання на коментар Поділитися на інших сайтах More sharing options...
Alvalk Опубліковано: 30 листопада 2023 Поділитись Опубліковано: 30 листопада 2023 15 минут назад, Nikolay Cherednichenko сказал: Я коли робив то спочатку так і було (тераса ліворуч), потім шось мені захтілося симетричності)))) Диван там той же, 2400х1400 мм. Так , всі розміри меблів там реальні які я поланую ставити. Ну покрутіть ще. Щоб двері йшли на терасу, а вікно - напряму. Бо тераса буде частково блокувати світло. Тому краще менше вікно поряд з терасою, ніж велике на терасу. Світла буде однаково, а тепловтрати менші 1 Посилання на коментар Поділитися на інших сайтах More sharing options...
Сергей Стрельник Опубліковано: 30 листопада 2023 Поділитись Опубліковано: 30 листопада 2023 (змінено) 29 хвилин тому, Nikolay Cherednichenko сказав: Я коли робив то спочатку так і було (тераса ліворуч), потім шось мені захтілося симетричності)))) Диван там той же, 2400х1400 мм. Так , всі розміри меблів там реальні які я поланую ставити. Ви помиляєтесь коли ставите меблі під стіну біля вікна. В реалії там будуть ще батарея та фіранки, тому шкаф у тещі буде -20см ширини. Для такої "компанії" санвузол краще розділити, у Вас там достатньо місця для двух дверей в коридорі Змінено 30 листопада 2023 користувачем Сергей Стрельник Посилання на коментар Поділитися на інших сайтах More sharing options...
Nikolay Cherednichenko Опубліковано: 30 листопада 2023 Автор Поділитись Опубліковано: 30 листопада 2023 (змінено) 1 час назад, Сергей Стрельник сказал: Ви помиляєтесь коли ставите меблі під стіну біля вікна. В реалії там будуть ще батарея та фіранки, тому шкаф у тещі буде -20см ширини. Для такої "компанії" санвузол краще розділити, у Вас там достатньо місця для двух дверей в коридорі Коридор 1200 мм. двері тільки внутрь відкривати, якщо рохділяти то явно не так (крім того з виводом пару у вентиляцію будуть трабли на тому що ви намалювали, він в кармані, але то моя суб'єктивна думка). На рахунок фіранок-можливо ви праві, але можна шафу і на 90° крутанути . І поставити до вертикального перестінку-і все буде йофі-тофі)) Змінено 30 листопада 2023 користувачем Nikolay Cherednichenko Посилання на коментар Поділитися на інших сайтах More sharing options...
Simpapula Опубліковано: 30 листопада 2023 Поділитись Опубліковано: 30 листопада 2023 На мою думку, краще мати вікно у санвузлі, ніж у підсобному приміщенні. Ще отий перетинок з купою дверей якось незручно виглядає - мешканці будуть товктися там, щоб дати дорогу один одному. І передпокій з маленькою шафою, а де всі будуть роздіватися, роззуватися, де речі класти? Це ж село, у кожного буде декілька наборів верхнього одягу і взуття - для городу-саду, для поїздок, для пішки ходити. Посилання на коментар Поділитися на інших сайтах More sharing options...
Nikolay Cherednichenko Опубліковано: 30 листопада 2023 Автор Поділитись Опубліковано: 30 листопада 2023 (змінено) 3 часа назад, Simpapula сказал: На мою думку, краще мати вікно у санвузлі, ніж у підсобному приміщенні. Ще отий перетинок з купою дверей якось незручно виглядає - мешканці будуть товктися там, щоб дати дорогу один одному. І передпокій з маленькою шафою, а де всі будуть роздіватися, роззуватися, де речі класти? Це ж село, у кожного буде декілька наборів верхнього одягу і взуття - для городу-саду, для поїздок, для пішки ходити. В прихожій шафа 1500х2300, сама прихожа 1800х2500, там місця тьма (на вішаки і обувну полицю є))вікно в санвузлі-то не зовсім обов'язково як на мене, вентиляція обов'язковіше (то на мою думку). І в підсобці вікно доречне, я там заложив можливість встановлення газового котлу (якщо проведуть газ). В коридорах норм розминутись можна. Що за перетинок з купою дверей? Змінено 30 листопада 2023 користувачем Nikolay Cherednichenko Посилання на коментар Поділитися на інших сайтах More sharing options...
Simpapula Опубліковано: 2 грудня 2023 Поділитись Опубліковано: 2 грудня 2023 В 30.11.2023 в 17:29, Nikolay Cherednichenko сказал: Що за перетинок з купою дверей? Коридор між спальнями і санвузлами. Посилання на коментар Поділитися на інших сайтах More sharing options...
Nikolay Cherednichenko Опубліковано: 2 грудня 2023 Автор Поділитись Опубліковано: 2 грудня 2023 (змінено) 8 часов назад, Simpapula сказал: Коридор між спальнями і санвузлами. Я навіть не знаю що відповісти))) критикуєте-пропонуйте))) Змінено 2 грудня 2023 користувачем Nikolay Cherednichenko Посилання на коментар Поділитися на інших сайтах More sharing options...
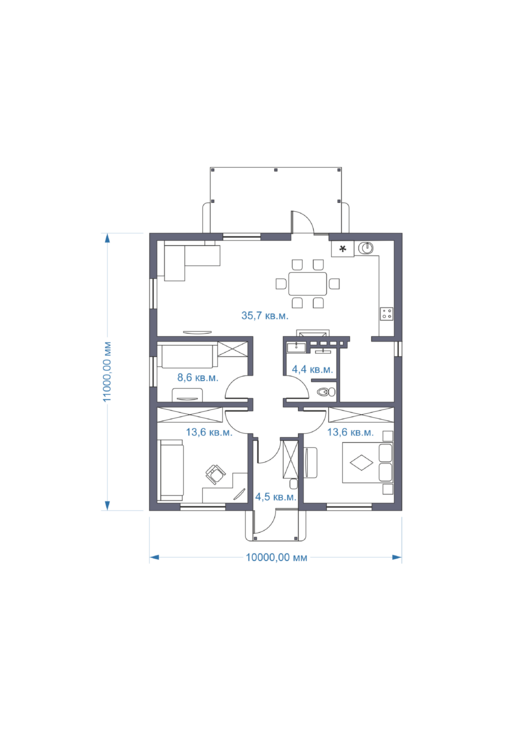
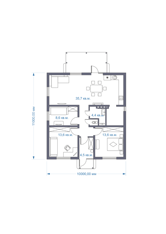
Nikolay Cherednichenko Опубліковано: 2 грудня 2023 Автор Поділитись Опубліковано: 2 грудня 2023 Ну загалом підігнав під розміри газобетону (щоб менше різати) і можна сказати що рішення майже прийняте. Тепер діло за малим-то вибрати зовнішній вигляд (фасад широкий, тому мені шось не легко то). А далі розрахунки і думки по конструктиву. П.С.: колір рандомний-головне концепція фасаду, може ще хтось що підскаже. Посилання на коментар Поділитися на інших сайтах More sharing options...
Сергей Стрельник Опубліковано: 2 грудня 2023 Поділитись Опубліковано: 2 грудня 2023 Перший варіант даху неможливо побудувати Посилання на коментар Поділитися на інших сайтах More sharing options...
Nikolay Cherednichenko Опубліковано: 2 грудня 2023 Автор Поділитись Опубліковано: 2 грудня 2023 Только что, Сергей Стрельник сказал: Перший варіант даху неможливо побудувати Чому? Посилання на коментар Поділитися на інших сайтах More sharing options...
Рекомендовані повідомлення