vasyaru Опубліковано: 6 жовтня 2016 Поділитись Опубліковано: 6 жовтня 2016 Хочу в веранду установить три пластиковых окна. Но не знаю,как все правильно сделать. Просто веранда в пол-кирпича,и не открывающееся пластиковое окно,не такое тяжелое и его будет проще установить,но остальные два окна с открывающими створками,они как бы тяжеловатые для стены в пол-кирпича,особенно мне кажется,если они буду открываться на полную. Посоветуйте как их правильно укрепить,но с одним нюансом:в веранде были большие такие окна,я решил заложить их и оставить место для меньших окон размером высота 1м,ширина 0.80 см. Потом установить туда эти окна. Интересует,какой проем в кирпичной кладке оставлять,на такие размеры,как и чем лучше крепить их в стену,и как правильно все сделать,с учетом того,что пол-кирпича,все-таки очень мало места. Как правильно все сделать? Спасибо! Посилання на коментар Поділитися на інших сайтах More sharing options...
Алік Опубліковано: 7 жовтня 2016 Поділитись Опубліковано: 7 жовтня 2016 Думаете кирпичная кладка легче окна??? В полкирпича муруют парапеты, которые выдерживают конструкции размером 4000х2500 и больше. 1 Посилання на коментар Поділитися на інших сайтах More sharing options...
mastervovik Опубліковано: 8 жовтня 2016 Поділитись Опубліковано: 8 жовтня 2016 (змінено) При размещении окна в зоне утеплителя, крепить на анкера не рекомендуется, а лучше использовать специальный крепеж (см. картинку №1) или хотя бы на анкерные пластины толщиной не менее 1,5 мм. Может поподробней кто-то описать технологию? У меня предпологается установка в слое ваты, т.е. пенить не с чем, расстояние до несущего материала стены примерно 100мм. Снаружи запланировано плотное примыкание к четверти облицовочной кладки.И когда соответственно осуществлять монтаж: перед облицовкой и утеплением или после? Змінено 8 жовтня 2016 користувачем mastervovik Посилання на коментар Поділитися на інших сайтах More sharing options...
ViknaStar Опубліковано: 8 жовтня 2016 Поділитись Опубліковано: 8 жовтня 2016 Технологий монтажа в зоне утеплителя много можно использовать выносные консоли, накладной монтаж или как я писал ранее на анкерные пластины, на видео польские коллеги монтируют именно так: 1 Посилання на коментар Поділитися на інших сайтах More sharing options...
GuLiVer Опубліковано: 1 листопада 2016 Поділитись Опубліковано: 1 листопада 2016 Добрый день. Прошу дать совет по установке металлопластиковых окон. Стена из газоблока 30см., в дальнейшем (через несколько лет ) будет утеплятся минватой 10 см. То-есть современм будет двухслойный пирог - газоблок+утеплитель. Вопрос № 1. Судя по картинке ниже (см. рис. 2.2-в ), окно необходимо устанавливать на расстоянии 2-3 см. от наружной стороны газоблока. Чем в таком случае заполнить зазор (2-3 см.) между окном и утеплителем (когда он будет наклеен)? Или лучше устанавливать заподлицо с наружной стронной газоблока и тогда зазор будет минимальным (до 1 см.) Вопрос № 2. Чем грозит эксплуатация окна с таким монтажом до того времени пока не будет утепления? Вопрос № 3. Дом в два полноценных этажа. Так случилось что подшивка карнизных свесов находится на одном уровне с верхней частью оконного проема, то есть заподлицо с подшивкой. Необходимо весь оконный проем на втором этаже опустить на 10 см. В нижней части с этим проблем нет, взял пилу и вырезал столько - сколько нужно. А что делать с верхней частью? Первое что приходит в голову, на перемычку оконного проема наклеить 10 см. пенопласта 35 плотности. Но в этом случае есть сомнение о надежности крепления окна в верхних точках (через пенопласт в перемычку). Еще как вариант, заказать доборный профиль (расширитель) для металлопластикового окна, планку которая крепиться в верхней части оконного блока для уменьшения проема по высоте. Но боюсь, что итоговая цена меня не порадует. Посилання на коментар Поділитися на інших сайтах More sharing options...
ViknaStar Опубліковано: 2 листопада 2016 Поділитись Опубліковано: 2 листопада 2016 Добрый день. Прошу дать совет по установке металлопластиковых окон. Стена из газоблока 30см., в дальнейшем (через несколько лет ) будет утеплятся минватой 10 см. То-есть современм будет двухслойный пирог - газоблок+утеплитель. Вопрос № 1. Судя по картинке ниже (см. рис. 2.2-в ), окно необходимо устанавливать на расстоянии 2-3 см. от наружной стороны газоблока. Чем в таком случае заполнить зазор (2-3 см.) между окном и утеплителем (когда он будет наклеен)? Или лучше устанавливать заподлицо с наружной стронной газоблока и тогда зазор будет минимальным (до 1 см.) Монтаж делал бы заподлицо как в прикрепленном чертеже, пену обязательно защитить от разрушения! 1 Посилання на коментар Поділитися на інших сайтах More sharing options...
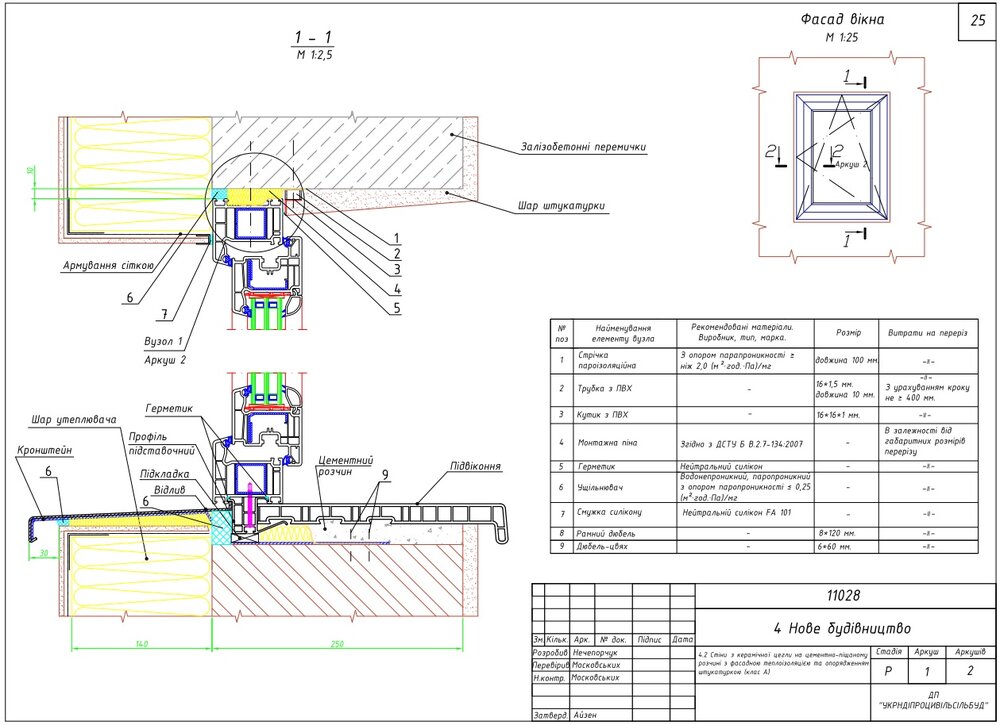
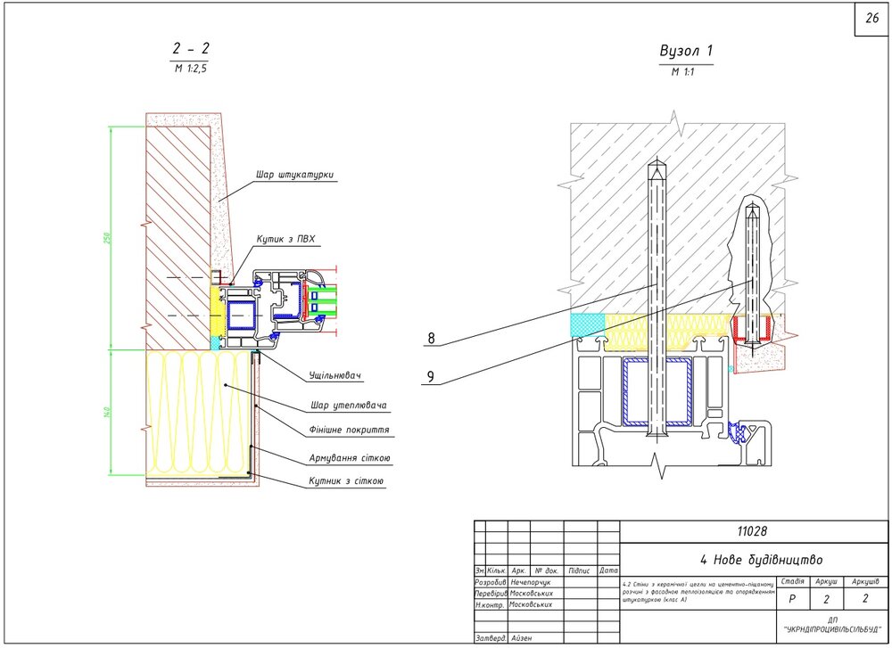
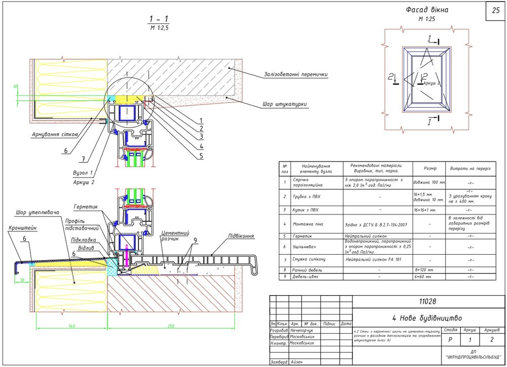
andrey-auv Опубліковано: 3 листопада 2016 Поділитись Опубліковано: 3 листопада 2016 Монтаж делал бы заподлицо как в прикрепленном чертеже, пену обязательно защитить от разрушения! [ATTACH]534835[/ATTACH] Добрый день! Подскажите какую роль выполняет поз. 2 и 3 (труба и уголок) ??? И почему силикон поз. 7 а не уплотнитель (псул лента). Посилання на коментар Поділитися на інших сайтах More sharing options...
ViknaStar Опубліковано: 3 листопада 2016 Поділитись Опубліковано: 3 листопада 2016 Добрый день! Подскажите какую роль выполняет поз. 2 и 3 (труба и уголок) ??? Позиция 2 и 3 выполняет роль узла примыкания ПВХ профиля и штукатурки, так как у этих материалов разные характеристики по линейному расширению, то в этом месте без данного узла со временем обрезывается трещина. И почему силикон поз. 7 а не уплотнитель (псул лента). Потому что ПСУЛ используется на позиции 6 Посилання на коментар Поділитися на інших сайтах More sharing options...
ch.off Опубліковано: 8 грудня 2016 Поділитись Опубліковано: 8 грудня 2016 подскажите,если окна установлены 100мм от края газобетона, защищены гидро и пароизол пленкой, надо ли внешние откосы утеплять ЭЭПС 2-3мм?? в будущем возможно будет утепляться дом каменной ватой на 100мм чем лучше отделать откосы стартовой шпаклевкой для наружных работ или старым добрым раствором из цемента,правда еще советуют клеем для плитки(мол он устойчив к влажной среде и тд) благодарю Посилання на коментар Поділитися на інших сайтах More sharing options...
ViknaStar Опубліковано: 8 грудня 2016 Поділитись Опубліковано: 8 грудня 2016 (змінено) Если будущие наступит быстро , т.е. если вы планируете, утеплите ватой фасад и внешнее откосы в ближайшее полгода, то можете с экструдированным пенополистиролом не заморачиваться. Если срок будет больше то ленты нужно защитить, т.е. используйте ЭППС Змінено 8 грудня 2016 користувачем ViknaStar 1 Посилання на коментар Поділитися на інших сайтах More sharing options...
Алік Опубліковано: 8 грудня 2016 Поділитись Опубліковано: 8 грудня 2016 Только не забудьте оставить щели между окнами и ЭППС, иначе вся паропроницаемость пропадёт. 1 Посилання на коментар Поділитися на інших сайтах More sharing options...
ch.off Опубліковано: 10 грудня 2016 Поділитись Опубліковано: 10 грудня 2016 Только не забудьте оставить щели между окнами и ЭППС, иначе вся паропроницаемость пропадёт. Вы имеете ввиду укреплять эппс заподлицо со срезом стены,а второй край прикрывает ленту,но не доводить край до оконной рамы,чтоб внутренние пары имели возможность выходить через гидроизоляцию, я правильно понял ? сколько оставлять отступ 0.5-1см, заделывать эту щель клеем,шпаклевкой? Посилання на коментар Поділитися на інших сайтах More sharing options...
ch.off Опубліковано: 10 грудня 2016 Поділитись Опубліковано: 10 грудня 2016 Только не забудьте оставить щели между окнами и ЭППС, иначе вся паропроницаемость пропадёт. Как в таком случае избежать трещины ,которая точно образуется в этом отступе? Посилання на коментар Поділитися на інших сайтах More sharing options...
Алік Опубліковано: 10 грудня 2016 Поділитись Опубліковано: 10 грудня 2016 Ну, трещины ИМХО наоборот быть не должно, в данном случае ведь не придётся соединять материалы с разным КТР. Зазор, в смысле минимальная ширина ПСУЛ, должен быть ок. 8 мм и перекрывать его можно только материалами с более высокой паропроницаемостью. У ЭППС же парапроницаемость крайне низкая.10_ukazaniy-po-montazhu-REHAU-GENEO.pdf10_ukazaniy-po-montazhu-REHAU-GENEO-2.pdf 1 Посилання на коментар Поділитися на інших сайтах More sharing options...
Gerbanin Опубліковано: 28 грудня 2016 Поділитись Опубліковано: 28 грудня 2016 Постоянно намерзает лед на внрутренней стороне окна, что с этим делать, как устранить? Посилання на коментар Поділитися на інших сайтах More sharing options...
Алік Опубліковано: 28 грудня 2016 Поділитись Опубліковано: 28 грудня 2016 Вызвать мастера. Возможно улучшит ситуацию обычная регулировка. Посилання на коментар Поділитися на інших сайтах More sharing options...
Lyubomyr Опубліковано: 8 січня 2017 Поділитись Опубліковано: 8 січня 2017 Останнім часом дуже "заморочився" правильним монтажем вікон і утепленням відкосів. На даному відео, час 11:20 показано як всі відкоси утеплені еппс, і щільно прилягають до рами. Як відомо при 3шаровому монтажі зовнішня плівка є паропроникною, і тоді виникає когніктивний диссонанс, ніби пара має виходити назовні, але її блокує еппс. Якщо ж залишити щілину, то ж буде мостик холоду? Наразі це запитання для мене відкрите. Посилання на коментар Поділитися на інших сайтах More sharing options...
Алік Опубліковано: 8 січня 2017 Поділитись Опубліковано: 8 січня 2017 Щілина буде заповнена ПСУС і піною, містка холоду там точно не буде. Посилання на коментар Поділитися на інших сайтах More sharing options...
Lyubomyr Опубліковано: 8 січня 2017 Поділитись Опубліковано: 8 січня 2017 Алік я як відбив відкоси старих вікон - просто в шоці. Є ж сусіди що не міняли ці вікна. Ще переживаю за правильне утеплення під відливом, бо якраз там недостатньо простору, старі вікна просто стоять на цеглі, навіть толко пінки немає. Посилання на коментар Поділитися на інших сайтах More sharing options...
Алік Опубліковано: 8 січня 2017 Поділитись Опубліковано: 8 січня 2017 Простір під зливом потрібно буде пропінити, а коли будете встановлювати внутрішні підвіконня, бажано додатково прокласти полосу з ЕППС між ними і підставочним профілем. Посилання на коментар Поділитися на інших сайтах More sharing options...
Dmode Опубліковано: 10 травня 2017 Поділитись Опубліковано: 10 травня 2017 Уважаемые специалисты оконного дела, прокомментируйте пожалуйста соответствие данного способа крепления требованиям качественного монтажа окон. Исходные данные: Стена: 250мм кирпич слой приблизительно такой же утеплителя (ГБ D150) воздушная прослойка облицовочный кирпич Деревянные окна высотой около 1.6м установлены в слое ГБ D150, следующим образом: Cверху и снизу фанерные пластины с одним креплением в ГБ D150 который от несильного нажатия пальцем превращается в пыль. Между этими фанерными пластинами размещены крепления из сложенных вместе пластин-подвесов для гипсокартонного профиля. Край пластин закреплен практически в швы между кирпичом и ГБ. Детали на видео. Каковы Ваши прогнозы, что будет если так оставить и не переделывать? Посилання на коментар Поділитися на інших сайтах More sharing options...
Алік Опубліковано: 10 травня 2017 Поділитись Опубліковано: 10 травня 2017 Мда... по сути эти окна и не закреплены вовсе. Со временем они просто вывалятся. 2 Посилання на коментар Поділитися на інших сайтах More sharing options...
mastervovik Опубліковано: 10 травня 2017 Поділитись Опубліковано: 10 травня 2017 Может и не вывалятся, но монтаж на Пэшки это что-то Даже Я бы со своей экономией до такого не додумался бы :D 1 Посилання на коментар Поділитися на інших сайтах More sharing options...
Dmode Опубліковано: 10 травня 2017 Поділитись Опубліковано: 10 травня 2017 (змінено) Мда... по сути эти окна и не закреплены вовсе. Со временем они просто вывалятся.Может и не вывалятся, но монтаж на Пэшки это что-то Даже Я бы со своей экономией до такого не додумался бы :D Вывалиться им не дадут четверти из фасадной кладки. Но со временем ИМХО могут обрести подвижность между штукатуркой откоса и псулом между рамой и фасадной кладкой. Увеличивается вероятность образования трещин в штукатурке в области гибких "пэшек" и вдоль рамы. Возник вопрос аргументации заказчика в разговоре с подрячиком выполнившим этот монтаж. Пока нашел следующий документ: ДСТУ Б В.2.6-79:2009 ШВИ З'ЄДНУВАЛЬНІ МІСЦЬ ПРИМИКАНЬ ВІКОННИХ БЛОКІВ ДО КОНСТРУКЦІЙ СТІН, из требований которого можно сделать вывод что нарушены следующие пунткы: Б.7 ...Гнучкі анкери виробляють з оцинкованого сталевого листа згідно з ГОСТ 14918 товщиною не менше 1,5 мм. Так как сколько бы фольги вместе не сложить до образования толщины 1.5мм, гибким анкером согласно этого ДСТУ она не станет. Б.7 ...У багатошарових стінах гнучкі анкери повинні кріпитися до внутрішнього несучого шару. Б.14 При багатошарових конструкціях стін, коли блок повинен бути встановлений у зону утеплювача, всі навантаження, у тому числі від ваги блоку, повинні передаватися на несучій внутрішній шар стіни.Крепления выполнены либо в неконструкционный материал ГБ D150, либо в стык несущего слоя с неконструкционным материалом. Нагрузка от веса блока передана на неконструкционный слой. Змінено 10 травня 2017 користувачем Dmode 2 Посилання на коментар Поділитися на інших сайтах More sharing options...
andrey-auv Опубліковано: 26 травня 2017 Поділитись Опубліковано: 26 травня 2017 Всем добрый день! Нужен Ваш совет по установке металлопластиковых окон в стену с ГБ облицовка кирпич (сникерс) 6см, кирпич подходит к углу ГБ (кирпич служит наружным откосом фото ниже). Я понимаю, что уже обсуждалось 100 раз и все остальное… в общем сильно не пинать). Изучив ДСТУ + почитал форум понял для себя что мне подходит два варианта. 1) На откос ГБ клею пенополистирол 2см. остается 4см (кирпич 6см.) из этих 4см. оставляю 2-3см. на пену остальное на хлёст окна (за кирпич), на торец кирпича клею ленту псул и дальше все как в ДСТУ. Вопрос чем с наружи закрыть ленту?? Может уголок по цвету кирпича или …?? Фото №1 2) Как предлагают выше по теме герметик на кирпич (в плотную) и дальше все как на схеме. Вопрос все же на какой герметик?? Фото №2 Подскажите какой вариант выбрать или в моем случаи есть еще варианты установки??? Посилання на коментар Поділитися на інших сайтах More sharing options...
Рекомендовані повідомлення
Створіть акаунт або увійдіть у нього для коментування
Ви маєте бути користувачем, щоб залишити коментар
Створити акаунт
Зареєструйтеся для отримання акаунта. Це просто!
Зареєструвати акаунтУвійти
Вже зареєстровані? Увійдіть тут.
Увійти зараз