SegaBagi Опубліковано: 15 лютого 2015 Поділитись Опубліковано: 15 лютого 2015 ... У Вас электроплита. ... Это я к Вашему сообщению немного подкорректировал информацию Посилання на коментар Поділитися на інших сайтах More sharing options...
Игорь&Ира Опубліковано: 16 лютого 2015 Автор Поділитись Опубліковано: 16 лютого 2015 Это я к Вашему сообщению немного подкорректировал информациюВ Вашем первом сообщении об этом ни слова, да и на рисунке варочная поверхность плоская, как при электро. Посилання на коментар Поділитися на інших сайтах More sharing options...
MiTbKo Опубліковано: 17 березня 2015 Поділитись Опубліковано: 17 березня 2015 Подскажите, пожалуйста Нужно проложить канал для вытяжки за ГК потолком. Потолок еще на стадии монтажа. Проблема в том, что опустить его больше 10 см. очень проблематично. Вытяжной канал находится прямо под потолком. Можно ли проложить вытяжку следующим способом: в канал засунуть переходник круглый-плоский (какого диаметра? 120?), далее плоским каналом 60х204 проложить до вытяжки и в конце поставить колено-переход на круглую, чтобы сразу выпустить ее из потолка? Спасибо за советы. Мучаюсь уже 2-а дня. Посилання на коментар Поділитися на інших сайтах More sharing options...
Mamaluga Опубліковано: 17 березня 2015 Поділитись Опубліковано: 17 березня 2015 Могу предложить воздуховоды из оцинкованного металла, любого сечения, что бы поместиться в межпотолочном пространстве. Посилання на коментар Поділитися на інших сайтах More sharing options...
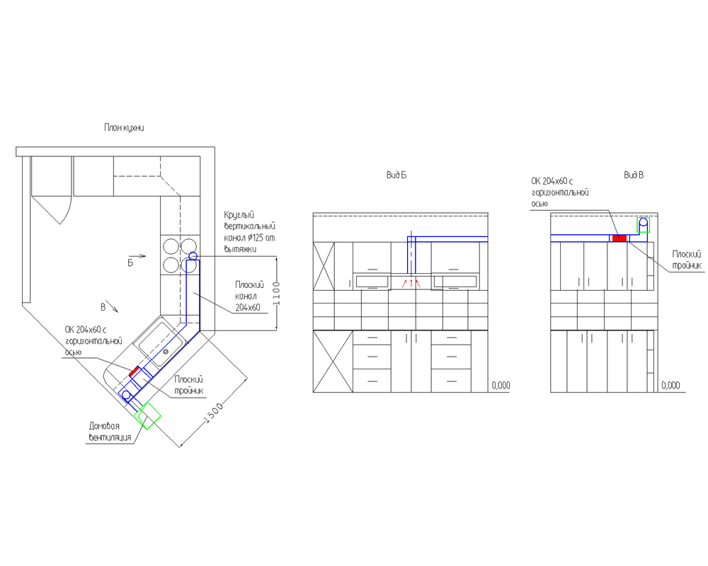
Lirick Опубліковано: 25 березня 2015 Поділитись Опубліковано: 25 березня 2015 (змінено) Уважаемые форумчане, будет ли работать данная схема вентиляции кухни (см.рис)? Прошу подсказать как необходимо данную схему усовершенствовать. Спасибо! Змінено 25 березня 2015 користувачем Lirick Посилання на коментар Поділитися на інших сайтах More sharing options...
Игорь&Ира Опубліковано: 25 березня 2015 Автор Поділитись Опубліковано: 25 березня 2015 Уважаемые форумчане, будет ли работать данная схема вентиляции кухни (см.рис)? Прошу подсказать как необходимо данную схему усовершенствовать. Спасибо! Какая плита? Посилання на коментар Поділитися на інших сайтах More sharing options...
Lirick Опубліковано: 25 березня 2015 Поділитись Опубліковано: 25 березня 2015 Какая плита? Электрическая варочная поверхность Посилання на коментар Поділитися на інших сайтах More sharing options...
Игорь&Ира Опубліковано: 25 березня 2015 Автор Поділитись Опубліковано: 25 березня 2015 Уважаемые форумчане, будет ли работать данная схема вентиляции кухни (см.рис)? Будет. Правда, поворотов очень много (+75% к расчётной мощности). Прошу подсказать как необходимо данную схему усовершенствовать. Спасибо! Возможно, обратный клапан с вертикальной осью, так как естественная тяга может не осилить вариант с горизонтальной. 1 Посилання на коментар Поділитися на інших сайтах More sharing options...
SON Опубліковано: 25 березня 2015 Поділитись Опубліковано: 25 березня 2015 будет ли работать данная схема вентиляции кухни Будет, тока с обратным клапаном возможно нужно будет "поиграться". 1. На ЕВ он работает только при вертикальном расположении оси. 2. В таком месте (по рис.) при слабой тяге в вентканале он может не открываться сам. В разе неоткрывания чуть сместите поворотную ось от вертикали, на 3-5 гр., тогда на заслонку кроме тяги будет действовать и гравитация. 1 Посилання на коментар Поділитися на інших сайтах More sharing options...
Lirick Опубліковано: 25 березня 2015 Поділитись Опубліковано: 25 березня 2015 А как же мне его (ОК) сделать, чтобы ось была вертикальной? Быть может как вариант вместо плоского тройника использовать тройник с круглым переходом посредине? Нет возможности нарисовать к сожалению сейчас. Так вот - быть может поставить этот тройник с круглым отверстием посредине, в него вставить отвод под 90 гр, а в этот отвод вставить круглый ОК? Посилання на коментар Поділитися на інших сайтах More sharing options...
Игорь&Ира Опубліковано: 25 березня 2015 Автор Поділитись Опубліковано: 25 березня 2015 А как же мне его (ОК) сделать ...? А если Ваш обратный клапан перевернуть так, чтобы горизонтальная ось была снизу? Обратный клапан при естественной вентиляции будет лежать горизонтально на дне, а при принудительной вентиляции сильный подпор воздуха переведёт его в вертикальное (закрытое) положение. Для подхвата клапана воздухом можно сделать под него небольшой упор, чтобы при естественной вентиляции он не лежал строго горизонтально, т.е., отклонение от вертикали было не 90, а 70-80 градусов. Посилання на коментар Поділитися на інших сайтах More sharing options...
SON Опубліковано: 25 березня 2015 Поділитись Опубліковано: 25 березня 2015 , а в этот отвод вставить круглый ОК? Так точно. Прямоугольные ОК на ЕВ не работают. а при принудительной вентиляции сильный подпор воздуха переведёт его в вертикальное (закрытое) положение. Моторчик кухонного зонта его не захлопнет. Посилання на коментар Поділитися на інших сайтах More sharing options...
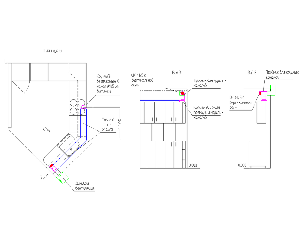
Lirick Опубліковано: 26 березня 2015 Поділитись Опубліковано: 26 березня 2015 Вот переработал схему. Теперь должно все получиться? Посилання на коментар Поділитися на інших сайтах More sharing options...
SON Опубліковано: 26 березня 2015 Поділитись Опубліковано: 26 березня 2015 Вот переработал схему. Теперь должно все получиться? Да. .................. Посилання на коментар Поділитися на інших сайтах More sharing options...
Lirick Опубліковано: 26 березня 2015 Поділитись Опубліковано: 26 березня 2015 Всем спасибо за консультации! Посилання на коментар Поділитися на інших сайтах More sharing options...
МарАнт2 Опубліковано: 2 квітня 2015 Поділитись Опубліковано: 2 квітня 2015 Прочла все и сейчас каша в голове (пенсионерка) В кухне с понедельника будет ложиться плитка до потолка - стены уже подготовлены. В дальнейшем планируется заказ кухни и покупка вытяжки с выводом на улицу, т.к. вентканал расположен через один угол. Выходит, что для вывода вентканала придется долбить плитку. Что на данном этапе возможно предпринять ? Кухня 7.6 м.кв на 7-м этаже - в доме у многих вытяжки выведены на улицу. Посилання на коментар Поділитися на інших сайтах More sharing options...
Игорь&Ира Опубліковано: 2 квітня 2015 Автор Поділитись Опубліковано: 2 квітня 2015 В дальнейшем планируется заказ кухни и покупка вытяжки с выводом на улицу, т.к. вентканал расположен через один угол. Выходит, что для вывода вентканала придется долбить плитку. Что на данном этапе возможно предпринять? Алмазное бетонорезание наружной стены под вытяжку на улицу. Посилання на коментар Поділитися на інших сайтах More sharing options...
SanYA-UA Опубліковано: 2 квітня 2015 Поділитись Опубліковано: 2 квітня 2015 ... в доме у многих вытяжки выведены на улицу. А в каком городе Вы живёте? В Полтаве специально хожу смотрю - не видел пока. Посилання на коментар Поділитися на інших сайтах More sharing options...
МарАнт2 Опубліковано: 2 квітня 2015 Поділитись Опубліковано: 2 квітня 2015 А в каком городе Вы живёте? В Полтаве специально хожу смотрю - не видел пока. Киев. Алмазное бетонорезание наружной стены под вытяжку на улицу. Игорь&Ира - спасибо! Это понятно, но уже практически некогда кого то искать для этой работы. Может купить какую то вентрешетку и обложить плиткой для дальнейшего сверления ? Некому планировать и решать, а сама не справляюсь: хорошая мысля приходит опосля :D Посилання на коментар Поділитися на інших сайтах More sharing options...
SanYA-UA Опубліковано: 2 квітня 2015 Поділитись Опубліковано: 2 квітня 2015 Киев. Спасибо! Может купить какую то вентрешетку и обложить плиткой для дальнейшего сверления? Плитка, наверняка останется - потом замените, если из-за бура расколется. Просто, потом старайтесь делать отверстие в пределах одной плитки. Или, наоборот: зная, где Вам нужно отверстие, оговорите это с плиточником. Посилання на коментар Поділитися на інших сайтах More sharing options...
МарАнт2 Опубліковано: 2 квітня 2015 Поділитись Опубліковано: 2 квітня 2015 Спасибо! Плитка, наверняка останется - потом замените, если из-за бура расколется. Просто, потом старайтесь делать отверстие в пределах одной плитки. Или, наоборот: зная, где Вам нужно отверстие, оговорите это с плиточником. Спасибо! Плитка 300х450. Посилання на коментар Поділитися на інших сайтах More sharing options...
Игорь&Ира Опубліковано: 2 квітня 2015 Автор Поділитись Опубліковано: 2 квітня 2015 Киев. Это понятно, но уже практически некогда кого то искать для этой работы. В Киеве искать? Да тут бригад больше, чем солдат в армии. Откройте любую газету с платными объявлениями. Может купить какую то вентрешетку и обложить плиткой для дальнейшего сверления? Там не всё так просто: лучше это сделать сейчас. Некому планировать и решать, а сама не справляюсь: хорошая мысляприходит опосля Алмазорезчик подскажет: планировки стандартные, опыт в наличии. Посилання на коментар Поділитися на інших сайтах More sharing options...
МарАнт2 Опубліковано: 5 липня 2015 Поділитись Опубліковано: 5 липня 2015 В Киеве искать? Да тут бригад больше, чем солдат в армии. Откройте любую газету с платными объявлениями.В наше время вряд ли стоит пользоваться такими услугами. Еле осилила в теме, что могла - мозги зашкаливает (бабуля есть бабуля). Итак: кухня 7.6 м.кв и окно постоянно открыто, вентканал в противоположном углу (длина труб составит 1.3 м + 2.7 м). Вытяжки соответственной мощности придется часто включать 3-ю скорость и шум будет ощутим (есть любители жаренного). Задумка купить Вентолюкс с 5 скоростями на 750 м3 дабы не включать на полную мощность - подойдет? Дороже - да, но не очень ощутимо. Посилання на коментар Поділитися на інших сайтах More sharing options...
Vitaliy_Goy Опубліковано: 6 липня 2015 Поділитись Опубліковано: 6 липня 2015 В наше время вряд ли стоит пользоваться такими услугами. Еле осилила в теме, что могла - мозги зашкаливает (бабуля есть бабуля). Итак: кухня 7.6 м.кв и окно постоянно открыто, вентканал в противоположном углу (длина труб составит 1.3 м + 2.7 м). Вытяжки соответственной мощности придется часто включать 3-ю скорость и шум будет ощутим (есть любители жаренного). Задумка купить Вентолюкс с 5 скоростями на 750 м3 дабы не включать на полную мощность - подойдет? Дороже - да, но не очень ощутимо. Посилання на коментар Поділитися на інших сайтах More sharing options...
МарАнт2 Опубліковано: 6 липня 2015 Поділитись Опубліковано: 6 липня 2015 Спасибо, но мне нужна вытяжка телескопическая. Совсем тихой вообще то не получится, ибо рядом оживленная улица Посилання на коментар Поділитися на інших сайтах More sharing options...
Рекомендовані повідомлення
Створіть акаунт або увійдіть у нього для коментування
Ви маєте бути користувачем, щоб залишити коментар
Створити акаунт
Зареєструйтеся для отримання акаунта. Це просто!
Зареєструвати акаунтУвійти
Вже зареєстровані? Увійдіть тут.
Увійти зараз