generiky Опубліковано: 11 січня 2022 Поділитись Опубліковано: 11 січня 2022 4 часа назад, мастерок сказал: Ну и что Вы хотите сказать или спросить? На фото и видео обычная машинная стяжка и дом или квартира спроектированные без мозгов,зона возле дверей шедевральная! это я так по инерции выложил. Может кому интересно как бывает)) На фото не дверь а окно) но да, ну такое вот Г у нас в украине делают строительные компании и крупные застройщики. Поскольку порядка нет вся ответственность перекладывается исключительно на покупателя или заказчика(хватит денег или ума) возможно что-то будет хорошее, а дальше только потом решаем вопросы с тем что есть. 1 Посилання на коментар Поділитися на інших сайтах More sharing options...
semengv Опубліковано: 12 січня 2022 Поділитись Опубліковано: 12 січня 2022 В 11.01.2022 в 11:28, мастерок сказал: Дама волнуется что высоты не хватит.Но Ваш совет всё равно в тему,если у неё какая-то очень хитрая инсталляция,то таки можно отдельно подлить подиум.Ну а утеплить под инсталляция и так никто не ставит,обычно так куча труб.Хотя для начала рекомендую таки прикинуть высоту инсталяции на месте,там прямо на ней есть отметка чистого нуля,обычно высоты хватает. Да я не волнуюсь, просто поехала в магазин и померяла. Отметка 0 есть. Не хватает 2-3 см. Это если я еще не надумаю добавить ЭППС. Из труб там только канализация и подвод воды к бачку. Но мысль поняла - долить. Хотя сделаю наоборот - долью потом. У меня унитаз будет четко в нише шир. 90 см. В месте крепления инсталяции - заливать и утеплять не буду. Сделаю это позже. 1 Посилання на коментар Поділитися на інших сайтах More sharing options...
semengv Опубліковано: 12 січня 2022 Поділитись Опубліковано: 12 січня 2022 (змінено) Раз уж начала -буду дальше мучать Мастерка вопросами. Планирую делать стяжку по частям - по комнатам. Соотв. появятся сами собой диф.швы. Но в плане дома есть выступающие углы - как избежать там появления трещин - забивать арматуру? какую и как глубоко? Толщина стен ГБ 50 см. Вся проблемка в том, что хочу слишком много - косую укладку всплошную по дому. Плитка 15х60 (может 90 см). Хотела елочкой, но сильно морочно - долго будет. Самое длинное помещение 11 м кухня-зал , до перегородки 7,7 м. Змінено 12 січня 2022 користувачем semengv Посилання на коментар Поділитися на інших сайтах More sharing options...
мастерок Опубліковано: 13 січня 2022 Автор Поділитись Опубліковано: 13 січня 2022 Зал делите по перегородке,место под камином утепляете и заливаете монолитом со всем полом.По наружным углам делаете стандартные зарезы болгаркой.Арматуру в стены я уже не использую,сетка сквозь швы наше всё. 1 Посилання на коментар Поділитися на інших сайтах More sharing options...
semengv Опубліковано: 13 січня 2022 Поділитись Опубліковано: 13 січня 2022 (змінено) 1 час назад, мастерок сказал: Зал делите по перегородке Так и планировала. 1 час назад, мастерок сказал: место под камином утепляете и заливаете монолитом со всем полом. Извиняюсь, не написала - там будет печь, поэтому утеплять не получится. 1 час назад, мастерок сказал: По наружным углам делаете стандартные зарезы болгаркой. Вот это не поняла. Какие именно углы и какие зарезы? Змінено 13 січня 2022 користувачем semengv Посилання на коментар Поділитися на інших сайтах More sharing options...
semengv Опубліковано: 13 січня 2022 Поділитись Опубліковано: 13 січня 2022 1 час назад, мастерок сказал: Арматуру в стены я уже не использую,сетка сквозь швы наше всё. С арматурой понятно, сетка будет. Кроме того будет не ЦПР, а с добавлением щебня. Есть щебень 5-20 гранитный. Но только вы его количество в секрете держите. И как потом на диф.швы ложить плитку с косой укладкой? Резать не хочется. Клей для плитки использовать дорогой? Посилання на коментар Поділитися на інших сайтах More sharing options...
oberchatov Опубліковано: 14 січня 2022 Поділитись Опубліковано: 14 січня 2022 Добрый день! Уже планирую стяжку. Прочитал много Ваших комментариев и многое уже поисправлял (мосты холода окна, двери подвод ТП впритык к окну, которое впол), с того что было изначально задумано в проекте. Есть один не решенный вопрос, по внутреннему периметру есть вот такой кусок цоколя, который прекрасно создает мост холода и обойти утеплителем не могу так как уровень чистовой стяжки у меня как раз вровень с верхушкой цоколя. Вопрос: Легче всего его убрать, но 3 см газоблока упираются в этот кирпич, стрёмно. Как лучше запаковать данную холодную часть цоколя? Посилання на коментар Поділитися на інших сайтах More sharing options...
мастерок Опубліковано: 14 січня 2022 Автор Поділитись Опубліковано: 14 січня 2022 В 13.01.2022 в 10:32, semengv сказал: С арматурой понятно, сетка будет. Кроме того будет не ЦПР, а с добавлением щебня. Есть щебень 5-20 гранитный. Но только вы его количество в секрете держите. И как потом на диф.швы ложить плитку с косой укладкой? Резать не хочется. Клей для плитки использовать дорогой? Из за фундамента печки Вам надо будет резать дополнительный шов с левого угла фундамента на левый угол эркера.Но это даже хорошо. Все наружные углы зарезаются Т-образным резом,тоже фигня вопрос.Щебень 5-20 это если слоя 6 см и более,если до 6 см,то 5-10.На мешок цемента 3 ведра щебня.Ну и насчёт швов и косой укладки,в дверных проёмал лопнет 100%,поэтому там без вариантов,реже плитку,а вот в зале помолитесь,перекреститесь,понадейтесь на щебень с сеткой и господа Бога,должно прокатить.Ну и клей класса с2 тоже не забудьте. 1 Посилання на коментар Поділитися на інших сайтах More sharing options...
мастерок Опубліковано: 14 січня 2022 Автор Поділитись Опубліковано: 14 січня 2022 4 часа назад, oberchatov сказал: Добрый день! Уже планирую стяжку. Прочитал много Ваших комментариев Вопрос: Легче всего его убрать, но 3 см газоблока упираются в этот кирпич, стрёмно. Как лучше запаковать данную холодную часть цоколя? Убирайте нафиг,3 см это вообще ни о чём. 2 Посилання на коментар Поділитися на інших сайтах More sharing options...
semengv Опубліковано: 14 січня 2022 Поділитись Опубліковано: 14 січня 2022 11 часов назад, oberchatov сказал: Легче всего его убрать, но 3 см газоблока упираются в этот кирпич, стрёмно. Как лучше запаковать данную холодную часть цоколя? У меня тоже был такой выступ. Болгаркой сверху зарезала, потом молотком все ровненько отбилось по уровню стены. Посилання на коментар Поділитися на інших сайтах More sharing options...
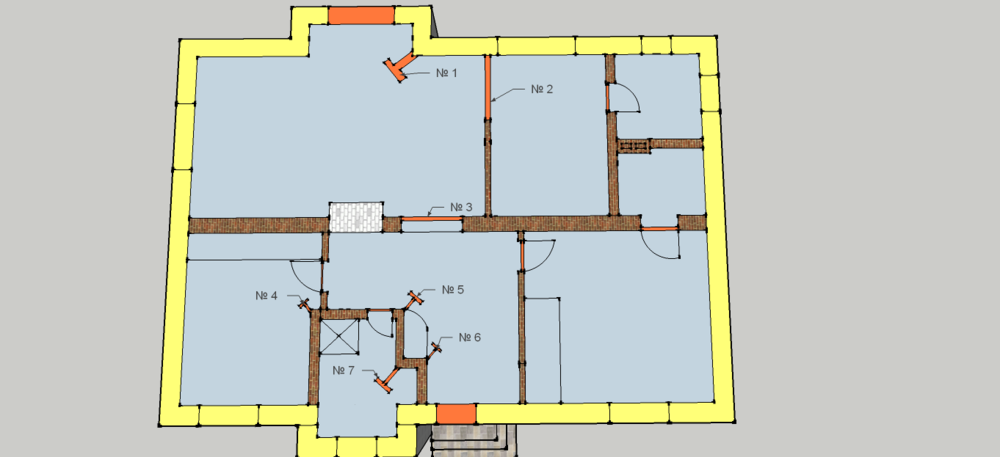
semengv Опубліковано: 15 січня 2022 Поділитись Опубліковано: 15 січня 2022 (змінено) 19 часов назад, мастерок сказал: Из за фундамента печки Вам надо будет резать дополнительный шов с левого угла фундамента на левый угол эркера.Но это даже хорошо. Все наружные углы зарезаются Т-образным резом,тоже фигня вопрос.Щебень 5-20 это если слоя 6 см и более,если до 6 см,то 5-10.На мешок цемента 3 ведра щебня.Ну и насчёт швов и косой укладки,в дверных проёмал лопнет 100%,поэтому там без вариантов,реже плитку,а вот в зале помолитесь,перекреститесь,понадейтесь на щебень с сеткой и господа Бога,должно прокатить.Ну и клей класса с2 тоже не забудьте. Не совсем понятно. Набросала примерно красным. От фундамента печи тоже Т-образные? Какие по длине их делают? Насколько глубокие. Боязно прорезать сетку или трубу. Стяжка получается более 6 см. Жду новый невилир когда придет, бо старый сдох. Думаю добавить еще 2-3 см ЭППС, тогда будет 7-9. Если на мешок цемента 3 ведра щебня, то сколько песка - 4? Фибру все равно добавляем? И еще: у меня если резать шов так, как нарисовала - не стыкуется он с контурами ТП. Я так поняла, на это мы не обращаем внимания? Раскладку контуров ТП уже менять не хочу - это из всех вариантов лучший. Примерно одинаковые длины и пр. На среднестатистический дом 110-120 кв.м. хватает двух канистр пластификатора по 5 л? И сколько фибры брать? И спасибо вам огромное. Змінено 15 січня 2022 користувачем semengv Посилання на коментар Поділитися на інших сайтах More sharing options...
мастерок Опубліковано: 15 січня 2022 Автор Поділитись Опубліковано: 15 січня 2022 От правой части фундамента Т образный,а вот от левой части просто полоска под 45 градусов к основному шву.Ну и основной шов не вести до конца,а закончить на этой полоске.Т обрезки не большие,резы аж по 20 см.Глубина 1-2 см,резать 115 или 125 болгаркой,ними Вы в принципе не сможете сделать рез глубже 2 см и повредить сетку или трубу.Цемент к песку 1:3-4,в зависимости от качества.Фибры немного,щепотка на три пальца.На контура забейте,пластификаторы бывают с разной дозировкой по цементу,просто читайте инструкцию.При обычном слое 6-7 см у Вас пойдёт 1 мешок цемента на м2 стяжки,фибры на Ваш дом надо 2-2,5 кг. 2 Посилання на коментар Поділитися на інших сайтах More sharing options...
semengv Опубліковано: 15 січня 2022 Поділитись Опубліковано: 15 січня 2022 1 час назад, мастерок сказал: От правой части фундамента Т образный Как № 1? Номера 1-7 правильно? Больше не надо ничего ? Ну кроме дверных проемов? 1 час назад, мастерок сказал: ,а вот от левой части просто полоска под 45 градусов к основному шву.Ну и основной шов не вести до конца,а закончить на этой полоске. А здесь вообще ничего не поняла, отупела наверное после короновируса. Где у нас основной шов? Посилання на коментар Поділитися на інших сайтах More sharing options...
мастерок Опубліковано: 15 січня 2022 Автор Поділитись Опубліковано: 15 січня 2022 Жаль что не умею рисовать,накалякаю от руки.Не забудьте что в дверных проёмах деформационный шов делается не по краю или середине проёма,а ровно посередине дверного полотна,обычно это минус 2 см от плоскости стены.Если стены будут облицовыватся плиткой,типа санузла,котельня,то это тоже надо учесть. 2 Посилання на коментар Поділитися на інших сайтах More sharing options...
semengv Опубліковано: 15 січня 2022 Поділитись Опубліковано: 15 січня 2022 О так теперь все понятно! Такие швы нужно сделать не зависимо от способа укладки плитки - ровно или косо? И в дверных проемах тоже плитку режем обязательно? Просто хочется косую укладку, но все будет зависеть от плитки - как куплю, попробую на образце резать - если получится более-менее ровно и без сколов - то будет косая укладка. Спасибо! Пошла искать нормальные диски для плитки. 1 Посилання на коментар Поділитися на інших сайтах More sharing options...
andrey_ka Опубліковано: 15 січня 2022 Поділитись Опубліковано: 15 січня 2022 3 години тому, semengv сказав: И в дверных проемах тоже плитку режем обязательно? Завжди де стикуються два різнодеформаційні матеріали потрібно влаштовувати деформаційний шов, і повторювати його на всіх оздоблювальних шарах. Наприклад , в одній кімнаті з ТП ви ввімкнули живлення , стяжка почала розширюватись , і в цей час в інші кімнаті живлення вимкнене (або ввімкнене в іншому діапазоні), відповідно там стяжка поводить себе зовсім по іншому . І якщо ці дві кімнати зв'язати між собою плиткою , або сіткою в товщині стяжки , то може бути , а,та,та. Посилання на коментар Поділитися на інших сайтах More sharing options...
мастерок Опубліковано: 15 січня 2022 Автор Поділитись Опубліковано: 15 січня 2022 13 минут назад, andrey_ka сказал: Завжди де стикуються два різнодеформаційні матеріали потрібно влаштовувати деформаційний шов, і повторювати його на всіх оздоблювальних шарах. Наприклад , в одній кімнаті з ТП ви ввімкнули живлення , стяжка почала розширюватись , і в цей час в інші кімнаті живлення вимкнене (або ввімкнене в іншому діапазоні), відповідно там стяжка поводить себе зовсім по іншому . І якщо ці дві кімнати зв'язати між собою плиткою , або сіткою в товщині стяжки , то може бути , а,та,та. Пане Андрій,Ви таки грамотний майстер,але не зовсім.Бо я,такий бовдур,в обов'язковому порядку через усі деформаційні шви пропускаю сітку саме для того,щоб не було а-та-та.От коли ви зрозуміете для чого це робится,тоді і будете давати поради в цій темі.Дам підказку-розуміння прийде десь після перших залитих Вашими ручками 100 000 м2 підлог. 2 Посилання на коментар Поділитися на інших сайтах More sharing options...
andrey_ka Опубліковано: 15 січня 2022 Поділитись Опубліковано: 15 січня 2022 (змінено) 1 годину тому, мастерок сказав: Бо я,такий бовдур,в обов'язковому порядку через усі деформаційні шви пропускаю сітку саме для того,щоб не було а-та-та. Вибачте , але цього робити не можна . Ви можете спростувати логіку мого попереднього посту , якщо не брати до уваги кількість залитих кв? Моя думка , чому Ви пропускаєте сітку в товщині стяжки : щоб у ваших замовників не буде претензій. Адже Ви не можете контролювати підготовку до заливки стяжки (укладання утеплювача ), багато хто його не фіксує до основи , відповідно - це впливає на рухомість стяжки , стяжок.Тому, щоб не було видимих перепадів між стяжками і вкладається сітка в товщині стяжки. Змінено 15 січня 2022 користувачем andrey_ka Посилання на коментар Поділитися на інших сайтах More sharing options...
Diablopc Опубліковано: 15 січня 2022 Поділитись Опубліковано: 15 січня 2022 7 часов назад, semengv сказал: нормальные диски для плитки. Ручной плиткорез + DISTAR DGM-S 100 HARD CERAMICS наше всё 😉 3 Посилання на коментар Поділитися на інших сайтах More sharing options...
мастерок Опубліковано: 16 січня 2022 Автор Поділитись Опубліковано: 16 січня 2022 11 часов назад, andrey_ka сказал: Вибачте , але цього робити не можна . Ви можете спростувати логіку мого попереднього посту , якщо не брати до уваги кількість залитих кв? Моя думка , чому Ви пропускаєте сітку в товщині стяжки : щоб у ваших замовників не буде претензій. Адже Ви не можете контролювати підготовку до заливки стяжки (укладання утеплювача ), багато хто його не фіксує до основи , відповідно - це впливає на рухомість стяжки , стяжок.Тому, щоб не було видимих перепадів між стяжками і вкладається сітка в товщині стяжки. Ваше припущення не вірне,логіка в Ваших постах звісно є,але в них нема досвіду.І головне тут навіть не кількість залитого,а спостереження за поведінкою стяжки через місяц,рік,три роки... Скажу більше,сітку через шви я пропускаю навіть при заливці других поверхів по бетону,от такий я неук. Вот і виходить що з точку зору Вашої логіки,та навіть логики виробників ТП,сітку через шви пропускати не можна,я бовдур так і робив раніше,і мав періодично проблеми,бо в мене довічна гарантія на стяжки.А ось як останніх років зо 3-4 став пропускати сітку скрізь шви,то не було жодної рекламації.Отаке кіно... Чисто Вам на подумати фото однієї з нових бетонних доріг,арміровка йде цілісна,вся дорога порізана швами не доходя до арматури. 2 Посилання на коментар Поділитися на інших сайтах More sharing options...
мастерок Опубліковано: 16 січня 2022 Автор Поділитись Опубліковано: 16 січня 2022 9 часов назад, Diablopc сказал: Ручной плиткорез + DISTAR DGM-S 100 HARD CERAMICS наше всё 😉 Для резки по диагонали всё таки мокрый станок пригодится. 1 Посилання на коментар Поділитися на інших сайтах More sharing options...
Diablopc Опубліковано: 16 січня 2022 Поділитись Опубліковано: 16 січня 2022 (змінено) 3 часа назад, мастерок сказал: Для резки по диагонали всё таки мокрый станок пригодится. На пол? Зачем оно, если 99% реза под плинтус уходит? Да и если плитка не полное Г, то и ручной ее нормально порежет Змінено 16 січня 2022 користувачем Diablopc Посилання на коментар Поділитися на інших сайтах More sharing options...
andrey_ka Опубліковано: 16 січня 2022 Поділитись Опубліковано: 16 січня 2022 3 години тому, мастерок сказав: І головне тут навіть не кількість залитого,а спостереження за поведінкою стяжки через місяц,рік,три роки... Чому Ви вирішили , що у мене немає такого досвіду. Якраз досвіду спостереження в мене вистачає , адже я проходжу всі етапи , як підготовку до заливки , так і заливку і подальше чистове оздоблення. Тому , якщо якісно провести підготовку (укладання утеплювача) , то і зі стяжкою (ми) ніяких проблем з перепадами не буде . Принаймі я з таким не стикався . 4 години тому, мастерок сказав: Скажу більше,сітку через шви я пропускаю навіть при заливці других поверхів по бетону,от такий я неук. Тільки не у випадку ТП. Я б побоявся зв'язувати стяжки ТП. між собою сіткою. Фіг його знає як замовник вирішить використати ТП . Раптом в одній кімнаті вжарить на всю , а інша буде в режимі незамерзання.ІМХО. Краще не ризикувати. 4 години тому, мастерок сказав: Чисто Вам на подумати Це не коректний приклад. В дорогах немає ТП. Там усі частини знаходяться в однакових умовах. Посилання на коментар Поділитися на інших сайтах More sharing options...
Propeller Опубліковано: 16 січня 2022 Поділитись Опубліковано: 16 січня 2022 7 минут назад, andrey_ka сказал: Тільки не у випадку ТП. Я б побоявся зв'язувати стяжки ТП. між собою сіткою. Фіг його знає як замовник вирішить використати ТП . Раптом в одній кімнаті вжарить на всю , а інша буде в режимі незамерзання.ІМХО. Краще не ризикувати. Дайте максимальный перепад температур, в которых работает пол с подогревом (стяжка) в условиях постоянного проживания. Потом продолжу. 7 минут назад, andrey_ka сказал: Це не коректний приклад. В дорогах немає ТП. Там усі частини знаходяться в однакових умовах. Начнем с того, что там перепад температур от -20С (планета Земля теплеет) до +50С (это с учетом цвета бетона (не черный) под Солнышком в июле). Второе : правильно в равных условиях. И это только усугубляет положение дел. То есть, все вместе расширяются и сжимаются. 1 Посилання на коментар Поділитися на інших сайтах More sharing options...
Dendnepr Опубліковано: 16 січня 2022 Поділитись Опубліковано: 16 січня 2022 4 часа назад, мастерок сказал: Для резки по диагонали всё таки мокрый станок пригодится. У моих плиточников есть и сухие и мокрые поиткооезв разного размера, но в итоге все делали болгаркой. И керамику и керамогранит. Сказали- рука уже набита, и тягать оборудование им надоело плюс куча разных форматов и не угонтшься в покупке плиткорезов под большие форматы 3 Посилання на коментар Поділитися на інших сайтах More sharing options...
Рекомендовані повідомлення
Створіть акаунт або увійдіть у нього для коментування
Ви маєте бути користувачем, щоб залишити коментар
Створити акаунт
Зареєструйтеся для отримання акаунта. Це просто!
Зареєструвати акаунтУвійти
Вже зареєстровані? Увійдіть тут.
Увійти зараз