Vikctor Опубліковано: 29 липня 2015 Поділитись Опубліковано: 29 липня 2015 Сколько анодированные желтые саморезы проживут в горизонтальной доске на улице на открытой террасе? Думаю нас переживут. У меня на них и черепки многие крепились (в техкарте производителя такой способ крепления именно на такие саморезы описывается), и крюки водосточных желобов. Даже не задумывался, что это может быть не долговечно. Dmode, дуже на Ваш будинок схожий. Не, я на фотках ТС такой горы не видел.))) С горами всё же покруче выглядит. 1 Посилання на коментар Поділитися на інших сайтах More sharing options...
blacktigra Опубліковано: 29 липня 2015 Поділитись Опубліковано: 29 липня 2015 Не, я на фотках ТС такой горы не видел.))) С горами всё же покруче выглядит. Я кстати сперва отловился даже - думаю когда это Dmode успел такой виноградник вырастить, и никто об этом не знал. 1 Посилання на коментар Поділитися на інших сайтах More sharing options...
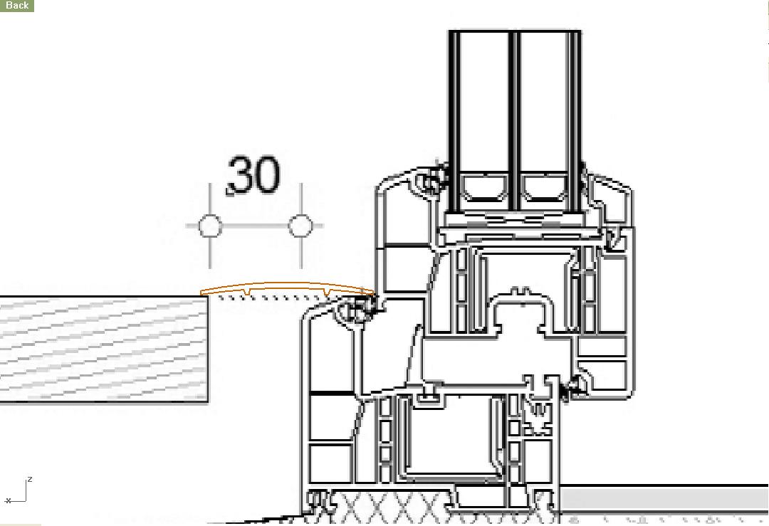
Shaver Опубліковано: 31 липня 2015 Поділитись Опубліковано: 31 липня 2015 Примыкание доски к раме в области дв.проёма уже оформили? Планирую у себя перекрыть этот зазор (10мм у меня, 30мм в Вашем случае) алюминиевым порогом по ширине дверного проёма. Один конец порога будет опираться на террасу, второй - на пвх раму, так чтобы частично (на 2-3мм) перекрывать уплотнитель на раме, практически вплотную к сворке. Крепить шурупами к раме. Рассчитываю, что такой порог защитит уплотнитель и ламинацию от износа и придаст законченный и более "дверной" вид проёму. Посилання на коментар Поділитися на інших сайтах More sharing options...
Dmode Опубліковано: 1 серпня 2015 Автор Поділитись Опубліковано: 1 серпня 2015 (змінено) Примыкание доски к раме в области дв.проёма уже оформили? Планирую у себя перекрыть этот зазор (10мм у меня, 30мм в Вашем случае) алюминиевым порогом по ширине дверного проёма. Один конец порога будет опираться на террасу, второй - на пвх раму, так чтобы частично (на 2-3мм) перекрывать уплотнитель на раме, практически вплотную к сворке. Крепить шурупами к раме. Рассчитываю, что такой порог защитит уплотнитель и ламинацию от износа и придаст законченный и более "дверной" вид проёму. Не планировал такого мероприятия. Пусть воздух гуляет между рамой и террасой, а вода косого дождя пусть стекает по подоконнику а не на террасу. Если желаете защитить профиль рамы - то крепиться желательно не к раме саморезами (раму жалко) а к самой террасе. Сам уплотнитель - это расходный материал, и его при необходимости можно элементарно заменить. Если бы я делал что-то подобное, то приблизительно так, с использованием порожного профиля шириной не менее 50мм, а возможно и более. Змінено 1 серпня 2015 користувачем Dmode Посилання на коментар Поділитися на інших сайтах More sharing options...
Shaver Опубліковано: 1 серпня 2015 Поділитись Опубліковано: 1 серпня 2015 Пусть воздух гуляет между рамой и террасой, а вода косого дождя пусть стекает по подоконнику а не на террасу.Ну пусть гуляет и стекает, слева и справа от двери. Если желаете защитить профиль рамы - то крепиться желательно не к раме саморезами (раму жалко) а к самой террасе.Согласен. Сам уплотнитель - это расходный материал, и его при необходимости можно элементарно заменить.Пробовали? Сам процесс замены уплотнителя прост, но могут возникнуть сложности с его приобретением. Он не универсален, бывает разной толщины, цвета и назначения. В супермаркетах не продается, а Ваш поставщик окон может завтра начать перерабатывать др. профиль, кот. комплектуется другим уплотнителем. Впрочем бог с ним, с уплотнителем, чё ему сделается? Я больше о ламинации пекусь. Практика показывает, что пользуясь дверью, все так и норовят наступить на раму. Посилання на коментар Поділитися на інших сайтах More sharing options...
InSAn Опубліковано: 1 серпня 2015 Поділитись Опубліковано: 1 серпня 2015 Ну пусть гуляет и стекает, слева и справа от двери. Полиуретановый герметик спасет отца русской демократии Посилання на коментар Поділитися на інших сайтах More sharing options...
vinnie Опубліковано: 3 серпня 2015 Поділитись Опубліковано: 3 серпня 2015 Похвастайтесь фоткой того, что сейчас постелено. термососна, масло единоразово пока по маркости - где-то неделю не мыли, следа заметны и пыль... может тикурила и меньше будет мазаться. специально походил когда солнце было в зените - доска теплая, но ходить вполне комфортно. 3 Посилання на коментар Поділитися на інших сайтах More sharing options...
Dmode Опубліковано: 3 серпня 2015 Автор Поділитись Опубліковано: 3 серпня 2015 Пробовали? Сам процесс замены уплотнителя прост, но могут возникнуть сложности с его приобретением. Он не универсален, бывает разной толщины, цвета и назначения. В супермаркетах не продается, а Ваш поставщик окон может завтра начать перерабатывать др. профиль, кот. комплектуется другим уплотнителем. Не пробовал, но надо скоро попробовать, поскольку повредил уже уплотнитель в нескольких местах. Поставщик окон утверждал что без проблем могу взять уплотнителя сколько нужно. Думал как сохранить/законсервировать саморезы в лагах - остановился на парафине . Закапал свечкой. В том месте где парафин впитывается в дерево, вода не просачивается вообще. 5 Посилання на коментар Поділитися на інших сайтах More sharing options...
Sumchanka Опубліковано: 4 серпня 2015 Поділитись Опубліковано: 4 серпня 2015 Давно хотела спросить по шикарной кровати : не прикидывали бюджет? Возник вопрос смены такого предмета мебели и пытаюсь сподвигнуть на подвиг мужа, ну и себя в качестве ассистента на: пошкурить, возможно брашировать, покрасить- ну как-то так... Посилання на коментар Поділитися на інших сайтах More sharing options...
Dmode Опубліковано: 4 серпня 2015 Автор Поділитись Опубліковано: 4 серпня 2015 (змінено) Давно хотела спросить по шикарной кровати : не прикидывали бюджет? Дерево у меня было с прошлых лет. Его в ней около 0.16 м3. Если брать свежепил и самому сушить, сэкономите на сушке. У нас сейчас если не ошибаюсь свежепил по около 1700 грн, х 16м3=272 грн. + морилка, + лак, + крепления шарнирного соединения спинки, + ламели. Вообще ламели самый дорогой элемент. Комплект ламелей под такую кровать в Юске стоил около 1000грн. На первой кровати на ламелях сэкономил, потому как они достались бесплатно. Но от них можно отказаться при желании удешевить, в пользу фанеры или осб/дсп. Змінено 4 серпня 2015 користувачем Dmode 3 Посилання на коментар Поділитися на інших сайтах More sharing options...
sergij68 Опубліковано: 4 серпня 2015 Поділитись Опубліковано: 4 серпня 2015 ...дико извиняюсь . тыкните, где кровать описывали ? руки чешуться самому сделать .. Посилання на коментар Поділитися на інших сайтах More sharing options...
Dmode Опубліковано: 4 серпня 2015 Автор Поділитись Опубліковано: 4 серпня 2015 (змінено) ...дико извиняюсь . тыкните, где кровать описывали ? руки чешуться самому сделать .. Вот основные посты где фигурирует кровать: www.stroimdom.com.ua/forum/showpost.php?p=3430363&postcount=729 www.stroimdom.com.ua/forum/showpost.php?p=3430369&postcount=730 www.stroimdom.com.ua/forum/showpost.php?p=3430933&postcount=737 www.stroimdom.com.ua/forum/showpost.php?p=3431051&postcount=744 www.stroimdom.com.ua/forum/showpost.php?p=3465449&postcount=781 Кстати в новой версии кровати учтено, и усилено слабое место бдительно замеченное Игорехой. Как-то так: Змінено 4 серпня 2015 користувачем Dmode 7 Посилання на коментар Поділитися на інших сайтах More sharing options...
Dmode Опубліковано: 20 серпня 2015 Автор Поділитись Опубліковано: 20 серпня 2015 Cарайки нет, и жалко было терять место под террасой. Вот такие "нычки" получились для всякой садовой утвари. 21 Посилання на коментар Поділитися на інших сайтах More sharing options...
alfa77 Опубліковано: 20 серпня 2015 Поділитись Опубліковано: 20 серпня 2015 Cарайки нет, и жалко было терять место под террасой. Вот такие "нычки" получились для всякой садовой утвари. Ох как интересно будет что-то поискать через пару лет в такой "нычке".....особенно посередине террасы, ближе к дому :D Записывайте что туда будете складывать и в какой последовательности! Посилання на коментар Поділитися на інших сайтах More sharing options...
jenkins Опубліковано: 20 серпня 2015 Поділитись Опубліковано: 20 серпня 2015 Было бы еще прикольнее сделать чтото типа гиганской шухлядки под этим всем Посилання на коментар Поділитися на інших сайтах More sharing options...
Dmode Опубліковано: 20 серпня 2015 Автор Поділитись Опубліковано: 20 серпня 2015 особенно посередине террасы, ближе к дому :D Ясное дело что "нычки" только по периметру, никаких вглубь террасы. Основные по бокам, так как открываются без замков, и по фасаду - для редко требующегося. 2 Посилання на коментар Поділитися на інших сайтах More sharing options...
Oto Опубліковано: 23 серпня 2015 Поділитись Опубліковано: 23 серпня 2015 Спасибо за тему! Приятно все так подробно изучать начинающим. А терраса каких размеров? 1 Посилання на коментар Поділитися на інших сайтах More sharing options...
Dmode Опубліковано: 23 серпня 2015 Автор Поділитись Опубліковано: 23 серпня 2015 А терраса каких размеров?Длина 11м, ширина 3м. Посилання на коментар Поділитися на інших сайтах More sharing options...
Dmode Опубліковано: 22 вересня 2015 Автор Поділитись Опубліковано: 22 вересня 2015 Вопрос из лички Подскажите как армировать углы в ушп и Т образные участки. Было бы здорово если скините фото. Заранее спасибо. Кроме этих фото, есть еще такие, правда все в слабом разрешении. У меня была "прямая" анкеровка. Пособие к СП 52-101-2003. АНКЕРОВКА АРМАТУРЫ 5.29. Анкеровку арматуры осуществляют одним из следующих способов или их сочетанием: - в виде прямого окончания стержня (прямая анкеровка); - с загибом на конце стержня в виде крюка, отгиба (лапки) или петли; - с приваркой или установкой поперечных стержней; - с применением специальных анкерных устройств на конце стержня. 5.30. Прямую анкеровку и анкеровку с лапками допускается применять только для арматуры периодического профиля. Если расчетное сечение арматуры относительно невелико, то можно поизголяться с загибами. Но это насколько понимаю перестраховка. В книге Сажина приводится еще такой пример армирования, с дополнительным диагональным стержнем. 7 Посилання на коментар Поділитися на інших сайтах More sharing options...
blacktigra Опубліковано: 28 вересня 2015 Поділитись Опубліковано: 28 вересня 2015 Так сейчас выглядит циклон после апгрейда. Подскажите - где покупали циклон? Посилання на коментар Поділитися на інших сайтах More sharing options...
Dmode Опубліковано: 28 вересня 2015 Автор Поділитись Опубліковано: 28 вересня 2015 Подскажите - где покупали циклон? На али, aliexpress.com/item/High-quality-cyclone-dust-collector-1pc/32250720122.html 1 Посилання на коментар Поділитися на інших сайтах More sharing options...
z1305 Опубліковано: 29 вересня 2015 Поділитись Опубліковано: 29 вересня 2015 Не сочтите за оффтоп, но хочу выразить свою глубокую признательность за очень познавательную, многоплановую и (практически уверен) выработанную долгими часами поиска ответов и решений тему. Думаю, не только мне, а и очень многим пользователям форума Вы подсказали оптимальные варианты по большому ряду вопросов. Ещё раз спасибо, за потраченное на создание темы время. 16 Посилання на коментар Поділитися на інших сайтах More sharing options...
BrotherSam Опубліковано: 30 вересня 2015 Поділитись Опубліковано: 30 вересня 2015 Думаю, не только мне, а и очень многим пользователям форума Вы подсказали оптимальные варианты по большому ряду вопросов. Ещё раз спасибо, за потраченное на создание темы время. А Вы что, где, из чего строите? ;) Посилання на коментар Поділитися на інших сайтах More sharing options...
z1305 Опубліковано: 30 вересня 2015 Поділитись Опубліковано: 30 вересня 2015 А Вы что, где, из чего строите? ;) когда создам свою тему, отвечу на Ваш вопрос а в этой, не буду мешать автору рассказывать о своём пути к отличному дому Посилання на коментар Поділитися на інших сайтах More sharing options...
BrotherSam Опубліковано: 1 жовтня 2015 Поділитись Опубліковано: 1 жовтня 2015 когда создам свою тему Ждем с нетерпением Посилання на коментар Поділитися на інших сайтах More sharing options...
Рекомендовані повідомлення
Створіть акаунт або увійдіть у нього для коментування
Ви маєте бути користувачем, щоб залишити коментар
Створити акаунт
Зареєструйтеся для отримання акаунта. Це просто!
Зареєструвати акаунтУвійти
Вже зареєстровані? Увійдіть тут.
Увійти зараз