2778 Опубліковано: 13 травня 2020 Поділитись Опубліковано: 13 травня 2020 Какой трубой ( интересует диаметр) проложить основную магисттраль канальи в частном доме, 1 этаж слив в септик 6 метров от дома? Посилання на коментар Поділитися на інших сайтах More sharing options...
standov Опубліковано: 13 травня 2020 Поділитись Опубліковано: 13 травня 2020 Перевода с чего на что? Технически "снять фаску" и "сделать фаску" это одно и то же. Я уверен, что Сергей прекрасно понимает что пишет, просто допустил опечатку. выражение же такое ) "недопонимание". Я не сомневаюсь ниразу что Сергей прекрасно понимает что пишет. Как я понял в итоге - после зенковки получается глубокая фаска на всю стенку водорозетки, и с-но ее желательно подточить 1 Посилання на коментар Поділитися на інших сайтах More sharing options...
Vikctor Опубліковано: 13 травня 2020 Поділитись Опубліковано: 13 травня 2020 Какой трубой ( интересует диаметр) проложить основную магисттраль канальи в частном доме, 1 этаж слив в септик 6 метров от дома? А какие есть варианты? Посилання на коментар Поділитися на інших сайтах More sharing options...
blacktigra Опубліковано: 13 травня 2020 Поділитись Опубліковано: 13 травня 2020 Как я понял в итоге - после зенковки получается глубокая фаска на всю стенку водорозетки, и с-но ее желательно подточить Не, не так. Снять фаску - это убрать острую грань, которая образовалась после предыдущей обработки детали. Зенкер снимает (делает) фаску. Слева труба обрезанная болгаркой, справа зенкером сняли (сделали) фаску. И далась мне эта фаска... Посилання на коментар Поділитися на інших сайтах More sharing options...
standov Опубліковано: 13 травня 2020 Поділитись Опубліковано: 13 травня 2020 Не, не так. Снять фаску - это убрать острую грань, которая образовалась после предыдущей обработки детали. Зенкер снимает (делает) фаску. Слева труба обрезанная болгаркой, справа зенкером сняли (сделали) фаску. И далась мне эта фаска... Та я знаю что значит снять фаску и что такое зенкер ) НО Процитирую "Фаску убрали болгаркой, резьбу прогнали мечиком." ;) Зенкер диаметром больше розетки, срезает розетку но оставляет фаску на всю толщину (острую с одной стороны), вот ее видимо болгаркой Посилання на коментар Поділитися на інших сайтах More sharing options...
blacktigra Опубліковано: 13 травня 2020 Поділитись Опубліковано: 13 травня 2020 Какой трубой ( интересует диаметр) проложить основную магисттраль канальи в частном доме, 1 этаж слив в септик 6 метров от дома? www.ostendorf-kunststoffe.com/en/products/wastewater-pipes 110 мм Или аналог. Лучше не ниже, чем SN4. Добавлено через 2 минуты Зенкер диаметром больше розетки, срезает розетку но оставляет фаску на всю толщину (острую с одной стороны), вот ее видимо болгаркой Вы сперва пишете что вроде все понимаете, но потом пишете то, из чего я делаю вывод что не совсем. Или я перестал понимать русским по белому. Добавлено через 3 минуты А, все я допер. Внимательно посмотрел фото Сергея. Болгаркой снимали не фаску, а острую кромку. Теперь все сходится. Посилання на коментар Поділитися на інших сайтах More sharing options...
standov Опубліковано: 13 травня 2020 Поділитись Опубліковано: 13 травня 2020 Я так и не понял что вы не понимаете из того что не понял я (а потом понял). Зенкер вгрызается в водорозетку - срезает с нее лишнее но по своей природе (профилю) оставляет рабочую плоскость под углом (например 45) и получается глубокая фаска внутри и острая грань снаружи. Вроде все логично ) 1 Посилання на коментар Поділитися на інших сайтах More sharing options...
blacktigra Опубліковано: 13 травня 2020 Поділитись Опубліковано: 13 травня 2020 Я так и не понял что вы не понимаете из того что не понял я (а потом понял). Зенкер вгрызается в водорозетку - срезает с нее лишнее но по своей природе (профилю) оставляет рабочую плоскость под углом (например 45) и получается глубокая фаска внутри и острая грань снаружи. Вроде все логично ) Я думал, что все это время болгаркой снимали фаску. А оказалось, что острую кромку. Зенковка, это не фреза, и при срезе лишнего она оставляет фаску. Вот ее и приходиться снимать. тут явно сложности перевода. Я прочитал "снять фаску" как "сделать фаску". Я подразумевалось "убрать лишнюю" судя по всему Как я понял в итоге - после зенковки получается глубокая фаска на всю стенку водорозетки, и с-но ее желательно подточить Зенкер диаметром больше розетки, срезает розетку но оставляет фаску на всю толщину (острую с одной стороны), вот ее видимо болгаркой Я просто разбалован, и привык что каждая операция имеет конкретное название. Чтобы не вышло так, что мы снимаем этим самым вот это вот, и получилось так себе. Посилання на коментар Поділитися на інших сайтах More sharing options...
Мимопроходящий Опубліковано: 13 травня 2020 Поділитись Опубліковано: 13 травня 2020 Да можно и так. Обыкновенный комнатный термостат (можно радиоуправляемый) и простой сервопривод. Только температуру будете регулировать поэтажно, а не по зонно Да так и нужно, поэтажно. Посилання на коментар Поділитися на інших сайтах More sharing options...
B.S.V. Опубліковано: 13 травня 2020 Автор Поділитись Опубліковано: 13 травня 2020 А оказалось, что острую кромку. Хватит придираться к словам Все все прекрасно поняли. Зеньковка сделала фаску внутри водорозетки. На фото видно. Болгаркой сточили фаску (острую кромку) вровень с плиткой 2 Посилання на коментар Поділитися на інших сайтах More sharing options...
blacktigra Опубліковано: 14 травня 2020 Поділитись Опубліковано: 14 травня 2020 Хватит придираться к словам Все все прекрасно поняли. Зеньковка сделала фаску внутри водорозетки. На фото видно. Болгаркой сточили фаску (острую кромку) вровень с плиткой И по этому случаю анекдот. Маугли и Каа сидят под пальмой. Каа только что поел и наслаждается ситуацией а Маугли к нему пристает с дурацкими вопросами: — Каа, а видишь вон на высокой пальме банан? — Ну, вижу... — А Багира сможет его достать? — Нет, Маугли, не сможет. — А Балу сможет его достать? — Нет, Маугли, не сможет. — А ты, Каа, сможешь его достать? — Нет, Маугли, не смогу. — А я смогу его достать? — Достанешь, Маугли, достанешь. Ты, с@ка, кого хочешь достанешь... 5 Посилання на коментар Поділитися на інших сайтах More sharing options...
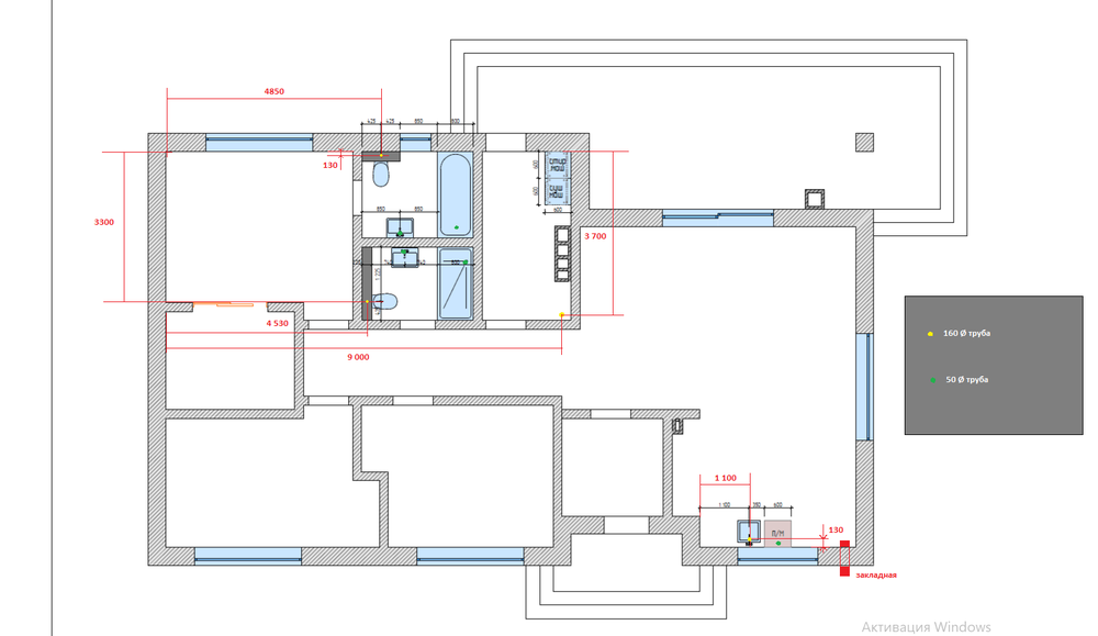
2778 Опубліковано: 14 травня 2020 Поділитись Опубліковано: 14 травня 2020 Добрый вечер! Помогите нарисовать схему канализации Посилання на коментар Поділитися на інших сайтах More sharing options...
2778 Опубліковано: 14 травня 2020 Поділитись Опубліковано: 14 травня 2020 А какие есть варианты? 110 -160 Посилання на коментар Поділитися на інших сайтах More sharing options...
razzil Опубліковано: 14 травня 2020 Поділитись Опубліковано: 14 травня 2020 Добрый вечер! Помогите нарисовать схему канализации Рисовал на телефоне, но старался, чесслово! И не морочьте голову 160й трубой, и если у вас септик, то фановая труба ему на пользу, а её не увидел. 1 Посилання на коментар Поділитися на інших сайтах More sharing options...
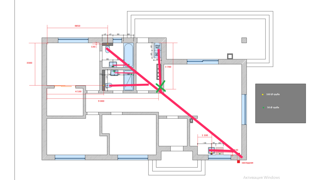
naupv Опубліковано: 14 травня 2020 Поділитись Опубліковано: 14 травня 2020 Зря вы по диагонали дома нарисовали центральную магистраль. Если вдруг чего, нужно будет пол дома поломать. А если сделать по ленте фундамента (и крепить есть к чему) по периметру, то в случае не предвиденных обстоятельств, долбить нужно будет только вдоль стен. Посилання на коментар Поділитися на інших сайтах More sharing options...
Vikctor Опубліковано: 14 травня 2020 Поділитись Опубліковано: 14 травня 2020 Зря вы по диагонали дома нарисовали центральную магистраль. Если вдруг чего, нужно будет пол дома поломать. А если сделать по ленте фундамента (и крепить есть к чему) по периметру, то в случае не предвиденных обстоятельств, долбить нужно будет только вдоль стен. С точки зрения разрушений разница не очевидна... 2 Посилання на коментар Поділитися на інших сайтах More sharing options...
StNick Опубліковано: 14 травня 2020 Поділитись Опубліковано: 14 травня 2020 С точки зрения разрушений разница не очевидна... особенно при наличии водяного теплого пола P.S. у себя кстати тоже кидал по диагонали через пол дома. 1 Посилання на коментар Поділитися на інших сайтах More sharing options...
razzil Опубліковано: 14 травня 2020 Поділитись Опубліковано: 14 травня 2020 Если вдруг чего а можно пару примеров, какое бывает "чего"? Я не подкалываю, просто интересно. У себя вот тож запроектировал максимально прямую тряссу, бо как по мне, - наиболее вероятная угроза это засоры, а чем траса прямее тем их легче ликвидировать. Посилання на коментар Поділитися на інших сайтах More sharing options...
-electron- Опубліковано: 14 травня 2020 Поділитись Опубліковано: 14 травня 2020 А какие есть варианты? Сусід собі 160 проклав. Ну щоб не забилось. Дивно що з таким підходом не колектор 500ка. Добавлено через 8 минут а можно пару примеров, какое бывает "чего"? Я не подкалываю, просто интересно. У себя вот тож запроектировал максимально прямую тряссу, бо как по мне, - наиболее вероятная угроза это засоры, а чем траса прямее тем их легче ликвидировать. Просадка труби. От одна з можливих причин. Камрад запропонував трубу кріпити до фундаменту щоб не просіла. А то може бути як в сусідів. Прокинули канашку по діагоналі з виходами в середині а не під стіною. Звісно те все не закріплено. А потім екскаватор ковшом засипав землю в середину фундаменту. Та ще й заїхав в середину трамбувати. Ага прям по не закріплених трубах. Цікаво знати як воно зараз працює 1 Посилання на коментар Поділитися на інших сайтах More sharing options...
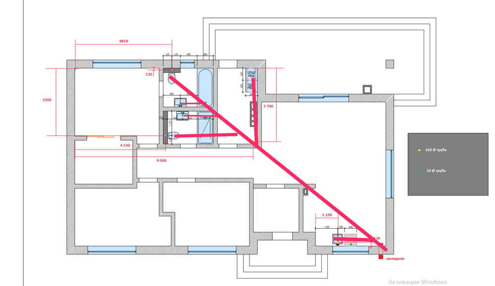
2778 Опубліковано: 14 травня 2020 Поділитись Опубліковано: 14 травня 2020 Рисовал на телефоне, но старался, чесслово! И не морочьте голову 160й трубой, и если у вас септик, то фановая труба ему на пользу, а её не увидел. Спасибо за схему, вопрос по фановому стояку. Хочу его разместить в тех помещении (отметил крестом зеленым) , нормально будет работать или лучше возле дальнего санузла? Посилання на коментар Поділитися на інших сайтах More sharing options...
razzil Опубліковано: 14 травня 2020 Поділитись Опубліковано: 14 травня 2020 Спасибо за схему, вопрос по фановому стояку. Хочу его разместить в тех помещении (отметил крестом зеленым) , нормально будет работать или лучше возле дальнего санузла? в одноэтажном доме задача фановой трубы - обеспечить вентиляцию септика, срывов затворов в любом случае быть не должно, поэтому точка выхода фановой не критична. 1 Посилання на коментар Поділитися на інших сайтах More sharing options...
Мимопроходящий Опубліковано: 14 травня 2020 Поділитись Опубліковано: 14 травня 2020 Уважаемые, хочу организовать регулировку температуры на каждом этаже свою. Радиатор только в прихожей. Отопление ТП. Для этого думаю поставить отдельно по смесительному узлу на этаж и на трехходовой повесить моторчик, который будет получать команду от термостата. Будет-ли это работать? Может есть другие решения?Можно и без узлов, моторчика хватит Два дня дня думал , не пойму, не подскажете, как без смесительных узлов? Посилання на коментар Поділитися на інших сайтах More sharing options...
murava Опубліковано: 14 травня 2020 Поділитись Опубліковано: 14 травня 2020 Подсказать могу, но мой совет выбьется из всех привычных канонов. Делаете просто: регулятор с датчиком темп пола и воздуха в каждую комнату + этот регулятор управляет закрытием или открытием соответствующего контура теплого пола. И глубоко фиолетово какую температуру вы подадите в трубу - регулятор отсечет лишнее 1 Посилання на коментар Поділитися на інших сайтах More sharing options...
Мимопроходящий Опубліковано: 14 травня 2020 Поділитись Опубліковано: 14 травня 2020 Подсказать могу, но мой совет выбьется из всех привычных канонов. Делаете просто: регулятор с датчиком темп пола и воздуха в каждую комнату + этот регулятор управляет закрытием или открытием соответствующего контура теплого пола. И глубоко фиолетово какую температуру вы подадите в трубу - регулятор отсечет лишнее Спасибо. Но это наверное слишком затратно. Мне хотя-бы по этажную регулировку сделать. Что-бы каждый этаж жил независимо друг от друга. Посилання на коментар Поділитися на інших сайтах More sharing options...
blacktigra Опубліковано: 15 травня 2020 Поділитись Опубліковано: 15 травня 2020 в одноэтажном доме задача фановой трубы - обеспечить вентиляцию септика, срывов затворов в любом случае быть не должно, поэтому точка выхода фановой не критична. При выборе места выхода фановой трубы не стоит забывать о преобладающем направлении ветра в течении года, и ветровой тени. У меня все ложилось так, что основная зона отдыха оказалась с подветренной стороны дома (хорошо), перед которой на кровле выведена фановая (не очень хорошо). Добавлено через 4 минуты Спасибо. Но это наверное слишком затратно. Мне хотя-бы по этажную регулировку сделать. Что-бы каждый этаж жил независимо друг от друга. Ставите на каждом этаже по одному термостату в эталонном помещении (обычно самое холодное), этот термостат перекрывает сервопривод на подаче в гребенку этого этажа когда это помещение прогреется. При запросе от любого из термостатов включается котел, и открывается привод на соответствующую зону. Понадобится перепускной клапан. Вместо радиатора поставьте обычный настенный электро-конвектор, тогда смесительные узлы не нужны. 3 Посилання на коментар Поділитися на інших сайтах More sharing options...
Рекомендовані повідомлення
Створіть акаунт або увійдіть у нього для коментування
Ви маєте бути користувачем, щоб залишити коментар
Створити акаунт
Зареєструйтеся для отримання акаунта. Це просто!
Зареєструвати акаунтУвійти
Вже зареєстровані? Увійдіть тут.
Увійти зараз