tyrd Опубліковано: 23 березня 2016 Поділитись Опубліковано: 23 березня 2016 Тоді перепрошую, дійсно не додивився. В якості компенсації покажу ще один ескіз планування в один поверх. Хоча там наявне слово "коридор", надіюсь не закидають мене цеглою ). Еще немного и в этой теме будет идеальный для меня дом) Но все равно Z10 везде просматриваеться 1 Посилання на коментар Поділитися на інших сайтах More sharing options...
ChuykoArchitecture Опубліковано: 23 березня 2016 Поділитись Опубліковано: 23 березня 2016 Еще немного и в этой теме будет идеальный для меня дом) Но все равно Z10 везде просматриваеться Я щось мало подібного з моїм варіантом знайшов. Не подобається мені одинокий санвузол посеред будинку і при спальні. Комунікації від нього до нього тягнути не надто розумно. А так то взагалі всі проекти можна підігнати під типову схему. Всюди є тамбур, хол, паливна, санвузол, кухня-вітальня, кілька кімнат і ванна. Написати б бота, якому задаєш параметри і він видає планування ) 1 Посилання на коментар Поділитися на інших сайтах More sharing options...
tyrd Опубліковано: 23 березня 2016 Поділитись Опубліковано: 23 березня 2016 Я щось мало подібного з моїм варіантом знайшов. Не подобається мені одинокий санвузол посеред будинку і при спальні. Комунікації від нього до нього тягнути не надто розумно. А так то взагалі всі проекти можна підігнати під типову схему. Всюди є тамбур, хол, паливна, санвузол, кухня-вітальня, кілька кімнат і ванна. Написати б бота, якому задаєш параметри і він видає планування ) Было бы хорошо с ботом) да и когда смотрю проэкты то вроде он их и делал для меня общее три спальни, одна разделена санузлом и кухня с гостиной отдельно. Таких одноэтажников вообще не нахожу или коридоров на 30 метров Посилання на коментар Поділитися на інших сайтах More sharing options...
ChuykoArchitecture Опубліковано: 23 березня 2016 Поділитись Опубліковано: 23 березня 2016 Было бы хорошо с ботом) да и когда смотрю проэкты то вроде он их и делал для меня общее три спальни, одна разделена санузлом и кухня с гостиной отдельно. Таких одноэтажников вообще не нахожу или коридоров на 30 метров Я завжди намагаюсь уникати коридорів. Теж вважаю їх даремно витраченою площею. Нормальне співвідношення коридорів/холів до загальної площі щоб було 1:8-1:10 (10-15%) 1 Посилання на коментар Поділитися на інших сайтах More sharing options...
qawsed12qawse Опубліковано: 23 березня 2016 Поділитись Опубліковано: 23 березня 2016 Было бы хорошо с ботом) да и когда смотрю проэкты то вроде он их и делал для меня общее три спальни, одна разделена санузлом и кухня с гостиной отдельно. Таких одноэтажников вообще не нахожу или коридоров на 30 метров Ну так покажите свой идеал 1 Посилання на коментар Поділитися на інших сайтах More sharing options...
tyrd Опубліковано: 23 березня 2016 Поділитись Опубліковано: 23 березня 2016 Ну так покажите свой идеал Пробовал я рисовать в програмках, не дано к сожалению. Думаю скоро будем выбирать архитектора и его просить. Посилання на коментар Поділитися на інших сайтах More sharing options...
vadimv Опубліковано: 23 березня 2016 Поділитись Опубліковано: 23 березня 2016 (змінено) три спальни, одна разделена санузлом и кухня с гостиной отдельно. Таких одноэтажников вообще не нахожу или коридоров на 30 метровНе совсем понятно, что имеется в виду под "одна разделена санузлом", а так вот (один с коридором 12 кв.м, второй с холлом 8 кв.м): Змінено 23 березня 2016 користувачем vadimv 1 Посилання на коментар Поділитися на інших сайтах More sharing options...
goga777 Опубліковано: 23 березня 2016 Автор Поділитись Опубліковано: 23 березня 2016 Звукоізоляція між вітальнею та санвузломвещь необходимая вітальня шириною 5 мне согласен, по ощущениям 5 метров это самое оптимальное дуже далеко як до каміна, так і до телевізорав гостинной телевизор рекомендую заменить на проектор Начало Барановки.класс, это родина моего отца Еще немного и в этой теме будет идеальный для меня домв этом и задача 1 Посилання на коментар Поділитися на інших сайтах More sharing options...
vadimv Опубліковано: 23 березня 2016 Поділитись Опубліковано: 23 березня 2016 в гостинной телевизор рекомендую заменить на проекторТак а к камину приходится придвигаться поближе, иначе только светит, но не греет. класс, это родина моего отцаДа, места тут красивые - сосновый лес, речка, озера, луга. А за речкой, в Зеленом Гаю - так вообще красотища. 1 Посилання на коментар Поділитися на інших сайтах More sharing options...
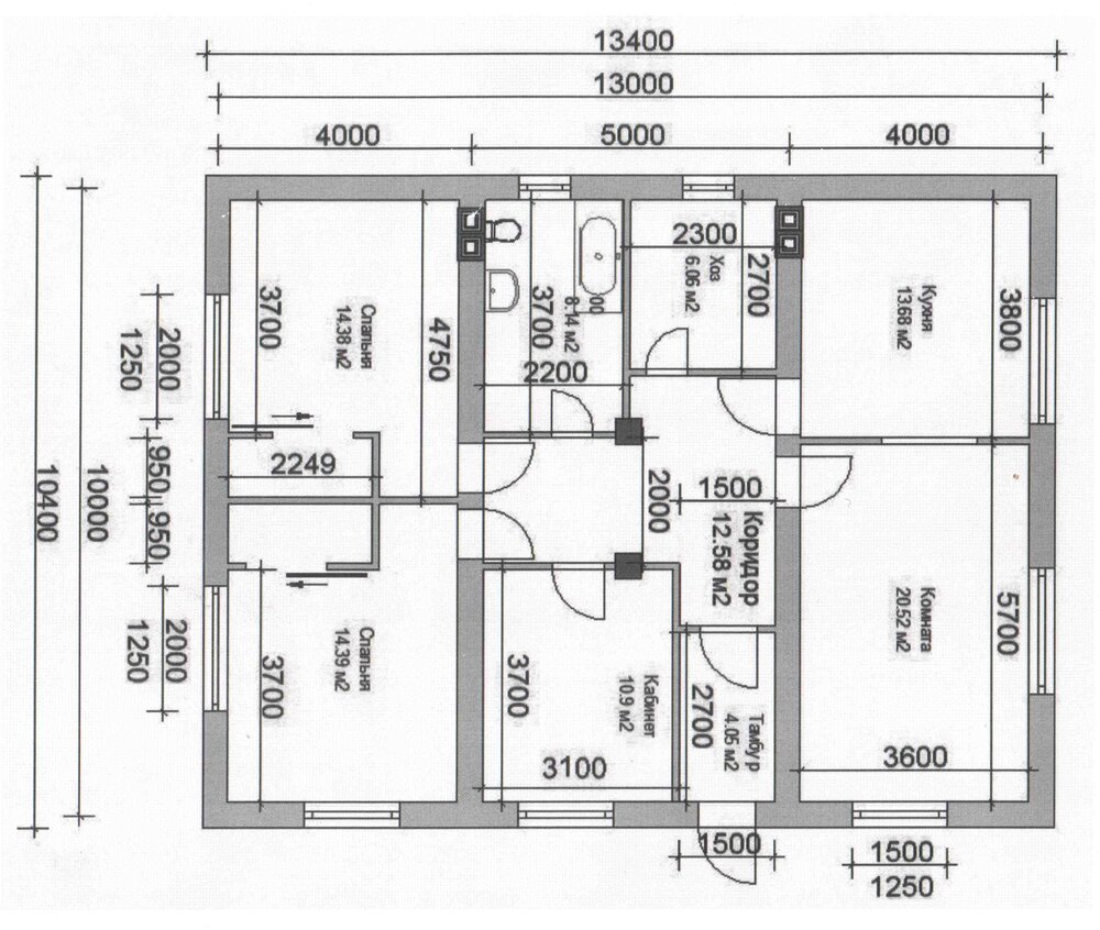
qawsed12qawse Опубліковано: 23 березня 2016 Поділитись Опубліковано: 23 березня 2016 Пробовал я рисовать в програмках, не дано к сожалению. Думаю скоро будем выбирать архитектора и его просить. Ну так на бумажке, ручкой и фотку. Реальные идеи и изящные решения не зависят от способа рисования. Хоть мелом на стене. Добавлено через 3 минуты Не совсем понятно, что имеется в виду под "одна разделена санузлом", а так вот (один с коридором 12 кв.м, второй с холлом 8 кв.м): Одноэтажник в 90 м2 это вообще идеал , причем довольно старый ему лет 50. Это нисколько не умаляет его достоинства. Прошу всех обратить внимание, кому размер и расположение подходит. 4 Посилання на коментар Поділитися на інших сайтах More sharing options...
dobrobud1 Опубліковано: 23 березня 2016 Поділитись Опубліковано: 23 березня 2016 как вам такой вариант планировки? взято отсюда www.houseplans.com/plan/1123-square-feet-3-bedrooms-2-bathroom-ranch-house-plans-0-garage-3529 На его основе начинаем делать проект. -Есть идея добавить 2 антресоли над с/у -оставить второй свет в GREAT ROOM -на месте постирочной сделаем котельню и увеличим ее в 2раза за счет родительского С/У Буду рад рационализаторским предложениям. 2 Посилання на коментар Поділитися на інших сайтах More sharing options...
Татьяна5 Опубліковано: 23 березня 2016 Поділитись Опубліковано: 23 березня 2016 -Есть идея добавить 2 антресоли над с/у -оставить второй свет в GREAT ROOM -на месте постирочной сделаем котельню и увеличим ее в 2раза за счет родительского С/У а как кровля должна на нем выглядеть по форме? Посилання на коментар Поділитися на інших сайтах More sharing options...
dobrobud1 Опубліковано: 23 березня 2016 Поділитись Опубліковано: 23 березня 2016 а как кровля должна на нем выглядеть по форме? двухскатная со слуховыми окнами там на картинке видно. конек вдоль стороны 38футов. на фасаде врезаны два слуховых окна Во двор думаю одно окно и терасса. Еще не решил сломать, продолжить или отдельный скат. Посилання на коментар Поділитися на інших сайтах More sharing options...
Татьяна5 Опубліковано: 23 березня 2016 Поділитись Опубліковано: 23 березня 2016 двухскатная фермами? или прогоны? Посилання на коментар Поділитися на інших сайтах More sharing options...
dobrobud1 Опубліковано: 23 березня 2016 Поділитись Опубліковано: 23 березня 2016 фермами? или прогоны? прогоны, стойки и подкосы, лежни(возможно двутавр) В районе пропеллера)) думаю добавить мансардных окон. Посилання на коментар Поділитися на інших сайтах More sharing options...
vadimv Опубліковано: 24 березня 2016 Поділитись Опубліковано: 24 березня 2016 как вам такой вариант планировки? ... Буду рад рационализаторским предложениям. Я бы еще и BEDROOM-2 выдвинул вперед на уровень MASTER SUITE - между ними образовался бы уютный внутренний дворик и BEDROOM-2 была бы акустически удалена от GREAT ROOM. 1 Посилання на коментар Поділитися на інших сайтах More sharing options...
-enjoy- Опубліковано: 24 березня 2016 Поділитись Опубліковано: 24 березня 2016 1 Посилання на коментар Поділитися на інших сайтах More sharing options...
vadimv Опубліковано: 24 березня 2016 Поділитись Опубліковано: 24 березня 2016 Хех! Ну тут жеж зонирования нет, гардеробных нет, гостиная вся в транзитных путях, акустически не отделена от спален, стол маленький, на проходе и т.д. и т.п.. У меня на той же площади одна из спален больше: Посилання на коментар Поділитися на інших сайтах More sharing options...
KUKUSHKA Опубліковано: 24 березня 2016 Поділитись Опубліковано: 24 березня 2016 а какой здесь ширины гостиная? Посилання на коментар Поділитися на інших сайтах More sharing options...
-enjoy- Опубліковано: 24 березня 2016 Поділитись Опубліковано: 24 березня 2016 У меня на той же площади одна из спален больше: але якщо кухню перемістити в гостьову (студіо), то буде також ще одна спальня. А якщо перенести котел на кухню, то замість котельної буде ще одна спальня. Питання тільки навіщо? мабуть ви не замічаєте різниці. Ось ще варіант: 2 Посилання на коментар Поділитися на інших сайтах More sharing options...
vadimv Опубліковано: 24 березня 2016 Поділитись Опубліковано: 24 березня 2016 а какой здесь ширины гостиная?И мне тоже интересно, как тут сделать перекрытие? Посилання на коментар Поділитися на інших сайтах More sharing options...
Сергей НСТ Опубліковано: 24 березня 2016 Поділитись Опубліковано: 24 березня 2016 И мне тоже интересно, как тут сделать перекрытие? Элементарно, стены между 6 и 7, 7 и 8, 3 и 1 сделать несущими и залить монолитом. 1 Посилання на коментар Поділитися на інших сайтах More sharing options...
vadimv Опубліковано: 24 березня 2016 Поділитись Опубліковано: 24 березня 2016 стены между 6 и 7, 7 и 8, 3 и 1 сделать несущимиНа плане-то они такими не показаны. Рисовальщику - низачот. и залить монолитом.Та вообще - бюджетное решение! И очень оправданное в одноэтажном доме. :D Посилання на коментар Поділитися на інших сайтах More sharing options...
Сергей НСТ Опубліковано: 24 березня 2016 Поділитись Опубліковано: 24 березня 2016 Та вообще - бюджетное решение! :D Та ладно... Хороший конструктор может просчитать армирование в одну сетку и толщиной перекрытия 14-16 см, посчитайте расходы в сравнении с панелями... Посилання на коментар Поділитися на інших сайтах More sharing options...
Andrei constructor Опубліковано: 24 березня 2016 Поділитись Опубліковано: 24 березня 2016 может просчитать армирование в одну сетку плита плите рознь Добавлено через 1 минуту толщиной перекрытия 14-16 см приведенная толщина (если убрать пустоты) обычно круглопустотной плиты перекрытия - 12 см. Посилання на коментар Поділитися на інших сайтах More sharing options...
Рекомендовані повідомлення
Створіть акаунт або увійдіть у нього для коментування
Ви маєте бути користувачем, щоб залишити коментар
Створити акаунт
Зареєструйтеся для отримання акаунта. Це просто!
Зареєструвати акаунтУвійти
Вже зареєстровані? Увійдіть тут.
Увійти зараз